Стальные многогранные опоры ЛЭП в Бийске

Качественный расчёт
Полный спектр услуг
Сертифицированная продукция
Оставить заявку
Сортировать:
Нет
Нет
По наименованию (А-Я)
По наименованию (Я-А)
По популярности (возрастание)
По популярности (убывание)
Фильтр по параметрам:
В наличии
Способ установки: фланцевая
Способ производства: граненая
Высота, мм: 23200
Цена по запросу
Array
(
    [ID] => 15381
    [~ID] => 15381
    [IBLOCK_ID] => 2
    [~IBLOCK_ID] => 2
    [CODE] => um220-1
    [~CODE] => um220-1
    [XML_ID] => 15381
    [~XML_ID] => 15381
    [NAME] => Многогранная опора УМ220-1
    [~NAME] => Многогранная опора УМ220-1
    [ACTIVE] => Y
    [~ACTIVE] => Y
    [DATE_ACTIVE_FROM] => 
    [~DATE_ACTIVE_FROM] => 
    [DATE_ACTIVE_TO] => 
    [~DATE_ACTIVE_TO] => 
    [SORT] => 0
    [~SORT] => 0
    [PREVIEW_TEXT] => 
    [~PREVIEW_TEXT] => 
    [PREVIEW_TEXT_TYPE] => text
    [~PREVIEW_TEXT_TYPE] => text
    [DETAIL_TEXT] => 

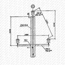
Опоры многогранные одноцепные анкерно-угловые УМ220-1 представляют собой одностоечные свободностоящие конструкции для воздушных линий электропередачи напряжением 220 кВ. Изделие производится по типовому проекту 27.0003 и предназначено для установки на угловых и анкерных участках трассы. Конструкция высотой 23,2 метра имеет граненый конический ствол с диаметром от 1700 мм в нижней части до 400 мм в верхней. Высота до нижней траверсы составляет 10,5 метров. Опора оснащена узлом крепления для одного грозотроса и рассчитана на компенсацию суммарной нагрузки от натяжения проводов, воспринимая проектные усилия как вдоль, так и поперек трассы ВЛ. Материалом изготовления служит углеродистая сталь марки С245, допускающая эксплуатацию при температуре до –40 °С. 

Поставка опоры осуществляется в разобранном виде с полным комплектом метизов, комплектовочной ведомостью и схемой сборки. Монтаж производится на заранее подготовленный фундамент, рассчитанный на передачу значительных выдергивающих и опрокидывающих нагрузок, характерных для анкерно-угловых опор. Сборка конструкции на площадке требует строгого соблюдения проектной документации.

Для обеспечения долговечности в условиях атмосферного воздействия все металлические элементы опоры УМ220-1 защищены методом горячего цинкования. Толщина цинкового покрытия составляет от 80 до 100 микрон, что обеспечивает надежную антикоррозионную защиту на весь срок службы. Дополнительное лакокрасочное покрытие может быть нанесено по отдельному требованию заказчика.

[~DETAIL_TEXT] =>

Опоры многогранные одноцепные анкерно-угловые УМ220-1 представляют собой одностоечные свободностоящие конструкции для воздушных линий электропередачи напряжением 220 кВ. Изделие производится по типовому проекту 27.0003 и предназначено для установки на угловых и анкерных участках трассы. Конструкция высотой 23,2 метра имеет граненый конический ствол с диаметром от 1700 мм в нижней части до 400 мм в верхней. Высота до нижней траверсы составляет 10,5 метров. Опора оснащена узлом крепления для одного грозотроса и рассчитана на компенсацию суммарной нагрузки от натяжения проводов, воспринимая проектные усилия как вдоль, так и поперек трассы ВЛ. Материалом изготовления служит углеродистая сталь марки С245, допускающая эксплуатацию при температуре до –40 °С. 

Поставка опоры осуществляется в разобранном виде с полным комплектом метизов, комплектовочной ведомостью и схемой сборки. Монтаж производится на заранее подготовленный фундамент, рассчитанный на передачу значительных выдергивающих и опрокидывающих нагрузок, характерных для анкерно-угловых опор. Сборка конструкции на площадке требует строгого соблюдения проектной документации.

Для обеспечения долговечности в условиях атмосферного воздействия все металлические элементы опоры УМ220-1 защищены методом горячего цинкования. Толщина цинкового покрытия составляет от 80 до 100 микрон, что обеспечивает надежную антикоррозионную защиту на весь срок службы. Дополнительное лакокрасочное покрытие может быть нанесено по отдельному требованию заказчика.

[DETAIL_TEXT_TYPE] => html [~DETAIL_TEXT_TYPE] => html [DATE_CREATE] => 07.11.2023 15:10:02 [~DATE_CREATE] => 07.11.2023 15:10:02 [CREATED_BY] => 1 [~CREATED_BY] => 1 [TAGS] => [~TAGS] => [TIMESTAMP_X] => 15.12.2025 12:36:35 [~TIMESTAMP_X] => 15.12.2025 12:36:35 [MODIFIED_BY] => 1 [~MODIFIED_BY] => 1 [IBLOCK_SECTION_ID] => 2756 [~IBLOCK_SECTION_ID] => 2956 [DETAIL_PAGE_URL] => /product/um220-1/ [~DETAIL_PAGE_URL] => /product/um220-1/ [DETAIL_PICTURE] => [~DETAIL_PICTURE] => [PREVIEW_PICTURE] => Array ( [ID] => 35309 [TIMESTAMP_X] => 15.12.2025 12:36:35 [MODULE_ID] => iblock [HEIGHT] => 1000 [WIDTH] => 1000 [FILE_SIZE] => 147758 [CONTENT_TYPE] => image/jpeg [SUBDIR] => iblock/771/0pr0voikp0m4x8iqa304cx2s1yw4bjll [FILE_NAME] => catalog_file_2102_l.jpg [ORIGINAL_NAME] => catalog-file-2102-l.jpg [DESCRIPTION] => [HANDLER_ID] => [EXTERNAL_ID] => bdb69f3128b364db020b0b2a2af521cf [VERSION_ORIGINAL_ID] => [META] => [SRC] => /upload/dev2fun.imagecompress/webp/iblock/771/0pr0voikp0m4x8iqa304cx2s1yw4bjll/catalog_file_2102_l.webp [UNSAFE_SRC] => /upload/dev2fun.imagecompress/webp/iblock/771/0pr0voikp0m4x8iqa304cx2s1yw4bjll/catalog_file_2102_l.webp [SAFE_SRC] => /upload/dev2fun.imagecompress/webp/iblock/771/0pr0voikp0m4x8iqa304cx2s1yw4bjll/catalog_file_2102_l.webp [ALT] => Многогранная опора УМ220-1 [TITLE] => Многогранная опора УМ220-1 ) [~PREVIEW_PICTURE] => 35309 [LANG_DIR] => / [~LANG_DIR] => / [EXTERNAL_ID] => 15381 [~EXTERNAL_ID] => 15381 [IBLOCK_TYPE_ID] => catalog [~IBLOCK_TYPE_ID] => catalog [IBLOCK_CODE] => metalstructures [~IBLOCK_CODE] => metalstructures [IBLOCK_EXTERNAL_ID] => clothes [~IBLOCK_EXTERNAL_ID] => clothes [LID] => s1 [~LID] => s1 [IPROPERTY_VALUES] => Array ( [ELEMENT_DETAIL_PICTURE_FILE_NAME] => [ELEMENT_PREVIEW_PICTURE_FILE_NAME] => [SECTION_DETAIL_PICTURE_FILE_NAME] => [SECTION_PICTURE_FILE_NAME] => [SECTION_PAGE_TITLE] => Многогранная опора УМ220-1 [ELEMENT_PAGE_TITLE] => Многогранная опора УМ220-1 [SECTION_META_TITLE] => Многогранные одноцепные анкерно-угловые опоры ВЛ 220 кВ по шифру 27.0003 купить в {{rp}} на сайте производителя НПО Легион [SECTION_META_DESCRIPTION] => Производство многогранных одноцепные анкерно-угловые опоры ВЛ 220 кВ. Купить напрямую у производителя в {{rp}}. Собственное производство. Наличие товара на складе. Звоните ☎ {{subdomain_tel}} [SECTION_META_KEYWORDS] => Многоранные опоры ЛЭП производство продажа купить многогранные одноцепные анкерно-угловые опоры ВЛ 220 кВ для линий электропередач [ELEMENT_META_TITLE] => Многогранная опора УМ220-1 для высоковольтных линий 220 кВ купить в {{rp}} на сайте производителя НПО Легион [ELEMENT_META_DESCRIPTION] => Производство стальных многогранных опор УМ220-1 для высоковольтных линий 220 кВ по шифру 22.0003 в {{rp}}. Заказать многогранные опоры ЛЭП у производителя НПО Легион. Наличие товара на складе. Звоните ☎ {{subdomain_tel}} [ELEMENT_META_KEYWORDS] => Многоранные опоры УМ220-1 ЛЭП производство продажа купить многогранные ВЛ 220кВ для линий электропередач шифру 22.0003 ) [PRODUCT] => Array ( [TYPE] => 1 [AVAILABLE] => Y [BUNDLE] => N [QUANTITY] => 10 [QUANTITY_TRACE] => N [CAN_BUY_ZERO] => Y [MEASURE] => 5 [SUBSCRIBE] => Y [VAT_ID] => 0 [VAT_RATE] => 0 [VAT_INCLUDED] => N [WEIGHT] => 0 [WIDTH] => 0 [LENGTH] => 0 [HEIGHT] => 0 [PAYMENT_TYPE] => S [RECUR_SCHEME_TYPE] => D [RECUR_SCHEME_LENGTH] => 0 [TRIAL_PRICE_ID] => 0 [USE_OFFERS] => ) [~CATALOG_TYPE] => 1 [CATALOG_TYPE] => 1 [~CATALOG_QUANTITY] => 10 [CATALOG_QUANTITY] => 10 [~CATALOG_QUANTITY_TRACE] => N [CATALOG_QUANTITY_TRACE] => N [~CATALOG_CAN_BUY_ZERO] => Y [CATALOG_CAN_BUY_ZERO] => Y [~CATALOG_SUBSCRIBE] => Y [CATALOG_SUBSCRIBE] => Y [PROPERTIES] => Array ( [ITEM_DELIVERY] => Array ( [ID] => 20 [IBLOCK_ID] => 2 [NAME] => Доставка [ACTIVE] => Y [SORT] => 1 [CODE] => ITEM_DELIVERY [DEFAULT_VALUE] => [PROPERTY_TYPE] => L [ROW_COUNT] => 1 [COL_COUNT] => 30 [LIST_TYPE] => L [MULTIPLE] => N [XML_ID] => 20 [FILE_TYPE] => [MULTIPLE_CNT] => 5 [LINK_IBLOCK_ID] => 0 [WITH_DESCRIPTION] => N [SEARCHABLE] => N [FILTRABLE] => N [IS_REQUIRED] => Y [VERSION] => 1 [USER_TYPE] => [USER_TYPE_SETTINGS] => Array ( ) [HINT] => [~NAME] => Доставка [~DEFAULT_VALUE] => [VALUE_ENUM] => По России и СНГ [VALUE_XML_ID] => ru-sng [VALUE_SORT] => 1 [VALUE] => По России и СНГ [PROPERTY_VALUE_ID] => 6825482 [VALUE_ENUM_ID] => 7 [DESCRIPTION] => [~VALUE] => По России и СНГ [~DESCRIPTION] => ) [ITEM_PAYMENT] => Array ( [ID] => 21 [IBLOCK_ID] => 2 [NAME] => Оплата [ACTIVE] => Y [SORT] => 2 [CODE] => ITEM_PAYMENT [DEFAULT_VALUE] => [PROPERTY_TYPE] => L [ROW_COUNT] => 1 [COL_COUNT] => 30 [LIST_TYPE] => L [MULTIPLE] => N [XML_ID] => 21 [FILE_TYPE] => [MULTIPLE_CNT] => 5 [LINK_IBLOCK_ID] => 0 [WITH_DESCRIPTION] => N [SEARCHABLE] => N [FILTRABLE] => N [IS_REQUIRED] => Y [VERSION] => 1 [USER_TYPE] => [USER_TYPE_SETTINGS] => Array ( ) [HINT] => [~NAME] => Оплата [~DEFAULT_VALUE] => [VALUE_ENUM] => Безналичный расчет [VALUE_XML_ID] => payment-bank [VALUE_SORT] => 1 [VALUE] => Безналичный расчет [PROPERTY_VALUE_ID] => 6825483 [VALUE_ENUM_ID] => 8 [DESCRIPTION] => [~VALUE] => Безналичный расчет [~DESCRIPTION] => ) [ITEM_PRICE] => Array ( [ID] => 22 [IBLOCK_ID] => 2 [NAME] => Цена [ACTIVE] => Y [SORT] => 3 [CODE] => ITEM_PRICE [DEFAULT_VALUE] => [PROPERTY_TYPE] => L [ROW_COUNT] => 1 [COL_COUNT] => 30 [LIST_TYPE] => L [MULTIPLE] => N [XML_ID] => 22 [FILE_TYPE] => [MULTIPLE_CNT] => 5 [LINK_IBLOCK_ID] => 0 [WITH_DESCRIPTION] => N [SEARCHABLE] => N [FILTRABLE] => N [IS_REQUIRED] => Y [VERSION] => 1 [USER_TYPE] => [USER_TYPE_SETTINGS] => Array ( ) [HINT] => [~NAME] => Цена [~DEFAULT_VALUE] => [VALUE_ENUM] => По запросу [VALUE_XML_ID] => on-request [VALUE_SORT] => 1 [VALUE] => По запросу [PROPERTY_VALUE_ID] => 6825484 [VALUE_ENUM_ID] => 9 [DESCRIPTION] => [~VALUE] => По запросу [~DESCRIPTION] => ) [ITEM_IMAGES] => Array ( [ID] => 23 [IBLOCK_ID] => 2 [NAME] => Изображения [ACTIVE] => Y [SORT] => 4 [CODE] => ITEM_IMAGES [DEFAULT_VALUE] => [PROPERTY_TYPE] => F [ROW_COUNT] => 1 [COL_COUNT] => 30 [LIST_TYPE] => L [MULTIPLE] => Y [XML_ID] => 23 [FILE_TYPE] => [MULTIPLE_CNT] => 5 [LINK_IBLOCK_ID] => 0 [WITH_DESCRIPTION] => N [SEARCHABLE] => N [FILTRABLE] => N [IS_REQUIRED] => N [VERSION] => 1 [USER_TYPE] => [USER_TYPE_SETTINGS] => Array ( ) [HINT] => [~NAME] => Изображения [~DEFAULT_VALUE] => [VALUE_ENUM] => [VALUE_XML_ID] => [VALUE_SORT] => [VALUE] => Array ( [0] => 35310 [1] => 35311 [2] => 35312 ) [PROPERTY_VALUE_ID] => Array ( [0] => 5933062 [1] => 5933063 [2] => 5933064 ) [DESCRIPTION] => Array ( [0] => [1] => [2] => ) [~VALUE] => Array ( [0] => 35310 [1] => 35311 [2] => 35312 ) [~DESCRIPTION] => Array ( [0] => [1] => [2] => ) ) [ITEM_PROPERTIES] => Array ( [ID] => 24 [IBLOCK_ID] => 2 [NAME] => Свойства [ACTIVE] => Y [SORT] => 5 [CODE] => ITEM_PROPERTIES [DEFAULT_VALUE] => [PROPERTY_TYPE] => E [ROW_COUNT] => 1 [COL_COUNT] => 30 [LIST_TYPE] => L [MULTIPLE] => Y [XML_ID] => 24 [FILE_TYPE] => [MULTIPLE_CNT] => 1 [LINK_IBLOCK_ID] => 3 [WITH_DESCRIPTION] => N [SEARCHABLE] => N [FILTRABLE] => N [IS_REQUIRED] => N [VERSION] => 1 [USER_TYPE] => [USER_TYPE_SETTINGS] => Array ( ) [HINT] => [~NAME] => Свойства [~DEFAULT_VALUE] => [VALUE_ENUM] => [VALUE_XML_ID] => [VALUE_SORT] => [VALUE] => [PROPERTY_VALUE_ID] => [DESCRIPTION] => [~DESCRIPTION] => [~VALUE] => ) [ITEM_CHARACTERISTICS] => Array ( [ID] => 28 [IBLOCK_ID] => 2 [NAME] => Характеристики [ACTIVE] => Y [SORT] => 6 [CODE] => ITEM_CHARACTERISTICS [DEFAULT_VALUE] => [PROPERTY_TYPE] => S [ROW_COUNT] => 1 [COL_COUNT] => 20 [LIST_TYPE] => L [MULTIPLE] => Y [XML_ID] => 28 [FILE_TYPE] => [MULTIPLE_CNT] => 1 [LINK_IBLOCK_ID] => 0 [WITH_DESCRIPTION] => Y [SEARCHABLE] => N [FILTRABLE] => N [IS_REQUIRED] => N [VERSION] => 1 [USER_TYPE] => [USER_TYPE_SETTINGS] => Array ( ) [HINT] => [~NAME] => Характеристики [~DEFAULT_VALUE] => [VALUE_ENUM] => [VALUE_XML_ID] => [VALUE_SORT] => [VALUE] => Array ( [0] => фланцевая [1] => граненая [2] => 23200 [3] => 10500 [4] => 1700 [5] => 400 [6] => одностоечная свободностоящая [7] => горячее цинкование [8] => Порошковое / полимерное окрашивание [9] => 30 лет [10] => анкерно-угловая ) [PROPERTY_VALUE_ID] => Array ( [0] => 6823872 [1] => 6823873 [2] => 6823874 [3] => 6823875 [4] => 6823876 [5] => 6823877 [6] => 6823878 [7] => 6823879 [8] => 6823880 [9] => 6823881 [10] => 6825470 ) [DESCRIPTION] => Array ( [0] => Способ установки [1] => Способ производства [2] => Высота, мм [3] => Высота до нижней траверсы , мм [4] => Диаметр нижний, мм [5] => Диаметр верхний, мм [6] => Конструкция [7] => Защитное покрытие [8] => Лакокрасочное покрытие [9] => Срок службы [10] => Назначение ) [~VALUE] => Array ( [0] => фланцевая [1] => граненая [2] => 23200 [3] => 10500 [4] => 1700 [5] => 400 [6] => одностоечная свободностоящая [7] => горячее цинкование [8] => Порошковое / полимерное окрашивание [9] => 30 лет [10] => анкерно-угловая ) [~DESCRIPTION] => Array ( [0] => Способ установки [1] => Способ производства [2] => Высота, мм [3] => Высота до нижней траверсы , мм [4] => Диаметр нижний, мм [5] => Диаметр верхний, мм [6] => Конструкция [7] => Защитное покрытие [8] => Лакокрасочное покрытие [9] => Срок службы [10] => Назначение ) ) [ITEM_FILTER] => Array ( [ID] => 40 [IBLOCK_ID] => 2 [NAME] => Фильтр [ACTIVE] => Y [SORT] => 7 [CODE] => ITEM_FILTER [DEFAULT_VALUE] => [PROPERTY_TYPE] => S [ROW_COUNT] => 1 [COL_COUNT] => 30 [LIST_TYPE] => L [MULTIPLE] => N [XML_ID] => 40 [FILE_TYPE] => [MULTIPLE_CNT] => 5 [LINK_IBLOCK_ID] => 0 [WITH_DESCRIPTION] => N [SEARCHABLE] => N [FILTRABLE] => N [IS_REQUIRED] => N [VERSION] => 1 [USER_TYPE] => [USER_TYPE_SETTINGS] => Array ( ) [HINT] => [~NAME] => Фильтр [~DEFAULT_VALUE] => [VALUE_ENUM] => [VALUE_XML_ID] => [VALUE_SORT] => [VALUE] => [PROPERTY_VALUE_ID] => [DESCRIPTION] => [~DESCRIPTION] => [~VALUE] => ) [ITEM_TECH_CH] => Array ( [ID] => 29 [IBLOCK_ID] => 2 [NAME] => Технические характеристики [ACTIVE] => Y [SORT] => 8 [CODE] => ITEM_TECH_CH [DEFAULT_VALUE] => Array ( [TYPE] => HTML [TEXT] => ) [PROPERTY_TYPE] => S [ROW_COUNT] => 1 [COL_COUNT] => 30 [LIST_TYPE] => L [MULTIPLE] => N [XML_ID] => 29 [FILE_TYPE] => [MULTIPLE_CNT] => 5 [LINK_IBLOCK_ID] => 0 [WITH_DESCRIPTION] => N [SEARCHABLE] => N [FILTRABLE] => N [IS_REQUIRED] => N [VERSION] => 1 [USER_TYPE] => HTML [USER_TYPE_SETTINGS] => Array ( [height] => 200 ) [HINT] => [~NAME] => Технические характеристики [~DEFAULT_VALUE] => Array ( [TYPE] => HTML [TEXT] => ) [VALUE_ENUM] => [VALUE_XML_ID] => [VALUE_SORT] => [VALUE] => Array ( [TEXT] => <p style="text-align: justify;"> Конструкция применяется на угловых и анкерных участках трассы воздушных линий электропередачи класса напряжения 220 кВ. Опоры используются в местах изменения направления линии, где возникают значительные неравномерные нагрузки от натяжения проводов и тросов. Данная модель востребована для строительства и реконструкции магистральных и распределительных ЛЭП в составе одноцепных линий. Конструкция предназначена для эксплуатации в ветровых и гололедных районах I–IV. </p> [TYPE] => HTML ) [PROPERTY_VALUE_ID] => 6823885 [DESCRIPTION] => [~VALUE] => Array ( [TEXT] =>

Конструкция применяется на угловых и анкерных участках трассы воздушных линий электропередачи класса напряжения 220 кВ. Опоры используются в местах изменения направления линии, где возникают значительные неравномерные нагрузки от натяжения проводов и тросов. Данная модель востребована для строительства и реконструкции магистральных и распределительных ЛЭП в составе одноцепных линий. Конструкция предназначена для эксплуатации в ветровых и гололедных районах I–IV.

[TYPE] => HTML ) [~DESCRIPTION] => ) [ITEM_ADV_DESCR] => Array ( [ID] => 30 [IBLOCK_ID] => 2 [NAME] => Преимущества (описание) [ACTIVE] => Y [SORT] => 9 [CODE] => ITEM_ADV_DESCR [DEFAULT_VALUE] => Array ( [TYPE] => HTML [TEXT] => ) [PROPERTY_TYPE] => S [ROW_COUNT] => 1 [COL_COUNT] => 30 [LIST_TYPE] => L [MULTIPLE] => N [XML_ID] => 30 [FILE_TYPE] => [MULTIPLE_CNT] => 5 [LINK_IBLOCK_ID] => 0 [WITH_DESCRIPTION] => N [SEARCHABLE] => N [FILTRABLE] => N [IS_REQUIRED] => N [VERSION] => 1 [USER_TYPE] => HTML [USER_TYPE_SETTINGS] => Array ( [height] => 100 ) [HINT] => [~NAME] => Преимущества (описание) [~DEFAULT_VALUE] => Array ( [TYPE] => HTML [TEXT] => ) [VALUE_ENUM] => [VALUE_XML_ID] => [VALUE_SORT] => [VALUE] => Array ( [TEXT] => <p style="text-align: justify;"> Ключевым преимуществом является специализированная конструкция, рассчитанная на восприятие комплексных нагрузок в угловых и анкерных точках одноцепной ВЛ 220 кВ. Использование высокопрочной стали С245 и горячего цинкования гарантирует надежность и срок службы в районах с холодным климатом. Коническая граненая форма ствола обеспечивает оптимальное соотношение прочности и материалоемкости. Комплектная поставка с детальной документацией упрощает организацию монтажных работ на объекте. </p> [TYPE] => HTML ) [PROPERTY_VALUE_ID] => 6823886 [DESCRIPTION] => [~VALUE] => Array ( [TEXT] =>

Ключевым преимуществом является специализированная конструкция, рассчитанная на восприятие комплексных нагрузок в угловых и анкерных точках одноцепной ВЛ 220 кВ. Использование высокопрочной стали С245 и горячего цинкования гарантирует надежность и срок службы в районах с холодным климатом. Коническая граненая форма ствола обеспечивает оптимальное соотношение прочности и материалоемкости. Комплектная поставка с детальной документацией упрощает организацию монтажных работ на объекте.

[TYPE] => HTML ) [~DESCRIPTION] => ) [ITEM_ADV] => Array ( [ID] => 31 [IBLOCK_ID] => 2 [NAME] => Преимущества [ACTIVE] => Y [SORT] => 10 [CODE] => ITEM_ADV [DEFAULT_VALUE] => [PROPERTY_TYPE] => E [ROW_COUNT] => 1 [COL_COUNT] => 30 [LIST_TYPE] => L [MULTIPLE] => Y [XML_ID] => 31 [FILE_TYPE] => [MULTIPLE_CNT] => 1 [LINK_IBLOCK_ID] => 5 [WITH_DESCRIPTION] => N [SEARCHABLE] => N [FILTRABLE] => N [IS_REQUIRED] => N [VERSION] => 1 [USER_TYPE] => [USER_TYPE_SETTINGS] => Array ( ) [HINT] => [~NAME] => Преимущества [~DEFAULT_VALUE] => [VALUE_ENUM] => [VALUE_XML_ID] => [VALUE_SORT] => [VALUE] => [PROPERTY_VALUE_ID] => [DESCRIPTION] => [~DESCRIPTION] => [~VALUE] => ) [ITEM_BUY] => Array ( [ID] => 32 [IBLOCK_ID] => 2 [NAME] => Купить [ACTIVE] => Y [SORT] => 11 [CODE] => ITEM_BUY [DEFAULT_VALUE] => Array ( [TEXT] => [TYPE] => HTML ) [PROPERTY_TYPE] => S [ROW_COUNT] => 1 [COL_COUNT] => 30 [LIST_TYPE] => L [MULTIPLE] => N [XML_ID] => 32 [FILE_TYPE] => [MULTIPLE_CNT] => 5 [LINK_IBLOCK_ID] => 0 [WITH_DESCRIPTION] => N [SEARCHABLE] => N [FILTRABLE] => N [IS_REQUIRED] => N [VERSION] => 1 [USER_TYPE] => HTML [USER_TYPE_SETTINGS] => Array ( [height] => 200 ) [HINT] => [~NAME] => Купить [~DEFAULT_VALUE] => Array ( [TEXT] => [TYPE] => HTML ) [VALUE_ENUM] => [VALUE_XML_ID] => [VALUE_SORT] => [VALUE] => Array ( [TEXT] => <p style="text-align: justify;"> Приобрести многогранные одноцепные анкерно-угловые опоры УМ220-1 для ВЛ 220 кВ можно напрямую у производителя — НПО «Легион». Мы гарантируем соответствие продукции типовому проекту 27.0003 и полную комплектацию для монтажа. Для получения подробных технических условий, коммерческого предложения и оформления заказа обратитесь к нашим специалистам.<br> Телефон: 8(800)500-51-37<br> Email: <a href="mailto:info@legionural.ru">info@legionural.ru</a> </p> <a href="mailto:info@legionural.ru"></a> [TYPE] => HTML ) [PROPERTY_VALUE_ID] => 6823887 [DESCRIPTION] => [~VALUE] => Array ( [TEXT] =>

Приобрести многогранные одноцепные анкерно-угловые опоры УМ220-1 для ВЛ 220 кВ можно напрямую у производителя — НПО «Легион». Мы гарантируем соответствие продукции типовому проекту 27.0003 и полную комплектацию для монтажа. Для получения подробных технических условий, коммерческого предложения и оформления заказа обратитесь к нашим специалистам.
Телефон: 8(800)500-51-37
Email: info@legionural.ru

[TYPE] => HTML ) [~DESCRIPTION] => ) [ITEM_CERT_COR] => Array ( [ID] => 33 [IBLOCK_ID] => 2 [NAME] => Сертификаты соответствия [ACTIVE] => Y [SORT] => 12 [CODE] => ITEM_CERT_COR [DEFAULT_VALUE] => [PROPERTY_TYPE] => S [ROW_COUNT] => 1 [COL_COUNT] => 30 [LIST_TYPE] => L [MULTIPLE] => Y [XML_ID] => 33 [FILE_TYPE] => [MULTIPLE_CNT] => 1 [LINK_IBLOCK_ID] => 0 [WITH_DESCRIPTION] => Y [SEARCHABLE] => N [FILTRABLE] => N [IS_REQUIRED] => N [VERSION] => 1 [USER_TYPE] => [USER_TYPE_SETTINGS] => Array ( ) [HINT] => [~NAME] => Сертификаты соответствия [~DEFAULT_VALUE] => [VALUE_ENUM] => [VALUE_XML_ID] => [VALUE_SORT] => [VALUE] => [PROPERTY_VALUE_ID] => [DESCRIPTION] => [~DESCRIPTION] => [~VALUE] => ) [ITEM_ST_STAND] => Array ( [ID] => 34 [IBLOCK_ID] => 2 [NAME] => Государственные стандарты [ACTIVE] => Y [SORT] => 13 [CODE] => ITEM_ST_STAND [DEFAULT_VALUE] => [PROPERTY_TYPE] => S [ROW_COUNT] => 1 [COL_COUNT] => 30 [LIST_TYPE] => L [MULTIPLE] => Y [XML_ID] => 34 [FILE_TYPE] => [MULTIPLE_CNT] => 1 [LINK_IBLOCK_ID] => 0 [WITH_DESCRIPTION] => Y [SEARCHABLE] => N [FILTRABLE] => N [IS_REQUIRED] => N [VERSION] => 1 [USER_TYPE] => [USER_TYPE_SETTINGS] => Array ( ) [HINT] => [~NAME] => Государственные стандарты [~DEFAULT_VALUE] => [VALUE_ENUM] => [VALUE_XML_ID] => [VALUE_SORT] => [VALUE] => [PROPERTY_VALUE_ID] => [DESCRIPTION] => [~DESCRIPTION] => [~VALUE] => ) [ITEM_NORM] => Array ( [ID] => 35 [IBLOCK_ID] => 2 [NAME] => Строительные нормы и правила [ACTIVE] => Y [SORT] => 14 [CODE] => ITEM_NORM [DEFAULT_VALUE] => [PROPERTY_TYPE] => S [ROW_COUNT] => 1 [COL_COUNT] => 30 [LIST_TYPE] => L [MULTIPLE] => Y [XML_ID] => 35 [FILE_TYPE] => [MULTIPLE_CNT] => 1 [LINK_IBLOCK_ID] => 0 [WITH_DESCRIPTION] => Y [SEARCHABLE] => N [FILTRABLE] => N [IS_REQUIRED] => N [VERSION] => 1 [USER_TYPE] => [USER_TYPE_SETTINGS] => Array ( ) [HINT] => [~NAME] => Строительные нормы и правила [~DEFAULT_VALUE] => [VALUE_ENUM] => [VALUE_XML_ID] => [VALUE_SORT] => [VALUE] => [PROPERTY_VALUE_ID] => [DESCRIPTION] => [~DESCRIPTION] => [~VALUE] => ) [ITEM_SIMILAR] => Array ( [ID] => 36 [IBLOCK_ID] => 2 [NAME] => Похожие модели [ACTIVE] => Y [SORT] => 15 [CODE] => ITEM_SIMILAR [DEFAULT_VALUE] => [PROPERTY_TYPE] => G [ROW_COUNT] => 1 [COL_COUNT] => 30 [LIST_TYPE] => L [MULTIPLE] => Y [XML_ID] => 36 [FILE_TYPE] => [MULTIPLE_CNT] => 10 [LINK_IBLOCK_ID] => 2 [WITH_DESCRIPTION] => N [SEARCHABLE] => N [FILTRABLE] => N [IS_REQUIRED] => N [VERSION] => 1 [USER_TYPE] => [USER_TYPE_SETTINGS] => Array ( ) [HINT] => [~NAME] => Похожие модели [~DEFAULT_VALUE] => [VALUE_ENUM] => [VALUE_XML_ID] => [VALUE_SORT] => [VALUE] => Array ( [0] => 2957 ) [PROPERTY_VALUE_ID] => Array ( [0] => 6825485 ) [DESCRIPTION] => Array ( [0] => ) [~VALUE] => Array ( [0] => 2957 ) [~DESCRIPTION] => Array ( [0] => ) ) [ITEM_SIMILAR_TAGS] => Array ( [ID] => 122 [IBLOCK_ID] => 2 [NAME] => Похожие модели (теговые) [ACTIVE] => Y [SORT] => 16 [CODE] => ITEM_SIMILAR_TAGS [DEFAULT_VALUE] => [PROPERTY_TYPE] => E [ROW_COUNT] => 1 [COL_COUNT] => 30 [LIST_TYPE] => L [MULTIPLE] => Y [XML_ID] => 122 [FILE_TYPE] => [MULTIPLE_CNT] => 1 [LINK_IBLOCK_ID] => 19 [WITH_DESCRIPTION] => N [SEARCHABLE] => N [FILTRABLE] => N [IS_REQUIRED] => N [VERSION] => 1 [USER_TYPE] => [USER_TYPE_SETTINGS] => Array ( ) [HINT] => [~NAME] => Похожие модели (теговые) [~DEFAULT_VALUE] => [VALUE_ENUM] => [VALUE_XML_ID] => [VALUE_SORT] => [VALUE] => [PROPERTY_VALUE_ID] => [DESCRIPTION] => [~DESCRIPTION] => [~VALUE] => ) [ITEM_BUY_WITH] => Array ( [ID] => 37 [IBLOCK_ID] => 2 [NAME] => С этим товаром покупают [ACTIVE] => Y [SORT] => 17 [CODE] => ITEM_BUY_WITH [DEFAULT_VALUE] => [PROPERTY_TYPE] => E [ROW_COUNT] => 1 [COL_COUNT] => 30 [LIST_TYPE] => L [MULTIPLE] => Y [XML_ID] => 37 [FILE_TYPE] => [MULTIPLE_CNT] => 1 [LINK_IBLOCK_ID] => 2 [WITH_DESCRIPTION] => N [SEARCHABLE] => N [FILTRABLE] => N [IS_REQUIRED] => N [VERSION] => 1 [USER_TYPE] => [USER_TYPE_SETTINGS] => Array ( ) [HINT] => [~NAME] => С этим товаром покупают [~DEFAULT_VALUE] => [VALUE_ENUM] => [VALUE_XML_ID] => [VALUE_SORT] => [VALUE] => [PROPERTY_VALUE_ID] => [DESCRIPTION] => [~DESCRIPTION] => [~VALUE] => ) [ITEM_VOTE_COUNT] => Array ( [ID] => 38 [IBLOCK_ID] => 2 [NAME] => Количество голосов [ACTIVE] => Y [SORT] => 18 [CODE] => ITEM_VOTE_COUNT [DEFAULT_VALUE] => 0 [PROPERTY_TYPE] => N [ROW_COUNT] => 1 [COL_COUNT] => 30 [LIST_TYPE] => L [MULTIPLE] => N [XML_ID] => 38 [FILE_TYPE] => [MULTIPLE_CNT] => 5 [LINK_IBLOCK_ID] => 0 [WITH_DESCRIPTION] => N [SEARCHABLE] => N [FILTRABLE] => N [IS_REQUIRED] => N [VERSION] => 1 [USER_TYPE] => [USER_TYPE_SETTINGS] => Array ( ) [HINT] => [~NAME] => Количество голосов [~DEFAULT_VALUE] => 0 [VALUE_ENUM] => [VALUE_XML_ID] => [VALUE_SORT] => [VALUE] => 13 [PROPERTY_VALUE_ID] => 5933065 [DESCRIPTION] => [~VALUE] => 13 [~DESCRIPTION] => ) [ITEM_RAITING] => Array ( [ID] => 39 [IBLOCK_ID] => 2 [NAME] => Рейтинг [ACTIVE] => Y [SORT] => 19 [CODE] => ITEM_RAITING [DEFAULT_VALUE] => 0 [PROPERTY_TYPE] => N [ROW_COUNT] => 1 [COL_COUNT] => 30 [LIST_TYPE] => L [MULTIPLE] => N [XML_ID] => 39 [FILE_TYPE] => [MULTIPLE_CNT] => 5 [LINK_IBLOCK_ID] => 0 [WITH_DESCRIPTION] => N [SEARCHABLE] => N [FILTRABLE] => N [IS_REQUIRED] => N [VERSION] => 1 [USER_TYPE] => [USER_TYPE_SETTINGS] => Array ( ) [HINT] => [~NAME] => Рейтинг [~DEFAULT_VALUE] => 0 [VALUE_ENUM] => [VALUE_XML_ID] => [VALUE_SORT] => [VALUE] => 4.2 [PROPERTY_VALUE_ID] => 5933066 [DESCRIPTION] => [~VALUE] => 4.2 [~DESCRIPTION] => ) [H1] => Array ( [ID] => 125 [IBLOCK_ID] => 2 [NAME] => H1 [ACTIVE] => Y [SORT] => 500 [CODE] => H1 [DEFAULT_VALUE] => [PROPERTY_TYPE] => S [ROW_COUNT] => 1 [COL_COUNT] => 70 [LIST_TYPE] => L [MULTIPLE] => N [XML_ID] => 125 [FILE_TYPE] => [MULTIPLE_CNT] => 5 [LINK_IBLOCK_ID] => 0 [WITH_DESCRIPTION] => N [SEARCHABLE] => N [FILTRABLE] => N [IS_REQUIRED] => N [VERSION] => 1 [USER_TYPE] => [USER_TYPE_SETTINGS] => Array ( ) [HINT] => [~NAME] => H1 [~DEFAULT_VALUE] => [VALUE_ENUM] => [VALUE_XML_ID] => [VALUE_SORT] => [VALUE] => Многогранная опора УМ220-1 [PROPERTY_VALUE_ID] => 5945370 [DESCRIPTION] => [~VALUE] => Многогранная опора УМ220-1 [~DESCRIPTION] => ) [CERTIFICATES] => Array ( [ID] => 127 [IBLOCK_ID] => 2 [NAME] => Сертификаты [ACTIVE] => Y [SORT] => 500 [CODE] => CERTIFICATES [DEFAULT_VALUE] => [PROPERTY_TYPE] => E [ROW_COUNT] => 1 [COL_COUNT] => 30 [LIST_TYPE] => L [MULTIPLE] => Y [XML_ID] => 127 [FILE_TYPE] => [MULTIPLE_CNT] => 5 [LINK_IBLOCK_ID] => 7 [WITH_DESCRIPTION] => N [SEARCHABLE] => N [FILTRABLE] => N [IS_REQUIRED] => N [VERSION] => 1 [USER_TYPE] => [USER_TYPE_SETTINGS] => Array ( ) [HINT] => [~NAME] => Сертификаты [~DEFAULT_VALUE] => [VALUE_ENUM] => [VALUE_XML_ID] => [VALUE_SORT] => [VALUE] => [PROPERTY_VALUE_ID] => [DESCRIPTION] => [~DESCRIPTION] => [~VALUE] => ) [129] => Array ( [ID] => 129 [IBLOCK_ID] => 2 [NAME] => Уникальный META TITLE [ACTIVE] => Y [SORT] => 500 [CODE] => 129 [DEFAULT_VALUE] => [PROPERTY_TYPE] => S [ROW_COUNT] => 1 [COL_COUNT] => 30 [LIST_TYPE] => L [MULTIPLE] => N [XML_ID] => 129 [FILE_TYPE] => [MULTIPLE_CNT] => 5 [LINK_IBLOCK_ID] => 0 [WITH_DESCRIPTION] => N [SEARCHABLE] => N [FILTRABLE] => N [IS_REQUIRED] => N [VERSION] => 1 [USER_TYPE] => [USER_TYPE_SETTINGS] => Array ( ) [HINT] => [~NAME] => Уникальный META TITLE [~DEFAULT_VALUE] => [VALUE_ENUM] => [VALUE_XML_ID] => [VALUE_SORT] => [VALUE] => [PROPERTY_VALUE_ID] => [DESCRIPTION] => [~DESCRIPTION] => [~VALUE] => ) [ITEM_TYPE] => Array ( [ID] => 134 [IBLOCK_ID] => 2 [NAME] => Тип [ACTIVE] => Y [SORT] => 500 [CODE] => ITEM_TYPE [DEFAULT_VALUE] => [PROPERTY_TYPE] => S [ROW_COUNT] => 1 [COL_COUNT] => 30 [LIST_TYPE] => L [MULTIPLE] => N [XML_ID] => [FILE_TYPE] => [MULTIPLE_CNT] => 5 [LINK_IBLOCK_ID] => 0 [WITH_DESCRIPTION] => N [SEARCHABLE] => N [FILTRABLE] => Y [IS_REQUIRED] => N [VERSION] => 1 [USER_TYPE] => [USER_TYPE_SETTINGS] => Array ( ) [HINT] => [~NAME] => Тип [~DEFAULT_VALUE] => [VALUE_ENUM] => [VALUE_XML_ID] => [VALUE_SORT] => [VALUE] => [PROPERTY_VALUE_ID] => [DESCRIPTION] => [~DESCRIPTION] => [~VALUE] => ) [ITEM_INSTALLATION] => Array ( [ID] => 135 [IBLOCK_ID] => 2 [NAME] => Способ установки [ACTIVE] => Y [SORT] => 500 [CODE] => ITEM_INSTALLATION [DEFAULT_VALUE] => [PROPERTY_TYPE] => S [ROW_COUNT] => 1 [COL_COUNT] => 30 [LIST_TYPE] => L [MULTIPLE] => N [XML_ID] => [FILE_TYPE] => [MULTIPLE_CNT] => 5 [LINK_IBLOCK_ID] => 0 [WITH_DESCRIPTION] => N [SEARCHABLE] => N [FILTRABLE] => N [IS_REQUIRED] => N [VERSION] => 1 [USER_TYPE] => [USER_TYPE_SETTINGS] => Array ( ) [HINT] => [~NAME] => Способ установки [~DEFAULT_VALUE] => [VALUE_ENUM] => [VALUE_XML_ID] => [VALUE_SORT] => [VALUE] => [PROPERTY_VALUE_ID] => [DESCRIPTION] => [~DESCRIPTION] => [~VALUE] => ) [ITEM_MODE] => Array ( [ID] => 136 [IBLOCK_ID] => 2 [NAME] => Способ производства [ACTIVE] => Y [SORT] => 500 [CODE] => ITEM_MODE [DEFAULT_VALUE] => [PROPERTY_TYPE] => S [ROW_COUNT] => 1 [COL_COUNT] => 30 [LIST_TYPE] => L [MULTIPLE] => N [XML_ID] => [FILE_TYPE] => [MULTIPLE_CNT] => 5 [LINK_IBLOCK_ID] => 0 [WITH_DESCRIPTION] => N [SEARCHABLE] => N [FILTRABLE] => N [IS_REQUIRED] => N [VERSION] => 1 [USER_TYPE] => [USER_TYPE_SETTINGS] => Array ( ) [HINT] => [~NAME] => Способ производства [~DEFAULT_VALUE] => [VALUE_ENUM] => [VALUE_XML_ID] => [VALUE_SORT] => [VALUE] => [PROPERTY_VALUE_ID] => [DESCRIPTION] => [~DESCRIPTION] => [~VALUE] => ) [ITEM_HEIGHT] => Array ( [ID] => 137 [IBLOCK_ID] => 2 [NAME] => Высота, мм [ACTIVE] => Y [SORT] => 500 [CODE] => ITEM_HEIGHT [DEFAULT_VALUE] => [PROPERTY_TYPE] => S [ROW_COUNT] => 1 [COL_COUNT] => 30 [LIST_TYPE] => L [MULTIPLE] => N [XML_ID] => [FILE_TYPE] => [MULTIPLE_CNT] => 5 [LINK_IBLOCK_ID] => 0 [WITH_DESCRIPTION] => N [SEARCHABLE] => N [FILTRABLE] => N [IS_REQUIRED] => N [VERSION] => 1 [USER_TYPE] => [USER_TYPE_SETTINGS] => Array ( ) [HINT] => [~NAME] => Высота, мм [~DEFAULT_VALUE] => [VALUE_ENUM] => [VALUE_XML_ID] => [VALUE_SORT] => [VALUE] => [PROPERTY_VALUE_ID] => [DESCRIPTION] => [~DESCRIPTION] => [~VALUE] => ) [BLOG_POST_ID] => Array ( [ID] => 138 [IBLOCK_ID] => 2 [NAME] => ID поста блога для комментариев [ACTIVE] => Y [SORT] => 500 [CODE] => BLOG_POST_ID [DEFAULT_VALUE] => [PROPERTY_TYPE] => N [ROW_COUNT] => 1 [COL_COUNT] => 30 [LIST_TYPE] => L [MULTIPLE] => N [XML_ID] => BLOG_POST_ID [FILE_TYPE] => [MULTIPLE_CNT] => 5 [LINK_IBLOCK_ID] => 0 [WITH_DESCRIPTION] => N [SEARCHABLE] => N [FILTRABLE] => N [IS_REQUIRED] => N [VERSION] => 1 [USER_TYPE] => [USER_TYPE_SETTINGS] => Array ( ) [HINT] => [~NAME] => ID поста блога для комментариев [~DEFAULT_VALUE] => [VALUE_ENUM] => [VALUE_XML_ID] => [VALUE_SORT] => [VALUE] => 219 [PROPERTY_VALUE_ID] => 6774028 [DESCRIPTION] => [~VALUE] => 219 [~DESCRIPTION] => ) [BLOG_COMMENTS_CNT] => Array ( [ID] => 139 [IBLOCK_ID] => 2 [NAME] => Количество комментариев [ACTIVE] => Y [SORT] => 500 [CODE] => BLOG_COMMENTS_CNT [DEFAULT_VALUE] => [PROPERTY_TYPE] => N [ROW_COUNT] => 1 [COL_COUNT] => 30 [LIST_TYPE] => L [MULTIPLE] => N [XML_ID] => BLOG_COMMENTS_CNT [FILE_TYPE] => [MULTIPLE_CNT] => 5 [LINK_IBLOCK_ID] => 0 [WITH_DESCRIPTION] => N [SEARCHABLE] => N [FILTRABLE] => N [IS_REQUIRED] => N [VERSION] => 1 [USER_TYPE] => [USER_TYPE_SETTINGS] => Array ( ) [HINT] => [~NAME] => Количество комментариев [~DEFAULT_VALUE] => [VALUE_ENUM] => [VALUE_XML_ID] => [VALUE_SORT] => [VALUE] => [PROPERTY_VALUE_ID] => [DESCRIPTION] => [~DESCRIPTION] => [~VALUE] => ) [HEIGHT_TOTAL] => Array ( [ID] => 143 [IBLOCK_ID] => 2 [NAME] => Высота общая, мм [ACTIVE] => Y [SORT] => 500 [CODE] => HEIGHT_TOTAL [DEFAULT_VALUE] => [PROPERTY_TYPE] => S [ROW_COUNT] => 1 [COL_COUNT] => 30 [LIST_TYPE] => L [MULTIPLE] => N [XML_ID] => [FILE_TYPE] => [MULTIPLE_CNT] => 5 [LINK_IBLOCK_ID] => 0 [WITH_DESCRIPTION] => N [SEARCHABLE] => N [FILTRABLE] => N [IS_REQUIRED] => N [VERSION] => 1 [USER_TYPE] => [USER_TYPE_SETTINGS] => Array ( ) [HINT] => [~NAME] => Высота общая, мм [~DEFAULT_VALUE] => [VALUE_ENUM] => [VALUE_XML_ID] => [VALUE_SORT] => [VALUE] => [PROPERTY_VALUE_ID] => [DESCRIPTION] => [~DESCRIPTION] => [~VALUE] => ) [HEIGHT_ABOVEGROUND] => Array ( [ID] => 144 [IBLOCK_ID] => 2 [NAME] => Высота надземной части, мм [ACTIVE] => Y [SORT] => 500 [CODE] => HEIGHT_ABOVEGROUND [DEFAULT_VALUE] => [PROPERTY_TYPE] => S [ROW_COUNT] => 1 [COL_COUNT] => 30 [LIST_TYPE] => L [MULTIPLE] => N [XML_ID] => [FILE_TYPE] => [MULTIPLE_CNT] => 5 [LINK_IBLOCK_ID] => 0 [WITH_DESCRIPTION] => N [SEARCHABLE] => N [FILTRABLE] => N [IS_REQUIRED] => N [VERSION] => 1 [USER_TYPE] => [USER_TYPE_SETTINGS] => Array ( ) [HINT] => [~NAME] => Высота надземной части, мм [~DEFAULT_VALUE] => [VALUE_ENUM] => [VALUE_XML_ID] => [VALUE_SORT] => [VALUE] => [PROPERTY_VALUE_ID] => [DESCRIPTION] => [~DESCRIPTION] => [~VALUE] => ) [HEIGHT_UNDERGROUND] => Array ( [ID] => 145 [IBLOCK_ID] => 2 [NAME] => Высота подземной части, мм [ACTIVE] => Y [SORT] => 500 [CODE] => HEIGHT_UNDERGROUND [DEFAULT_VALUE] => [PROPERTY_TYPE] => S [ROW_COUNT] => 1 [COL_COUNT] => 30 [LIST_TYPE] => L [MULTIPLE] => N [XML_ID] => [FILE_TYPE] => [MULTIPLE_CNT] => 5 [LINK_IBLOCK_ID] => 0 [WITH_DESCRIPTION] => N [SEARCHABLE] => N [FILTRABLE] => N [IS_REQUIRED] => N [VERSION] => 1 [USER_TYPE] => [USER_TYPE_SETTINGS] => Array ( ) [HINT] => [~NAME] => Высота подземной части, мм [~DEFAULT_VALUE] => [VALUE_ENUM] => [VALUE_XML_ID] => [VALUE_SORT] => [VALUE] => [PROPERTY_VALUE_ID] => [DESCRIPTION] => [~DESCRIPTION] => [~VALUE] => ) [DIAMETER_TOP] => Array ( [ID] => 146 [IBLOCK_ID] => 2 [NAME] => Диаметр верхний, мм [ACTIVE] => Y [SORT] => 500 [CODE] => DIAMETER_TOP [DEFAULT_VALUE] => [PROPERTY_TYPE] => S [ROW_COUNT] => 1 [COL_COUNT] => 30 [LIST_TYPE] => L [MULTIPLE] => N [XML_ID] => [FILE_TYPE] => [MULTIPLE_CNT] => 5 [LINK_IBLOCK_ID] => 0 [WITH_DESCRIPTION] => N [SEARCHABLE] => N [FILTRABLE] => N [IS_REQUIRED] => N [VERSION] => 1 [USER_TYPE] => [USER_TYPE_SETTINGS] => Array ( ) [HINT] => [~NAME] => Диаметр верхний, мм [~DEFAULT_VALUE] => [VALUE_ENUM] => [VALUE_XML_ID] => [VALUE_SORT] => [VALUE] => [PROPERTY_VALUE_ID] => [DESCRIPTION] => [~DESCRIPTION] => [~VALUE] => ) [DIAMETER_BOTTOM] => Array ( [ID] => 147 [IBLOCK_ID] => 2 [NAME] => Диаметр нижний, мм [ACTIVE] => Y [SORT] => 500 [CODE] => DIAMETER_BOTTOM [DEFAULT_VALUE] => [PROPERTY_TYPE] => S [ROW_COUNT] => 1 [COL_COUNT] => 30 [LIST_TYPE] => L [MULTIPLE] => N [XML_ID] => [FILE_TYPE] => [MULTIPLE_CNT] => 5 [LINK_IBLOCK_ID] => 0 [WITH_DESCRIPTION] => N [SEARCHABLE] => N [FILTRABLE] => N [IS_REQUIRED] => N [VERSION] => 1 [USER_TYPE] => [USER_TYPE_SETTINGS] => Array ( ) [HINT] => [~NAME] => Диаметр нижний, мм [~DEFAULT_VALUE] => [VALUE_ENUM] => [VALUE_XML_ID] => [VALUE_SORT] => [VALUE] => [PROPERTY_VALUE_ID] => [DESCRIPTION] => [~DESCRIPTION] => [~VALUE] => ) [WEIGHT] => Array ( [ID] => 148 [IBLOCK_ID] => 2 [NAME] => Нагрузка, кг [ACTIVE] => Y [SORT] => 500 [CODE] => WEIGHT [DEFAULT_VALUE] => [PROPERTY_TYPE] => S [ROW_COUNT] => 1 [COL_COUNT] => 30 [LIST_TYPE] => L [MULTIPLE] => N [XML_ID] => [FILE_TYPE] => [MULTIPLE_CNT] => 5 [LINK_IBLOCK_ID] => 0 [WITH_DESCRIPTION] => N [SEARCHABLE] => N [FILTRABLE] => N [IS_REQUIRED] => N [VERSION] => 1 [USER_TYPE] => [USER_TYPE_SETTINGS] => Array ( ) [HINT] => [~NAME] => Нагрузка, кг [~DEFAULT_VALUE] => [VALUE_ENUM] => [VALUE_XML_ID] => [VALUE_SORT] => [VALUE] => [PROPERTY_VALUE_ID] => [DESCRIPTION] => [~DESCRIPTION] => [~VALUE] => ) [VID] => Array ( [ID] => 149 [IBLOCK_ID] => 2 [NAME] => Вид [ACTIVE] => Y [SORT] => 500 [CODE] => VID [DEFAULT_VALUE] => [PROPERTY_TYPE] => S [ROW_COUNT] => 1 [COL_COUNT] => 30 [LIST_TYPE] => L [MULTIPLE] => N [XML_ID] => [FILE_TYPE] => [MULTIPLE_CNT] => 5 [LINK_IBLOCK_ID] => 0 [WITH_DESCRIPTION] => N [SEARCHABLE] => N [FILTRABLE] => N [IS_REQUIRED] => N [VERSION] => 1 [USER_TYPE] => [USER_TYPE_SETTINGS] => Array ( ) [HINT] => [~NAME] => Вид [~DEFAULT_VALUE] => [VALUE_ENUM] => [VALUE_XML_ID] => [VALUE_SORT] => [VALUE] => [PROPERTY_VALUE_ID] => [DESCRIPTION] => [~DESCRIPTION] => [~VALUE] => ) [SERVICE_LIFE] => Array ( [ID] => 150 [IBLOCK_ID] => 2 [NAME] => Срок службы [ACTIVE] => Y [SORT] => 500 [CODE] => SERVICE_LIFE [DEFAULT_VALUE] => [PROPERTY_TYPE] => S [ROW_COUNT] => 1 [COL_COUNT] => 30 [LIST_TYPE] => L [MULTIPLE] => N [XML_ID] => [FILE_TYPE] => [MULTIPLE_CNT] => 5 [LINK_IBLOCK_ID] => 0 [WITH_DESCRIPTION] => N [SEARCHABLE] => N [FILTRABLE] => N [IS_REQUIRED] => N [VERSION] => 1 [USER_TYPE] => [USER_TYPE_SETTINGS] => Array ( ) [HINT] => [~NAME] => Срок службы [~DEFAULT_VALUE] => [VALUE_ENUM] => [VALUE_XML_ID] => [VALUE_SORT] => [VALUE] => [PROPERTY_VALUE_ID] => [DESCRIPTION] => [~DESCRIPTION] => [~VALUE] => ) [USING] => Array ( [ID] => 151 [IBLOCK_ID] => 2 [NAME] => Применение [ACTIVE] => Y [SORT] => 500 [CODE] => USING [DEFAULT_VALUE] => [PROPERTY_TYPE] => S [ROW_COUNT] => 1 [COL_COUNT] => 30 [LIST_TYPE] => L [MULTIPLE] => N [XML_ID] => [FILE_TYPE] => [MULTIPLE_CNT] => 5 [LINK_IBLOCK_ID] => 0 [WITH_DESCRIPTION] => N [SEARCHABLE] => N [FILTRABLE] => N [IS_REQUIRED] => N [VERSION] => 1 [USER_TYPE] => [USER_TYPE_SETTINGS] => Array ( ) [HINT] => [~NAME] => Применение [~DEFAULT_VALUE] => [VALUE_ENUM] => [VALUE_XML_ID] => [VALUE_SORT] => [VALUE] => [PROPERTY_VALUE_ID] => [DESCRIPTION] => [~DESCRIPTION] => [~VALUE] => ) [HEIGHT_ZAK] => Array ( [ID] => 152 [IBLOCK_ID] => 2 [NAME] => Высота закладного элемента фундамента [ACTIVE] => Y [SORT] => 500 [CODE] => HEIGHT_ZAK [DEFAULT_VALUE] => [PROPERTY_TYPE] => S [ROW_COUNT] => 1 [COL_COUNT] => 30 [LIST_TYPE] => L [MULTIPLE] => N [XML_ID] => [FILE_TYPE] => [MULTIPLE_CNT] => 5 [LINK_IBLOCK_ID] => 0 [WITH_DESCRIPTION] => N [SEARCHABLE] => N [FILTRABLE] => N [IS_REQUIRED] => N [VERSION] => 1 [USER_TYPE] => [USER_TYPE_SETTINGS] => Array ( ) [HINT] => [~NAME] => Высота закладного элемента фундамента [~DEFAULT_VALUE] => [VALUE_ENUM] => [VALUE_XML_ID] => [VALUE_SORT] => [VALUE] => [PROPERTY_VALUE_ID] => [DESCRIPTION] => [~DESCRIPTION] => [~VALUE] => ) [LENGTH_CONSOLE] => Array ( [ID] => 153 [IBLOCK_ID] => 2 [NAME] => Длина консоли [ACTIVE] => Y [SORT] => 500 [CODE] => LENGTH_CONSOLE [DEFAULT_VALUE] => [PROPERTY_TYPE] => S [ROW_COUNT] => 1 [COL_COUNT] => 30 [LIST_TYPE] => L [MULTIPLE] => N [XML_ID] => [FILE_TYPE] => [MULTIPLE_CNT] => 5 [LINK_IBLOCK_ID] => 0 [WITH_DESCRIPTION] => N [SEARCHABLE] => N [FILTRABLE] => N [IS_REQUIRED] => N [VERSION] => 1 [USER_TYPE] => [USER_TYPE_SETTINGS] => Array ( ) [HINT] => [~NAME] => Длина консоли [~DEFAULT_VALUE] => [VALUE_ENUM] => [VALUE_XML_ID] => [VALUE_SORT] => [VALUE] => [PROPERTY_VALUE_ID] => [DESCRIPTION] => [~DESCRIPTION] => [~VALUE] => ) [HEIGHT_TOP_SECTION] => Array ( [ID] => 154 [IBLOCK_ID] => 2 [NAME] => Высота верхней секции, мм [ACTIVE] => Y [SORT] => 500 [CODE] => HEIGHT_TOP_SECTION [DEFAULT_VALUE] => [PROPERTY_TYPE] => S [ROW_COUNT] => 1 [COL_COUNT] => 30 [LIST_TYPE] => L [MULTIPLE] => N [XML_ID] => [FILE_TYPE] => [MULTIPLE_CNT] => 5 [LINK_IBLOCK_ID] => 0 [WITH_DESCRIPTION] => N [SEARCHABLE] => N [FILTRABLE] => N [IS_REQUIRED] => N [VERSION] => 1 [USER_TYPE] => [USER_TYPE_SETTINGS] => Array ( ) [HINT] => [~NAME] => Высота верхней секции, мм [~DEFAULT_VALUE] => [VALUE_ENUM] => [VALUE_XML_ID] => [VALUE_SORT] => [VALUE] => [PROPERTY_VALUE_ID] => [DESCRIPTION] => [~DESCRIPTION] => [~VALUE] => ) [SIP] => Array ( [ID] => 156 [IBLOCK_ID] => 2 [NAME] => Возможность подвеса СИП [ACTIVE] => Y [SORT] => 500 [CODE] => SIP [DEFAULT_VALUE] => [PROPERTY_TYPE] => S [ROW_COUNT] => 1 [COL_COUNT] => 30 [LIST_TYPE] => L [MULTIPLE] => N [XML_ID] => [FILE_TYPE] => [MULTIPLE_CNT] => 5 [LINK_IBLOCK_ID] => 0 [WITH_DESCRIPTION] => N [SEARCHABLE] => N [FILTRABLE] => N [IS_REQUIRED] => N [VERSION] => 1 [USER_TYPE] => [USER_TYPE_SETTINGS] => Array ( ) [HINT] => [~NAME] => Возможность подвеса СИП [~DEFAULT_VALUE] => [VALUE_ENUM] => [VALUE_XML_ID] => [VALUE_SORT] => [VALUE] => [PROPERTY_VALUE_ID] => [DESCRIPTION] => [~DESCRIPTION] => [~VALUE] => ) [COUNT_GRANY] => Array ( [ID] => 157 [IBLOCK_ID] => 2 [NAME] => Количество граней [ACTIVE] => Y [SORT] => 500 [CODE] => COUNT_GRANY [DEFAULT_VALUE] => [PROPERTY_TYPE] => S [ROW_COUNT] => 1 [COL_COUNT] => 30 [LIST_TYPE] => L [MULTIPLE] => N [XML_ID] => [FILE_TYPE] => [MULTIPLE_CNT] => 5 [LINK_IBLOCK_ID] => 0 [WITH_DESCRIPTION] => N [SEARCHABLE] => N [FILTRABLE] => N [IS_REQUIRED] => N [VERSION] => 1 [USER_TYPE] => [USER_TYPE_SETTINGS] => Array ( ) [HINT] => [~NAME] => Количество граней [~DEFAULT_VALUE] => [VALUE_ENUM] => [VALUE_XML_ID] => [VALUE_SORT] => [VALUE] => [PROPERTY_VALUE_ID] => [DESCRIPTION] => [~DESCRIPTION] => [~VALUE] => ) [HEIGHT_BOTTOM_SECTION] => Array ( [ID] => 158 [IBLOCK_ID] => 2 [NAME] => Высота нижней секции, мм [ACTIVE] => Y [SORT] => 500 [CODE] => HEIGHT_BOTTOM_SECTION [DEFAULT_VALUE] => [PROPERTY_TYPE] => S [ROW_COUNT] => 1 [COL_COUNT] => 30 [LIST_TYPE] => L [MULTIPLE] => N [XML_ID] => [FILE_TYPE] => [MULTIPLE_CNT] => 5 [LINK_IBLOCK_ID] => 0 [WITH_DESCRIPTION] => N [SEARCHABLE] => N [FILTRABLE] => N [IS_REQUIRED] => N [VERSION] => 1 [USER_TYPE] => [USER_TYPE_SETTINGS] => Array ( ) [HINT] => [~NAME] => Высота нижней секции, мм [~DEFAULT_VALUE] => [VALUE_ENUM] => [VALUE_XML_ID] => [VALUE_SORT] => [VALUE] => [PROPERTY_VALUE_ID] => [DESCRIPTION] => [~DESCRIPTION] => [~VALUE] => ) [STEEL_THICKNESS] => Array ( [ID] => 160 [IBLOCK_ID] => 2 [NAME] => Толщина стали [ACTIVE] => Y [SORT] => 500 [CODE] => STEEL_THICKNESS [DEFAULT_VALUE] => [PROPERTY_TYPE] => S [ROW_COUNT] => 1 [COL_COUNT] => 30 [LIST_TYPE] => L [MULTIPLE] => N [XML_ID] => [FILE_TYPE] => [MULTIPLE_CNT] => 5 [LINK_IBLOCK_ID] => 0 [WITH_DESCRIPTION] => N [SEARCHABLE] => N [FILTRABLE] => N [IS_REQUIRED] => N [VERSION] => 1 [USER_TYPE] => [USER_TYPE_SETTINGS] => Array ( ) [HINT] => [~NAME] => Толщина стали [~DEFAULT_VALUE] => [VALUE_ENUM] => [VALUE_XML_ID] => [VALUE_SORT] => [VALUE] => [PROPERTY_VALUE_ID] => [DESCRIPTION] => [~DESCRIPTION] => [~VALUE] => ) [SIZE_OPOR_FLANEC] => Array ( [ID] => 161 [IBLOCK_ID] => 2 [NAME] => Размеры опорного фланца [ACTIVE] => Y [SORT] => 500 [CODE] => SIZE_OPOR_FLANEC [DEFAULT_VALUE] => [PROPERTY_TYPE] => S [ROW_COUNT] => 1 [COL_COUNT] => 30 [LIST_TYPE] => L [MULTIPLE] => N [XML_ID] => [FILE_TYPE] => [MULTIPLE_CNT] => 5 [LINK_IBLOCK_ID] => 0 [WITH_DESCRIPTION] => N [SEARCHABLE] => N [FILTRABLE] => N [IS_REQUIRED] => N [VERSION] => 1 [USER_TYPE] => [USER_TYPE_SETTINGS] => Array ( ) [HINT] => [~NAME] => Размеры опорного фланца [~DEFAULT_VALUE] => [VALUE_ENUM] => [VALUE_XML_ID] => [VALUE_SORT] => [VALUE] => [PROPERTY_VALUE_ID] => [DESCRIPTION] => [~DESCRIPTION] => [~VALUE] => ) [POKRASKA] => Array ( [ID] => 162 [IBLOCK_ID] => 2 [NAME] => Лакокрасочное покрытие [ACTIVE] => Y [SORT] => 500 [CODE] => POKRASKA [DEFAULT_VALUE] => [PROPERTY_TYPE] => S [ROW_COUNT] => 1 [COL_COUNT] => 30 [LIST_TYPE] => L [MULTIPLE] => N [XML_ID] => [FILE_TYPE] => [MULTIPLE_CNT] => 5 [LINK_IBLOCK_ID] => 0 [WITH_DESCRIPTION] => N [SEARCHABLE] => N [FILTRABLE] => N [IS_REQUIRED] => N [VERSION] => 1 [USER_TYPE] => [USER_TYPE_SETTINGS] => Array ( ) [HINT] => [~NAME] => Лакокрасочное покрытие [~DEFAULT_VALUE] => [VALUE_ENUM] => [VALUE_XML_ID] => [VALUE_SORT] => [VALUE] => [PROPERTY_VALUE_ID] => [DESCRIPTION] => [~DESCRIPTION] => [~VALUE] => ) [VES] => Array ( [ID] => 163 [IBLOCK_ID] => 2 [NAME] => Вес [ACTIVE] => Y [SORT] => 500 [CODE] => VES [DEFAULT_VALUE] => [PROPERTY_TYPE] => S [ROW_COUNT] => 1 [COL_COUNT] => 30 [LIST_TYPE] => L [MULTIPLE] => N [XML_ID] => [FILE_TYPE] => [MULTIPLE_CNT] => 5 [LINK_IBLOCK_ID] => 0 [WITH_DESCRIPTION] => N [SEARCHABLE] => N [FILTRABLE] => N [IS_REQUIRED] => N [VERSION] => 1 [USER_TYPE] => [USER_TYPE_SETTINGS] => Array ( ) [HINT] => [~NAME] => Вес [~DEFAULT_VALUE] => [VALUE_ENUM] => [VALUE_XML_ID] => [VALUE_SORT] => [VALUE] => [PROPERTY_VALUE_ID] => [DESCRIPTION] => [~DESCRIPTION] => [~VALUE] => ) [INSTALL_LYUCHKA] => Array ( [ID] => 164 [IBLOCK_ID] => 2 [NAME] => Возможность установки лючка [ACTIVE] => Y [SORT] => 500 [CODE] => INSTALL_LYUCHKA [DEFAULT_VALUE] => [PROPERTY_TYPE] => S [ROW_COUNT] => 1 [COL_COUNT] => 30 [LIST_TYPE] => L [MULTIPLE] => N [XML_ID] => [FILE_TYPE] => [MULTIPLE_CNT] => 5 [LINK_IBLOCK_ID] => 0 [WITH_DESCRIPTION] => N [SEARCHABLE] => N [FILTRABLE] => N [IS_REQUIRED] => N [VERSION] => 1 [USER_TYPE] => [USER_TYPE_SETTINGS] => Array ( ) [HINT] => [~NAME] => Возможность установки лючка [~DEFAULT_VALUE] => [VALUE_ENUM] => [VALUE_XML_ID] => [VALUE_SORT] => [VALUE] => [PROPERTY_VALUE_ID] => [DESCRIPTION] => [~DESCRIPTION] => [~VALUE] => ) [DIAMETER_FLANCA] => Array ( [ID] => 165 [IBLOCK_ID] => 2 [NAME] => Диаметр фланца, мм [ACTIVE] => Y [SORT] => 500 [CODE] => DIAMETER_FLANCA [DEFAULT_VALUE] => [PROPERTY_TYPE] => S [ROW_COUNT] => 1 [COL_COUNT] => 30 [LIST_TYPE] => L [MULTIPLE] => N [XML_ID] => [FILE_TYPE] => [MULTIPLE_CNT] => 5 [LINK_IBLOCK_ID] => 0 [WITH_DESCRIPTION] => N [SEARCHABLE] => N [FILTRABLE] => N [IS_REQUIRED] => N [VERSION] => 1 [USER_TYPE] => [USER_TYPE_SETTINGS] => Array ( ) [HINT] => [~NAME] => Диаметр фланца, мм [~DEFAULT_VALUE] => [VALUE_ENUM] => [VALUE_XML_ID] => [VALUE_SORT] => [VALUE] => [PROPERTY_VALUE_ID] => [DESCRIPTION] => [~DESCRIPTION] => [~VALUE] => ) [COUNT_LIGHT] => Array ( [ID] => 166 [IBLOCK_ID] => 2 [NAME] => Количество осветительных приборов, шт [ACTIVE] => Y [SORT] => 500 [CODE] => COUNT_LIGHT [DEFAULT_VALUE] => [PROPERTY_TYPE] => S [ROW_COUNT] => 1 [COL_COUNT] => 30 [LIST_TYPE] => L [MULTIPLE] => N [XML_ID] => [FILE_TYPE] => [MULTIPLE_CNT] => 5 [LINK_IBLOCK_ID] => 0 [WITH_DESCRIPTION] => N [SEARCHABLE] => N [FILTRABLE] => N [IS_REQUIRED] => N [VERSION] => 1 [USER_TYPE] => [USER_TYPE_SETTINGS] => Array ( ) [HINT] => [~NAME] => Количество осветительных приборов, шт [~DEFAULT_VALUE] => [VALUE_ENUM] => [VALUE_XML_ID] => [VALUE_SORT] => [VALUE] => [PROPERTY_VALUE_ID] => [DESCRIPTION] => [~DESCRIPTION] => [~VALUE] => ) [WEIGHT_TO_KRON] => Array ( [ID] => 167 [IBLOCK_ID] => 2 [NAME] => Высота до кронштейна, мм [ACTIVE] => Y [SORT] => 500 [CODE] => WEIGHT_TO_KRON [DEFAULT_VALUE] => [PROPERTY_TYPE] => S [ROW_COUNT] => 1 [COL_COUNT] => 30 [LIST_TYPE] => L [MULTIPLE] => N [XML_ID] => [FILE_TYPE] => [MULTIPLE_CNT] => 5 [LINK_IBLOCK_ID] => 0 [WITH_DESCRIPTION] => N [SEARCHABLE] => N [FILTRABLE] => N [IS_REQUIRED] => N [VERSION] => 1 [USER_TYPE] => [USER_TYPE_SETTINGS] => Array ( ) [HINT] => [~NAME] => Высота до кронштейна, мм [~DEFAULT_VALUE] => [VALUE_ENUM] => [VALUE_XML_ID] => [VALUE_SORT] => [VALUE] => [PROPERTY_VALUE_ID] => [DESCRIPTION] => [~DESCRIPTION] => [~VALUE] => ) [SIZE_FLANEC] => Array ( [ID] => 169 [IBLOCK_ID] => 2 [NAME] => Размер фланца [ACTIVE] => Y [SORT] => 500 [CODE] => SIZE_FLANEC [DEFAULT_VALUE] => [PROPERTY_TYPE] => S [ROW_COUNT] => 1 [COL_COUNT] => 30 [LIST_TYPE] => L [MULTIPLE] => N [XML_ID] => [FILE_TYPE] => [MULTIPLE_CNT] => 5 [LINK_IBLOCK_ID] => 0 [WITH_DESCRIPTION] => N [SEARCHABLE] => N [FILTRABLE] => N [IS_REQUIRED] => N [VERSION] => 1 [USER_TYPE] => [USER_TYPE_SETTINGS] => Array ( ) [HINT] => [~NAME] => Размер фланца [~DEFAULT_VALUE] => [VALUE_ENUM] => [VALUE_XML_ID] => [VALUE_SORT] => [VALUE] => [PROPERTY_VALUE_ID] => [DESCRIPTION] => [~DESCRIPTION] => [~VALUE] => ) [WEIGHT_MIDDLE_SECTION] => Array ( [ID] => 170 [IBLOCK_ID] => 2 [NAME] => Высота промежуточной секции, мм [ACTIVE] => Y [SORT] => 500 [CODE] => WEIGHT_MIDDLE_SECTION [DEFAULT_VALUE] => [PROPERTY_TYPE] => S [ROW_COUNT] => 1 [COL_COUNT] => 30 [LIST_TYPE] => L [MULTIPLE] => N [XML_ID] => [FILE_TYPE] => [MULTIPLE_CNT] => 5 [LINK_IBLOCK_ID] => 0 [WITH_DESCRIPTION] => N [SEARCHABLE] => N [FILTRABLE] => N [IS_REQUIRED] => N [VERSION] => 1 [USER_TYPE] => [USER_TYPE_SETTINGS] => Array ( ) [HINT] => [~NAME] => Высота промежуточной секции, мм [~DEFAULT_VALUE] => [VALUE_ENUM] => [VALUE_XML_ID] => [VALUE_SORT] => [VALUE] => [PROPERTY_VALUE_ID] => [DESCRIPTION] => [~DESCRIPTION] => [~VALUE] => ) [DEFEND_POKRYTIE] => Array ( [ID] => 171 [IBLOCK_ID] => 2 [NAME] => Защитное покрытие [ACTIVE] => Y [SORT] => 500 [CODE] => DEFEND_POKRYTIE [DEFAULT_VALUE] => [PROPERTY_TYPE] => S [ROW_COUNT] => 1 [COL_COUNT] => 30 [LIST_TYPE] => L [MULTIPLE] => N [XML_ID] => [FILE_TYPE] => [MULTIPLE_CNT] => 5 [LINK_IBLOCK_ID] => 0 [WITH_DESCRIPTION] => N [SEARCHABLE] => N [FILTRABLE] => N [IS_REQUIRED] => N [VERSION] => 1 [USER_TYPE] => [USER_TYPE_SETTINGS] => Array ( ) [HINT] => [~NAME] => Защитное покрытие [~DEFAULT_VALUE] => [VALUE_ENUM] => [VALUE_XML_ID] => [VALUE_SORT] => [VALUE] => [PROPERTY_VALUE_ID] => [DESCRIPTION] => [~DESCRIPTION] => [~VALUE] => ) [WIND_REGION] => Array ( [ID] => 172 [IBLOCK_ID] => 2 [NAME] => Ветровой район [ACTIVE] => Y [SORT] => 500 [CODE] => WIND_REGION [DEFAULT_VALUE] => [PROPERTY_TYPE] => S [ROW_COUNT] => 1 [COL_COUNT] => 30 [LIST_TYPE] => L [MULTIPLE] => N [XML_ID] => [FILE_TYPE] => [MULTIPLE_CNT] => 5 [LINK_IBLOCK_ID] => 0 [WITH_DESCRIPTION] => N [SEARCHABLE] => N [FILTRABLE] => N [IS_REQUIRED] => N [VERSION] => 1 [USER_TYPE] => [USER_TYPE_SETTINGS] => Array ( ) [HINT] => [~NAME] => Ветровой район [~DEFAULT_VALUE] => [VALUE_ENUM] => [VALUE_XML_ID] => [VALUE_SORT] => [VALUE] => [PROPERTY_VALUE_ID] => [DESCRIPTION] => [~DESCRIPTION] => [~VALUE] => ) [DIAMETER_OPOR_FLANCA] => Array ( [ID] => 173 [IBLOCK_ID] => 2 [NAME] => Диаметр опорного фланца, мм [ACTIVE] => Y [SORT] => 500 [CODE] => DIAMETER_OPOR_FLANCA [DEFAULT_VALUE] => [PROPERTY_TYPE] => S [ROW_COUNT] => 1 [COL_COUNT] => 30 [LIST_TYPE] => L [MULTIPLE] => N [XML_ID] => [FILE_TYPE] => [MULTIPLE_CNT] => 5 [LINK_IBLOCK_ID] => 0 [WITH_DESCRIPTION] => N [SEARCHABLE] => N [FILTRABLE] => N [IS_REQUIRED] => N [VERSION] => 1 [USER_TYPE] => [USER_TYPE_SETTINGS] => Array ( ) [HINT] => [~NAME] => Диаметр опорного фланца, мм [~DEFAULT_VALUE] => [VALUE_ENUM] => [VALUE_XML_ID] => [VALUE_SORT] => [VALUE] => [PROPERTY_VALUE_ID] => [DESCRIPTION] => [~DESCRIPTION] => [~VALUE] => ) [CENTER_DIST] => Array ( [ID] => 174 [IBLOCK_ID] => 2 [NAME] => Межцентровое расстояние, мм [ACTIVE] => Y [SORT] => 500 [CODE] => CENTER_DIST [DEFAULT_VALUE] => [PROPERTY_TYPE] => S [ROW_COUNT] => 1 [COL_COUNT] => 30 [LIST_TYPE] => L [MULTIPLE] => N [XML_ID] => [FILE_TYPE] => [MULTIPLE_CNT] => 5 [LINK_IBLOCK_ID] => 0 [WITH_DESCRIPTION] => N [SEARCHABLE] => N [FILTRABLE] => N [IS_REQUIRED] => N [VERSION] => 1 [USER_TYPE] => [USER_TYPE_SETTINGS] => Array ( ) [HINT] => [~NAME] => Межцентровое расстояние, мм [~DEFAULT_VALUE] => [VALUE_ENUM] => [VALUE_XML_ID] => [VALUE_SORT] => [VALUE] => [PROPERTY_VALUE_ID] => [DESCRIPTION] => [~DESCRIPTION] => [~VALUE] => ) [FLANEC_THICKNESS] => Array ( [ID] => 175 [IBLOCK_ID] => 2 [NAME] => Толщина фланца, мм [ACTIVE] => Y [SORT] => 500 [CODE] => FLANEC_THICKNESS [DEFAULT_VALUE] => [PROPERTY_TYPE] => S [ROW_COUNT] => 1 [COL_COUNT] => 30 [LIST_TYPE] => L [MULTIPLE] => N [XML_ID] => [FILE_TYPE] => [MULTIPLE_CNT] => 5 [LINK_IBLOCK_ID] => 0 [WITH_DESCRIPTION] => N [SEARCHABLE] => N [FILTRABLE] => N [IS_REQUIRED] => N [VERSION] => 1 [USER_TYPE] => [USER_TYPE_SETTINGS] => Array ( ) [HINT] => [~NAME] => Толщина фланца, мм [~DEFAULT_VALUE] => [VALUE_ENUM] => [VALUE_XML_ID] => [VALUE_SORT] => [VALUE] => [PROPERTY_VALUE_ID] => [DESCRIPTION] => [~DESCRIPTION] => [~VALUE] => ) [COUNT_HOLE] => Array ( [ID] => 176 [IBLOCK_ID] => 2 [NAME] => Количество отверстий крепления, шт [ACTIVE] => Y [SORT] => 500 [CODE] => COUNT_HOLE [DEFAULT_VALUE] => [PROPERTY_TYPE] => S [ROW_COUNT] => 1 [COL_COUNT] => 30 [LIST_TYPE] => L [MULTIPLE] => N [XML_ID] => [FILE_TYPE] => [MULTIPLE_CNT] => 5 [LINK_IBLOCK_ID] => 0 [WITH_DESCRIPTION] => N [SEARCHABLE] => N [FILTRABLE] => N [IS_REQUIRED] => N [VERSION] => 1 [USER_TYPE] => [USER_TYPE_SETTINGS] => Array ( ) [HINT] => [~NAME] => Количество отверстий крепления, шт [~DEFAULT_VALUE] => [VALUE_ENUM] => [VALUE_XML_ID] => [VALUE_SORT] => [VALUE] => [PROPERTY_VALUE_ID] => [DESCRIPTION] => [~DESCRIPTION] => [~VALUE] => ) [INSPECTION_WINDOW] => Array ( [ID] => 179 [IBLOCK_ID] => 2 [NAME] => Ревизионное окно, мм [ACTIVE] => Y [SORT] => 500 [CODE] => INSPECTION_WINDOW [DEFAULT_VALUE] => [PROPERTY_TYPE] => S [ROW_COUNT] => 1 [COL_COUNT] => 30 [LIST_TYPE] => L [MULTIPLE] => N [XML_ID] => [FILE_TYPE] => [MULTIPLE_CNT] => 5 [LINK_IBLOCK_ID] => 0 [WITH_DESCRIPTION] => N [SEARCHABLE] => N [FILTRABLE] => N [IS_REQUIRED] => N [VERSION] => 1 [USER_TYPE] => [USER_TYPE_SETTINGS] => Array ( ) [HINT] => [~NAME] => Ревизионное окно, мм [~DEFAULT_VALUE] => [VALUE_ENUM] => [VALUE_XML_ID] => [VALUE_SORT] => [VALUE] => [PROPERTY_VALUE_ID] => [DESCRIPTION] => [~DESCRIPTION] => [~VALUE] => ) [THREE_MODEL] => Array ( [ID] => 182 [IBLOCK_ID] => 2 [NAME] => 3D-модель [ACTIVE] => Y [SORT] => 500 [CODE] => THREE_MODEL [DEFAULT_VALUE] => [PROPERTY_TYPE] => F [ROW_COUNT] => 1 [COL_COUNT] => 30 [LIST_TYPE] => L [MULTIPLE] => N [XML_ID] => [FILE_TYPE] => [MULTIPLE_CNT] => 5 [LINK_IBLOCK_ID] => 0 [WITH_DESCRIPTION] => N [SEARCHABLE] => N [FILTRABLE] => N [IS_REQUIRED] => N [VERSION] => 1 [USER_TYPE] => [USER_TYPE_SETTINGS] => Array ( ) [HINT] => [~NAME] => 3D-модель [~DEFAULT_VALUE] => [VALUE_ENUM] => [VALUE_XML_ID] => [VALUE_SORT] => [VALUE] => [PROPERTY_VALUE_ID] => [DESCRIPTION] => [~DESCRIPTION] => [~VALUE] => ) [FAQ] => Array ( [ID] => 183 [IBLOCK_ID] => 2 [NAME] => FAQ [ACTIVE] => Y [SORT] => 500 [CODE] => FAQ [DEFAULT_VALUE] => Array ( [TYPE] => TEXT [TEXT] => ) [PROPERTY_TYPE] => S [ROW_COUNT] => 1 [COL_COUNT] => 30 [LIST_TYPE] => L [MULTIPLE] => N [XML_ID] => [FILE_TYPE] => [MULTIPLE_CNT] => 5 [LINK_IBLOCK_ID] => 0 [WITH_DESCRIPTION] => N [SEARCHABLE] => N [FILTRABLE] => N [IS_REQUIRED] => N [VERSION] => 1 [USER_TYPE] => HTML [USER_TYPE_SETTINGS] => Array ( [height] => 200 ) [HINT] => [~NAME] => FAQ [~DEFAULT_VALUE] => Array ( [TYPE] => TEXT [TEXT] => ) [VALUE_ENUM] => [VALUE_XML_ID] => [VALUE_SORT] => [VALUE] => [PROPERTY_VALUE_ID] => [DESCRIPTION] => [~DESCRIPTION] => [~VALUE] => ) ) [DISPLAY_PROPERTIES] => Array ( [ITEM_PRICE] => Array ( [ID] => 22 [IBLOCK_ID] => 2 [NAME] => Цена [ACTIVE] => Y [SORT] => 3 [CODE] => ITEM_PRICE [DEFAULT_VALUE] => [PROPERTY_TYPE] => L [ROW_COUNT] => 1 [COL_COUNT] => 30 [LIST_TYPE] => L [MULTIPLE] => N [XML_ID] => 22 [FILE_TYPE] => [MULTIPLE_CNT] => 5 [LINK_IBLOCK_ID] => 0 [WITH_DESCRIPTION] => N [SEARCHABLE] => N [FILTRABLE] => N [IS_REQUIRED] => Y [VERSION] => 1 [USER_TYPE] => [USER_TYPE_SETTINGS] => Array ( ) [HINT] => [~NAME] => Цена [~DEFAULT_VALUE] => [VALUE_ENUM] => По запросу [VALUE_XML_ID] => on-request [VALUE_SORT] => 1 [VALUE] => По запросу [PROPERTY_VALUE_ID] => 6825484 [VALUE_ENUM_ID] => 9 [DESCRIPTION] => [~VALUE] => По запросу [~DESCRIPTION] => [DISPLAY_VALUE] => По запросу ) [ITEM_CHARACTERISTICS] => Array ( [ID] => 28 [IBLOCK_ID] => 2 [NAME] => Характеристики [ACTIVE] => Y [SORT] => 6 [CODE] => ITEM_CHARACTERISTICS [DEFAULT_VALUE] => [PROPERTY_TYPE] => S [ROW_COUNT] => 1 [COL_COUNT] => 20 [LIST_TYPE] => L [MULTIPLE] => Y [XML_ID] => 28 [FILE_TYPE] => [MULTIPLE_CNT] => 1 [LINK_IBLOCK_ID] => 0 [WITH_DESCRIPTION] => Y [SEARCHABLE] => N [FILTRABLE] => N [IS_REQUIRED] => N [VERSION] => 1 [USER_TYPE] => [USER_TYPE_SETTINGS] => Array ( ) [HINT] => [~NAME] => Характеристики [~DEFAULT_VALUE] => [VALUE_ENUM] => [VALUE_XML_ID] => [VALUE_SORT] => [VALUE] => Array ( [0] => фланцевая [1] => граненая [2] => 23200 [3] => 10500 [4] => 1700 [5] => 400 [6] => одностоечная свободностоящая [7] => горячее цинкование [8] => Порошковое / полимерное окрашивание [9] => 30 лет [10] => анкерно-угловая ) [PROPERTY_VALUE_ID] => Array ( [0] => 6823872 [1] => 6823873 [2] => 6823874 [3] => 6823875 [4] => 6823876 [5] => 6823877 [6] => 6823878 [7] => 6823879 [8] => 6823880 [9] => 6823881 [10] => 6825470 ) [DESCRIPTION] => Array ( [0] => Способ установки [1] => Способ производства [2] => Высота, мм [3] => Высота до нижней траверсы , мм [4] => Диаметр нижний, мм [5] => Диаметр верхний, мм [6] => Конструкция [7] => Защитное покрытие [8] => Лакокрасочное покрытие [9] => Срок службы [10] => Назначение ) [~VALUE] => Array ( [0] => фланцевая [1] => граненая [2] => 23200 [3] => 10500 [4] => 1700 [5] => 400 [6] => одностоечная свободностоящая [7] => горячее цинкование [8] => Порошковое / полимерное окрашивание [9] => 30 лет [10] => анкерно-угловая ) [~DESCRIPTION] => Array ( [0] => Способ установки [1] => Способ производства [2] => Высота, мм [3] => Высота до нижней траверсы , мм [4] => Диаметр нижний, мм [5] => Диаметр верхний, мм [6] => Конструкция [7] => Защитное покрытие [8] => Лакокрасочное покрытие [9] => Срок службы [10] => Назначение ) [DISPLAY_VALUE] => Array ( [0] => фланцевая [1] => граненая [2] => 23200 [3] => 10500 [4] => 1700 [5] => 400 [6] => одностоечная свободностоящая [7] => горячее цинкование [8] => Порошковое / полимерное окрашивание [9] => 30 лет [10] => анкерно-угловая ) ) ) [PRODUCT_PROPERTIES] => Array ( ) [PRODUCT_PROPERTIES_FILL] => Array ( ) [OFFERS] => Array ( ) [OFFER_ID_SELECTED] => 0 [CHECK_QUANTITY] => [ITEM_PRICE_MODE] => [ITEM_PRICES] => Array ( ) [ITEM_QUANTITY_RANGES] => Array ( ) [ITEM_MEASURE_RATIOS] => Array ( [2889] => Array ( [ID] => 2889 [RATIO] => 1 [IS_DEFAULT] => Y [PRODUCT_ID] => 15381 ) ) [ITEM_MEASURE] => Array ( [ID] => 5 [TITLE] => шт [~TITLE] => шт ) [ITEM_MEASURE_RATIO_SELECTED] => 2889 [ITEM_QUANTITY_RANGE_SELECTED] => [ITEM_PRICE_SELECTED] => [EDIT_LINK] => [DELETE_LINK] => [SECTION] => Array ( [PATH] => Array ( ) ) [CAN_BUY] => )
В наличии
Способ установки: фланцевая
Способ производства: граненая
Высота, мм: 25500
Цена по запросу
Array
(
    [ID] => 15370
    [~ID] => 15370
    [IBLOCK_ID] => 2
    [~IBLOCK_ID] => 2
    [CODE] => pm110-1-f-1
    [~CODE] => pm110-1-f-1
    [XML_ID] => 15370
    [~XML_ID] => 15370
    [NAME] => Многогранная опора ПМ110-1 ф.1
    [~NAME] => Многогранная опора ПМ110-1 ф.1
    [ACTIVE] => Y
    [~ACTIVE] => Y
    [DATE_ACTIVE_FROM] => 
    [~DATE_ACTIVE_FROM] => 
    [DATE_ACTIVE_TO] => 
    [~DATE_ACTIVE_TO] => 
    [SORT] => 0
    [~SORT] => 0
    [PREVIEW_TEXT] => 
    [~PREVIEW_TEXT] => 
    [PREVIEW_TEXT_TYPE] => text
    [~PREVIEW_TEXT_TYPE] => text
    [DETAIL_TEXT] => 

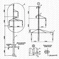
Опоры многогранные одноцепные промежуточные ПМ110-1Ф.1 представляют собой одностоечные свободностоящие конструкции для воздушных линий электропередачи напряжением 110 кВ. Изделие производится по типовому проекту 22.0099.2 и предназначено для установки на прямых участках трассы. Конструкция высотой 25,5 метра имеет граненый конический ствол с диаметром 720 мм в нижней части и 240 мм в верхней. Высота до нижней траверсы составляет 17,2 метра, что обеспечивает необходимое габаритное расстояние до земли. Опоры оснащены тросостойкой для крепления одного грозотроса и запроектированы со смешанной схемой расположения фаз. Материалом изготовления служит углеродистая сталь марки С245, допускающая эксплуатацию при температуре до –40 °С.

Монтаж опоры ПМ110-1Ф.1 осуществляется с помощью фланцевого соединения с фундаментом. В качестве фундамента, согласно проекту, может применяться труба с ответным фланцем или другие инженерные решения, рассчитанные на передачу эксплуатационных нагрузок. Все монтажные работы должны выполняться в строгом соответствии с проектной и рабочей документацией.

Для обеспечения долговечности в условиях атмосферного воздействия все металлические элементы опоры защищены методом горячего цинкования. Данное покрытие обеспечивает надежную антикоррозионную защиту на весь срок службы. По дополнительному требованию заказчика может быть нанесено полимерно-порошковое лакокрасочное покрытие.

[~DETAIL_TEXT] =>

Опоры многогранные одноцепные промежуточные ПМ110-1Ф.1 представляют собой одностоечные свободностоящие конструкции для воздушных линий электропередачи напряжением 110 кВ. Изделие производится по типовому проекту 22.0099.2 и предназначено для установки на прямых участках трассы. Конструкция высотой 25,5 метра имеет граненый конический ствол с диаметром 720 мм в нижней части и 240 мм в верхней. Высота до нижней траверсы составляет 17,2 метра, что обеспечивает необходимое габаритное расстояние до земли. Опоры оснащены тросостойкой для крепления одного грозотроса и запроектированы со смешанной схемой расположения фаз. Материалом изготовления служит углеродистая сталь марки С245, допускающая эксплуатацию при температуре до –40 °С.

Монтаж опоры ПМ110-1Ф.1 осуществляется с помощью фланцевого соединения с фундаментом. В качестве фундамента, согласно проекту, может применяться труба с ответным фланцем или другие инженерные решения, рассчитанные на передачу эксплуатационных нагрузок. Все монтажные работы должны выполняться в строгом соответствии с проектной и рабочей документацией.

Для обеспечения долговечности в условиях атмосферного воздействия все металлические элементы опоры защищены методом горячего цинкования. Данное покрытие обеспечивает надежную антикоррозионную защиту на весь срок службы. По дополнительному требованию заказчика может быть нанесено полимерно-порошковое лакокрасочное покрытие.

[DETAIL_TEXT_TYPE] => html [~DETAIL_TEXT_TYPE] => html [DATE_CREATE] => 07.11.2023 15:10:02 [~DATE_CREATE] => 07.11.2023 15:10:02 [CREATED_BY] => 1 [~CREATED_BY] => 1 [TAGS] => [~TAGS] => [TIMESTAMP_X] => 15.12.2025 12:50:54 [~TIMESTAMP_X] => 15.12.2025 12:50:54 [MODIFIED_BY] => 1 [~MODIFIED_BY] => 1 [IBLOCK_SECTION_ID] => 2756 [~IBLOCK_SECTION_ID] => 2954 [DETAIL_PAGE_URL] => /product/pm110-1-f-1/ [~DETAIL_PAGE_URL] => /product/pm110-1-f-1/ [DETAIL_PICTURE] => [~DETAIL_PICTURE] => [PREVIEW_PICTURE] => Array ( [ID] => 35287 [TIMESTAMP_X] => 15.12.2025 12:50:54 [MODULE_ID] => iblock [HEIGHT] => 1000 [WIDTH] => 1000 [FILE_SIZE] => 125841 [CONTENT_TYPE] => image/jpeg [SUBDIR] => iblock/a21/kqbqi4hg9jgnf94izcck1xydurz5k14b [FILE_NAME] => catalog_file_2091_l.jpg [ORIGINAL_NAME] => catalog-file-2091-l.jpg [DESCRIPTION] => [HANDLER_ID] => [EXTERNAL_ID] => d3ea2f816d9eff8f8e674f4fce14095f [VERSION_ORIGINAL_ID] => [META] => [SRC] => /upload/dev2fun.imagecompress/webp/iblock/a21/kqbqi4hg9jgnf94izcck1xydurz5k14b/catalog_file_2091_l.webp [UNSAFE_SRC] => /upload/dev2fun.imagecompress/webp/iblock/a21/kqbqi4hg9jgnf94izcck1xydurz5k14b/catalog_file_2091_l.webp [SAFE_SRC] => /upload/dev2fun.imagecompress/webp/iblock/a21/kqbqi4hg9jgnf94izcck1xydurz5k14b/catalog_file_2091_l.webp [ALT] => Многогранная опора ПМ110-1 ф.1 [TITLE] => Многогранная опора ПМ110-1 ф.1 ) [~PREVIEW_PICTURE] => 35287 [LANG_DIR] => / [~LANG_DIR] => / [EXTERNAL_ID] => 15370 [~EXTERNAL_ID] => 15370 [IBLOCK_TYPE_ID] => catalog [~IBLOCK_TYPE_ID] => catalog [IBLOCK_CODE] => metalstructures [~IBLOCK_CODE] => metalstructures [IBLOCK_EXTERNAL_ID] => clothes [~IBLOCK_EXTERNAL_ID] => clothes [LID] => s1 [~LID] => s1 [IPROPERTY_VALUES] => Array ( [ELEMENT_META_TITLE] => Многогранная опора ПМ110-1 ф.1 для высоковольтных линий 110 кВ купить в {{rp}} на сайте производителя НПО Легион [ELEMENT_META_DESCRIPTION] => Производство стальных многогранных опор ПМ110-1 ф.1 для высоковольтных линий 110 кВ по шифру 22.0099.2 в {{rp}}. Заказать многогранные опоры ЛЭП у производителя НПО Легион. Наличие товара на складе. Звоните ☎ {{subdomain_tel}} [ELEMENT_META_KEYWORDS] => Многоранные опоры ПМ110-1 ф.1 ЛЭП производство продажа купить многогранные ВЛ 110кВ для линий электропередач шифру 22.0099.2 [SECTION_META_TITLE] => Многогранные опоры ВЛ 110 кВ по шифру 22.0099.2 купить в {{rp}} на сайте производителя НПО Легион [SECTION_META_DESCRIPTION] => Производство многогранных опор ВЛ 110 кВ по шифру 22.0099.2. Купить напрямую у производителя в {{rp}}. Собственное производство. Наличие товара на складе. Звоните ☎ {{subdomain_tel}} [SECTION_META_KEYWORDS] => Многоранные опоры ЛЭП производство продажа купить многогранные ВЛ 110 кВ по шифру 22.0099.2 для линий электропередач [ELEMENT_DETAIL_PICTURE_FILE_NAME] => [ELEMENT_PREVIEW_PICTURE_FILE_NAME] => [SECTION_DETAIL_PICTURE_FILE_NAME] => [SECTION_PICTURE_FILE_NAME] => [SECTION_PAGE_TITLE] => Многогранная опора ПМ110-1 ф.1 [ELEMENT_PAGE_TITLE] => Многогранная опора ПМ110-1 ф.1 ) [PRODUCT] => Array ( [TYPE] => 1 [AVAILABLE] => Y [BUNDLE] => N [QUANTITY] => 10 [QUANTITY_TRACE] => N [CAN_BUY_ZERO] => Y [MEASURE] => 5 [SUBSCRIBE] => Y [VAT_ID] => 0 [VAT_RATE] => 0 [VAT_INCLUDED] => N [WEIGHT] => 0 [WIDTH] => 0 [LENGTH] => 0 [HEIGHT] => 0 [PAYMENT_TYPE] => S [RECUR_SCHEME_TYPE] => D [RECUR_SCHEME_LENGTH] => 0 [TRIAL_PRICE_ID] => 0 [USE_OFFERS] => ) [~CATALOG_TYPE] => 1 [CATALOG_TYPE] => 1 [~CATALOG_QUANTITY] => 10 [CATALOG_QUANTITY] => 10 [~CATALOG_QUANTITY_TRACE] => N [CATALOG_QUANTITY_TRACE] => N [~CATALOG_CAN_BUY_ZERO] => Y [CATALOG_CAN_BUY_ZERO] => Y [~CATALOG_SUBSCRIBE] => Y [CATALOG_SUBSCRIBE] => Y [PROPERTIES] => Array ( [ITEM_DELIVERY] => Array ( [ID] => 20 [IBLOCK_ID] => 2 [NAME] => Доставка [ACTIVE] => Y [SORT] => 1 [CODE] => ITEM_DELIVERY [DEFAULT_VALUE] => [PROPERTY_TYPE] => L [ROW_COUNT] => 1 [COL_COUNT] => 30 [LIST_TYPE] => L [MULTIPLE] => N [XML_ID] => 20 [FILE_TYPE] => [MULTIPLE_CNT] => 5 [LINK_IBLOCK_ID] => 0 [WITH_DESCRIPTION] => N [SEARCHABLE] => N [FILTRABLE] => N [IS_REQUIRED] => Y [VERSION] => 1 [USER_TYPE] => [USER_TYPE_SETTINGS] => Array ( ) [HINT] => [~NAME] => Доставка [~DEFAULT_VALUE] => [VALUE_ENUM] => По России и СНГ [VALUE_XML_ID] => ru-sng [VALUE_SORT] => 1 [VALUE] => По России и СНГ [PROPERTY_VALUE_ID] => 6825512 [VALUE_ENUM_ID] => 7 [DESCRIPTION] => [~VALUE] => По России и СНГ [~DESCRIPTION] => ) [ITEM_PAYMENT] => Array ( [ID] => 21 [IBLOCK_ID] => 2 [NAME] => Оплата [ACTIVE] => Y [SORT] => 2 [CODE] => ITEM_PAYMENT [DEFAULT_VALUE] => [PROPERTY_TYPE] => L [ROW_COUNT] => 1 [COL_COUNT] => 30 [LIST_TYPE] => L [MULTIPLE] => N [XML_ID] => 21 [FILE_TYPE] => [MULTIPLE_CNT] => 5 [LINK_IBLOCK_ID] => 0 [WITH_DESCRIPTION] => N [SEARCHABLE] => N [FILTRABLE] => N [IS_REQUIRED] => Y [VERSION] => 1 [USER_TYPE] => [USER_TYPE_SETTINGS] => Array ( ) [HINT] => [~NAME] => Оплата [~DEFAULT_VALUE] => [VALUE_ENUM] => Безналичный расчет [VALUE_XML_ID] => payment-bank [VALUE_SORT] => 1 [VALUE] => Безналичный расчет [PROPERTY_VALUE_ID] => 6825513 [VALUE_ENUM_ID] => 8 [DESCRIPTION] => [~VALUE] => Безналичный расчет [~DESCRIPTION] => ) [ITEM_PRICE] => Array ( [ID] => 22 [IBLOCK_ID] => 2 [NAME] => Цена [ACTIVE] => Y [SORT] => 3 [CODE] => ITEM_PRICE [DEFAULT_VALUE] => [PROPERTY_TYPE] => L [ROW_COUNT] => 1 [COL_COUNT] => 30 [LIST_TYPE] => L [MULTIPLE] => N [XML_ID] => 22 [FILE_TYPE] => [MULTIPLE_CNT] => 5 [LINK_IBLOCK_ID] => 0 [WITH_DESCRIPTION] => N [SEARCHABLE] => N [FILTRABLE] => N [IS_REQUIRED] => Y [VERSION] => 1 [USER_TYPE] => [USER_TYPE_SETTINGS] => Array ( ) [HINT] => [~NAME] => Цена [~DEFAULT_VALUE] => [VALUE_ENUM] => По запросу [VALUE_XML_ID] => on-request [VALUE_SORT] => 1 [VALUE] => По запросу [PROPERTY_VALUE_ID] => 6825514 [VALUE_ENUM_ID] => 9 [DESCRIPTION] => [~VALUE] => По запросу [~DESCRIPTION] => ) [ITEM_IMAGES] => Array ( [ID] => 23 [IBLOCK_ID] => 2 [NAME] => Изображения [ACTIVE] => Y [SORT] => 4 [CODE] => ITEM_IMAGES [DEFAULT_VALUE] => [PROPERTY_TYPE] => F [ROW_COUNT] => 1 [COL_COUNT] => 30 [LIST_TYPE] => L [MULTIPLE] => Y [XML_ID] => 23 [FILE_TYPE] => [MULTIPLE_CNT] => 5 [LINK_IBLOCK_ID] => 0 [WITH_DESCRIPTION] => N [SEARCHABLE] => N [FILTRABLE] => N [IS_REQUIRED] => N [VERSION] => 1 [USER_TYPE] => [USER_TYPE_SETTINGS] => Array ( ) [HINT] => [~NAME] => Изображения [~DEFAULT_VALUE] => [VALUE_ENUM] => [VALUE_XML_ID] => [VALUE_SORT] => [VALUE] => Array ( [0] => 35288 ) [PROPERTY_VALUE_ID] => Array ( [0] => 5932996 ) [DESCRIPTION] => Array ( [0] => ) [~VALUE] => Array ( [0] => 35288 ) [~DESCRIPTION] => Array ( [0] => ) ) [ITEM_PROPERTIES] => Array ( [ID] => 24 [IBLOCK_ID] => 2 [NAME] => Свойства [ACTIVE] => Y [SORT] => 5 [CODE] => ITEM_PROPERTIES [DEFAULT_VALUE] => [PROPERTY_TYPE] => E [ROW_COUNT] => 1 [COL_COUNT] => 30 [LIST_TYPE] => L [MULTIPLE] => Y [XML_ID] => 24 [FILE_TYPE] => [MULTIPLE_CNT] => 1 [LINK_IBLOCK_ID] => 3 [WITH_DESCRIPTION] => N [SEARCHABLE] => N [FILTRABLE] => N [IS_REQUIRED] => N [VERSION] => 1 [USER_TYPE] => [USER_TYPE_SETTINGS] => Array ( ) [HINT] => [~NAME] => Свойства [~DEFAULT_VALUE] => [VALUE_ENUM] => [VALUE_XML_ID] => [VALUE_SORT] => [VALUE] => [PROPERTY_VALUE_ID] => [DESCRIPTION] => [~DESCRIPTION] => [~VALUE] => ) [ITEM_CHARACTERISTICS] => Array ( [ID] => 28 [IBLOCK_ID] => 2 [NAME] => Характеристики [ACTIVE] => Y [SORT] => 6 [CODE] => ITEM_CHARACTERISTICS [DEFAULT_VALUE] => [PROPERTY_TYPE] => S [ROW_COUNT] => 1 [COL_COUNT] => 20 [LIST_TYPE] => L [MULTIPLE] => Y [XML_ID] => 28 [FILE_TYPE] => [MULTIPLE_CNT] => 1 [LINK_IBLOCK_ID] => 0 [WITH_DESCRIPTION] => Y [SEARCHABLE] => N [FILTRABLE] => N [IS_REQUIRED] => N [VERSION] => 1 [USER_TYPE] => [USER_TYPE_SETTINGS] => Array ( ) [HINT] => [~NAME] => Характеристики [~DEFAULT_VALUE] => [VALUE_ENUM] => [VALUE_XML_ID] => [VALUE_SORT] => [VALUE] => Array ( [0] => фланцевая [1] => граненая [2] => 25500 [3] => 17200 [4] => 720 [5] => 240 [6] => одностоечная свободностоящая [7] => горячее цинкование [8] => Порошковое / полимерное окрашивание [9] => 30 лет [10] => промежуточная ) [PROPERTY_VALUE_ID] => Array ( [0] => 6823935 [1] => 6823936 [2] => 6823937 [3] => 6823938 [4] => 6823939 [5] => 6823940 [6] => 6823941 [7] => 6823942 [8] => 6823943 [9] => 6823944 [10] => 6825515 ) [DESCRIPTION] => Array ( [0] => Способ установки [1] => Способ производства [2] => Высота, мм [3] => Высота до нижней траверсы, мм [4] => Диаметр нижний, мм [5] => Диаметр верхний, мм [6] => Конструкция [7] => Защитное покрытие [8] => Лакокрасочное покрытие [9] => Срок службы [10] => Назначение ) [~VALUE] => Array ( [0] => фланцевая [1] => граненая [2] => 25500 [3] => 17200 [4] => 720 [5] => 240 [6] => одностоечная свободностоящая [7] => горячее цинкование [8] => Порошковое / полимерное окрашивание [9] => 30 лет [10] => промежуточная ) [~DESCRIPTION] => Array ( [0] => Способ установки [1] => Способ производства [2] => Высота, мм [3] => Высота до нижней траверсы, мм [4] => Диаметр нижний, мм [5] => Диаметр верхний, мм [6] => Конструкция [7] => Защитное покрытие [8] => Лакокрасочное покрытие [9] => Срок службы [10] => Назначение ) ) [ITEM_FILTER] => Array ( [ID] => 40 [IBLOCK_ID] => 2 [NAME] => Фильтр [ACTIVE] => Y [SORT] => 7 [CODE] => ITEM_FILTER [DEFAULT_VALUE] => [PROPERTY_TYPE] => S [ROW_COUNT] => 1 [COL_COUNT] => 30 [LIST_TYPE] => L [MULTIPLE] => N [XML_ID] => 40 [FILE_TYPE] => [MULTIPLE_CNT] => 5 [LINK_IBLOCK_ID] => 0 [WITH_DESCRIPTION] => N [SEARCHABLE] => N [FILTRABLE] => N [IS_REQUIRED] => N [VERSION] => 1 [USER_TYPE] => [USER_TYPE_SETTINGS] => Array ( ) [HINT] => [~NAME] => Фильтр [~DEFAULT_VALUE] => [VALUE_ENUM] => [VALUE_XML_ID] => [VALUE_SORT] => [VALUE] => [PROPERTY_VALUE_ID] => [DESCRIPTION] => [~DESCRIPTION] => [~VALUE] => ) [ITEM_TECH_CH] => Array ( [ID] => 29 [IBLOCK_ID] => 2 [NAME] => Технические характеристики [ACTIVE] => Y [SORT] => 8 [CODE] => ITEM_TECH_CH [DEFAULT_VALUE] => Array ( [TYPE] => HTML [TEXT] => ) [PROPERTY_TYPE] => S [ROW_COUNT] => 1 [COL_COUNT] => 30 [LIST_TYPE] => L [MULTIPLE] => N [XML_ID] => 29 [FILE_TYPE] => [MULTIPLE_CNT] => 5 [LINK_IBLOCK_ID] => 0 [WITH_DESCRIPTION] => N [SEARCHABLE] => N [FILTRABLE] => N [IS_REQUIRED] => N [VERSION] => 1 [USER_TYPE] => HTML [USER_TYPE_SETTINGS] => Array ( [height] => 200 ) [HINT] => [~NAME] => Технические характеристики [~DEFAULT_VALUE] => Array ( [TYPE] => HTML [TEXT] => ) [VALUE_ENUM] => [VALUE_XML_ID] => [VALUE_SORT] => [VALUE] => Array ( [TEXT] => <p style="text-align: justify;"> Конструкция применяется в качестве промежуточных опор на прямых участках воздушных линий электропередачи класса напряжения 110 кВ. Опоры используются для подвески проводов и тросов в нормальных режимах работы линии, воспринимая вертикальные и горизонтальные нагрузки. Данная модель востребована при строительстве и модернизации одноцепных распределительных и магистральных ЛЭП 110 кВ. Конструкция предназначена для эксплуатации в регионах с холодным климатом. </p> [TYPE] => HTML ) [PROPERTY_VALUE_ID] => 6823945 [DESCRIPTION] => [~VALUE] => Array ( [TEXT] =>

Конструкция применяется в качестве промежуточных опор на прямых участках воздушных линий электропередачи класса напряжения 110 кВ. Опоры используются для подвески проводов и тросов в нормальных режимах работы линии, воспринимая вертикальные и горизонтальные нагрузки. Данная модель востребована при строительстве и модернизации одноцепных распределительных и магистральных ЛЭП 110 кВ. Конструкция предназначена для эксплуатации в регионах с холодным климатом.

[TYPE] => HTML ) [~DESCRIPTION] => ) [ITEM_ADV_DESCR] => Array ( [ID] => 30 [IBLOCK_ID] => 2 [NAME] => Преимущества (описание) [ACTIVE] => Y [SORT] => 9 [CODE] => ITEM_ADV_DESCR [DEFAULT_VALUE] => Array ( [TYPE] => HTML [TEXT] => ) [PROPERTY_TYPE] => S [ROW_COUNT] => 1 [COL_COUNT] => 30 [LIST_TYPE] => L [MULTIPLE] => N [XML_ID] => 30 [FILE_TYPE] => [MULTIPLE_CNT] => 5 [LINK_IBLOCK_ID] => 0 [WITH_DESCRIPTION] => N [SEARCHABLE] => N [FILTRABLE] => N [IS_REQUIRED] => N [VERSION] => 1 [USER_TYPE] => HTML [USER_TYPE_SETTINGS] => Array ( [height] => 100 ) [HINT] => [~NAME] => Преимущества (описание) [~DEFAULT_VALUE] => Array ( [TYPE] => HTML [TEXT] => ) [VALUE_ENUM] => [VALUE_XML_ID] => [VALUE_SORT] => [VALUE] => Array ( [TEXT] => <p style="text-align: justify;"> Ключевым преимуществом является стандартизированная конструкция, разработанная по типовому проекту 22.0099.2, что гарантирует надежность и предсказуемость характеристик. Коническая граненая форма ствола обеспечивает оптимальное соотношение прочности и веса. Использование стали С245 и горячего цинкования гарантирует долговечность в условиях низких температур. Смешанная схема подвески проводов и наличие тросостойки оптимизируют электрические и механические параметры опоры. </p> [TYPE] => HTML ) [PROPERTY_VALUE_ID] => 6823946 [DESCRIPTION] => [~VALUE] => Array ( [TEXT] =>

Ключевым преимуществом является стандартизированная конструкция, разработанная по типовому проекту 22.0099.2, что гарантирует надежность и предсказуемость характеристик. Коническая граненая форма ствола обеспечивает оптимальное соотношение прочности и веса. Использование стали С245 и горячего цинкования гарантирует долговечность в условиях низких температур. Смешанная схема подвески проводов и наличие тросостойки оптимизируют электрические и механические параметры опоры.

[TYPE] => HTML ) [~DESCRIPTION] => ) [ITEM_ADV] => Array ( [ID] => 31 [IBLOCK_ID] => 2 [NAME] => Преимущества [ACTIVE] => Y [SORT] => 10 [CODE] => ITEM_ADV [DEFAULT_VALUE] => [PROPERTY_TYPE] => E [ROW_COUNT] => 1 [COL_COUNT] => 30 [LIST_TYPE] => L [MULTIPLE] => Y [XML_ID] => 31 [FILE_TYPE] => [MULTIPLE_CNT] => 1 [LINK_IBLOCK_ID] => 5 [WITH_DESCRIPTION] => N [SEARCHABLE] => N [FILTRABLE] => N [IS_REQUIRED] => N [VERSION] => 1 [USER_TYPE] => [USER_TYPE_SETTINGS] => Array ( ) [HINT] => [~NAME] => Преимущества [~DEFAULT_VALUE] => [VALUE_ENUM] => [VALUE_XML_ID] => [VALUE_SORT] => [VALUE] => [PROPERTY_VALUE_ID] => [DESCRIPTION] => [~DESCRIPTION] => [~VALUE] => ) [ITEM_BUY] => Array ( [ID] => 32 [IBLOCK_ID] => 2 [NAME] => Купить [ACTIVE] => Y [SORT] => 11 [CODE] => ITEM_BUY [DEFAULT_VALUE] => Array ( [TEXT] => [TYPE] => HTML ) [PROPERTY_TYPE] => S [ROW_COUNT] => 1 [COL_COUNT] => 30 [LIST_TYPE] => L [MULTIPLE] => N [XML_ID] => 32 [FILE_TYPE] => [MULTIPLE_CNT] => 5 [LINK_IBLOCK_ID] => 0 [WITH_DESCRIPTION] => N [SEARCHABLE] => N [FILTRABLE] => N [IS_REQUIRED] => N [VERSION] => 1 [USER_TYPE] => HTML [USER_TYPE_SETTINGS] => Array ( [height] => 200 ) [HINT] => [~NAME] => Купить [~DEFAULT_VALUE] => Array ( [TEXT] => [TYPE] => HTML ) [VALUE_ENUM] => [VALUE_XML_ID] => [VALUE_SORT] => [VALUE] => Array ( [TEXT] => <p style="text-align: justify;"> Приобрести многогранные одноцепные промежуточные опоры ПМ110-1Ф.1 для ВЛ 110 кВ можно напрямую у производителя — НПО «Легион». Мы гарантируем соответствие продукции типовому проекту 22.0099.2 и техническим условиям. Для получения подробных спецификаций, консультации по монтажу и оформления заказа обратитесь к нашим специалистам.<br> Телефон: 8(800)500-51-37<br> Email: <a href="mailto:info@legionural.ru">info@legionural.ru</a> </p> <a href="mailto:info@legionural.ru"></a> [TYPE] => HTML ) [PROPERTY_VALUE_ID] => 6823947 [DESCRIPTION] => [~VALUE] => Array ( [TEXT] =>

Приобрести многогранные одноцепные промежуточные опоры ПМ110-1Ф.1 для ВЛ 110 кВ можно напрямую у производителя — НПО «Легион». Мы гарантируем соответствие продукции типовому проекту 22.0099.2 и техническим условиям. Для получения подробных спецификаций, консультации по монтажу и оформления заказа обратитесь к нашим специалистам.
Телефон: 8(800)500-51-37
Email: info@legionural.ru

[TYPE] => HTML ) [~DESCRIPTION] => ) [ITEM_CERT_COR] => Array ( [ID] => 33 [IBLOCK_ID] => 2 [NAME] => Сертификаты соответствия [ACTIVE] => Y [SORT] => 12 [CODE] => ITEM_CERT_COR [DEFAULT_VALUE] => [PROPERTY_TYPE] => S [ROW_COUNT] => 1 [COL_COUNT] => 30 [LIST_TYPE] => L [MULTIPLE] => Y [XML_ID] => 33 [FILE_TYPE] => [MULTIPLE_CNT] => 1 [LINK_IBLOCK_ID] => 0 [WITH_DESCRIPTION] => Y [SEARCHABLE] => N [FILTRABLE] => N [IS_REQUIRED] => N [VERSION] => 1 [USER_TYPE] => [USER_TYPE_SETTINGS] => Array ( ) [HINT] => [~NAME] => Сертификаты соответствия [~DEFAULT_VALUE] => [VALUE_ENUM] => [VALUE_XML_ID] => [VALUE_SORT] => [VALUE] => [PROPERTY_VALUE_ID] => [DESCRIPTION] => [~DESCRIPTION] => [~VALUE] => ) [ITEM_ST_STAND] => Array ( [ID] => 34 [IBLOCK_ID] => 2 [NAME] => Государственные стандарты [ACTIVE] => Y [SORT] => 13 [CODE] => ITEM_ST_STAND [DEFAULT_VALUE] => [PROPERTY_TYPE] => S [ROW_COUNT] => 1 [COL_COUNT] => 30 [LIST_TYPE] => L [MULTIPLE] => Y [XML_ID] => 34 [FILE_TYPE] => [MULTIPLE_CNT] => 1 [LINK_IBLOCK_ID] => 0 [WITH_DESCRIPTION] => Y [SEARCHABLE] => N [FILTRABLE] => N [IS_REQUIRED] => N [VERSION] => 1 [USER_TYPE] => [USER_TYPE_SETTINGS] => Array ( ) [HINT] => [~NAME] => Государственные стандарты [~DEFAULT_VALUE] => [VALUE_ENUM] => [VALUE_XML_ID] => [VALUE_SORT] => [VALUE] => [PROPERTY_VALUE_ID] => [DESCRIPTION] => [~DESCRIPTION] => [~VALUE] => ) [ITEM_NORM] => Array ( [ID] => 35 [IBLOCK_ID] => 2 [NAME] => Строительные нормы и правила [ACTIVE] => Y [SORT] => 14 [CODE] => ITEM_NORM [DEFAULT_VALUE] => [PROPERTY_TYPE] => S [ROW_COUNT] => 1 [COL_COUNT] => 30 [LIST_TYPE] => L [MULTIPLE] => Y [XML_ID] => 35 [FILE_TYPE] => [MULTIPLE_CNT] => 1 [LINK_IBLOCK_ID] => 0 [WITH_DESCRIPTION] => Y [SEARCHABLE] => N [FILTRABLE] => N [IS_REQUIRED] => N [VERSION] => 1 [USER_TYPE] => [USER_TYPE_SETTINGS] => Array ( ) [HINT] => [~NAME] => Строительные нормы и правила [~DEFAULT_VALUE] => [VALUE_ENUM] => [VALUE_XML_ID] => [VALUE_SORT] => [VALUE] => [PROPERTY_VALUE_ID] => [DESCRIPTION] => [~DESCRIPTION] => [~VALUE] => ) [ITEM_SIMILAR] => Array ( [ID] => 36 [IBLOCK_ID] => 2 [NAME] => Похожие модели [ACTIVE] => Y [SORT] => 15 [CODE] => ITEM_SIMILAR [DEFAULT_VALUE] => [PROPERTY_TYPE] => G [ROW_COUNT] => 1 [COL_COUNT] => 30 [LIST_TYPE] => L [MULTIPLE] => Y [XML_ID] => 36 [FILE_TYPE] => [MULTIPLE_CNT] => 10 [LINK_IBLOCK_ID] => 2 [WITH_DESCRIPTION] => N [SEARCHABLE] => N [FILTRABLE] => N [IS_REQUIRED] => N [VERSION] => 1 [USER_TYPE] => [USER_TYPE_SETTINGS] => Array ( ) [HINT] => [~NAME] => Похожие модели [~DEFAULT_VALUE] => [VALUE_ENUM] => [VALUE_XML_ID] => [VALUE_SORT] => [VALUE] => [PROPERTY_VALUE_ID] => [DESCRIPTION] => [~DESCRIPTION] => [~VALUE] => ) [ITEM_SIMILAR_TAGS] => Array ( [ID] => 122 [IBLOCK_ID] => 2 [NAME] => Похожие модели (теговые) [ACTIVE] => Y [SORT] => 16 [CODE] => ITEM_SIMILAR_TAGS [DEFAULT_VALUE] => [PROPERTY_TYPE] => E [ROW_COUNT] => 1 [COL_COUNT] => 30 [LIST_TYPE] => L [MULTIPLE] => Y [XML_ID] => 122 [FILE_TYPE] => [MULTIPLE_CNT] => 1 [LINK_IBLOCK_ID] => 19 [WITH_DESCRIPTION] => N [SEARCHABLE] => N [FILTRABLE] => N [IS_REQUIRED] => N [VERSION] => 1 [USER_TYPE] => [USER_TYPE_SETTINGS] => Array ( ) [HINT] => [~NAME] => Похожие модели (теговые) [~DEFAULT_VALUE] => [VALUE_ENUM] => [VALUE_XML_ID] => [VALUE_SORT] => [VALUE] => [PROPERTY_VALUE_ID] => [DESCRIPTION] => [~DESCRIPTION] => [~VALUE] => ) [ITEM_BUY_WITH] => Array ( [ID] => 37 [IBLOCK_ID] => 2 [NAME] => С этим товаром покупают [ACTIVE] => Y [SORT] => 17 [CODE] => ITEM_BUY_WITH [DEFAULT_VALUE] => [PROPERTY_TYPE] => E [ROW_COUNT] => 1 [COL_COUNT] => 30 [LIST_TYPE] => L [MULTIPLE] => Y [XML_ID] => 37 [FILE_TYPE] => [MULTIPLE_CNT] => 1 [LINK_IBLOCK_ID] => 2 [WITH_DESCRIPTION] => N [SEARCHABLE] => N [FILTRABLE] => N [IS_REQUIRED] => N [VERSION] => 1 [USER_TYPE] => [USER_TYPE_SETTINGS] => Array ( ) [HINT] => [~NAME] => С этим товаром покупают [~DEFAULT_VALUE] => [VALUE_ENUM] => [VALUE_XML_ID] => [VALUE_SORT] => [VALUE] => [PROPERTY_VALUE_ID] => [DESCRIPTION] => [~DESCRIPTION] => [~VALUE] => ) [ITEM_VOTE_COUNT] => Array ( [ID] => 38 [IBLOCK_ID] => 2 [NAME] => Количество голосов [ACTIVE] => Y [SORT] => 18 [CODE] => ITEM_VOTE_COUNT [DEFAULT_VALUE] => 0 [PROPERTY_TYPE] => N [ROW_COUNT] => 1 [COL_COUNT] => 30 [LIST_TYPE] => L [MULTIPLE] => N [XML_ID] => 38 [FILE_TYPE] => [MULTIPLE_CNT] => 5 [LINK_IBLOCK_ID] => 0 [WITH_DESCRIPTION] => N [SEARCHABLE] => N [FILTRABLE] => N [IS_REQUIRED] => N [VERSION] => 1 [USER_TYPE] => [USER_TYPE_SETTINGS] => Array ( ) [HINT] => [~NAME] => Количество голосов [~DEFAULT_VALUE] => 0 [VALUE_ENUM] => [VALUE_XML_ID] => [VALUE_SORT] => [VALUE] => 8 [PROPERTY_VALUE_ID] => 5932997 [DESCRIPTION] => [~VALUE] => 8 [~DESCRIPTION] => ) [ITEM_RAITING] => Array ( [ID] => 39 [IBLOCK_ID] => 2 [NAME] => Рейтинг [ACTIVE] => Y [SORT] => 19 [CODE] => ITEM_RAITING [DEFAULT_VALUE] => 0 [PROPERTY_TYPE] => N [ROW_COUNT] => 1 [COL_COUNT] => 30 [LIST_TYPE] => L [MULTIPLE] => N [XML_ID] => 39 [FILE_TYPE] => [MULTIPLE_CNT] => 5 [LINK_IBLOCK_ID] => 0 [WITH_DESCRIPTION] => N [SEARCHABLE] => N [FILTRABLE] => N [IS_REQUIRED] => N [VERSION] => 1 [USER_TYPE] => [USER_TYPE_SETTINGS] => Array ( ) [HINT] => [~NAME] => Рейтинг [~DEFAULT_VALUE] => 0 [VALUE_ENUM] => [VALUE_XML_ID] => [VALUE_SORT] => [VALUE] => 4.5 [PROPERTY_VALUE_ID] => 5932998 [DESCRIPTION] => [~VALUE] => 4.5 [~DESCRIPTION] => ) [H1] => Array ( [ID] => 125 [IBLOCK_ID] => 2 [NAME] => H1 [ACTIVE] => Y [SORT] => 500 [CODE] => H1 [DEFAULT_VALUE] => [PROPERTY_TYPE] => S [ROW_COUNT] => 1 [COL_COUNT] => 70 [LIST_TYPE] => L [MULTIPLE] => N [XML_ID] => 125 [FILE_TYPE] => [MULTIPLE_CNT] => 5 [LINK_IBLOCK_ID] => 0 [WITH_DESCRIPTION] => N [SEARCHABLE] => N [FILTRABLE] => N [IS_REQUIRED] => N [VERSION] => 1 [USER_TYPE] => [USER_TYPE_SETTINGS] => Array ( ) [HINT] => [~NAME] => H1 [~DEFAULT_VALUE] => [VALUE_ENUM] => [VALUE_XML_ID] => [VALUE_SORT] => [VALUE] => Многогранная опора ПМ110-1 ф.1 [PROPERTY_VALUE_ID] => 5945359 [DESCRIPTION] => [~VALUE] => Многогранная опора ПМ110-1 ф.1 [~DESCRIPTION] => ) [CERTIFICATES] => Array ( [ID] => 127 [IBLOCK_ID] => 2 [NAME] => Сертификаты [ACTIVE] => Y [SORT] => 500 [CODE] => CERTIFICATES [DEFAULT_VALUE] => [PROPERTY_TYPE] => E [ROW_COUNT] => 1 [COL_COUNT] => 30 [LIST_TYPE] => L [MULTIPLE] => Y [XML_ID] => 127 [FILE_TYPE] => [MULTIPLE_CNT] => 5 [LINK_IBLOCK_ID] => 7 [WITH_DESCRIPTION] => N [SEARCHABLE] => N [FILTRABLE] => N [IS_REQUIRED] => N [VERSION] => 1 [USER_TYPE] => [USER_TYPE_SETTINGS] => Array ( ) [HINT] => [~NAME] => Сертификаты [~DEFAULT_VALUE] => [VALUE_ENUM] => [VALUE_XML_ID] => [VALUE_SORT] => [VALUE] => [PROPERTY_VALUE_ID] => [DESCRIPTION] => [~DESCRIPTION] => [~VALUE] => ) [129] => Array ( [ID] => 129 [IBLOCK_ID] => 2 [NAME] => Уникальный META TITLE [ACTIVE] => Y [SORT] => 500 [CODE] => 129 [DEFAULT_VALUE] => [PROPERTY_TYPE] => S [ROW_COUNT] => 1 [COL_COUNT] => 30 [LIST_TYPE] => L [MULTIPLE] => N [XML_ID] => 129 [FILE_TYPE] => [MULTIPLE_CNT] => 5 [LINK_IBLOCK_ID] => 0 [WITH_DESCRIPTION] => N [SEARCHABLE] => N [FILTRABLE] => N [IS_REQUIRED] => N [VERSION] => 1 [USER_TYPE] => [USER_TYPE_SETTINGS] => Array ( ) [HINT] => [~NAME] => Уникальный META TITLE [~DEFAULT_VALUE] => [VALUE_ENUM] => [VALUE_XML_ID] => [VALUE_SORT] => [VALUE] => [PROPERTY_VALUE_ID] => [DESCRIPTION] => [~DESCRIPTION] => [~VALUE] => ) [ITEM_TYPE] => Array ( [ID] => 134 [IBLOCK_ID] => 2 [NAME] => Тип [ACTIVE] => Y [SORT] => 500 [CODE] => ITEM_TYPE [DEFAULT_VALUE] => [PROPERTY_TYPE] => S [ROW_COUNT] => 1 [COL_COUNT] => 30 [LIST_TYPE] => L [MULTIPLE] => N [XML_ID] => [FILE_TYPE] => [MULTIPLE_CNT] => 5 [LINK_IBLOCK_ID] => 0 [WITH_DESCRIPTION] => N [SEARCHABLE] => N [FILTRABLE] => Y [IS_REQUIRED] => N [VERSION] => 1 [USER_TYPE] => [USER_TYPE_SETTINGS] => Array ( ) [HINT] => [~NAME] => Тип [~DEFAULT_VALUE] => [VALUE_ENUM] => [VALUE_XML_ID] => [VALUE_SORT] => [VALUE] => [PROPERTY_VALUE_ID] => [DESCRIPTION] => [~DESCRIPTION] => [~VALUE] => ) [ITEM_INSTALLATION] => Array ( [ID] => 135 [IBLOCK_ID] => 2 [NAME] => Способ установки [ACTIVE] => Y [SORT] => 500 [CODE] => ITEM_INSTALLATION [DEFAULT_VALUE] => [PROPERTY_TYPE] => S [ROW_COUNT] => 1 [COL_COUNT] => 30 [LIST_TYPE] => L [MULTIPLE] => N [XML_ID] => [FILE_TYPE] => [MULTIPLE_CNT] => 5 [LINK_IBLOCK_ID] => 0 [WITH_DESCRIPTION] => N [SEARCHABLE] => N [FILTRABLE] => N [IS_REQUIRED] => N [VERSION] => 1 [USER_TYPE] => [USER_TYPE_SETTINGS] => Array ( ) [HINT] => [~NAME] => Способ установки [~DEFAULT_VALUE] => [VALUE_ENUM] => [VALUE_XML_ID] => [VALUE_SORT] => [VALUE] => [PROPERTY_VALUE_ID] => [DESCRIPTION] => [~DESCRIPTION] => [~VALUE] => ) [ITEM_MODE] => Array ( [ID] => 136 [IBLOCK_ID] => 2 [NAME] => Способ производства [ACTIVE] => Y [SORT] => 500 [CODE] => ITEM_MODE [DEFAULT_VALUE] => [PROPERTY_TYPE] => S [ROW_COUNT] => 1 [COL_COUNT] => 30 [LIST_TYPE] => L [MULTIPLE] => N [XML_ID] => [FILE_TYPE] => [MULTIPLE_CNT] => 5 [LINK_IBLOCK_ID] => 0 [WITH_DESCRIPTION] => N [SEARCHABLE] => N [FILTRABLE] => N [IS_REQUIRED] => N [VERSION] => 1 [USER_TYPE] => [USER_TYPE_SETTINGS] => Array ( ) [HINT] => [~NAME] => Способ производства [~DEFAULT_VALUE] => [VALUE_ENUM] => [VALUE_XML_ID] => [VALUE_SORT] => [VALUE] => [PROPERTY_VALUE_ID] => [DESCRIPTION] => [~DESCRIPTION] => [~VALUE] => ) [ITEM_HEIGHT] => Array ( [ID] => 137 [IBLOCK_ID] => 2 [NAME] => Высота, мм [ACTIVE] => Y [SORT] => 500 [CODE] => ITEM_HEIGHT [DEFAULT_VALUE] => [PROPERTY_TYPE] => S [ROW_COUNT] => 1 [COL_COUNT] => 30 [LIST_TYPE] => L [MULTIPLE] => N [XML_ID] => [FILE_TYPE] => [MULTIPLE_CNT] => 5 [LINK_IBLOCK_ID] => 0 [WITH_DESCRIPTION] => N [SEARCHABLE] => N [FILTRABLE] => N [IS_REQUIRED] => N [VERSION] => 1 [USER_TYPE] => [USER_TYPE_SETTINGS] => Array ( ) [HINT] => [~NAME] => Высота, мм [~DEFAULT_VALUE] => [VALUE_ENUM] => [VALUE_XML_ID] => [VALUE_SORT] => [VALUE] => [PROPERTY_VALUE_ID] => [DESCRIPTION] => [~DESCRIPTION] => [~VALUE] => ) [BLOG_POST_ID] => Array ( [ID] => 138 [IBLOCK_ID] => 2 [NAME] => ID поста блога для комментариев [ACTIVE] => Y [SORT] => 500 [CODE] => BLOG_POST_ID [DEFAULT_VALUE] => [PROPERTY_TYPE] => N [ROW_COUNT] => 1 [COL_COUNT] => 30 [LIST_TYPE] => L [MULTIPLE] => N [XML_ID] => BLOG_POST_ID [FILE_TYPE] => [MULTIPLE_CNT] => 5 [LINK_IBLOCK_ID] => 0 [WITH_DESCRIPTION] => N [SEARCHABLE] => N [FILTRABLE] => N [IS_REQUIRED] => N [VERSION] => 1 [USER_TYPE] => [USER_TYPE_SETTINGS] => Array ( ) [HINT] => [~NAME] => ID поста блога для комментариев [~DEFAULT_VALUE] => [VALUE_ENUM] => [VALUE_XML_ID] => [VALUE_SORT] => [VALUE] => 1205 [PROPERTY_VALUE_ID] => 6775014 [DESCRIPTION] => [~VALUE] => 1205 [~DESCRIPTION] => ) [BLOG_COMMENTS_CNT] => Array ( [ID] => 139 [IBLOCK_ID] => 2 [NAME] => Количество комментариев [ACTIVE] => Y [SORT] => 500 [CODE] => BLOG_COMMENTS_CNT [DEFAULT_VALUE] => [PROPERTY_TYPE] => N [ROW_COUNT] => 1 [COL_COUNT] => 30 [LIST_TYPE] => L [MULTIPLE] => N [XML_ID] => BLOG_COMMENTS_CNT [FILE_TYPE] => [MULTIPLE_CNT] => 5 [LINK_IBLOCK_ID] => 0 [WITH_DESCRIPTION] => N [SEARCHABLE] => N [FILTRABLE] => N [IS_REQUIRED] => N [VERSION] => 1 [USER_TYPE] => [USER_TYPE_SETTINGS] => Array ( ) [HINT] => [~NAME] => Количество комментариев [~DEFAULT_VALUE] => [VALUE_ENUM] => [VALUE_XML_ID] => [VALUE_SORT] => [VALUE] => [PROPERTY_VALUE_ID] => [DESCRIPTION] => [~DESCRIPTION] => [~VALUE] => ) [HEIGHT_TOTAL] => Array ( [ID] => 143 [IBLOCK_ID] => 2 [NAME] => Высота общая, мм [ACTIVE] => Y [SORT] => 500 [CODE] => HEIGHT_TOTAL [DEFAULT_VALUE] => [PROPERTY_TYPE] => S [ROW_COUNT] => 1 [COL_COUNT] => 30 [LIST_TYPE] => L [MULTIPLE] => N [XML_ID] => [FILE_TYPE] => [MULTIPLE_CNT] => 5 [LINK_IBLOCK_ID] => 0 [WITH_DESCRIPTION] => N [SEARCHABLE] => N [FILTRABLE] => N [IS_REQUIRED] => N [VERSION] => 1 [USER_TYPE] => [USER_TYPE_SETTINGS] => Array ( ) [HINT] => [~NAME] => Высота общая, мм [~DEFAULT_VALUE] => [VALUE_ENUM] => [VALUE_XML_ID] => [VALUE_SORT] => [VALUE] => [PROPERTY_VALUE_ID] => [DESCRIPTION] => [~DESCRIPTION] => [~VALUE] => ) [HEIGHT_ABOVEGROUND] => Array ( [ID] => 144 [IBLOCK_ID] => 2 [NAME] => Высота надземной части, мм [ACTIVE] => Y [SORT] => 500 [CODE] => HEIGHT_ABOVEGROUND [DEFAULT_VALUE] => [PROPERTY_TYPE] => S [ROW_COUNT] => 1 [COL_COUNT] => 30 [LIST_TYPE] => L [MULTIPLE] => N [XML_ID] => [FILE_TYPE] => [MULTIPLE_CNT] => 5 [LINK_IBLOCK_ID] => 0 [WITH_DESCRIPTION] => N [SEARCHABLE] => N [FILTRABLE] => N [IS_REQUIRED] => N [VERSION] => 1 [USER_TYPE] => [USER_TYPE_SETTINGS] => Array ( ) [HINT] => [~NAME] => Высота надземной части, мм [~DEFAULT_VALUE] => [VALUE_ENUM] => [VALUE_XML_ID] => [VALUE_SORT] => [VALUE] => [PROPERTY_VALUE_ID] => [DESCRIPTION] => [~DESCRIPTION] => [~VALUE] => ) [HEIGHT_UNDERGROUND] => Array ( [ID] => 145 [IBLOCK_ID] => 2 [NAME] => Высота подземной части, мм [ACTIVE] => Y [SORT] => 500 [CODE] => HEIGHT_UNDERGROUND [DEFAULT_VALUE] => [PROPERTY_TYPE] => S [ROW_COUNT] => 1 [COL_COUNT] => 30 [LIST_TYPE] => L [MULTIPLE] => N [XML_ID] => [FILE_TYPE] => [MULTIPLE_CNT] => 5 [LINK_IBLOCK_ID] => 0 [WITH_DESCRIPTION] => N [SEARCHABLE] => N [FILTRABLE] => N [IS_REQUIRED] => N [VERSION] => 1 [USER_TYPE] => [USER_TYPE_SETTINGS] => Array ( ) [HINT] => [~NAME] => Высота подземной части, мм [~DEFAULT_VALUE] => [VALUE_ENUM] => [VALUE_XML_ID] => [VALUE_SORT] => [VALUE] => [PROPERTY_VALUE_ID] => [DESCRIPTION] => [~DESCRIPTION] => [~VALUE] => ) [DIAMETER_TOP] => Array ( [ID] => 146 [IBLOCK_ID] => 2 [NAME] => Диаметр верхний, мм [ACTIVE] => Y [SORT] => 500 [CODE] => DIAMETER_TOP [DEFAULT_VALUE] => [PROPERTY_TYPE] => S [ROW_COUNT] => 1 [COL_COUNT] => 30 [LIST_TYPE] => L [MULTIPLE] => N [XML_ID] => [FILE_TYPE] => [MULTIPLE_CNT] => 5 [LINK_IBLOCK_ID] => 0 [WITH_DESCRIPTION] => N [SEARCHABLE] => N [FILTRABLE] => N [IS_REQUIRED] => N [VERSION] => 1 [USER_TYPE] => [USER_TYPE_SETTINGS] => Array ( ) [HINT] => [~NAME] => Диаметр верхний, мм [~DEFAULT_VALUE] => [VALUE_ENUM] => [VALUE_XML_ID] => [VALUE_SORT] => [VALUE] => [PROPERTY_VALUE_ID] => [DESCRIPTION] => [~DESCRIPTION] => [~VALUE] => ) [DIAMETER_BOTTOM] => Array ( [ID] => 147 [IBLOCK_ID] => 2 [NAME] => Диаметр нижний, мм [ACTIVE] => Y [SORT] => 500 [CODE] => DIAMETER_BOTTOM [DEFAULT_VALUE] => [PROPERTY_TYPE] => S [ROW_COUNT] => 1 [COL_COUNT] => 30 [LIST_TYPE] => L [MULTIPLE] => N [XML_ID] => [FILE_TYPE] => [MULTIPLE_CNT] => 5 [LINK_IBLOCK_ID] => 0 [WITH_DESCRIPTION] => N [SEARCHABLE] => N [FILTRABLE] => N [IS_REQUIRED] => N [VERSION] => 1 [USER_TYPE] => [USER_TYPE_SETTINGS] => Array ( ) [HINT] => [~NAME] => Диаметр нижний, мм [~DEFAULT_VALUE] => [VALUE_ENUM] => [VALUE_XML_ID] => [VALUE_SORT] => [VALUE] => [PROPERTY_VALUE_ID] => [DESCRIPTION] => [~DESCRIPTION] => [~VALUE] => ) [WEIGHT] => Array ( [ID] => 148 [IBLOCK_ID] => 2 [NAME] => Нагрузка, кг [ACTIVE] => Y [SORT] => 500 [CODE] => WEIGHT [DEFAULT_VALUE] => [PROPERTY_TYPE] => S [ROW_COUNT] => 1 [COL_COUNT] => 30 [LIST_TYPE] => L [MULTIPLE] => N [XML_ID] => [FILE_TYPE] => [MULTIPLE_CNT] => 5 [LINK_IBLOCK_ID] => 0 [WITH_DESCRIPTION] => N [SEARCHABLE] => N [FILTRABLE] => N [IS_REQUIRED] => N [VERSION] => 1 [USER_TYPE] => [USER_TYPE_SETTINGS] => Array ( ) [HINT] => [~NAME] => Нагрузка, кг [~DEFAULT_VALUE] => [VALUE_ENUM] => [VALUE_XML_ID] => [VALUE_SORT] => [VALUE] => [PROPERTY_VALUE_ID] => [DESCRIPTION] => [~DESCRIPTION] => [~VALUE] => ) [VID] => Array ( [ID] => 149 [IBLOCK_ID] => 2 [NAME] => Вид [ACTIVE] => Y [SORT] => 500 [CODE] => VID [DEFAULT_VALUE] => [PROPERTY_TYPE] => S [ROW_COUNT] => 1 [COL_COUNT] => 30 [LIST_TYPE] => L [MULTIPLE] => N [XML_ID] => [FILE_TYPE] => [MULTIPLE_CNT] => 5 [LINK_IBLOCK_ID] => 0 [WITH_DESCRIPTION] => N [SEARCHABLE] => N [FILTRABLE] => N [IS_REQUIRED] => N [VERSION] => 1 [USER_TYPE] => [USER_TYPE_SETTINGS] => Array ( ) [HINT] => [~NAME] => Вид [~DEFAULT_VALUE] => [VALUE_ENUM] => [VALUE_XML_ID] => [VALUE_SORT] => [VALUE] => [PROPERTY_VALUE_ID] => [DESCRIPTION] => [~DESCRIPTION] => [~VALUE] => ) [SERVICE_LIFE] => Array ( [ID] => 150 [IBLOCK_ID] => 2 [NAME] => Срок службы [ACTIVE] => Y [SORT] => 500 [CODE] => SERVICE_LIFE [DEFAULT_VALUE] => [PROPERTY_TYPE] => S [ROW_COUNT] => 1 [COL_COUNT] => 30 [LIST_TYPE] => L [MULTIPLE] => N [XML_ID] => [FILE_TYPE] => [MULTIPLE_CNT] => 5 [LINK_IBLOCK_ID] => 0 [WITH_DESCRIPTION] => N [SEARCHABLE] => N [FILTRABLE] => N [IS_REQUIRED] => N [VERSION] => 1 [USER_TYPE] => [USER_TYPE_SETTINGS] => Array ( ) [HINT] => [~NAME] => Срок службы [~DEFAULT_VALUE] => [VALUE_ENUM] => [VALUE_XML_ID] => [VALUE_SORT] => [VALUE] => [PROPERTY_VALUE_ID] => [DESCRIPTION] => [~DESCRIPTION] => [~VALUE] => ) [USING] => Array ( [ID] => 151 [IBLOCK_ID] => 2 [NAME] => Применение [ACTIVE] => Y [SORT] => 500 [CODE] => USING [DEFAULT_VALUE] => [PROPERTY_TYPE] => S [ROW_COUNT] => 1 [COL_COUNT] => 30 [LIST_TYPE] => L [MULTIPLE] => N [XML_ID] => [FILE_TYPE] => [MULTIPLE_CNT] => 5 [LINK_IBLOCK_ID] => 0 [WITH_DESCRIPTION] => N [SEARCHABLE] => N [FILTRABLE] => N [IS_REQUIRED] => N [VERSION] => 1 [USER_TYPE] => [USER_TYPE_SETTINGS] => Array ( ) [HINT] => [~NAME] => Применение [~DEFAULT_VALUE] => [VALUE_ENUM] => [VALUE_XML_ID] => [VALUE_SORT] => [VALUE] => [PROPERTY_VALUE_ID] => [DESCRIPTION] => [~DESCRIPTION] => [~VALUE] => ) [HEIGHT_ZAK] => Array ( [ID] => 152 [IBLOCK_ID] => 2 [NAME] => Высота закладного элемента фундамента [ACTIVE] => Y [SORT] => 500 [CODE] => HEIGHT_ZAK [DEFAULT_VALUE] => [PROPERTY_TYPE] => S [ROW_COUNT] => 1 [COL_COUNT] => 30 [LIST_TYPE] => L [MULTIPLE] => N [XML_ID] => [FILE_TYPE] => [MULTIPLE_CNT] => 5 [LINK_IBLOCK_ID] => 0 [WITH_DESCRIPTION] => N [SEARCHABLE] => N [FILTRABLE] => N [IS_REQUIRED] => N [VERSION] => 1 [USER_TYPE] => [USER_TYPE_SETTINGS] => Array ( ) [HINT] => [~NAME] => Высота закладного элемента фундамента [~DEFAULT_VALUE] => [VALUE_ENUM] => [VALUE_XML_ID] => [VALUE_SORT] => [VALUE] => [PROPERTY_VALUE_ID] => [DESCRIPTION] => [~DESCRIPTION] => [~VALUE] => ) [LENGTH_CONSOLE] => Array ( [ID] => 153 [IBLOCK_ID] => 2 [NAME] => Длина консоли [ACTIVE] => Y [SORT] => 500 [CODE] => LENGTH_CONSOLE [DEFAULT_VALUE] => [PROPERTY_TYPE] => S [ROW_COUNT] => 1 [COL_COUNT] => 30 [LIST_TYPE] => L [MULTIPLE] => N [XML_ID] => [FILE_TYPE] => [MULTIPLE_CNT] => 5 [LINK_IBLOCK_ID] => 0 [WITH_DESCRIPTION] => N [SEARCHABLE] => N [FILTRABLE] => N [IS_REQUIRED] => N [VERSION] => 1 [USER_TYPE] => [USER_TYPE_SETTINGS] => Array ( ) [HINT] => [~NAME] => Длина консоли [~DEFAULT_VALUE] => [VALUE_ENUM] => [VALUE_XML_ID] => [VALUE_SORT] => [VALUE] => [PROPERTY_VALUE_ID] => [DESCRIPTION] => [~DESCRIPTION] => [~VALUE] => ) [HEIGHT_TOP_SECTION] => Array ( [ID] => 154 [IBLOCK_ID] => 2 [NAME] => Высота верхней секции, мм [ACTIVE] => Y [SORT] => 500 [CODE] => HEIGHT_TOP_SECTION [DEFAULT_VALUE] => [PROPERTY_TYPE] => S [ROW_COUNT] => 1 [COL_COUNT] => 30 [LIST_TYPE] => L [MULTIPLE] => N [XML_ID] => [FILE_TYPE] => [MULTIPLE_CNT] => 5 [LINK_IBLOCK_ID] => 0 [WITH_DESCRIPTION] => N [SEARCHABLE] => N [FILTRABLE] => N [IS_REQUIRED] => N [VERSION] => 1 [USER_TYPE] => [USER_TYPE_SETTINGS] => Array ( ) [HINT] => [~NAME] => Высота верхней секции, мм [~DEFAULT_VALUE] => [VALUE_ENUM] => [VALUE_XML_ID] => [VALUE_SORT] => [VALUE] => [PROPERTY_VALUE_ID] => [DESCRIPTION] => [~DESCRIPTION] => [~VALUE] => ) [SIP] => Array ( [ID] => 156 [IBLOCK_ID] => 2 [NAME] => Возможность подвеса СИП [ACTIVE] => Y [SORT] => 500 [CODE] => SIP [DEFAULT_VALUE] => [PROPERTY_TYPE] => S [ROW_COUNT] => 1 [COL_COUNT] => 30 [LIST_TYPE] => L [MULTIPLE] => N [XML_ID] => [FILE_TYPE] => [MULTIPLE_CNT] => 5 [LINK_IBLOCK_ID] => 0 [WITH_DESCRIPTION] => N [SEARCHABLE] => N [FILTRABLE] => N [IS_REQUIRED] => N [VERSION] => 1 [USER_TYPE] => [USER_TYPE_SETTINGS] => Array ( ) [HINT] => [~NAME] => Возможность подвеса СИП [~DEFAULT_VALUE] => [VALUE_ENUM] => [VALUE_XML_ID] => [VALUE_SORT] => [VALUE] => [PROPERTY_VALUE_ID] => [DESCRIPTION] => [~DESCRIPTION] => [~VALUE] => ) [COUNT_GRANY] => Array ( [ID] => 157 [IBLOCK_ID] => 2 [NAME] => Количество граней [ACTIVE] => Y [SORT] => 500 [CODE] => COUNT_GRANY [DEFAULT_VALUE] => [PROPERTY_TYPE] => S [ROW_COUNT] => 1 [COL_COUNT] => 30 [LIST_TYPE] => L [MULTIPLE] => N [XML_ID] => [FILE_TYPE] => [MULTIPLE_CNT] => 5 [LINK_IBLOCK_ID] => 0 [WITH_DESCRIPTION] => N [SEARCHABLE] => N [FILTRABLE] => N [IS_REQUIRED] => N [VERSION] => 1 [USER_TYPE] => [USER_TYPE_SETTINGS] => Array ( ) [HINT] => [~NAME] => Количество граней [~DEFAULT_VALUE] => [VALUE_ENUM] => [VALUE_XML_ID] => [VALUE_SORT] => [VALUE] => [PROPERTY_VALUE_ID] => [DESCRIPTION] => [~DESCRIPTION] => [~VALUE] => ) [HEIGHT_BOTTOM_SECTION] => Array ( [ID] => 158 [IBLOCK_ID] => 2 [NAME] => Высота нижней секции, мм [ACTIVE] => Y [SORT] => 500 [CODE] => HEIGHT_BOTTOM_SECTION [DEFAULT_VALUE] => [PROPERTY_TYPE] => S [ROW_COUNT] => 1 [COL_COUNT] => 30 [LIST_TYPE] => L [MULTIPLE] => N [XML_ID] => [FILE_TYPE] => [MULTIPLE_CNT] => 5 [LINK_IBLOCK_ID] => 0 [WITH_DESCRIPTION] => N [SEARCHABLE] => N [FILTRABLE] => N [IS_REQUIRED] => N [VERSION] => 1 [USER_TYPE] => [USER_TYPE_SETTINGS] => Array ( ) [HINT] => [~NAME] => Высота нижней секции, мм [~DEFAULT_VALUE] => [VALUE_ENUM] => [VALUE_XML_ID] => [VALUE_SORT] => [VALUE] => [PROPERTY_VALUE_ID] => [DESCRIPTION] => [~DESCRIPTION] => [~VALUE] => ) [STEEL_THICKNESS] => Array ( [ID] => 160 [IBLOCK_ID] => 2 [NAME] => Толщина стали [ACTIVE] => Y [SORT] => 500 [CODE] => STEEL_THICKNESS [DEFAULT_VALUE] => [PROPERTY_TYPE] => S [ROW_COUNT] => 1 [COL_COUNT] => 30 [LIST_TYPE] => L [MULTIPLE] => N [XML_ID] => [FILE_TYPE] => [MULTIPLE_CNT] => 5 [LINK_IBLOCK_ID] => 0 [WITH_DESCRIPTION] => N [SEARCHABLE] => N [FILTRABLE] => N [IS_REQUIRED] => N [VERSION] => 1 [USER_TYPE] => [USER_TYPE_SETTINGS] => Array ( ) [HINT] => [~NAME] => Толщина стали [~DEFAULT_VALUE] => [VALUE_ENUM] => [VALUE_XML_ID] => [VALUE_SORT] => [VALUE] => [PROPERTY_VALUE_ID] => [DESCRIPTION] => [~DESCRIPTION] => [~VALUE] => ) [SIZE_OPOR_FLANEC] => Array ( [ID] => 161 [IBLOCK_ID] => 2 [NAME] => Размеры опорного фланца [ACTIVE] => Y [SORT] => 500 [CODE] => SIZE_OPOR_FLANEC [DEFAULT_VALUE] => [PROPERTY_TYPE] => S [ROW_COUNT] => 1 [COL_COUNT] => 30 [LIST_TYPE] => L [MULTIPLE] => N [XML_ID] => [FILE_TYPE] => [MULTIPLE_CNT] => 5 [LINK_IBLOCK_ID] => 0 [WITH_DESCRIPTION] => N [SEARCHABLE] => N [FILTRABLE] => N [IS_REQUIRED] => N [VERSION] => 1 [USER_TYPE] => [USER_TYPE_SETTINGS] => Array ( ) [HINT] => [~NAME] => Размеры опорного фланца [~DEFAULT_VALUE] => [VALUE_ENUM] => [VALUE_XML_ID] => [VALUE_SORT] => [VALUE] => [PROPERTY_VALUE_ID] => [DESCRIPTION] => [~DESCRIPTION] => [~VALUE] => ) [POKRASKA] => Array ( [ID] => 162 [IBLOCK_ID] => 2 [NAME] => Лакокрасочное покрытие [ACTIVE] => Y [SORT] => 500 [CODE] => POKRASKA [DEFAULT_VALUE] => [PROPERTY_TYPE] => S [ROW_COUNT] => 1 [COL_COUNT] => 30 [LIST_TYPE] => L [MULTIPLE] => N [XML_ID] => [FILE_TYPE] => [MULTIPLE_CNT] => 5 [LINK_IBLOCK_ID] => 0 [WITH_DESCRIPTION] => N [SEARCHABLE] => N [FILTRABLE] => N [IS_REQUIRED] => N [VERSION] => 1 [USER_TYPE] => [USER_TYPE_SETTINGS] => Array ( ) [HINT] => [~NAME] => Лакокрасочное покрытие [~DEFAULT_VALUE] => [VALUE_ENUM] => [VALUE_XML_ID] => [VALUE_SORT] => [VALUE] => [PROPERTY_VALUE_ID] => [DESCRIPTION] => [~DESCRIPTION] => [~VALUE] => ) [VES] => Array ( [ID] => 163 [IBLOCK_ID] => 2 [NAME] => Вес [ACTIVE] => Y [SORT] => 500 [CODE] => VES [DEFAULT_VALUE] => [PROPERTY_TYPE] => S [ROW_COUNT] => 1 [COL_COUNT] => 30 [LIST_TYPE] => L [MULTIPLE] => N [XML_ID] => [FILE_TYPE] => [MULTIPLE_CNT] => 5 [LINK_IBLOCK_ID] => 0 [WITH_DESCRIPTION] => N [SEARCHABLE] => N [FILTRABLE] => N [IS_REQUIRED] => N [VERSION] => 1 [USER_TYPE] => [USER_TYPE_SETTINGS] => Array ( ) [HINT] => [~NAME] => Вес [~DEFAULT_VALUE] => [VALUE_ENUM] => [VALUE_XML_ID] => [VALUE_SORT] => [VALUE] => [PROPERTY_VALUE_ID] => [DESCRIPTION] => [~DESCRIPTION] => [~VALUE] => ) [INSTALL_LYUCHKA] => Array ( [ID] => 164 [IBLOCK_ID] => 2 [NAME] => Возможность установки лючка [ACTIVE] => Y [SORT] => 500 [CODE] => INSTALL_LYUCHKA [DEFAULT_VALUE] => [PROPERTY_TYPE] => S [ROW_COUNT] => 1 [COL_COUNT] => 30 [LIST_TYPE] => L [MULTIPLE] => N [XML_ID] => [FILE_TYPE] => [MULTIPLE_CNT] => 5 [LINK_IBLOCK_ID] => 0 [WITH_DESCRIPTION] => N [SEARCHABLE] => N [FILTRABLE] => N [IS_REQUIRED] => N [VERSION] => 1 [USER_TYPE] => [USER_TYPE_SETTINGS] => Array ( ) [HINT] => [~NAME] => Возможность установки лючка [~DEFAULT_VALUE] => [VALUE_ENUM] => [VALUE_XML_ID] => [VALUE_SORT] => [VALUE] => [PROPERTY_VALUE_ID] => [DESCRIPTION] => [~DESCRIPTION] => [~VALUE] => ) [DIAMETER_FLANCA] => Array ( [ID] => 165 [IBLOCK_ID] => 2 [NAME] => Диаметр фланца, мм [ACTIVE] => Y [SORT] => 500 [CODE] => DIAMETER_FLANCA [DEFAULT_VALUE] => [PROPERTY_TYPE] => S [ROW_COUNT] => 1 [COL_COUNT] => 30 [LIST_TYPE] => L [MULTIPLE] => N [XML_ID] => [FILE_TYPE] => [MULTIPLE_CNT] => 5 [LINK_IBLOCK_ID] => 0 [WITH_DESCRIPTION] => N [SEARCHABLE] => N [FILTRABLE] => N [IS_REQUIRED] => N [VERSION] => 1 [USER_TYPE] => [USER_TYPE_SETTINGS] => Array ( ) [HINT] => [~NAME] => Диаметр фланца, мм [~DEFAULT_VALUE] => [VALUE_ENUM] => [VALUE_XML_ID] => [VALUE_SORT] => [VALUE] => [PROPERTY_VALUE_ID] => [DESCRIPTION] => [~DESCRIPTION] => [~VALUE] => ) [COUNT_LIGHT] => Array ( [ID] => 166 [IBLOCK_ID] => 2 [NAME] => Количество осветительных приборов, шт [ACTIVE] => Y [SORT] => 500 [CODE] => COUNT_LIGHT [DEFAULT_VALUE] => [PROPERTY_TYPE] => S [ROW_COUNT] => 1 [COL_COUNT] => 30 [LIST_TYPE] => L [MULTIPLE] => N [XML_ID] => [FILE_TYPE] => [MULTIPLE_CNT] => 5 [LINK_IBLOCK_ID] => 0 [WITH_DESCRIPTION] => N [SEARCHABLE] => N [FILTRABLE] => N [IS_REQUIRED] => N [VERSION] => 1 [USER_TYPE] => [USER_TYPE_SETTINGS] => Array ( ) [HINT] => [~NAME] => Количество осветительных приборов, шт [~DEFAULT_VALUE] => [VALUE_ENUM] => [VALUE_XML_ID] => [VALUE_SORT] => [VALUE] => [PROPERTY_VALUE_ID] => [DESCRIPTION] => [~DESCRIPTION] => [~VALUE] => ) [WEIGHT_TO_KRON] => Array ( [ID] => 167 [IBLOCK_ID] => 2 [NAME] => Высота до кронштейна, мм [ACTIVE] => Y [SORT] => 500 [CODE] => WEIGHT_TO_KRON [DEFAULT_VALUE] => [PROPERTY_TYPE] => S [ROW_COUNT] => 1 [COL_COUNT] => 30 [LIST_TYPE] => L [MULTIPLE] => N [XML_ID] => [FILE_TYPE] => [MULTIPLE_CNT] => 5 [LINK_IBLOCK_ID] => 0 [WITH_DESCRIPTION] => N [SEARCHABLE] => N [FILTRABLE] => N [IS_REQUIRED] => N [VERSION] => 1 [USER_TYPE] => [USER_TYPE_SETTINGS] => Array ( ) [HINT] => [~NAME] => Высота до кронштейна, мм [~DEFAULT_VALUE] => [VALUE_ENUM] => [VALUE_XML_ID] => [VALUE_SORT] => [VALUE] => [PROPERTY_VALUE_ID] => [DESCRIPTION] => [~DESCRIPTION] => [~VALUE] => ) [SIZE_FLANEC] => Array ( [ID] => 169 [IBLOCK_ID] => 2 [NAME] => Размер фланца [ACTIVE] => Y [SORT] => 500 [CODE] => SIZE_FLANEC [DEFAULT_VALUE] => [PROPERTY_TYPE] => S [ROW_COUNT] => 1 [COL_COUNT] => 30 [LIST_TYPE] => L [MULTIPLE] => N [XML_ID] => [FILE_TYPE] => [MULTIPLE_CNT] => 5 [LINK_IBLOCK_ID] => 0 [WITH_DESCRIPTION] => N [SEARCHABLE] => N [FILTRABLE] => N [IS_REQUIRED] => N [VERSION] => 1 [USER_TYPE] => [USER_TYPE_SETTINGS] => Array ( ) [HINT] => [~NAME] => Размер фланца [~DEFAULT_VALUE] => [VALUE_ENUM] => [VALUE_XML_ID] => [VALUE_SORT] => [VALUE] => [PROPERTY_VALUE_ID] => [DESCRIPTION] => [~DESCRIPTION] => [~VALUE] => ) [WEIGHT_MIDDLE_SECTION] => Array ( [ID] => 170 [IBLOCK_ID] => 2 [NAME] => Высота промежуточной секции, мм [ACTIVE] => Y [SORT] => 500 [CODE] => WEIGHT_MIDDLE_SECTION [DEFAULT_VALUE] => [PROPERTY_TYPE] => S [ROW_COUNT] => 1 [COL_COUNT] => 30 [LIST_TYPE] => L [MULTIPLE] => N [XML_ID] => [FILE_TYPE] => [MULTIPLE_CNT] => 5 [LINK_IBLOCK_ID] => 0 [WITH_DESCRIPTION] => N [SEARCHABLE] => N [FILTRABLE] => N [IS_REQUIRED] => N [VERSION] => 1 [USER_TYPE] => [USER_TYPE_SETTINGS] => Array ( ) [HINT] => [~NAME] => Высота промежуточной секции, мм [~DEFAULT_VALUE] => [VALUE_ENUM] => [VALUE_XML_ID] => [VALUE_SORT] => [VALUE] => [PROPERTY_VALUE_ID] => [DESCRIPTION] => [~DESCRIPTION] => [~VALUE] => ) [DEFEND_POKRYTIE] => Array ( [ID] => 171 [IBLOCK_ID] => 2 [NAME] => Защитное покрытие [ACTIVE] => Y [SORT] => 500 [CODE] => DEFEND_POKRYTIE [DEFAULT_VALUE] => [PROPERTY_TYPE] => S [ROW_COUNT] => 1 [COL_COUNT] => 30 [LIST_TYPE] => L [MULTIPLE] => N [XML_ID] => [FILE_TYPE] => [MULTIPLE_CNT] => 5 [LINK_IBLOCK_ID] => 0 [WITH_DESCRIPTION] => N [SEARCHABLE] => N [FILTRABLE] => N [IS_REQUIRED] => N [VERSION] => 1 [USER_TYPE] => [USER_TYPE_SETTINGS] => Array ( ) [HINT] => [~NAME] => Защитное покрытие [~DEFAULT_VALUE] => [VALUE_ENUM] => [VALUE_XML_ID] => [VALUE_SORT] => [VALUE] => [PROPERTY_VALUE_ID] => [DESCRIPTION] => [~DESCRIPTION] => [~VALUE] => ) [WIND_REGION] => Array ( [ID] => 172 [IBLOCK_ID] => 2 [NAME] => Ветровой район [ACTIVE] => Y [SORT] => 500 [CODE] => WIND_REGION [DEFAULT_VALUE] => [PROPERTY_TYPE] => S [ROW_COUNT] => 1 [COL_COUNT] => 30 [LIST_TYPE] => L [MULTIPLE] => N [XML_ID] => [FILE_TYPE] => [MULTIPLE_CNT] => 5 [LINK_IBLOCK_ID] => 0 [WITH_DESCRIPTION] => N [SEARCHABLE] => N [FILTRABLE] => N [IS_REQUIRED] => N [VERSION] => 1 [USER_TYPE] => [USER_TYPE_SETTINGS] => Array ( ) [HINT] => [~NAME] => Ветровой район [~DEFAULT_VALUE] => [VALUE_ENUM] => [VALUE_XML_ID] => [VALUE_SORT] => [VALUE] => [PROPERTY_VALUE_ID] => [DESCRIPTION] => [~DESCRIPTION] => [~VALUE] => ) [DIAMETER_OPOR_FLANCA] => Array ( [ID] => 173 [IBLOCK_ID] => 2 [NAME] => Диаметр опорного фланца, мм [ACTIVE] => Y [SORT] => 500 [CODE] => DIAMETER_OPOR_FLANCA [DEFAULT_VALUE] => [PROPERTY_TYPE] => S [ROW_COUNT] => 1 [COL_COUNT] => 30 [LIST_TYPE] => L [MULTIPLE] => N [XML_ID] => [FILE_TYPE] => [MULTIPLE_CNT] => 5 [LINK_IBLOCK_ID] => 0 [WITH_DESCRIPTION] => N [SEARCHABLE] => N [FILTRABLE] => N [IS_REQUIRED] => N [VERSION] => 1 [USER_TYPE] => [USER_TYPE_SETTINGS] => Array ( ) [HINT] => [~NAME] => Диаметр опорного фланца, мм [~DEFAULT_VALUE] => [VALUE_ENUM] => [VALUE_XML_ID] => [VALUE_SORT] => [VALUE] => [PROPERTY_VALUE_ID] => [DESCRIPTION] => [~DESCRIPTION] => [~VALUE] => ) [CENTER_DIST] => Array ( [ID] => 174 [IBLOCK_ID] => 2 [NAME] => Межцентровое расстояние, мм [ACTIVE] => Y [SORT] => 500 [CODE] => CENTER_DIST [DEFAULT_VALUE] => [PROPERTY_TYPE] => S [ROW_COUNT] => 1 [COL_COUNT] => 30 [LIST_TYPE] => L [MULTIPLE] => N [XML_ID] => [FILE_TYPE] => [MULTIPLE_CNT] => 5 [LINK_IBLOCK_ID] => 0 [WITH_DESCRIPTION] => N [SEARCHABLE] => N [FILTRABLE] => N [IS_REQUIRED] => N [VERSION] => 1 [USER_TYPE] => [USER_TYPE_SETTINGS] => Array ( ) [HINT] => [~NAME] => Межцентровое расстояние, мм [~DEFAULT_VALUE] => [VALUE_ENUM] => [VALUE_XML_ID] => [VALUE_SORT] => [VALUE] => [PROPERTY_VALUE_ID] => [DESCRIPTION] => [~DESCRIPTION] => [~VALUE] => ) [FLANEC_THICKNESS] => Array ( [ID] => 175 [IBLOCK_ID] => 2 [NAME] => Толщина фланца, мм [ACTIVE] => Y [SORT] => 500 [CODE] => FLANEC_THICKNESS [DEFAULT_VALUE] => [PROPERTY_TYPE] => S [ROW_COUNT] => 1 [COL_COUNT] => 30 [LIST_TYPE] => L [MULTIPLE] => N [XML_ID] => [FILE_TYPE] => [MULTIPLE_CNT] => 5 [LINK_IBLOCK_ID] => 0 [WITH_DESCRIPTION] => N [SEARCHABLE] => N [FILTRABLE] => N [IS_REQUIRED] => N [VERSION] => 1 [USER_TYPE] => [USER_TYPE_SETTINGS] => Array ( ) [HINT] => [~NAME] => Толщина фланца, мм [~DEFAULT_VALUE] => [VALUE_ENUM] => [VALUE_XML_ID] => [VALUE_SORT] => [VALUE] => [PROPERTY_VALUE_ID] => [DESCRIPTION] => [~DESCRIPTION] => [~VALUE] => ) [COUNT_HOLE] => Array ( [ID] => 176 [IBLOCK_ID] => 2 [NAME] => Количество отверстий крепления, шт [ACTIVE] => Y [SORT] => 500 [CODE] => COUNT_HOLE [DEFAULT_VALUE] => [PROPERTY_TYPE] => S [ROW_COUNT] => 1 [COL_COUNT] => 30 [LIST_TYPE] => L [MULTIPLE] => N [XML_ID] => [FILE_TYPE] => [MULTIPLE_CNT] => 5 [LINK_IBLOCK_ID] => 0 [WITH_DESCRIPTION] => N [SEARCHABLE] => N [FILTRABLE] => N [IS_REQUIRED] => N [VERSION] => 1 [USER_TYPE] => [USER_TYPE_SETTINGS] => Array ( ) [HINT] => [~NAME] => Количество отверстий крепления, шт [~DEFAULT_VALUE] => [VALUE_ENUM] => [VALUE_XML_ID] => [VALUE_SORT] => [VALUE] => [PROPERTY_VALUE_ID] => [DESCRIPTION] => [~DESCRIPTION] => [~VALUE] => ) [INSPECTION_WINDOW] => Array ( [ID] => 179 [IBLOCK_ID] => 2 [NAME] => Ревизионное окно, мм [ACTIVE] => Y [SORT] => 500 [CODE] => INSPECTION_WINDOW [DEFAULT_VALUE] => [PROPERTY_TYPE] => S [ROW_COUNT] => 1 [COL_COUNT] => 30 [LIST_TYPE] => L [MULTIPLE] => N [XML_ID] => [FILE_TYPE] => [MULTIPLE_CNT] => 5 [LINK_IBLOCK_ID] => 0 [WITH_DESCRIPTION] => N [SEARCHABLE] => N [FILTRABLE] => N [IS_REQUIRED] => N [VERSION] => 1 [USER_TYPE] => [USER_TYPE_SETTINGS] => Array ( ) [HINT] => [~NAME] => Ревизионное окно, мм [~DEFAULT_VALUE] => [VALUE_ENUM] => [VALUE_XML_ID] => [VALUE_SORT] => [VALUE] => [PROPERTY_VALUE_ID] => [DESCRIPTION] => [~DESCRIPTION] => [~VALUE] => ) [THREE_MODEL] => Array ( [ID] => 182 [IBLOCK_ID] => 2 [NAME] => 3D-модель [ACTIVE] => Y [SORT] => 500 [CODE] => THREE_MODEL [DEFAULT_VALUE] => [PROPERTY_TYPE] => F [ROW_COUNT] => 1 [COL_COUNT] => 30 [LIST_TYPE] => L [MULTIPLE] => N [XML_ID] => [FILE_TYPE] => [MULTIPLE_CNT] => 5 [LINK_IBLOCK_ID] => 0 [WITH_DESCRIPTION] => N [SEARCHABLE] => N [FILTRABLE] => N [IS_REQUIRED] => N [VERSION] => 1 [USER_TYPE] => [USER_TYPE_SETTINGS] => Array ( ) [HINT] => [~NAME] => 3D-модель [~DEFAULT_VALUE] => [VALUE_ENUM] => [VALUE_XML_ID] => [VALUE_SORT] => [VALUE] => [PROPERTY_VALUE_ID] => [DESCRIPTION] => [~DESCRIPTION] => [~VALUE] => ) [FAQ] => Array ( [ID] => 183 [IBLOCK_ID] => 2 [NAME] => FAQ [ACTIVE] => Y [SORT] => 500 [CODE] => FAQ [DEFAULT_VALUE] => Array ( [TYPE] => TEXT [TEXT] => ) [PROPERTY_TYPE] => S [ROW_COUNT] => 1 [COL_COUNT] => 30 [LIST_TYPE] => L [MULTIPLE] => N [XML_ID] => [FILE_TYPE] => [MULTIPLE_CNT] => 5 [LINK_IBLOCK_ID] => 0 [WITH_DESCRIPTION] => N [SEARCHABLE] => N [FILTRABLE] => N [IS_REQUIRED] => N [VERSION] => 1 [USER_TYPE] => HTML [USER_TYPE_SETTINGS] => Array ( [height] => 200 ) [HINT] => [~NAME] => FAQ [~DEFAULT_VALUE] => Array ( [TYPE] => TEXT [TEXT] => ) [VALUE_ENUM] => [VALUE_XML_ID] => [VALUE_SORT] => [VALUE] => [PROPERTY_VALUE_ID] => [DESCRIPTION] => [~DESCRIPTION] => [~VALUE] => ) ) [DISPLAY_PROPERTIES] => Array ( [ITEM_PRICE] => Array ( [ID] => 22 [IBLOCK_ID] => 2 [NAME] => Цена [ACTIVE] => Y [SORT] => 3 [CODE] => ITEM_PRICE [DEFAULT_VALUE] => [PROPERTY_TYPE] => L [ROW_COUNT] => 1 [COL_COUNT] => 30 [LIST_TYPE] => L [MULTIPLE] => N [XML_ID] => 22 [FILE_TYPE] => [MULTIPLE_CNT] => 5 [LINK_IBLOCK_ID] => 0 [WITH_DESCRIPTION] => N [SEARCHABLE] => N [FILTRABLE] => N [IS_REQUIRED] => Y [VERSION] => 1 [USER_TYPE] => [USER_TYPE_SETTINGS] => Array ( ) [HINT] => [~NAME] => Цена [~DEFAULT_VALUE] => [VALUE_ENUM] => По запросу [VALUE_XML_ID] => on-request [VALUE_SORT] => 1 [VALUE] => По запросу [PROPERTY_VALUE_ID] => 6825514 [VALUE_ENUM_ID] => 9 [DESCRIPTION] => [~VALUE] => По запросу [~DESCRIPTION] => [DISPLAY_VALUE] => По запросу ) [ITEM_CHARACTERISTICS] => Array ( [ID] => 28 [IBLOCK_ID] => 2 [NAME] => Характеристики [ACTIVE] => Y [SORT] => 6 [CODE] => ITEM_CHARACTERISTICS [DEFAULT_VALUE] => [PROPERTY_TYPE] => S [ROW_COUNT] => 1 [COL_COUNT] => 20 [LIST_TYPE] => L [MULTIPLE] => Y [XML_ID] => 28 [FILE_TYPE] => [MULTIPLE_CNT] => 1 [LINK_IBLOCK_ID] => 0 [WITH_DESCRIPTION] => Y [SEARCHABLE] => N [FILTRABLE] => N [IS_REQUIRED] => N [VERSION] => 1 [USER_TYPE] => [USER_TYPE_SETTINGS] => Array ( ) [HINT] => [~NAME] => Характеристики [~DEFAULT_VALUE] => [VALUE_ENUM] => [VALUE_XML_ID] => [VALUE_SORT] => [VALUE] => Array ( [0] => фланцевая [1] => граненая [2] => 25500 [3] => 17200 [4] => 720 [5] => 240 [6] => одностоечная свободностоящая [7] => горячее цинкование [8] => Порошковое / полимерное окрашивание [9] => 30 лет [10] => промежуточная ) [PROPERTY_VALUE_ID] => Array ( [0] => 6823935 [1] => 6823936 [2] => 6823937 [3] => 6823938 [4] => 6823939 [5] => 6823940 [6] => 6823941 [7] => 6823942 [8] => 6823943 [9] => 6823944 [10] => 6825515 ) [DESCRIPTION] => Array ( [0] => Способ установки [1] => Способ производства [2] => Высота, мм [3] => Высота до нижней траверсы, мм [4] => Диаметр нижний, мм [5] => Диаметр верхний, мм [6] => Конструкция [7] => Защитное покрытие [8] => Лакокрасочное покрытие [9] => Срок службы [10] => Назначение ) [~VALUE] => Array ( [0] => фланцевая [1] => граненая [2] => 25500 [3] => 17200 [4] => 720 [5] => 240 [6] => одностоечная свободностоящая [7] => горячее цинкование [8] => Порошковое / полимерное окрашивание [9] => 30 лет [10] => промежуточная ) [~DESCRIPTION] => Array ( [0] => Способ установки [1] => Способ производства [2] => Высота, мм [3] => Высота до нижней траверсы, мм [4] => Диаметр нижний, мм [5] => Диаметр верхний, мм [6] => Конструкция [7] => Защитное покрытие [8] => Лакокрасочное покрытие [9] => Срок службы [10] => Назначение ) [DISPLAY_VALUE] => Array ( [0] => фланцевая [1] => граненая [2] => 25500 [3] => 17200 [4] => 720 [5] => 240 [6] => одностоечная свободностоящая [7] => горячее цинкование [8] => Порошковое / полимерное окрашивание [9] => 30 лет [10] => промежуточная ) ) ) [PRODUCT_PROPERTIES] => Array ( ) [PRODUCT_PROPERTIES_FILL] => Array ( ) [OFFERS] => Array ( ) [OFFER_ID_SELECTED] => 0 [CHECK_QUANTITY] => [ITEM_PRICE_MODE] => [ITEM_PRICES] => Array ( ) [ITEM_QUANTITY_RANGES] => Array ( ) [ITEM_MEASURE_RATIOS] => Array ( [2892] => Array ( [ID] => 2892 [RATIO] => 1 [IS_DEFAULT] => Y [PRODUCT_ID] => 15370 ) ) [ITEM_MEASURE] => Array ( [ID] => 5 [TITLE] => шт [~TITLE] => шт ) [ITEM_MEASURE_RATIO_SELECTED] => 2892 [ITEM_QUANTITY_RANGE_SELECTED] => [ITEM_PRICE_SELECTED] => [EDIT_LINK] => [DELETE_LINK] => [SECTION] => Array ( [PATH] => Array ( ) ) [CAN_BUY] => )
В наличии
Способ установки: прямостоечная
Способ производства: граненая
Высота, мм: 28500
Цена по запросу
Array
(
    [ID] => 15367
    [~ID] => 15367
    [IBLOCK_ID] => 2
    [~IBLOCK_ID] => 2
    [CODE] => pm220-1
    [~CODE] => pm220-1
    [XML_ID] => 15367
    [~XML_ID] => 15367
    [NAME] => Многогранная стойка для опоры ПМ220-1
    [~NAME] => Многогранная стойка для опоры ПМ220-1
    [ACTIVE] => Y
    [~ACTIVE] => Y
    [DATE_ACTIVE_FROM] => 
    [~DATE_ACTIVE_FROM] => 
    [DATE_ACTIVE_TO] => 
    [~DATE_ACTIVE_TO] => 
    [SORT] => 0
    [~SORT] => 0
    [PREVIEW_TEXT] => 
    [~PREVIEW_TEXT] => 
    [PREVIEW_TEXT_TYPE] => text
    [~PREVIEW_TEXT_TYPE] => text
    [DETAIL_TEXT] => 

Многогранные стойки, производимые по типовому проекту 26.0033, представляют собой ключевые несущие элементы для сборки одностоечных свободностоящих опор воздушных линий электропередачи напряжением 220 кВ. Эти унифицированные стойки предназначены для комплектации всего спектра опор: промежуточных, анкерных, угловых, концевых и специальных. Они имеют форму полых усеченных пирамид с сечением в виде правильного многогранника, где нижний диаметр составляет 730 мм, а верхний — 446 мм. Для изготовления используется низколегированная сталь, обеспечивающая работу при температурах до -65 °C. Все элементы защищены методом горячего цинкования. Конструкция рассчитана на подвес проводов марок АС300/39 и АС400/51, а также грозозащитного троса ТК 11, и предназначена для эксплуатации в ветровых и гололедных районах I-V.

Конструкция опоры представляет собой сборную систему из конических граненых секций стоек и комплекта траверс. Соединение секций между собой и с траверсами осуществляется на высокопрочных болтовых соединениях фланцевого или телескопического типа, что обеспечивает жесткость и точность сборки. Монтаж опоры на месте производится путем установки собранной конструкции на заранее подготовленный фундамент с последующим фланцевым креплением. Оптимизированная система поставки, при которой секции транспортируются вложенными друг в друга, значительно снижает логистические затраты и упрощает доставку в труднодоступные районы.


[~DETAIL_TEXT] =>

Многогранные стойки, производимые по типовому проекту 26.0033, представляют собой ключевые несущие элементы для сборки одностоечных свободностоящих опор воздушных линий электропередачи напряжением 220 кВ. Эти унифицированные стойки предназначены для комплектации всего спектра опор: промежуточных, анкерных, угловых, концевых и специальных. Они имеют форму полых усеченных пирамид с сечением в виде правильного многогранника, где нижний диаметр составляет 730 мм, а верхний — 446 мм. Для изготовления используется низколегированная сталь, обеспечивающая работу при температурах до -65 °C. Все элементы защищены методом горячего цинкования. Конструкция рассчитана на подвес проводов марок АС300/39 и АС400/51, а также грозозащитного троса ТК 11, и предназначена для эксплуатации в ветровых и гололедных районах I-V.

Конструкция опоры представляет собой сборную систему из конических граненых секций стоек и комплекта траверс. Соединение секций между собой и с траверсами осуществляется на высокопрочных болтовых соединениях фланцевого или телескопического типа, что обеспечивает жесткость и точность сборки. Монтаж опоры на месте производится путем установки собранной конструкции на заранее подготовленный фундамент с последующим фланцевым креплением. Оптимизированная система поставки, при которой секции транспортируются вложенными друг в друга, значительно снижает логистические затраты и упрощает доставку в труднодоступные районы.


[DETAIL_TEXT_TYPE] => html [~DETAIL_TEXT_TYPE] => html [DATE_CREATE] => 07.11.2023 15:10:02 [~DATE_CREATE] => 07.11.2023 15:10:02 [CREATED_BY] => 1 [~CREATED_BY] => 1 [TAGS] => [~TAGS] => [TIMESTAMP_X] => 15.12.2025 11:56:34 [~TIMESTAMP_X] => 15.12.2025 11:56:34 [MODIFIED_BY] => 1 [~MODIFIED_BY] => 1 [IBLOCK_SECTION_ID] => 2756 [~IBLOCK_SECTION_ID] => 2959 [DETAIL_PAGE_URL] => /product/pm220-1/ [~DETAIL_PAGE_URL] => /product/pm220-1/ [DETAIL_PICTURE] => [~DETAIL_PICTURE] => [PREVIEW_PICTURE] => Array ( [ID] => 35281 [TIMESTAMP_X] => 15.12.2025 11:56:34 [MODULE_ID] => iblock [HEIGHT] => 1000 [WIDTH] => 1000 [FILE_SIZE] => 135075 [CONTENT_TYPE] => image/jpeg [SUBDIR] => iblock/085/isdpedhtcgoe5gx5p7ejs0fe3n4hyy8d [FILE_NAME] => catalog_file_2088_l.jpg [ORIGINAL_NAME] => catalog-file-2088-l.jpg [DESCRIPTION] => [HANDLER_ID] => [EXTERNAL_ID] => 63233fd611529d1e62142fc3d1125cf1 [VERSION_ORIGINAL_ID] => [META] => [SRC] => /upload/dev2fun.imagecompress/webp/iblock/085/isdpedhtcgoe5gx5p7ejs0fe3n4hyy8d/catalog_file_2088_l.webp [UNSAFE_SRC] => /upload/dev2fun.imagecompress/webp/iblock/085/isdpedhtcgoe5gx5p7ejs0fe3n4hyy8d/catalog_file_2088_l.webp [SAFE_SRC] => /upload/dev2fun.imagecompress/webp/iblock/085/isdpedhtcgoe5gx5p7ejs0fe3n4hyy8d/catalog_file_2088_l.webp [ALT] => Многогранная стойка для опоры ПМ220-1 [TITLE] => Многогранная стойка для опоры ПМ220-1 ) [~PREVIEW_PICTURE] => 35281 [LANG_DIR] => / [~LANG_DIR] => / [EXTERNAL_ID] => 15367 [~EXTERNAL_ID] => 15367 [IBLOCK_TYPE_ID] => catalog [~IBLOCK_TYPE_ID] => catalog [IBLOCK_CODE] => metalstructures [~IBLOCK_CODE] => metalstructures [IBLOCK_EXTERNAL_ID] => clothes [~IBLOCK_EXTERNAL_ID] => clothes [LID] => s1 [~LID] => s1 [IPROPERTY_VALUES] => Array ( [ELEMENT_DETAIL_PICTURE_FILE_NAME] => [ELEMENT_PREVIEW_PICTURE_FILE_NAME] => [SECTION_DETAIL_PICTURE_FILE_NAME] => [SECTION_PICTURE_FILE_NAME] => [SECTION_PAGE_TITLE] => Многогранная стойка для опоры ПМ220-1 [ELEMENT_PAGE_TITLE] => Многогранная стойка для опоры ПМ220-1 [SECTION_META_TITLE] => Многогранные стойки опор ВЛ 220 кВ по шифру 26.0033 купить в {{rp}} на сайте производителя НПО Легион [SECTION_META_DESCRIPTION] => Производство многогранных стоек опор ВЛ 220 кВ по шифру 26.0033. Купить напрямую у производителя в {{rp}}. Собственное производство. Наличие товара на складе. Звоните ☎ {{subdomain_tel}} [SECTION_META_KEYWORDS] => Многоранные опоры ЛЭП производство продажа купить многогранных стоек опор ВЛ 220 кВ по шифру 26.0033 для линий электропередач [ELEMENT_META_TITLE] => Многогранная стойка для опоры ПМ220-1 для высоковольтных линий 220 кВ купить в {{rp}} на сайте производителя НПО Легион [ELEMENT_META_DESCRIPTION] => Производство стальных многогранных стоек для опор ПМ220-1 для высоковольтных линий 220 кВ по шифру 26.0033 в {{rp}}. Заказать многогранные стойки для опор ВЛ 220 кВ у производителя НПО Легион. Наличие товара на складе. Звоните ☎ {{subdomain_tel}} [ELEMENT_META_KEYWORDS] => Стальные многогранные стойки для опор ПМ220-1 ЛЭП производство продажа купить многогранные ВЛ 220кВ для линий электропередач шифру 26.0033 ) [PRODUCT] => Array ( [TYPE] => 1 [AVAILABLE] => Y [BUNDLE] => N [QUANTITY] => 10 [QUANTITY_TRACE] => N [CAN_BUY_ZERO] => Y [MEASURE] => 5 [SUBSCRIBE] => Y [VAT_ID] => 0 [VAT_RATE] => 0 [VAT_INCLUDED] => N [WEIGHT] => 0 [WIDTH] => 0 [LENGTH] => 0 [HEIGHT] => 0 [PAYMENT_TYPE] => S [RECUR_SCHEME_TYPE] => D [RECUR_SCHEME_LENGTH] => 0 [TRIAL_PRICE_ID] => 0 [USE_OFFERS] => ) [~CATALOG_TYPE] => 1 [CATALOG_TYPE] => 1 [~CATALOG_QUANTITY] => 10 [CATALOG_QUANTITY] => 10 [~CATALOG_QUANTITY_TRACE] => N [CATALOG_QUANTITY_TRACE] => N [~CATALOG_CAN_BUY_ZERO] => Y [CATALOG_CAN_BUY_ZERO] => Y [~CATALOG_SUBSCRIBE] => Y [CATALOG_SUBSCRIBE] => Y [PROPERTIES] => Array ( [ITEM_DELIVERY] => Array ( [ID] => 20 [IBLOCK_ID] => 2 [NAME] => Доставка [ACTIVE] => Y [SORT] => 1 [CODE] => ITEM_DELIVERY [DEFAULT_VALUE] => [PROPERTY_TYPE] => L [ROW_COUNT] => 1 [COL_COUNT] => 30 [LIST_TYPE] => L [MULTIPLE] => N [XML_ID] => 20 [FILE_TYPE] => [MULTIPLE_CNT] => 5 [LINK_IBLOCK_ID] => 0 [WITH_DESCRIPTION] => N [SEARCHABLE] => N [FILTRABLE] => N [IS_REQUIRED] => Y [VERSION] => 1 [USER_TYPE] => [USER_TYPE_SETTINGS] => Array ( ) [HINT] => [~NAME] => Доставка [~DEFAULT_VALUE] => [VALUE_ENUM] => По России и СНГ [VALUE_XML_ID] => ru-sng [VALUE_SORT] => 1 [VALUE] => По России и СНГ [PROPERTY_VALUE_ID] => 6825411 [VALUE_ENUM_ID] => 7 [DESCRIPTION] => [~VALUE] => По России и СНГ [~DESCRIPTION] => ) [ITEM_PAYMENT] => Array ( [ID] => 21 [IBLOCK_ID] => 2 [NAME] => Оплата [ACTIVE] => Y [SORT] => 2 [CODE] => ITEM_PAYMENT [DEFAULT_VALUE] => [PROPERTY_TYPE] => L [ROW_COUNT] => 1 [COL_COUNT] => 30 [LIST_TYPE] => L [MULTIPLE] => N [XML_ID] => 21 [FILE_TYPE] => [MULTIPLE_CNT] => 5 [LINK_IBLOCK_ID] => 0 [WITH_DESCRIPTION] => N [SEARCHABLE] => N [FILTRABLE] => N [IS_REQUIRED] => Y [VERSION] => 1 [USER_TYPE] => [USER_TYPE_SETTINGS] => Array ( ) [HINT] => [~NAME] => Оплата [~DEFAULT_VALUE] => [VALUE_ENUM] => Безналичный расчет [VALUE_XML_ID] => payment-bank [VALUE_SORT] => 1 [VALUE] => Безналичный расчет [PROPERTY_VALUE_ID] => 6825412 [VALUE_ENUM_ID] => 8 [DESCRIPTION] => [~VALUE] => Безналичный расчет [~DESCRIPTION] => ) [ITEM_PRICE] => Array ( [ID] => 22 [IBLOCK_ID] => 2 [NAME] => Цена [ACTIVE] => Y [SORT] => 3 [CODE] => ITEM_PRICE [DEFAULT_VALUE] => [PROPERTY_TYPE] => L [ROW_COUNT] => 1 [COL_COUNT] => 30 [LIST_TYPE] => L [MULTIPLE] => N [XML_ID] => 22 [FILE_TYPE] => [MULTIPLE_CNT] => 5 [LINK_IBLOCK_ID] => 0 [WITH_DESCRIPTION] => N [SEARCHABLE] => N [FILTRABLE] => N [IS_REQUIRED] => Y [VERSION] => 1 [USER_TYPE] => [USER_TYPE_SETTINGS] => Array ( ) [HINT] => [~NAME] => Цена [~DEFAULT_VALUE] => [VALUE_ENUM] => По запросу [VALUE_XML_ID] => on-request [VALUE_SORT] => 1 [VALUE] => По запросу [PROPERTY_VALUE_ID] => 6825413 [VALUE_ENUM_ID] => 9 [DESCRIPTION] => [~VALUE] => По запросу [~DESCRIPTION] => ) [ITEM_IMAGES] => Array ( [ID] => 23 [IBLOCK_ID] => 2 [NAME] => Изображения [ACTIVE] => Y [SORT] => 4 [CODE] => ITEM_IMAGES [DEFAULT_VALUE] => [PROPERTY_TYPE] => F [ROW_COUNT] => 1 [COL_COUNT] => 30 [LIST_TYPE] => L [MULTIPLE] => Y [XML_ID] => 23 [FILE_TYPE] => [MULTIPLE_CNT] => 5 [LINK_IBLOCK_ID] => 0 [WITH_DESCRIPTION] => N [SEARCHABLE] => N [FILTRABLE] => N [IS_REQUIRED] => N [VERSION] => 1 [USER_TYPE] => [USER_TYPE_SETTINGS] => Array ( ) [HINT] => [~NAME] => Изображения [~DEFAULT_VALUE] => [VALUE_ENUM] => [VALUE_XML_ID] => [VALUE_SORT] => [VALUE] => Array ( [0] => 35282 ) [PROPERTY_VALUE_ID] => Array ( [0] => 5932978 ) [DESCRIPTION] => Array ( [0] => ) [~VALUE] => Array ( [0] => 35282 ) [~DESCRIPTION] => Array ( [0] => ) ) [ITEM_PROPERTIES] => Array ( [ID] => 24 [IBLOCK_ID] => 2 [NAME] => Свойства [ACTIVE] => Y [SORT] => 5 [CODE] => ITEM_PROPERTIES [DEFAULT_VALUE] => [PROPERTY_TYPE] => E [ROW_COUNT] => 1 [COL_COUNT] => 30 [LIST_TYPE] => L [MULTIPLE] => Y [XML_ID] => 24 [FILE_TYPE] => [MULTIPLE_CNT] => 1 [LINK_IBLOCK_ID] => 3 [WITH_DESCRIPTION] => N [SEARCHABLE] => N [FILTRABLE] => N [IS_REQUIRED] => N [VERSION] => 1 [USER_TYPE] => [USER_TYPE_SETTINGS] => Array ( ) [HINT] => [~NAME] => Свойства [~DEFAULT_VALUE] => [VALUE_ENUM] => [VALUE_XML_ID] => [VALUE_SORT] => [VALUE] => [PROPERTY_VALUE_ID] => [DESCRIPTION] => [~DESCRIPTION] => [~VALUE] => ) [ITEM_CHARACTERISTICS] => Array ( [ID] => 28 [IBLOCK_ID] => 2 [NAME] => Характеристики [ACTIVE] => Y [SORT] => 6 [CODE] => ITEM_CHARACTERISTICS [DEFAULT_VALUE] => [PROPERTY_TYPE] => S [ROW_COUNT] => 1 [COL_COUNT] => 20 [LIST_TYPE] => L [MULTIPLE] => Y [XML_ID] => 28 [FILE_TYPE] => [MULTIPLE_CNT] => 1 [LINK_IBLOCK_ID] => 0 [WITH_DESCRIPTION] => Y [SEARCHABLE] => N [FILTRABLE] => N [IS_REQUIRED] => N [VERSION] => 1 [USER_TYPE] => [USER_TYPE_SETTINGS] => Array ( ) [HINT] => [~NAME] => Характеристики [~DEFAULT_VALUE] => [VALUE_ENUM] => [VALUE_XML_ID] => [VALUE_SORT] => [VALUE] => Array ( [0] => прямостоечная [1] => граненая [2] => 28500 [3] => 19200 [4] => 466 [5] => 730 [6] => 1 [7] => Горячее цинкование [8] => Порошковое / полимерное окрашивание [9] => 30 лет ) [PROPERTY_VALUE_ID] => Array ( [0] => 6825414 [1] => 6825415 [2] => 6825416 [3] => 6825417 [4] => 6825418 [5] => 6825419 [6] => 6825420 [7] => 6825421 [8] => 6825422 [9] => 6825423 ) [DESCRIPTION] => Array ( [0] => Способ установки [1] => Способ производства [2] => Высота, мм [3] => Высота до нижней траверсы, мм [4] => Диаметр верхний, мм [5] => Диаметр нижний, мм [6] => Число стоек на опору, шт [7] => Защитное покрытие [8] => Лакокрасочное покрытие [9] => Срок службы ) [~VALUE] => Array ( [0] => прямостоечная [1] => граненая [2] => 28500 [3] => 19200 [4] => 466 [5] => 730 [6] => 1 [7] => Горячее цинкование [8] => Порошковое / полимерное окрашивание [9] => 30 лет ) [~DESCRIPTION] => Array ( [0] => Способ установки [1] => Способ производства [2] => Высота, мм [3] => Высота до нижней траверсы, мм [4] => Диаметр верхний, мм [5] => Диаметр нижний, мм [6] => Число стоек на опору, шт [7] => Защитное покрытие [8] => Лакокрасочное покрытие [9] => Срок службы ) ) [ITEM_FILTER] => Array ( [ID] => 40 [IBLOCK_ID] => 2 [NAME] => Фильтр [ACTIVE] => Y [SORT] => 7 [CODE] => ITEM_FILTER [DEFAULT_VALUE] => [PROPERTY_TYPE] => S [ROW_COUNT] => 1 [COL_COUNT] => 30 [LIST_TYPE] => L [MULTIPLE] => N [XML_ID] => 40 [FILE_TYPE] => [MULTIPLE_CNT] => 5 [LINK_IBLOCK_ID] => 0 [WITH_DESCRIPTION] => N [SEARCHABLE] => N [FILTRABLE] => N [IS_REQUIRED] => N [VERSION] => 1 [USER_TYPE] => [USER_TYPE_SETTINGS] => Array ( ) [HINT] => [~NAME] => Фильтр [~DEFAULT_VALUE] => [VALUE_ENUM] => [VALUE_XML_ID] => [VALUE_SORT] => [VALUE] => [PROPERTY_VALUE_ID] => [DESCRIPTION] => [~DESCRIPTION] => [~VALUE] => ) [ITEM_TECH_CH] => Array ( [ID] => 29 [IBLOCK_ID] => 2 [NAME] => Технические характеристики [ACTIVE] => Y [SORT] => 8 [CODE] => ITEM_TECH_CH [DEFAULT_VALUE] => Array ( [TYPE] => HTML [TEXT] => ) [PROPERTY_TYPE] => S [ROW_COUNT] => 1 [COL_COUNT] => 30 [LIST_TYPE] => L [MULTIPLE] => N [XML_ID] => 29 [FILE_TYPE] => [MULTIPLE_CNT] => 5 [LINK_IBLOCK_ID] => 0 [WITH_DESCRIPTION] => N [SEARCHABLE] => N [FILTRABLE] => N [IS_REQUIRED] => N [VERSION] => 1 [USER_TYPE] => HTML [USER_TYPE_SETTINGS] => Array ( [height] => 200 ) [HINT] => [~NAME] => Технические характеристики [~DEFAULT_VALUE] => Array ( [TYPE] => HTML [TEXT] => ) [VALUE_ENUM] => [VALUE_XML_ID] => [VALUE_SORT] => [VALUE] => Array ( [TEXT] => <p style="text-align: justify;"> Данные стойки применяются для сооружения как одноцепных, так и двухцепных линий электропередачи 220 кВ в различных географических и климатических условиях. Они используются при строительстве новых магистральных линий в населенной и ненаселенной местности. Конструкции востребованы при реконструкции и модернизации существующих воздушных линий с заменой устаревших железобетонных или решетчатых опор. Благодаря свободностоящему исполнению опоры эффективны на участках с ограниченной шириной просеки или сложным рельефом. Универсальность стоек позволяет применять их на всех типах участков трассы: прямых, анкерных, угловых и переходных. </p> [TYPE] => HTML ) [PROPERTY_VALUE_ID] => 6825424 [DESCRIPTION] => [~VALUE] => Array ( [TEXT] =>

Данные стойки применяются для сооружения как одноцепных, так и двухцепных линий электропередачи 220 кВ в различных географических и климатических условиях. Они используются при строительстве новых магистральных линий в населенной и ненаселенной местности. Конструкции востребованы при реконструкции и модернизации существующих воздушных линий с заменой устаревших железобетонных или решетчатых опор. Благодаря свободностоящему исполнению опоры эффективны на участках с ограниченной шириной просеки или сложным рельефом. Универсальность стоек позволяет применять их на всех типах участков трассы: прямых, анкерных, угловых и переходных.

[TYPE] => HTML ) [~DESCRIPTION] => ) [ITEM_ADV_DESCR] => Array ( [ID] => 30 [IBLOCK_ID] => 2 [NAME] => Преимущества (описание) [ACTIVE] => Y [SORT] => 9 [CODE] => ITEM_ADV_DESCR [DEFAULT_VALUE] => Array ( [TYPE] => HTML [TEXT] => ) [PROPERTY_TYPE] => S [ROW_COUNT] => 1 [COL_COUNT] => 30 [LIST_TYPE] => L [MULTIPLE] => N [XML_ID] => 30 [FILE_TYPE] => [MULTIPLE_CNT] => 5 [LINK_IBLOCK_ID] => 0 [WITH_DESCRIPTION] => N [SEARCHABLE] => N [FILTRABLE] => N [IS_REQUIRED] => N [VERSION] => 1 [USER_TYPE] => HTML [USER_TYPE_SETTINGS] => Array ( [height] => 100 ) [HINT] => [~NAME] => Преимущества (описание) [~DEFAULT_VALUE] => Array ( [TYPE] => HTML [TEXT] => ) [VALUE_ENUM] => [VALUE_XML_ID] => [VALUE_SORT] => [VALUE] => Array ( [TEXT] => <p style="text-align: justify;"> Использование многогранных стоек по проекту 26.0033 обеспечивает значительные технологические и экономические преимущества. Высокая прочность конструкции позволяет увеличивать межопорные расстояния, что сокращает общее количество опор на линии и снижает затраты на землеотвод. Полная заводская готовность элементов и продуманный монтажный узел ускоряют сборку в 3-4 раза по сравнению с традиционными решениями, сокращая сроки строительства. Экономический эффект от применения таких опор оценивается в 12-15% по сравнению с железобетонными аналогами и до 50% по сравнению с решетчатыми конструкциями. Покрытие методом горячего цинкования гарантирует защиту от коррозии и вандальных воздействий, обеспечивая расчетный срок службы конструкции до 75 лет без необходимости капитального ремонта. </p> [TYPE] => HTML ) [PROPERTY_VALUE_ID] => 6825425 [DESCRIPTION] => [~VALUE] => Array ( [TEXT] =>

Использование многогранных стоек по проекту 26.0033 обеспечивает значительные технологические и экономические преимущества. Высокая прочность конструкции позволяет увеличивать межопорные расстояния, что сокращает общее количество опор на линии и снижает затраты на землеотвод. Полная заводская готовность элементов и продуманный монтажный узел ускоряют сборку в 3-4 раза по сравнению с традиционными решениями, сокращая сроки строительства. Экономический эффект от применения таких опор оценивается в 12-15% по сравнению с железобетонными аналогами и до 50% по сравнению с решетчатыми конструкциями. Покрытие методом горячего цинкования гарантирует защиту от коррозии и вандальных воздействий, обеспечивая расчетный срок службы конструкции до 75 лет без необходимости капитального ремонта.

[TYPE] => HTML ) [~DESCRIPTION] => ) [ITEM_ADV] => Array ( [ID] => 31 [IBLOCK_ID] => 2 [NAME] => Преимущества [ACTIVE] => Y [SORT] => 10 [CODE] => ITEM_ADV [DEFAULT_VALUE] => [PROPERTY_TYPE] => E [ROW_COUNT] => 1 [COL_COUNT] => 30 [LIST_TYPE] => L [MULTIPLE] => Y [XML_ID] => 31 [FILE_TYPE] => [MULTIPLE_CNT] => 1 [LINK_IBLOCK_ID] => 5 [WITH_DESCRIPTION] => N [SEARCHABLE] => N [FILTRABLE] => N [IS_REQUIRED] => N [VERSION] => 1 [USER_TYPE] => [USER_TYPE_SETTINGS] => Array ( ) [HINT] => [~NAME] => Преимущества [~DEFAULT_VALUE] => [VALUE_ENUM] => [VALUE_XML_ID] => [VALUE_SORT] => [VALUE] => [PROPERTY_VALUE_ID] => [DESCRIPTION] => [~DESCRIPTION] => [~VALUE] => ) [ITEM_BUY] => Array ( [ID] => 32 [IBLOCK_ID] => 2 [NAME] => Купить [ACTIVE] => Y [SORT] => 11 [CODE] => ITEM_BUY [DEFAULT_VALUE] => Array ( [TEXT] => [TYPE] => HTML ) [PROPERTY_TYPE] => S [ROW_COUNT] => 1 [COL_COUNT] => 30 [LIST_TYPE] => L [MULTIPLE] => N [XML_ID] => 32 [FILE_TYPE] => [MULTIPLE_CNT] => 5 [LINK_IBLOCK_ID] => 0 [WITH_DESCRIPTION] => N [SEARCHABLE] => N [FILTRABLE] => N [IS_REQUIRED] => N [VERSION] => 1 [USER_TYPE] => HTML [USER_TYPE_SETTINGS] => Array ( [height] => 200 ) [HINT] => [~NAME] => Купить [~DEFAULT_VALUE] => Array ( [TEXT] => [TYPE] => HTML ) [VALUE_ENUM] => [VALUE_XML_ID] => [VALUE_SORT] => [VALUE] => Array ( [TEXT] => <p style="text-align: justify;"> НПО «Легион» осуществляет полный цикл производства металлоконструкций для высоковольтных линий электропередачи. Мы изготавливаем многогранные стойки и комплектующие к ним по типовому проекту 26.0033, а также разрабатываем индивидуальные решения на его основе. Наши специалисты готовы предоставить исчерпывающие технические консультации, рассчитать нагрузку и помочь в подборе оптимальной конфигурации для вашего проекта. Для оформления заказа, получения коммерческого предложения или спецификации свяжитесь с нами удобным способом. </p> <p style="text-align: justify;"> </p> <p style="text-align: justify;"> Телефон: 8(800)500-51-37<br> Email: <a href="mailto:info@legionural.ru">info@legionural.ru</a> </p> <p> <a href="mailto:info@legionural.ru"></a> </p> [TYPE] => HTML ) [PROPERTY_VALUE_ID] => 6825426 [DESCRIPTION] => [~VALUE] => Array ( [TEXT] =>

НПО «Легион» осуществляет полный цикл производства металлоконструкций для высоковольтных линий электропередачи. Мы изготавливаем многогранные стойки и комплектующие к ним по типовому проекту 26.0033, а также разрабатываем индивидуальные решения на его основе. Наши специалисты готовы предоставить исчерпывающие технические консультации, рассчитать нагрузку и помочь в подборе оптимальной конфигурации для вашего проекта. Для оформления заказа, получения коммерческого предложения или спецификации свяжитесь с нами удобным способом.

Телефон: 8(800)500-51-37
Email: info@legionural.ru

[TYPE] => HTML ) [~DESCRIPTION] => ) [ITEM_CERT_COR] => Array ( [ID] => 33 [IBLOCK_ID] => 2 [NAME] => Сертификаты соответствия [ACTIVE] => Y [SORT] => 12 [CODE] => ITEM_CERT_COR [DEFAULT_VALUE] => [PROPERTY_TYPE] => S [ROW_COUNT] => 1 [COL_COUNT] => 30 [LIST_TYPE] => L [MULTIPLE] => Y [XML_ID] => 33 [FILE_TYPE] => [MULTIPLE_CNT] => 1 [LINK_IBLOCK_ID] => 0 [WITH_DESCRIPTION] => Y [SEARCHABLE] => N [FILTRABLE] => N [IS_REQUIRED] => N [VERSION] => 1 [USER_TYPE] => [USER_TYPE_SETTINGS] => Array ( ) [HINT] => [~NAME] => Сертификаты соответствия [~DEFAULT_VALUE] => [VALUE_ENUM] => [VALUE_XML_ID] => [VALUE_SORT] => [VALUE] => [PROPERTY_VALUE_ID] => [DESCRIPTION] => [~DESCRIPTION] => [~VALUE] => ) [ITEM_ST_STAND] => Array ( [ID] => 34 [IBLOCK_ID] => 2 [NAME] => Государственные стандарты [ACTIVE] => Y [SORT] => 13 [CODE] => ITEM_ST_STAND [DEFAULT_VALUE] => [PROPERTY_TYPE] => S [ROW_COUNT] => 1 [COL_COUNT] => 30 [LIST_TYPE] => L [MULTIPLE] => Y [XML_ID] => 34 [FILE_TYPE] => [MULTIPLE_CNT] => 1 [LINK_IBLOCK_ID] => 0 [WITH_DESCRIPTION] => Y [SEARCHABLE] => N [FILTRABLE] => N [IS_REQUIRED] => N [VERSION] => 1 [USER_TYPE] => [USER_TYPE_SETTINGS] => Array ( ) [HINT] => [~NAME] => Государственные стандарты [~DEFAULT_VALUE] => [VALUE_ENUM] => [VALUE_XML_ID] => [VALUE_SORT] => [VALUE] => [PROPERTY_VALUE_ID] => [DESCRIPTION] => [~DESCRIPTION] => [~VALUE] => ) [ITEM_NORM] => Array ( [ID] => 35 [IBLOCK_ID] => 2 [NAME] => Строительные нормы и правила [ACTIVE] => Y [SORT] => 14 [CODE] => ITEM_NORM [DEFAULT_VALUE] => [PROPERTY_TYPE] => S [ROW_COUNT] => 1 [COL_COUNT] => 30 [LIST_TYPE] => L [MULTIPLE] => Y [XML_ID] => 35 [FILE_TYPE] => [MULTIPLE_CNT] => 1 [LINK_IBLOCK_ID] => 0 [WITH_DESCRIPTION] => Y [SEARCHABLE] => N [FILTRABLE] => N [IS_REQUIRED] => N [VERSION] => 1 [USER_TYPE] => [USER_TYPE_SETTINGS] => Array ( ) [HINT] => [~NAME] => Строительные нормы и правила [~DEFAULT_VALUE] => [VALUE_ENUM] => [VALUE_XML_ID] => [VALUE_SORT] => [VALUE] => [PROPERTY_VALUE_ID] => [DESCRIPTION] => [~DESCRIPTION] => [~VALUE] => ) [ITEM_SIMILAR] => Array ( [ID] => 36 [IBLOCK_ID] => 2 [NAME] => Похожие модели [ACTIVE] => Y [SORT] => 15 [CODE] => ITEM_SIMILAR [DEFAULT_VALUE] => [PROPERTY_TYPE] => G [ROW_COUNT] => 1 [COL_COUNT] => 30 [LIST_TYPE] => L [MULTIPLE] => Y [XML_ID] => 36 [FILE_TYPE] => [MULTIPLE_CNT] => 10 [LINK_IBLOCK_ID] => 2 [WITH_DESCRIPTION] => N [SEARCHABLE] => N [FILTRABLE] => N [IS_REQUIRED] => N [VERSION] => 1 [USER_TYPE] => [USER_TYPE_SETTINGS] => Array ( ) [HINT] => [~NAME] => Похожие модели [~DEFAULT_VALUE] => [VALUE_ENUM] => [VALUE_XML_ID] => [VALUE_SORT] => [VALUE] => [PROPERTY_VALUE_ID] => [DESCRIPTION] => [~DESCRIPTION] => [~VALUE] => ) [ITEM_SIMILAR_TAGS] => Array ( [ID] => 122 [IBLOCK_ID] => 2 [NAME] => Похожие модели (теговые) [ACTIVE] => Y [SORT] => 16 [CODE] => ITEM_SIMILAR_TAGS [DEFAULT_VALUE] => [PROPERTY_TYPE] => E [ROW_COUNT] => 1 [COL_COUNT] => 30 [LIST_TYPE] => L [MULTIPLE] => Y [XML_ID] => 122 [FILE_TYPE] => [MULTIPLE_CNT] => 1 [LINK_IBLOCK_ID] => 19 [WITH_DESCRIPTION] => N [SEARCHABLE] => N [FILTRABLE] => N [IS_REQUIRED] => N [VERSION] => 1 [USER_TYPE] => [USER_TYPE_SETTINGS] => Array ( ) [HINT] => [~NAME] => Похожие модели (теговые) [~DEFAULT_VALUE] => [VALUE_ENUM] => [VALUE_XML_ID] => [VALUE_SORT] => [VALUE] => [PROPERTY_VALUE_ID] => [DESCRIPTION] => [~DESCRIPTION] => [~VALUE] => ) [ITEM_BUY_WITH] => Array ( [ID] => 37 [IBLOCK_ID] => 2 [NAME] => С этим товаром покупают [ACTIVE] => Y [SORT] => 17 [CODE] => ITEM_BUY_WITH [DEFAULT_VALUE] => [PROPERTY_TYPE] => E [ROW_COUNT] => 1 [COL_COUNT] => 30 [LIST_TYPE] => L [MULTIPLE] => Y [XML_ID] => 37 [FILE_TYPE] => [MULTIPLE_CNT] => 1 [LINK_IBLOCK_ID] => 2 [WITH_DESCRIPTION] => N [SEARCHABLE] => N [FILTRABLE] => N [IS_REQUIRED] => N [VERSION] => 1 [USER_TYPE] => [USER_TYPE_SETTINGS] => Array ( ) [HINT] => [~NAME] => С этим товаром покупают [~DEFAULT_VALUE] => [VALUE_ENUM] => [VALUE_XML_ID] => [VALUE_SORT] => [VALUE] => [PROPERTY_VALUE_ID] => [DESCRIPTION] => [~DESCRIPTION] => [~VALUE] => ) [ITEM_VOTE_COUNT] => Array ( [ID] => 38 [IBLOCK_ID] => 2 [NAME] => Количество голосов [ACTIVE] => Y [SORT] => 18 [CODE] => ITEM_VOTE_COUNT [DEFAULT_VALUE] => 0 [PROPERTY_TYPE] => N [ROW_COUNT] => 1 [COL_COUNT] => 30 [LIST_TYPE] => L [MULTIPLE] => N [XML_ID] => 38 [FILE_TYPE] => [MULTIPLE_CNT] => 5 [LINK_IBLOCK_ID] => 0 [WITH_DESCRIPTION] => N [SEARCHABLE] => N [FILTRABLE] => N [IS_REQUIRED] => N [VERSION] => 1 [USER_TYPE] => [USER_TYPE_SETTINGS] => Array ( ) [HINT] => [~NAME] => Количество голосов [~DEFAULT_VALUE] => 0 [VALUE_ENUM] => [VALUE_XML_ID] => [VALUE_SORT] => [VALUE] => 6 [PROPERTY_VALUE_ID] => 5932979 [DESCRIPTION] => [~VALUE] => 6 [~DESCRIPTION] => ) [ITEM_RAITING] => Array ( [ID] => 39 [IBLOCK_ID] => 2 [NAME] => Рейтинг [ACTIVE] => Y [SORT] => 19 [CODE] => ITEM_RAITING [DEFAULT_VALUE] => 0 [PROPERTY_TYPE] => N [ROW_COUNT] => 1 [COL_COUNT] => 30 [LIST_TYPE] => L [MULTIPLE] => N [XML_ID] => 39 [FILE_TYPE] => [MULTIPLE_CNT] => 5 [LINK_IBLOCK_ID] => 0 [WITH_DESCRIPTION] => N [SEARCHABLE] => N [FILTRABLE] => N [IS_REQUIRED] => N [VERSION] => 1 [USER_TYPE] => [USER_TYPE_SETTINGS] => Array ( ) [HINT] => [~NAME] => Рейтинг [~DEFAULT_VALUE] => 0 [VALUE_ENUM] => [VALUE_XML_ID] => [VALUE_SORT] => [VALUE] => 4.8 [PROPERTY_VALUE_ID] => 5932980 [DESCRIPTION] => [~VALUE] => 4.8 [~DESCRIPTION] => ) [H1] => Array ( [ID] => 125 [IBLOCK_ID] => 2 [NAME] => H1 [ACTIVE] => Y [SORT] => 500 [CODE] => H1 [DEFAULT_VALUE] => [PROPERTY_TYPE] => S [ROW_COUNT] => 1 [COL_COUNT] => 70 [LIST_TYPE] => L [MULTIPLE] => N [XML_ID] => 125 [FILE_TYPE] => [MULTIPLE_CNT] => 5 [LINK_IBLOCK_ID] => 0 [WITH_DESCRIPTION] => N [SEARCHABLE] => N [FILTRABLE] => N [IS_REQUIRED] => N [VERSION] => 1 [USER_TYPE] => [USER_TYPE_SETTINGS] => Array ( ) [HINT] => [~NAME] => H1 [~DEFAULT_VALUE] => [VALUE_ENUM] => [VALUE_XML_ID] => [VALUE_SORT] => [VALUE] => Многогранная стойка для опоры ПМ220-1 [PROPERTY_VALUE_ID] => 5945356 [DESCRIPTION] => [~VALUE] => Многогранная стойка для опоры ПМ220-1 [~DESCRIPTION] => ) [CERTIFICATES] => Array ( [ID] => 127 [IBLOCK_ID] => 2 [NAME] => Сертификаты [ACTIVE] => Y [SORT] => 500 [CODE] => CERTIFICATES [DEFAULT_VALUE] => [PROPERTY_TYPE] => E [ROW_COUNT] => 1 [COL_COUNT] => 30 [LIST_TYPE] => L [MULTIPLE] => Y [XML_ID] => 127 [FILE_TYPE] => [MULTIPLE_CNT] => 5 [LINK_IBLOCK_ID] => 7 [WITH_DESCRIPTION] => N [SEARCHABLE] => N [FILTRABLE] => N [IS_REQUIRED] => N [VERSION] => 1 [USER_TYPE] => [USER_TYPE_SETTINGS] => Array ( ) [HINT] => [~NAME] => Сертификаты [~DEFAULT_VALUE] => [VALUE_ENUM] => [VALUE_XML_ID] => [VALUE_SORT] => [VALUE] => [PROPERTY_VALUE_ID] => [DESCRIPTION] => [~DESCRIPTION] => [~VALUE] => ) [129] => Array ( [ID] => 129 [IBLOCK_ID] => 2 [NAME] => Уникальный META TITLE [ACTIVE] => Y [SORT] => 500 [CODE] => 129 [DEFAULT_VALUE] => [PROPERTY_TYPE] => S [ROW_COUNT] => 1 [COL_COUNT] => 30 [LIST_TYPE] => L [MULTIPLE] => N [XML_ID] => 129 [FILE_TYPE] => [MULTIPLE_CNT] => 5 [LINK_IBLOCK_ID] => 0 [WITH_DESCRIPTION] => N [SEARCHABLE] => N [FILTRABLE] => N [IS_REQUIRED] => N [VERSION] => 1 [USER_TYPE] => [USER_TYPE_SETTINGS] => Array ( ) [HINT] => [~NAME] => Уникальный META TITLE [~DEFAULT_VALUE] => [VALUE_ENUM] => [VALUE_XML_ID] => [VALUE_SORT] => [VALUE] => [PROPERTY_VALUE_ID] => [DESCRIPTION] => [~DESCRIPTION] => [~VALUE] => ) [ITEM_TYPE] => Array ( [ID] => 134 [IBLOCK_ID] => 2 [NAME] => Тип [ACTIVE] => Y [SORT] => 500 [CODE] => ITEM_TYPE [DEFAULT_VALUE] => [PROPERTY_TYPE] => S [ROW_COUNT] => 1 [COL_COUNT] => 30 [LIST_TYPE] => L [MULTIPLE] => N [XML_ID] => [FILE_TYPE] => [MULTIPLE_CNT] => 5 [LINK_IBLOCK_ID] => 0 [WITH_DESCRIPTION] => N [SEARCHABLE] => N [FILTRABLE] => Y [IS_REQUIRED] => N [VERSION] => 1 [USER_TYPE] => [USER_TYPE_SETTINGS] => Array ( ) [HINT] => [~NAME] => Тип [~DEFAULT_VALUE] => [VALUE_ENUM] => [VALUE_XML_ID] => [VALUE_SORT] => [VALUE] => [PROPERTY_VALUE_ID] => [DESCRIPTION] => [~DESCRIPTION] => [~VALUE] => ) [ITEM_INSTALLATION] => Array ( [ID] => 135 [IBLOCK_ID] => 2 [NAME] => Способ установки [ACTIVE] => Y [SORT] => 500 [CODE] => ITEM_INSTALLATION [DEFAULT_VALUE] => [PROPERTY_TYPE] => S [ROW_COUNT] => 1 [COL_COUNT] => 30 [LIST_TYPE] => L [MULTIPLE] => N [XML_ID] => [FILE_TYPE] => [MULTIPLE_CNT] => 5 [LINK_IBLOCK_ID] => 0 [WITH_DESCRIPTION] => N [SEARCHABLE] => N [FILTRABLE] => N [IS_REQUIRED] => N [VERSION] => 1 [USER_TYPE] => [USER_TYPE_SETTINGS] => Array ( ) [HINT] => [~NAME] => Способ установки [~DEFAULT_VALUE] => [VALUE_ENUM] => [VALUE_XML_ID] => [VALUE_SORT] => [VALUE] => [PROPERTY_VALUE_ID] => [DESCRIPTION] => [~DESCRIPTION] => [~VALUE] => ) [ITEM_MODE] => Array ( [ID] => 136 [IBLOCK_ID] => 2 [NAME] => Способ производства [ACTIVE] => Y [SORT] => 500 [CODE] => ITEM_MODE [DEFAULT_VALUE] => [PROPERTY_TYPE] => S [ROW_COUNT] => 1 [COL_COUNT] => 30 [LIST_TYPE] => L [MULTIPLE] => N [XML_ID] => [FILE_TYPE] => [MULTIPLE_CNT] => 5 [LINK_IBLOCK_ID] => 0 [WITH_DESCRIPTION] => N [SEARCHABLE] => N [FILTRABLE] => N [IS_REQUIRED] => N [VERSION] => 1 [USER_TYPE] => [USER_TYPE_SETTINGS] => Array ( ) [HINT] => [~NAME] => Способ производства [~DEFAULT_VALUE] => [VALUE_ENUM] => [VALUE_XML_ID] => [VALUE_SORT] => [VALUE] => [PROPERTY_VALUE_ID] => [DESCRIPTION] => [~DESCRIPTION] => [~VALUE] => ) [ITEM_HEIGHT] => Array ( [ID] => 137 [IBLOCK_ID] => 2 [NAME] => Высота, мм [ACTIVE] => Y [SORT] => 500 [CODE] => ITEM_HEIGHT [DEFAULT_VALUE] => [PROPERTY_TYPE] => S [ROW_COUNT] => 1 [COL_COUNT] => 30 [LIST_TYPE] => L [MULTIPLE] => N [XML_ID] => [FILE_TYPE] => [MULTIPLE_CNT] => 5 [LINK_IBLOCK_ID] => 0 [WITH_DESCRIPTION] => N [SEARCHABLE] => N [FILTRABLE] => N [IS_REQUIRED] => N [VERSION] => 1 [USER_TYPE] => [USER_TYPE_SETTINGS] => Array ( ) [HINT] => [~NAME] => Высота, мм [~DEFAULT_VALUE] => [VALUE_ENUM] => [VALUE_XML_ID] => [VALUE_SORT] => [VALUE] => [PROPERTY_VALUE_ID] => [DESCRIPTION] => [~DESCRIPTION] => [~VALUE] => ) [BLOG_POST_ID] => Array ( [ID] => 138 [IBLOCK_ID] => 2 [NAME] => ID поста блога для комментариев [ACTIVE] => Y [SORT] => 500 [CODE] => BLOG_POST_ID [DEFAULT_VALUE] => [PROPERTY_TYPE] => N [ROW_COUNT] => 1 [COL_COUNT] => 30 [LIST_TYPE] => L [MULTIPLE] => N [XML_ID] => BLOG_POST_ID [FILE_TYPE] => [MULTIPLE_CNT] => 5 [LINK_IBLOCK_ID] => 0 [WITH_DESCRIPTION] => N [SEARCHABLE] => N [FILTRABLE] => N [IS_REQUIRED] => N [VERSION] => 1 [USER_TYPE] => [USER_TYPE_SETTINGS] => Array ( ) [HINT] => [~NAME] => ID поста блога для комментариев [~DEFAULT_VALUE] => [VALUE_ENUM] => [VALUE_XML_ID] => [VALUE_SORT] => [VALUE] => 1490 [PROPERTY_VALUE_ID] => 6775299 [DESCRIPTION] => [~VALUE] => 1490 [~DESCRIPTION] => ) [BLOG_COMMENTS_CNT] => Array ( [ID] => 139 [IBLOCK_ID] => 2 [NAME] => Количество комментариев [ACTIVE] => Y [SORT] => 500 [CODE] => BLOG_COMMENTS_CNT [DEFAULT_VALUE] => [PROPERTY_TYPE] => N [ROW_COUNT] => 1 [COL_COUNT] => 30 [LIST_TYPE] => L [MULTIPLE] => N [XML_ID] => BLOG_COMMENTS_CNT [FILE_TYPE] => [MULTIPLE_CNT] => 5 [LINK_IBLOCK_ID] => 0 [WITH_DESCRIPTION] => N [SEARCHABLE] => N [FILTRABLE] => N [IS_REQUIRED] => N [VERSION] => 1 [USER_TYPE] => [USER_TYPE_SETTINGS] => Array ( ) [HINT] => [~NAME] => Количество комментариев [~DEFAULT_VALUE] => [VALUE_ENUM] => [VALUE_XML_ID] => [VALUE_SORT] => [VALUE] => [PROPERTY_VALUE_ID] => [DESCRIPTION] => [~DESCRIPTION] => [~VALUE] => ) [HEIGHT_TOTAL] => Array ( [ID] => 143 [IBLOCK_ID] => 2 [NAME] => Высота общая, мм [ACTIVE] => Y [SORT] => 500 [CODE] => HEIGHT_TOTAL [DEFAULT_VALUE] => [PROPERTY_TYPE] => S [ROW_COUNT] => 1 [COL_COUNT] => 30 [LIST_TYPE] => L [MULTIPLE] => N [XML_ID] => [FILE_TYPE] => [MULTIPLE_CNT] => 5 [LINK_IBLOCK_ID] => 0 [WITH_DESCRIPTION] => N [SEARCHABLE] => N [FILTRABLE] => N [IS_REQUIRED] => N [VERSION] => 1 [USER_TYPE] => [USER_TYPE_SETTINGS] => Array ( ) [HINT] => [~NAME] => Высота общая, мм [~DEFAULT_VALUE] => [VALUE_ENUM] => [VALUE_XML_ID] => [VALUE_SORT] => [VALUE] => [PROPERTY_VALUE_ID] => [DESCRIPTION] => [~DESCRIPTION] => [~VALUE] => ) [HEIGHT_ABOVEGROUND] => Array ( [ID] => 144 [IBLOCK_ID] => 2 [NAME] => Высота надземной части, мм [ACTIVE] => Y [SORT] => 500 [CODE] => HEIGHT_ABOVEGROUND [DEFAULT_VALUE] => [PROPERTY_TYPE] => S [ROW_COUNT] => 1 [COL_COUNT] => 30 [LIST_TYPE] => L [MULTIPLE] => N [XML_ID] => [FILE_TYPE] => [MULTIPLE_CNT] => 5 [LINK_IBLOCK_ID] => 0 [WITH_DESCRIPTION] => N [SEARCHABLE] => N [FILTRABLE] => N [IS_REQUIRED] => N [VERSION] => 1 [USER_TYPE] => [USER_TYPE_SETTINGS] => Array ( ) [HINT] => [~NAME] => Высота надземной части, мм [~DEFAULT_VALUE] => [VALUE_ENUM] => [VALUE_XML_ID] => [VALUE_SORT] => [VALUE] => [PROPERTY_VALUE_ID] => [DESCRIPTION] => [~DESCRIPTION] => [~VALUE] => ) [HEIGHT_UNDERGROUND] => Array ( [ID] => 145 [IBLOCK_ID] => 2 [NAME] => Высота подземной части, мм [ACTIVE] => Y [SORT] => 500 [CODE] => HEIGHT_UNDERGROUND [DEFAULT_VALUE] => [PROPERTY_TYPE] => S [ROW_COUNT] => 1 [COL_COUNT] => 30 [LIST_TYPE] => L [MULTIPLE] => N [XML_ID] => [FILE_TYPE] => [MULTIPLE_CNT] => 5 [LINK_IBLOCK_ID] => 0 [WITH_DESCRIPTION] => N [SEARCHABLE] => N [FILTRABLE] => N [IS_REQUIRED] => N [VERSION] => 1 [USER_TYPE] => [USER_TYPE_SETTINGS] => Array ( ) [HINT] => [~NAME] => Высота подземной части, мм [~DEFAULT_VALUE] => [VALUE_ENUM] => [VALUE_XML_ID] => [VALUE_SORT] => [VALUE] => [PROPERTY_VALUE_ID] => [DESCRIPTION] => [~DESCRIPTION] => [~VALUE] => ) [DIAMETER_TOP] => Array ( [ID] => 146 [IBLOCK_ID] => 2 [NAME] => Диаметр верхний, мм [ACTIVE] => Y [SORT] => 500 [CODE] => DIAMETER_TOP [DEFAULT_VALUE] => [PROPERTY_TYPE] => S [ROW_COUNT] => 1 [COL_COUNT] => 30 [LIST_TYPE] => L [MULTIPLE] => N [XML_ID] => [FILE_TYPE] => [MULTIPLE_CNT] => 5 [LINK_IBLOCK_ID] => 0 [WITH_DESCRIPTION] => N [SEARCHABLE] => N [FILTRABLE] => N [IS_REQUIRED] => N [VERSION] => 1 [USER_TYPE] => [USER_TYPE_SETTINGS] => Array ( ) [HINT] => [~NAME] => Диаметр верхний, мм [~DEFAULT_VALUE] => [VALUE_ENUM] => [VALUE_XML_ID] => [VALUE_SORT] => [VALUE] => [PROPERTY_VALUE_ID] => [DESCRIPTION] => [~DESCRIPTION] => [~VALUE] => ) [DIAMETER_BOTTOM] => Array ( [ID] => 147 [IBLOCK_ID] => 2 [NAME] => Диаметр нижний, мм [ACTIVE] => Y [SORT] => 500 [CODE] => DIAMETER_BOTTOM [DEFAULT_VALUE] => [PROPERTY_TYPE] => S [ROW_COUNT] => 1 [COL_COUNT] => 30 [LIST_TYPE] => L [MULTIPLE] => N [XML_ID] => [FILE_TYPE] => [MULTIPLE_CNT] => 5 [LINK_IBLOCK_ID] => 0 [WITH_DESCRIPTION] => N [SEARCHABLE] => N [FILTRABLE] => N [IS_REQUIRED] => N [VERSION] => 1 [USER_TYPE] => [USER_TYPE_SETTINGS] => Array ( ) [HINT] => [~NAME] => Диаметр нижний, мм [~DEFAULT_VALUE] => [VALUE_ENUM] => [VALUE_XML_ID] => [VALUE_SORT] => [VALUE] => [PROPERTY_VALUE_ID] => [DESCRIPTION] => [~DESCRIPTION] => [~VALUE] => ) [WEIGHT] => Array ( [ID] => 148 [IBLOCK_ID] => 2 [NAME] => Нагрузка, кг [ACTIVE] => Y [SORT] => 500 [CODE] => WEIGHT [DEFAULT_VALUE] => [PROPERTY_TYPE] => S [ROW_COUNT] => 1 [COL_COUNT] => 30 [LIST_TYPE] => L [MULTIPLE] => N [XML_ID] => [FILE_TYPE] => [MULTIPLE_CNT] => 5 [LINK_IBLOCK_ID] => 0 [WITH_DESCRIPTION] => N [SEARCHABLE] => N [FILTRABLE] => N [IS_REQUIRED] => N [VERSION] => 1 [USER_TYPE] => [USER_TYPE_SETTINGS] => Array ( ) [HINT] => [~NAME] => Нагрузка, кг [~DEFAULT_VALUE] => [VALUE_ENUM] => [VALUE_XML_ID] => [VALUE_SORT] => [VALUE] => [PROPERTY_VALUE_ID] => [DESCRIPTION] => [~DESCRIPTION] => [~VALUE] => ) [VID] => Array ( [ID] => 149 [IBLOCK_ID] => 2 [NAME] => Вид [ACTIVE] => Y [SORT] => 500 [CODE] => VID [DEFAULT_VALUE] => [PROPERTY_TYPE] => S [ROW_COUNT] => 1 [COL_COUNT] => 30 [LIST_TYPE] => L [MULTIPLE] => N [XML_ID] => [FILE_TYPE] => [MULTIPLE_CNT] => 5 [LINK_IBLOCK_ID] => 0 [WITH_DESCRIPTION] => N [SEARCHABLE] => N [FILTRABLE] => N [IS_REQUIRED] => N [VERSION] => 1 [USER_TYPE] => [USER_TYPE_SETTINGS] => Array ( ) [HINT] => [~NAME] => Вид [~DEFAULT_VALUE] => [VALUE_ENUM] => [VALUE_XML_ID] => [VALUE_SORT] => [VALUE] => [PROPERTY_VALUE_ID] => [DESCRIPTION] => [~DESCRIPTION] => [~VALUE] => ) [SERVICE_LIFE] => Array ( [ID] => 150 [IBLOCK_ID] => 2 [NAME] => Срок службы [ACTIVE] => Y [SORT] => 500 [CODE] => SERVICE_LIFE [DEFAULT_VALUE] => [PROPERTY_TYPE] => S [ROW_COUNT] => 1 [COL_COUNT] => 30 [LIST_TYPE] => L [MULTIPLE] => N [XML_ID] => [FILE_TYPE] => [MULTIPLE_CNT] => 5 [LINK_IBLOCK_ID] => 0 [WITH_DESCRIPTION] => N [SEARCHABLE] => N [FILTRABLE] => N [IS_REQUIRED] => N [VERSION] => 1 [USER_TYPE] => [USER_TYPE_SETTINGS] => Array ( ) [HINT] => [~NAME] => Срок службы [~DEFAULT_VALUE] => [VALUE_ENUM] => [VALUE_XML_ID] => [VALUE_SORT] => [VALUE] => [PROPERTY_VALUE_ID] => [DESCRIPTION] => [~DESCRIPTION] => [~VALUE] => ) [USING] => Array ( [ID] => 151 [IBLOCK_ID] => 2 [NAME] => Применение [ACTIVE] => Y [SORT] => 500 [CODE] => USING [DEFAULT_VALUE] => [PROPERTY_TYPE] => S [ROW_COUNT] => 1 [COL_COUNT] => 30 [LIST_TYPE] => L [MULTIPLE] => N [XML_ID] => [FILE_TYPE] => [MULTIPLE_CNT] => 5 [LINK_IBLOCK_ID] => 0 [WITH_DESCRIPTION] => N [SEARCHABLE] => N [FILTRABLE] => N [IS_REQUIRED] => N [VERSION] => 1 [USER_TYPE] => [USER_TYPE_SETTINGS] => Array ( ) [HINT] => [~NAME] => Применение [~DEFAULT_VALUE] => [VALUE_ENUM] => [VALUE_XML_ID] => [VALUE_SORT] => [VALUE] => [PROPERTY_VALUE_ID] => [DESCRIPTION] => [~DESCRIPTION] => [~VALUE] => ) [HEIGHT_ZAK] => Array ( [ID] => 152 [IBLOCK_ID] => 2 [NAME] => Высота закладного элемента фундамента [ACTIVE] => Y [SORT] => 500 [CODE] => HEIGHT_ZAK [DEFAULT_VALUE] => [PROPERTY_TYPE] => S [ROW_COUNT] => 1 [COL_COUNT] => 30 [LIST_TYPE] => L [MULTIPLE] => N [XML_ID] => [FILE_TYPE] => [MULTIPLE_CNT] => 5 [LINK_IBLOCK_ID] => 0 [WITH_DESCRIPTION] => N [SEARCHABLE] => N [FILTRABLE] => N [IS_REQUIRED] => N [VERSION] => 1 [USER_TYPE] => [USER_TYPE_SETTINGS] => Array ( ) [HINT] => [~NAME] => Высота закладного элемента фундамента [~DEFAULT_VALUE] => [VALUE_ENUM] => [VALUE_XML_ID] => [VALUE_SORT] => [VALUE] => [PROPERTY_VALUE_ID] => [DESCRIPTION] => [~DESCRIPTION] => [~VALUE] => ) [LENGTH_CONSOLE] => Array ( [ID] => 153 [IBLOCK_ID] => 2 [NAME] => Длина консоли [ACTIVE] => Y [SORT] => 500 [CODE] => LENGTH_CONSOLE [DEFAULT_VALUE] => [PROPERTY_TYPE] => S [ROW_COUNT] => 1 [COL_COUNT] => 30 [LIST_TYPE] => L [MULTIPLE] => N [XML_ID] => [FILE_TYPE] => [MULTIPLE_CNT] => 5 [LINK_IBLOCK_ID] => 0 [WITH_DESCRIPTION] => N [SEARCHABLE] => N [FILTRABLE] => N [IS_REQUIRED] => N [VERSION] => 1 [USER_TYPE] => [USER_TYPE_SETTINGS] => Array ( ) [HINT] => [~NAME] => Длина консоли [~DEFAULT_VALUE] => [VALUE_ENUM] => [VALUE_XML_ID] => [VALUE_SORT] => [VALUE] => [PROPERTY_VALUE_ID] => [DESCRIPTION] => [~DESCRIPTION] => [~VALUE] => ) [HEIGHT_TOP_SECTION] => Array ( [ID] => 154 [IBLOCK_ID] => 2 [NAME] => Высота верхней секции, мм [ACTIVE] => Y [SORT] => 500 [CODE] => HEIGHT_TOP_SECTION [DEFAULT_VALUE] => [PROPERTY_TYPE] => S [ROW_COUNT] => 1 [COL_COUNT] => 30 [LIST_TYPE] => L [MULTIPLE] => N [XML_ID] => [FILE_TYPE] => [MULTIPLE_CNT] => 5 [LINK_IBLOCK_ID] => 0 [WITH_DESCRIPTION] => N [SEARCHABLE] => N [FILTRABLE] => N [IS_REQUIRED] => N [VERSION] => 1 [USER_TYPE] => [USER_TYPE_SETTINGS] => Array ( ) [HINT] => [~NAME] => Высота верхней секции, мм [~DEFAULT_VALUE] => [VALUE_ENUM] => [VALUE_XML_ID] => [VALUE_SORT] => [VALUE] => [PROPERTY_VALUE_ID] => [DESCRIPTION] => [~DESCRIPTION] => [~VALUE] => ) [SIP] => Array ( [ID] => 156 [IBLOCK_ID] => 2 [NAME] => Возможность подвеса СИП [ACTIVE] => Y [SORT] => 500 [CODE] => SIP [DEFAULT_VALUE] => [PROPERTY_TYPE] => S [ROW_COUNT] => 1 [COL_COUNT] => 30 [LIST_TYPE] => L [MULTIPLE] => N [XML_ID] => [FILE_TYPE] => [MULTIPLE_CNT] => 5 [LINK_IBLOCK_ID] => 0 [WITH_DESCRIPTION] => N [SEARCHABLE] => N [FILTRABLE] => N [IS_REQUIRED] => N [VERSION] => 1 [USER_TYPE] => [USER_TYPE_SETTINGS] => Array ( ) [HINT] => [~NAME] => Возможность подвеса СИП [~DEFAULT_VALUE] => [VALUE_ENUM] => [VALUE_XML_ID] => [VALUE_SORT] => [VALUE] => [PROPERTY_VALUE_ID] => [DESCRIPTION] => [~DESCRIPTION] => [~VALUE] => ) [COUNT_GRANY] => Array ( [ID] => 157 [IBLOCK_ID] => 2 [NAME] => Количество граней [ACTIVE] => Y [SORT] => 500 [CODE] => COUNT_GRANY [DEFAULT_VALUE] => [PROPERTY_TYPE] => S [ROW_COUNT] => 1 [COL_COUNT] => 30 [LIST_TYPE] => L [MULTIPLE] => N [XML_ID] => [FILE_TYPE] => [MULTIPLE_CNT] => 5 [LINK_IBLOCK_ID] => 0 [WITH_DESCRIPTION] => N [SEARCHABLE] => N [FILTRABLE] => N [IS_REQUIRED] => N [VERSION] => 1 [USER_TYPE] => [USER_TYPE_SETTINGS] => Array ( ) [HINT] => [~NAME] => Количество граней [~DEFAULT_VALUE] => [VALUE_ENUM] => [VALUE_XML_ID] => [VALUE_SORT] => [VALUE] => [PROPERTY_VALUE_ID] => [DESCRIPTION] => [~DESCRIPTION] => [~VALUE] => ) [HEIGHT_BOTTOM_SECTION] => Array ( [ID] => 158 [IBLOCK_ID] => 2 [NAME] => Высота нижней секции, мм [ACTIVE] => Y [SORT] => 500 [CODE] => HEIGHT_BOTTOM_SECTION [DEFAULT_VALUE] => [PROPERTY_TYPE] => S [ROW_COUNT] => 1 [COL_COUNT] => 30 [LIST_TYPE] => L [MULTIPLE] => N [XML_ID] => [FILE_TYPE] => [MULTIPLE_CNT] => 5 [LINK_IBLOCK_ID] => 0 [WITH_DESCRIPTION] => N [SEARCHABLE] => N [FILTRABLE] => N [IS_REQUIRED] => N [VERSION] => 1 [USER_TYPE] => [USER_TYPE_SETTINGS] => Array ( ) [HINT] => [~NAME] => Высота нижней секции, мм [~DEFAULT_VALUE] => [VALUE_ENUM] => [VALUE_XML_ID] => [VALUE_SORT] => [VALUE] => [PROPERTY_VALUE_ID] => [DESCRIPTION] => [~DESCRIPTION] => [~VALUE] => ) [STEEL_THICKNESS] => Array ( [ID] => 160 [IBLOCK_ID] => 2 [NAME] => Толщина стали [ACTIVE] => Y [SORT] => 500 [CODE] => STEEL_THICKNESS [DEFAULT_VALUE] => [PROPERTY_TYPE] => S [ROW_COUNT] => 1 [COL_COUNT] => 30 [LIST_TYPE] => L [MULTIPLE] => N [XML_ID] => [FILE_TYPE] => [MULTIPLE_CNT] => 5 [LINK_IBLOCK_ID] => 0 [WITH_DESCRIPTION] => N [SEARCHABLE] => N [FILTRABLE] => N [IS_REQUIRED] => N [VERSION] => 1 [USER_TYPE] => [USER_TYPE_SETTINGS] => Array ( ) [HINT] => [~NAME] => Толщина стали [~DEFAULT_VALUE] => [VALUE_ENUM] => [VALUE_XML_ID] => [VALUE_SORT] => [VALUE] => [PROPERTY_VALUE_ID] => [DESCRIPTION] => [~DESCRIPTION] => [~VALUE] => ) [SIZE_OPOR_FLANEC] => Array ( [ID] => 161 [IBLOCK_ID] => 2 [NAME] => Размеры опорного фланца [ACTIVE] => Y [SORT] => 500 [CODE] => SIZE_OPOR_FLANEC [DEFAULT_VALUE] => [PROPERTY_TYPE] => S [ROW_COUNT] => 1 [COL_COUNT] => 30 [LIST_TYPE] => L [MULTIPLE] => N [XML_ID] => [FILE_TYPE] => [MULTIPLE_CNT] => 5 [LINK_IBLOCK_ID] => 0 [WITH_DESCRIPTION] => N [SEARCHABLE] => N [FILTRABLE] => N [IS_REQUIRED] => N [VERSION] => 1 [USER_TYPE] => [USER_TYPE_SETTINGS] => Array ( ) [HINT] => [~NAME] => Размеры опорного фланца [~DEFAULT_VALUE] => [VALUE_ENUM] => [VALUE_XML_ID] => [VALUE_SORT] => [VALUE] => [PROPERTY_VALUE_ID] => [DESCRIPTION] => [~DESCRIPTION] => [~VALUE] => ) [POKRASKA] => Array ( [ID] => 162 [IBLOCK_ID] => 2 [NAME] => Лакокрасочное покрытие [ACTIVE] => Y [SORT] => 500 [CODE] => POKRASKA [DEFAULT_VALUE] => [PROPERTY_TYPE] => S [ROW_COUNT] => 1 [COL_COUNT] => 30 [LIST_TYPE] => L [MULTIPLE] => N [XML_ID] => [FILE_TYPE] => [MULTIPLE_CNT] => 5 [LINK_IBLOCK_ID] => 0 [WITH_DESCRIPTION] => N [SEARCHABLE] => N [FILTRABLE] => N [IS_REQUIRED] => N [VERSION] => 1 [USER_TYPE] => [USER_TYPE_SETTINGS] => Array ( ) [HINT] => [~NAME] => Лакокрасочное покрытие [~DEFAULT_VALUE] => [VALUE_ENUM] => [VALUE_XML_ID] => [VALUE_SORT] => [VALUE] => [PROPERTY_VALUE_ID] => [DESCRIPTION] => [~DESCRIPTION] => [~VALUE] => ) [VES] => Array ( [ID] => 163 [IBLOCK_ID] => 2 [NAME] => Вес [ACTIVE] => Y [SORT] => 500 [CODE] => VES [DEFAULT_VALUE] => [PROPERTY_TYPE] => S [ROW_COUNT] => 1 [COL_COUNT] => 30 [LIST_TYPE] => L [MULTIPLE] => N [XML_ID] => [FILE_TYPE] => [MULTIPLE_CNT] => 5 [LINK_IBLOCK_ID] => 0 [WITH_DESCRIPTION] => N [SEARCHABLE] => N [FILTRABLE] => N [IS_REQUIRED] => N [VERSION] => 1 [USER_TYPE] => [USER_TYPE_SETTINGS] => Array ( ) [HINT] => [~NAME] => Вес [~DEFAULT_VALUE] => [VALUE_ENUM] => [VALUE_XML_ID] => [VALUE_SORT] => [VALUE] => [PROPERTY_VALUE_ID] => [DESCRIPTION] => [~DESCRIPTION] => [~VALUE] => ) [INSTALL_LYUCHKA] => Array ( [ID] => 164 [IBLOCK_ID] => 2 [NAME] => Возможность установки лючка [ACTIVE] => Y [SORT] => 500 [CODE] => INSTALL_LYUCHKA [DEFAULT_VALUE] => [PROPERTY_TYPE] => S [ROW_COUNT] => 1 [COL_COUNT] => 30 [LIST_TYPE] => L [MULTIPLE] => N [XML_ID] => [FILE_TYPE] => [MULTIPLE_CNT] => 5 [LINK_IBLOCK_ID] => 0 [WITH_DESCRIPTION] => N [SEARCHABLE] => N [FILTRABLE] => N [IS_REQUIRED] => N [VERSION] => 1 [USER_TYPE] => [USER_TYPE_SETTINGS] => Array ( ) [HINT] => [~NAME] => Возможность установки лючка [~DEFAULT_VALUE] => [VALUE_ENUM] => [VALUE_XML_ID] => [VALUE_SORT] => [VALUE] => [PROPERTY_VALUE_ID] => [DESCRIPTION] => [~DESCRIPTION] => [~VALUE] => ) [DIAMETER_FLANCA] => Array ( [ID] => 165 [IBLOCK_ID] => 2 [NAME] => Диаметр фланца, мм [ACTIVE] => Y [SORT] => 500 [CODE] => DIAMETER_FLANCA [DEFAULT_VALUE] => [PROPERTY_TYPE] => S [ROW_COUNT] => 1 [COL_COUNT] => 30 [LIST_TYPE] => L [MULTIPLE] => N [XML_ID] => [FILE_TYPE] => [MULTIPLE_CNT] => 5 [LINK_IBLOCK_ID] => 0 [WITH_DESCRIPTION] => N [SEARCHABLE] => N [FILTRABLE] => N [IS_REQUIRED] => N [VERSION] => 1 [USER_TYPE] => [USER_TYPE_SETTINGS] => Array ( ) [HINT] => [~NAME] => Диаметр фланца, мм [~DEFAULT_VALUE] => [VALUE_ENUM] => [VALUE_XML_ID] => [VALUE_SORT] => [VALUE] => [PROPERTY_VALUE_ID] => [DESCRIPTION] => [~DESCRIPTION] => [~VALUE] => ) [COUNT_LIGHT] => Array ( [ID] => 166 [IBLOCK_ID] => 2 [NAME] => Количество осветительных приборов, шт [ACTIVE] => Y [SORT] => 500 [CODE] => COUNT_LIGHT [DEFAULT_VALUE] => [PROPERTY_TYPE] => S [ROW_COUNT] => 1 [COL_COUNT] => 30 [LIST_TYPE] => L [MULTIPLE] => N [XML_ID] => [FILE_TYPE] => [MULTIPLE_CNT] => 5 [LINK_IBLOCK_ID] => 0 [WITH_DESCRIPTION] => N [SEARCHABLE] => N [FILTRABLE] => N [IS_REQUIRED] => N [VERSION] => 1 [USER_TYPE] => [USER_TYPE_SETTINGS] => Array ( ) [HINT] => [~NAME] => Количество осветительных приборов, шт [~DEFAULT_VALUE] => [VALUE_ENUM] => [VALUE_XML_ID] => [VALUE_SORT] => [VALUE] => [PROPERTY_VALUE_ID] => [DESCRIPTION] => [~DESCRIPTION] => [~VALUE] => ) [WEIGHT_TO_KRON] => Array ( [ID] => 167 [IBLOCK_ID] => 2 [NAME] => Высота до кронштейна, мм [ACTIVE] => Y [SORT] => 500 [CODE] => WEIGHT_TO_KRON [DEFAULT_VALUE] => [PROPERTY_TYPE] => S [ROW_COUNT] => 1 [COL_COUNT] => 30 [LIST_TYPE] => L [MULTIPLE] => N [XML_ID] => [FILE_TYPE] => [MULTIPLE_CNT] => 5 [LINK_IBLOCK_ID] => 0 [WITH_DESCRIPTION] => N [SEARCHABLE] => N [FILTRABLE] => N [IS_REQUIRED] => N [VERSION] => 1 [USER_TYPE] => [USER_TYPE_SETTINGS] => Array ( ) [HINT] => [~NAME] => Высота до кронштейна, мм [~DEFAULT_VALUE] => [VALUE_ENUM] => [VALUE_XML_ID] => [VALUE_SORT] => [VALUE] => [PROPERTY_VALUE_ID] => [DESCRIPTION] => [~DESCRIPTION] => [~VALUE] => ) [SIZE_FLANEC] => Array ( [ID] => 169 [IBLOCK_ID] => 2 [NAME] => Размер фланца [ACTIVE] => Y [SORT] => 500 [CODE] => SIZE_FLANEC [DEFAULT_VALUE] => [PROPERTY_TYPE] => S [ROW_COUNT] => 1 [COL_COUNT] => 30 [LIST_TYPE] => L [MULTIPLE] => N [XML_ID] => [FILE_TYPE] => [MULTIPLE_CNT] => 5 [LINK_IBLOCK_ID] => 0 [WITH_DESCRIPTION] => N [SEARCHABLE] => N [FILTRABLE] => N [IS_REQUIRED] => N [VERSION] => 1 [USER_TYPE] => [USER_TYPE_SETTINGS] => Array ( ) [HINT] => [~NAME] => Размер фланца [~DEFAULT_VALUE] => [VALUE_ENUM] => [VALUE_XML_ID] => [VALUE_SORT] => [VALUE] => [PROPERTY_VALUE_ID] => [DESCRIPTION] => [~DESCRIPTION] => [~VALUE] => ) [WEIGHT_MIDDLE_SECTION] => Array ( [ID] => 170 [IBLOCK_ID] => 2 [NAME] => Высота промежуточной секции, мм [ACTIVE] => Y [SORT] => 500 [CODE] => WEIGHT_MIDDLE_SECTION [DEFAULT_VALUE] => [PROPERTY_TYPE] => S [ROW_COUNT] => 1 [COL_COUNT] => 30 [LIST_TYPE] => L [MULTIPLE] => N [XML_ID] => [FILE_TYPE] => [MULTIPLE_CNT] => 5 [LINK_IBLOCK_ID] => 0 [WITH_DESCRIPTION] => N [SEARCHABLE] => N [FILTRABLE] => N [IS_REQUIRED] => N [VERSION] => 1 [USER_TYPE] => [USER_TYPE_SETTINGS] => Array ( ) [HINT] => [~NAME] => Высота промежуточной секции, мм [~DEFAULT_VALUE] => [VALUE_ENUM] => [VALUE_XML_ID] => [VALUE_SORT] => [VALUE] => [PROPERTY_VALUE_ID] => [DESCRIPTION] => [~DESCRIPTION] => [~VALUE] => ) [DEFEND_POKRYTIE] => Array ( [ID] => 171 [IBLOCK_ID] => 2 [NAME] => Защитное покрытие [ACTIVE] => Y [SORT] => 500 [CODE] => DEFEND_POKRYTIE [DEFAULT_VALUE] => [PROPERTY_TYPE] => S [ROW_COUNT] => 1 [COL_COUNT] => 30 [LIST_TYPE] => L [MULTIPLE] => N [XML_ID] => [FILE_TYPE] => [MULTIPLE_CNT] => 5 [LINK_IBLOCK_ID] => 0 [WITH_DESCRIPTION] => N [SEARCHABLE] => N [FILTRABLE] => N [IS_REQUIRED] => N [VERSION] => 1 [USER_TYPE] => [USER_TYPE_SETTINGS] => Array ( ) [HINT] => [~NAME] => Защитное покрытие [~DEFAULT_VALUE] => [VALUE_ENUM] => [VALUE_XML_ID] => [VALUE_SORT] => [VALUE] => [PROPERTY_VALUE_ID] => [DESCRIPTION] => [~DESCRIPTION] => [~VALUE] => ) [WIND_REGION] => Array ( [ID] => 172 [IBLOCK_ID] => 2 [NAME] => Ветровой район [ACTIVE] => Y [SORT] => 500 [CODE] => WIND_REGION [DEFAULT_VALUE] => [PROPERTY_TYPE] => S [ROW_COUNT] => 1 [COL_COUNT] => 30 [LIST_TYPE] => L [MULTIPLE] => N [XML_ID] => [FILE_TYPE] => [MULTIPLE_CNT] => 5 [LINK_IBLOCK_ID] => 0 [WITH_DESCRIPTION] => N [SEARCHABLE] => N [FILTRABLE] => N [IS_REQUIRED] => N [VERSION] => 1 [USER_TYPE] => [USER_TYPE_SETTINGS] => Array ( ) [HINT] => [~NAME] => Ветровой район [~DEFAULT_VALUE] => [VALUE_ENUM] => [VALUE_XML_ID] => [VALUE_SORT] => [VALUE] => [PROPERTY_VALUE_ID] => [DESCRIPTION] => [~DESCRIPTION] => [~VALUE] => ) [DIAMETER_OPOR_FLANCA] => Array ( [ID] => 173 [IBLOCK_ID] => 2 [NAME] => Диаметр опорного фланца, мм [ACTIVE] => Y [SORT] => 500 [CODE] => DIAMETER_OPOR_FLANCA [DEFAULT_VALUE] => [PROPERTY_TYPE] => S [ROW_COUNT] => 1 [COL_COUNT] => 30 [LIST_TYPE] => L [MULTIPLE] => N [XML_ID] => [FILE_TYPE] => [MULTIPLE_CNT] => 5 [LINK_IBLOCK_ID] => 0 [WITH_DESCRIPTION] => N [SEARCHABLE] => N [FILTRABLE] => N [IS_REQUIRED] => N [VERSION] => 1 [USER_TYPE] => [USER_TYPE_SETTINGS] => Array ( ) [HINT] => [~NAME] => Диаметр опорного фланца, мм [~DEFAULT_VALUE] => [VALUE_ENUM] => [VALUE_XML_ID] => [VALUE_SORT] => [VALUE] => [PROPERTY_VALUE_ID] => [DESCRIPTION] => [~DESCRIPTION] => [~VALUE] => ) [CENTER_DIST] => Array ( [ID] => 174 [IBLOCK_ID] => 2 [NAME] => Межцентровое расстояние, мм [ACTIVE] => Y [SORT] => 500 [CODE] => CENTER_DIST [DEFAULT_VALUE] => [PROPERTY_TYPE] => S [ROW_COUNT] => 1 [COL_COUNT] => 30 [LIST_TYPE] => L [MULTIPLE] => N [XML_ID] => [FILE_TYPE] => [MULTIPLE_CNT] => 5 [LINK_IBLOCK_ID] => 0 [WITH_DESCRIPTION] => N [SEARCHABLE] => N [FILTRABLE] => N [IS_REQUIRED] => N [VERSION] => 1 [USER_TYPE] => [USER_TYPE_SETTINGS] => Array ( ) [HINT] => [~NAME] => Межцентровое расстояние, мм [~DEFAULT_VALUE] => [VALUE_ENUM] => [VALUE_XML_ID] => [VALUE_SORT] => [VALUE] => [PROPERTY_VALUE_ID] => [DESCRIPTION] => [~DESCRIPTION] => [~VALUE] => ) [FLANEC_THICKNESS] => Array ( [ID] => 175 [IBLOCK_ID] => 2 [NAME] => Толщина фланца, мм [ACTIVE] => Y [SORT] => 500 [CODE] => FLANEC_THICKNESS [DEFAULT_VALUE] => [PROPERTY_TYPE] => S [ROW_COUNT] => 1 [COL_COUNT] => 30 [LIST_TYPE] => L [MULTIPLE] => N [XML_ID] => [FILE_TYPE] => [MULTIPLE_CNT] => 5 [LINK_IBLOCK_ID] => 0 [WITH_DESCRIPTION] => N [SEARCHABLE] => N [FILTRABLE] => N [IS_REQUIRED] => N [VERSION] => 1 [USER_TYPE] => [USER_TYPE_SETTINGS] => Array ( ) [HINT] => [~NAME] => Толщина фланца, мм [~DEFAULT_VALUE] => [VALUE_ENUM] => [VALUE_XML_ID] => [VALUE_SORT] => [VALUE] => [PROPERTY_VALUE_ID] => [DESCRIPTION] => [~DESCRIPTION] => [~VALUE] => ) [COUNT_HOLE] => Array ( [ID] => 176 [IBLOCK_ID] => 2 [NAME] => Количество отверстий крепления, шт [ACTIVE] => Y [SORT] => 500 [CODE] => COUNT_HOLE [DEFAULT_VALUE] => [PROPERTY_TYPE] => S [ROW_COUNT] => 1 [COL_COUNT] => 30 [LIST_TYPE] => L [MULTIPLE] => N [XML_ID] => [FILE_TYPE] => [MULTIPLE_CNT] => 5 [LINK_IBLOCK_ID] => 0 [WITH_DESCRIPTION] => N [SEARCHABLE] => N [FILTRABLE] => N [IS_REQUIRED] => N [VERSION] => 1 [USER_TYPE] => [USER_TYPE_SETTINGS] => Array ( ) [HINT] => [~NAME] => Количество отверстий крепления, шт [~DEFAULT_VALUE] => [VALUE_ENUM] => [VALUE_XML_ID] => [VALUE_SORT] => [VALUE] => [PROPERTY_VALUE_ID] => [DESCRIPTION] => [~DESCRIPTION] => [~VALUE] => ) [INSPECTION_WINDOW] => Array ( [ID] => 179 [IBLOCK_ID] => 2 [NAME] => Ревизионное окно, мм [ACTIVE] => Y [SORT] => 500 [CODE] => INSPECTION_WINDOW [DEFAULT_VALUE] => [PROPERTY_TYPE] => S [ROW_COUNT] => 1 [COL_COUNT] => 30 [LIST_TYPE] => L [MULTIPLE] => N [XML_ID] => [FILE_TYPE] => [MULTIPLE_CNT] => 5 [LINK_IBLOCK_ID] => 0 [WITH_DESCRIPTION] => N [SEARCHABLE] => N [FILTRABLE] => N [IS_REQUIRED] => N [VERSION] => 1 [USER_TYPE] => [USER_TYPE_SETTINGS] => Array ( ) [HINT] => [~NAME] => Ревизионное окно, мм [~DEFAULT_VALUE] => [VALUE_ENUM] => [VALUE_XML_ID] => [VALUE_SORT] => [VALUE] => [PROPERTY_VALUE_ID] => [DESCRIPTION] => [~DESCRIPTION] => [~VALUE] => ) [THREE_MODEL] => Array ( [ID] => 182 [IBLOCK_ID] => 2 [NAME] => 3D-модель [ACTIVE] => Y [SORT] => 500 [CODE] => THREE_MODEL [DEFAULT_VALUE] => [PROPERTY_TYPE] => F [ROW_COUNT] => 1 [COL_COUNT] => 30 [LIST_TYPE] => L [MULTIPLE] => N [XML_ID] => [FILE_TYPE] => [MULTIPLE_CNT] => 5 [LINK_IBLOCK_ID] => 0 [WITH_DESCRIPTION] => N [SEARCHABLE] => N [FILTRABLE] => N [IS_REQUIRED] => N [VERSION] => 1 [USER_TYPE] => [USER_TYPE_SETTINGS] => Array ( ) [HINT] => [~NAME] => 3D-модель [~DEFAULT_VALUE] => [VALUE_ENUM] => [VALUE_XML_ID] => [VALUE_SORT] => [VALUE] => [PROPERTY_VALUE_ID] => [DESCRIPTION] => [~DESCRIPTION] => [~VALUE] => ) [FAQ] => Array ( [ID] => 183 [IBLOCK_ID] => 2 [NAME] => FAQ [ACTIVE] => Y [SORT] => 500 [CODE] => FAQ [DEFAULT_VALUE] => Array ( [TYPE] => TEXT [TEXT] => ) [PROPERTY_TYPE] => S [ROW_COUNT] => 1 [COL_COUNT] => 30 [LIST_TYPE] => L [MULTIPLE] => N [XML_ID] => [FILE_TYPE] => [MULTIPLE_CNT] => 5 [LINK_IBLOCK_ID] => 0 [WITH_DESCRIPTION] => N [SEARCHABLE] => N [FILTRABLE] => N [IS_REQUIRED] => N [VERSION] => 1 [USER_TYPE] => HTML [USER_TYPE_SETTINGS] => Array ( [height] => 200 ) [HINT] => [~NAME] => FAQ [~DEFAULT_VALUE] => Array ( [TYPE] => TEXT [TEXT] => ) [VALUE_ENUM] => [VALUE_XML_ID] => [VALUE_SORT] => [VALUE] => [PROPERTY_VALUE_ID] => [DESCRIPTION] => [~DESCRIPTION] => [~VALUE] => ) ) [DISPLAY_PROPERTIES] => Array ( [ITEM_PRICE] => Array ( [ID] => 22 [IBLOCK_ID] => 2 [NAME] => Цена [ACTIVE] => Y [SORT] => 3 [CODE] => ITEM_PRICE [DEFAULT_VALUE] => [PROPERTY_TYPE] => L [ROW_COUNT] => 1 [COL_COUNT] => 30 [LIST_TYPE] => L [MULTIPLE] => N [XML_ID] => 22 [FILE_TYPE] => [MULTIPLE_CNT] => 5 [LINK_IBLOCK_ID] => 0 [WITH_DESCRIPTION] => N [SEARCHABLE] => N [FILTRABLE] => N [IS_REQUIRED] => Y [VERSION] => 1 [USER_TYPE] => [USER_TYPE_SETTINGS] => Array ( ) [HINT] => [~NAME] => Цена [~DEFAULT_VALUE] => [VALUE_ENUM] => По запросу [VALUE_XML_ID] => on-request [VALUE_SORT] => 1 [VALUE] => По запросу [PROPERTY_VALUE_ID] => 6825413 [VALUE_ENUM_ID] => 9 [DESCRIPTION] => [~VALUE] => По запросу [~DESCRIPTION] => [DISPLAY_VALUE] => По запросу ) [ITEM_CHARACTERISTICS] => Array ( [ID] => 28 [IBLOCK_ID] => 2 [NAME] => Характеристики [ACTIVE] => Y [SORT] => 6 [CODE] => ITEM_CHARACTERISTICS [DEFAULT_VALUE] => [PROPERTY_TYPE] => S [ROW_COUNT] => 1 [COL_COUNT] => 20 [LIST_TYPE] => L [MULTIPLE] => Y [XML_ID] => 28 [FILE_TYPE] => [MULTIPLE_CNT] => 1 [LINK_IBLOCK_ID] => 0 [WITH_DESCRIPTION] => Y [SEARCHABLE] => N [FILTRABLE] => N [IS_REQUIRED] => N [VERSION] => 1 [USER_TYPE] => [USER_TYPE_SETTINGS] => Array ( ) [HINT] => [~NAME] => Характеристики [~DEFAULT_VALUE] => [VALUE_ENUM] => [VALUE_XML_ID] => [VALUE_SORT] => [VALUE] => Array ( [0] => прямостоечная [1] => граненая [2] => 28500 [3] => 19200 [4] => 466 [5] => 730 [6] => 1 [7] => Горячее цинкование [8] => Порошковое / полимерное окрашивание [9] => 30 лет ) [PROPERTY_VALUE_ID] => Array ( [0] => 6825414 [1] => 6825415 [2] => 6825416 [3] => 6825417 [4] => 6825418 [5] => 6825419 [6] => 6825420 [7] => 6825421 [8] => 6825422 [9] => 6825423 ) [DESCRIPTION] => Array ( [0] => Способ установки [1] => Способ производства [2] => Высота, мм [3] => Высота до нижней траверсы, мм [4] => Диаметр верхний, мм [5] => Диаметр нижний, мм [6] => Число стоек на опору, шт [7] => Защитное покрытие [8] => Лакокрасочное покрытие [9] => Срок службы ) [~VALUE] => Array ( [0] => прямостоечная [1] => граненая [2] => 28500 [3] => 19200 [4] => 466 [5] => 730 [6] => 1 [7] => Горячее цинкование [8] => Порошковое / полимерное окрашивание [9] => 30 лет ) [~DESCRIPTION] => Array ( [0] => Способ установки [1] => Способ производства [2] => Высота, мм [3] => Высота до нижней траверсы, мм [4] => Диаметр верхний, мм [5] => Диаметр нижний, мм [6] => Число стоек на опору, шт [7] => Защитное покрытие [8] => Лакокрасочное покрытие [9] => Срок службы ) [DISPLAY_VALUE] => Array ( [0] => прямостоечная [1] => граненая [2] => 28500 [3] => 19200 [4] => 466 [5] => 730 [6] => 1 [7] => Горячее цинкование [8] => Порошковое / полимерное окрашивание [9] => 30 лет ) ) ) [PRODUCT_PROPERTIES] => Array ( ) [PRODUCT_PROPERTIES_FILL] => Array ( ) [OFFERS] => Array ( ) [OFFER_ID_SELECTED] => 0 [CHECK_QUANTITY] => [ITEM_PRICE_MODE] => [ITEM_PRICES] => Array ( ) [ITEM_QUANTITY_RANGES] => Array ( ) [ITEM_MEASURE_RATIOS] => Array ( [2944] => Array ( [ID] => 2944 [RATIO] => 1 [IS_DEFAULT] => Y [PRODUCT_ID] => 15367 ) ) [ITEM_MEASURE] => Array ( [ID] => 5 [TITLE] => шт [~TITLE] => шт ) [ITEM_MEASURE_RATIO_SELECTED] => 2944 [ITEM_QUANTITY_RANGE_SELECTED] => [ITEM_PRICE_SELECTED] => [EDIT_LINK] => [DELETE_LINK] => [SECTION] => Array ( [PATH] => Array ( ) ) [CAN_BUY] => )
В наличии
Способ установки: фланцевая
Способ производства: граненая
Высота, мм: 35700
Цена по запросу
Array
(
    [ID] => 15365
    [~ID] => 15365
    [IBLOCK_ID] => 2
    [~IBLOCK_ID] => 2
    [CODE] => pm220-2rtr
    [~CODE] => pm220-2rtr
    [XML_ID] => 15365
    [~XML_ID] => 15365
    [NAME] => Многогранная опора ПМ220-2РТр
    [~NAME] => Многогранная опора ПМ220-2РТр
    [ACTIVE] => Y
    [~ACTIVE] => Y
    [DATE_ACTIVE_FROM] => 
    [~DATE_ACTIVE_FROM] => 
    [DATE_ACTIVE_TO] => 
    [~DATE_ACTIVE_TO] => 
    [SORT] => 0
    [~SORT] => 0
    [PREVIEW_TEXT] => 
    [~PREVIEW_TEXT] => 
    [PREVIEW_TEXT_TYPE] => text
    [~PREVIEW_TEXT_TYPE] => text
    [DETAIL_TEXT] => 

Многогранная опора ПМ220-2РТр (шифр 27.0009) представляет собой одностоечную свободностоящую конструкцию для строительства и реконструкции высоковольтных линий электропередачи напряжением 220 кВ. Конструкция является двухцепной, что позволяет разместить на одной опоре два независимых комплекта проводов, эффективно оптимизируя использование земельного ресурса. Общая высота опоры составляет 35,7 метра, что обеспечивает необходимое габаритное расстояние до земли и между цепями. Для гарантированной защиты от коррозии и длительной службы в условиях эксплуатации на открытом воздухе все стальные элементы проходят горячее цинкование. Конструкция предназначена для работы в ветровых и гололедных районах с I по IV тип, подтверждая свою надежность в различных климатических зонах России.

Конструкция опоры выполнена в виде конического граненого ствола, собранного из секций. Сечение ствола переменное: в нижней части оно составляет 1220 мм, а в верхней — 500 мм, что обеспечивает оптимальное распределение механических нагрузок. Опорная часть оборудована фланцем для надежного крепления к заранее подготовленному железобетонному фундаменту анкерными болтами. Монтаж опоры в рабочее положение осуществляется путем сборки секций и последующего фланцевого соединения с фундаментом. Все детали поставляются в разобранном виде, что упрощает их транспортировку к месту установки даже в труднодоступные районы. Схема подвески проводов запроектирована со смешанным расположением фаз, что соответствует современным требованиям к электромагнитной совместимости.

[~DETAIL_TEXT] =>

Многогранная опора ПМ220-2РТр (шифр 27.0009) представляет собой одностоечную свободностоящую конструкцию для строительства и реконструкции высоковольтных линий электропередачи напряжением 220 кВ. Конструкция является двухцепной, что позволяет разместить на одной опоре два независимых комплекта проводов, эффективно оптимизируя использование земельного ресурса. Общая высота опоры составляет 35,7 метра, что обеспечивает необходимое габаритное расстояние до земли и между цепями. Для гарантированной защиты от коррозии и длительной службы в условиях эксплуатации на открытом воздухе все стальные элементы проходят горячее цинкование. Конструкция предназначена для работы в ветровых и гололедных районах с I по IV тип, подтверждая свою надежность в различных климатических зонах России.

Конструкция опоры выполнена в виде конического граненого ствола, собранного из секций. Сечение ствола переменное: в нижней части оно составляет 1220 мм, а в верхней — 500 мм, что обеспечивает оптимальное распределение механических нагрузок. Опорная часть оборудована фланцем для надежного крепления к заранее подготовленному железобетонному фундаменту анкерными болтами. Монтаж опоры в рабочее положение осуществляется путем сборки секций и последующего фланцевого соединения с фундаментом. Все детали поставляются в разобранном виде, что упрощает их транспортировку к месту установки даже в труднодоступные районы. Схема подвески проводов запроектирована со смешанным расположением фаз, что соответствует современным требованиям к электромагнитной совместимости.

[DETAIL_TEXT_TYPE] => html [~DETAIL_TEXT_TYPE] => html [DATE_CREATE] => 07.11.2023 15:10:01 [~DATE_CREATE] => 07.11.2023 15:10:01 [CREATED_BY] => 1 [~CREATED_BY] => 1 [TAGS] => [~TAGS] => [TIMESTAMP_X] => 15.12.2025 12:57:25 [~TIMESTAMP_X] => 15.12.2025 12:57:25 [MODIFIED_BY] => 1 [~MODIFIED_BY] => 1 [IBLOCK_SECTION_ID] => 2756 [~IBLOCK_SECTION_ID] => 2960 [DETAIL_PAGE_URL] => /product/pm220-2rtr/ [~DETAIL_PAGE_URL] => /product/pm220-2rtr/ [DETAIL_PICTURE] => [~DETAIL_PICTURE] => [PREVIEW_PICTURE] => Array ( [ID] => 35277 [TIMESTAMP_X] => 15.12.2025 12:57:25 [MODULE_ID] => iblock [HEIGHT] => 1000 [WIDTH] => 1000 [FILE_SIZE] => 127097 [CONTENT_TYPE] => image/jpeg [SUBDIR] => iblock/cfe/ew7z5wvzfvn2t24cmmw46qncxvdo3c2c [FILE_NAME] => catalog_file_2086_l.jpg [ORIGINAL_NAME] => catalog-file-2086-l.jpg [DESCRIPTION] => [HANDLER_ID] => [EXTERNAL_ID] => cabdbde286ee907c22c4091cb875bb33 [VERSION_ORIGINAL_ID] => [META] => [SRC] => /upload/dev2fun.imagecompress/webp/iblock/cfe/ew7z5wvzfvn2t24cmmw46qncxvdo3c2c/catalog_file_2086_l.webp [UNSAFE_SRC] => /upload/dev2fun.imagecompress/webp/iblock/cfe/ew7z5wvzfvn2t24cmmw46qncxvdo3c2c/catalog_file_2086_l.webp [SAFE_SRC] => /upload/dev2fun.imagecompress/webp/iblock/cfe/ew7z5wvzfvn2t24cmmw46qncxvdo3c2c/catalog_file_2086_l.webp [ALT] => Многогранная опора ПМ220-2РТр [TITLE] => Многогранная опора ПМ220-2РТр ) [~PREVIEW_PICTURE] => 35277 [LANG_DIR] => / [~LANG_DIR] => / [EXTERNAL_ID] => 15365 [~EXTERNAL_ID] => 15365 [IBLOCK_TYPE_ID] => catalog [~IBLOCK_TYPE_ID] => catalog [IBLOCK_CODE] => metalstructures [~IBLOCK_CODE] => metalstructures [IBLOCK_EXTERNAL_ID] => clothes [~IBLOCK_EXTERNAL_ID] => clothes [LID] => s1 [~LID] => s1 [IPROPERTY_VALUES] => Array ( [ELEMENT_DETAIL_PICTURE_FILE_NAME] => [ELEMENT_PREVIEW_PICTURE_FILE_NAME] => [SECTION_DETAIL_PICTURE_FILE_NAME] => [SECTION_PICTURE_FILE_NAME] => [SECTION_PAGE_TITLE] => Многогранная опора ПМ220-2РТр [ELEMENT_PAGE_TITLE] => Многогранная опора ПМ220-2РТр [SECTION_META_TITLE] => Многогранные опоры ВЛ 220 кВ купить в {{rp}} на сайте производителя НПО Легион [SECTION_META_DESCRIPTION] => Производство Многогранных опор ВЛ 220 кВ. Купить напрямую у производителя в {{rp}}. Собственное производство. Наличие товара на складе. Звоните ☎ {{subdomain_tel}} [SECTION_META_KEYWORDS] => Многоранные опоры ЛЭП производство продажа купить Многогранных опор ВЛ 220 кВ для линий электропередач [ELEMENT_META_TITLE] => Многогранная опора ПМ220-2РТр для высоковольтных линий 220 кВ купить в {{rp}} на сайте производителя НПО Легион [ELEMENT_META_DESCRIPTION] => Производство стальных многогранных опор ПМ220-2РТр для высоковольтных линий 220 кВ по шифру 27.0009 в {{rp}}. Заказать многогранные опоры ЛЭП у производителя НПО Легион. Наличие товара на складе. Звоните ☎ {{subdomain_tel}} [ELEMENT_META_KEYWORDS] => Многогранные опоры ПМ220-2РТр ЛЭП производство продажа купить многогранные ВЛ 220кВ для линий электропередач шифру 27.0009 ) [PRODUCT] => Array ( [TYPE] => 1 [AVAILABLE] => Y [BUNDLE] => N [QUANTITY] => 10 [QUANTITY_TRACE] => N [CAN_BUY_ZERO] => Y [MEASURE] => 5 [SUBSCRIBE] => Y [VAT_ID] => 0 [VAT_RATE] => 0 [VAT_INCLUDED] => N [WEIGHT] => 0 [WIDTH] => 0 [LENGTH] => 0 [HEIGHT] => 0 [PAYMENT_TYPE] => S [RECUR_SCHEME_TYPE] => D [RECUR_SCHEME_LENGTH] => 0 [TRIAL_PRICE_ID] => 0 [USE_OFFERS] => ) [~CATALOG_TYPE] => 1 [CATALOG_TYPE] => 1 [~CATALOG_QUANTITY] => 10 [CATALOG_QUANTITY] => 10 [~CATALOG_QUANTITY_TRACE] => N [CATALOG_QUANTITY_TRACE] => N [~CATALOG_CAN_BUY_ZERO] => Y [CATALOG_CAN_BUY_ZERO] => Y [~CATALOG_SUBSCRIBE] => Y [CATALOG_SUBSCRIBE] => Y [PROPERTIES] => Array ( [ITEM_DELIVERY] => Array ( [ID] => 20 [IBLOCK_ID] => 2 [NAME] => Доставка [ACTIVE] => Y [SORT] => 1 [CODE] => ITEM_DELIVERY [DEFAULT_VALUE] => [PROPERTY_TYPE] => L [ROW_COUNT] => 1 [COL_COUNT] => 30 [LIST_TYPE] => L [MULTIPLE] => N [XML_ID] => 20 [FILE_TYPE] => [MULTIPLE_CNT] => 5 [LINK_IBLOCK_ID] => 0 [WITH_DESCRIPTION] => N [SEARCHABLE] => N [FILTRABLE] => N [IS_REQUIRED] => Y [VERSION] => 1 [USER_TYPE] => [USER_TYPE_SETTINGS] => Array ( ) [HINT] => [~NAME] => Доставка [~DEFAULT_VALUE] => [VALUE_ENUM] => По России и СНГ [VALUE_XML_ID] => ru-sng [VALUE_SORT] => 1 [VALUE] => По России и СНГ [PROPERTY_VALUE_ID] => 6825556 [VALUE_ENUM_ID] => 7 [DESCRIPTION] => [~VALUE] => По России и СНГ [~DESCRIPTION] => ) [ITEM_PAYMENT] => Array ( [ID] => 21 [IBLOCK_ID] => 2 [NAME] => Оплата [ACTIVE] => Y [SORT] => 2 [CODE] => ITEM_PAYMENT [DEFAULT_VALUE] => [PROPERTY_TYPE] => L [ROW_COUNT] => 1 [COL_COUNT] => 30 [LIST_TYPE] => L [MULTIPLE] => N [XML_ID] => 21 [FILE_TYPE] => [MULTIPLE_CNT] => 5 [LINK_IBLOCK_ID] => 0 [WITH_DESCRIPTION] => N [SEARCHABLE] => N [FILTRABLE] => N [IS_REQUIRED] => Y [VERSION] => 1 [USER_TYPE] => [USER_TYPE_SETTINGS] => Array ( ) [HINT] => [~NAME] => Оплата [~DEFAULT_VALUE] => [VALUE_ENUM] => Безналичный расчет [VALUE_XML_ID] => payment-bank [VALUE_SORT] => 1 [VALUE] => Безналичный расчет [PROPERTY_VALUE_ID] => 6825557 [VALUE_ENUM_ID] => 8 [DESCRIPTION] => [~VALUE] => Безналичный расчет [~DESCRIPTION] => ) [ITEM_PRICE] => Array ( [ID] => 22 [IBLOCK_ID] => 2 [NAME] => Цена [ACTIVE] => Y [SORT] => 3 [CODE] => ITEM_PRICE [DEFAULT_VALUE] => [PROPERTY_TYPE] => L [ROW_COUNT] => 1 [COL_COUNT] => 30 [LIST_TYPE] => L [MULTIPLE] => N [XML_ID] => 22 [FILE_TYPE] => [MULTIPLE_CNT] => 5 [LINK_IBLOCK_ID] => 0 [WITH_DESCRIPTION] => N [SEARCHABLE] => N [FILTRABLE] => N [IS_REQUIRED] => Y [VERSION] => 1 [USER_TYPE] => [USER_TYPE_SETTINGS] => Array ( ) [HINT] => [~NAME] => Цена [~DEFAULT_VALUE] => [VALUE_ENUM] => По запросу [VALUE_XML_ID] => on-request [VALUE_SORT] => 1 [VALUE] => По запросу [PROPERTY_VALUE_ID] => 6825558 [VALUE_ENUM_ID] => 9 [DESCRIPTION] => [~VALUE] => По запросу [~DESCRIPTION] => ) [ITEM_IMAGES] => Array ( [ID] => 23 [IBLOCK_ID] => 2 [NAME] => Изображения [ACTIVE] => Y [SORT] => 4 [CODE] => ITEM_IMAGES [DEFAULT_VALUE] => [PROPERTY_TYPE] => F [ROW_COUNT] => 1 [COL_COUNT] => 30 [LIST_TYPE] => L [MULTIPLE] => Y [XML_ID] => 23 [FILE_TYPE] => [MULTIPLE_CNT] => 5 [LINK_IBLOCK_ID] => 0 [WITH_DESCRIPTION] => N [SEARCHABLE] => N [FILTRABLE] => N [IS_REQUIRED] => N [VERSION] => 1 [USER_TYPE] => [USER_TYPE_SETTINGS] => Array ( ) [HINT] => [~NAME] => Изображения [~DEFAULT_VALUE] => [VALUE_ENUM] => [VALUE_XML_ID] => [VALUE_SORT] => [VALUE] => Array ( [0] => 35278 ) [PROPERTY_VALUE_ID] => Array ( [0] => 5932966 ) [DESCRIPTION] => Array ( [0] => ) [~VALUE] => Array ( [0] => 35278 ) [~DESCRIPTION] => Array ( [0] => ) ) [ITEM_PROPERTIES] => Array ( [ID] => 24 [IBLOCK_ID] => 2 [NAME] => Свойства [ACTIVE] => Y [SORT] => 5 [CODE] => ITEM_PROPERTIES [DEFAULT_VALUE] => [PROPERTY_TYPE] => E [ROW_COUNT] => 1 [COL_COUNT] => 30 [LIST_TYPE] => L [MULTIPLE] => Y [XML_ID] => 24 [FILE_TYPE] => [MULTIPLE_CNT] => 1 [LINK_IBLOCK_ID] => 3 [WITH_DESCRIPTION] => N [SEARCHABLE] => N [FILTRABLE] => N [IS_REQUIRED] => N [VERSION] => 1 [USER_TYPE] => [USER_TYPE_SETTINGS] => Array ( ) [HINT] => [~NAME] => Свойства [~DEFAULT_VALUE] => [VALUE_ENUM] => [VALUE_XML_ID] => [VALUE_SORT] => [VALUE] => [PROPERTY_VALUE_ID] => [DESCRIPTION] => [~DESCRIPTION] => [~VALUE] => ) [ITEM_CHARACTERISTICS] => Array ( [ID] => 28 [IBLOCK_ID] => 2 [NAME] => Характеристики [ACTIVE] => Y [SORT] => 6 [CODE] => ITEM_CHARACTERISTICS [DEFAULT_VALUE] => [PROPERTY_TYPE] => S [ROW_COUNT] => 1 [COL_COUNT] => 20 [LIST_TYPE] => L [MULTIPLE] => Y [XML_ID] => 28 [FILE_TYPE] => [MULTIPLE_CNT] => 1 [LINK_IBLOCK_ID] => 0 [WITH_DESCRIPTION] => Y [SEARCHABLE] => N [FILTRABLE] => N [IS_REQUIRED] => N [VERSION] => 1 [USER_TYPE] => [USER_TYPE_SETTINGS] => Array ( ) [HINT] => [~NAME] => Характеристики [~DEFAULT_VALUE] => [VALUE_ENUM] => [VALUE_XML_ID] => [VALUE_SORT] => [VALUE] => Array ( [0] => фланцевая [1] => граненая [2] => 35700 [3] => 19000 [4] => 1220 [5] => 500 [6] => одностоечная свободностоящая [7] => горячее цинкование [8] => Порошковое / полимерное окрашивание [9] => 30 лет [10] => промежуточная ) [PROPERTY_VALUE_ID] => Array ( [0] => 6825177 [1] => 6825178 [2] => 6825179 [3] => 6825180 [4] => 6825181 [5] => 6825182 [6] => 6825183 [7] => 6825184 [8] => 6825185 [9] => 6825186 [10] => 6825559 ) [DESCRIPTION] => Array ( [0] => Способ установки [1] => Способ производства [2] => Высота, мм [3] => Высота до нижней траверсы, мм [4] => Диаметр нижний, мм [5] => Диаметр верхний, мм [6] => Конструкция [7] => Защитное покрытие [8] => Лакокрасочное покрытие [9] => Срок службы [10] => Назначение ) [~VALUE] => Array ( [0] => фланцевая [1] => граненая [2] => 35700 [3] => 19000 [4] => 1220 [5] => 500 [6] => одностоечная свободностоящая [7] => горячее цинкование [8] => Порошковое / полимерное окрашивание [9] => 30 лет [10] => промежуточная ) [~DESCRIPTION] => Array ( [0] => Способ установки [1] => Способ производства [2] => Высота, мм [3] => Высота до нижней траверсы, мм [4] => Диаметр нижний, мм [5] => Диаметр верхний, мм [6] => Конструкция [7] => Защитное покрытие [8] => Лакокрасочное покрытие [9] => Срок службы [10] => Назначение ) ) [ITEM_FILTER] => Array ( [ID] => 40 [IBLOCK_ID] => 2 [NAME] => Фильтр [ACTIVE] => Y [SORT] => 7 [CODE] => ITEM_FILTER [DEFAULT_VALUE] => [PROPERTY_TYPE] => S [ROW_COUNT] => 1 [COL_COUNT] => 30 [LIST_TYPE] => L [MULTIPLE] => N [XML_ID] => 40 [FILE_TYPE] => [MULTIPLE_CNT] => 5 [LINK_IBLOCK_ID] => 0 [WITH_DESCRIPTION] => N [SEARCHABLE] => N [FILTRABLE] => N [IS_REQUIRED] => N [VERSION] => 1 [USER_TYPE] => [USER_TYPE_SETTINGS] => Array ( ) [HINT] => [~NAME] => Фильтр [~DEFAULT_VALUE] => [VALUE_ENUM] => [VALUE_XML_ID] => [VALUE_SORT] => [VALUE] => [PROPERTY_VALUE_ID] => [DESCRIPTION] => [~DESCRIPTION] => [~VALUE] => ) [ITEM_TECH_CH] => Array ( [ID] => 29 [IBLOCK_ID] => 2 [NAME] => Технические характеристики [ACTIVE] => Y [SORT] => 8 [CODE] => ITEM_TECH_CH [DEFAULT_VALUE] => Array ( [TYPE] => HTML [TEXT] => ) [PROPERTY_TYPE] => S [ROW_COUNT] => 1 [COL_COUNT] => 30 [LIST_TYPE] => L [MULTIPLE] => N [XML_ID] => 29 [FILE_TYPE] => [MULTIPLE_CNT] => 5 [LINK_IBLOCK_ID] => 0 [WITH_DESCRIPTION] => N [SEARCHABLE] => N [FILTRABLE] => N [IS_REQUIRED] => N [VERSION] => 1 [USER_TYPE] => HTML [USER_TYPE_SETTINGS] => Array ( [height] => 200 ) [HINT] => [~NAME] => Технические характеристики [~DEFAULT_VALUE] => Array ( [TYPE] => HTML [TEXT] => ) [VALUE_ENUM] => [VALUE_XML_ID] => [VALUE_SORT] => [VALUE] => Array ( [TEXT] => <p style="text-align: justify;"> Опоры ПМ220-2РТр применяются при сооружении новых высоковольтных магистралей, обеспечивая надежную передачу электроэнергии на значительные расстояния. Данная модель также оптимальна для замены устаревших металлических или железобетонных опор при модернизации существующих линий, что позволяет увеличить их пропускную способность и надежность. Конструкция востребована для организации ответвлений от основных магистралей к крупным промышленным предприятиям или узловым подстанциям. Благодаря двухцепному исполнению опора эффективно используется на участках, где требуется компактное размещение трасс в условиях ограниченной просеки или сложного рельефа местности. </p> [TYPE] => HTML ) [PROPERTY_VALUE_ID] => 6825187 [DESCRIPTION] => [~VALUE] => Array ( [TEXT] =>

Опоры ПМ220-2РТр применяются при сооружении новых высоковольтных магистралей, обеспечивая надежную передачу электроэнергии на значительные расстояния. Данная модель также оптимальна для замены устаревших металлических или железобетонных опор при модернизации существующих линий, что позволяет увеличить их пропускную способность и надежность. Конструкция востребована для организации ответвлений от основных магистралей к крупным промышленным предприятиям или узловым подстанциям. Благодаря двухцепному исполнению опора эффективно используется на участках, где требуется компактное размещение трасс в условиях ограниченной просеки или сложного рельефа местности.

[TYPE] => HTML ) [~DESCRIPTION] => ) [ITEM_ADV_DESCR] => Array ( [ID] => 30 [IBLOCK_ID] => 2 [NAME] => Преимущества (описание) [ACTIVE] => Y [SORT] => 9 [CODE] => ITEM_ADV_DESCR [DEFAULT_VALUE] => Array ( [TYPE] => HTML [TEXT] => ) [PROPERTY_TYPE] => S [ROW_COUNT] => 1 [COL_COUNT] => 30 [LIST_TYPE] => L [MULTIPLE] => N [XML_ID] => 30 [FILE_TYPE] => [MULTIPLE_CNT] => 5 [LINK_IBLOCK_ID] => 0 [WITH_DESCRIPTION] => N [SEARCHABLE] => N [FILTRABLE] => N [IS_REQUIRED] => N [VERSION] => 1 [USER_TYPE] => HTML [USER_TYPE_SETTINGS] => Array ( [height] => 100 ) [HINT] => [~NAME] => Преимущества (описание) [~DEFAULT_VALUE] => Array ( [TYPE] => HTML [TEXT] => ) [VALUE_ENUM] => [VALUE_XML_ID] => [VALUE_SORT] => [VALUE] => Array ( [TEXT] => <p style="text-align: justify;"> Производство опор НПО «Легион» основано на применении современных технологий, обеспечивающих высокие эксплуатационные характеристики. Использование для изготовления качественной конструкционной стали марки С245 гарантирует необходимую прочность и несущую способность. Технология горячего цинкования по ГОСТ создает на поверхности металла барьерный слой, обеспечивающий защиту от атмосферной коррозии сроком не менее 30 лет без необходимости дополнительного обслуживания. Продуманная схема подвески проводов минимизирует влияние вибрации и гарантирует надежность контакта. Конструкция полностью соответствует требованиям действующих в России технических регламентов и стандартов для объектов электроэнергетики. Свободностоящее исполнение исключает необходимость использования оттяжек, что значительно экономит занимаемую площадь и упрощает монтаж. </p> [TYPE] => HTML ) [PROPERTY_VALUE_ID] => 6825188 [DESCRIPTION] => [~VALUE] => Array ( [TEXT] =>

Производство опор НПО «Легион» основано на применении современных технологий, обеспечивающих высокие эксплуатационные характеристики. Использование для изготовления качественной конструкционной стали марки С245 гарантирует необходимую прочность и несущую способность. Технология горячего цинкования по ГОСТ создает на поверхности металла барьерный слой, обеспечивающий защиту от атмосферной коррозии сроком не менее 30 лет без необходимости дополнительного обслуживания. Продуманная схема подвески проводов минимизирует влияние вибрации и гарантирует надежность контакта. Конструкция полностью соответствует требованиям действующих в России технических регламентов и стандартов для объектов электроэнергетики. Свободностоящее исполнение исключает необходимость использования оттяжек, что значительно экономит занимаемую площадь и упрощает монтаж.

[TYPE] => HTML ) [~DESCRIPTION] => ) [ITEM_ADV] => Array ( [ID] => 31 [IBLOCK_ID] => 2 [NAME] => Преимущества [ACTIVE] => Y [SORT] => 10 [CODE] => ITEM_ADV [DEFAULT_VALUE] => [PROPERTY_TYPE] => E [ROW_COUNT] => 1 [COL_COUNT] => 30 [LIST_TYPE] => L [MULTIPLE] => Y [XML_ID] => 31 [FILE_TYPE] => [MULTIPLE_CNT] => 1 [LINK_IBLOCK_ID] => 5 [WITH_DESCRIPTION] => N [SEARCHABLE] => N [FILTRABLE] => N [IS_REQUIRED] => N [VERSION] => 1 [USER_TYPE] => [USER_TYPE_SETTINGS] => Array ( ) [HINT] => [~NAME] => Преимущества [~DEFAULT_VALUE] => [VALUE_ENUM] => [VALUE_XML_ID] => [VALUE_SORT] => [VALUE] => [PROPERTY_VALUE_ID] => [DESCRIPTION] => [~DESCRIPTION] => [~VALUE] => ) [ITEM_BUY] => Array ( [ID] => 32 [IBLOCK_ID] => 2 [NAME] => Купить [ACTIVE] => Y [SORT] => 11 [CODE] => ITEM_BUY [DEFAULT_VALUE] => Array ( [TEXT] => [TYPE] => HTML ) [PROPERTY_TYPE] => S [ROW_COUNT] => 1 [COL_COUNT] => 30 [LIST_TYPE] => L [MULTIPLE] => N [XML_ID] => 32 [FILE_TYPE] => [MULTIPLE_CNT] => 5 [LINK_IBLOCK_ID] => 0 [WITH_DESCRIPTION] => N [SEARCHABLE] => N [FILTRABLE] => N [IS_REQUIRED] => N [VERSION] => 1 [USER_TYPE] => HTML [USER_TYPE_SETTINGS] => Array ( [height] => 200 ) [HINT] => [~NAME] => Купить [~DEFAULT_VALUE] => Array ( [TEXT] => [TYPE] => HTML ) [VALUE_ENUM] => [VALUE_XML_ID] => [VALUE_SORT] => [VALUE] => Array ( [TEXT] => <p style="text-align: justify;"> НПО «Легион» осуществляет полный цикл производства энергетических металлоконструкций, от проектирования до доставки. Наши специалисты готовы предоставить полный комплект проектной документации, включая чертежи КМ и КМД, и оказать консультационную поддержку на всех этапах проекта. Мы обеспечиваем оперативное изготовление и поставку опор как в стандартной, так и в адаптированной под конкретные условия конфигурации. Для оформления заказа, расчета стоимости или получения подробных технических характеристик опоры ПМ220-2РТр свяжитесь с нами удобным способом. Мы гарантируем контроль качества на каждом этапе и доставку по всей территории Российской Федерации. </p> <p style="text-align: justify;"> </p> <p style="text-align: justify;"> Телефон: 8(800)500-51-37<br> Email: <a href="mailto:info@legionural.ru">info@legionural.ru</a> </p> <p> <a href="mailto:info@legionural.ru"></a> </p> [TYPE] => HTML ) [PROPERTY_VALUE_ID] => 6825189 [DESCRIPTION] => [~VALUE] => Array ( [TEXT] =>

НПО «Легион» осуществляет полный цикл производства энергетических металлоконструкций, от проектирования до доставки. Наши специалисты готовы предоставить полный комплект проектной документации, включая чертежи КМ и КМД, и оказать консультационную поддержку на всех этапах проекта. Мы обеспечиваем оперативное изготовление и поставку опор как в стандартной, так и в адаптированной под конкретные условия конфигурации. Для оформления заказа, расчета стоимости или получения подробных технических характеристик опоры ПМ220-2РТр свяжитесь с нами удобным способом. Мы гарантируем контроль качества на каждом этапе и доставку по всей территории Российской Федерации.

Телефон: 8(800)500-51-37
Email: info@legionural.ru

[TYPE] => HTML ) [~DESCRIPTION] => ) [ITEM_CERT_COR] => Array ( [ID] => 33 [IBLOCK_ID] => 2 [NAME] => Сертификаты соответствия [ACTIVE] => Y [SORT] => 12 [CODE] => ITEM_CERT_COR [DEFAULT_VALUE] => [PROPERTY_TYPE] => S [ROW_COUNT] => 1 [COL_COUNT] => 30 [LIST_TYPE] => L [MULTIPLE] => Y [XML_ID] => 33 [FILE_TYPE] => [MULTIPLE_CNT] => 1 [LINK_IBLOCK_ID] => 0 [WITH_DESCRIPTION] => Y [SEARCHABLE] => N [FILTRABLE] => N [IS_REQUIRED] => N [VERSION] => 1 [USER_TYPE] => [USER_TYPE_SETTINGS] => Array ( ) [HINT] => [~NAME] => Сертификаты соответствия [~DEFAULT_VALUE] => [VALUE_ENUM] => [VALUE_XML_ID] => [VALUE_SORT] => [VALUE] => [PROPERTY_VALUE_ID] => [DESCRIPTION] => [~DESCRIPTION] => [~VALUE] => ) [ITEM_ST_STAND] => Array ( [ID] => 34 [IBLOCK_ID] => 2 [NAME] => Государственные стандарты [ACTIVE] => Y [SORT] => 13 [CODE] => ITEM_ST_STAND [DEFAULT_VALUE] => [PROPERTY_TYPE] => S [ROW_COUNT] => 1 [COL_COUNT] => 30 [LIST_TYPE] => L [MULTIPLE] => Y [XML_ID] => 34 [FILE_TYPE] => [MULTIPLE_CNT] => 1 [LINK_IBLOCK_ID] => 0 [WITH_DESCRIPTION] => Y [SEARCHABLE] => N [FILTRABLE] => N [IS_REQUIRED] => N [VERSION] => 1 [USER_TYPE] => [USER_TYPE_SETTINGS] => Array ( ) [HINT] => [~NAME] => Государственные стандарты [~DEFAULT_VALUE] => [VALUE_ENUM] => [VALUE_XML_ID] => [VALUE_SORT] => [VALUE] => [PROPERTY_VALUE_ID] => [DESCRIPTION] => [~DESCRIPTION] => [~VALUE] => ) [ITEM_NORM] => Array ( [ID] => 35 [IBLOCK_ID] => 2 [NAME] => Строительные нормы и правила [ACTIVE] => Y [SORT] => 14 [CODE] => ITEM_NORM [DEFAULT_VALUE] => [PROPERTY_TYPE] => S [ROW_COUNT] => 1 [COL_COUNT] => 30 [LIST_TYPE] => L [MULTIPLE] => Y [XML_ID] => 35 [FILE_TYPE] => [MULTIPLE_CNT] => 1 [LINK_IBLOCK_ID] => 0 [WITH_DESCRIPTION] => Y [SEARCHABLE] => N [FILTRABLE] => N [IS_REQUIRED] => N [VERSION] => 1 [USER_TYPE] => [USER_TYPE_SETTINGS] => Array ( ) [HINT] => [~NAME] => Строительные нормы и правила [~DEFAULT_VALUE] => [VALUE_ENUM] => [VALUE_XML_ID] => [VALUE_SORT] => [VALUE] => [PROPERTY_VALUE_ID] => [DESCRIPTION] => [~DESCRIPTION] => [~VALUE] => ) [ITEM_SIMILAR] => Array ( [ID] => 36 [IBLOCK_ID] => 2 [NAME] => Похожие модели [ACTIVE] => Y [SORT] => 15 [CODE] => ITEM_SIMILAR [DEFAULT_VALUE] => [PROPERTY_TYPE] => G [ROW_COUNT] => 1 [COL_COUNT] => 30 [LIST_TYPE] => L [MULTIPLE] => Y [XML_ID] => 36 [FILE_TYPE] => [MULTIPLE_CNT] => 10 [LINK_IBLOCK_ID] => 2 [WITH_DESCRIPTION] => N [SEARCHABLE] => N [FILTRABLE] => N [IS_REQUIRED] => N [VERSION] => 1 [USER_TYPE] => [USER_TYPE_SETTINGS] => Array ( ) [HINT] => [~NAME] => Похожие модели [~DEFAULT_VALUE] => [VALUE_ENUM] => [VALUE_XML_ID] => [VALUE_SORT] => [VALUE] => [PROPERTY_VALUE_ID] => [DESCRIPTION] => [~DESCRIPTION] => [~VALUE] => ) [ITEM_SIMILAR_TAGS] => Array ( [ID] => 122 [IBLOCK_ID] => 2 [NAME] => Похожие модели (теговые) [ACTIVE] => Y [SORT] => 16 [CODE] => ITEM_SIMILAR_TAGS [DEFAULT_VALUE] => [PROPERTY_TYPE] => E [ROW_COUNT] => 1 [COL_COUNT] => 30 [LIST_TYPE] => L [MULTIPLE] => Y [XML_ID] => 122 [FILE_TYPE] => [MULTIPLE_CNT] => 1 [LINK_IBLOCK_ID] => 19 [WITH_DESCRIPTION] => N [SEARCHABLE] => N [FILTRABLE] => N [IS_REQUIRED] => N [VERSION] => 1 [USER_TYPE] => [USER_TYPE_SETTINGS] => Array ( ) [HINT] => [~NAME] => Похожие модели (теговые) [~DEFAULT_VALUE] => [VALUE_ENUM] => [VALUE_XML_ID] => [VALUE_SORT] => [VALUE] => [PROPERTY_VALUE_ID] => [DESCRIPTION] => [~DESCRIPTION] => [~VALUE] => ) [ITEM_BUY_WITH] => Array ( [ID] => 37 [IBLOCK_ID] => 2 [NAME] => С этим товаром покупают [ACTIVE] => Y [SORT] => 17 [CODE] => ITEM_BUY_WITH [DEFAULT_VALUE] => [PROPERTY_TYPE] => E [ROW_COUNT] => 1 [COL_COUNT] => 30 [LIST_TYPE] => L [MULTIPLE] => Y [XML_ID] => 37 [FILE_TYPE] => [MULTIPLE_CNT] => 1 [LINK_IBLOCK_ID] => 2 [WITH_DESCRIPTION] => N [SEARCHABLE] => N [FILTRABLE] => N [IS_REQUIRED] => N [VERSION] => 1 [USER_TYPE] => [USER_TYPE_SETTINGS] => Array ( ) [HINT] => [~NAME] => С этим товаром покупают [~DEFAULT_VALUE] => [VALUE_ENUM] => [VALUE_XML_ID] => [VALUE_SORT] => [VALUE] => [PROPERTY_VALUE_ID] => [DESCRIPTION] => [~DESCRIPTION] => [~VALUE] => ) [ITEM_VOTE_COUNT] => Array ( [ID] => 38 [IBLOCK_ID] => 2 [NAME] => Количество голосов [ACTIVE] => Y [SORT] => 18 [CODE] => ITEM_VOTE_COUNT [DEFAULT_VALUE] => 0 [PROPERTY_TYPE] => N [ROW_COUNT] => 1 [COL_COUNT] => 30 [LIST_TYPE] => L [MULTIPLE] => N [XML_ID] => 38 [FILE_TYPE] => [MULTIPLE_CNT] => 5 [LINK_IBLOCK_ID] => 0 [WITH_DESCRIPTION] => N [SEARCHABLE] => N [FILTRABLE] => N [IS_REQUIRED] => N [VERSION] => 1 [USER_TYPE] => [USER_TYPE_SETTINGS] => Array ( ) [HINT] => [~NAME] => Количество голосов [~DEFAULT_VALUE] => 0 [VALUE_ENUM] => [VALUE_XML_ID] => [VALUE_SORT] => [VALUE] => 7 [PROPERTY_VALUE_ID] => 5932967 [DESCRIPTION] => [~VALUE] => 7 [~DESCRIPTION] => ) [ITEM_RAITING] => Array ( [ID] => 39 [IBLOCK_ID] => 2 [NAME] => Рейтинг [ACTIVE] => Y [SORT] => 19 [CODE] => ITEM_RAITING [DEFAULT_VALUE] => 0 [PROPERTY_TYPE] => N [ROW_COUNT] => 1 [COL_COUNT] => 30 [LIST_TYPE] => L [MULTIPLE] => N [XML_ID] => 39 [FILE_TYPE] => [MULTIPLE_CNT] => 5 [LINK_IBLOCK_ID] => 0 [WITH_DESCRIPTION] => N [SEARCHABLE] => N [FILTRABLE] => N [IS_REQUIRED] => N [VERSION] => 1 [USER_TYPE] => [USER_TYPE_SETTINGS] => Array ( ) [HINT] => [~NAME] => Рейтинг [~DEFAULT_VALUE] => 0 [VALUE_ENUM] => [VALUE_XML_ID] => [VALUE_SORT] => [VALUE] => 4.4 [PROPERTY_VALUE_ID] => 5932968 [DESCRIPTION] => [~VALUE] => 4.4 [~DESCRIPTION] => ) [H1] => Array ( [ID] => 125 [IBLOCK_ID] => 2 [NAME] => H1 [ACTIVE] => Y [SORT] => 500 [CODE] => H1 [DEFAULT_VALUE] => [PROPERTY_TYPE] => S [ROW_COUNT] => 1 [COL_COUNT] => 70 [LIST_TYPE] => L [MULTIPLE] => N [XML_ID] => 125 [FILE_TYPE] => [MULTIPLE_CNT] => 5 [LINK_IBLOCK_ID] => 0 [WITH_DESCRIPTION] => N [SEARCHABLE] => N [FILTRABLE] => N [IS_REQUIRED] => N [VERSION] => 1 [USER_TYPE] => [USER_TYPE_SETTINGS] => Array ( ) [HINT] => [~NAME] => H1 [~DEFAULT_VALUE] => [VALUE_ENUM] => [VALUE_XML_ID] => [VALUE_SORT] => [VALUE] => Многогранная опора ПМ220-2РТр [PROPERTY_VALUE_ID] => 5945354 [DESCRIPTION] => [~VALUE] => Многогранная опора ПМ220-2РТр [~DESCRIPTION] => ) [CERTIFICATES] => Array ( [ID] => 127 [IBLOCK_ID] => 2 [NAME] => Сертификаты [ACTIVE] => Y [SORT] => 500 [CODE] => CERTIFICATES [DEFAULT_VALUE] => [PROPERTY_TYPE] => E [ROW_COUNT] => 1 [COL_COUNT] => 30 [LIST_TYPE] => L [MULTIPLE] => Y [XML_ID] => 127 [FILE_TYPE] => [MULTIPLE_CNT] => 5 [LINK_IBLOCK_ID] => 7 [WITH_DESCRIPTION] => N [SEARCHABLE] => N [FILTRABLE] => N [IS_REQUIRED] => N [VERSION] => 1 [USER_TYPE] => [USER_TYPE_SETTINGS] => Array ( ) [HINT] => [~NAME] => Сертификаты [~DEFAULT_VALUE] => [VALUE_ENUM] => [VALUE_XML_ID] => [VALUE_SORT] => [VALUE] => [PROPERTY_VALUE_ID] => [DESCRIPTION] => [~DESCRIPTION] => [~VALUE] => ) [129] => Array ( [ID] => 129 [IBLOCK_ID] => 2 [NAME] => Уникальный META TITLE [ACTIVE] => Y [SORT] => 500 [CODE] => 129 [DEFAULT_VALUE] => [PROPERTY_TYPE] => S [ROW_COUNT] => 1 [COL_COUNT] => 30 [LIST_TYPE] => L [MULTIPLE] => N [XML_ID] => 129 [FILE_TYPE] => [MULTIPLE_CNT] => 5 [LINK_IBLOCK_ID] => 0 [WITH_DESCRIPTION] => N [SEARCHABLE] => N [FILTRABLE] => N [IS_REQUIRED] => N [VERSION] => 1 [USER_TYPE] => [USER_TYPE_SETTINGS] => Array ( ) [HINT] => [~NAME] => Уникальный META TITLE [~DEFAULT_VALUE] => [VALUE_ENUM] => [VALUE_XML_ID] => [VALUE_SORT] => [VALUE] => [PROPERTY_VALUE_ID] => [DESCRIPTION] => [~DESCRIPTION] => [~VALUE] => ) [ITEM_TYPE] => Array ( [ID] => 134 [IBLOCK_ID] => 2 [NAME] => Тип [ACTIVE] => Y [SORT] => 500 [CODE] => ITEM_TYPE [DEFAULT_VALUE] => [PROPERTY_TYPE] => S [ROW_COUNT] => 1 [COL_COUNT] => 30 [LIST_TYPE] => L [MULTIPLE] => N [XML_ID] => [FILE_TYPE] => [MULTIPLE_CNT] => 5 [LINK_IBLOCK_ID] => 0 [WITH_DESCRIPTION] => N [SEARCHABLE] => N [FILTRABLE] => Y [IS_REQUIRED] => N [VERSION] => 1 [USER_TYPE] => [USER_TYPE_SETTINGS] => Array ( ) [HINT] => [~NAME] => Тип [~DEFAULT_VALUE] => [VALUE_ENUM] => [VALUE_XML_ID] => [VALUE_SORT] => [VALUE] => [PROPERTY_VALUE_ID] => [DESCRIPTION] => [~DESCRIPTION] => [~VALUE] => ) [ITEM_INSTALLATION] => Array ( [ID] => 135 [IBLOCK_ID] => 2 [NAME] => Способ установки [ACTIVE] => Y [SORT] => 500 [CODE] => ITEM_INSTALLATION [DEFAULT_VALUE] => [PROPERTY_TYPE] => S [ROW_COUNT] => 1 [COL_COUNT] => 30 [LIST_TYPE] => L [MULTIPLE] => N [XML_ID] => [FILE_TYPE] => [MULTIPLE_CNT] => 5 [LINK_IBLOCK_ID] => 0 [WITH_DESCRIPTION] => N [SEARCHABLE] => N [FILTRABLE] => N [IS_REQUIRED] => N [VERSION] => 1 [USER_TYPE] => [USER_TYPE_SETTINGS] => Array ( ) [HINT] => [~NAME] => Способ установки [~DEFAULT_VALUE] => [VALUE_ENUM] => [VALUE_XML_ID] => [VALUE_SORT] => [VALUE] => [PROPERTY_VALUE_ID] => [DESCRIPTION] => [~DESCRIPTION] => [~VALUE] => ) [ITEM_MODE] => Array ( [ID] => 136 [IBLOCK_ID] => 2 [NAME] => Способ производства [ACTIVE] => Y [SORT] => 500 [CODE] => ITEM_MODE [DEFAULT_VALUE] => [PROPERTY_TYPE] => S [ROW_COUNT] => 1 [COL_COUNT] => 30 [LIST_TYPE] => L [MULTIPLE] => N [XML_ID] => [FILE_TYPE] => [MULTIPLE_CNT] => 5 [LINK_IBLOCK_ID] => 0 [WITH_DESCRIPTION] => N [SEARCHABLE] => N [FILTRABLE] => N [IS_REQUIRED] => N [VERSION] => 1 [USER_TYPE] => [USER_TYPE_SETTINGS] => Array ( ) [HINT] => [~NAME] => Способ производства [~DEFAULT_VALUE] => [VALUE_ENUM] => [VALUE_XML_ID] => [VALUE_SORT] => [VALUE] => [PROPERTY_VALUE_ID] => [DESCRIPTION] => [~DESCRIPTION] => [~VALUE] => ) [ITEM_HEIGHT] => Array ( [ID] => 137 [IBLOCK_ID] => 2 [NAME] => Высота, мм [ACTIVE] => Y [SORT] => 500 [CODE] => ITEM_HEIGHT [DEFAULT_VALUE] => [PROPERTY_TYPE] => S [ROW_COUNT] => 1 [COL_COUNT] => 30 [LIST_TYPE] => L [MULTIPLE] => N [XML_ID] => [FILE_TYPE] => [MULTIPLE_CNT] => 5 [LINK_IBLOCK_ID] => 0 [WITH_DESCRIPTION] => N [SEARCHABLE] => N [FILTRABLE] => N [IS_REQUIRED] => N [VERSION] => 1 [USER_TYPE] => [USER_TYPE_SETTINGS] => Array ( ) [HINT] => [~NAME] => Высота, мм [~DEFAULT_VALUE] => [VALUE_ENUM] => [VALUE_XML_ID] => [VALUE_SORT] => [VALUE] => [PROPERTY_VALUE_ID] => [DESCRIPTION] => [~DESCRIPTION] => [~VALUE] => ) [BLOG_POST_ID] => Array ( [ID] => 138 [IBLOCK_ID] => 2 [NAME] => ID поста блога для комментариев [ACTIVE] => Y [SORT] => 500 [CODE] => BLOG_POST_ID [DEFAULT_VALUE] => [PROPERTY_TYPE] => N [ROW_COUNT] => 1 [COL_COUNT] => 30 [LIST_TYPE] => L [MULTIPLE] => N [XML_ID] => BLOG_POST_ID [FILE_TYPE] => [MULTIPLE_CNT] => 5 [LINK_IBLOCK_ID] => 0 [WITH_DESCRIPTION] => N [SEARCHABLE] => N [FILTRABLE] => N [IS_REQUIRED] => N [VERSION] => 1 [USER_TYPE] => [USER_TYPE_SETTINGS] => Array ( ) [HINT] => [~NAME] => ID поста блога для комментариев [~DEFAULT_VALUE] => [VALUE_ENUM] => [VALUE_XML_ID] => [VALUE_SORT] => [VALUE] => 224 [PROPERTY_VALUE_ID] => 6774033 [DESCRIPTION] => [~VALUE] => 224 [~DESCRIPTION] => ) [BLOG_COMMENTS_CNT] => Array ( [ID] => 139 [IBLOCK_ID] => 2 [NAME] => Количество комментариев [ACTIVE] => Y [SORT] => 500 [CODE] => BLOG_COMMENTS_CNT [DEFAULT_VALUE] => [PROPERTY_TYPE] => N [ROW_COUNT] => 1 [COL_COUNT] => 30 [LIST_TYPE] => L [MULTIPLE] => N [XML_ID] => BLOG_COMMENTS_CNT [FILE_TYPE] => [MULTIPLE_CNT] => 5 [LINK_IBLOCK_ID] => 0 [WITH_DESCRIPTION] => N [SEARCHABLE] => N [FILTRABLE] => N [IS_REQUIRED] => N [VERSION] => 1 [USER_TYPE] => [USER_TYPE_SETTINGS] => Array ( ) [HINT] => [~NAME] => Количество комментариев [~DEFAULT_VALUE] => [VALUE_ENUM] => [VALUE_XML_ID] => [VALUE_SORT] => [VALUE] => [PROPERTY_VALUE_ID] => [DESCRIPTION] => [~DESCRIPTION] => [~VALUE] => ) [HEIGHT_TOTAL] => Array ( [ID] => 143 [IBLOCK_ID] => 2 [NAME] => Высота общая, мм [ACTIVE] => Y [SORT] => 500 [CODE] => HEIGHT_TOTAL [DEFAULT_VALUE] => [PROPERTY_TYPE] => S [ROW_COUNT] => 1 [COL_COUNT] => 30 [LIST_TYPE] => L [MULTIPLE] => N [XML_ID] => [FILE_TYPE] => [MULTIPLE_CNT] => 5 [LINK_IBLOCK_ID] => 0 [WITH_DESCRIPTION] => N [SEARCHABLE] => N [FILTRABLE] => N [IS_REQUIRED] => N [VERSION] => 1 [USER_TYPE] => [USER_TYPE_SETTINGS] => Array ( ) [HINT] => [~NAME] => Высота общая, мм [~DEFAULT_VALUE] => [VALUE_ENUM] => [VALUE_XML_ID] => [VALUE_SORT] => [VALUE] => [PROPERTY_VALUE_ID] => [DESCRIPTION] => [~DESCRIPTION] => [~VALUE] => ) [HEIGHT_ABOVEGROUND] => Array ( [ID] => 144 [IBLOCK_ID] => 2 [NAME] => Высота надземной части, мм [ACTIVE] => Y [SORT] => 500 [CODE] => HEIGHT_ABOVEGROUND [DEFAULT_VALUE] => [PROPERTY_TYPE] => S [ROW_COUNT] => 1 [COL_COUNT] => 30 [LIST_TYPE] => L [MULTIPLE] => N [XML_ID] => [FILE_TYPE] => [MULTIPLE_CNT] => 5 [LINK_IBLOCK_ID] => 0 [WITH_DESCRIPTION] => N [SEARCHABLE] => N [FILTRABLE] => N [IS_REQUIRED] => N [VERSION] => 1 [USER_TYPE] => [USER_TYPE_SETTINGS] => Array ( ) [HINT] => [~NAME] => Высота надземной части, мм [~DEFAULT_VALUE] => [VALUE_ENUM] => [VALUE_XML_ID] => [VALUE_SORT] => [VALUE] => [PROPERTY_VALUE_ID] => [DESCRIPTION] => [~DESCRIPTION] => [~VALUE] => ) [HEIGHT_UNDERGROUND] => Array ( [ID] => 145 [IBLOCK_ID] => 2 [NAME] => Высота подземной части, мм [ACTIVE] => Y [SORT] => 500 [CODE] => HEIGHT_UNDERGROUND [DEFAULT_VALUE] => [PROPERTY_TYPE] => S [ROW_COUNT] => 1 [COL_COUNT] => 30 [LIST_TYPE] => L [MULTIPLE] => N [XML_ID] => [FILE_TYPE] => [MULTIPLE_CNT] => 5 [LINK_IBLOCK_ID] => 0 [WITH_DESCRIPTION] => N [SEARCHABLE] => N [FILTRABLE] => N [IS_REQUIRED] => N [VERSION] => 1 [USER_TYPE] => [USER_TYPE_SETTINGS] => Array ( ) [HINT] => [~NAME] => Высота подземной части, мм [~DEFAULT_VALUE] => [VALUE_ENUM] => [VALUE_XML_ID] => [VALUE_SORT] => [VALUE] => [PROPERTY_VALUE_ID] => [DESCRIPTION] => [~DESCRIPTION] => [~VALUE] => ) [DIAMETER_TOP] => Array ( [ID] => 146 [IBLOCK_ID] => 2 [NAME] => Диаметр верхний, мм [ACTIVE] => Y [SORT] => 500 [CODE] => DIAMETER_TOP [DEFAULT_VALUE] => [PROPERTY_TYPE] => S [ROW_COUNT] => 1 [COL_COUNT] => 30 [LIST_TYPE] => L [MULTIPLE] => N [XML_ID] => [FILE_TYPE] => [MULTIPLE_CNT] => 5 [LINK_IBLOCK_ID] => 0 [WITH_DESCRIPTION] => N [SEARCHABLE] => N [FILTRABLE] => N [IS_REQUIRED] => N [VERSION] => 1 [USER_TYPE] => [USER_TYPE_SETTINGS] => Array ( ) [HINT] => [~NAME] => Диаметр верхний, мм [~DEFAULT_VALUE] => [VALUE_ENUM] => [VALUE_XML_ID] => [VALUE_SORT] => [VALUE] => [PROPERTY_VALUE_ID] => [DESCRIPTION] => [~DESCRIPTION] => [~VALUE] => ) [DIAMETER_BOTTOM] => Array ( [ID] => 147 [IBLOCK_ID] => 2 [NAME] => Диаметр нижний, мм [ACTIVE] => Y [SORT] => 500 [CODE] => DIAMETER_BOTTOM [DEFAULT_VALUE] => [PROPERTY_TYPE] => S [ROW_COUNT] => 1 [COL_COUNT] => 30 [LIST_TYPE] => L [MULTIPLE] => N [XML_ID] => [FILE_TYPE] => [MULTIPLE_CNT] => 5 [LINK_IBLOCK_ID] => 0 [WITH_DESCRIPTION] => N [SEARCHABLE] => N [FILTRABLE] => N [IS_REQUIRED] => N [VERSION] => 1 [USER_TYPE] => [USER_TYPE_SETTINGS] => Array ( ) [HINT] => [~NAME] => Диаметр нижний, мм [~DEFAULT_VALUE] => [VALUE_ENUM] => [VALUE_XML_ID] => [VALUE_SORT] => [VALUE] => [PROPERTY_VALUE_ID] => [DESCRIPTION] => [~DESCRIPTION] => [~VALUE] => ) [WEIGHT] => Array ( [ID] => 148 [IBLOCK_ID] => 2 [NAME] => Нагрузка, кг [ACTIVE] => Y [SORT] => 500 [CODE] => WEIGHT [DEFAULT_VALUE] => [PROPERTY_TYPE] => S [ROW_COUNT] => 1 [COL_COUNT] => 30 [LIST_TYPE] => L [MULTIPLE] => N [XML_ID] => [FILE_TYPE] => [MULTIPLE_CNT] => 5 [LINK_IBLOCK_ID] => 0 [WITH_DESCRIPTION] => N [SEARCHABLE] => N [FILTRABLE] => N [IS_REQUIRED] => N [VERSION] => 1 [USER_TYPE] => [USER_TYPE_SETTINGS] => Array ( ) [HINT] => [~NAME] => Нагрузка, кг [~DEFAULT_VALUE] => [VALUE_ENUM] => [VALUE_XML_ID] => [VALUE_SORT] => [VALUE] => [PROPERTY_VALUE_ID] => [DESCRIPTION] => [~DESCRIPTION] => [~VALUE] => ) [VID] => Array ( [ID] => 149 [IBLOCK_ID] => 2 [NAME] => Вид [ACTIVE] => Y [SORT] => 500 [CODE] => VID [DEFAULT_VALUE] => [PROPERTY_TYPE] => S [ROW_COUNT] => 1 [COL_COUNT] => 30 [LIST_TYPE] => L [MULTIPLE] => N [XML_ID] => [FILE_TYPE] => [MULTIPLE_CNT] => 5 [LINK_IBLOCK_ID] => 0 [WITH_DESCRIPTION] => N [SEARCHABLE] => N [FILTRABLE] => N [IS_REQUIRED] => N [VERSION] => 1 [USER_TYPE] => [USER_TYPE_SETTINGS] => Array ( ) [HINT] => [~NAME] => Вид [~DEFAULT_VALUE] => [VALUE_ENUM] => [VALUE_XML_ID] => [VALUE_SORT] => [VALUE] => [PROPERTY_VALUE_ID] => [DESCRIPTION] => [~DESCRIPTION] => [~VALUE] => ) [SERVICE_LIFE] => Array ( [ID] => 150 [IBLOCK_ID] => 2 [NAME] => Срок службы [ACTIVE] => Y [SORT] => 500 [CODE] => SERVICE_LIFE [DEFAULT_VALUE] => [PROPERTY_TYPE] => S [ROW_COUNT] => 1 [COL_COUNT] => 30 [LIST_TYPE] => L [MULTIPLE] => N [XML_ID] => [FILE_TYPE] => [MULTIPLE_CNT] => 5 [LINK_IBLOCK_ID] => 0 [WITH_DESCRIPTION] => N [SEARCHABLE] => N [FILTRABLE] => N [IS_REQUIRED] => N [VERSION] => 1 [USER_TYPE] => [USER_TYPE_SETTINGS] => Array ( ) [HINT] => [~NAME] => Срок службы [~DEFAULT_VALUE] => [VALUE_ENUM] => [VALUE_XML_ID] => [VALUE_SORT] => [VALUE] => [PROPERTY_VALUE_ID] => [DESCRIPTION] => [~DESCRIPTION] => [~VALUE] => ) [USING] => Array ( [ID] => 151 [IBLOCK_ID] => 2 [NAME] => Применение [ACTIVE] => Y [SORT] => 500 [CODE] => USING [DEFAULT_VALUE] => [PROPERTY_TYPE] => S [ROW_COUNT] => 1 [COL_COUNT] => 30 [LIST_TYPE] => L [MULTIPLE] => N [XML_ID] => [FILE_TYPE] => [MULTIPLE_CNT] => 5 [LINK_IBLOCK_ID] => 0 [WITH_DESCRIPTION] => N [SEARCHABLE] => N [FILTRABLE] => N [IS_REQUIRED] => N [VERSION] => 1 [USER_TYPE] => [USER_TYPE_SETTINGS] => Array ( ) [HINT] => [~NAME] => Применение [~DEFAULT_VALUE] => [VALUE_ENUM] => [VALUE_XML_ID] => [VALUE_SORT] => [VALUE] => [PROPERTY_VALUE_ID] => [DESCRIPTION] => [~DESCRIPTION] => [~VALUE] => ) [HEIGHT_ZAK] => Array ( [ID] => 152 [IBLOCK_ID] => 2 [NAME] => Высота закладного элемента фундамента [ACTIVE] => Y [SORT] => 500 [CODE] => HEIGHT_ZAK [DEFAULT_VALUE] => [PROPERTY_TYPE] => S [ROW_COUNT] => 1 [COL_COUNT] => 30 [LIST_TYPE] => L [MULTIPLE] => N [XML_ID] => [FILE_TYPE] => [MULTIPLE_CNT] => 5 [LINK_IBLOCK_ID] => 0 [WITH_DESCRIPTION] => N [SEARCHABLE] => N [FILTRABLE] => N [IS_REQUIRED] => N [VERSION] => 1 [USER_TYPE] => [USER_TYPE_SETTINGS] => Array ( ) [HINT] => [~NAME] => Высота закладного элемента фундамента [~DEFAULT_VALUE] => [VALUE_ENUM] => [VALUE_XML_ID] => [VALUE_SORT] => [VALUE] => [PROPERTY_VALUE_ID] => [DESCRIPTION] => [~DESCRIPTION] => [~VALUE] => ) [LENGTH_CONSOLE] => Array ( [ID] => 153 [IBLOCK_ID] => 2 [NAME] => Длина консоли [ACTIVE] => Y [SORT] => 500 [CODE] => LENGTH_CONSOLE [DEFAULT_VALUE] => [PROPERTY_TYPE] => S [ROW_COUNT] => 1 [COL_COUNT] => 30 [LIST_TYPE] => L [MULTIPLE] => N [XML_ID] => [FILE_TYPE] => [MULTIPLE_CNT] => 5 [LINK_IBLOCK_ID] => 0 [WITH_DESCRIPTION] => N [SEARCHABLE] => N [FILTRABLE] => N [IS_REQUIRED] => N [VERSION] => 1 [USER_TYPE] => [USER_TYPE_SETTINGS] => Array ( ) [HINT] => [~NAME] => Длина консоли [~DEFAULT_VALUE] => [VALUE_ENUM] => [VALUE_XML_ID] => [VALUE_SORT] => [VALUE] => [PROPERTY_VALUE_ID] => [DESCRIPTION] => [~DESCRIPTION] => [~VALUE] => ) [HEIGHT_TOP_SECTION] => Array ( [ID] => 154 [IBLOCK_ID] => 2 [NAME] => Высота верхней секции, мм [ACTIVE] => Y [SORT] => 500 [CODE] => HEIGHT_TOP_SECTION [DEFAULT_VALUE] => [PROPERTY_TYPE] => S [ROW_COUNT] => 1 [COL_COUNT] => 30 [LIST_TYPE] => L [MULTIPLE] => N [XML_ID] => [FILE_TYPE] => [MULTIPLE_CNT] => 5 [LINK_IBLOCK_ID] => 0 [WITH_DESCRIPTION] => N [SEARCHABLE] => N [FILTRABLE] => N [IS_REQUIRED] => N [VERSION] => 1 [USER_TYPE] => [USER_TYPE_SETTINGS] => Array ( ) [HINT] => [~NAME] => Высота верхней секции, мм [~DEFAULT_VALUE] => [VALUE_ENUM] => [VALUE_XML_ID] => [VALUE_SORT] => [VALUE] => [PROPERTY_VALUE_ID] => [DESCRIPTION] => [~DESCRIPTION] => [~VALUE] => ) [SIP] => Array ( [ID] => 156 [IBLOCK_ID] => 2 [NAME] => Возможность подвеса СИП [ACTIVE] => Y [SORT] => 500 [CODE] => SIP [DEFAULT_VALUE] => [PROPERTY_TYPE] => S [ROW_COUNT] => 1 [COL_COUNT] => 30 [LIST_TYPE] => L [MULTIPLE] => N [XML_ID] => [FILE_TYPE] => [MULTIPLE_CNT] => 5 [LINK_IBLOCK_ID] => 0 [WITH_DESCRIPTION] => N [SEARCHABLE] => N [FILTRABLE] => N [IS_REQUIRED] => N [VERSION] => 1 [USER_TYPE] => [USER_TYPE_SETTINGS] => Array ( ) [HINT] => [~NAME] => Возможность подвеса СИП [~DEFAULT_VALUE] => [VALUE_ENUM] => [VALUE_XML_ID] => [VALUE_SORT] => [VALUE] => [PROPERTY_VALUE_ID] => [DESCRIPTION] => [~DESCRIPTION] => [~VALUE] => ) [COUNT_GRANY] => Array ( [ID] => 157 [IBLOCK_ID] => 2 [NAME] => Количество граней [ACTIVE] => Y [SORT] => 500 [CODE] => COUNT_GRANY [DEFAULT_VALUE] => [PROPERTY_TYPE] => S [ROW_COUNT] => 1 [COL_COUNT] => 30 [LIST_TYPE] => L [MULTIPLE] => N [XML_ID] => [FILE_TYPE] => [MULTIPLE_CNT] => 5 [LINK_IBLOCK_ID] => 0 [WITH_DESCRIPTION] => N [SEARCHABLE] => N [FILTRABLE] => N [IS_REQUIRED] => N [VERSION] => 1 [USER_TYPE] => [USER_TYPE_SETTINGS] => Array ( ) [HINT] => [~NAME] => Количество граней [~DEFAULT_VALUE] => [VALUE_ENUM] => [VALUE_XML_ID] => [VALUE_SORT] => [VALUE] => [PROPERTY_VALUE_ID] => [DESCRIPTION] => [~DESCRIPTION] => [~VALUE] => ) [HEIGHT_BOTTOM_SECTION] => Array ( [ID] => 158 [IBLOCK_ID] => 2 [NAME] => Высота нижней секции, мм [ACTIVE] => Y [SORT] => 500 [CODE] => HEIGHT_BOTTOM_SECTION [DEFAULT_VALUE] => [PROPERTY_TYPE] => S [ROW_COUNT] => 1 [COL_COUNT] => 30 [LIST_TYPE] => L [MULTIPLE] => N [XML_ID] => [FILE_TYPE] => [MULTIPLE_CNT] => 5 [LINK_IBLOCK_ID] => 0 [WITH_DESCRIPTION] => N [SEARCHABLE] => N [FILTRABLE] => N [IS_REQUIRED] => N [VERSION] => 1 [USER_TYPE] => [USER_TYPE_SETTINGS] => Array ( ) [HINT] => [~NAME] => Высота нижней секции, мм [~DEFAULT_VALUE] => [VALUE_ENUM] => [VALUE_XML_ID] => [VALUE_SORT] => [VALUE] => [PROPERTY_VALUE_ID] => [DESCRIPTION] => [~DESCRIPTION] => [~VALUE] => ) [STEEL_THICKNESS] => Array ( [ID] => 160 [IBLOCK_ID] => 2 [NAME] => Толщина стали [ACTIVE] => Y [SORT] => 500 [CODE] => STEEL_THICKNESS [DEFAULT_VALUE] => [PROPERTY_TYPE] => S [ROW_COUNT] => 1 [COL_COUNT] => 30 [LIST_TYPE] => L [MULTIPLE] => N [XML_ID] => [FILE_TYPE] => [MULTIPLE_CNT] => 5 [LINK_IBLOCK_ID] => 0 [WITH_DESCRIPTION] => N [SEARCHABLE] => N [FILTRABLE] => N [IS_REQUIRED] => N [VERSION] => 1 [USER_TYPE] => [USER_TYPE_SETTINGS] => Array ( ) [HINT] => [~NAME] => Толщина стали [~DEFAULT_VALUE] => [VALUE_ENUM] => [VALUE_XML_ID] => [VALUE_SORT] => [VALUE] => [PROPERTY_VALUE_ID] => [DESCRIPTION] => [~DESCRIPTION] => [~VALUE] => ) [SIZE_OPOR_FLANEC] => Array ( [ID] => 161 [IBLOCK_ID] => 2 [NAME] => Размеры опорного фланца [ACTIVE] => Y [SORT] => 500 [CODE] => SIZE_OPOR_FLANEC [DEFAULT_VALUE] => [PROPERTY_TYPE] => S [ROW_COUNT] => 1 [COL_COUNT] => 30 [LIST_TYPE] => L [MULTIPLE] => N [XML_ID] => [FILE_TYPE] => [MULTIPLE_CNT] => 5 [LINK_IBLOCK_ID] => 0 [WITH_DESCRIPTION] => N [SEARCHABLE] => N [FILTRABLE] => N [IS_REQUIRED] => N [VERSION] => 1 [USER_TYPE] => [USER_TYPE_SETTINGS] => Array ( ) [HINT] => [~NAME] => Размеры опорного фланца [~DEFAULT_VALUE] => [VALUE_ENUM] => [VALUE_XML_ID] => [VALUE_SORT] => [VALUE] => [PROPERTY_VALUE_ID] => [DESCRIPTION] => [~DESCRIPTION] => [~VALUE] => ) [POKRASKA] => Array ( [ID] => 162 [IBLOCK_ID] => 2 [NAME] => Лакокрасочное покрытие [ACTIVE] => Y [SORT] => 500 [CODE] => POKRASKA [DEFAULT_VALUE] => [PROPERTY_TYPE] => S [ROW_COUNT] => 1 [COL_COUNT] => 30 [LIST_TYPE] => L [MULTIPLE] => N [XML_ID] => [FILE_TYPE] => [MULTIPLE_CNT] => 5 [LINK_IBLOCK_ID] => 0 [WITH_DESCRIPTION] => N [SEARCHABLE] => N [FILTRABLE] => N [IS_REQUIRED] => N [VERSION] => 1 [USER_TYPE] => [USER_TYPE_SETTINGS] => Array ( ) [HINT] => [~NAME] => Лакокрасочное покрытие [~DEFAULT_VALUE] => [VALUE_ENUM] => [VALUE_XML_ID] => [VALUE_SORT] => [VALUE] => [PROPERTY_VALUE_ID] => [DESCRIPTION] => [~DESCRIPTION] => [~VALUE] => ) [VES] => Array ( [ID] => 163 [IBLOCK_ID] => 2 [NAME] => Вес [ACTIVE] => Y [SORT] => 500 [CODE] => VES [DEFAULT_VALUE] => [PROPERTY_TYPE] => S [ROW_COUNT] => 1 [COL_COUNT] => 30 [LIST_TYPE] => L [MULTIPLE] => N [XML_ID] => [FILE_TYPE] => [MULTIPLE_CNT] => 5 [LINK_IBLOCK_ID] => 0 [WITH_DESCRIPTION] => N [SEARCHABLE] => N [FILTRABLE] => N [IS_REQUIRED] => N [VERSION] => 1 [USER_TYPE] => [USER_TYPE_SETTINGS] => Array ( ) [HINT] => [~NAME] => Вес [~DEFAULT_VALUE] => [VALUE_ENUM] => [VALUE_XML_ID] => [VALUE_SORT] => [VALUE] => [PROPERTY_VALUE_ID] => [DESCRIPTION] => [~DESCRIPTION] => [~VALUE] => ) [INSTALL_LYUCHKA] => Array ( [ID] => 164 [IBLOCK_ID] => 2 [NAME] => Возможность установки лючка [ACTIVE] => Y [SORT] => 500 [CODE] => INSTALL_LYUCHKA [DEFAULT_VALUE] => [PROPERTY_TYPE] => S [ROW_COUNT] => 1 [COL_COUNT] => 30 [LIST_TYPE] => L [MULTIPLE] => N [XML_ID] => [FILE_TYPE] => [MULTIPLE_CNT] => 5 [LINK_IBLOCK_ID] => 0 [WITH_DESCRIPTION] => N [SEARCHABLE] => N [FILTRABLE] => N [IS_REQUIRED] => N [VERSION] => 1 [USER_TYPE] => [USER_TYPE_SETTINGS] => Array ( ) [HINT] => [~NAME] => Возможность установки лючка [~DEFAULT_VALUE] => [VALUE_ENUM] => [VALUE_XML_ID] => [VALUE_SORT] => [VALUE] => [PROPERTY_VALUE_ID] => [DESCRIPTION] => [~DESCRIPTION] => [~VALUE] => ) [DIAMETER_FLANCA] => Array ( [ID] => 165 [IBLOCK_ID] => 2 [NAME] => Диаметр фланца, мм [ACTIVE] => Y [SORT] => 500 [CODE] => DIAMETER_FLANCA [DEFAULT_VALUE] => [PROPERTY_TYPE] => S [ROW_COUNT] => 1 [COL_COUNT] => 30 [LIST_TYPE] => L [MULTIPLE] => N [XML_ID] => [FILE_TYPE] => [MULTIPLE_CNT] => 5 [LINK_IBLOCK_ID] => 0 [WITH_DESCRIPTION] => N [SEARCHABLE] => N [FILTRABLE] => N [IS_REQUIRED] => N [VERSION] => 1 [USER_TYPE] => [USER_TYPE_SETTINGS] => Array ( ) [HINT] => [~NAME] => Диаметр фланца, мм [~DEFAULT_VALUE] => [VALUE_ENUM] => [VALUE_XML_ID] => [VALUE_SORT] => [VALUE] => [PROPERTY_VALUE_ID] => [DESCRIPTION] => [~DESCRIPTION] => [~VALUE] => ) [COUNT_LIGHT] => Array ( [ID] => 166 [IBLOCK_ID] => 2 [NAME] => Количество осветительных приборов, шт [ACTIVE] => Y [SORT] => 500 [CODE] => COUNT_LIGHT [DEFAULT_VALUE] => [PROPERTY_TYPE] => S [ROW_COUNT] => 1 [COL_COUNT] => 30 [LIST_TYPE] => L [MULTIPLE] => N [XML_ID] => [FILE_TYPE] => [MULTIPLE_CNT] => 5 [LINK_IBLOCK_ID] => 0 [WITH_DESCRIPTION] => N [SEARCHABLE] => N [FILTRABLE] => N [IS_REQUIRED] => N [VERSION] => 1 [USER_TYPE] => [USER_TYPE_SETTINGS] => Array ( ) [HINT] => [~NAME] => Количество осветительных приборов, шт [~DEFAULT_VALUE] => [VALUE_ENUM] => [VALUE_XML_ID] => [VALUE_SORT] => [VALUE] => [PROPERTY_VALUE_ID] => [DESCRIPTION] => [~DESCRIPTION] => [~VALUE] => ) [WEIGHT_TO_KRON] => Array ( [ID] => 167 [IBLOCK_ID] => 2 [NAME] => Высота до кронштейна, мм [ACTIVE] => Y [SORT] => 500 [CODE] => WEIGHT_TO_KRON [DEFAULT_VALUE] => [PROPERTY_TYPE] => S [ROW_COUNT] => 1 [COL_COUNT] => 30 [LIST_TYPE] => L [MULTIPLE] => N [XML_ID] => [FILE_TYPE] => [MULTIPLE_CNT] => 5 [LINK_IBLOCK_ID] => 0 [WITH_DESCRIPTION] => N [SEARCHABLE] => N [FILTRABLE] => N [IS_REQUIRED] => N [VERSION] => 1 [USER_TYPE] => [USER_TYPE_SETTINGS] => Array ( ) [HINT] => [~NAME] => Высота до кронштейна, мм [~DEFAULT_VALUE] => [VALUE_ENUM] => [VALUE_XML_ID] => [VALUE_SORT] => [VALUE] => [PROPERTY_VALUE_ID] => [DESCRIPTION] => [~DESCRIPTION] => [~VALUE] => ) [SIZE_FLANEC] => Array ( [ID] => 169 [IBLOCK_ID] => 2 [NAME] => Размер фланца [ACTIVE] => Y [SORT] => 500 [CODE] => SIZE_FLANEC [DEFAULT_VALUE] => [PROPERTY_TYPE] => S [ROW_COUNT] => 1 [COL_COUNT] => 30 [LIST_TYPE] => L [MULTIPLE] => N [XML_ID] => [FILE_TYPE] => [MULTIPLE_CNT] => 5 [LINK_IBLOCK_ID] => 0 [WITH_DESCRIPTION] => N [SEARCHABLE] => N [FILTRABLE] => N [IS_REQUIRED] => N [VERSION] => 1 [USER_TYPE] => [USER_TYPE_SETTINGS] => Array ( ) [HINT] => [~NAME] => Размер фланца [~DEFAULT_VALUE] => [VALUE_ENUM] => [VALUE_XML_ID] => [VALUE_SORT] => [VALUE] => [PROPERTY_VALUE_ID] => [DESCRIPTION] => [~DESCRIPTION] => [~VALUE] => ) [WEIGHT_MIDDLE_SECTION] => Array ( [ID] => 170 [IBLOCK_ID] => 2 [NAME] => Высота промежуточной секции, мм [ACTIVE] => Y [SORT] => 500 [CODE] => WEIGHT_MIDDLE_SECTION [DEFAULT_VALUE] => [PROPERTY_TYPE] => S [ROW_COUNT] => 1 [COL_COUNT] => 30 [LIST_TYPE] => L [MULTIPLE] => N [XML_ID] => [FILE_TYPE] => [MULTIPLE_CNT] => 5 [LINK_IBLOCK_ID] => 0 [WITH_DESCRIPTION] => N [SEARCHABLE] => N [FILTRABLE] => N [IS_REQUIRED] => N [VERSION] => 1 [USER_TYPE] => [USER_TYPE_SETTINGS] => Array ( ) [HINT] => [~NAME] => Высота промежуточной секции, мм [~DEFAULT_VALUE] => [VALUE_ENUM] => [VALUE_XML_ID] => [VALUE_SORT] => [VALUE] => [PROPERTY_VALUE_ID] => [DESCRIPTION] => [~DESCRIPTION] => [~VALUE] => ) [DEFEND_POKRYTIE] => Array ( [ID] => 171 [IBLOCK_ID] => 2 [NAME] => Защитное покрытие [ACTIVE] => Y [SORT] => 500 [CODE] => DEFEND_POKRYTIE [DEFAULT_VALUE] => [PROPERTY_TYPE] => S [ROW_COUNT] => 1 [COL_COUNT] => 30 [LIST_TYPE] => L [MULTIPLE] => N [XML_ID] => [FILE_TYPE] => [MULTIPLE_CNT] => 5 [LINK_IBLOCK_ID] => 0 [WITH_DESCRIPTION] => N [SEARCHABLE] => N [FILTRABLE] => N [IS_REQUIRED] => N [VERSION] => 1 [USER_TYPE] => [USER_TYPE_SETTINGS] => Array ( ) [HINT] => [~NAME] => Защитное покрытие [~DEFAULT_VALUE] => [VALUE_ENUM] => [VALUE_XML_ID] => [VALUE_SORT] => [VALUE] => [PROPERTY_VALUE_ID] => [DESCRIPTION] => [~DESCRIPTION] => [~VALUE] => ) [WIND_REGION] => Array ( [ID] => 172 [IBLOCK_ID] => 2 [NAME] => Ветровой район [ACTIVE] => Y [SORT] => 500 [CODE] => WIND_REGION [DEFAULT_VALUE] => [PROPERTY_TYPE] => S [ROW_COUNT] => 1 [COL_COUNT] => 30 [LIST_TYPE] => L [MULTIPLE] => N [XML_ID] => [FILE_TYPE] => [MULTIPLE_CNT] => 5 [LINK_IBLOCK_ID] => 0 [WITH_DESCRIPTION] => N [SEARCHABLE] => N [FILTRABLE] => N [IS_REQUIRED] => N [VERSION] => 1 [USER_TYPE] => [USER_TYPE_SETTINGS] => Array ( ) [HINT] => [~NAME] => Ветровой район [~DEFAULT_VALUE] => [VALUE_ENUM] => [VALUE_XML_ID] => [VALUE_SORT] => [VALUE] => [PROPERTY_VALUE_ID] => [DESCRIPTION] => [~DESCRIPTION] => [~VALUE] => ) [DIAMETER_OPOR_FLANCA] => Array ( [ID] => 173 [IBLOCK_ID] => 2 [NAME] => Диаметр опорного фланца, мм [ACTIVE] => Y [SORT] => 500 [CODE] => DIAMETER_OPOR_FLANCA [DEFAULT_VALUE] => [PROPERTY_TYPE] => S [ROW_COUNT] => 1 [COL_COUNT] => 30 [LIST_TYPE] => L [MULTIPLE] => N [XML_ID] => [FILE_TYPE] => [MULTIPLE_CNT] => 5 [LINK_IBLOCK_ID] => 0 [WITH_DESCRIPTION] => N [SEARCHABLE] => N [FILTRABLE] => N [IS_REQUIRED] => N [VERSION] => 1 [USER_TYPE] => [USER_TYPE_SETTINGS] => Array ( ) [HINT] => [~NAME] => Диаметр опорного фланца, мм [~DEFAULT_VALUE] => [VALUE_ENUM] => [VALUE_XML_ID] => [VALUE_SORT] => [VALUE] => [PROPERTY_VALUE_ID] => [DESCRIPTION] => [~DESCRIPTION] => [~VALUE] => ) [CENTER_DIST] => Array ( [ID] => 174 [IBLOCK_ID] => 2 [NAME] => Межцентровое расстояние, мм [ACTIVE] => Y [SORT] => 500 [CODE] => CENTER_DIST [DEFAULT_VALUE] => [PROPERTY_TYPE] => S [ROW_COUNT] => 1 [COL_COUNT] => 30 [LIST_TYPE] => L [MULTIPLE] => N [XML_ID] => [FILE_TYPE] => [MULTIPLE_CNT] => 5 [LINK_IBLOCK_ID] => 0 [WITH_DESCRIPTION] => N [SEARCHABLE] => N [FILTRABLE] => N [IS_REQUIRED] => N [VERSION] => 1 [USER_TYPE] => [USER_TYPE_SETTINGS] => Array ( ) [HINT] => [~NAME] => Межцентровое расстояние, мм [~DEFAULT_VALUE] => [VALUE_ENUM] => [VALUE_XML_ID] => [VALUE_SORT] => [VALUE] => [PROPERTY_VALUE_ID] => [DESCRIPTION] => [~DESCRIPTION] => [~VALUE] => ) [FLANEC_THICKNESS] => Array ( [ID] => 175 [IBLOCK_ID] => 2 [NAME] => Толщина фланца, мм [ACTIVE] => Y [SORT] => 500 [CODE] => FLANEC_THICKNESS [DEFAULT_VALUE] => [PROPERTY_TYPE] => S [ROW_COUNT] => 1 [COL_COUNT] => 30 [LIST_TYPE] => L [MULTIPLE] => N [XML_ID] => [FILE_TYPE] => [MULTIPLE_CNT] => 5 [LINK_IBLOCK_ID] => 0 [WITH_DESCRIPTION] => N [SEARCHABLE] => N [FILTRABLE] => N [IS_REQUIRED] => N [VERSION] => 1 [USER_TYPE] => [USER_TYPE_SETTINGS] => Array ( ) [HINT] => [~NAME] => Толщина фланца, мм [~DEFAULT_VALUE] => [VALUE_ENUM] => [VALUE_XML_ID] => [VALUE_SORT] => [VALUE] => [PROPERTY_VALUE_ID] => [DESCRIPTION] => [~DESCRIPTION] => [~VALUE] => ) [COUNT_HOLE] => Array ( [ID] => 176 [IBLOCK_ID] => 2 [NAME] => Количество отверстий крепления, шт [ACTIVE] => Y [SORT] => 500 [CODE] => COUNT_HOLE [DEFAULT_VALUE] => [PROPERTY_TYPE] => S [ROW_COUNT] => 1 [COL_COUNT] => 30 [LIST_TYPE] => L [MULTIPLE] => N [XML_ID] => [FILE_TYPE] => [MULTIPLE_CNT] => 5 [LINK_IBLOCK_ID] => 0 [WITH_DESCRIPTION] => N [SEARCHABLE] => N [FILTRABLE] => N [IS_REQUIRED] => N [VERSION] => 1 [USER_TYPE] => [USER_TYPE_SETTINGS] => Array ( ) [HINT] => [~NAME] => Количество отверстий крепления, шт [~DEFAULT_VALUE] => [VALUE_ENUM] => [VALUE_XML_ID] => [VALUE_SORT] => [VALUE] => [PROPERTY_VALUE_ID] => [DESCRIPTION] => [~DESCRIPTION] => [~VALUE] => ) [INSPECTION_WINDOW] => Array ( [ID] => 179 [IBLOCK_ID] => 2 [NAME] => Ревизионное окно, мм [ACTIVE] => Y [SORT] => 500 [CODE] => INSPECTION_WINDOW [DEFAULT_VALUE] => [PROPERTY_TYPE] => S [ROW_COUNT] => 1 [COL_COUNT] => 30 [LIST_TYPE] => L [MULTIPLE] => N [XML_ID] => [FILE_TYPE] => [MULTIPLE_CNT] => 5 [LINK_IBLOCK_ID] => 0 [WITH_DESCRIPTION] => N [SEARCHABLE] => N [FILTRABLE] => N [IS_REQUIRED] => N [VERSION] => 1 [USER_TYPE] => [USER_TYPE_SETTINGS] => Array ( ) [HINT] => [~NAME] => Ревизионное окно, мм [~DEFAULT_VALUE] => [VALUE_ENUM] => [VALUE_XML_ID] => [VALUE_SORT] => [VALUE] => [PROPERTY_VALUE_ID] => [DESCRIPTION] => [~DESCRIPTION] => [~VALUE] => ) [THREE_MODEL] => Array ( [ID] => 182 [IBLOCK_ID] => 2 [NAME] => 3D-модель [ACTIVE] => Y [SORT] => 500 [CODE] => THREE_MODEL [DEFAULT_VALUE] => [PROPERTY_TYPE] => F [ROW_COUNT] => 1 [COL_COUNT] => 30 [LIST_TYPE] => L [MULTIPLE] => N [XML_ID] => [FILE_TYPE] => [MULTIPLE_CNT] => 5 [LINK_IBLOCK_ID] => 0 [WITH_DESCRIPTION] => N [SEARCHABLE] => N [FILTRABLE] => N [IS_REQUIRED] => N [VERSION] => 1 [USER_TYPE] => [USER_TYPE_SETTINGS] => Array ( ) [HINT] => [~NAME] => 3D-модель [~DEFAULT_VALUE] => [VALUE_ENUM] => [VALUE_XML_ID] => [VALUE_SORT] => [VALUE] => [PROPERTY_VALUE_ID] => [DESCRIPTION] => [~DESCRIPTION] => [~VALUE] => ) [FAQ] => Array ( [ID] => 183 [IBLOCK_ID] => 2 [NAME] => FAQ [ACTIVE] => Y [SORT] => 500 [CODE] => FAQ [DEFAULT_VALUE] => Array ( [TYPE] => TEXT [TEXT] => ) [PROPERTY_TYPE] => S [ROW_COUNT] => 1 [COL_COUNT] => 30 [LIST_TYPE] => L [MULTIPLE] => N [XML_ID] => [FILE_TYPE] => [MULTIPLE_CNT] => 5 [LINK_IBLOCK_ID] => 0 [WITH_DESCRIPTION] => N [SEARCHABLE] => N [FILTRABLE] => N [IS_REQUIRED] => N [VERSION] => 1 [USER_TYPE] => HTML [USER_TYPE_SETTINGS] => Array ( [height] => 200 ) [HINT] => [~NAME] => FAQ [~DEFAULT_VALUE] => Array ( [TYPE] => TEXT [TEXT] => ) [VALUE_ENUM] => [VALUE_XML_ID] => [VALUE_SORT] => [VALUE] => [PROPERTY_VALUE_ID] => [DESCRIPTION] => [~DESCRIPTION] => [~VALUE] => ) ) [DISPLAY_PROPERTIES] => Array ( [ITEM_PRICE] => Array ( [ID] => 22 [IBLOCK_ID] => 2 [NAME] => Цена [ACTIVE] => Y [SORT] => 3 [CODE] => ITEM_PRICE [DEFAULT_VALUE] => [PROPERTY_TYPE] => L [ROW_COUNT] => 1 [COL_COUNT] => 30 [LIST_TYPE] => L [MULTIPLE] => N [XML_ID] => 22 [FILE_TYPE] => [MULTIPLE_CNT] => 5 [LINK_IBLOCK_ID] => 0 [WITH_DESCRIPTION] => N [SEARCHABLE] => N [FILTRABLE] => N [IS_REQUIRED] => Y [VERSION] => 1 [USER_TYPE] => [USER_TYPE_SETTINGS] => Array ( ) [HINT] => [~NAME] => Цена [~DEFAULT_VALUE] => [VALUE_ENUM] => По запросу [VALUE_XML_ID] => on-request [VALUE_SORT] => 1 [VALUE] => По запросу [PROPERTY_VALUE_ID] => 6825558 [VALUE_ENUM_ID] => 9 [DESCRIPTION] => [~VALUE] => По запросу [~DESCRIPTION] => [DISPLAY_VALUE] => По запросу ) [ITEM_CHARACTERISTICS] => Array ( [ID] => 28 [IBLOCK_ID] => 2 [NAME] => Характеристики [ACTIVE] => Y [SORT] => 6 [CODE] => ITEM_CHARACTERISTICS [DEFAULT_VALUE] => [PROPERTY_TYPE] => S [ROW_COUNT] => 1 [COL_COUNT] => 20 [LIST_TYPE] => L [MULTIPLE] => Y [XML_ID] => 28 [FILE_TYPE] => [MULTIPLE_CNT] => 1 [LINK_IBLOCK_ID] => 0 [WITH_DESCRIPTION] => Y [SEARCHABLE] => N [FILTRABLE] => N [IS_REQUIRED] => N [VERSION] => 1 [USER_TYPE] => [USER_TYPE_SETTINGS] => Array ( ) [HINT] => [~NAME] => Характеристики [~DEFAULT_VALUE] => [VALUE_ENUM] => [VALUE_XML_ID] => [VALUE_SORT] => [VALUE] => Array ( [0] => фланцевая [1] => граненая [2] => 35700 [3] => 19000 [4] => 1220 [5] => 500 [6] => одностоечная свободностоящая [7] => горячее цинкование [8] => Порошковое / полимерное окрашивание [9] => 30 лет [10] => промежуточная ) [PROPERTY_VALUE_ID] => Array ( [0] => 6825177 [1] => 6825178 [2] => 6825179 [3] => 6825180 [4] => 6825181 [5] => 6825182 [6] => 6825183 [7] => 6825184 [8] => 6825185 [9] => 6825186 [10] => 6825559 ) [DESCRIPTION] => Array ( [0] => Способ установки [1] => Способ производства [2] => Высота, мм [3] => Высота до нижней траверсы, мм [4] => Диаметр нижний, мм [5] => Диаметр верхний, мм [6] => Конструкция [7] => Защитное покрытие [8] => Лакокрасочное покрытие [9] => Срок службы [10] => Назначение ) [~VALUE] => Array ( [0] => фланцевая [1] => граненая [2] => 35700 [3] => 19000 [4] => 1220 [5] => 500 [6] => одностоечная свободностоящая [7] => горячее цинкование [8] => Порошковое / полимерное окрашивание [9] => 30 лет [10] => промежуточная ) [~DESCRIPTION] => Array ( [0] => Способ установки [1] => Способ производства [2] => Высота, мм [3] => Высота до нижней траверсы, мм [4] => Диаметр нижний, мм [5] => Диаметр верхний, мм [6] => Конструкция [7] => Защитное покрытие [8] => Лакокрасочное покрытие [9] => Срок службы [10] => Назначение ) [DISPLAY_VALUE] => Array ( [0] => фланцевая [1] => граненая [2] => 35700 [3] => 19000 [4] => 1220 [5] => 500 [6] => одностоечная свободностоящая [7] => горячее цинкование [8] => Порошковое / полимерное окрашивание [9] => 30 лет [10] => промежуточная ) ) ) [PRODUCT_PROPERTIES] => Array ( ) [PRODUCT_PROPERTIES_FILL] => Array ( ) [OFFERS] => Array ( ) [OFFER_ID_SELECTED] => 0 [CHECK_QUANTITY] => [ITEM_PRICE_MODE] => [ITEM_PRICES] => Array ( ) [ITEM_QUANTITY_RANGES] => Array ( ) [ITEM_MEASURE_RATIOS] => Array ( [2929] => Array ( [ID] => 2929 [RATIO] => 1 [IS_DEFAULT] => Y [PRODUCT_ID] => 15365 ) ) [ITEM_MEASURE] => Array ( [ID] => 5 [TITLE] => шт [~TITLE] => шт ) [ITEM_MEASURE_RATIO_SELECTED] => 2929 [ITEM_QUANTITY_RANGE_SELECTED] => [ITEM_PRICE_SELECTED] => [EDIT_LINK] => [DELETE_LINK] => [SECTION] => Array ( [PATH] => Array ( ) ) [CAN_BUY] => )
В наличии
Способ установки: фланцевая
Способ производства: граненая
Высота, мм: 35700
Цена по запросу
Array
(
    [ID] => 15364
    [~ID] => 15364
    [IBLOCK_ID] => 2
    [~IBLOCK_ID] => 2
    [CODE] => pm-220-2
    [~CODE] => pm-220-2
    [XML_ID] => 15364
    [~XML_ID] => 15364
    [NAME] => Многогранная опора ПМ220-2
    [~NAME] => Многогранная опора ПМ220-2
    [ACTIVE] => Y
    [~ACTIVE] => Y
    [DATE_ACTIVE_FROM] => 
    [~DATE_ACTIVE_FROM] => 
    [DATE_ACTIVE_TO] => 
    [~DATE_ACTIVE_TO] => 
    [SORT] => 0
    [~SORT] => 0
    [PREVIEW_TEXT] => 
    [~PREVIEW_TEXT] => 
    [PREVIEW_TEXT_TYPE] => text
    [~PREVIEW_TEXT_TYPE] => text
    [DETAIL_TEXT] => 

Опоры многогранные двухцепные промежуточные ПМ220-2 представляют собой одностоечные свободностоящие конструкции для воздушных линий электропередачи напряжением 220 кВ. Опоры изготавливаются по шифру 27.0009 методом горячей раскатки, что обеспечивает высокую прочность и точность геометрии граненого ствола. Конструкция высотой 35700 мм имеет фланцевое исполнение для монтажа на подготовленный фундамент. Диаметр ствола изменяется от 1200 мм в нижней части до 400 мм в верхней, что формирует оптимальную коническую форму для восприятия механических нагрузок. Высота до нижней траверсы составляет 19000 мм, что обеспечивает требуемое габаритное расстояние до земли. Основное назначение опоры — применение на прямых участках трассы ВЛ для подвески двух цепей проводов.

Монтаж опоры ПМ220-2 осуществляется фланцевым способом. Конструкция устанавливается на предварительно сооруженный железобетонный фундамент, рассчитанный на передачу всех эксплуатационных нагрузок. Фланцевое соединение обеспечивает точную и надежную фиксацию опоры, что критически важно для обеспечения требуемой соосности и вертикальности конструкции высоковольтной линии. Все монтажные работы должны выполняться в строгом соответствии с проектом производства работ и нормативной документацией.

Для обеспечения гарантированного срока службы в условиях атмосферного воздействия все металлические элементы опоры ПМ220-2 защищены методом горячего цинкования. Данная технология формирует на поверхности стали адгезионный сплав, обеспечивающий электрохимическую защиту от коррозии. По дополнительному требованию заказчика может быть нанесено полимерно-порошковое лакокрасочное покрытие в соответствии с требованиями к цветовому решению объекта. Комбинированная защита гарантирует сохранность конструкции и срок ее службы не менее 30 лет.

[~DETAIL_TEXT] =>

Опоры многогранные двухцепные промежуточные ПМ220-2 представляют собой одностоечные свободностоящие конструкции для воздушных линий электропередачи напряжением 220 кВ. Опоры изготавливаются по шифру 27.0009 методом горячей раскатки, что обеспечивает высокую прочность и точность геометрии граненого ствола. Конструкция высотой 35700 мм имеет фланцевое исполнение для монтажа на подготовленный фундамент. Диаметр ствола изменяется от 1200 мм в нижней части до 400 мм в верхней, что формирует оптимальную коническую форму для восприятия механических нагрузок. Высота до нижней траверсы составляет 19000 мм, что обеспечивает требуемое габаритное расстояние до земли. Основное назначение опоры — применение на прямых участках трассы ВЛ для подвески двух цепей проводов.

Монтаж опоры ПМ220-2 осуществляется фланцевым способом. Конструкция устанавливается на предварительно сооруженный железобетонный фундамент, рассчитанный на передачу всех эксплуатационных нагрузок. Фланцевое соединение обеспечивает точную и надежную фиксацию опоры, что критически важно для обеспечения требуемой соосности и вертикальности конструкции высоковольтной линии. Все монтажные работы должны выполняться в строгом соответствии с проектом производства работ и нормативной документацией.

Для обеспечения гарантированного срока службы в условиях атмосферного воздействия все металлические элементы опоры ПМ220-2 защищены методом горячего цинкования. Данная технология формирует на поверхности стали адгезионный сплав, обеспечивающий электрохимическую защиту от коррозии. По дополнительному требованию заказчика может быть нанесено полимерно-порошковое лакокрасочное покрытие в соответствии с требованиями к цветовому решению объекта. Комбинированная защита гарантирует сохранность конструкции и срок ее службы не менее 30 лет.

[DETAIL_TEXT_TYPE] => html [~DETAIL_TEXT_TYPE] => html [DATE_CREATE] => 07.11.2023 15:10:01 [~DATE_CREATE] => 07.11.2023 15:10:01 [CREATED_BY] => 1 [~CREATED_BY] => 1 [TAGS] => [~TAGS] => [TIMESTAMP_X] => 15.12.2025 12:33:43 [~TIMESTAMP_X] => 15.12.2025 12:33:43 [MODIFIED_BY] => 1 [~MODIFIED_BY] => 1 [IBLOCK_SECTION_ID] => 2756 [~IBLOCK_SECTION_ID] => 2955 [DETAIL_PAGE_URL] => /product/pm-220-2/ [~DETAIL_PAGE_URL] => /product/pm-220-2/ [DETAIL_PICTURE] => [~DETAIL_PICTURE] => [PREVIEW_PICTURE] => Array ( [ID] => 35272 [TIMESTAMP_X] => 15.12.2025 12:33:43 [MODULE_ID] => iblock [HEIGHT] => 1000 [WIDTH] => 1000 [FILE_SIZE] => 153257 [CONTENT_TYPE] => image/jpeg [SUBDIR] => iblock/8d9/aa685uexq8exw2cz2hnekvyjhf0wuc5v [FILE_NAME] => catalog_file_2085_l.jpg [ORIGINAL_NAME] => catalog-file-2085-l.jpg [DESCRIPTION] => [HANDLER_ID] => [EXTERNAL_ID] => e9f4ef1acd55572df300ebd338a8853f [VERSION_ORIGINAL_ID] => [META] => [SRC] => /upload/dev2fun.imagecompress/webp/iblock/8d9/aa685uexq8exw2cz2hnekvyjhf0wuc5v/catalog_file_2085_l.webp [UNSAFE_SRC] => /upload/dev2fun.imagecompress/webp/iblock/8d9/aa685uexq8exw2cz2hnekvyjhf0wuc5v/catalog_file_2085_l.webp [SAFE_SRC] => /upload/dev2fun.imagecompress/webp/iblock/8d9/aa685uexq8exw2cz2hnekvyjhf0wuc5v/catalog_file_2085_l.webp [ALT] => Многогранная опора ПМ220-2 [TITLE] => Многогранная опора ПМ220-2 ) [~PREVIEW_PICTURE] => 35272 [LANG_DIR] => / [~LANG_DIR] => / [EXTERNAL_ID] => 15364 [~EXTERNAL_ID] => 15364 [IBLOCK_TYPE_ID] => catalog [~IBLOCK_TYPE_ID] => catalog [IBLOCK_CODE] => metalstructures [~IBLOCK_CODE] => metalstructures [IBLOCK_EXTERNAL_ID] => clothes [~IBLOCK_EXTERNAL_ID] => clothes [LID] => s1 [~LID] => s1 [IPROPERTY_VALUES] => Array ( [ELEMENT_DETAIL_PICTURE_FILE_NAME] => [ELEMENT_PREVIEW_PICTURE_FILE_NAME] => [SECTION_DETAIL_PICTURE_FILE_NAME] => [SECTION_PICTURE_FILE_NAME] => [SECTION_PAGE_TITLE] => Многогранная опора ПМ220-2 [ELEMENT_PAGE_TITLE] => Многогранная опора ПМ220-2 [SECTION_META_TITLE] => Многогранные двухцепные промежуточные опоры ВЛ 220 кВ по шифру 27.0009 купить в {{rp}} на сайте производителя НПО Легион [SECTION_META_DESCRIPTION] => Производство многогранных двухцепных промежуточных опор ВЛ 220 кВ по шифру 27.0009 в {{rp}}. Заказать многогранные промежуточные опоры ВЛ 220 кВ у производителя НПО Легион. Наличие товара на складе. Звоните ☎ {{subdomain_tel}} [SECTION_META_KEYWORDS] => Многоранные опоры ЛЭП производство продажа купить Многогранные двухцепные промежуточные опоры ВЛ 220 кВ по шифру 27.0009 для линий электропередач [ELEMENT_META_TITLE] => Многогранная опора ПМ220-2 для высоковольтных линий 220 кВ купить в {{rp}} на сайте производителя НПО Легион [ELEMENT_META_DESCRIPTION] => Производство стальных многогранных опор ПМ220-2 для высоковольтных линий 220 кВ по шифру 27.0009 в {{rp}}. Заказать многогранные опоры ЛЭП у производителя НПО Легион. Наличие товара на складе. Звоните ☎ {{subdomain_tel}} [ELEMENT_META_KEYWORDS] => Многогранные опоры ПМ220-2 ЛЭП производство продажа купить многогранные ВЛ 220кВ для линий электропередач шифру 27.0009 ) [PRODUCT] => Array ( [TYPE] => 1 [AVAILABLE] => Y [BUNDLE] => N [QUANTITY] => 10 [QUANTITY_TRACE] => N [CAN_BUY_ZERO] => Y [MEASURE] => 5 [SUBSCRIBE] => Y [VAT_ID] => 0 [VAT_RATE] => 0 [VAT_INCLUDED] => N [WEIGHT] => 0 [WIDTH] => 0 [LENGTH] => 0 [HEIGHT] => 0 [PAYMENT_TYPE] => S [RECUR_SCHEME_TYPE] => D [RECUR_SCHEME_LENGTH] => 0 [TRIAL_PRICE_ID] => 0 [USE_OFFERS] => ) [~CATALOG_TYPE] => 1 [CATALOG_TYPE] => 1 [~CATALOG_QUANTITY] => 10 [CATALOG_QUANTITY] => 10 [~CATALOG_QUANTITY_TRACE] => N [CATALOG_QUANTITY_TRACE] => N [~CATALOG_CAN_BUY_ZERO] => Y [CATALOG_CAN_BUY_ZERO] => Y [~CATALOG_SUBSCRIBE] => Y [CATALOG_SUBSCRIBE] => Y [PROPERTIES] => Array ( [ITEM_DELIVERY] => Array ( [ID] => 20 [IBLOCK_ID] => 2 [NAME] => Доставка [ACTIVE] => Y [SORT] => 1 [CODE] => ITEM_DELIVERY [DEFAULT_VALUE] => [PROPERTY_TYPE] => L [ROW_COUNT] => 1 [COL_COUNT] => 30 [LIST_TYPE] => L [MULTIPLE] => N [XML_ID] => 20 [FILE_TYPE] => [MULTIPLE_CNT] => 5 [LINK_IBLOCK_ID] => 0 [WITH_DESCRIPTION] => N [SEARCHABLE] => N [FILTRABLE] => N [IS_REQUIRED] => Y [VERSION] => 1 [USER_TYPE] => [USER_TYPE_SETTINGS] => Array ( ) [HINT] => [~NAME] => Доставка [~DEFAULT_VALUE] => [VALUE_ENUM] => По России и СНГ [VALUE_XML_ID] => ru-sng [VALUE_SORT] => 1 [VALUE] => По России и СНГ [PROPERTY_VALUE_ID] => 6825462 [VALUE_ENUM_ID] => 7 [DESCRIPTION] => [~VALUE] => По России и СНГ [~DESCRIPTION] => ) [ITEM_PAYMENT] => Array ( [ID] => 21 [IBLOCK_ID] => 2 [NAME] => Оплата [ACTIVE] => Y [SORT] => 2 [CODE] => ITEM_PAYMENT [DEFAULT_VALUE] => [PROPERTY_TYPE] => L [ROW_COUNT] => 1 [COL_COUNT] => 30 [LIST_TYPE] => L [MULTIPLE] => N [XML_ID] => 21 [FILE_TYPE] => [MULTIPLE_CNT] => 5 [LINK_IBLOCK_ID] => 0 [WITH_DESCRIPTION] => N [SEARCHABLE] => N [FILTRABLE] => N [IS_REQUIRED] => Y [VERSION] => 1 [USER_TYPE] => [USER_TYPE_SETTINGS] => Array ( ) [HINT] => [~NAME] => Оплата [~DEFAULT_VALUE] => [VALUE_ENUM] => Безналичный расчет [VALUE_XML_ID] => payment-bank [VALUE_SORT] => 1 [VALUE] => Безналичный расчет [PROPERTY_VALUE_ID] => 6825463 [VALUE_ENUM_ID] => 8 [DESCRIPTION] => [~VALUE] => Безналичный расчет [~DESCRIPTION] => ) [ITEM_PRICE] => Array ( [ID] => 22 [IBLOCK_ID] => 2 [NAME] => Цена [ACTIVE] => Y [SORT] => 3 [CODE] => ITEM_PRICE [DEFAULT_VALUE] => [PROPERTY_TYPE] => L [ROW_COUNT] => 1 [COL_COUNT] => 30 [LIST_TYPE] => L [MULTIPLE] => N [XML_ID] => 22 [FILE_TYPE] => [MULTIPLE_CNT] => 5 [LINK_IBLOCK_ID] => 0 [WITH_DESCRIPTION] => N [SEARCHABLE] => N [FILTRABLE] => N [IS_REQUIRED] => Y [VERSION] => 1 [USER_TYPE] => [USER_TYPE_SETTINGS] => Array ( ) [HINT] => [~NAME] => Цена [~DEFAULT_VALUE] => [VALUE_ENUM] => По запросу [VALUE_XML_ID] => on-request [VALUE_SORT] => 1 [VALUE] => По запросу [PROPERTY_VALUE_ID] => 6825464 [VALUE_ENUM_ID] => 9 [DESCRIPTION] => [~VALUE] => По запросу [~DESCRIPTION] => ) [ITEM_IMAGES] => Array ( [ID] => 23 [IBLOCK_ID] => 2 [NAME] => Изображения [ACTIVE] => Y [SORT] => 4 [CODE] => ITEM_IMAGES [DEFAULT_VALUE] => [PROPERTY_TYPE] => F [ROW_COUNT] => 1 [COL_COUNT] => 30 [LIST_TYPE] => L [MULTIPLE] => Y [XML_ID] => 23 [FILE_TYPE] => [MULTIPLE_CNT] => 5 [LINK_IBLOCK_ID] => 0 [WITH_DESCRIPTION] => N [SEARCHABLE] => N [FILTRABLE] => N [IS_REQUIRED] => N [VERSION] => 1 [USER_TYPE] => [USER_TYPE_SETTINGS] => Array ( ) [HINT] => [~NAME] => Изображения [~DEFAULT_VALUE] => [VALUE_ENUM] => [VALUE_XML_ID] => [VALUE_SORT] => [VALUE] => Array ( [0] => 35273 [1] => 35274 [2] => 35275 [3] => 35276 ) [PROPERTY_VALUE_ID] => Array ( [0] => 5932957 [1] => 5932958 [2] => 5932959 [3] => 5932960 ) [DESCRIPTION] => Array ( [0] => [1] => [2] => [3] => ) [~VALUE] => Array ( [0] => 35273 [1] => 35274 [2] => 35275 [3] => 35276 ) [~DESCRIPTION] => Array ( [0] => [1] => [2] => [3] => ) ) [ITEM_PROPERTIES] => Array ( [ID] => 24 [IBLOCK_ID] => 2 [NAME] => Свойства [ACTIVE] => Y [SORT] => 5 [CODE] => ITEM_PROPERTIES [DEFAULT_VALUE] => [PROPERTY_TYPE] => E [ROW_COUNT] => 1 [COL_COUNT] => 30 [LIST_TYPE] => L [MULTIPLE] => Y [XML_ID] => 24 [FILE_TYPE] => [MULTIPLE_CNT] => 1 [LINK_IBLOCK_ID] => 3 [WITH_DESCRIPTION] => N [SEARCHABLE] => N [FILTRABLE] => N [IS_REQUIRED] => N [VERSION] => 1 [USER_TYPE] => [USER_TYPE_SETTINGS] => Array ( ) [HINT] => [~NAME] => Свойства [~DEFAULT_VALUE] => [VALUE_ENUM] => [VALUE_XML_ID] => [VALUE_SORT] => [VALUE] => [PROPERTY_VALUE_ID] => [DESCRIPTION] => [~DESCRIPTION] => [~VALUE] => ) [ITEM_CHARACTERISTICS] => Array ( [ID] => 28 [IBLOCK_ID] => 2 [NAME] => Характеристики [ACTIVE] => Y [SORT] => 6 [CODE] => ITEM_CHARACTERISTICS [DEFAULT_VALUE] => [PROPERTY_TYPE] => S [ROW_COUNT] => 1 [COL_COUNT] => 20 [LIST_TYPE] => L [MULTIPLE] => Y [XML_ID] => 28 [FILE_TYPE] => [MULTIPLE_CNT] => 1 [LINK_IBLOCK_ID] => 0 [WITH_DESCRIPTION] => Y [SEARCHABLE] => N [FILTRABLE] => N [IS_REQUIRED] => N [VERSION] => 1 [USER_TYPE] => [USER_TYPE_SETTINGS] => Array ( ) [HINT] => [~NAME] => Характеристики [~DEFAULT_VALUE] => [VALUE_ENUM] => [VALUE_XML_ID] => [VALUE_SORT] => [VALUE] => Array ( [0] => фланцевая [1] => граненая [2] => 35700 [3] => 19000 [4] => 1200 [5] => 400 [6] => Применяется на прямых участках ЛЭП [7] => одностоечная свободностоящая [8] => Горячее цинкование [9] => Порошковое / полимерное окрашивание [10] => 30 лет [11] => промежуточная ) [PROPERTY_VALUE_ID] => Array ( [0] => 6823851 [1] => 6823852 [2] => 6823853 [3] => 6823854 [4] => 6823855 [5] => 6823856 [6] => 6823857 [7] => 6823858 [8] => 6823859 [9] => 6823860 [10] => 6823861 [11] => 6825465 ) [DESCRIPTION] => Array ( [0] => Способ установки [1] => Способ производства [2] => Высота, мм [3] => Высота до нижней траверсы, мм [4] => Диаметр нижний, мм [5] => Диаметр верхний, мм [6] => Назначение [7] => Конструкция [8] => Защитное покрытие [9] => Лакокрасочное покрытие [10] => Срок службы [11] => Назначение ) [~VALUE] => Array ( [0] => фланцевая [1] => граненая [2] => 35700 [3] => 19000 [4] => 1200 [5] => 400 [6] => Применяется на прямых участках ЛЭП [7] => одностоечная свободностоящая [8] => Горячее цинкование [9] => Порошковое / полимерное окрашивание [10] => 30 лет [11] => промежуточная ) [~DESCRIPTION] => Array ( [0] => Способ установки [1] => Способ производства [2] => Высота, мм [3] => Высота до нижней траверсы, мм [4] => Диаметр нижний, мм [5] => Диаметр верхний, мм [6] => Назначение [7] => Конструкция [8] => Защитное покрытие [9] => Лакокрасочное покрытие [10] => Срок службы [11] => Назначение ) ) [ITEM_FILTER] => Array ( [ID] => 40 [IBLOCK_ID] => 2 [NAME] => Фильтр [ACTIVE] => Y [SORT] => 7 [CODE] => ITEM_FILTER [DEFAULT_VALUE] => [PROPERTY_TYPE] => S [ROW_COUNT] => 1 [COL_COUNT] => 30 [LIST_TYPE] => L [MULTIPLE] => N [XML_ID] => 40 [FILE_TYPE] => [MULTIPLE_CNT] => 5 [LINK_IBLOCK_ID] => 0 [WITH_DESCRIPTION] => N [SEARCHABLE] => N [FILTRABLE] => N [IS_REQUIRED] => N [VERSION] => 1 [USER_TYPE] => [USER_TYPE_SETTINGS] => Array ( ) [HINT] => [~NAME] => Фильтр [~DEFAULT_VALUE] => [VALUE_ENUM] => [VALUE_XML_ID] => [VALUE_SORT] => [VALUE] => [PROPERTY_VALUE_ID] => [DESCRIPTION] => [~DESCRIPTION] => [~VALUE] => ) [ITEM_TECH_CH] => Array ( [ID] => 29 [IBLOCK_ID] => 2 [NAME] => Технические характеристики [ACTIVE] => Y [SORT] => 8 [CODE] => ITEM_TECH_CH [DEFAULT_VALUE] => Array ( [TYPE] => HTML [TEXT] => ) [PROPERTY_TYPE] => S [ROW_COUNT] => 1 [COL_COUNT] => 30 [LIST_TYPE] => L [MULTIPLE] => N [XML_ID] => 29 [FILE_TYPE] => [MULTIPLE_CNT] => 5 [LINK_IBLOCK_ID] => 0 [WITH_DESCRIPTION] => N [SEARCHABLE] => N [FILTRABLE] => N [IS_REQUIRED] => N [VERSION] => 1 [USER_TYPE] => HTML [USER_TYPE_SETTINGS] => Array ( [height] => 200 ) [HINT] => [~NAME] => Технические характеристики [~DEFAULT_VALUE] => Array ( [TYPE] => HTML [TEXT] => ) [VALUE_ENUM] => [VALUE_XML_ID] => [VALUE_SORT] => [VALUE] => Array ( [TEXT] => <p style="text-align: justify;"> Конструкция применяется для строительства новых и реконструкции существующих воздушных линий электропередачи класса напряжения 220 кВ. Опоры используются на прямых участках трассы ЛЭП в качестве основных промежуточных опор, воспринимающих вертикальные и горизонтальные нагрузки от веса проводов, тросов и гололеда. Данная модель востребована при сооружении магистральных ЛЭП, связывающих крупные энергоузлы и распределительные подстанции. Конструкция также подходит для использования в различных климатических районах, включая районы с повышенными ветровыми и гололедными нагрузками. </p> [TYPE] => HTML ) [PROPERTY_VALUE_ID] => 6823865 [DESCRIPTION] => [~VALUE] => Array ( [TEXT] =>

Конструкция применяется для строительства новых и реконструкции существующих воздушных линий электропередачи класса напряжения 220 кВ. Опоры используются на прямых участках трассы ЛЭП в качестве основных промежуточных опор, воспринимающих вертикальные и горизонтальные нагрузки от веса проводов, тросов и гололеда. Данная модель востребована при сооружении магистральных ЛЭП, связывающих крупные энергоузлы и распределительные подстанции. Конструкция также подходит для использования в различных климатических районах, включая районы с повышенными ветровыми и гололедными нагрузками.

[TYPE] => HTML ) [~DESCRIPTION] => ) [ITEM_ADV_DESCR] => Array ( [ID] => 30 [IBLOCK_ID] => 2 [NAME] => Преимущества (описание) [ACTIVE] => Y [SORT] => 9 [CODE] => ITEM_ADV_DESCR [DEFAULT_VALUE] => Array ( [TYPE] => HTML [TEXT] => ) [PROPERTY_TYPE] => S [ROW_COUNT] => 1 [COL_COUNT] => 30 [LIST_TYPE] => L [MULTIPLE] => N [XML_ID] => 30 [FILE_TYPE] => [MULTIPLE_CNT] => 5 [LINK_IBLOCK_ID] => 0 [WITH_DESCRIPTION] => N [SEARCHABLE] => N [FILTRABLE] => N [IS_REQUIRED] => N [VERSION] => 1 [USER_TYPE] => HTML [USER_TYPE_SETTINGS] => Array ( [height] => 100 ) [HINT] => [~NAME] => Преимущества (описание) [~DEFAULT_VALUE] => Array ( [TYPE] => HTML [TEXT] => ) [VALUE_ENUM] => [VALUE_XML_ID] => [VALUE_SORT] => [VALUE] => Array ( [TEXT] => <p style="text-align: justify;"> Ключевым преимуществом является применение технологии изготовления граненого конического ствола, обеспечивающей высокую прочность и устойчивость при оптимальном расходе металла. Фланцевое исполнение упрощает процесс монтажа и обеспечивает высокую точность установки. Конструкция оптимизирована для подвески двух цепей проводов 220 кВ на прямых участках с соблюдением всех необходимых электрических зазоров. Долговечность и коррозионная стойкость подтверждены применением горячего цинкования и сроком службы 30 лет. </p> [TYPE] => HTML ) [PROPERTY_VALUE_ID] => 6823866 [DESCRIPTION] => [~VALUE] => Array ( [TEXT] =>

Ключевым преимуществом является применение технологии изготовления граненого конического ствола, обеспечивающей высокую прочность и устойчивость при оптимальном расходе металла. Фланцевое исполнение упрощает процесс монтажа и обеспечивает высокую точность установки. Конструкция оптимизирована для подвески двух цепей проводов 220 кВ на прямых участках с соблюдением всех необходимых электрических зазоров. Долговечность и коррозионная стойкость подтверждены применением горячего цинкования и сроком службы 30 лет.

[TYPE] => HTML ) [~DESCRIPTION] => ) [ITEM_ADV] => Array ( [ID] => 31 [IBLOCK_ID] => 2 [NAME] => Преимущества [ACTIVE] => Y [SORT] => 10 [CODE] => ITEM_ADV [DEFAULT_VALUE] => [PROPERTY_TYPE] => E [ROW_COUNT] => 1 [COL_COUNT] => 30 [LIST_TYPE] => L [MULTIPLE] => Y [XML_ID] => 31 [FILE_TYPE] => [MULTIPLE_CNT] => 1 [LINK_IBLOCK_ID] => 5 [WITH_DESCRIPTION] => N [SEARCHABLE] => N [FILTRABLE] => N [IS_REQUIRED] => N [VERSION] => 1 [USER_TYPE] => [USER_TYPE_SETTINGS] => Array ( ) [HINT] => [~NAME] => Преимущества [~DEFAULT_VALUE] => [VALUE_ENUM] => [VALUE_XML_ID] => [VALUE_SORT] => [VALUE] => [PROPERTY_VALUE_ID] => [DESCRIPTION] => [~DESCRIPTION] => [~VALUE] => ) [ITEM_BUY] => Array ( [ID] => 32 [IBLOCK_ID] => 2 [NAME] => Купить [ACTIVE] => Y [SORT] => 11 [CODE] => ITEM_BUY [DEFAULT_VALUE] => Array ( [TEXT] => [TYPE] => HTML ) [PROPERTY_TYPE] => S [ROW_COUNT] => 1 [COL_COUNT] => 30 [LIST_TYPE] => L [MULTIPLE] => N [XML_ID] => 32 [FILE_TYPE] => [MULTIPLE_CNT] => 5 [LINK_IBLOCK_ID] => 0 [WITH_DESCRIPTION] => N [SEARCHABLE] => N [FILTRABLE] => N [IS_REQUIRED] => N [VERSION] => 1 [USER_TYPE] => HTML [USER_TYPE_SETTINGS] => Array ( [height] => 200 ) [HINT] => [~NAME] => Купить [~DEFAULT_VALUE] => Array ( [TEXT] => [TYPE] => HTML ) [VALUE_ENUM] => [VALUE_XML_ID] => [VALUE_SORT] => [VALUE] => Array ( [TEXT] => <p style="text-align: justify;"> Приобрести многогранные двухцепные промежуточные опоры ПМ220-2 для ВЛ 220 кВ можно напрямую у производителя — НПО «Легион». Мы гарантируем производство в строгом соответствии с шифром 27.0009 и техническими условиями. Для получения подробных технических характеристик, оформления заказа и расчета логистики обратитесь к нашим специалистам.<br> Телефон: 8(800)500-51-37<br> Email: <a href="mailto:info@legionural.ru">info@legionural.ru</a> </p> <a href="mailto:info@legionural.ru"></a> [TYPE] => HTML ) [PROPERTY_VALUE_ID] => 6823867 [DESCRIPTION] => [~VALUE] => Array ( [TEXT] =>

Приобрести многогранные двухцепные промежуточные опоры ПМ220-2 для ВЛ 220 кВ можно напрямую у производителя — НПО «Легион». Мы гарантируем производство в строгом соответствии с шифром 27.0009 и техническими условиями. Для получения подробных технических характеристик, оформления заказа и расчета логистики обратитесь к нашим специалистам.
Телефон: 8(800)500-51-37
Email: info@legionural.ru

[TYPE] => HTML ) [~DESCRIPTION] => ) [ITEM_CERT_COR] => Array ( [ID] => 33 [IBLOCK_ID] => 2 [NAME] => Сертификаты соответствия [ACTIVE] => Y [SORT] => 12 [CODE] => ITEM_CERT_COR [DEFAULT_VALUE] => [PROPERTY_TYPE] => S [ROW_COUNT] => 1 [COL_COUNT] => 30 [LIST_TYPE] => L [MULTIPLE] => Y [XML_ID] => 33 [FILE_TYPE] => [MULTIPLE_CNT] => 1 [LINK_IBLOCK_ID] => 0 [WITH_DESCRIPTION] => Y [SEARCHABLE] => N [FILTRABLE] => N [IS_REQUIRED] => N [VERSION] => 1 [USER_TYPE] => [USER_TYPE_SETTINGS] => Array ( ) [HINT] => [~NAME] => Сертификаты соответствия [~DEFAULT_VALUE] => [VALUE_ENUM] => [VALUE_XML_ID] => [VALUE_SORT] => [VALUE] => [PROPERTY_VALUE_ID] => [DESCRIPTION] => [~DESCRIPTION] => [~VALUE] => ) [ITEM_ST_STAND] => Array ( [ID] => 34 [IBLOCK_ID] => 2 [NAME] => Государственные стандарты [ACTIVE] => Y [SORT] => 13 [CODE] => ITEM_ST_STAND [DEFAULT_VALUE] => [PROPERTY_TYPE] => S [ROW_COUNT] => 1 [COL_COUNT] => 30 [LIST_TYPE] => L [MULTIPLE] => Y [XML_ID] => 34 [FILE_TYPE] => [MULTIPLE_CNT] => 1 [LINK_IBLOCK_ID] => 0 [WITH_DESCRIPTION] => Y [SEARCHABLE] => N [FILTRABLE] => N [IS_REQUIRED] => N [VERSION] => 1 [USER_TYPE] => [USER_TYPE_SETTINGS] => Array ( ) [HINT] => [~NAME] => Государственные стандарты [~DEFAULT_VALUE] => [VALUE_ENUM] => [VALUE_XML_ID] => [VALUE_SORT] => [VALUE] => [PROPERTY_VALUE_ID] => [DESCRIPTION] => [~DESCRIPTION] => [~VALUE] => ) [ITEM_NORM] => Array ( [ID] => 35 [IBLOCK_ID] => 2 [NAME] => Строительные нормы и правила [ACTIVE] => Y [SORT] => 14 [CODE] => ITEM_NORM [DEFAULT_VALUE] => [PROPERTY_TYPE] => S [ROW_COUNT] => 1 [COL_COUNT] => 30 [LIST_TYPE] => L [MULTIPLE] => Y [XML_ID] => 35 [FILE_TYPE] => [MULTIPLE_CNT] => 1 [LINK_IBLOCK_ID] => 0 [WITH_DESCRIPTION] => Y [SEARCHABLE] => N [FILTRABLE] => N [IS_REQUIRED] => N [VERSION] => 1 [USER_TYPE] => [USER_TYPE_SETTINGS] => Array ( ) [HINT] => [~NAME] => Строительные нормы и правила [~DEFAULT_VALUE] => [VALUE_ENUM] => [VALUE_XML_ID] => [VALUE_SORT] => [VALUE] => [PROPERTY_VALUE_ID] => [DESCRIPTION] => [~DESCRIPTION] => [~VALUE] => ) [ITEM_SIMILAR] => Array ( [ID] => 36 [IBLOCK_ID] => 2 [NAME] => Похожие модели [ACTIVE] => Y [SORT] => 15 [CODE] => ITEM_SIMILAR [DEFAULT_VALUE] => [PROPERTY_TYPE] => G [ROW_COUNT] => 1 [COL_COUNT] => 30 [LIST_TYPE] => L [MULTIPLE] => Y [XML_ID] => 36 [FILE_TYPE] => [MULTIPLE_CNT] => 10 [LINK_IBLOCK_ID] => 2 [WITH_DESCRIPTION] => N [SEARCHABLE] => N [FILTRABLE] => N [IS_REQUIRED] => N [VERSION] => 1 [USER_TYPE] => [USER_TYPE_SETTINGS] => Array ( ) [HINT] => [~NAME] => Похожие модели [~DEFAULT_VALUE] => [VALUE_ENUM] => [VALUE_XML_ID] => [VALUE_SORT] => [VALUE] => Array ( [0] => 2955 ) [PROPERTY_VALUE_ID] => Array ( [0] => 6825466 ) [DESCRIPTION] => Array ( [0] => ) [~VALUE] => Array ( [0] => 2955 ) [~DESCRIPTION] => Array ( [0] => ) ) [ITEM_SIMILAR_TAGS] => Array ( [ID] => 122 [IBLOCK_ID] => 2 [NAME] => Похожие модели (теговые) [ACTIVE] => Y [SORT] => 16 [CODE] => ITEM_SIMILAR_TAGS [DEFAULT_VALUE] => [PROPERTY_TYPE] => E [ROW_COUNT] => 1 [COL_COUNT] => 30 [LIST_TYPE] => L [MULTIPLE] => Y [XML_ID] => 122 [FILE_TYPE] => [MULTIPLE_CNT] => 1 [LINK_IBLOCK_ID] => 19 [WITH_DESCRIPTION] => N [SEARCHABLE] => N [FILTRABLE] => N [IS_REQUIRED] => N [VERSION] => 1 [USER_TYPE] => [USER_TYPE_SETTINGS] => Array ( ) [HINT] => [~NAME] => Похожие модели (теговые) [~DEFAULT_VALUE] => [VALUE_ENUM] => [VALUE_XML_ID] => [VALUE_SORT] => [VALUE] => [PROPERTY_VALUE_ID] => [DESCRIPTION] => [~DESCRIPTION] => [~VALUE] => ) [ITEM_BUY_WITH] => Array ( [ID] => 37 [IBLOCK_ID] => 2 [NAME] => С этим товаром покупают [ACTIVE] => Y [SORT] => 17 [CODE] => ITEM_BUY_WITH [DEFAULT_VALUE] => [PROPERTY_TYPE] => E [ROW_COUNT] => 1 [COL_COUNT] => 30 [LIST_TYPE] => L [MULTIPLE] => Y [XML_ID] => 37 [FILE_TYPE] => [MULTIPLE_CNT] => 1 [LINK_IBLOCK_ID] => 2 [WITH_DESCRIPTION] => N [SEARCHABLE] => N [FILTRABLE] => N [IS_REQUIRED] => N [VERSION] => 1 [USER_TYPE] => [USER_TYPE_SETTINGS] => Array ( ) [HINT] => [~NAME] => С этим товаром покупают [~DEFAULT_VALUE] => [VALUE_ENUM] => [VALUE_XML_ID] => [VALUE_SORT] => [VALUE] => [PROPERTY_VALUE_ID] => [DESCRIPTION] => [~DESCRIPTION] => [~VALUE] => ) [ITEM_VOTE_COUNT] => Array ( [ID] => 38 [IBLOCK_ID] => 2 [NAME] => Количество голосов [ACTIVE] => Y [SORT] => 18 [CODE] => ITEM_VOTE_COUNT [DEFAULT_VALUE] => 0 [PROPERTY_TYPE] => N [ROW_COUNT] => 1 [COL_COUNT] => 30 [LIST_TYPE] => L [MULTIPLE] => N [XML_ID] => 38 [FILE_TYPE] => [MULTIPLE_CNT] => 5 [LINK_IBLOCK_ID] => 0 [WITH_DESCRIPTION] => N [SEARCHABLE] => N [FILTRABLE] => N [IS_REQUIRED] => N [VERSION] => 1 [USER_TYPE] => [USER_TYPE_SETTINGS] => Array ( ) [HINT] => [~NAME] => Количество голосов [~DEFAULT_VALUE] => 0 [VALUE_ENUM] => [VALUE_XML_ID] => [VALUE_SORT] => [VALUE] => 4 [PROPERTY_VALUE_ID] => 5932961 [DESCRIPTION] => [~VALUE] => 4 [~DESCRIPTION] => ) [ITEM_RAITING] => Array ( [ID] => 39 [IBLOCK_ID] => 2 [NAME] => Рейтинг [ACTIVE] => Y [SORT] => 19 [CODE] => ITEM_RAITING [DEFAULT_VALUE] => 0 [PROPERTY_TYPE] => N [ROW_COUNT] => 1 [COL_COUNT] => 30 [LIST_TYPE] => L [MULTIPLE] => N [XML_ID] => 39 [FILE_TYPE] => [MULTIPLE_CNT] => 5 [LINK_IBLOCK_ID] => 0 [WITH_DESCRIPTION] => N [SEARCHABLE] => N [FILTRABLE] => N [IS_REQUIRED] => N [VERSION] => 1 [USER_TYPE] => [USER_TYPE_SETTINGS] => Array ( ) [HINT] => [~NAME] => Рейтинг [~DEFAULT_VALUE] => 0 [VALUE_ENUM] => [VALUE_XML_ID] => [VALUE_SORT] => [VALUE] => 4.6 [PROPERTY_VALUE_ID] => 5932962 [DESCRIPTION] => [~VALUE] => 4.6 [~DESCRIPTION] => ) [H1] => Array ( [ID] => 125 [IBLOCK_ID] => 2 [NAME] => H1 [ACTIVE] => Y [SORT] => 500 [CODE] => H1 [DEFAULT_VALUE] => [PROPERTY_TYPE] => S [ROW_COUNT] => 1 [COL_COUNT] => 70 [LIST_TYPE] => L [MULTIPLE] => N [XML_ID] => 125 [FILE_TYPE] => [MULTIPLE_CNT] => 5 [LINK_IBLOCK_ID] => 0 [WITH_DESCRIPTION] => N [SEARCHABLE] => N [FILTRABLE] => N [IS_REQUIRED] => N [VERSION] => 1 [USER_TYPE] => [USER_TYPE_SETTINGS] => Array ( ) [HINT] => [~NAME] => H1 [~DEFAULT_VALUE] => [VALUE_ENUM] => [VALUE_XML_ID] => [VALUE_SORT] => [VALUE] => Многогранная опора ПМ220-2 [PROPERTY_VALUE_ID] => 5945353 [DESCRIPTION] => [~VALUE] => Многогранная опора ПМ220-2 [~DESCRIPTION] => ) [CERTIFICATES] => Array ( [ID] => 127 [IBLOCK_ID] => 2 [NAME] => Сертификаты [ACTIVE] => Y [SORT] => 500 [CODE] => CERTIFICATES [DEFAULT_VALUE] => [PROPERTY_TYPE] => E [ROW_COUNT] => 1 [COL_COUNT] => 30 [LIST_TYPE] => L [MULTIPLE] => Y [XML_ID] => 127 [FILE_TYPE] => [MULTIPLE_CNT] => 5 [LINK_IBLOCK_ID] => 7 [WITH_DESCRIPTION] => N [SEARCHABLE] => N [FILTRABLE] => N [IS_REQUIRED] => N [VERSION] => 1 [USER_TYPE] => [USER_TYPE_SETTINGS] => Array ( ) [HINT] => [~NAME] => Сертификаты [~DEFAULT_VALUE] => [VALUE_ENUM] => [VALUE_XML_ID] => [VALUE_SORT] => [VALUE] => [PROPERTY_VALUE_ID] => [DESCRIPTION] => [~DESCRIPTION] => [~VALUE] => ) [129] => Array ( [ID] => 129 [IBLOCK_ID] => 2 [NAME] => Уникальный META TITLE [ACTIVE] => Y [SORT] => 500 [CODE] => 129 [DEFAULT_VALUE] => [PROPERTY_TYPE] => S [ROW_COUNT] => 1 [COL_COUNT] => 30 [LIST_TYPE] => L [MULTIPLE] => N [XML_ID] => 129 [FILE_TYPE] => [MULTIPLE_CNT] => 5 [LINK_IBLOCK_ID] => 0 [WITH_DESCRIPTION] => N [SEARCHABLE] => N [FILTRABLE] => N [IS_REQUIRED] => N [VERSION] => 1 [USER_TYPE] => [USER_TYPE_SETTINGS] => Array ( ) [HINT] => [~NAME] => Уникальный META TITLE [~DEFAULT_VALUE] => [VALUE_ENUM] => [VALUE_XML_ID] => [VALUE_SORT] => [VALUE] => [PROPERTY_VALUE_ID] => [DESCRIPTION] => [~DESCRIPTION] => [~VALUE] => ) [ITEM_TYPE] => Array ( [ID] => 134 [IBLOCK_ID] => 2 [NAME] => Тип [ACTIVE] => Y [SORT] => 500 [CODE] => ITEM_TYPE [DEFAULT_VALUE] => [PROPERTY_TYPE] => S [ROW_COUNT] => 1 [COL_COUNT] => 30 [LIST_TYPE] => L [MULTIPLE] => N [XML_ID] => [FILE_TYPE] => [MULTIPLE_CNT] => 5 [LINK_IBLOCK_ID] => 0 [WITH_DESCRIPTION] => N [SEARCHABLE] => N [FILTRABLE] => Y [IS_REQUIRED] => N [VERSION] => 1 [USER_TYPE] => [USER_TYPE_SETTINGS] => Array ( ) [HINT] => [~NAME] => Тип [~DEFAULT_VALUE] => [VALUE_ENUM] => [VALUE_XML_ID] => [VALUE_SORT] => [VALUE] => [PROPERTY_VALUE_ID] => [DESCRIPTION] => [~DESCRIPTION] => [~VALUE] => ) [ITEM_INSTALLATION] => Array ( [ID] => 135 [IBLOCK_ID] => 2 [NAME] => Способ установки [ACTIVE] => Y [SORT] => 500 [CODE] => ITEM_INSTALLATION [DEFAULT_VALUE] => [PROPERTY_TYPE] => S [ROW_COUNT] => 1 [COL_COUNT] => 30 [LIST_TYPE] => L [MULTIPLE] => N [XML_ID] => [FILE_TYPE] => [MULTIPLE_CNT] => 5 [LINK_IBLOCK_ID] => 0 [WITH_DESCRIPTION] => N [SEARCHABLE] => N [FILTRABLE] => N [IS_REQUIRED] => N [VERSION] => 1 [USER_TYPE] => [USER_TYPE_SETTINGS] => Array ( ) [HINT] => [~NAME] => Способ установки [~DEFAULT_VALUE] => [VALUE_ENUM] => [VALUE_XML_ID] => [VALUE_SORT] => [VALUE] => [PROPERTY_VALUE_ID] => [DESCRIPTION] => [~DESCRIPTION] => [~VALUE] => ) [ITEM_MODE] => Array ( [ID] => 136 [IBLOCK_ID] => 2 [NAME] => Способ производства [ACTIVE] => Y [SORT] => 500 [CODE] => ITEM_MODE [DEFAULT_VALUE] => [PROPERTY_TYPE] => S [ROW_COUNT] => 1 [COL_COUNT] => 30 [LIST_TYPE] => L [MULTIPLE] => N [XML_ID] => [FILE_TYPE] => [MULTIPLE_CNT] => 5 [LINK_IBLOCK_ID] => 0 [WITH_DESCRIPTION] => N [SEARCHABLE] => N [FILTRABLE] => N [IS_REQUIRED] => N [VERSION] => 1 [USER_TYPE] => [USER_TYPE_SETTINGS] => Array ( ) [HINT] => [~NAME] => Способ производства [~DEFAULT_VALUE] => [VALUE_ENUM] => [VALUE_XML_ID] => [VALUE_SORT] => [VALUE] => [PROPERTY_VALUE_ID] => [DESCRIPTION] => [~DESCRIPTION] => [~VALUE] => ) [ITEM_HEIGHT] => Array ( [ID] => 137 [IBLOCK_ID] => 2 [NAME] => Высота, мм [ACTIVE] => Y [SORT] => 500 [CODE] => ITEM_HEIGHT [DEFAULT_VALUE] => [PROPERTY_TYPE] => S [ROW_COUNT] => 1 [COL_COUNT] => 30 [LIST_TYPE] => L [MULTIPLE] => N [XML_ID] => [FILE_TYPE] => [MULTIPLE_CNT] => 5 [LINK_IBLOCK_ID] => 0 [WITH_DESCRIPTION] => N [SEARCHABLE] => N [FILTRABLE] => N [IS_REQUIRED] => N [VERSION] => 1 [USER_TYPE] => [USER_TYPE_SETTINGS] => Array ( ) [HINT] => [~NAME] => Высота, мм [~DEFAULT_VALUE] => [VALUE_ENUM] => [VALUE_XML_ID] => [VALUE_SORT] => [VALUE] => [PROPERTY_VALUE_ID] => [DESCRIPTION] => [~DESCRIPTION] => [~VALUE] => ) [BLOG_POST_ID] => Array ( [ID] => 138 [IBLOCK_ID] => 2 [NAME] => ID поста блога для комментариев [ACTIVE] => Y [SORT] => 500 [CODE] => BLOG_POST_ID [DEFAULT_VALUE] => [PROPERTY_TYPE] => N [ROW_COUNT] => 1 [COL_COUNT] => 30 [LIST_TYPE] => L [MULTIPLE] => N [XML_ID] => BLOG_POST_ID [FILE_TYPE] => [MULTIPLE_CNT] => 5 [LINK_IBLOCK_ID] => 0 [WITH_DESCRIPTION] => N [SEARCHABLE] => N [FILTRABLE] => N [IS_REQUIRED] => N [VERSION] => 1 [USER_TYPE] => [USER_TYPE_SETTINGS] => Array ( ) [HINT] => [~NAME] => ID поста блога для комментариев [~DEFAULT_VALUE] => [VALUE_ENUM] => [VALUE_XML_ID] => [VALUE_SORT] => [VALUE] => 363 [PROPERTY_VALUE_ID] => 6774172 [DESCRIPTION] => [~VALUE] => 363 [~DESCRIPTION] => ) [BLOG_COMMENTS_CNT] => Array ( [ID] => 139 [IBLOCK_ID] => 2 [NAME] => Количество комментариев [ACTIVE] => Y [SORT] => 500 [CODE] => BLOG_COMMENTS_CNT [DEFAULT_VALUE] => [PROPERTY_TYPE] => N [ROW_COUNT] => 1 [COL_COUNT] => 30 [LIST_TYPE] => L [MULTIPLE] => N [XML_ID] => BLOG_COMMENTS_CNT [FILE_TYPE] => [MULTIPLE_CNT] => 5 [LINK_IBLOCK_ID] => 0 [WITH_DESCRIPTION] => N [SEARCHABLE] => N [FILTRABLE] => N [IS_REQUIRED] => N [VERSION] => 1 [USER_TYPE] => [USER_TYPE_SETTINGS] => Array ( ) [HINT] => [~NAME] => Количество комментариев [~DEFAULT_VALUE] => [VALUE_ENUM] => [VALUE_XML_ID] => [VALUE_SORT] => [VALUE] => [PROPERTY_VALUE_ID] => [DESCRIPTION] => [~DESCRIPTION] => [~VALUE] => ) [HEIGHT_TOTAL] => Array ( [ID] => 143 [IBLOCK_ID] => 2 [NAME] => Высота общая, мм [ACTIVE] => Y [SORT] => 500 [CODE] => HEIGHT_TOTAL [DEFAULT_VALUE] => [PROPERTY_TYPE] => S [ROW_COUNT] => 1 [COL_COUNT] => 30 [LIST_TYPE] => L [MULTIPLE] => N [XML_ID] => [FILE_TYPE] => [MULTIPLE_CNT] => 5 [LINK_IBLOCK_ID] => 0 [WITH_DESCRIPTION] => N [SEARCHABLE] => N [FILTRABLE] => N [IS_REQUIRED] => N [VERSION] => 1 [USER_TYPE] => [USER_TYPE_SETTINGS] => Array ( ) [HINT] => [~NAME] => Высота общая, мм [~DEFAULT_VALUE] => [VALUE_ENUM] => [VALUE_XML_ID] => [VALUE_SORT] => [VALUE] => [PROPERTY_VALUE_ID] => [DESCRIPTION] => [~DESCRIPTION] => [~VALUE] => ) [HEIGHT_ABOVEGROUND] => Array ( [ID] => 144 [IBLOCK_ID] => 2 [NAME] => Высота надземной части, мм [ACTIVE] => Y [SORT] => 500 [CODE] => HEIGHT_ABOVEGROUND [DEFAULT_VALUE] => [PROPERTY_TYPE] => S [ROW_COUNT] => 1 [COL_COUNT] => 30 [LIST_TYPE] => L [MULTIPLE] => N [XML_ID] => [FILE_TYPE] => [MULTIPLE_CNT] => 5 [LINK_IBLOCK_ID] => 0 [WITH_DESCRIPTION] => N [SEARCHABLE] => N [FILTRABLE] => N [IS_REQUIRED] => N [VERSION] => 1 [USER_TYPE] => [USER_TYPE_SETTINGS] => Array ( ) [HINT] => [~NAME] => Высота надземной части, мм [~DEFAULT_VALUE] => [VALUE_ENUM] => [VALUE_XML_ID] => [VALUE_SORT] => [VALUE] => [PROPERTY_VALUE_ID] => [DESCRIPTION] => [~DESCRIPTION] => [~VALUE] => ) [HEIGHT_UNDERGROUND] => Array ( [ID] => 145 [IBLOCK_ID] => 2 [NAME] => Высота подземной части, мм [ACTIVE] => Y [SORT] => 500 [CODE] => HEIGHT_UNDERGROUND [DEFAULT_VALUE] => [PROPERTY_TYPE] => S [ROW_COUNT] => 1 [COL_COUNT] => 30 [LIST_TYPE] => L [MULTIPLE] => N [XML_ID] => [FILE_TYPE] => [MULTIPLE_CNT] => 5 [LINK_IBLOCK_ID] => 0 [WITH_DESCRIPTION] => N [SEARCHABLE] => N [FILTRABLE] => N [IS_REQUIRED] => N [VERSION] => 1 [USER_TYPE] => [USER_TYPE_SETTINGS] => Array ( ) [HINT] => [~NAME] => Высота подземной части, мм [~DEFAULT_VALUE] => [VALUE_ENUM] => [VALUE_XML_ID] => [VALUE_SORT] => [VALUE] => [PROPERTY_VALUE_ID] => [DESCRIPTION] => [~DESCRIPTION] => [~VALUE] => ) [DIAMETER_TOP] => Array ( [ID] => 146 [IBLOCK_ID] => 2 [NAME] => Диаметр верхний, мм [ACTIVE] => Y [SORT] => 500 [CODE] => DIAMETER_TOP [DEFAULT_VALUE] => [PROPERTY_TYPE] => S [ROW_COUNT] => 1 [COL_COUNT] => 30 [LIST_TYPE] => L [MULTIPLE] => N [XML_ID] => [FILE_TYPE] => [MULTIPLE_CNT] => 5 [LINK_IBLOCK_ID] => 0 [WITH_DESCRIPTION] => N [SEARCHABLE] => N [FILTRABLE] => N [IS_REQUIRED] => N [VERSION] => 1 [USER_TYPE] => [USER_TYPE_SETTINGS] => Array ( ) [HINT] => [~NAME] => Диаметр верхний, мм [~DEFAULT_VALUE] => [VALUE_ENUM] => [VALUE_XML_ID] => [VALUE_SORT] => [VALUE] => [PROPERTY_VALUE_ID] => [DESCRIPTION] => [~DESCRIPTION] => [~VALUE] => ) [DIAMETER_BOTTOM] => Array ( [ID] => 147 [IBLOCK_ID] => 2 [NAME] => Диаметр нижний, мм [ACTIVE] => Y [SORT] => 500 [CODE] => DIAMETER_BOTTOM [DEFAULT_VALUE] => [PROPERTY_TYPE] => S [ROW_COUNT] => 1 [COL_COUNT] => 30 [LIST_TYPE] => L [MULTIPLE] => N [XML_ID] => [FILE_TYPE] => [MULTIPLE_CNT] => 5 [LINK_IBLOCK_ID] => 0 [WITH_DESCRIPTION] => N [SEARCHABLE] => N [FILTRABLE] => N [IS_REQUIRED] => N [VERSION] => 1 [USER_TYPE] => [USER_TYPE_SETTINGS] => Array ( ) [HINT] => [~NAME] => Диаметр нижний, мм [~DEFAULT_VALUE] => [VALUE_ENUM] => [VALUE_XML_ID] => [VALUE_SORT] => [VALUE] => [PROPERTY_VALUE_ID] => [DESCRIPTION] => [~DESCRIPTION] => [~VALUE] => ) [WEIGHT] => Array ( [ID] => 148 [IBLOCK_ID] => 2 [NAME] => Нагрузка, кг [ACTIVE] => Y [SORT] => 500 [CODE] => WEIGHT [DEFAULT_VALUE] => [PROPERTY_TYPE] => S [ROW_COUNT] => 1 [COL_COUNT] => 30 [LIST_TYPE] => L [MULTIPLE] => N [XML_ID] => [FILE_TYPE] => [MULTIPLE_CNT] => 5 [LINK_IBLOCK_ID] => 0 [WITH_DESCRIPTION] => N [SEARCHABLE] => N [FILTRABLE] => N [IS_REQUIRED] => N [VERSION] => 1 [USER_TYPE] => [USER_TYPE_SETTINGS] => Array ( ) [HINT] => [~NAME] => Нагрузка, кг [~DEFAULT_VALUE] => [VALUE_ENUM] => [VALUE_XML_ID] => [VALUE_SORT] => [VALUE] => [PROPERTY_VALUE_ID] => [DESCRIPTION] => [~DESCRIPTION] => [~VALUE] => ) [VID] => Array ( [ID] => 149 [IBLOCK_ID] => 2 [NAME] => Вид [ACTIVE] => Y [SORT] => 500 [CODE] => VID [DEFAULT_VALUE] => [PROPERTY_TYPE] => S [ROW_COUNT] => 1 [COL_COUNT] => 30 [LIST_TYPE] => L [MULTIPLE] => N [XML_ID] => [FILE_TYPE] => [MULTIPLE_CNT] => 5 [LINK_IBLOCK_ID] => 0 [WITH_DESCRIPTION] => N [SEARCHABLE] => N [FILTRABLE] => N [IS_REQUIRED] => N [VERSION] => 1 [USER_TYPE] => [USER_TYPE_SETTINGS] => Array ( ) [HINT] => [~NAME] => Вид [~DEFAULT_VALUE] => [VALUE_ENUM] => [VALUE_XML_ID] => [VALUE_SORT] => [VALUE] => [PROPERTY_VALUE_ID] => [DESCRIPTION] => [~DESCRIPTION] => [~VALUE] => ) [SERVICE_LIFE] => Array ( [ID] => 150 [IBLOCK_ID] => 2 [NAME] => Срок службы [ACTIVE] => Y [SORT] => 500 [CODE] => SERVICE_LIFE [DEFAULT_VALUE] => [PROPERTY_TYPE] => S [ROW_COUNT] => 1 [COL_COUNT] => 30 [LIST_TYPE] => L [MULTIPLE] => N [XML_ID] => [FILE_TYPE] => [MULTIPLE_CNT] => 5 [LINK_IBLOCK_ID] => 0 [WITH_DESCRIPTION] => N [SEARCHABLE] => N [FILTRABLE] => N [IS_REQUIRED] => N [VERSION] => 1 [USER_TYPE] => [USER_TYPE_SETTINGS] => Array ( ) [HINT] => [~NAME] => Срок службы [~DEFAULT_VALUE] => [VALUE_ENUM] => [VALUE_XML_ID] => [VALUE_SORT] => [VALUE] => [PROPERTY_VALUE_ID] => [DESCRIPTION] => [~DESCRIPTION] => [~VALUE] => ) [USING] => Array ( [ID] => 151 [IBLOCK_ID] => 2 [NAME] => Применение [ACTIVE] => Y [SORT] => 500 [CODE] => USING [DEFAULT_VALUE] => [PROPERTY_TYPE] => S [ROW_COUNT] => 1 [COL_COUNT] => 30 [LIST_TYPE] => L [MULTIPLE] => N [XML_ID] => [FILE_TYPE] => [MULTIPLE_CNT] => 5 [LINK_IBLOCK_ID] => 0 [WITH_DESCRIPTION] => N [SEARCHABLE] => N [FILTRABLE] => N [IS_REQUIRED] => N [VERSION] => 1 [USER_TYPE] => [USER_TYPE_SETTINGS] => Array ( ) [HINT] => [~NAME] => Применение [~DEFAULT_VALUE] => [VALUE_ENUM] => [VALUE_XML_ID] => [VALUE_SORT] => [VALUE] => [PROPERTY_VALUE_ID] => [DESCRIPTION] => [~DESCRIPTION] => [~VALUE] => ) [HEIGHT_ZAK] => Array ( [ID] => 152 [IBLOCK_ID] => 2 [NAME] => Высота закладного элемента фундамента [ACTIVE] => Y [SORT] => 500 [CODE] => HEIGHT_ZAK [DEFAULT_VALUE] => [PROPERTY_TYPE] => S [ROW_COUNT] => 1 [COL_COUNT] => 30 [LIST_TYPE] => L [MULTIPLE] => N [XML_ID] => [FILE_TYPE] => [MULTIPLE_CNT] => 5 [LINK_IBLOCK_ID] => 0 [WITH_DESCRIPTION] => N [SEARCHABLE] => N [FILTRABLE] => N [IS_REQUIRED] => N [VERSION] => 1 [USER_TYPE] => [USER_TYPE_SETTINGS] => Array ( ) [HINT] => [~NAME] => Высота закладного элемента фундамента [~DEFAULT_VALUE] => [VALUE_ENUM] => [VALUE_XML_ID] => [VALUE_SORT] => [VALUE] => [PROPERTY_VALUE_ID] => [DESCRIPTION] => [~DESCRIPTION] => [~VALUE] => ) [LENGTH_CONSOLE] => Array ( [ID] => 153 [IBLOCK_ID] => 2 [NAME] => Длина консоли [ACTIVE] => Y [SORT] => 500 [CODE] => LENGTH_CONSOLE [DEFAULT_VALUE] => [PROPERTY_TYPE] => S [ROW_COUNT] => 1 [COL_COUNT] => 30 [LIST_TYPE] => L [MULTIPLE] => N [XML_ID] => [FILE_TYPE] => [MULTIPLE_CNT] => 5 [LINK_IBLOCK_ID] => 0 [WITH_DESCRIPTION] => N [SEARCHABLE] => N [FILTRABLE] => N [IS_REQUIRED] => N [VERSION] => 1 [USER_TYPE] => [USER_TYPE_SETTINGS] => Array ( ) [HINT] => [~NAME] => Длина консоли [~DEFAULT_VALUE] => [VALUE_ENUM] => [VALUE_XML_ID] => [VALUE_SORT] => [VALUE] => [PROPERTY_VALUE_ID] => [DESCRIPTION] => [~DESCRIPTION] => [~VALUE] => ) [HEIGHT_TOP_SECTION] => Array ( [ID] => 154 [IBLOCK_ID] => 2 [NAME] => Высота верхней секции, мм [ACTIVE] => Y [SORT] => 500 [CODE] => HEIGHT_TOP_SECTION [DEFAULT_VALUE] => [PROPERTY_TYPE] => S [ROW_COUNT] => 1 [COL_COUNT] => 30 [LIST_TYPE] => L [MULTIPLE] => N [XML_ID] => [FILE_TYPE] => [MULTIPLE_CNT] => 5 [LINK_IBLOCK_ID] => 0 [WITH_DESCRIPTION] => N [SEARCHABLE] => N [FILTRABLE] => N [IS_REQUIRED] => N [VERSION] => 1 [USER_TYPE] => [USER_TYPE_SETTINGS] => Array ( ) [HINT] => [~NAME] => Высота верхней секции, мм [~DEFAULT_VALUE] => [VALUE_ENUM] => [VALUE_XML_ID] => [VALUE_SORT] => [VALUE] => [PROPERTY_VALUE_ID] => [DESCRIPTION] => [~DESCRIPTION] => [~VALUE] => ) [SIP] => Array ( [ID] => 156 [IBLOCK_ID] => 2 [NAME] => Возможность подвеса СИП [ACTIVE] => Y [SORT] => 500 [CODE] => SIP [DEFAULT_VALUE] => [PROPERTY_TYPE] => S [ROW_COUNT] => 1 [COL_COUNT] => 30 [LIST_TYPE] => L [MULTIPLE] => N [XML_ID] => [FILE_TYPE] => [MULTIPLE_CNT] => 5 [LINK_IBLOCK_ID] => 0 [WITH_DESCRIPTION] => N [SEARCHABLE] => N [FILTRABLE] => N [IS_REQUIRED] => N [VERSION] => 1 [USER_TYPE] => [USER_TYPE_SETTINGS] => Array ( ) [HINT] => [~NAME] => Возможность подвеса СИП [~DEFAULT_VALUE] => [VALUE_ENUM] => [VALUE_XML_ID] => [VALUE_SORT] => [VALUE] => [PROPERTY_VALUE_ID] => [DESCRIPTION] => [~DESCRIPTION] => [~VALUE] => ) [COUNT_GRANY] => Array ( [ID] => 157 [IBLOCK_ID] => 2 [NAME] => Количество граней [ACTIVE] => Y [SORT] => 500 [CODE] => COUNT_GRANY [DEFAULT_VALUE] => [PROPERTY_TYPE] => S [ROW_COUNT] => 1 [COL_COUNT] => 30 [LIST_TYPE] => L [MULTIPLE] => N [XML_ID] => [FILE_TYPE] => [MULTIPLE_CNT] => 5 [LINK_IBLOCK_ID] => 0 [WITH_DESCRIPTION] => N [SEARCHABLE] => N [FILTRABLE] => N [IS_REQUIRED] => N [VERSION] => 1 [USER_TYPE] => [USER_TYPE_SETTINGS] => Array ( ) [HINT] => [~NAME] => Количество граней [~DEFAULT_VALUE] => [VALUE_ENUM] => [VALUE_XML_ID] => [VALUE_SORT] => [VALUE] => [PROPERTY_VALUE_ID] => [DESCRIPTION] => [~DESCRIPTION] => [~VALUE] => ) [HEIGHT_BOTTOM_SECTION] => Array ( [ID] => 158 [IBLOCK_ID] => 2 [NAME] => Высота нижней секции, мм [ACTIVE] => Y [SORT] => 500 [CODE] => HEIGHT_BOTTOM_SECTION [DEFAULT_VALUE] => [PROPERTY_TYPE] => S [ROW_COUNT] => 1 [COL_COUNT] => 30 [LIST_TYPE] => L [MULTIPLE] => N [XML_ID] => [FILE_TYPE] => [MULTIPLE_CNT] => 5 [LINK_IBLOCK_ID] => 0 [WITH_DESCRIPTION] => N [SEARCHABLE] => N [FILTRABLE] => N [IS_REQUIRED] => N [VERSION] => 1 [USER_TYPE] => [USER_TYPE_SETTINGS] => Array ( ) [HINT] => [~NAME] => Высота нижней секции, мм [~DEFAULT_VALUE] => [VALUE_ENUM] => [VALUE_XML_ID] => [VALUE_SORT] => [VALUE] => [PROPERTY_VALUE_ID] => [DESCRIPTION] => [~DESCRIPTION] => [~VALUE] => ) [STEEL_THICKNESS] => Array ( [ID] => 160 [IBLOCK_ID] => 2 [NAME] => Толщина стали [ACTIVE] => Y [SORT] => 500 [CODE] => STEEL_THICKNESS [DEFAULT_VALUE] => [PROPERTY_TYPE] => S [ROW_COUNT] => 1 [COL_COUNT] => 30 [LIST_TYPE] => L [MULTIPLE] => N [XML_ID] => [FILE_TYPE] => [MULTIPLE_CNT] => 5 [LINK_IBLOCK_ID] => 0 [WITH_DESCRIPTION] => N [SEARCHABLE] => N [FILTRABLE] => N [IS_REQUIRED] => N [VERSION] => 1 [USER_TYPE] => [USER_TYPE_SETTINGS] => Array ( ) [HINT] => [~NAME] => Толщина стали [~DEFAULT_VALUE] => [VALUE_ENUM] => [VALUE_XML_ID] => [VALUE_SORT] => [VALUE] => [PROPERTY_VALUE_ID] => [DESCRIPTION] => [~DESCRIPTION] => [~VALUE] => ) [SIZE_OPOR_FLANEC] => Array ( [ID] => 161 [IBLOCK_ID] => 2 [NAME] => Размеры опорного фланца [ACTIVE] => Y [SORT] => 500 [CODE] => SIZE_OPOR_FLANEC [DEFAULT_VALUE] => [PROPERTY_TYPE] => S [ROW_COUNT] => 1 [COL_COUNT] => 30 [LIST_TYPE] => L [MULTIPLE] => N [XML_ID] => [FILE_TYPE] => [MULTIPLE_CNT] => 5 [LINK_IBLOCK_ID] => 0 [WITH_DESCRIPTION] => N [SEARCHABLE] => N [FILTRABLE] => N [IS_REQUIRED] => N [VERSION] => 1 [USER_TYPE] => [USER_TYPE_SETTINGS] => Array ( ) [HINT] => [~NAME] => Размеры опорного фланца [~DEFAULT_VALUE] => [VALUE_ENUM] => [VALUE_XML_ID] => [VALUE_SORT] => [VALUE] => [PROPERTY_VALUE_ID] => [DESCRIPTION] => [~DESCRIPTION] => [~VALUE] => ) [POKRASKA] => Array ( [ID] => 162 [IBLOCK_ID] => 2 [NAME] => Лакокрасочное покрытие [ACTIVE] => Y [SORT] => 500 [CODE] => POKRASKA [DEFAULT_VALUE] => [PROPERTY_TYPE] => S [ROW_COUNT] => 1 [COL_COUNT] => 30 [LIST_TYPE] => L [MULTIPLE] => N [XML_ID] => [FILE_TYPE] => [MULTIPLE_CNT] => 5 [LINK_IBLOCK_ID] => 0 [WITH_DESCRIPTION] => N [SEARCHABLE] => N [FILTRABLE] => N [IS_REQUIRED] => N [VERSION] => 1 [USER_TYPE] => [USER_TYPE_SETTINGS] => Array ( ) [HINT] => [~NAME] => Лакокрасочное покрытие [~DEFAULT_VALUE] => [VALUE_ENUM] => [VALUE_XML_ID] => [VALUE_SORT] => [VALUE] => [PROPERTY_VALUE_ID] => [DESCRIPTION] => [~DESCRIPTION] => [~VALUE] => ) [VES] => Array ( [ID] => 163 [IBLOCK_ID] => 2 [NAME] => Вес [ACTIVE] => Y [SORT] => 500 [CODE] => VES [DEFAULT_VALUE] => [PROPERTY_TYPE] => S [ROW_COUNT] => 1 [COL_COUNT] => 30 [LIST_TYPE] => L [MULTIPLE] => N [XML_ID] => [FILE_TYPE] => [MULTIPLE_CNT] => 5 [LINK_IBLOCK_ID] => 0 [WITH_DESCRIPTION] => N [SEARCHABLE] => N [FILTRABLE] => N [IS_REQUIRED] => N [VERSION] => 1 [USER_TYPE] => [USER_TYPE_SETTINGS] => Array ( ) [HINT] => [~NAME] => Вес [~DEFAULT_VALUE] => [VALUE_ENUM] => [VALUE_XML_ID] => [VALUE_SORT] => [VALUE] => [PROPERTY_VALUE_ID] => [DESCRIPTION] => [~DESCRIPTION] => [~VALUE] => ) [INSTALL_LYUCHKA] => Array ( [ID] => 164 [IBLOCK_ID] => 2 [NAME] => Возможность установки лючка [ACTIVE] => Y [SORT] => 500 [CODE] => INSTALL_LYUCHKA [DEFAULT_VALUE] => [PROPERTY_TYPE] => S [ROW_COUNT] => 1 [COL_COUNT] => 30 [LIST_TYPE] => L [MULTIPLE] => N [XML_ID] => [FILE_TYPE] => [MULTIPLE_CNT] => 5 [LINK_IBLOCK_ID] => 0 [WITH_DESCRIPTION] => N [SEARCHABLE] => N [FILTRABLE] => N [IS_REQUIRED] => N [VERSION] => 1 [USER_TYPE] => [USER_TYPE_SETTINGS] => Array ( ) [HINT] => [~NAME] => Возможность установки лючка [~DEFAULT_VALUE] => [VALUE_ENUM] => [VALUE_XML_ID] => [VALUE_SORT] => [VALUE] => [PROPERTY_VALUE_ID] => [DESCRIPTION] => [~DESCRIPTION] => [~VALUE] => ) [DIAMETER_FLANCA] => Array ( [ID] => 165 [IBLOCK_ID] => 2 [NAME] => Диаметр фланца, мм [ACTIVE] => Y [SORT] => 500 [CODE] => DIAMETER_FLANCA [DEFAULT_VALUE] => [PROPERTY_TYPE] => S [ROW_COUNT] => 1 [COL_COUNT] => 30 [LIST_TYPE] => L [MULTIPLE] => N [XML_ID] => [FILE_TYPE] => [MULTIPLE_CNT] => 5 [LINK_IBLOCK_ID] => 0 [WITH_DESCRIPTION] => N [SEARCHABLE] => N [FILTRABLE] => N [IS_REQUIRED] => N [VERSION] => 1 [USER_TYPE] => [USER_TYPE_SETTINGS] => Array ( ) [HINT] => [~NAME] => Диаметр фланца, мм [~DEFAULT_VALUE] => [VALUE_ENUM] => [VALUE_XML_ID] => [VALUE_SORT] => [VALUE] => [PROPERTY_VALUE_ID] => [DESCRIPTION] => [~DESCRIPTION] => [~VALUE] => ) [COUNT_LIGHT] => Array ( [ID] => 166 [IBLOCK_ID] => 2 [NAME] => Количество осветительных приборов, шт [ACTIVE] => Y [SORT] => 500 [CODE] => COUNT_LIGHT [DEFAULT_VALUE] => [PROPERTY_TYPE] => S [ROW_COUNT] => 1 [COL_COUNT] => 30 [LIST_TYPE] => L [MULTIPLE] => N [XML_ID] => [FILE_TYPE] => [MULTIPLE_CNT] => 5 [LINK_IBLOCK_ID] => 0 [WITH_DESCRIPTION] => N [SEARCHABLE] => N [FILTRABLE] => N [IS_REQUIRED] => N [VERSION] => 1 [USER_TYPE] => [USER_TYPE_SETTINGS] => Array ( ) [HINT] => [~NAME] => Количество осветительных приборов, шт [~DEFAULT_VALUE] => [VALUE_ENUM] => [VALUE_XML_ID] => [VALUE_SORT] => [VALUE] => [PROPERTY_VALUE_ID] => [DESCRIPTION] => [~DESCRIPTION] => [~VALUE] => ) [WEIGHT_TO_KRON] => Array ( [ID] => 167 [IBLOCK_ID] => 2 [NAME] => Высота до кронштейна, мм [ACTIVE] => Y [SORT] => 500 [CODE] => WEIGHT_TO_KRON [DEFAULT_VALUE] => [PROPERTY_TYPE] => S [ROW_COUNT] => 1 [COL_COUNT] => 30 [LIST_TYPE] => L [MULTIPLE] => N [XML_ID] => [FILE_TYPE] => [MULTIPLE_CNT] => 5 [LINK_IBLOCK_ID] => 0 [WITH_DESCRIPTION] => N [SEARCHABLE] => N [FILTRABLE] => N [IS_REQUIRED] => N [VERSION] => 1 [USER_TYPE] => [USER_TYPE_SETTINGS] => Array ( ) [HINT] => [~NAME] => Высота до кронштейна, мм [~DEFAULT_VALUE] => [VALUE_ENUM] => [VALUE_XML_ID] => [VALUE_SORT] => [VALUE] => [PROPERTY_VALUE_ID] => [DESCRIPTION] => [~DESCRIPTION] => [~VALUE] => ) [SIZE_FLANEC] => Array ( [ID] => 169 [IBLOCK_ID] => 2 [NAME] => Размер фланца [ACTIVE] => Y [SORT] => 500 [CODE] => SIZE_FLANEC [DEFAULT_VALUE] => [PROPERTY_TYPE] => S [ROW_COUNT] => 1 [COL_COUNT] => 30 [LIST_TYPE] => L [MULTIPLE] => N [XML_ID] => [FILE_TYPE] => [MULTIPLE_CNT] => 5 [LINK_IBLOCK_ID] => 0 [WITH_DESCRIPTION] => N [SEARCHABLE] => N [FILTRABLE] => N [IS_REQUIRED] => N [VERSION] => 1 [USER_TYPE] => [USER_TYPE_SETTINGS] => Array ( ) [HINT] => [~NAME] => Размер фланца [~DEFAULT_VALUE] => [VALUE_ENUM] => [VALUE_XML_ID] => [VALUE_SORT] => [VALUE] => [PROPERTY_VALUE_ID] => [DESCRIPTION] => [~DESCRIPTION] => [~VALUE] => ) [WEIGHT_MIDDLE_SECTION] => Array ( [ID] => 170 [IBLOCK_ID] => 2 [NAME] => Высота промежуточной секции, мм [ACTIVE] => Y [SORT] => 500 [CODE] => WEIGHT_MIDDLE_SECTION [DEFAULT_VALUE] => [PROPERTY_TYPE] => S [ROW_COUNT] => 1 [COL_COUNT] => 30 [LIST_TYPE] => L [MULTIPLE] => N [XML_ID] => [FILE_TYPE] => [MULTIPLE_CNT] => 5 [LINK_IBLOCK_ID] => 0 [WITH_DESCRIPTION] => N [SEARCHABLE] => N [FILTRABLE] => N [IS_REQUIRED] => N [VERSION] => 1 [USER_TYPE] => [USER_TYPE_SETTINGS] => Array ( ) [HINT] => [~NAME] => Высота промежуточной секции, мм [~DEFAULT_VALUE] => [VALUE_ENUM] => [VALUE_XML_ID] => [VALUE_SORT] => [VALUE] => [PROPERTY_VALUE_ID] => [DESCRIPTION] => [~DESCRIPTION] => [~VALUE] => ) [DEFEND_POKRYTIE] => Array ( [ID] => 171 [IBLOCK_ID] => 2 [NAME] => Защитное покрытие [ACTIVE] => Y [SORT] => 500 [CODE] => DEFEND_POKRYTIE [DEFAULT_VALUE] => [PROPERTY_TYPE] => S [ROW_COUNT] => 1 [COL_COUNT] => 30 [LIST_TYPE] => L [MULTIPLE] => N [XML_ID] => [FILE_TYPE] => [MULTIPLE_CNT] => 5 [LINK_IBLOCK_ID] => 0 [WITH_DESCRIPTION] => N [SEARCHABLE] => N [FILTRABLE] => N [IS_REQUIRED] => N [VERSION] => 1 [USER_TYPE] => [USER_TYPE_SETTINGS] => Array ( ) [HINT] => [~NAME] => Защитное покрытие [~DEFAULT_VALUE] => [VALUE_ENUM] => [VALUE_XML_ID] => [VALUE_SORT] => [VALUE] => [PROPERTY_VALUE_ID] => [DESCRIPTION] => [~DESCRIPTION] => [~VALUE] => ) [WIND_REGION] => Array ( [ID] => 172 [IBLOCK_ID] => 2 [NAME] => Ветровой район [ACTIVE] => Y [SORT] => 500 [CODE] => WIND_REGION [DEFAULT_VALUE] => [PROPERTY_TYPE] => S [ROW_COUNT] => 1 [COL_COUNT] => 30 [LIST_TYPE] => L [MULTIPLE] => N [XML_ID] => [FILE_TYPE] => [MULTIPLE_CNT] => 5 [LINK_IBLOCK_ID] => 0 [WITH_DESCRIPTION] => N [SEARCHABLE] => N [FILTRABLE] => N [IS_REQUIRED] => N [VERSION] => 1 [USER_TYPE] => [USER_TYPE_SETTINGS] => Array ( ) [HINT] => [~NAME] => Ветровой район [~DEFAULT_VALUE] => [VALUE_ENUM] => [VALUE_XML_ID] => [VALUE_SORT] => [VALUE] => [PROPERTY_VALUE_ID] => [DESCRIPTION] => [~DESCRIPTION] => [~VALUE] => ) [DIAMETER_OPOR_FLANCA] => Array ( [ID] => 173 [IBLOCK_ID] => 2 [NAME] => Диаметр опорного фланца, мм [ACTIVE] => Y [SORT] => 500 [CODE] => DIAMETER_OPOR_FLANCA [DEFAULT_VALUE] => [PROPERTY_TYPE] => S [ROW_COUNT] => 1 [COL_COUNT] => 30 [LIST_TYPE] => L [MULTIPLE] => N [XML_ID] => [FILE_TYPE] => [MULTIPLE_CNT] => 5 [LINK_IBLOCK_ID] => 0 [WITH_DESCRIPTION] => N [SEARCHABLE] => N [FILTRABLE] => N [IS_REQUIRED] => N [VERSION] => 1 [USER_TYPE] => [USER_TYPE_SETTINGS] => Array ( ) [HINT] => [~NAME] => Диаметр опорного фланца, мм [~DEFAULT_VALUE] => [VALUE_ENUM] => [VALUE_XML_ID] => [VALUE_SORT] => [VALUE] => [PROPERTY_VALUE_ID] => [DESCRIPTION] => [~DESCRIPTION] => [~VALUE] => ) [CENTER_DIST] => Array ( [ID] => 174 [IBLOCK_ID] => 2 [NAME] => Межцентровое расстояние, мм [ACTIVE] => Y [SORT] => 500 [CODE] => CENTER_DIST [DEFAULT_VALUE] => [PROPERTY_TYPE] => S [ROW_COUNT] => 1 [COL_COUNT] => 30 [LIST_TYPE] => L [MULTIPLE] => N [XML_ID] => [FILE_TYPE] => [MULTIPLE_CNT] => 5 [LINK_IBLOCK_ID] => 0 [WITH_DESCRIPTION] => N [SEARCHABLE] => N [FILTRABLE] => N [IS_REQUIRED] => N [VERSION] => 1 [USER_TYPE] => [USER_TYPE_SETTINGS] => Array ( ) [HINT] => [~NAME] => Межцентровое расстояние, мм [~DEFAULT_VALUE] => [VALUE_ENUM] => [VALUE_XML_ID] => [VALUE_SORT] => [VALUE] => [PROPERTY_VALUE_ID] => [DESCRIPTION] => [~DESCRIPTION] => [~VALUE] => ) [FLANEC_THICKNESS] => Array ( [ID] => 175 [IBLOCK_ID] => 2 [NAME] => Толщина фланца, мм [ACTIVE] => Y [SORT] => 500 [CODE] => FLANEC_THICKNESS [DEFAULT_VALUE] => [PROPERTY_TYPE] => S [ROW_COUNT] => 1 [COL_COUNT] => 30 [LIST_TYPE] => L [MULTIPLE] => N [XML_ID] => [FILE_TYPE] => [MULTIPLE_CNT] => 5 [LINK_IBLOCK_ID] => 0 [WITH_DESCRIPTION] => N [SEARCHABLE] => N [FILTRABLE] => N [IS_REQUIRED] => N [VERSION] => 1 [USER_TYPE] => [USER_TYPE_SETTINGS] => Array ( ) [HINT] => [~NAME] => Толщина фланца, мм [~DEFAULT_VALUE] => [VALUE_ENUM] => [VALUE_XML_ID] => [VALUE_SORT] => [VALUE] => [PROPERTY_VALUE_ID] => [DESCRIPTION] => [~DESCRIPTION] => [~VALUE] => ) [COUNT_HOLE] => Array ( [ID] => 176 [IBLOCK_ID] => 2 [NAME] => Количество отверстий крепления, шт [ACTIVE] => Y [SORT] => 500 [CODE] => COUNT_HOLE [DEFAULT_VALUE] => [PROPERTY_TYPE] => S [ROW_COUNT] => 1 [COL_COUNT] => 30 [LIST_TYPE] => L [MULTIPLE] => N [XML_ID] => [FILE_TYPE] => [MULTIPLE_CNT] => 5 [LINK_IBLOCK_ID] => 0 [WITH_DESCRIPTION] => N [SEARCHABLE] => N [FILTRABLE] => N [IS_REQUIRED] => N [VERSION] => 1 [USER_TYPE] => [USER_TYPE_SETTINGS] => Array ( ) [HINT] => [~NAME] => Количество отверстий крепления, шт [~DEFAULT_VALUE] => [VALUE_ENUM] => [VALUE_XML_ID] => [VALUE_SORT] => [VALUE] => [PROPERTY_VALUE_ID] => [DESCRIPTION] => [~DESCRIPTION] => [~VALUE] => ) [INSPECTION_WINDOW] => Array ( [ID] => 179 [IBLOCK_ID] => 2 [NAME] => Ревизионное окно, мм [ACTIVE] => Y [SORT] => 500 [CODE] => INSPECTION_WINDOW [DEFAULT_VALUE] => [PROPERTY_TYPE] => S [ROW_COUNT] => 1 [COL_COUNT] => 30 [LIST_TYPE] => L [MULTIPLE] => N [XML_ID] => [FILE_TYPE] => [MULTIPLE_CNT] => 5 [LINK_IBLOCK_ID] => 0 [WITH_DESCRIPTION] => N [SEARCHABLE] => N [FILTRABLE] => N [IS_REQUIRED] => N [VERSION] => 1 [USER_TYPE] => [USER_TYPE_SETTINGS] => Array ( ) [HINT] => [~NAME] => Ревизионное окно, мм [~DEFAULT_VALUE] => [VALUE_ENUM] => [VALUE_XML_ID] => [VALUE_SORT] => [VALUE] => [PROPERTY_VALUE_ID] => [DESCRIPTION] => [~DESCRIPTION] => [~VALUE] => ) [THREE_MODEL] => Array ( [ID] => 182 [IBLOCK_ID] => 2 [NAME] => 3D-модель [ACTIVE] => Y [SORT] => 500 [CODE] => THREE_MODEL [DEFAULT_VALUE] => [PROPERTY_TYPE] => F [ROW_COUNT] => 1 [COL_COUNT] => 30 [LIST_TYPE] => L [MULTIPLE] => N [XML_ID] => [FILE_TYPE] => [MULTIPLE_CNT] => 5 [LINK_IBLOCK_ID] => 0 [WITH_DESCRIPTION] => N [SEARCHABLE] => N [FILTRABLE] => N [IS_REQUIRED] => N [VERSION] => 1 [USER_TYPE] => [USER_TYPE_SETTINGS] => Array ( ) [HINT] => [~NAME] => 3D-модель [~DEFAULT_VALUE] => [VALUE_ENUM] => [VALUE_XML_ID] => [VALUE_SORT] => [VALUE] => [PROPERTY_VALUE_ID] => [DESCRIPTION] => [~DESCRIPTION] => [~VALUE] => ) [FAQ] => Array ( [ID] => 183 [IBLOCK_ID] => 2 [NAME] => FAQ [ACTIVE] => Y [SORT] => 500 [CODE] => FAQ [DEFAULT_VALUE] => Array ( [TYPE] => TEXT [TEXT] => ) [PROPERTY_TYPE] => S [ROW_COUNT] => 1 [COL_COUNT] => 30 [LIST_TYPE] => L [MULTIPLE] => N [XML_ID] => [FILE_TYPE] => [MULTIPLE_CNT] => 5 [LINK_IBLOCK_ID] => 0 [WITH_DESCRIPTION] => N [SEARCHABLE] => N [FILTRABLE] => N [IS_REQUIRED] => N [VERSION] => 1 [USER_TYPE] => HTML [USER_TYPE_SETTINGS] => Array ( [height] => 200 ) [HINT] => [~NAME] => FAQ [~DEFAULT_VALUE] => Array ( [TYPE] => TEXT [TEXT] => ) [VALUE_ENUM] => [VALUE_XML_ID] => [VALUE_SORT] => [VALUE] => [PROPERTY_VALUE_ID] => [DESCRIPTION] => [~DESCRIPTION] => [~VALUE] => ) ) [DISPLAY_PROPERTIES] => Array ( [ITEM_PRICE] => Array ( [ID] => 22 [IBLOCK_ID] => 2 [NAME] => Цена [ACTIVE] => Y [SORT] => 3 [CODE] => ITEM_PRICE [DEFAULT_VALUE] => [PROPERTY_TYPE] => L [ROW_COUNT] => 1 [COL_COUNT] => 30 [LIST_TYPE] => L [MULTIPLE] => N [XML_ID] => 22 [FILE_TYPE] => [MULTIPLE_CNT] => 5 [LINK_IBLOCK_ID] => 0 [WITH_DESCRIPTION] => N [SEARCHABLE] => N [FILTRABLE] => N [IS_REQUIRED] => Y [VERSION] => 1 [USER_TYPE] => [USER_TYPE_SETTINGS] => Array ( ) [HINT] => [~NAME] => Цена [~DEFAULT_VALUE] => [VALUE_ENUM] => По запросу [VALUE_XML_ID] => on-request [VALUE_SORT] => 1 [VALUE] => По запросу [PROPERTY_VALUE_ID] => 6825464 [VALUE_ENUM_ID] => 9 [DESCRIPTION] => [~VALUE] => По запросу [~DESCRIPTION] => [DISPLAY_VALUE] => По запросу ) [ITEM_CHARACTERISTICS] => Array ( [ID] => 28 [IBLOCK_ID] => 2 [NAME] => Характеристики [ACTIVE] => Y [SORT] => 6 [CODE] => ITEM_CHARACTERISTICS [DEFAULT_VALUE] => [PROPERTY_TYPE] => S [ROW_COUNT] => 1 [COL_COUNT] => 20 [LIST_TYPE] => L [MULTIPLE] => Y [XML_ID] => 28 [FILE_TYPE] => [MULTIPLE_CNT] => 1 [LINK_IBLOCK_ID] => 0 [WITH_DESCRIPTION] => Y [SEARCHABLE] => N [FILTRABLE] => N [IS_REQUIRED] => N [VERSION] => 1 [USER_TYPE] => [USER_TYPE_SETTINGS] => Array ( ) [HINT] => [~NAME] => Характеристики [~DEFAULT_VALUE] => [VALUE_ENUM] => [VALUE_XML_ID] => [VALUE_SORT] => [VALUE] => Array ( [0] => фланцевая [1] => граненая [2] => 35700 [3] => 19000 [4] => 1200 [5] => 400 [6] => Применяется на прямых участках ЛЭП [7] => одностоечная свободностоящая [8] => Горячее цинкование [9] => Порошковое / полимерное окрашивание [10] => 30 лет [11] => промежуточная ) [PROPERTY_VALUE_ID] => Array ( [0] => 6823851 [1] => 6823852 [2] => 6823853 [3] => 6823854 [4] => 6823855 [5] => 6823856 [6] => 6823857 [7] => 6823858 [8] => 6823859 [9] => 6823860 [10] => 6823861 [11] => 6825465 ) [DESCRIPTION] => Array ( [0] => Способ установки [1] => Способ производства [2] => Высота, мм [3] => Высота до нижней траверсы, мм [4] => Диаметр нижний, мм [5] => Диаметр верхний, мм [6] => Назначение [7] => Конструкция [8] => Защитное покрытие [9] => Лакокрасочное покрытие [10] => Срок службы [11] => Назначение ) [~VALUE] => Array ( [0] => фланцевая [1] => граненая [2] => 35700 [3] => 19000 [4] => 1200 [5] => 400 [6] => Применяется на прямых участках ЛЭП [7] => одностоечная свободностоящая [8] => Горячее цинкование [9] => Порошковое / полимерное окрашивание [10] => 30 лет [11] => промежуточная ) [~DESCRIPTION] => Array ( [0] => Способ установки [1] => Способ производства [2] => Высота, мм [3] => Высота до нижней траверсы, мм [4] => Диаметр нижний, мм [5] => Диаметр верхний, мм [6] => Назначение [7] => Конструкция [8] => Защитное покрытие [9] => Лакокрасочное покрытие [10] => Срок службы [11] => Назначение ) [DISPLAY_VALUE] => Array ( [0] => фланцевая [1] => граненая [2] => 35700 [3] => 19000 [4] => 1200 [5] => 400 [6] => Применяется на прямых участках ЛЭП [7] => одностоечная свободностоящая [8] => Горячее цинкование [9] => Порошковое / полимерное окрашивание [10] => 30 лет [11] => промежуточная ) ) ) [PRODUCT_PROPERTIES] => Array ( ) [PRODUCT_PROPERTIES_FILL] => Array ( ) [OFFERS] => Array ( ) [OFFER_ID_SELECTED] => 0 [CHECK_QUANTITY] => [ITEM_PRICE_MODE] => [ITEM_PRICES] => Array ( ) [ITEM_QUANTITY_RANGES] => Array ( ) [ITEM_MEASURE_RATIOS] => Array ( [1326] => Array ( [ID] => 1326 [RATIO] => 1 [IS_DEFAULT] => Y [PRODUCT_ID] => 15364 ) ) [ITEM_MEASURE] => Array ( [ID] => 5 [TITLE] => шт [~TITLE] => шт ) [ITEM_MEASURE_RATIO_SELECTED] => 1326 [ITEM_QUANTITY_RANGE_SELECTED] => [ITEM_PRICE_SELECTED] => [EDIT_LINK] => [DELETE_LINK] => [SECTION] => Array ( [PATH] => Array ( ) ) [CAN_BUY] => )
В наличии
Способ установки: прямостоечная
Способ производства: граненая
Высота, мм: 23700
Цена по запросу
Array
(
    [ID] => 15358
    [~ID] => 15358
    [IBLOCK_ID] => 2
    [~IBLOCK_ID] => 2
    [CODE] => pm110-4
    [~CODE] => pm110-4
    [XML_ID] => 15358
    [~XML_ID] => 15358
    [NAME] => Многогранная опора ПМ110-4
    [~NAME] => Многогранная опора ПМ110-4
    [ACTIVE] => Y
    [~ACTIVE] => Y
    [DATE_ACTIVE_FROM] => 
    [~DATE_ACTIVE_FROM] => 
    [DATE_ACTIVE_TO] => 
    [~DATE_ACTIVE_TO] => 
    [SORT] => 0
    [~SORT] => 0
    [PREVIEW_TEXT] => 
    [~PREVIEW_TEXT] => 
    [PREVIEW_TEXT_TYPE] => text
    [~PREVIEW_TEXT_TYPE] => text
    [DETAIL_TEXT] => 

Многогранная опора ПМ110-4, производимая по типовому проекту 28.0034, является промежуточной одностоечной свободностоящей конструкцией для строительства двухцепных воздушных линий электропередачи напряжением 110 кВ. Ее основное назначение — поддержание проводов и грозозащитных тросов на требуемом расстоянии друг от друга и от земли на прямых участках трассы. Общая высота опоры составляет 23,7 метра, что обеспечивает соблюдение всех необходимых изоляционных расстояний для данного класса напряжения. Конический граненый ствол имеет нижний диаметр 720 миллиметров и верхний диаметр 200 миллиметров, что обеспечивает оптимальное распределение механических нагрузок и устойчивость. Опора изготовлена из конструкционной стали марки С245, рассчитанной на эксплуатацию в широком диапазоне температур. Для надежной защиты в условиях открытой атмосферы и контакта с грунтом все металлические элементы имеют покрытие, нанесенное методом горячего цинкования. Конструкция предназначена для установки в грунт без фундамента и сертифицирована для работы в гололедных и ветровых районах с I по V.

Конструкция опоры ПМ110-4 разработана для восприятия нагрузок, действующих перпендикулярно оси линии, что характерно для промежуточных опор. Она не рассчитана на значительные продольные нагрузки, возникающие на анкерных участках. Двухцепное исполнение позволяет разместить на одной опоре два независимых комплекта проводов, что повышает эффективность использования трассы. Монтаж конструкции осуществляется по технологии прямого заглубления. Нижняя часть ствола опоры устанавливается в предварительно пробуренный котлован расчетной глубины. После выверки вертикального положения производится обратная засыпка котлована с послойным трамбованием грунта, что обеспечивает требуемую несущую способность основания. Данный метод исключает необходимость устройства бетонного фундамента, сокращая сроки и стоимость строительства.

[~DETAIL_TEXT] =>

Многогранная опора ПМ110-4, производимая по типовому проекту 28.0034, является промежуточной одностоечной свободностоящей конструкцией для строительства двухцепных воздушных линий электропередачи напряжением 110 кВ. Ее основное назначение — поддержание проводов и грозозащитных тросов на требуемом расстоянии друг от друга и от земли на прямых участках трассы. Общая высота опоры составляет 23,7 метра, что обеспечивает соблюдение всех необходимых изоляционных расстояний для данного класса напряжения. Конический граненый ствол имеет нижний диаметр 720 миллиметров и верхний диаметр 200 миллиметров, что обеспечивает оптимальное распределение механических нагрузок и устойчивость. Опора изготовлена из конструкционной стали марки С245, рассчитанной на эксплуатацию в широком диапазоне температур. Для надежной защиты в условиях открытой атмосферы и контакта с грунтом все металлические элементы имеют покрытие, нанесенное методом горячего цинкования. Конструкция предназначена для установки в грунт без фундамента и сертифицирована для работы в гололедных и ветровых районах с I по V.

Конструкция опоры ПМ110-4 разработана для восприятия нагрузок, действующих перпендикулярно оси линии, что характерно для промежуточных опор. Она не рассчитана на значительные продольные нагрузки, возникающие на анкерных участках. Двухцепное исполнение позволяет разместить на одной опоре два независимых комплекта проводов, что повышает эффективность использования трассы. Монтаж конструкции осуществляется по технологии прямого заглубления. Нижняя часть ствола опоры устанавливается в предварительно пробуренный котлован расчетной глубины. После выверки вертикального положения производится обратная засыпка котлована с послойным трамбованием грунта, что обеспечивает требуемую несущую способность основания. Данный метод исключает необходимость устройства бетонного фундамента, сокращая сроки и стоимость строительства.

[DETAIL_TEXT_TYPE] => html [~DETAIL_TEXT_TYPE] => html [DATE_CREATE] => 07.11.2023 15:10:01 [~DATE_CREATE] => 07.11.2023 15:10:01 [CREATED_BY] => 1 [~CREATED_BY] => 1 [TAGS] => [~TAGS] => [TIMESTAMP_X] => 15.12.2025 09:35:40 [~TIMESTAMP_X] => 15.12.2025 09:35:40 [MODIFIED_BY] => 1 [~MODIFIED_BY] => 1 [IBLOCK_SECTION_ID] => 2756 [~IBLOCK_SECTION_ID] => 2958 [DETAIL_PAGE_URL] => /product/pm110-4/ [~DETAIL_PAGE_URL] => /product/pm110-4/ [DETAIL_PICTURE] => [~DETAIL_PICTURE] => [PREVIEW_PICTURE] => Array ( [ID] => 35260 [TIMESTAMP_X] => 15.12.2025 09:35:40 [MODULE_ID] => iblock [HEIGHT] => 1000 [WIDTH] => 1000 [FILE_SIZE] => 131167 [CONTENT_TYPE] => image/jpeg [SUBDIR] => iblock/ebe/9nqic4lxyk9vw6l55apuwzzwnh25iv0l [FILE_NAME] => catalog_file_2079_l.jpg [ORIGINAL_NAME] => catalog-file-2079-l.jpg [DESCRIPTION] => [HANDLER_ID] => [EXTERNAL_ID] => 41701b2d05de0595ad467c1aae61e216 [VERSION_ORIGINAL_ID] => [META] => [SRC] => /upload/dev2fun.imagecompress/webp/iblock/ebe/9nqic4lxyk9vw6l55apuwzzwnh25iv0l/catalog_file_2079_l.webp [UNSAFE_SRC] => /upload/dev2fun.imagecompress/webp/iblock/ebe/9nqic4lxyk9vw6l55apuwzzwnh25iv0l/catalog_file_2079_l.webp [SAFE_SRC] => /upload/dev2fun.imagecompress/webp/iblock/ebe/9nqic4lxyk9vw6l55apuwzzwnh25iv0l/catalog_file_2079_l.webp [ALT] => Многогранная опора ПМ110-4 [TITLE] => Многогранная опора ПМ110-4 ) [~PREVIEW_PICTURE] => 35260 [LANG_DIR] => / [~LANG_DIR] => / [EXTERNAL_ID] => 15358 [~EXTERNAL_ID] => 15358 [IBLOCK_TYPE_ID] => catalog [~IBLOCK_TYPE_ID] => catalog [IBLOCK_CODE] => metalstructures [~IBLOCK_CODE] => metalstructures [IBLOCK_EXTERNAL_ID] => clothes [~IBLOCK_EXTERNAL_ID] => clothes [LID] => s1 [~LID] => s1 [IPROPERTY_VALUES] => Array ( [ELEMENT_META_TITLE] => Многогранная опора ПМ110-4 для высоковольтных линий 110 кВ купить в {{rp}} на сайте производителя НПО Легион [ELEMENT_META_DESCRIPTION] => Производство стальных многогранных опор ПМ110-4 для высоковольтных линий 110 кВ по шифру 28.0034 в {{rp}}. Заказать многогранные опоры ЛЭП у производителя НПО Легион. Наличие товара на складе. Звоните ☎ {{subdomain_tel}} [ELEMENT_META_KEYWORDS] => Многоранные опоры ПМ110-4 ЛЭП производство продажа купить многогранные ВЛ 110кВ для линий электропередач шифру 28.0034 [SECTION_META_TITLE] => Многогранные опоры для двухцепных ВЛ 110 кВ по шифру 28.0034 купить в {{rp}} на сайте производителя НПО Легион [SECTION_META_DESCRIPTION] => Производство Многогранных опор для двухцепных ВЛ 110 кВ по шифру 28.0034. Купить напрямую у производителя в {{rp}}. Собственное производство. Наличие товара на складе. Звоните ☎ {{subdomain_tel}} [SECTION_META_KEYWORDS] => Многоранные опоры ЛЭП производство продажа купить Многогранных опор для двухцепных ВЛ 110 кВ по шифру 28.0034 для линий электропередач [ELEMENT_DETAIL_PICTURE_FILE_NAME] => [ELEMENT_PREVIEW_PICTURE_FILE_NAME] => [SECTION_DETAIL_PICTURE_FILE_NAME] => [SECTION_PICTURE_FILE_NAME] => [SECTION_PAGE_TITLE] => Многогранная опора ПМ110-4 [ELEMENT_PAGE_TITLE] => Многогранная опора ПМ110-4 ) [PRODUCT] => Array ( [TYPE] => 1 [AVAILABLE] => Y [BUNDLE] => N [QUANTITY] => 10 [QUANTITY_TRACE] => N [CAN_BUY_ZERO] => Y [MEASURE] => 5 [SUBSCRIBE] => Y [VAT_ID] => 0 [VAT_RATE] => 0 [VAT_INCLUDED] => N [WEIGHT] => 0 [WIDTH] => 0 [LENGTH] => 0 [HEIGHT] => 0 [PAYMENT_TYPE] => S [RECUR_SCHEME_TYPE] => D [RECUR_SCHEME_LENGTH] => 0 [TRIAL_PRICE_ID] => 0 [USE_OFFERS] => ) [~CATALOG_TYPE] => 1 [CATALOG_TYPE] => 1 [~CATALOG_QUANTITY] => 10 [CATALOG_QUANTITY] => 10 [~CATALOG_QUANTITY_TRACE] => N [CATALOG_QUANTITY_TRACE] => N [~CATALOG_CAN_BUY_ZERO] => Y [CATALOG_CAN_BUY_ZERO] => Y [~CATALOG_SUBSCRIBE] => Y [CATALOG_SUBSCRIBE] => Y [PROPERTIES] => Array ( [ITEM_DELIVERY] => Array ( [ID] => 20 [IBLOCK_ID] => 2 [NAME] => Доставка [ACTIVE] => Y [SORT] => 1 [CODE] => ITEM_DELIVERY [DEFAULT_VALUE] => [PROPERTY_TYPE] => L [ROW_COUNT] => 1 [COL_COUNT] => 30 [LIST_TYPE] => L [MULTIPLE] => N [XML_ID] => 20 [FILE_TYPE] => [MULTIPLE_CNT] => 5 [LINK_IBLOCK_ID] => 0 [WITH_DESCRIPTION] => N [SEARCHABLE] => N [FILTRABLE] => N [IS_REQUIRED] => Y [VERSION] => 1 [USER_TYPE] => [USER_TYPE_SETTINGS] => Array ( ) [HINT] => [~NAME] => Доставка [~DEFAULT_VALUE] => [VALUE_ENUM] => По России и СНГ [VALUE_XML_ID] => ru-sng [VALUE_SORT] => 1 [VALUE] => По России и СНГ [PROPERTY_VALUE_ID] => 6825313 [VALUE_ENUM_ID] => 7 [DESCRIPTION] => [~VALUE] => По России и СНГ [~DESCRIPTION] => ) [ITEM_PAYMENT] => Array ( [ID] => 21 [IBLOCK_ID] => 2 [NAME] => Оплата [ACTIVE] => Y [SORT] => 2 [CODE] => ITEM_PAYMENT [DEFAULT_VALUE] => [PROPERTY_TYPE] => L [ROW_COUNT] => 1 [COL_COUNT] => 30 [LIST_TYPE] => L [MULTIPLE] => N [XML_ID] => 21 [FILE_TYPE] => [MULTIPLE_CNT] => 5 [LINK_IBLOCK_ID] => 0 [WITH_DESCRIPTION] => N [SEARCHABLE] => N [FILTRABLE] => N [IS_REQUIRED] => Y [VERSION] => 1 [USER_TYPE] => [USER_TYPE_SETTINGS] => Array ( ) [HINT] => [~NAME] => Оплата [~DEFAULT_VALUE] => [VALUE_ENUM] => Безналичный расчет [VALUE_XML_ID] => payment-bank [VALUE_SORT] => 1 [VALUE] => Безналичный расчет [PROPERTY_VALUE_ID] => 6825314 [VALUE_ENUM_ID] => 8 [DESCRIPTION] => [~VALUE] => Безналичный расчет [~DESCRIPTION] => ) [ITEM_PRICE] => Array ( [ID] => 22 [IBLOCK_ID] => 2 [NAME] => Цена [ACTIVE] => Y [SORT] => 3 [CODE] => ITEM_PRICE [DEFAULT_VALUE] => [PROPERTY_TYPE] => L [ROW_COUNT] => 1 [COL_COUNT] => 30 [LIST_TYPE] => L [MULTIPLE] => N [XML_ID] => 22 [FILE_TYPE] => [MULTIPLE_CNT] => 5 [LINK_IBLOCK_ID] => 0 [WITH_DESCRIPTION] => N [SEARCHABLE] => N [FILTRABLE] => N [IS_REQUIRED] => Y [VERSION] => 1 [USER_TYPE] => [USER_TYPE_SETTINGS] => Array ( ) [HINT] => [~NAME] => Цена [~DEFAULT_VALUE] => [VALUE_ENUM] => По запросу [VALUE_XML_ID] => on-request [VALUE_SORT] => 1 [VALUE] => По запросу [PROPERTY_VALUE_ID] => 6825315 [VALUE_ENUM_ID] => 9 [DESCRIPTION] => [~VALUE] => По запросу [~DESCRIPTION] => ) [ITEM_IMAGES] => Array ( [ID] => 23 [IBLOCK_ID] => 2 [NAME] => Изображения [ACTIVE] => Y [SORT] => 4 [CODE] => ITEM_IMAGES [DEFAULT_VALUE] => [PROPERTY_TYPE] => F [ROW_COUNT] => 1 [COL_COUNT] => 30 [LIST_TYPE] => L [MULTIPLE] => Y [XML_ID] => 23 [FILE_TYPE] => [MULTIPLE_CNT] => 5 [LINK_IBLOCK_ID] => 0 [WITH_DESCRIPTION] => N [SEARCHABLE] => N [FILTRABLE] => N [IS_REQUIRED] => N [VERSION] => 1 [USER_TYPE] => [USER_TYPE_SETTINGS] => Array ( ) [HINT] => [~NAME] => Изображения [~DEFAULT_VALUE] => [VALUE_ENUM] => [VALUE_XML_ID] => [VALUE_SORT] => [VALUE] => Array ( [0] => 35261 ) [PROPERTY_VALUE_ID] => Array ( [0] => 5932921 ) [DESCRIPTION] => Array ( [0] => ) [~VALUE] => Array ( [0] => 35261 ) [~DESCRIPTION] => Array ( [0] => ) ) [ITEM_PROPERTIES] => Array ( [ID] => 24 [IBLOCK_ID] => 2 [NAME] => Свойства [ACTIVE] => Y [SORT] => 5 [CODE] => ITEM_PROPERTIES [DEFAULT_VALUE] => [PROPERTY_TYPE] => E [ROW_COUNT] => 1 [COL_COUNT] => 30 [LIST_TYPE] => L [MULTIPLE] => Y [XML_ID] => 24 [FILE_TYPE] => [MULTIPLE_CNT] => 1 [LINK_IBLOCK_ID] => 3 [WITH_DESCRIPTION] => N [SEARCHABLE] => N [FILTRABLE] => N [IS_REQUIRED] => N [VERSION] => 1 [USER_TYPE] => [USER_TYPE_SETTINGS] => Array ( ) [HINT] => [~NAME] => Свойства [~DEFAULT_VALUE] => [VALUE_ENUM] => [VALUE_XML_ID] => [VALUE_SORT] => [VALUE] => [PROPERTY_VALUE_ID] => [DESCRIPTION] => [~DESCRIPTION] => [~VALUE] => ) [ITEM_CHARACTERISTICS] => Array ( [ID] => 28 [IBLOCK_ID] => 2 [NAME] => Характеристики [ACTIVE] => Y [SORT] => 6 [CODE] => ITEM_CHARACTERISTICS [DEFAULT_VALUE] => [PROPERTY_TYPE] => S [ROW_COUNT] => 1 [COL_COUNT] => 20 [LIST_TYPE] => L [MULTIPLE] => Y [XML_ID] => 28 [FILE_TYPE] => [MULTIPLE_CNT] => 1 [LINK_IBLOCK_ID] => 0 [WITH_DESCRIPTION] => Y [SEARCHABLE] => N [FILTRABLE] => N [IS_REQUIRED] => N [VERSION] => 1 [USER_TYPE] => [USER_TYPE_SETTINGS] => Array ( ) [HINT] => [~NAME] => Характеристики [~DEFAULT_VALUE] => [VALUE_ENUM] => [VALUE_XML_ID] => [VALUE_SORT] => [VALUE] => Array ( [0] => прямостоечная [1] => граненая [2] => 23700 [3] => 13700 [4] => 720 [5] => 200 [6] => одностоечная свободностоящая, с тросовой консолью для одного грозотроса [7] => промежуточная [8] => Горячее цинкование [9] => Порошковое / полимерное окрашивание [10] => 30 лет ) [PROPERTY_VALUE_ID] => Array ( [0] => 6825316 [1] => 6825317 [2] => 6825318 [3] => 6825319 [4] => 6825320 [5] => 6825321 [6] => 6825322 [7] => 6825323 [8] => 6825324 [9] => 6825325 [10] => 6825326 ) [DESCRIPTION] => Array ( [0] => Способ установки [1] => Способ производства [2] => Высота, мм [3] => Высота до нижней траверсы, мм [4] => Диаметр нижний, мм [5] => Диаметр верхний, мм [6] => Конструкция [7] => Назначение [8] => Защитное покрытие [9] => Лакокрасочное покрытие [10] => Срок службы ) [~VALUE] => Array ( [0] => прямостоечная [1] => граненая [2] => 23700 [3] => 13700 [4] => 720 [5] => 200 [6] => одностоечная свободностоящая, с тросовой консолью для одного грозотроса [7] => промежуточная [8] => Горячее цинкование [9] => Порошковое / полимерное окрашивание [10] => 30 лет ) [~DESCRIPTION] => Array ( [0] => Способ установки [1] => Способ производства [2] => Высота, мм [3] => Высота до нижней траверсы, мм [4] => Диаметр нижний, мм [5] => Диаметр верхний, мм [6] => Конструкция [7] => Назначение [8] => Защитное покрытие [9] => Лакокрасочное покрытие [10] => Срок службы ) ) [ITEM_FILTER] => Array ( [ID] => 40 [IBLOCK_ID] => 2 [NAME] => Фильтр [ACTIVE] => Y [SORT] => 7 [CODE] => ITEM_FILTER [DEFAULT_VALUE] => [PROPERTY_TYPE] => S [ROW_COUNT] => 1 [COL_COUNT] => 30 [LIST_TYPE] => L [MULTIPLE] => N [XML_ID] => 40 [FILE_TYPE] => [MULTIPLE_CNT] => 5 [LINK_IBLOCK_ID] => 0 [WITH_DESCRIPTION] => N [SEARCHABLE] => N [FILTRABLE] => N [IS_REQUIRED] => N [VERSION] => 1 [USER_TYPE] => [USER_TYPE_SETTINGS] => Array ( ) [HINT] => [~NAME] => Фильтр [~DEFAULT_VALUE] => [VALUE_ENUM] => [VALUE_XML_ID] => [VALUE_SORT] => [VALUE] => [PROPERTY_VALUE_ID] => [DESCRIPTION] => [~DESCRIPTION] => [~VALUE] => ) [ITEM_TECH_CH] => Array ( [ID] => 29 [IBLOCK_ID] => 2 [NAME] => Технические характеристики [ACTIVE] => Y [SORT] => 8 [CODE] => ITEM_TECH_CH [DEFAULT_VALUE] => Array ( [TYPE] => HTML [TEXT] => ) [PROPERTY_TYPE] => S [ROW_COUNT] => 1 [COL_COUNT] => 30 [LIST_TYPE] => L [MULTIPLE] => N [XML_ID] => 29 [FILE_TYPE] => [MULTIPLE_CNT] => 5 [LINK_IBLOCK_ID] => 0 [WITH_DESCRIPTION] => N [SEARCHABLE] => N [FILTRABLE] => N [IS_REQUIRED] => N [VERSION] => 1 [USER_TYPE] => HTML [USER_TYPE_SETTINGS] => Array ( [height] => 200 ) [HINT] => [~NAME] => Технические характеристики [~DEFAULT_VALUE] => Array ( [TYPE] => HTML [TEXT] => ) [VALUE_ENUM] => [VALUE_XML_ID] => [VALUE_SORT] => [VALUE] => Array ( [TEXT] => <p style="text-align: justify;"> Опора ПМ110-4 применяется для сооружения прямых участков двухцепных магистральных линий 110 кВ в различных географических и климатических условиях. Она используется при строительстве новых линий электропередачи, соединяющих подстанции и распределительные узлы в населенной и ненаселенной местности. Данная модель оптимальна для модернизации и реконструкции существующих воздушных линий, где требуется замена устаревших металлических или железобетонных опор на современные многогранные конструкции. Опора востребована при прокладке линий в районах с холодным климатом благодаря материалу, сохраняющему свойства при низких температурах. Благодаря свободностоящему исполнению и установке в грунт она эффективна на участках с различным рельефом. </p> [TYPE] => HTML ) [PROPERTY_VALUE_ID] => 6825327 [DESCRIPTION] => [~VALUE] => Array ( [TEXT] =>

Опора ПМ110-4 применяется для сооружения прямых участков двухцепных магистральных линий 110 кВ в различных географических и климатических условиях. Она используется при строительстве новых линий электропередачи, соединяющих подстанции и распределительные узлы в населенной и ненаселенной местности. Данная модель оптимальна для модернизации и реконструкции существующих воздушных линий, где требуется замена устаревших металлических или железобетонных опор на современные многогранные конструкции. Опора востребована при прокладке линий в районах с холодным климатом благодаря материалу, сохраняющему свойства при низких температурах. Благодаря свободностоящему исполнению и установке в грунт она эффективна на участках с различным рельефом.

[TYPE] => HTML ) [~DESCRIPTION] => ) [ITEM_ADV_DESCR] => Array ( [ID] => 30 [IBLOCK_ID] => 2 [NAME] => Преимущества (описание) [ACTIVE] => Y [SORT] => 9 [CODE] => ITEM_ADV_DESCR [DEFAULT_VALUE] => Array ( [TYPE] => HTML [TEXT] => ) [PROPERTY_TYPE] => S [ROW_COUNT] => 1 [COL_COUNT] => 30 [LIST_TYPE] => L [MULTIPLE] => N [XML_ID] => 30 [FILE_TYPE] => [MULTIPLE_CNT] => 5 [LINK_IBLOCK_ID] => 0 [WITH_DESCRIPTION] => N [SEARCHABLE] => N [FILTRABLE] => N [IS_REQUIRED] => N [VERSION] => 1 [USER_TYPE] => HTML [USER_TYPE_SETTINGS] => Array ( [height] => 100 ) [HINT] => [~NAME] => Преимущества (описание) [~DEFAULT_VALUE] => Array ( [TYPE] => HTML [TEXT] => ) [VALUE_ENUM] => [VALUE_XML_ID] => [VALUE_SORT] => [VALUE] => Array ( [TEXT] => <p style="text-align: justify;"> Производство опор на нашем предприятии гарантирует заказчику ряд ключевых технологических преимуществ. Применение метода горячего цинкования создает на поверхности металла сплошной барьерный слой, который обеспечивает защиту от коррозии на срок не менее 30 лет, даже при постоянном контакте подземной части с грунтом. Свободностоящая конструкция без оттяжек экономит занимаемую площадь, упрощает монтаж и последующее обслуживание трассы, а также минимизирует объем земляных работ. Продуманная коническая форма ствола и использование качественной стали обеспечивают высокую несущую способность и устойчивость к ветровым и гололедным нагрузкам в расчетных районах. Конструкция полностью соответствует требованиям типового проекта 28.0034 и действующим техническим регламентам Российской Федерации для объектов электроэнергетики высокого напряжения. </p> [TYPE] => HTML ) [PROPERTY_VALUE_ID] => 6825328 [DESCRIPTION] => [~VALUE] => Array ( [TEXT] =>

Производство опор на нашем предприятии гарантирует заказчику ряд ключевых технологических преимуществ. Применение метода горячего цинкования создает на поверхности металла сплошной барьерный слой, который обеспечивает защиту от коррозии на срок не менее 30 лет, даже при постоянном контакте подземной части с грунтом. Свободностоящая конструкция без оттяжек экономит занимаемую площадь, упрощает монтаж и последующее обслуживание трассы, а также минимизирует объем земляных работ. Продуманная коническая форма ствола и использование качественной стали обеспечивают высокую несущую способность и устойчивость к ветровым и гололедным нагрузкам в расчетных районах. Конструкция полностью соответствует требованиям типового проекта 28.0034 и действующим техническим регламентам Российской Федерации для объектов электроэнергетики высокого напряжения.

[TYPE] => HTML ) [~DESCRIPTION] => ) [ITEM_ADV] => Array ( [ID] => 31 [IBLOCK_ID] => 2 [NAME] => Преимущества [ACTIVE] => Y [SORT] => 10 [CODE] => ITEM_ADV [DEFAULT_VALUE] => [PROPERTY_TYPE] => E [ROW_COUNT] => 1 [COL_COUNT] => 30 [LIST_TYPE] => L [MULTIPLE] => Y [XML_ID] => 31 [FILE_TYPE] => [MULTIPLE_CNT] => 1 [LINK_IBLOCK_ID] => 5 [WITH_DESCRIPTION] => N [SEARCHABLE] => N [FILTRABLE] => N [IS_REQUIRED] => N [VERSION] => 1 [USER_TYPE] => [USER_TYPE_SETTINGS] => Array ( ) [HINT] => [~NAME] => Преимущества [~DEFAULT_VALUE] => [VALUE_ENUM] => [VALUE_XML_ID] => [VALUE_SORT] => [VALUE] => [PROPERTY_VALUE_ID] => [DESCRIPTION] => [~DESCRIPTION] => [~VALUE] => ) [ITEM_BUY] => Array ( [ID] => 32 [IBLOCK_ID] => 2 [NAME] => Купить [ACTIVE] => Y [SORT] => 11 [CODE] => ITEM_BUY [DEFAULT_VALUE] => Array ( [TEXT] => [TYPE] => HTML ) [PROPERTY_TYPE] => S [ROW_COUNT] => 1 [COL_COUNT] => 30 [LIST_TYPE] => L [MULTIPLE] => N [XML_ID] => 32 [FILE_TYPE] => [MULTIPLE_CNT] => 5 [LINK_IBLOCK_ID] => 0 [WITH_DESCRIPTION] => N [SEARCHABLE] => N [FILTRABLE] => N [IS_REQUIRED] => N [VERSION] => 1 [USER_TYPE] => HTML [USER_TYPE_SETTINGS] => Array ( [height] => 200 ) [HINT] => [~NAME] => Купить [~DEFAULT_VALUE] => Array ( [TEXT] => [TYPE] => HTML ) [VALUE_ENUM] => [VALUE_XML_ID] => [VALUE_SORT] => [VALUE] => Array ( [TEXT] => <p style="text-align: justify;"> НПО «Легион» является производителем металлоконструкций для энергетики и готово выполнить заказ на изготовление и поставку опор ПМ110-4. Мы предлагаем индивидуальный подход к каждому проекту, консультационную поддержку наших инженеров и гибкие условия сотрудничества. Для получения детального технико-коммерческого предложения, расчета стоимости партии или оформления заказа свяжитесь с нашими специалистами. Мы обеспечим оперативное производство и организованную доставку продукции железнодорожным или автомобильным транспортом в любой регион России. </p> <p style="text-align: justify;"> </p> <p style="text-align: justify;"> Телефон: 8(800)500-51-37<br> Email: <a href="mailto:info@legionural.ru">info@legionural.ru</a> </p> <p> <a href="mailto:info@legionural.ru"></a> </p> [TYPE] => HTML ) [PROPERTY_VALUE_ID] => 6825329 [DESCRIPTION] => [~VALUE] => Array ( [TEXT] =>

НПО «Легион» является производителем металлоконструкций для энергетики и готово выполнить заказ на изготовление и поставку опор ПМ110-4. Мы предлагаем индивидуальный подход к каждому проекту, консультационную поддержку наших инженеров и гибкие условия сотрудничества. Для получения детального технико-коммерческого предложения, расчета стоимости партии или оформления заказа свяжитесь с нашими специалистами. Мы обеспечим оперативное производство и организованную доставку продукции железнодорожным или автомобильным транспортом в любой регион России.

Телефон: 8(800)500-51-37
Email: info@legionural.ru

[TYPE] => HTML ) [~DESCRIPTION] => ) [ITEM_CERT_COR] => Array ( [ID] => 33 [IBLOCK_ID] => 2 [NAME] => Сертификаты соответствия [ACTIVE] => Y [SORT] => 12 [CODE] => ITEM_CERT_COR [DEFAULT_VALUE] => [PROPERTY_TYPE] => S [ROW_COUNT] => 1 [COL_COUNT] => 30 [LIST_TYPE] => L [MULTIPLE] => Y [XML_ID] => 33 [FILE_TYPE] => [MULTIPLE_CNT] => 1 [LINK_IBLOCK_ID] => 0 [WITH_DESCRIPTION] => Y [SEARCHABLE] => N [FILTRABLE] => N [IS_REQUIRED] => N [VERSION] => 1 [USER_TYPE] => [USER_TYPE_SETTINGS] => Array ( ) [HINT] => [~NAME] => Сертификаты соответствия [~DEFAULT_VALUE] => [VALUE_ENUM] => [VALUE_XML_ID] => [VALUE_SORT] => [VALUE] => [PROPERTY_VALUE_ID] => [DESCRIPTION] => [~DESCRIPTION] => [~VALUE] => ) [ITEM_ST_STAND] => Array ( [ID] => 34 [IBLOCK_ID] => 2 [NAME] => Государственные стандарты [ACTIVE] => Y [SORT] => 13 [CODE] => ITEM_ST_STAND [DEFAULT_VALUE] => [PROPERTY_TYPE] => S [ROW_COUNT] => 1 [COL_COUNT] => 30 [LIST_TYPE] => L [MULTIPLE] => Y [XML_ID] => 34 [FILE_TYPE] => [MULTIPLE_CNT] => 1 [LINK_IBLOCK_ID] => 0 [WITH_DESCRIPTION] => Y [SEARCHABLE] => N [FILTRABLE] => N [IS_REQUIRED] => N [VERSION] => 1 [USER_TYPE] => [USER_TYPE_SETTINGS] => Array ( ) [HINT] => [~NAME] => Государственные стандарты [~DEFAULT_VALUE] => [VALUE_ENUM] => [VALUE_XML_ID] => [VALUE_SORT] => [VALUE] => [PROPERTY_VALUE_ID] => [DESCRIPTION] => [~DESCRIPTION] => [~VALUE] => ) [ITEM_NORM] => Array ( [ID] => 35 [IBLOCK_ID] => 2 [NAME] => Строительные нормы и правила [ACTIVE] => Y [SORT] => 14 [CODE] => ITEM_NORM [DEFAULT_VALUE] => [PROPERTY_TYPE] => S [ROW_COUNT] => 1 [COL_COUNT] => 30 [LIST_TYPE] => L [MULTIPLE] => Y [XML_ID] => 35 [FILE_TYPE] => [MULTIPLE_CNT] => 1 [LINK_IBLOCK_ID] => 0 [WITH_DESCRIPTION] => Y [SEARCHABLE] => N [FILTRABLE] => N [IS_REQUIRED] => N [VERSION] => 1 [USER_TYPE] => [USER_TYPE_SETTINGS] => Array ( ) [HINT] => [~NAME] => Строительные нормы и правила [~DEFAULT_VALUE] => [VALUE_ENUM] => [VALUE_XML_ID] => [VALUE_SORT] => [VALUE] => [PROPERTY_VALUE_ID] => [DESCRIPTION] => [~DESCRIPTION] => [~VALUE] => ) [ITEM_SIMILAR] => Array ( [ID] => 36 [IBLOCK_ID] => 2 [NAME] => Похожие модели [ACTIVE] => Y [SORT] => 15 [CODE] => ITEM_SIMILAR [DEFAULT_VALUE] => [PROPERTY_TYPE] => G [ROW_COUNT] => 1 [COL_COUNT] => 30 [LIST_TYPE] => L [MULTIPLE] => Y [XML_ID] => 36 [FILE_TYPE] => [MULTIPLE_CNT] => 10 [LINK_IBLOCK_ID] => 2 [WITH_DESCRIPTION] => N [SEARCHABLE] => N [FILTRABLE] => N [IS_REQUIRED] => N [VERSION] => 1 [USER_TYPE] => [USER_TYPE_SETTINGS] => Array ( ) [HINT] => [~NAME] => Похожие модели [~DEFAULT_VALUE] => [VALUE_ENUM] => [VALUE_XML_ID] => [VALUE_SORT] => [VALUE] => [PROPERTY_VALUE_ID] => [DESCRIPTION] => [~DESCRIPTION] => [~VALUE] => ) [ITEM_SIMILAR_TAGS] => Array ( [ID] => 122 [IBLOCK_ID] => 2 [NAME] => Похожие модели (теговые) [ACTIVE] => Y [SORT] => 16 [CODE] => ITEM_SIMILAR_TAGS [DEFAULT_VALUE] => [PROPERTY_TYPE] => E [ROW_COUNT] => 1 [COL_COUNT] => 30 [LIST_TYPE] => L [MULTIPLE] => Y [XML_ID] => 122 [FILE_TYPE] => [MULTIPLE_CNT] => 1 [LINK_IBLOCK_ID] => 19 [WITH_DESCRIPTION] => N [SEARCHABLE] => N [FILTRABLE] => N [IS_REQUIRED] => N [VERSION] => 1 [USER_TYPE] => [USER_TYPE_SETTINGS] => Array ( ) [HINT] => [~NAME] => Похожие модели (теговые) [~DEFAULT_VALUE] => [VALUE_ENUM] => [VALUE_XML_ID] => [VALUE_SORT] => [VALUE] => [PROPERTY_VALUE_ID] => [DESCRIPTION] => [~DESCRIPTION] => [~VALUE] => ) [ITEM_BUY_WITH] => Array ( [ID] => 37 [IBLOCK_ID] => 2 [NAME] => С этим товаром покупают [ACTIVE] => Y [SORT] => 17 [CODE] => ITEM_BUY_WITH [DEFAULT_VALUE] => [PROPERTY_TYPE] => E [ROW_COUNT] => 1 [COL_COUNT] => 30 [LIST_TYPE] => L [MULTIPLE] => Y [XML_ID] => 37 [FILE_TYPE] => [MULTIPLE_CNT] => 1 [LINK_IBLOCK_ID] => 2 [WITH_DESCRIPTION] => N [SEARCHABLE] => N [FILTRABLE] => N [IS_REQUIRED] => N [VERSION] => 1 [USER_TYPE] => [USER_TYPE_SETTINGS] => Array ( ) [HINT] => [~NAME] => С этим товаром покупают [~DEFAULT_VALUE] => [VALUE_ENUM] => [VALUE_XML_ID] => [VALUE_SORT] => [VALUE] => [PROPERTY_VALUE_ID] => [DESCRIPTION] => [~DESCRIPTION] => [~VALUE] => ) [ITEM_VOTE_COUNT] => Array ( [ID] => 38 [IBLOCK_ID] => 2 [NAME] => Количество голосов [ACTIVE] => Y [SORT] => 18 [CODE] => ITEM_VOTE_COUNT [DEFAULT_VALUE] => 0 [PROPERTY_TYPE] => N [ROW_COUNT] => 1 [COL_COUNT] => 30 [LIST_TYPE] => L [MULTIPLE] => N [XML_ID] => 38 [FILE_TYPE] => [MULTIPLE_CNT] => 5 [LINK_IBLOCK_ID] => 0 [WITH_DESCRIPTION] => N [SEARCHABLE] => N [FILTRABLE] => N [IS_REQUIRED] => N [VERSION] => 1 [USER_TYPE] => [USER_TYPE_SETTINGS] => Array ( ) [HINT] => [~NAME] => Количество голосов [~DEFAULT_VALUE] => 0 [VALUE_ENUM] => [VALUE_XML_ID] => [VALUE_SORT] => [VALUE] => 7 [PROPERTY_VALUE_ID] => 5932922 [DESCRIPTION] => [~VALUE] => 7 [~DESCRIPTION] => ) [ITEM_RAITING] => Array ( [ID] => 39 [IBLOCK_ID] => 2 [NAME] => Рейтинг [ACTIVE] => Y [SORT] => 19 [CODE] => ITEM_RAITING [DEFAULT_VALUE] => 0 [PROPERTY_TYPE] => N [ROW_COUNT] => 1 [COL_COUNT] => 30 [LIST_TYPE] => L [MULTIPLE] => N [XML_ID] => 39 [FILE_TYPE] => [MULTIPLE_CNT] => 5 [LINK_IBLOCK_ID] => 0 [WITH_DESCRIPTION] => N [SEARCHABLE] => N [FILTRABLE] => N [IS_REQUIRED] => N [VERSION] => 1 [USER_TYPE] => [USER_TYPE_SETTINGS] => Array ( ) [HINT] => [~NAME] => Рейтинг [~DEFAULT_VALUE] => 0 [VALUE_ENUM] => [VALUE_XML_ID] => [VALUE_SORT] => [VALUE] => 4.7 [PROPERTY_VALUE_ID] => 5932923 [DESCRIPTION] => [~VALUE] => 4.7 [~DESCRIPTION] => ) [H1] => Array ( [ID] => 125 [IBLOCK_ID] => 2 [NAME] => H1 [ACTIVE] => Y [SORT] => 500 [CODE] => H1 [DEFAULT_VALUE] => [PROPERTY_TYPE] => S [ROW_COUNT] => 1 [COL_COUNT] => 70 [LIST_TYPE] => L [MULTIPLE] => N [XML_ID] => 125 [FILE_TYPE] => [MULTIPLE_CNT] => 5 [LINK_IBLOCK_ID] => 0 [WITH_DESCRIPTION] => N [SEARCHABLE] => N [FILTRABLE] => N [IS_REQUIRED] => N [VERSION] => 1 [USER_TYPE] => [USER_TYPE_SETTINGS] => Array ( ) [HINT] => [~NAME] => H1 [~DEFAULT_VALUE] => [VALUE_ENUM] => [VALUE_XML_ID] => [VALUE_SORT] => [VALUE] => Многогранная опора ПМ110-4 [PROPERTY_VALUE_ID] => 5945347 [DESCRIPTION] => [~VALUE] => Многогранная опора ПМ110-4 [~DESCRIPTION] => ) [CERTIFICATES] => Array ( [ID] => 127 [IBLOCK_ID] => 2 [NAME] => Сертификаты [ACTIVE] => Y [SORT] => 500 [CODE] => CERTIFICATES [DEFAULT_VALUE] => [PROPERTY_TYPE] => E [ROW_COUNT] => 1 [COL_COUNT] => 30 [LIST_TYPE] => L [MULTIPLE] => Y [XML_ID] => 127 [FILE_TYPE] => [MULTIPLE_CNT] => 5 [LINK_IBLOCK_ID] => 7 [WITH_DESCRIPTION] => N [SEARCHABLE] => N [FILTRABLE] => N [IS_REQUIRED] => N [VERSION] => 1 [USER_TYPE] => [USER_TYPE_SETTINGS] => Array ( ) [HINT] => [~NAME] => Сертификаты [~DEFAULT_VALUE] => [VALUE_ENUM] => [VALUE_XML_ID] => [VALUE_SORT] => [VALUE] => [PROPERTY_VALUE_ID] => [DESCRIPTION] => [~DESCRIPTION] => [~VALUE] => ) [129] => Array ( [ID] => 129 [IBLOCK_ID] => 2 [NAME] => Уникальный META TITLE [ACTIVE] => Y [SORT] => 500 [CODE] => 129 [DEFAULT_VALUE] => [PROPERTY_TYPE] => S [ROW_COUNT] => 1 [COL_COUNT] => 30 [LIST_TYPE] => L [MULTIPLE] => N [XML_ID] => 129 [FILE_TYPE] => [MULTIPLE_CNT] => 5 [LINK_IBLOCK_ID] => 0 [WITH_DESCRIPTION] => N [SEARCHABLE] => N [FILTRABLE] => N [IS_REQUIRED] => N [VERSION] => 1 [USER_TYPE] => [USER_TYPE_SETTINGS] => Array ( ) [HINT] => [~NAME] => Уникальный META TITLE [~DEFAULT_VALUE] => [VALUE_ENUM] => [VALUE_XML_ID] => [VALUE_SORT] => [VALUE] => [PROPERTY_VALUE_ID] => [DESCRIPTION] => [~DESCRIPTION] => [~VALUE] => ) [ITEM_TYPE] => Array ( [ID] => 134 [IBLOCK_ID] => 2 [NAME] => Тип [ACTIVE] => Y [SORT] => 500 [CODE] => ITEM_TYPE [DEFAULT_VALUE] => [PROPERTY_TYPE] => S [ROW_COUNT] => 1 [COL_COUNT] => 30 [LIST_TYPE] => L [MULTIPLE] => N [XML_ID] => [FILE_TYPE] => [MULTIPLE_CNT] => 5 [LINK_IBLOCK_ID] => 0 [WITH_DESCRIPTION] => N [SEARCHABLE] => N [FILTRABLE] => Y [IS_REQUIRED] => N [VERSION] => 1 [USER_TYPE] => [USER_TYPE_SETTINGS] => Array ( ) [HINT] => [~NAME] => Тип [~DEFAULT_VALUE] => [VALUE_ENUM] => [VALUE_XML_ID] => [VALUE_SORT] => [VALUE] => [PROPERTY_VALUE_ID] => [DESCRIPTION] => [~DESCRIPTION] => [~VALUE] => ) [ITEM_INSTALLATION] => Array ( [ID] => 135 [IBLOCK_ID] => 2 [NAME] => Способ установки [ACTIVE] => Y [SORT] => 500 [CODE] => ITEM_INSTALLATION [DEFAULT_VALUE] => [PROPERTY_TYPE] => S [ROW_COUNT] => 1 [COL_COUNT] => 30 [LIST_TYPE] => L [MULTIPLE] => N [XML_ID] => [FILE_TYPE] => [MULTIPLE_CNT] => 5 [LINK_IBLOCK_ID] => 0 [WITH_DESCRIPTION] => N [SEARCHABLE] => N [FILTRABLE] => N [IS_REQUIRED] => N [VERSION] => 1 [USER_TYPE] => [USER_TYPE_SETTINGS] => Array ( ) [HINT] => [~NAME] => Способ установки [~DEFAULT_VALUE] => [VALUE_ENUM] => [VALUE_XML_ID] => [VALUE_SORT] => [VALUE] => [PROPERTY_VALUE_ID] => [DESCRIPTION] => [~DESCRIPTION] => [~VALUE] => ) [ITEM_MODE] => Array ( [ID] => 136 [IBLOCK_ID] => 2 [NAME] => Способ производства [ACTIVE] => Y [SORT] => 500 [CODE] => ITEM_MODE [DEFAULT_VALUE] => [PROPERTY_TYPE] => S [ROW_COUNT] => 1 [COL_COUNT] => 30 [LIST_TYPE] => L [MULTIPLE] => N [XML_ID] => [FILE_TYPE] => [MULTIPLE_CNT] => 5 [LINK_IBLOCK_ID] => 0 [WITH_DESCRIPTION] => N [SEARCHABLE] => N [FILTRABLE] => N [IS_REQUIRED] => N [VERSION] => 1 [USER_TYPE] => [USER_TYPE_SETTINGS] => Array ( ) [HINT] => [~NAME] => Способ производства [~DEFAULT_VALUE] => [VALUE_ENUM] => [VALUE_XML_ID] => [VALUE_SORT] => [VALUE] => [PROPERTY_VALUE_ID] => [DESCRIPTION] => [~DESCRIPTION] => [~VALUE] => ) [ITEM_HEIGHT] => Array ( [ID] => 137 [IBLOCK_ID] => 2 [NAME] => Высота, мм [ACTIVE] => Y [SORT] => 500 [CODE] => ITEM_HEIGHT [DEFAULT_VALUE] => [PROPERTY_TYPE] => S [ROW_COUNT] => 1 [COL_COUNT] => 30 [LIST_TYPE] => L [MULTIPLE] => N [XML_ID] => [FILE_TYPE] => [MULTIPLE_CNT] => 5 [LINK_IBLOCK_ID] => 0 [WITH_DESCRIPTION] => N [SEARCHABLE] => N [FILTRABLE] => N [IS_REQUIRED] => N [VERSION] => 1 [USER_TYPE] => [USER_TYPE_SETTINGS] => Array ( ) [HINT] => [~NAME] => Высота, мм [~DEFAULT_VALUE] => [VALUE_ENUM] => [VALUE_XML_ID] => [VALUE_SORT] => [VALUE] => [PROPERTY_VALUE_ID] => [DESCRIPTION] => [~DESCRIPTION] => [~VALUE] => ) [BLOG_POST_ID] => Array ( [ID] => 138 [IBLOCK_ID] => 2 [NAME] => ID поста блога для комментариев [ACTIVE] => Y [SORT] => 500 [CODE] => BLOG_POST_ID [DEFAULT_VALUE] => [PROPERTY_TYPE] => N [ROW_COUNT] => 1 [COL_COUNT] => 30 [LIST_TYPE] => L [MULTIPLE] => N [XML_ID] => BLOG_POST_ID [FILE_TYPE] => [MULTIPLE_CNT] => 5 [LINK_IBLOCK_ID] => 0 [WITH_DESCRIPTION] => N [SEARCHABLE] => N [FILTRABLE] => N [IS_REQUIRED] => N [VERSION] => 1 [USER_TYPE] => [USER_TYPE_SETTINGS] => Array ( ) [HINT] => [~NAME] => ID поста блога для комментариев [~DEFAULT_VALUE] => [VALUE_ENUM] => [VALUE_XML_ID] => [VALUE_SORT] => [VALUE] => 365 [PROPERTY_VALUE_ID] => 6774174 [DESCRIPTION] => [~VALUE] => 365 [~DESCRIPTION] => ) [BLOG_COMMENTS_CNT] => Array ( [ID] => 139 [IBLOCK_ID] => 2 [NAME] => Количество комментариев [ACTIVE] => Y [SORT] => 500 [CODE] => BLOG_COMMENTS_CNT [DEFAULT_VALUE] => [PROPERTY_TYPE] => N [ROW_COUNT] => 1 [COL_COUNT] => 30 [LIST_TYPE] => L [MULTIPLE] => N [XML_ID] => BLOG_COMMENTS_CNT [FILE_TYPE] => [MULTIPLE_CNT] => 5 [LINK_IBLOCK_ID] => 0 [WITH_DESCRIPTION] => N [SEARCHABLE] => N [FILTRABLE] => N [IS_REQUIRED] => N [VERSION] => 1 [USER_TYPE] => [USER_TYPE_SETTINGS] => Array ( ) [HINT] => [~NAME] => Количество комментариев [~DEFAULT_VALUE] => [VALUE_ENUM] => [VALUE_XML_ID] => [VALUE_SORT] => [VALUE] => [PROPERTY_VALUE_ID] => [DESCRIPTION] => [~DESCRIPTION] => [~VALUE] => ) [HEIGHT_TOTAL] => Array ( [ID] => 143 [IBLOCK_ID] => 2 [NAME] => Высота общая, мм [ACTIVE] => Y [SORT] => 500 [CODE] => HEIGHT_TOTAL [DEFAULT_VALUE] => [PROPERTY_TYPE] => S [ROW_COUNT] => 1 [COL_COUNT] => 30 [LIST_TYPE] => L [MULTIPLE] => N [XML_ID] => [FILE_TYPE] => [MULTIPLE_CNT] => 5 [LINK_IBLOCK_ID] => 0 [WITH_DESCRIPTION] => N [SEARCHABLE] => N [FILTRABLE] => N [IS_REQUIRED] => N [VERSION] => 1 [USER_TYPE] => [USER_TYPE_SETTINGS] => Array ( ) [HINT] => [~NAME] => Высота общая, мм [~DEFAULT_VALUE] => [VALUE_ENUM] => [VALUE_XML_ID] => [VALUE_SORT] => [VALUE] => [PROPERTY_VALUE_ID] => [DESCRIPTION] => [~DESCRIPTION] => [~VALUE] => ) [HEIGHT_ABOVEGROUND] => Array ( [ID] => 144 [IBLOCK_ID] => 2 [NAME] => Высота надземной части, мм [ACTIVE] => Y [SORT] => 500 [CODE] => HEIGHT_ABOVEGROUND [DEFAULT_VALUE] => [PROPERTY_TYPE] => S [ROW_COUNT] => 1 [COL_COUNT] => 30 [LIST_TYPE] => L [MULTIPLE] => N [XML_ID] => [FILE_TYPE] => [MULTIPLE_CNT] => 5 [LINK_IBLOCK_ID] => 0 [WITH_DESCRIPTION] => N [SEARCHABLE] => N [FILTRABLE] => N [IS_REQUIRED] => N [VERSION] => 1 [USER_TYPE] => [USER_TYPE_SETTINGS] => Array ( ) [HINT] => [~NAME] => Высота надземной части, мм [~DEFAULT_VALUE] => [VALUE_ENUM] => [VALUE_XML_ID] => [VALUE_SORT] => [VALUE] => [PROPERTY_VALUE_ID] => [DESCRIPTION] => [~DESCRIPTION] => [~VALUE] => ) [HEIGHT_UNDERGROUND] => Array ( [ID] => 145 [IBLOCK_ID] => 2 [NAME] => Высота подземной части, мм [ACTIVE] => Y [SORT] => 500 [CODE] => HEIGHT_UNDERGROUND [DEFAULT_VALUE] => [PROPERTY_TYPE] => S [ROW_COUNT] => 1 [COL_COUNT] => 30 [LIST_TYPE] => L [MULTIPLE] => N [XML_ID] => [FILE_TYPE] => [MULTIPLE_CNT] => 5 [LINK_IBLOCK_ID] => 0 [WITH_DESCRIPTION] => N [SEARCHABLE] => N [FILTRABLE] => N [IS_REQUIRED] => N [VERSION] => 1 [USER_TYPE] => [USER_TYPE_SETTINGS] => Array ( ) [HINT] => [~NAME] => Высота подземной части, мм [~DEFAULT_VALUE] => [VALUE_ENUM] => [VALUE_XML_ID] => [VALUE_SORT] => [VALUE] => [PROPERTY_VALUE_ID] => [DESCRIPTION] => [~DESCRIPTION] => [~VALUE] => ) [DIAMETER_TOP] => Array ( [ID] => 146 [IBLOCK_ID] => 2 [NAME] => Диаметр верхний, мм [ACTIVE] => Y [SORT] => 500 [CODE] => DIAMETER_TOP [DEFAULT_VALUE] => [PROPERTY_TYPE] => S [ROW_COUNT] => 1 [COL_COUNT] => 30 [LIST_TYPE] => L [MULTIPLE] => N [XML_ID] => [FILE_TYPE] => [MULTIPLE_CNT] => 5 [LINK_IBLOCK_ID] => 0 [WITH_DESCRIPTION] => N [SEARCHABLE] => N [FILTRABLE] => N [IS_REQUIRED] => N [VERSION] => 1 [USER_TYPE] => [USER_TYPE_SETTINGS] => Array ( ) [HINT] => [~NAME] => Диаметр верхний, мм [~DEFAULT_VALUE] => [VALUE_ENUM] => [VALUE_XML_ID] => [VALUE_SORT] => [VALUE] => [PROPERTY_VALUE_ID] => [DESCRIPTION] => [~DESCRIPTION] => [~VALUE] => ) [DIAMETER_BOTTOM] => Array ( [ID] => 147 [IBLOCK_ID] => 2 [NAME] => Диаметр нижний, мм [ACTIVE] => Y [SORT] => 500 [CODE] => DIAMETER_BOTTOM [DEFAULT_VALUE] => [PROPERTY_TYPE] => S [ROW_COUNT] => 1 [COL_COUNT] => 30 [LIST_TYPE] => L [MULTIPLE] => N [XML_ID] => [FILE_TYPE] => [MULTIPLE_CNT] => 5 [LINK_IBLOCK_ID] => 0 [WITH_DESCRIPTION] => N [SEARCHABLE] => N [FILTRABLE] => N [IS_REQUIRED] => N [VERSION] => 1 [USER_TYPE] => [USER_TYPE_SETTINGS] => Array ( ) [HINT] => [~NAME] => Диаметр нижний, мм [~DEFAULT_VALUE] => [VALUE_ENUM] => [VALUE_XML_ID] => [VALUE_SORT] => [VALUE] => [PROPERTY_VALUE_ID] => [DESCRIPTION] => [~DESCRIPTION] => [~VALUE] => ) [WEIGHT] => Array ( [ID] => 148 [IBLOCK_ID] => 2 [NAME] => Нагрузка, кг [ACTIVE] => Y [SORT] => 500 [CODE] => WEIGHT [DEFAULT_VALUE] => [PROPERTY_TYPE] => S [ROW_COUNT] => 1 [COL_COUNT] => 30 [LIST_TYPE] => L [MULTIPLE] => N [XML_ID] => [FILE_TYPE] => [MULTIPLE_CNT] => 5 [LINK_IBLOCK_ID] => 0 [WITH_DESCRIPTION] => N [SEARCHABLE] => N [FILTRABLE] => N [IS_REQUIRED] => N [VERSION] => 1 [USER_TYPE] => [USER_TYPE_SETTINGS] => Array ( ) [HINT] => [~NAME] => Нагрузка, кг [~DEFAULT_VALUE] => [VALUE_ENUM] => [VALUE_XML_ID] => [VALUE_SORT] => [VALUE] => [PROPERTY_VALUE_ID] => [DESCRIPTION] => [~DESCRIPTION] => [~VALUE] => ) [VID] => Array ( [ID] => 149 [IBLOCK_ID] => 2 [NAME] => Вид [ACTIVE] => Y [SORT] => 500 [CODE] => VID [DEFAULT_VALUE] => [PROPERTY_TYPE] => S [ROW_COUNT] => 1 [COL_COUNT] => 30 [LIST_TYPE] => L [MULTIPLE] => N [XML_ID] => [FILE_TYPE] => [MULTIPLE_CNT] => 5 [LINK_IBLOCK_ID] => 0 [WITH_DESCRIPTION] => N [SEARCHABLE] => N [FILTRABLE] => N [IS_REQUIRED] => N [VERSION] => 1 [USER_TYPE] => [USER_TYPE_SETTINGS] => Array ( ) [HINT] => [~NAME] => Вид [~DEFAULT_VALUE] => [VALUE_ENUM] => [VALUE_XML_ID] => [VALUE_SORT] => [VALUE] => [PROPERTY_VALUE_ID] => [DESCRIPTION] => [~DESCRIPTION] => [~VALUE] => ) [SERVICE_LIFE] => Array ( [ID] => 150 [IBLOCK_ID] => 2 [NAME] => Срок службы [ACTIVE] => Y [SORT] => 500 [CODE] => SERVICE_LIFE [DEFAULT_VALUE] => [PROPERTY_TYPE] => S [ROW_COUNT] => 1 [COL_COUNT] => 30 [LIST_TYPE] => L [MULTIPLE] => N [XML_ID] => [FILE_TYPE] => [MULTIPLE_CNT] => 5 [LINK_IBLOCK_ID] => 0 [WITH_DESCRIPTION] => N [SEARCHABLE] => N [FILTRABLE] => N [IS_REQUIRED] => N [VERSION] => 1 [USER_TYPE] => [USER_TYPE_SETTINGS] => Array ( ) [HINT] => [~NAME] => Срок службы [~DEFAULT_VALUE] => [VALUE_ENUM] => [VALUE_XML_ID] => [VALUE_SORT] => [VALUE] => [PROPERTY_VALUE_ID] => [DESCRIPTION] => [~DESCRIPTION] => [~VALUE] => ) [USING] => Array ( [ID] => 151 [IBLOCK_ID] => 2 [NAME] => Применение [ACTIVE] => Y [SORT] => 500 [CODE] => USING [DEFAULT_VALUE] => [PROPERTY_TYPE] => S [ROW_COUNT] => 1 [COL_COUNT] => 30 [LIST_TYPE] => L [MULTIPLE] => N [XML_ID] => [FILE_TYPE] => [MULTIPLE_CNT] => 5 [LINK_IBLOCK_ID] => 0 [WITH_DESCRIPTION] => N [SEARCHABLE] => N [FILTRABLE] => N [IS_REQUIRED] => N [VERSION] => 1 [USER_TYPE] => [USER_TYPE_SETTINGS] => Array ( ) [HINT] => [~NAME] => Применение [~DEFAULT_VALUE] => [VALUE_ENUM] => [VALUE_XML_ID] => [VALUE_SORT] => [VALUE] => [PROPERTY_VALUE_ID] => [DESCRIPTION] => [~DESCRIPTION] => [~VALUE] => ) [HEIGHT_ZAK] => Array ( [ID] => 152 [IBLOCK_ID] => 2 [NAME] => Высота закладного элемента фундамента [ACTIVE] => Y [SORT] => 500 [CODE] => HEIGHT_ZAK [DEFAULT_VALUE] => [PROPERTY_TYPE] => S [ROW_COUNT] => 1 [COL_COUNT] => 30 [LIST_TYPE] => L [MULTIPLE] => N [XML_ID] => [FILE_TYPE] => [MULTIPLE_CNT] => 5 [LINK_IBLOCK_ID] => 0 [WITH_DESCRIPTION] => N [SEARCHABLE] => N [FILTRABLE] => N [IS_REQUIRED] => N [VERSION] => 1 [USER_TYPE] => [USER_TYPE_SETTINGS] => Array ( ) [HINT] => [~NAME] => Высота закладного элемента фундамента [~DEFAULT_VALUE] => [VALUE_ENUM] => [VALUE_XML_ID] => [VALUE_SORT] => [VALUE] => [PROPERTY_VALUE_ID] => [DESCRIPTION] => [~DESCRIPTION] => [~VALUE] => ) [LENGTH_CONSOLE] => Array ( [ID] => 153 [IBLOCK_ID] => 2 [NAME] => Длина консоли [ACTIVE] => Y [SORT] => 500 [CODE] => LENGTH_CONSOLE [DEFAULT_VALUE] => [PROPERTY_TYPE] => S [ROW_COUNT] => 1 [COL_COUNT] => 30 [LIST_TYPE] => L [MULTIPLE] => N [XML_ID] => [FILE_TYPE] => [MULTIPLE_CNT] => 5 [LINK_IBLOCK_ID] => 0 [WITH_DESCRIPTION] => N [SEARCHABLE] => N [FILTRABLE] => N [IS_REQUIRED] => N [VERSION] => 1 [USER_TYPE] => [USER_TYPE_SETTINGS] => Array ( ) [HINT] => [~NAME] => Длина консоли [~DEFAULT_VALUE] => [VALUE_ENUM] => [VALUE_XML_ID] => [VALUE_SORT] => [VALUE] => [PROPERTY_VALUE_ID] => [DESCRIPTION] => [~DESCRIPTION] => [~VALUE] => ) [HEIGHT_TOP_SECTION] => Array ( [ID] => 154 [IBLOCK_ID] => 2 [NAME] => Высота верхней секции, мм [ACTIVE] => Y [SORT] => 500 [CODE] => HEIGHT_TOP_SECTION [DEFAULT_VALUE] => [PROPERTY_TYPE] => S [ROW_COUNT] => 1 [COL_COUNT] => 30 [LIST_TYPE] => L [MULTIPLE] => N [XML_ID] => [FILE_TYPE] => [MULTIPLE_CNT] => 5 [LINK_IBLOCK_ID] => 0 [WITH_DESCRIPTION] => N [SEARCHABLE] => N [FILTRABLE] => N [IS_REQUIRED] => N [VERSION] => 1 [USER_TYPE] => [USER_TYPE_SETTINGS] => Array ( ) [HINT] => [~NAME] => Высота верхней секции, мм [~DEFAULT_VALUE] => [VALUE_ENUM] => [VALUE_XML_ID] => [VALUE_SORT] => [VALUE] => [PROPERTY_VALUE_ID] => [DESCRIPTION] => [~DESCRIPTION] => [~VALUE] => ) [SIP] => Array ( [ID] => 156 [IBLOCK_ID] => 2 [NAME] => Возможность подвеса СИП [ACTIVE] => Y [SORT] => 500 [CODE] => SIP [DEFAULT_VALUE] => [PROPERTY_TYPE] => S [ROW_COUNT] => 1 [COL_COUNT] => 30 [LIST_TYPE] => L [MULTIPLE] => N [XML_ID] => [FILE_TYPE] => [MULTIPLE_CNT] => 5 [LINK_IBLOCK_ID] => 0 [WITH_DESCRIPTION] => N [SEARCHABLE] => N [FILTRABLE] => N [IS_REQUIRED] => N [VERSION] => 1 [USER_TYPE] => [USER_TYPE_SETTINGS] => Array ( ) [HINT] => [~NAME] => Возможность подвеса СИП [~DEFAULT_VALUE] => [VALUE_ENUM] => [VALUE_XML_ID] => [VALUE_SORT] => [VALUE] => [PROPERTY_VALUE_ID] => [DESCRIPTION] => [~DESCRIPTION] => [~VALUE] => ) [COUNT_GRANY] => Array ( [ID] => 157 [IBLOCK_ID] => 2 [NAME] => Количество граней [ACTIVE] => Y [SORT] => 500 [CODE] => COUNT_GRANY [DEFAULT_VALUE] => [PROPERTY_TYPE] => S [ROW_COUNT] => 1 [COL_COUNT] => 30 [LIST_TYPE] => L [MULTIPLE] => N [XML_ID] => [FILE_TYPE] => [MULTIPLE_CNT] => 5 [LINK_IBLOCK_ID] => 0 [WITH_DESCRIPTION] => N [SEARCHABLE] => N [FILTRABLE] => N [IS_REQUIRED] => N [VERSION] => 1 [USER_TYPE] => [USER_TYPE_SETTINGS] => Array ( ) [HINT] => [~NAME] => Количество граней [~DEFAULT_VALUE] => [VALUE_ENUM] => [VALUE_XML_ID] => [VALUE_SORT] => [VALUE] => [PROPERTY_VALUE_ID] => [DESCRIPTION] => [~DESCRIPTION] => [~VALUE] => ) [HEIGHT_BOTTOM_SECTION] => Array ( [ID] => 158 [IBLOCK_ID] => 2 [NAME] => Высота нижней секции, мм [ACTIVE] => Y [SORT] => 500 [CODE] => HEIGHT_BOTTOM_SECTION [DEFAULT_VALUE] => [PROPERTY_TYPE] => S [ROW_COUNT] => 1 [COL_COUNT] => 30 [LIST_TYPE] => L [MULTIPLE] => N [XML_ID] => [FILE_TYPE] => [MULTIPLE_CNT] => 5 [LINK_IBLOCK_ID] => 0 [WITH_DESCRIPTION] => N [SEARCHABLE] => N [FILTRABLE] => N [IS_REQUIRED] => N [VERSION] => 1 [USER_TYPE] => [USER_TYPE_SETTINGS] => Array ( ) [HINT] => [~NAME] => Высота нижней секции, мм [~DEFAULT_VALUE] => [VALUE_ENUM] => [VALUE_XML_ID] => [VALUE_SORT] => [VALUE] => [PROPERTY_VALUE_ID] => [DESCRIPTION] => [~DESCRIPTION] => [~VALUE] => ) [STEEL_THICKNESS] => Array ( [ID] => 160 [IBLOCK_ID] => 2 [NAME] => Толщина стали [ACTIVE] => Y [SORT] => 500 [CODE] => STEEL_THICKNESS [DEFAULT_VALUE] => [PROPERTY_TYPE] => S [ROW_COUNT] => 1 [COL_COUNT] => 30 [LIST_TYPE] => L [MULTIPLE] => N [XML_ID] => [FILE_TYPE] => [MULTIPLE_CNT] => 5 [LINK_IBLOCK_ID] => 0 [WITH_DESCRIPTION] => N [SEARCHABLE] => N [FILTRABLE] => N [IS_REQUIRED] => N [VERSION] => 1 [USER_TYPE] => [USER_TYPE_SETTINGS] => Array ( ) [HINT] => [~NAME] => Толщина стали [~DEFAULT_VALUE] => [VALUE_ENUM] => [VALUE_XML_ID] => [VALUE_SORT] => [VALUE] => [PROPERTY_VALUE_ID] => [DESCRIPTION] => [~DESCRIPTION] => [~VALUE] => ) [SIZE_OPOR_FLANEC] => Array ( [ID] => 161 [IBLOCK_ID] => 2 [NAME] => Размеры опорного фланца [ACTIVE] => Y [SORT] => 500 [CODE] => SIZE_OPOR_FLANEC [DEFAULT_VALUE] => [PROPERTY_TYPE] => S [ROW_COUNT] => 1 [COL_COUNT] => 30 [LIST_TYPE] => L [MULTIPLE] => N [XML_ID] => [FILE_TYPE] => [MULTIPLE_CNT] => 5 [LINK_IBLOCK_ID] => 0 [WITH_DESCRIPTION] => N [SEARCHABLE] => N [FILTRABLE] => N [IS_REQUIRED] => N [VERSION] => 1 [USER_TYPE] => [USER_TYPE_SETTINGS] => Array ( ) [HINT] => [~NAME] => Размеры опорного фланца [~DEFAULT_VALUE] => [VALUE_ENUM] => [VALUE_XML_ID] => [VALUE_SORT] => [VALUE] => [PROPERTY_VALUE_ID] => [DESCRIPTION] => [~DESCRIPTION] => [~VALUE] => ) [POKRASKA] => Array ( [ID] => 162 [IBLOCK_ID] => 2 [NAME] => Лакокрасочное покрытие [ACTIVE] => Y [SORT] => 500 [CODE] => POKRASKA [DEFAULT_VALUE] => [PROPERTY_TYPE] => S [ROW_COUNT] => 1 [COL_COUNT] => 30 [LIST_TYPE] => L [MULTIPLE] => N [XML_ID] => [FILE_TYPE] => [MULTIPLE_CNT] => 5 [LINK_IBLOCK_ID] => 0 [WITH_DESCRIPTION] => N [SEARCHABLE] => N [FILTRABLE] => N [IS_REQUIRED] => N [VERSION] => 1 [USER_TYPE] => [USER_TYPE_SETTINGS] => Array ( ) [HINT] => [~NAME] => Лакокрасочное покрытие [~DEFAULT_VALUE] => [VALUE_ENUM] => [VALUE_XML_ID] => [VALUE_SORT] => [VALUE] => [PROPERTY_VALUE_ID] => [DESCRIPTION] => [~DESCRIPTION] => [~VALUE] => ) [VES] => Array ( [ID] => 163 [IBLOCK_ID] => 2 [NAME] => Вес [ACTIVE] => Y [SORT] => 500 [CODE] => VES [DEFAULT_VALUE] => [PROPERTY_TYPE] => S [ROW_COUNT] => 1 [COL_COUNT] => 30 [LIST_TYPE] => L [MULTIPLE] => N [XML_ID] => [FILE_TYPE] => [MULTIPLE_CNT] => 5 [LINK_IBLOCK_ID] => 0 [WITH_DESCRIPTION] => N [SEARCHABLE] => N [FILTRABLE] => N [IS_REQUIRED] => N [VERSION] => 1 [USER_TYPE] => [USER_TYPE_SETTINGS] => Array ( ) [HINT] => [~NAME] => Вес [~DEFAULT_VALUE] => [VALUE_ENUM] => [VALUE_XML_ID] => [VALUE_SORT] => [VALUE] => [PROPERTY_VALUE_ID] => [DESCRIPTION] => [~DESCRIPTION] => [~VALUE] => ) [INSTALL_LYUCHKA] => Array ( [ID] => 164 [IBLOCK_ID] => 2 [NAME] => Возможность установки лючка [ACTIVE] => Y [SORT] => 500 [CODE] => INSTALL_LYUCHKA [DEFAULT_VALUE] => [PROPERTY_TYPE] => S [ROW_COUNT] => 1 [COL_COUNT] => 30 [LIST_TYPE] => L [MULTIPLE] => N [XML_ID] => [FILE_TYPE] => [MULTIPLE_CNT] => 5 [LINK_IBLOCK_ID] => 0 [WITH_DESCRIPTION] => N [SEARCHABLE] => N [FILTRABLE] => N [IS_REQUIRED] => N [VERSION] => 1 [USER_TYPE] => [USER_TYPE_SETTINGS] => Array ( ) [HINT] => [~NAME] => Возможность установки лючка [~DEFAULT_VALUE] => [VALUE_ENUM] => [VALUE_XML_ID] => [VALUE_SORT] => [VALUE] => [PROPERTY_VALUE_ID] => [DESCRIPTION] => [~DESCRIPTION] => [~VALUE] => ) [DIAMETER_FLANCA] => Array ( [ID] => 165 [IBLOCK_ID] => 2 [NAME] => Диаметр фланца, мм [ACTIVE] => Y [SORT] => 500 [CODE] => DIAMETER_FLANCA [DEFAULT_VALUE] => [PROPERTY_TYPE] => S [ROW_COUNT] => 1 [COL_COUNT] => 30 [LIST_TYPE] => L [MULTIPLE] => N [XML_ID] => [FILE_TYPE] => [MULTIPLE_CNT] => 5 [LINK_IBLOCK_ID] => 0 [WITH_DESCRIPTION] => N [SEARCHABLE] => N [FILTRABLE] => N [IS_REQUIRED] => N [VERSION] => 1 [USER_TYPE] => [USER_TYPE_SETTINGS] => Array ( ) [HINT] => [~NAME] => Диаметр фланца, мм [~DEFAULT_VALUE] => [VALUE_ENUM] => [VALUE_XML_ID] => [VALUE_SORT] => [VALUE] => [PROPERTY_VALUE_ID] => [DESCRIPTION] => [~DESCRIPTION] => [~VALUE] => ) [COUNT_LIGHT] => Array ( [ID] => 166 [IBLOCK_ID] => 2 [NAME] => Количество осветительных приборов, шт [ACTIVE] => Y [SORT] => 500 [CODE] => COUNT_LIGHT [DEFAULT_VALUE] => [PROPERTY_TYPE] => S [ROW_COUNT] => 1 [COL_COUNT] => 30 [LIST_TYPE] => L [MULTIPLE] => N [XML_ID] => [FILE_TYPE] => [MULTIPLE_CNT] => 5 [LINK_IBLOCK_ID] => 0 [WITH_DESCRIPTION] => N [SEARCHABLE] => N [FILTRABLE] => N [IS_REQUIRED] => N [VERSION] => 1 [USER_TYPE] => [USER_TYPE_SETTINGS] => Array ( ) [HINT] => [~NAME] => Количество осветительных приборов, шт [~DEFAULT_VALUE] => [VALUE_ENUM] => [VALUE_XML_ID] => [VALUE_SORT] => [VALUE] => [PROPERTY_VALUE_ID] => [DESCRIPTION] => [~DESCRIPTION] => [~VALUE] => ) [WEIGHT_TO_KRON] => Array ( [ID] => 167 [IBLOCK_ID] => 2 [NAME] => Высота до кронштейна, мм [ACTIVE] => Y [SORT] => 500 [CODE] => WEIGHT_TO_KRON [DEFAULT_VALUE] => [PROPERTY_TYPE] => S [ROW_COUNT] => 1 [COL_COUNT] => 30 [LIST_TYPE] => L [MULTIPLE] => N [XML_ID] => [FILE_TYPE] => [MULTIPLE_CNT] => 5 [LINK_IBLOCK_ID] => 0 [WITH_DESCRIPTION] => N [SEARCHABLE] => N [FILTRABLE] => N [IS_REQUIRED] => N [VERSION] => 1 [USER_TYPE] => [USER_TYPE_SETTINGS] => Array ( ) [HINT] => [~NAME] => Высота до кронштейна, мм [~DEFAULT_VALUE] => [VALUE_ENUM] => [VALUE_XML_ID] => [VALUE_SORT] => [VALUE] => [PROPERTY_VALUE_ID] => [DESCRIPTION] => [~DESCRIPTION] => [~VALUE] => ) [SIZE_FLANEC] => Array ( [ID] => 169 [IBLOCK_ID] => 2 [NAME] => Размер фланца [ACTIVE] => Y [SORT] => 500 [CODE] => SIZE_FLANEC [DEFAULT_VALUE] => [PROPERTY_TYPE] => S [ROW_COUNT] => 1 [COL_COUNT] => 30 [LIST_TYPE] => L [MULTIPLE] => N [XML_ID] => [FILE_TYPE] => [MULTIPLE_CNT] => 5 [LINK_IBLOCK_ID] => 0 [WITH_DESCRIPTION] => N [SEARCHABLE] => N [FILTRABLE] => N [IS_REQUIRED] => N [VERSION] => 1 [USER_TYPE] => [USER_TYPE_SETTINGS] => Array ( ) [HINT] => [~NAME] => Размер фланца [~DEFAULT_VALUE] => [VALUE_ENUM] => [VALUE_XML_ID] => [VALUE_SORT] => [VALUE] => [PROPERTY_VALUE_ID] => [DESCRIPTION] => [~DESCRIPTION] => [~VALUE] => ) [WEIGHT_MIDDLE_SECTION] => Array ( [ID] => 170 [IBLOCK_ID] => 2 [NAME] => Высота промежуточной секции, мм [ACTIVE] => Y [SORT] => 500 [CODE] => WEIGHT_MIDDLE_SECTION [DEFAULT_VALUE] => [PROPERTY_TYPE] => S [ROW_COUNT] => 1 [COL_COUNT] => 30 [LIST_TYPE] => L [MULTIPLE] => N [XML_ID] => [FILE_TYPE] => [MULTIPLE_CNT] => 5 [LINK_IBLOCK_ID] => 0 [WITH_DESCRIPTION] => N [SEARCHABLE] => N [FILTRABLE] => N [IS_REQUIRED] => N [VERSION] => 1 [USER_TYPE] => [USER_TYPE_SETTINGS] => Array ( ) [HINT] => [~NAME] => Высота промежуточной секции, мм [~DEFAULT_VALUE] => [VALUE_ENUM] => [VALUE_XML_ID] => [VALUE_SORT] => [VALUE] => [PROPERTY_VALUE_ID] => [DESCRIPTION] => [~DESCRIPTION] => [~VALUE] => ) [DEFEND_POKRYTIE] => Array ( [ID] => 171 [IBLOCK_ID] => 2 [NAME] => Защитное покрытие [ACTIVE] => Y [SORT] => 500 [CODE] => DEFEND_POKRYTIE [DEFAULT_VALUE] => [PROPERTY_TYPE] => S [ROW_COUNT] => 1 [COL_COUNT] => 30 [LIST_TYPE] => L [MULTIPLE] => N [XML_ID] => [FILE_TYPE] => [MULTIPLE_CNT] => 5 [LINK_IBLOCK_ID] => 0 [WITH_DESCRIPTION] => N [SEARCHABLE] => N [FILTRABLE] => N [IS_REQUIRED] => N [VERSION] => 1 [USER_TYPE] => [USER_TYPE_SETTINGS] => Array ( ) [HINT] => [~NAME] => Защитное покрытие [~DEFAULT_VALUE] => [VALUE_ENUM] => [VALUE_XML_ID] => [VALUE_SORT] => [VALUE] => [PROPERTY_VALUE_ID] => [DESCRIPTION] => [~DESCRIPTION] => [~VALUE] => ) [WIND_REGION] => Array ( [ID] => 172 [IBLOCK_ID] => 2 [NAME] => Ветровой район [ACTIVE] => Y [SORT] => 500 [CODE] => WIND_REGION [DEFAULT_VALUE] => [PROPERTY_TYPE] => S [ROW_COUNT] => 1 [COL_COUNT] => 30 [LIST_TYPE] => L [MULTIPLE] => N [XML_ID] => [FILE_TYPE] => [MULTIPLE_CNT] => 5 [LINK_IBLOCK_ID] => 0 [WITH_DESCRIPTION] => N [SEARCHABLE] => N [FILTRABLE] => N [IS_REQUIRED] => N [VERSION] => 1 [USER_TYPE] => [USER_TYPE_SETTINGS] => Array ( ) [HINT] => [~NAME] => Ветровой район [~DEFAULT_VALUE] => [VALUE_ENUM] => [VALUE_XML_ID] => [VALUE_SORT] => [VALUE] => [PROPERTY_VALUE_ID] => [DESCRIPTION] => [~DESCRIPTION] => [~VALUE] => ) [DIAMETER_OPOR_FLANCA] => Array ( [ID] => 173 [IBLOCK_ID] => 2 [NAME] => Диаметр опорного фланца, мм [ACTIVE] => Y [SORT] => 500 [CODE] => DIAMETER_OPOR_FLANCA [DEFAULT_VALUE] => [PROPERTY_TYPE] => S [ROW_COUNT] => 1 [COL_COUNT] => 30 [LIST_TYPE] => L [MULTIPLE] => N [XML_ID] => [FILE_TYPE] => [MULTIPLE_CNT] => 5 [LINK_IBLOCK_ID] => 0 [WITH_DESCRIPTION] => N [SEARCHABLE] => N [FILTRABLE] => N [IS_REQUIRED] => N [VERSION] => 1 [USER_TYPE] => [USER_TYPE_SETTINGS] => Array ( ) [HINT] => [~NAME] => Диаметр опорного фланца, мм [~DEFAULT_VALUE] => [VALUE_ENUM] => [VALUE_XML_ID] => [VALUE_SORT] => [VALUE] => [PROPERTY_VALUE_ID] => [DESCRIPTION] => [~DESCRIPTION] => [~VALUE] => ) [CENTER_DIST] => Array ( [ID] => 174 [IBLOCK_ID] => 2 [NAME] => Межцентровое расстояние, мм [ACTIVE] => Y [SORT] => 500 [CODE] => CENTER_DIST [DEFAULT_VALUE] => [PROPERTY_TYPE] => S [ROW_COUNT] => 1 [COL_COUNT] => 30 [LIST_TYPE] => L [MULTIPLE] => N [XML_ID] => [FILE_TYPE] => [MULTIPLE_CNT] => 5 [LINK_IBLOCK_ID] => 0 [WITH_DESCRIPTION] => N [SEARCHABLE] => N [FILTRABLE] => N [IS_REQUIRED] => N [VERSION] => 1 [USER_TYPE] => [USER_TYPE_SETTINGS] => Array ( ) [HINT] => [~NAME] => Межцентровое расстояние, мм [~DEFAULT_VALUE] => [VALUE_ENUM] => [VALUE_XML_ID] => [VALUE_SORT] => [VALUE] => [PROPERTY_VALUE_ID] => [DESCRIPTION] => [~DESCRIPTION] => [~VALUE] => ) [FLANEC_THICKNESS] => Array ( [ID] => 175 [IBLOCK_ID] => 2 [NAME] => Толщина фланца, мм [ACTIVE] => Y [SORT] => 500 [CODE] => FLANEC_THICKNESS [DEFAULT_VALUE] => [PROPERTY_TYPE] => S [ROW_COUNT] => 1 [COL_COUNT] => 30 [LIST_TYPE] => L [MULTIPLE] => N [XML_ID] => [FILE_TYPE] => [MULTIPLE_CNT] => 5 [LINK_IBLOCK_ID] => 0 [WITH_DESCRIPTION] => N [SEARCHABLE] => N [FILTRABLE] => N [IS_REQUIRED] => N [VERSION] => 1 [USER_TYPE] => [USER_TYPE_SETTINGS] => Array ( ) [HINT] => [~NAME] => Толщина фланца, мм [~DEFAULT_VALUE] => [VALUE_ENUM] => [VALUE_XML_ID] => [VALUE_SORT] => [VALUE] => [PROPERTY_VALUE_ID] => [DESCRIPTION] => [~DESCRIPTION] => [~VALUE] => ) [COUNT_HOLE] => Array ( [ID] => 176 [IBLOCK_ID] => 2 [NAME] => Количество отверстий крепления, шт [ACTIVE] => Y [SORT] => 500 [CODE] => COUNT_HOLE [DEFAULT_VALUE] => [PROPERTY_TYPE] => S [ROW_COUNT] => 1 [COL_COUNT] => 30 [LIST_TYPE] => L [MULTIPLE] => N [XML_ID] => [FILE_TYPE] => [MULTIPLE_CNT] => 5 [LINK_IBLOCK_ID] => 0 [WITH_DESCRIPTION] => N [SEARCHABLE] => N [FILTRABLE] => N [IS_REQUIRED] => N [VERSION] => 1 [USER_TYPE] => [USER_TYPE_SETTINGS] => Array ( ) [HINT] => [~NAME] => Количество отверстий крепления, шт [~DEFAULT_VALUE] => [VALUE_ENUM] => [VALUE_XML_ID] => [VALUE_SORT] => [VALUE] => [PROPERTY_VALUE_ID] => [DESCRIPTION] => [~DESCRIPTION] => [~VALUE] => ) [INSPECTION_WINDOW] => Array ( [ID] => 179 [IBLOCK_ID] => 2 [NAME] => Ревизионное окно, мм [ACTIVE] => Y [SORT] => 500 [CODE] => INSPECTION_WINDOW [DEFAULT_VALUE] => [PROPERTY_TYPE] => S [ROW_COUNT] => 1 [COL_COUNT] => 30 [LIST_TYPE] => L [MULTIPLE] => N [XML_ID] => [FILE_TYPE] => [MULTIPLE_CNT] => 5 [LINK_IBLOCK_ID] => 0 [WITH_DESCRIPTION] => N [SEARCHABLE] => N [FILTRABLE] => N [IS_REQUIRED] => N [VERSION] => 1 [USER_TYPE] => [USER_TYPE_SETTINGS] => Array ( ) [HINT] => [~NAME] => Ревизионное окно, мм [~DEFAULT_VALUE] => [VALUE_ENUM] => [VALUE_XML_ID] => [VALUE_SORT] => [VALUE] => [PROPERTY_VALUE_ID] => [DESCRIPTION] => [~DESCRIPTION] => [~VALUE] => ) [THREE_MODEL] => Array ( [ID] => 182 [IBLOCK_ID] => 2 [NAME] => 3D-модель [ACTIVE] => Y [SORT] => 500 [CODE] => THREE_MODEL [DEFAULT_VALUE] => [PROPERTY_TYPE] => F [ROW_COUNT] => 1 [COL_COUNT] => 30 [LIST_TYPE] => L [MULTIPLE] => N [XML_ID] => [FILE_TYPE] => [MULTIPLE_CNT] => 5 [LINK_IBLOCK_ID] => 0 [WITH_DESCRIPTION] => N [SEARCHABLE] => N [FILTRABLE] => N [IS_REQUIRED] => N [VERSION] => 1 [USER_TYPE] => [USER_TYPE_SETTINGS] => Array ( ) [HINT] => [~NAME] => 3D-модель [~DEFAULT_VALUE] => [VALUE_ENUM] => [VALUE_XML_ID] => [VALUE_SORT] => [VALUE] => [PROPERTY_VALUE_ID] => [DESCRIPTION] => [~DESCRIPTION] => [~VALUE] => ) [FAQ] => Array ( [ID] => 183 [IBLOCK_ID] => 2 [NAME] => FAQ [ACTIVE] => Y [SORT] => 500 [CODE] => FAQ [DEFAULT_VALUE] => Array ( [TYPE] => TEXT [TEXT] => ) [PROPERTY_TYPE] => S [ROW_COUNT] => 1 [COL_COUNT] => 30 [LIST_TYPE] => L [MULTIPLE] => N [XML_ID] => [FILE_TYPE] => [MULTIPLE_CNT] => 5 [LINK_IBLOCK_ID] => 0 [WITH_DESCRIPTION] => N [SEARCHABLE] => N [FILTRABLE] => N [IS_REQUIRED] => N [VERSION] => 1 [USER_TYPE] => HTML [USER_TYPE_SETTINGS] => Array ( [height] => 200 ) [HINT] => [~NAME] => FAQ [~DEFAULT_VALUE] => Array ( [TYPE] => TEXT [TEXT] => ) [VALUE_ENUM] => [VALUE_XML_ID] => [VALUE_SORT] => [VALUE] => [PROPERTY_VALUE_ID] => [DESCRIPTION] => [~DESCRIPTION] => [~VALUE] => ) ) [DISPLAY_PROPERTIES] => Array ( [ITEM_PRICE] => Array ( [ID] => 22 [IBLOCK_ID] => 2 [NAME] => Цена [ACTIVE] => Y [SORT] => 3 [CODE] => ITEM_PRICE [DEFAULT_VALUE] => [PROPERTY_TYPE] => L [ROW_COUNT] => 1 [COL_COUNT] => 30 [LIST_TYPE] => L [MULTIPLE] => N [XML_ID] => 22 [FILE_TYPE] => [MULTIPLE_CNT] => 5 [LINK_IBLOCK_ID] => 0 [WITH_DESCRIPTION] => N [SEARCHABLE] => N [FILTRABLE] => N [IS_REQUIRED] => Y [VERSION] => 1 [USER_TYPE] => [USER_TYPE_SETTINGS] => Array ( ) [HINT] => [~NAME] => Цена [~DEFAULT_VALUE] => [VALUE_ENUM] => По запросу [VALUE_XML_ID] => on-request [VALUE_SORT] => 1 [VALUE] => По запросу [PROPERTY_VALUE_ID] => 6825315 [VALUE_ENUM_ID] => 9 [DESCRIPTION] => [~VALUE] => По запросу [~DESCRIPTION] => [DISPLAY_VALUE] => По запросу ) [ITEM_CHARACTERISTICS] => Array ( [ID] => 28 [IBLOCK_ID] => 2 [NAME] => Характеристики [ACTIVE] => Y [SORT] => 6 [CODE] => ITEM_CHARACTERISTICS [DEFAULT_VALUE] => [PROPERTY_TYPE] => S [ROW_COUNT] => 1 [COL_COUNT] => 20 [LIST_TYPE] => L [MULTIPLE] => Y [XML_ID] => 28 [FILE_TYPE] => [MULTIPLE_CNT] => 1 [LINK_IBLOCK_ID] => 0 [WITH_DESCRIPTION] => Y [SEARCHABLE] => N [FILTRABLE] => N [IS_REQUIRED] => N [VERSION] => 1 [USER_TYPE] => [USER_TYPE_SETTINGS] => Array ( ) [HINT] => [~NAME] => Характеристики [~DEFAULT_VALUE] => [VALUE_ENUM] => [VALUE_XML_ID] => [VALUE_SORT] => [VALUE] => Array ( [0] => прямостоечная [1] => граненая [2] => 23700 [3] => 13700 [4] => 720 [5] => 200 [6] => одностоечная свободностоящая, с тросовой консолью для одного грозотроса [7] => промежуточная [8] => Горячее цинкование [9] => Порошковое / полимерное окрашивание [10] => 30 лет ) [PROPERTY_VALUE_ID] => Array ( [0] => 6825316 [1] => 6825317 [2] => 6825318 [3] => 6825319 [4] => 6825320 [5] => 6825321 [6] => 6825322 [7] => 6825323 [8] => 6825324 [9] => 6825325 [10] => 6825326 ) [DESCRIPTION] => Array ( [0] => Способ установки [1] => Способ производства [2] => Высота, мм [3] => Высота до нижней траверсы, мм [4] => Диаметр нижний, мм [5] => Диаметр верхний, мм [6] => Конструкция [7] => Назначение [8] => Защитное покрытие [9] => Лакокрасочное покрытие [10] => Срок службы ) [~VALUE] => Array ( [0] => прямостоечная [1] => граненая [2] => 23700 [3] => 13700 [4] => 720 [5] => 200 [6] => одностоечная свободностоящая, с тросовой консолью для одного грозотроса [7] => промежуточная [8] => Горячее цинкование [9] => Порошковое / полимерное окрашивание [10] => 30 лет ) [~DESCRIPTION] => Array ( [0] => Способ установки [1] => Способ производства [2] => Высота, мм [3] => Высота до нижней траверсы, мм [4] => Диаметр нижний, мм [5] => Диаметр верхний, мм [6] => Конструкция [7] => Назначение [8] => Защитное покрытие [9] => Лакокрасочное покрытие [10] => Срок службы ) [DISPLAY_VALUE] => Array ( [0] => прямостоечная [1] => граненая [2] => 23700 [3] => 13700 [4] => 720 [5] => 200 [6] => одностоечная свободностоящая, с тросовой консолью для одного грозотроса [7] => промежуточная [8] => Горячее цинкование [9] => Порошковое / полимерное окрашивание [10] => 30 лет ) ) ) [PRODUCT_PROPERTIES] => Array ( ) [PRODUCT_PROPERTIES_FILL] => Array ( ) [OFFERS] => Array ( ) [OFFER_ID_SELECTED] => 0 [CHECK_QUANTITY] => [ITEM_PRICE_MODE] => [ITEM_PRICES] => Array ( ) [ITEM_QUANTITY_RANGES] => Array ( ) [ITEM_MEASURE_RATIOS] => Array ( [2938] => Array ( [ID] => 2938 [RATIO] => 1 [IS_DEFAULT] => Y [PRODUCT_ID] => 15358 ) ) [ITEM_MEASURE] => Array ( [ID] => 5 [TITLE] => шт [~TITLE] => шт ) [ITEM_MEASURE_RATIO_SELECTED] => 2938 [ITEM_QUANTITY_RANGE_SELECTED] => [ITEM_PRICE_SELECTED] => [EDIT_LINK] => [DELETE_LINK] => [SECTION] => Array ( [PATH] => Array ( ) ) [CAN_BUY] => )
В наличии
Тип: ВЛ 110 кВ по шифру 22.0099
Класс напряжения, кВ: 110
Конструкция: одноцепная
Цена по запросу
Array
(
    [ID] => 15354
    [~ID] => 15354
    [IBLOCK_ID] => 2
    [~IBLOCK_ID] => 2
    [CODE] => pm110-1
    [~CODE] => pm110-1
    [XML_ID] => 15354
    [~XML_ID] => 15354
    [NAME] => Многогранная опора ПМ110-1
    [~NAME] => Многогранная опора ПМ110-1
    [ACTIVE] => Y
    [~ACTIVE] => Y
    [DATE_ACTIVE_FROM] => 
    [~DATE_ACTIVE_FROM] => 
    [DATE_ACTIVE_TO] => 
    [~DATE_ACTIVE_TO] => 
    [SORT] => 0
    [~SORT] => 0
    [PREVIEW_TEXT] => 
    [~PREVIEW_TEXT] => 
    [PREVIEW_TEXT_TYPE] => text
    [~PREVIEW_TEXT_TYPE] => text
    [DETAIL_TEXT] => 

Промежуточная многогранная опора ПМ110-1 является типовой конструкцией для воздушных линий электропередачи напряжением 110 кВ по проекту 22.0099. Это одностоечная свободностоящая опора общей высотой 25 метров, предназначенная для поддержания проводов и одного грозотроса на прямых участках трассы. Стойка имеет коническую граненую форму: нижний диаметр составляет 750 миллиметров, верхний — 200 миллиметров. Высота до нижней траверсы равна 17,2 метра. Сборка осуществляется по телескопической схеме соединения секций. Опора изготавливается из углеродистой стали марки С245, рассчитанной на эксплуатацию при температуре до –40 °С. 

Установка опоры производится методом погружения ее основания в подготовленный котлован с последующей обратной засыпкой и уплотнением грунта. Телескопическая конструкция облегчает транспортировку и сборку на месте. Для обеспечения долговечности в условиях постоянного контакта с грунтом и атмосферой вся металлоконструкция защищена горячим цинкованием по ГОСТ 9.307-2021.

[~DETAIL_TEXT] =>

Промежуточная многогранная опора ПМ110-1 является типовой конструкцией для воздушных линий электропередачи напряжением 110 кВ по проекту 22.0099. Это одностоечная свободностоящая опора общей высотой 25 метров, предназначенная для поддержания проводов и одного грозотроса на прямых участках трассы. Стойка имеет коническую граненую форму: нижний диаметр составляет 750 миллиметров, верхний — 200 миллиметров. Высота до нижней траверсы равна 17,2 метра. Сборка осуществляется по телескопической схеме соединения секций. Опора изготавливается из углеродистой стали марки С245, рассчитанной на эксплуатацию при температуре до –40 °С. 

Установка опоры производится методом погружения ее основания в подготовленный котлован с последующей обратной засыпкой и уплотнением грунта. Телескопическая конструкция облегчает транспортировку и сборку на месте. Для обеспечения долговечности в условиях постоянного контакта с грунтом и атмосферой вся металлоконструкция защищена горячим цинкованием по ГОСТ 9.307-2021.

[DETAIL_TEXT_TYPE] => html [~DETAIL_TEXT_TYPE] => html [DATE_CREATE] => 07.11.2023 15:10:01 [~DATE_CREATE] => 07.11.2023 15:10:01 [CREATED_BY] => 1 [~CREATED_BY] => 1 [TAGS] => [~TAGS] => [TIMESTAMP_X] => 15.12.2025 12:41:24 [~TIMESTAMP_X] => 15.12.2025 12:41:24 [MODIFIED_BY] => 1 [~MODIFIED_BY] => 1 [IBLOCK_SECTION_ID] => 2756 [~IBLOCK_SECTION_ID] => 2953 [DETAIL_PAGE_URL] => /product/pm110-1/ [~DETAIL_PAGE_URL] => /product/pm110-1/ [DETAIL_PICTURE] => [~DETAIL_PICTURE] => [PREVIEW_PICTURE] => Array ( [ID] => 35243 [TIMESTAMP_X] => 15.12.2025 12:41:24 [MODULE_ID] => iblock [HEIGHT] => 1000 [WIDTH] => 1000 [FILE_SIZE] => 156427 [CONTENT_TYPE] => image/jpeg [SUBDIR] => iblock/a6a/5v4db2qz0yxw2ogzhk8rsvh9ih60ipaa [FILE_NAME] => catalog_file_2075_l.jpg [ORIGINAL_NAME] => catalog-file-2075-l.jpg [DESCRIPTION] => [HANDLER_ID] => [EXTERNAL_ID] => f3868a95473eceae23e3c57e7389cf26 [VERSION_ORIGINAL_ID] => [META] => [SRC] => /upload/dev2fun.imagecompress/webp/iblock/a6a/5v4db2qz0yxw2ogzhk8rsvh9ih60ipaa/catalog_file_2075_l.webp [UNSAFE_SRC] => /upload/dev2fun.imagecompress/webp/iblock/a6a/5v4db2qz0yxw2ogzhk8rsvh9ih60ipaa/catalog_file_2075_l.webp [SAFE_SRC] => /upload/dev2fun.imagecompress/webp/iblock/a6a/5v4db2qz0yxw2ogzhk8rsvh9ih60ipaa/catalog_file_2075_l.webp [ALT] => Многогранная опора ПМ110-1 [TITLE] => Многогранная опора ПМ110-1 ) [~PREVIEW_PICTURE] => 35243 [LANG_DIR] => / [~LANG_DIR] => / [EXTERNAL_ID] => 15354 [~EXTERNAL_ID] => 15354 [IBLOCK_TYPE_ID] => catalog [~IBLOCK_TYPE_ID] => catalog [IBLOCK_CODE] => metalstructures [~IBLOCK_CODE] => metalstructures [IBLOCK_EXTERNAL_ID] => clothes [~IBLOCK_EXTERNAL_ID] => clothes [LID] => s1 [~LID] => s1 [IPROPERTY_VALUES] => Array ( [ELEMENT_META_TITLE] => Многогранная опора ПМ110-1 для высоковольтных линий 110 кВ купить в {{rp}} на сайте производителя НПО Легион [ELEMENT_META_DESCRIPTION] => Производство стальных многогранных опор ПМ110-1 для высоковольтных линий 110 кВ по шифру 22.0099 в {{rp}}. Заказать многогранные опоры ЛЭП у производителя НПО Легион. Наличие товара на складе. Звоните ☎ {{subdomain_tel}} [ELEMENT_META_KEYWORDS] => Многоранные опоры ПМ110-1 ЛЭП производство продажа купить многогранные ВЛ 110кВ для линий электропередач шифру 22.0099 [SECTION_META_TITLE] => Многогранные опоры ВЛ 110кВ по шифру 22.0099 купить в {{rp}} на сайте производителя НПО Легион [SECTION_META_DESCRIPTION] => Производство многогранных опор ВЛ 110кВ. Купить напрямую у производителя в {{rp}}. Собственное производство. Наличие товара на складе. Звоните ☎ {{subdomain_tel}} [SECTION_META_KEYWORDS] => Многоранные опоры ЛЭП производство продажа купить многогранные ВЛ 110кВ для линий электропередач [ELEMENT_DETAIL_PICTURE_FILE_NAME] => [ELEMENT_PREVIEW_PICTURE_FILE_NAME] => [SECTION_DETAIL_PICTURE_FILE_NAME] => [SECTION_PICTURE_FILE_NAME] => [SECTION_PAGE_TITLE] => Многогранная опора ПМ110-1 [ELEMENT_PAGE_TITLE] => Многогранная опора ПМ110-1 ) [PRODUCT] => Array ( [TYPE] => 1 [AVAILABLE] => Y [BUNDLE] => N [QUANTITY] => 10 [QUANTITY_TRACE] => N [CAN_BUY_ZERO] => Y [MEASURE] => 5 [SUBSCRIBE] => Y [VAT_ID] => 0 [VAT_RATE] => 0 [VAT_INCLUDED] => N [WEIGHT] => 0 [WIDTH] => 0 [LENGTH] => 0 [HEIGHT] => 0 [PAYMENT_TYPE] => S [RECUR_SCHEME_TYPE] => D [RECUR_SCHEME_LENGTH] => 0 [TRIAL_PRICE_ID] => 0 [USE_OFFERS] => ) [~CATALOG_TYPE] => 1 [CATALOG_TYPE] => 1 [~CATALOG_QUANTITY] => 10 [CATALOG_QUANTITY] => 10 [~CATALOG_QUANTITY_TRACE] => N [CATALOG_QUANTITY_TRACE] => N [~CATALOG_CAN_BUY_ZERO] => Y [CATALOG_CAN_BUY_ZERO] => Y [~CATALOG_SUBSCRIBE] => Y [CATALOG_SUBSCRIBE] => Y [PROPERTIES] => Array ( [ITEM_DELIVERY] => Array ( [ID] => 20 [IBLOCK_ID] => 2 [NAME] => Доставка [ACTIVE] => Y [SORT] => 1 [CODE] => ITEM_DELIVERY [DEFAULT_VALUE] => [PROPERTY_TYPE] => L [ROW_COUNT] => 1 [COL_COUNT] => 30 [LIST_TYPE] => L [MULTIPLE] => N [XML_ID] => 20 [FILE_TYPE] => [MULTIPLE_CNT] => 5 [LINK_IBLOCK_ID] => 0 [WITH_DESCRIPTION] => N [SEARCHABLE] => N [FILTRABLE] => N [IS_REQUIRED] => Y [VERSION] => 1 [USER_TYPE] => [USER_TYPE_SETTINGS] => Array ( ) [HINT] => [~NAME] => Доставка [~DEFAULT_VALUE] => [VALUE_ENUM] => По России и СНГ [VALUE_XML_ID] => ru-sng [VALUE_SORT] => 1 [VALUE] => По России и СНГ [PROPERTY_VALUE_ID] => 6825491 [VALUE_ENUM_ID] => 7 [DESCRIPTION] => [~VALUE] => По России и СНГ [~DESCRIPTION] => ) [ITEM_PAYMENT] => Array ( [ID] => 21 [IBLOCK_ID] => 2 [NAME] => Оплата [ACTIVE] => Y [SORT] => 2 [CODE] => ITEM_PAYMENT [DEFAULT_VALUE] => [PROPERTY_TYPE] => L [ROW_COUNT] => 1 [COL_COUNT] => 30 [LIST_TYPE] => L [MULTIPLE] => N [XML_ID] => 21 [FILE_TYPE] => [MULTIPLE_CNT] => 5 [LINK_IBLOCK_ID] => 0 [WITH_DESCRIPTION] => N [SEARCHABLE] => N [FILTRABLE] => N [IS_REQUIRED] => Y [VERSION] => 1 [USER_TYPE] => [USER_TYPE_SETTINGS] => Array ( ) [HINT] => [~NAME] => Оплата [~DEFAULT_VALUE] => [VALUE_ENUM] => Безналичный расчет [VALUE_XML_ID] => payment-bank [VALUE_SORT] => 1 [VALUE] => Безналичный расчет [PROPERTY_VALUE_ID] => 6825492 [VALUE_ENUM_ID] => 8 [DESCRIPTION] => [~VALUE] => Безналичный расчет [~DESCRIPTION] => ) [ITEM_PRICE] => Array ( [ID] => 22 [IBLOCK_ID] => 2 [NAME] => Цена [ACTIVE] => Y [SORT] => 3 [CODE] => ITEM_PRICE [DEFAULT_VALUE] => [PROPERTY_TYPE] => L [ROW_COUNT] => 1 [COL_COUNT] => 30 [LIST_TYPE] => L [MULTIPLE] => N [XML_ID] => 22 [FILE_TYPE] => [MULTIPLE_CNT] => 5 [LINK_IBLOCK_ID] => 0 [WITH_DESCRIPTION] => N [SEARCHABLE] => N [FILTRABLE] => N [IS_REQUIRED] => Y [VERSION] => 1 [USER_TYPE] => [USER_TYPE_SETTINGS] => Array ( ) [HINT] => [~NAME] => Цена [~DEFAULT_VALUE] => [VALUE_ENUM] => По запросу [VALUE_XML_ID] => on-request [VALUE_SORT] => 1 [VALUE] => По запросу [PROPERTY_VALUE_ID] => 6825493 [VALUE_ENUM_ID] => 9 [DESCRIPTION] => [~VALUE] => По запросу [~DESCRIPTION] => ) [ITEM_IMAGES] => Array ( [ID] => 23 [IBLOCK_ID] => 2 [NAME] => Изображения [ACTIVE] => Y [SORT] => 4 [CODE] => ITEM_IMAGES [DEFAULT_VALUE] => [PROPERTY_TYPE] => F [ROW_COUNT] => 1 [COL_COUNT] => 30 [LIST_TYPE] => L [MULTIPLE] => Y [XML_ID] => 23 [FILE_TYPE] => [MULTIPLE_CNT] => 5 [LINK_IBLOCK_ID] => 0 [WITH_DESCRIPTION] => N [SEARCHABLE] => N [FILTRABLE] => N [IS_REQUIRED] => N [VERSION] => 1 [USER_TYPE] => [USER_TYPE_SETTINGS] => Array ( ) [HINT] => [~NAME] => Изображения [~DEFAULT_VALUE] => [VALUE_ENUM] => [VALUE_XML_ID] => [VALUE_SORT] => [VALUE] => Array ( [0] => 35244 [1] => 35245 [2] => 35246 [3] => 35247 ) [PROPERTY_VALUE_ID] => Array ( [0] => 5932888 [1] => 5932889 [2] => 5932890 [3] => 5932891 ) [DESCRIPTION] => Array ( [0] => [1] => [2] => [3] => ) [~VALUE] => Array ( [0] => 35244 [1] => 35245 [2] => 35246 [3] => 35247 ) [~DESCRIPTION] => Array ( [0] => [1] => [2] => [3] => ) ) [ITEM_PROPERTIES] => Array ( [ID] => 24 [IBLOCK_ID] => 2 [NAME] => Свойства [ACTIVE] => Y [SORT] => 5 [CODE] => ITEM_PROPERTIES [DEFAULT_VALUE] => [PROPERTY_TYPE] => E [ROW_COUNT] => 1 [COL_COUNT] => 30 [LIST_TYPE] => L [MULTIPLE] => Y [XML_ID] => 24 [FILE_TYPE] => [MULTIPLE_CNT] => 1 [LINK_IBLOCK_ID] => 3 [WITH_DESCRIPTION] => N [SEARCHABLE] => N [FILTRABLE] => N [IS_REQUIRED] => N [VERSION] => 1 [USER_TYPE] => [USER_TYPE_SETTINGS] => Array ( ) [HINT] => [~NAME] => Свойства [~DEFAULT_VALUE] => [VALUE_ENUM] => [VALUE_XML_ID] => [VALUE_SORT] => [VALUE] => [PROPERTY_VALUE_ID] => [DESCRIPTION] => [~DESCRIPTION] => [~VALUE] => ) [ITEM_CHARACTERISTICS] => Array ( [ID] => 28 [IBLOCK_ID] => 2 [NAME] => Характеристики [ACTIVE] => Y [SORT] => 6 [CODE] => ITEM_CHARACTERISTICS [DEFAULT_VALUE] => [PROPERTY_TYPE] => S [ROW_COUNT] => 1 [COL_COUNT] => 20 [LIST_TYPE] => L [MULTIPLE] => Y [XML_ID] => 28 [FILE_TYPE] => [MULTIPLE_CNT] => 1 [LINK_IBLOCK_ID] => 0 [WITH_DESCRIPTION] => Y [SEARCHABLE] => N [FILTRABLE] => N [IS_REQUIRED] => N [VERSION] => 1 [USER_TYPE] => [USER_TYPE_SETTINGS] => Array ( ) [HINT] => [~NAME] => Характеристики [~DEFAULT_VALUE] => [VALUE_ENUM] => [VALUE_XML_ID] => [VALUE_SORT] => [VALUE] => Array ( [0] => ВЛ 110 кВ по шифру 22.0099 [1] => 110 [2] => одноцепная [3] => 750 [4] => 200 [5] => 25000 [6] => 17200 [7] => горячее цинкование [8] => Порошковое / полимерное окрашивание [9] => 30 лет [10] => промежуточная ) [PROPERTY_VALUE_ID] => Array ( [0] => 6820916 [1] => 6820917 [2] => 6820918 [3] => 6820919 [4] => 6820920 [5] => 6820921 [6] => 6820922 [7] => 6820923 [8] => 6820924 [9] => 6820925 [10] => 6825494 ) [DESCRIPTION] => Array ( [0] => Тип [1] => Класс напряжения, кВ [2] => Конструкция [3] => Диаметр нижний, мм [4] => Диаметр верхний, мм [5] => Высота, мм [6] => Высота до нижней траверсы, мм [7] => Защитное покрытие [8] => Лакокрасочное покрытие [9] => Срок службы [10] => Назначение ) [~VALUE] => Array ( [0] => ВЛ 110 кВ по шифру 22.0099 [1] => 110 [2] => одноцепная [3] => 750 [4] => 200 [5] => 25000 [6] => 17200 [7] => горячее цинкование [8] => Порошковое / полимерное окрашивание [9] => 30 лет [10] => промежуточная ) [~DESCRIPTION] => Array ( [0] => Тип [1] => Класс напряжения, кВ [2] => Конструкция [3] => Диаметр нижний, мм [4] => Диаметр верхний, мм [5] => Высота, мм [6] => Высота до нижней траверсы, мм [7] => Защитное покрытие [8] => Лакокрасочное покрытие [9] => Срок службы [10] => Назначение ) ) [ITEM_FILTER] => Array ( [ID] => 40 [IBLOCK_ID] => 2 [NAME] => Фильтр [ACTIVE] => Y [SORT] => 7 [CODE] => ITEM_FILTER [DEFAULT_VALUE] => [PROPERTY_TYPE] => S [ROW_COUNT] => 1 [COL_COUNT] => 30 [LIST_TYPE] => L [MULTIPLE] => N [XML_ID] => 40 [FILE_TYPE] => [MULTIPLE_CNT] => 5 [LINK_IBLOCK_ID] => 0 [WITH_DESCRIPTION] => N [SEARCHABLE] => N [FILTRABLE] => N [IS_REQUIRED] => N [VERSION] => 1 [USER_TYPE] => [USER_TYPE_SETTINGS] => Array ( ) [HINT] => [~NAME] => Фильтр [~DEFAULT_VALUE] => [VALUE_ENUM] => [VALUE_XML_ID] => [VALUE_SORT] => [VALUE] => [PROPERTY_VALUE_ID] => [DESCRIPTION] => [~DESCRIPTION] => [~VALUE] => ) [ITEM_TECH_CH] => Array ( [ID] => 29 [IBLOCK_ID] => 2 [NAME] => Технические характеристики [ACTIVE] => Y [SORT] => 8 [CODE] => ITEM_TECH_CH [DEFAULT_VALUE] => Array ( [TYPE] => HTML [TEXT] => ) [PROPERTY_TYPE] => S [ROW_COUNT] => 1 [COL_COUNT] => 30 [LIST_TYPE] => L [MULTIPLE] => N [XML_ID] => 29 [FILE_TYPE] => [MULTIPLE_CNT] => 5 [LINK_IBLOCK_ID] => 0 [WITH_DESCRIPTION] => N [SEARCHABLE] => N [FILTRABLE] => N [IS_REQUIRED] => N [VERSION] => 1 [USER_TYPE] => HTML [USER_TYPE_SETTINGS] => Array ( [height] => 200 ) [HINT] => [~NAME] => Технические характеристики [~DEFAULT_VALUE] => Array ( [TYPE] => HTML [TEXT] => ) [VALUE_ENUM] => [VALUE_XML_ID] => [VALUE_SORT] => [VALUE] => Array ( [TEXT] => <p style="text-align: justify;"> Опора ПМ110-1 применяется исключительно в качестве промежуточной на прямых участках одноцепных воздушных линий электропередачи 110 кВ. Она не рассчитана на восприятие значительных нагрузок, направленных вдоль трассы (анкерных усилий). Конструкция предназначена для монтажа в грунт методом погружения низа стойки в пробуренный котлован с последующей засыпкой и трамбовкой. Схема подвески проводов — со смешанным расположением фаз, что является стандартным решением для данного класса ЛЭП. </p> [TYPE] => HTML ) [PROPERTY_VALUE_ID] => 6820926 [DESCRIPTION] => [~VALUE] => Array ( [TEXT] =>

Опора ПМ110-1 применяется исключительно в качестве промежуточной на прямых участках одноцепных воздушных линий электропередачи 110 кВ. Она не рассчитана на восприятие значительных нагрузок, направленных вдоль трассы (анкерных усилий). Конструкция предназначена для монтажа в грунт методом погружения низа стойки в пробуренный котлован с последующей засыпкой и трамбовкой. Схема подвески проводов — со смешанным расположением фаз, что является стандартным решением для данного класса ЛЭП.

[TYPE] => HTML ) [~DESCRIPTION] => ) [ITEM_ADV_DESCR] => Array ( [ID] => 30 [IBLOCK_ID] => 2 [NAME] => Преимущества (описание) [ACTIVE] => Y [SORT] => 9 [CODE] => ITEM_ADV_DESCR [DEFAULT_VALUE] => Array ( [TYPE] => HTML [TEXT] => ) [PROPERTY_TYPE] => S [ROW_COUNT] => 1 [COL_COUNT] => 30 [LIST_TYPE] => L [MULTIPLE] => N [XML_ID] => 30 [FILE_TYPE] => [MULTIPLE_CNT] => 5 [LINK_IBLOCK_ID] => 0 [WITH_DESCRIPTION] => N [SEARCHABLE] => N [FILTRABLE] => N [IS_REQUIRED] => N [VERSION] => 1 [USER_TYPE] => HTML [USER_TYPE_SETTINGS] => Array ( [height] => 100 ) [HINT] => [~NAME] => Преимущества (описание) [~DEFAULT_VALUE] => Array ( [TYPE] => HTML [TEXT] => ) [VALUE_ENUM] => [VALUE_XML_ID] => [VALUE_SORT] => [VALUE] => Array ( [TEXT] => <p style="text-align: justify;"> Одностоечная свободностоящая конструкция обеспечивает необходимую жесткость и изоляционное расстояние для проводов на прямых участках трассы при минимальном весе и материалоемкости. Телескопическое соединение секций существенно упрощает логистику, монтаж и сборку опоры на объекте. Горячее цинкование обеспечивает максимальную коррозионную стойкость как надземной части, так и участка, погруженного в грунт. Типовое исполнение в соответствии с проектом 22.0099 гарантирует полную совместимость с остальными элементами ВЛ 110 кВ (траверсами, изоляторами) и упрощает проектирование. Коническая форма стойки оптимально распределяет механические нагрузки от веса проводов и ветрового давления. </p> [TYPE] => HTML ) [PROPERTY_VALUE_ID] => 6820927 [DESCRIPTION] => [~VALUE] => Array ( [TEXT] =>

Одностоечная свободностоящая конструкция обеспечивает необходимую жесткость и изоляционное расстояние для проводов на прямых участках трассы при минимальном весе и материалоемкости. Телескопическое соединение секций существенно упрощает логистику, монтаж и сборку опоры на объекте. Горячее цинкование обеспечивает максимальную коррозионную стойкость как надземной части, так и участка, погруженного в грунт. Типовое исполнение в соответствии с проектом 22.0099 гарантирует полную совместимость с остальными элементами ВЛ 110 кВ (траверсами, изоляторами) и упрощает проектирование. Коническая форма стойки оптимально распределяет механические нагрузки от веса проводов и ветрового давления.

[TYPE] => HTML ) [~DESCRIPTION] => ) [ITEM_ADV] => Array ( [ID] => 31 [IBLOCK_ID] => 2 [NAME] => Преимущества [ACTIVE] => Y [SORT] => 10 [CODE] => ITEM_ADV [DEFAULT_VALUE] => [PROPERTY_TYPE] => E [ROW_COUNT] => 1 [COL_COUNT] => 30 [LIST_TYPE] => L [MULTIPLE] => Y [XML_ID] => 31 [FILE_TYPE] => [MULTIPLE_CNT] => 1 [LINK_IBLOCK_ID] => 5 [WITH_DESCRIPTION] => N [SEARCHABLE] => N [FILTRABLE] => N [IS_REQUIRED] => N [VERSION] => 1 [USER_TYPE] => [USER_TYPE_SETTINGS] => Array ( ) [HINT] => [~NAME] => Преимущества [~DEFAULT_VALUE] => [VALUE_ENUM] => [VALUE_XML_ID] => [VALUE_SORT] => [VALUE] => [PROPERTY_VALUE_ID] => [DESCRIPTION] => [~DESCRIPTION] => [~VALUE] => ) [ITEM_BUY] => Array ( [ID] => 32 [IBLOCK_ID] => 2 [NAME] => Купить [ACTIVE] => Y [SORT] => 11 [CODE] => ITEM_BUY [DEFAULT_VALUE] => Array ( [TEXT] => [TYPE] => HTML ) [PROPERTY_TYPE] => S [ROW_COUNT] => 1 [COL_COUNT] => 30 [LIST_TYPE] => L [MULTIPLE] => N [XML_ID] => 32 [FILE_TYPE] => [MULTIPLE_CNT] => 5 [LINK_IBLOCK_ID] => 0 [WITH_DESCRIPTION] => N [SEARCHABLE] => N [FILTRABLE] => N [IS_REQUIRED] => N [VERSION] => 1 [USER_TYPE] => HTML [USER_TYPE_SETTINGS] => Array ( [height] => 200 ) [HINT] => [~NAME] => Купить [~DEFAULT_VALUE] => Array ( [TEXT] => [TYPE] => HTML ) [VALUE_ENUM] => [VALUE_XML_ID] => [VALUE_SORT] => [VALUE] => Array ( [TEXT] => <p style="text-align: justify;"> Для заказа промежуточных многогранных опор ПМ110-1 по типовому проекту 22.0099 обратитесь в отдел продаж НПО «Легион». Наши специалисты предоставят полный комплект чертежей и спецификаций, подтвердят соответствие требованиям для вашего участка трассы и рассчитают стоимость партии. Мы обеспечим изготовление и поставку опор в требуемом количестве. Для консультации и оформления заявки звоните по телефону 8(800)500-51-37 или направляйте запрос на электронную почту <a href="mailto:info@legionural.ru">info@legionural.ru</a>. </p> [TYPE] => HTML ) [PROPERTY_VALUE_ID] => 6820928 [DESCRIPTION] => [~VALUE] => Array ( [TEXT] =>

Для заказа промежуточных многогранных опор ПМ110-1 по типовому проекту 22.0099 обратитесь в отдел продаж НПО «Легион». Наши специалисты предоставят полный комплект чертежей и спецификаций, подтвердят соответствие требованиям для вашего участка трассы и рассчитают стоимость партии. Мы обеспечим изготовление и поставку опор в требуемом количестве. Для консультации и оформления заявки звоните по телефону 8(800)500-51-37 или направляйте запрос на электронную почту info@legionural.ru.

[TYPE] => HTML ) [~DESCRIPTION] => ) [ITEM_CERT_COR] => Array ( [ID] => 33 [IBLOCK_ID] => 2 [NAME] => Сертификаты соответствия [ACTIVE] => Y [SORT] => 12 [CODE] => ITEM_CERT_COR [DEFAULT_VALUE] => [PROPERTY_TYPE] => S [ROW_COUNT] => 1 [COL_COUNT] => 30 [LIST_TYPE] => L [MULTIPLE] => Y [XML_ID] => 33 [FILE_TYPE] => [MULTIPLE_CNT] => 1 [LINK_IBLOCK_ID] => 0 [WITH_DESCRIPTION] => Y [SEARCHABLE] => N [FILTRABLE] => N [IS_REQUIRED] => N [VERSION] => 1 [USER_TYPE] => [USER_TYPE_SETTINGS] => Array ( ) [HINT] => [~NAME] => Сертификаты соответствия [~DEFAULT_VALUE] => [VALUE_ENUM] => [VALUE_XML_ID] => [VALUE_SORT] => [VALUE] => [PROPERTY_VALUE_ID] => [DESCRIPTION] => [~DESCRIPTION] => [~VALUE] => ) [ITEM_ST_STAND] => Array ( [ID] => 34 [IBLOCK_ID] => 2 [NAME] => Государственные стандарты [ACTIVE] => Y [SORT] => 13 [CODE] => ITEM_ST_STAND [DEFAULT_VALUE] => [PROPERTY_TYPE] => S [ROW_COUNT] => 1 [COL_COUNT] => 30 [LIST_TYPE] => L [MULTIPLE] => Y [XML_ID] => 34 [FILE_TYPE] => [MULTIPLE_CNT] => 1 [LINK_IBLOCK_ID] => 0 [WITH_DESCRIPTION] => Y [SEARCHABLE] => N [FILTRABLE] => N [IS_REQUIRED] => N [VERSION] => 1 [USER_TYPE] => [USER_TYPE_SETTINGS] => Array ( ) [HINT] => [~NAME] => Государственные стандарты [~DEFAULT_VALUE] => [VALUE_ENUM] => [VALUE_XML_ID] => [VALUE_SORT] => [VALUE] => [PROPERTY_VALUE_ID] => [DESCRIPTION] => [~DESCRIPTION] => [~VALUE] => ) [ITEM_NORM] => Array ( [ID] => 35 [IBLOCK_ID] => 2 [NAME] => Строительные нормы и правила [ACTIVE] => Y [SORT] => 14 [CODE] => ITEM_NORM [DEFAULT_VALUE] => [PROPERTY_TYPE] => S [ROW_COUNT] => 1 [COL_COUNT] => 30 [LIST_TYPE] => L [MULTIPLE] => Y [XML_ID] => 35 [FILE_TYPE] => [MULTIPLE_CNT] => 1 [LINK_IBLOCK_ID] => 0 [WITH_DESCRIPTION] => Y [SEARCHABLE] => N [FILTRABLE] => N [IS_REQUIRED] => N [VERSION] => 1 [USER_TYPE] => [USER_TYPE_SETTINGS] => Array ( ) [HINT] => [~NAME] => Строительные нормы и правила [~DEFAULT_VALUE] => [VALUE_ENUM] => [VALUE_XML_ID] => [VALUE_SORT] => [VALUE] => [PROPERTY_VALUE_ID] => [DESCRIPTION] => [~DESCRIPTION] => [~VALUE] => ) [ITEM_SIMILAR] => Array ( [ID] => 36 [IBLOCK_ID] => 2 [NAME] => Похожие модели [ACTIVE] => Y [SORT] => 15 [CODE] => ITEM_SIMILAR [DEFAULT_VALUE] => [PROPERTY_TYPE] => G [ROW_COUNT] => 1 [COL_COUNT] => 30 [LIST_TYPE] => L [MULTIPLE] => Y [XML_ID] => 36 [FILE_TYPE] => [MULTIPLE_CNT] => 10 [LINK_IBLOCK_ID] => 2 [WITH_DESCRIPTION] => N [SEARCHABLE] => N [FILTRABLE] => N [IS_REQUIRED] => N [VERSION] => 1 [USER_TYPE] => [USER_TYPE_SETTINGS] => Array ( ) [HINT] => [~NAME] => Похожие модели [~DEFAULT_VALUE] => [VALUE_ENUM] => [VALUE_XML_ID] => [VALUE_SORT] => [VALUE] => Array ( [0] => 2951 ) [PROPERTY_VALUE_ID] => Array ( [0] => 6825495 ) [DESCRIPTION] => Array ( [0] => ) [~VALUE] => Array ( [0] => 2951 ) [~DESCRIPTION] => Array ( [0] => ) ) [ITEM_SIMILAR_TAGS] => Array ( [ID] => 122 [IBLOCK_ID] => 2 [NAME] => Похожие модели (теговые) [ACTIVE] => Y [SORT] => 16 [CODE] => ITEM_SIMILAR_TAGS [DEFAULT_VALUE] => [PROPERTY_TYPE] => E [ROW_COUNT] => 1 [COL_COUNT] => 30 [LIST_TYPE] => L [MULTIPLE] => Y [XML_ID] => 122 [FILE_TYPE] => [MULTIPLE_CNT] => 1 [LINK_IBLOCK_ID] => 19 [WITH_DESCRIPTION] => N [SEARCHABLE] => N [FILTRABLE] => N [IS_REQUIRED] => N [VERSION] => 1 [USER_TYPE] => [USER_TYPE_SETTINGS] => Array ( ) [HINT] => [~NAME] => Похожие модели (теговые) [~DEFAULT_VALUE] => [VALUE_ENUM] => [VALUE_XML_ID] => [VALUE_SORT] => [VALUE] => [PROPERTY_VALUE_ID] => [DESCRIPTION] => [~DESCRIPTION] => [~VALUE] => ) [ITEM_BUY_WITH] => Array ( [ID] => 37 [IBLOCK_ID] => 2 [NAME] => С этим товаром покупают [ACTIVE] => Y [SORT] => 17 [CODE] => ITEM_BUY_WITH [DEFAULT_VALUE] => [PROPERTY_TYPE] => E [ROW_COUNT] => 1 [COL_COUNT] => 30 [LIST_TYPE] => L [MULTIPLE] => Y [XML_ID] => 37 [FILE_TYPE] => [MULTIPLE_CNT] => 1 [LINK_IBLOCK_ID] => 2 [WITH_DESCRIPTION] => N [SEARCHABLE] => N [FILTRABLE] => N [IS_REQUIRED] => N [VERSION] => 1 [USER_TYPE] => [USER_TYPE_SETTINGS] => Array ( ) [HINT] => [~NAME] => С этим товаром покупают [~DEFAULT_VALUE] => [VALUE_ENUM] => [VALUE_XML_ID] => [VALUE_SORT] => [VALUE] => [PROPERTY_VALUE_ID] => [DESCRIPTION] => [~DESCRIPTION] => [~VALUE] => ) [ITEM_VOTE_COUNT] => Array ( [ID] => 38 [IBLOCK_ID] => 2 [NAME] => Количество голосов [ACTIVE] => Y [SORT] => 18 [CODE] => ITEM_VOTE_COUNT [DEFAULT_VALUE] => 0 [PROPERTY_TYPE] => N [ROW_COUNT] => 1 [COL_COUNT] => 30 [LIST_TYPE] => L [MULTIPLE] => N [XML_ID] => 38 [FILE_TYPE] => [MULTIPLE_CNT] => 5 [LINK_IBLOCK_ID] => 0 [WITH_DESCRIPTION] => N [SEARCHABLE] => N [FILTRABLE] => N [IS_REQUIRED] => N [VERSION] => 1 [USER_TYPE] => [USER_TYPE_SETTINGS] => Array ( ) [HINT] => [~NAME] => Количество голосов [~DEFAULT_VALUE] => 0 [VALUE_ENUM] => [VALUE_XML_ID] => [VALUE_SORT] => [VALUE] => 15 [PROPERTY_VALUE_ID] => 5932892 [DESCRIPTION] => [~VALUE] => 15 [~DESCRIPTION] => ) [ITEM_RAITING] => Array ( [ID] => 39 [IBLOCK_ID] => 2 [NAME] => Рейтинг [ACTIVE] => Y [SORT] => 19 [CODE] => ITEM_RAITING [DEFAULT_VALUE] => 0 [PROPERTY_TYPE] => N [ROW_COUNT] => 1 [COL_COUNT] => 30 [LIST_TYPE] => L [MULTIPLE] => N [XML_ID] => 39 [FILE_TYPE] => [MULTIPLE_CNT] => 5 [LINK_IBLOCK_ID] => 0 [WITH_DESCRIPTION] => N [SEARCHABLE] => N [FILTRABLE] => N [IS_REQUIRED] => N [VERSION] => 1 [USER_TYPE] => [USER_TYPE_SETTINGS] => Array ( ) [HINT] => [~NAME] => Рейтинг [~DEFAULT_VALUE] => 0 [VALUE_ENUM] => [VALUE_XML_ID] => [VALUE_SORT] => [VALUE] => 4.3 [PROPERTY_VALUE_ID] => 5932893 [DESCRIPTION] => [~VALUE] => 4.3 [~DESCRIPTION] => ) [H1] => Array ( [ID] => 125 [IBLOCK_ID] => 2 [NAME] => H1 [ACTIVE] => Y [SORT] => 500 [CODE] => H1 [DEFAULT_VALUE] => [PROPERTY_TYPE] => S [ROW_COUNT] => 1 [COL_COUNT] => 70 [LIST_TYPE] => L [MULTIPLE] => N [XML_ID] => 125 [FILE_TYPE] => [MULTIPLE_CNT] => 5 [LINK_IBLOCK_ID] => 0 [WITH_DESCRIPTION] => N [SEARCHABLE] => N [FILTRABLE] => N [IS_REQUIRED] => N [VERSION] => 1 [USER_TYPE] => [USER_TYPE_SETTINGS] => Array ( ) [HINT] => [~NAME] => H1 [~DEFAULT_VALUE] => [VALUE_ENUM] => [VALUE_XML_ID] => [VALUE_SORT] => [VALUE] => Многогранная опора ПМ110-1 [PROPERTY_VALUE_ID] => 5945343 [DESCRIPTION] => [~VALUE] => Многогранная опора ПМ110-1 [~DESCRIPTION] => ) [CERTIFICATES] => Array ( [ID] => 127 [IBLOCK_ID] => 2 [NAME] => Сертификаты [ACTIVE] => Y [SORT] => 500 [CODE] => CERTIFICATES [DEFAULT_VALUE] => [PROPERTY_TYPE] => E [ROW_COUNT] => 1 [COL_COUNT] => 30 [LIST_TYPE] => L [MULTIPLE] => Y [XML_ID] => 127 [FILE_TYPE] => [MULTIPLE_CNT] => 5 [LINK_IBLOCK_ID] => 7 [WITH_DESCRIPTION] => N [SEARCHABLE] => N [FILTRABLE] => N [IS_REQUIRED] => N [VERSION] => 1 [USER_TYPE] => [USER_TYPE_SETTINGS] => Array ( ) [HINT] => [~NAME] => Сертификаты [~DEFAULT_VALUE] => [VALUE_ENUM] => [VALUE_XML_ID] => [VALUE_SORT] => [VALUE] => [PROPERTY_VALUE_ID] => [DESCRIPTION] => [~DESCRIPTION] => [~VALUE] => ) [129] => Array ( [ID] => 129 [IBLOCK_ID] => 2 [NAME] => Уникальный META TITLE [ACTIVE] => Y [SORT] => 500 [CODE] => 129 [DEFAULT_VALUE] => [PROPERTY_TYPE] => S [ROW_COUNT] => 1 [COL_COUNT] => 30 [LIST_TYPE] => L [MULTIPLE] => N [XML_ID] => 129 [FILE_TYPE] => [MULTIPLE_CNT] => 5 [LINK_IBLOCK_ID] => 0 [WITH_DESCRIPTION] => N [SEARCHABLE] => N [FILTRABLE] => N [IS_REQUIRED] => N [VERSION] => 1 [USER_TYPE] => [USER_TYPE_SETTINGS] => Array ( ) [HINT] => [~NAME] => Уникальный META TITLE [~DEFAULT_VALUE] => [VALUE_ENUM] => [VALUE_XML_ID] => [VALUE_SORT] => [VALUE] => [PROPERTY_VALUE_ID] => [DESCRIPTION] => [~DESCRIPTION] => [~VALUE] => ) [ITEM_TYPE] => Array ( [ID] => 134 [IBLOCK_ID] => 2 [NAME] => Тип [ACTIVE] => Y [SORT] => 500 [CODE] => ITEM_TYPE [DEFAULT_VALUE] => [PROPERTY_TYPE] => S [ROW_COUNT] => 1 [COL_COUNT] => 30 [LIST_TYPE] => L [MULTIPLE] => N [XML_ID] => [FILE_TYPE] => [MULTIPLE_CNT] => 5 [LINK_IBLOCK_ID] => 0 [WITH_DESCRIPTION] => N [SEARCHABLE] => N [FILTRABLE] => Y [IS_REQUIRED] => N [VERSION] => 1 [USER_TYPE] => [USER_TYPE_SETTINGS] => Array ( ) [HINT] => [~NAME] => Тип [~DEFAULT_VALUE] => [VALUE_ENUM] => [VALUE_XML_ID] => [VALUE_SORT] => [VALUE] => [PROPERTY_VALUE_ID] => [DESCRIPTION] => [~DESCRIPTION] => [~VALUE] => ) [ITEM_INSTALLATION] => Array ( [ID] => 135 [IBLOCK_ID] => 2 [NAME] => Способ установки [ACTIVE] => Y [SORT] => 500 [CODE] => ITEM_INSTALLATION [DEFAULT_VALUE] => [PROPERTY_TYPE] => S [ROW_COUNT] => 1 [COL_COUNT] => 30 [LIST_TYPE] => L [MULTIPLE] => N [XML_ID] => [FILE_TYPE] => [MULTIPLE_CNT] => 5 [LINK_IBLOCK_ID] => 0 [WITH_DESCRIPTION] => N [SEARCHABLE] => N [FILTRABLE] => N [IS_REQUIRED] => N [VERSION] => 1 [USER_TYPE] => [USER_TYPE_SETTINGS] => Array ( ) [HINT] => [~NAME] => Способ установки [~DEFAULT_VALUE] => [VALUE_ENUM] => [VALUE_XML_ID] => [VALUE_SORT] => [VALUE] => [PROPERTY_VALUE_ID] => [DESCRIPTION] => [~DESCRIPTION] => [~VALUE] => ) [ITEM_MODE] => Array ( [ID] => 136 [IBLOCK_ID] => 2 [NAME] => Способ производства [ACTIVE] => Y [SORT] => 500 [CODE] => ITEM_MODE [DEFAULT_VALUE] => [PROPERTY_TYPE] => S [ROW_COUNT] => 1 [COL_COUNT] => 30 [LIST_TYPE] => L [MULTIPLE] => N [XML_ID] => [FILE_TYPE] => [MULTIPLE_CNT] => 5 [LINK_IBLOCK_ID] => 0 [WITH_DESCRIPTION] => N [SEARCHABLE] => N [FILTRABLE] => N [IS_REQUIRED] => N [VERSION] => 1 [USER_TYPE] => [USER_TYPE_SETTINGS] => Array ( ) [HINT] => [~NAME] => Способ производства [~DEFAULT_VALUE] => [VALUE_ENUM] => [VALUE_XML_ID] => [VALUE_SORT] => [VALUE] => [PROPERTY_VALUE_ID] => [DESCRIPTION] => [~DESCRIPTION] => [~VALUE] => ) [ITEM_HEIGHT] => Array ( [ID] => 137 [IBLOCK_ID] => 2 [NAME] => Высота, мм [ACTIVE] => Y [SORT] => 500 [CODE] => ITEM_HEIGHT [DEFAULT_VALUE] => [PROPERTY_TYPE] => S [ROW_COUNT] => 1 [COL_COUNT] => 30 [LIST_TYPE] => L [MULTIPLE] => N [XML_ID] => [FILE_TYPE] => [MULTIPLE_CNT] => 5 [LINK_IBLOCK_ID] => 0 [WITH_DESCRIPTION] => N [SEARCHABLE] => N [FILTRABLE] => N [IS_REQUIRED] => N [VERSION] => 1 [USER_TYPE] => [USER_TYPE_SETTINGS] => Array ( ) [HINT] => [~NAME] => Высота, мм [~DEFAULT_VALUE] => [VALUE_ENUM] => [VALUE_XML_ID] => [VALUE_SORT] => [VALUE] => [PROPERTY_VALUE_ID] => [DESCRIPTION] => [~DESCRIPTION] => [~VALUE] => ) [BLOG_POST_ID] => Array ( [ID] => 138 [IBLOCK_ID] => 2 [NAME] => ID поста блога для комментариев [ACTIVE] => Y [SORT] => 500 [CODE] => BLOG_POST_ID [DEFAULT_VALUE] => [PROPERTY_TYPE] => N [ROW_COUNT] => 1 [COL_COUNT] => 30 [LIST_TYPE] => L [MULTIPLE] => N [XML_ID] => BLOG_POST_ID [FILE_TYPE] => [MULTIPLE_CNT] => 5 [LINK_IBLOCK_ID] => 0 [WITH_DESCRIPTION] => N [SEARCHABLE] => N [FILTRABLE] => N [IS_REQUIRED] => N [VERSION] => 1 [USER_TYPE] => [USER_TYPE_SETTINGS] => Array ( ) [HINT] => [~NAME] => ID поста блога для комментариев [~DEFAULT_VALUE] => [VALUE_ENUM] => [VALUE_XML_ID] => [VALUE_SORT] => [VALUE] => 1477 [PROPERTY_VALUE_ID] => 6775286 [DESCRIPTION] => [~VALUE] => 1477 [~DESCRIPTION] => ) [BLOG_COMMENTS_CNT] => Array ( [ID] => 139 [IBLOCK_ID] => 2 [NAME] => Количество комментариев [ACTIVE] => Y [SORT] => 500 [CODE] => BLOG_COMMENTS_CNT [DEFAULT_VALUE] => [PROPERTY_TYPE] => N [ROW_COUNT] => 1 [COL_COUNT] => 30 [LIST_TYPE] => L [MULTIPLE] => N [XML_ID] => BLOG_COMMENTS_CNT [FILE_TYPE] => [MULTIPLE_CNT] => 5 [LINK_IBLOCK_ID] => 0 [WITH_DESCRIPTION] => N [SEARCHABLE] => N [FILTRABLE] => N [IS_REQUIRED] => N [VERSION] => 1 [USER_TYPE] => [USER_TYPE_SETTINGS] => Array ( ) [HINT] => [~NAME] => Количество комментариев [~DEFAULT_VALUE] => [VALUE_ENUM] => [VALUE_XML_ID] => [VALUE_SORT] => [VALUE] => [PROPERTY_VALUE_ID] => [DESCRIPTION] => [~DESCRIPTION] => [~VALUE] => ) [HEIGHT_TOTAL] => Array ( [ID] => 143 [IBLOCK_ID] => 2 [NAME] => Высота общая, мм [ACTIVE] => Y [SORT] => 500 [CODE] => HEIGHT_TOTAL [DEFAULT_VALUE] => [PROPERTY_TYPE] => S [ROW_COUNT] => 1 [COL_COUNT] => 30 [LIST_TYPE] => L [MULTIPLE] => N [XML_ID] => [FILE_TYPE] => [MULTIPLE_CNT] => 5 [LINK_IBLOCK_ID] => 0 [WITH_DESCRIPTION] => N [SEARCHABLE] => N [FILTRABLE] => N [IS_REQUIRED] => N [VERSION] => 1 [USER_TYPE] => [USER_TYPE_SETTINGS] => Array ( ) [HINT] => [~NAME] => Высота общая, мм [~DEFAULT_VALUE] => [VALUE_ENUM] => [VALUE_XML_ID] => [VALUE_SORT] => [VALUE] => [PROPERTY_VALUE_ID] => [DESCRIPTION] => [~DESCRIPTION] => [~VALUE] => ) [HEIGHT_ABOVEGROUND] => Array ( [ID] => 144 [IBLOCK_ID] => 2 [NAME] => Высота надземной части, мм [ACTIVE] => Y [SORT] => 500 [CODE] => HEIGHT_ABOVEGROUND [DEFAULT_VALUE] => [PROPERTY_TYPE] => S [ROW_COUNT] => 1 [COL_COUNT] => 30 [LIST_TYPE] => L [MULTIPLE] => N [XML_ID] => [FILE_TYPE] => [MULTIPLE_CNT] => 5 [LINK_IBLOCK_ID] => 0 [WITH_DESCRIPTION] => N [SEARCHABLE] => N [FILTRABLE] => N [IS_REQUIRED] => N [VERSION] => 1 [USER_TYPE] => [USER_TYPE_SETTINGS] => Array ( ) [HINT] => [~NAME] => Высота надземной части, мм [~DEFAULT_VALUE] => [VALUE_ENUM] => [VALUE_XML_ID] => [VALUE_SORT] => [VALUE] => [PROPERTY_VALUE_ID] => [DESCRIPTION] => [~DESCRIPTION] => [~VALUE] => ) [HEIGHT_UNDERGROUND] => Array ( [ID] => 145 [IBLOCK_ID] => 2 [NAME] => Высота подземной части, мм [ACTIVE] => Y [SORT] => 500 [CODE] => HEIGHT_UNDERGROUND [DEFAULT_VALUE] => [PROPERTY_TYPE] => S [ROW_COUNT] => 1 [COL_COUNT] => 30 [LIST_TYPE] => L [MULTIPLE] => N [XML_ID] => [FILE_TYPE] => [MULTIPLE_CNT] => 5 [LINK_IBLOCK_ID] => 0 [WITH_DESCRIPTION] => N [SEARCHABLE] => N [FILTRABLE] => N [IS_REQUIRED] => N [VERSION] => 1 [USER_TYPE] => [USER_TYPE_SETTINGS] => Array ( ) [HINT] => [~NAME] => Высота подземной части, мм [~DEFAULT_VALUE] => [VALUE_ENUM] => [VALUE_XML_ID] => [VALUE_SORT] => [VALUE] => [PROPERTY_VALUE_ID] => [DESCRIPTION] => [~DESCRIPTION] => [~VALUE] => ) [DIAMETER_TOP] => Array ( [ID] => 146 [IBLOCK_ID] => 2 [NAME] => Диаметр верхний, мм [ACTIVE] => Y [SORT] => 500 [CODE] => DIAMETER_TOP [DEFAULT_VALUE] => [PROPERTY_TYPE] => S [ROW_COUNT] => 1 [COL_COUNT] => 30 [LIST_TYPE] => L [MULTIPLE] => N [XML_ID] => [FILE_TYPE] => [MULTIPLE_CNT] => 5 [LINK_IBLOCK_ID] => 0 [WITH_DESCRIPTION] => N [SEARCHABLE] => N [FILTRABLE] => N [IS_REQUIRED] => N [VERSION] => 1 [USER_TYPE] => [USER_TYPE_SETTINGS] => Array ( ) [HINT] => [~NAME] => Диаметр верхний, мм [~DEFAULT_VALUE] => [VALUE_ENUM] => [VALUE_XML_ID] => [VALUE_SORT] => [VALUE] => [PROPERTY_VALUE_ID] => [DESCRIPTION] => [~DESCRIPTION] => [~VALUE] => ) [DIAMETER_BOTTOM] => Array ( [ID] => 147 [IBLOCK_ID] => 2 [NAME] => Диаметр нижний, мм [ACTIVE] => Y [SORT] => 500 [CODE] => DIAMETER_BOTTOM [DEFAULT_VALUE] => [PROPERTY_TYPE] => S [ROW_COUNT] => 1 [COL_COUNT] => 30 [LIST_TYPE] => L [MULTIPLE] => N [XML_ID] => [FILE_TYPE] => [MULTIPLE_CNT] => 5 [LINK_IBLOCK_ID] => 0 [WITH_DESCRIPTION] => N [SEARCHABLE] => N [FILTRABLE] => N [IS_REQUIRED] => N [VERSION] => 1 [USER_TYPE] => [USER_TYPE_SETTINGS] => Array ( ) [HINT] => [~NAME] => Диаметр нижний, мм [~DEFAULT_VALUE] => [VALUE_ENUM] => [VALUE_XML_ID] => [VALUE_SORT] => [VALUE] => [PROPERTY_VALUE_ID] => [DESCRIPTION] => [~DESCRIPTION] => [~VALUE] => ) [WEIGHT] => Array ( [ID] => 148 [IBLOCK_ID] => 2 [NAME] => Нагрузка, кг [ACTIVE] => Y [SORT] => 500 [CODE] => WEIGHT [DEFAULT_VALUE] => [PROPERTY_TYPE] => S [ROW_COUNT] => 1 [COL_COUNT] => 30 [LIST_TYPE] => L [MULTIPLE] => N [XML_ID] => [FILE_TYPE] => [MULTIPLE_CNT] => 5 [LINK_IBLOCK_ID] => 0 [WITH_DESCRIPTION] => N [SEARCHABLE] => N [FILTRABLE] => N [IS_REQUIRED] => N [VERSION] => 1 [USER_TYPE] => [USER_TYPE_SETTINGS] => Array ( ) [HINT] => [~NAME] => Нагрузка, кг [~DEFAULT_VALUE] => [VALUE_ENUM] => [VALUE_XML_ID] => [VALUE_SORT] => [VALUE] => [PROPERTY_VALUE_ID] => [DESCRIPTION] => [~DESCRIPTION] => [~VALUE] => ) [VID] => Array ( [ID] => 149 [IBLOCK_ID] => 2 [NAME] => Вид [ACTIVE] => Y [SORT] => 500 [CODE] => VID [DEFAULT_VALUE] => [PROPERTY_TYPE] => S [ROW_COUNT] => 1 [COL_COUNT] => 30 [LIST_TYPE] => L [MULTIPLE] => N [XML_ID] => [FILE_TYPE] => [MULTIPLE_CNT] => 5 [LINK_IBLOCK_ID] => 0 [WITH_DESCRIPTION] => N [SEARCHABLE] => N [FILTRABLE] => N [IS_REQUIRED] => N [VERSION] => 1 [USER_TYPE] => [USER_TYPE_SETTINGS] => Array ( ) [HINT] => [~NAME] => Вид [~DEFAULT_VALUE] => [VALUE_ENUM] => [VALUE_XML_ID] => [VALUE_SORT] => [VALUE] => [PROPERTY_VALUE_ID] => [DESCRIPTION] => [~DESCRIPTION] => [~VALUE] => ) [SERVICE_LIFE] => Array ( [ID] => 150 [IBLOCK_ID] => 2 [NAME] => Срок службы [ACTIVE] => Y [SORT] => 500 [CODE] => SERVICE_LIFE [DEFAULT_VALUE] => [PROPERTY_TYPE] => S [ROW_COUNT] => 1 [COL_COUNT] => 30 [LIST_TYPE] => L [MULTIPLE] => N [XML_ID] => [FILE_TYPE] => [MULTIPLE_CNT] => 5 [LINK_IBLOCK_ID] => 0 [WITH_DESCRIPTION] => N [SEARCHABLE] => N [FILTRABLE] => N [IS_REQUIRED] => N [VERSION] => 1 [USER_TYPE] => [USER_TYPE_SETTINGS] => Array ( ) [HINT] => [~NAME] => Срок службы [~DEFAULT_VALUE] => [VALUE_ENUM] => [VALUE_XML_ID] => [VALUE_SORT] => [VALUE] => [PROPERTY_VALUE_ID] => [DESCRIPTION] => [~DESCRIPTION] => [~VALUE] => ) [USING] => Array ( [ID] => 151 [IBLOCK_ID] => 2 [NAME] => Применение [ACTIVE] => Y [SORT] => 500 [CODE] => USING [DEFAULT_VALUE] => [PROPERTY_TYPE] => S [ROW_COUNT] => 1 [COL_COUNT] => 30 [LIST_TYPE] => L [MULTIPLE] => N [XML_ID] => [FILE_TYPE] => [MULTIPLE_CNT] => 5 [LINK_IBLOCK_ID] => 0 [WITH_DESCRIPTION] => N [SEARCHABLE] => N [FILTRABLE] => N [IS_REQUIRED] => N [VERSION] => 1 [USER_TYPE] => [USER_TYPE_SETTINGS] => Array ( ) [HINT] => [~NAME] => Применение [~DEFAULT_VALUE] => [VALUE_ENUM] => [VALUE_XML_ID] => [VALUE_SORT] => [VALUE] => [PROPERTY_VALUE_ID] => [DESCRIPTION] => [~DESCRIPTION] => [~VALUE] => ) [HEIGHT_ZAK] => Array ( [ID] => 152 [IBLOCK_ID] => 2 [NAME] => Высота закладного элемента фундамента [ACTIVE] => Y [SORT] => 500 [CODE] => HEIGHT_ZAK [DEFAULT_VALUE] => [PROPERTY_TYPE] => S [ROW_COUNT] => 1 [COL_COUNT] => 30 [LIST_TYPE] => L [MULTIPLE] => N [XML_ID] => [FILE_TYPE] => [MULTIPLE_CNT] => 5 [LINK_IBLOCK_ID] => 0 [WITH_DESCRIPTION] => N [SEARCHABLE] => N [FILTRABLE] => N [IS_REQUIRED] => N [VERSION] => 1 [USER_TYPE] => [USER_TYPE_SETTINGS] => Array ( ) [HINT] => [~NAME] => Высота закладного элемента фундамента [~DEFAULT_VALUE] => [VALUE_ENUM] => [VALUE_XML_ID] => [VALUE_SORT] => [VALUE] => [PROPERTY_VALUE_ID] => [DESCRIPTION] => [~DESCRIPTION] => [~VALUE] => ) [LENGTH_CONSOLE] => Array ( [ID] => 153 [IBLOCK_ID] => 2 [NAME] => Длина консоли [ACTIVE] => Y [SORT] => 500 [CODE] => LENGTH_CONSOLE [DEFAULT_VALUE] => [PROPERTY_TYPE] => S [ROW_COUNT] => 1 [COL_COUNT] => 30 [LIST_TYPE] => L [MULTIPLE] => N [XML_ID] => [FILE_TYPE] => [MULTIPLE_CNT] => 5 [LINK_IBLOCK_ID] => 0 [WITH_DESCRIPTION] => N [SEARCHABLE] => N [FILTRABLE] => N [IS_REQUIRED] => N [VERSION] => 1 [USER_TYPE] => [USER_TYPE_SETTINGS] => Array ( ) [HINT] => [~NAME] => Длина консоли [~DEFAULT_VALUE] => [VALUE_ENUM] => [VALUE_XML_ID] => [VALUE_SORT] => [VALUE] => [PROPERTY_VALUE_ID] => [DESCRIPTION] => [~DESCRIPTION] => [~VALUE] => ) [HEIGHT_TOP_SECTION] => Array ( [ID] => 154 [IBLOCK_ID] => 2 [NAME] => Высота верхней секции, мм [ACTIVE] => Y [SORT] => 500 [CODE] => HEIGHT_TOP_SECTION [DEFAULT_VALUE] => [PROPERTY_TYPE] => S [ROW_COUNT] => 1 [COL_COUNT] => 30 [LIST_TYPE] => L [MULTIPLE] => N [XML_ID] => [FILE_TYPE] => [MULTIPLE_CNT] => 5 [LINK_IBLOCK_ID] => 0 [WITH_DESCRIPTION] => N [SEARCHABLE] => N [FILTRABLE] => N [IS_REQUIRED] => N [VERSION] => 1 [USER_TYPE] => [USER_TYPE_SETTINGS] => Array ( ) [HINT] => [~NAME] => Высота верхней секции, мм [~DEFAULT_VALUE] => [VALUE_ENUM] => [VALUE_XML_ID] => [VALUE_SORT] => [VALUE] => [PROPERTY_VALUE_ID] => [DESCRIPTION] => [~DESCRIPTION] => [~VALUE] => ) [SIP] => Array ( [ID] => 156 [IBLOCK_ID] => 2 [NAME] => Возможность подвеса СИП [ACTIVE] => Y [SORT] => 500 [CODE] => SIP [DEFAULT_VALUE] => [PROPERTY_TYPE] => S [ROW_COUNT] => 1 [COL_COUNT] => 30 [LIST_TYPE] => L [MULTIPLE] => N [XML_ID] => [FILE_TYPE] => [MULTIPLE_CNT] => 5 [LINK_IBLOCK_ID] => 0 [WITH_DESCRIPTION] => N [SEARCHABLE] => N [FILTRABLE] => N [IS_REQUIRED] => N [VERSION] => 1 [USER_TYPE] => [USER_TYPE_SETTINGS] => Array ( ) [HINT] => [~NAME] => Возможность подвеса СИП [~DEFAULT_VALUE] => [VALUE_ENUM] => [VALUE_XML_ID] => [VALUE_SORT] => [VALUE] => [PROPERTY_VALUE_ID] => [DESCRIPTION] => [~DESCRIPTION] => [~VALUE] => ) [COUNT_GRANY] => Array ( [ID] => 157 [IBLOCK_ID] => 2 [NAME] => Количество граней [ACTIVE] => Y [SORT] => 500 [CODE] => COUNT_GRANY [DEFAULT_VALUE] => [PROPERTY_TYPE] => S [ROW_COUNT] => 1 [COL_COUNT] => 30 [LIST_TYPE] => L [MULTIPLE] => N [XML_ID] => [FILE_TYPE] => [MULTIPLE_CNT] => 5 [LINK_IBLOCK_ID] => 0 [WITH_DESCRIPTION] => N [SEARCHABLE] => N [FILTRABLE] => N [IS_REQUIRED] => N [VERSION] => 1 [USER_TYPE] => [USER_TYPE_SETTINGS] => Array ( ) [HINT] => [~NAME] => Количество граней [~DEFAULT_VALUE] => [VALUE_ENUM] => [VALUE_XML_ID] => [VALUE_SORT] => [VALUE] => [PROPERTY_VALUE_ID] => [DESCRIPTION] => [~DESCRIPTION] => [~VALUE] => ) [HEIGHT_BOTTOM_SECTION] => Array ( [ID] => 158 [IBLOCK_ID] => 2 [NAME] => Высота нижней секции, мм [ACTIVE] => Y [SORT] => 500 [CODE] => HEIGHT_BOTTOM_SECTION [DEFAULT_VALUE] => [PROPERTY_TYPE] => S [ROW_COUNT] => 1 [COL_COUNT] => 30 [LIST_TYPE] => L [MULTIPLE] => N [XML_ID] => [FILE_TYPE] => [MULTIPLE_CNT] => 5 [LINK_IBLOCK_ID] => 0 [WITH_DESCRIPTION] => N [SEARCHABLE] => N [FILTRABLE] => N [IS_REQUIRED] => N [VERSION] => 1 [USER_TYPE] => [USER_TYPE_SETTINGS] => Array ( ) [HINT] => [~NAME] => Высота нижней секции, мм [~DEFAULT_VALUE] => [VALUE_ENUM] => [VALUE_XML_ID] => [VALUE_SORT] => [VALUE] => [PROPERTY_VALUE_ID] => [DESCRIPTION] => [~DESCRIPTION] => [~VALUE] => ) [STEEL_THICKNESS] => Array ( [ID] => 160 [IBLOCK_ID] => 2 [NAME] => Толщина стали [ACTIVE] => Y [SORT] => 500 [CODE] => STEEL_THICKNESS [DEFAULT_VALUE] => [PROPERTY_TYPE] => S [ROW_COUNT] => 1 [COL_COUNT] => 30 [LIST_TYPE] => L [MULTIPLE] => N [XML_ID] => [FILE_TYPE] => [MULTIPLE_CNT] => 5 [LINK_IBLOCK_ID] => 0 [WITH_DESCRIPTION] => N [SEARCHABLE] => N [FILTRABLE] => N [IS_REQUIRED] => N [VERSION] => 1 [USER_TYPE] => [USER_TYPE_SETTINGS] => Array ( ) [HINT] => [~NAME] => Толщина стали [~DEFAULT_VALUE] => [VALUE_ENUM] => [VALUE_XML_ID] => [VALUE_SORT] => [VALUE] => [PROPERTY_VALUE_ID] => [DESCRIPTION] => [~DESCRIPTION] => [~VALUE] => ) [SIZE_OPOR_FLANEC] => Array ( [ID] => 161 [IBLOCK_ID] => 2 [NAME] => Размеры опорного фланца [ACTIVE] => Y [SORT] => 500 [CODE] => SIZE_OPOR_FLANEC [DEFAULT_VALUE] => [PROPERTY_TYPE] => S [ROW_COUNT] => 1 [COL_COUNT] => 30 [LIST_TYPE] => L [MULTIPLE] => N [XML_ID] => [FILE_TYPE] => [MULTIPLE_CNT] => 5 [LINK_IBLOCK_ID] => 0 [WITH_DESCRIPTION] => N [SEARCHABLE] => N [FILTRABLE] => N [IS_REQUIRED] => N [VERSION] => 1 [USER_TYPE] => [USER_TYPE_SETTINGS] => Array ( ) [HINT] => [~NAME] => Размеры опорного фланца [~DEFAULT_VALUE] => [VALUE_ENUM] => [VALUE_XML_ID] => [VALUE_SORT] => [VALUE] => [PROPERTY_VALUE_ID] => [DESCRIPTION] => [~DESCRIPTION] => [~VALUE] => ) [POKRASKA] => Array ( [ID] => 162 [IBLOCK_ID] => 2 [NAME] => Лакокрасочное покрытие [ACTIVE] => Y [SORT] => 500 [CODE] => POKRASKA [DEFAULT_VALUE] => [PROPERTY_TYPE] => S [ROW_COUNT] => 1 [COL_COUNT] => 30 [LIST_TYPE] => L [MULTIPLE] => N [XML_ID] => [FILE_TYPE] => [MULTIPLE_CNT] => 5 [LINK_IBLOCK_ID] => 0 [WITH_DESCRIPTION] => N [SEARCHABLE] => N [FILTRABLE] => N [IS_REQUIRED] => N [VERSION] => 1 [USER_TYPE] => [USER_TYPE_SETTINGS] => Array ( ) [HINT] => [~NAME] => Лакокрасочное покрытие [~DEFAULT_VALUE] => [VALUE_ENUM] => [VALUE_XML_ID] => [VALUE_SORT] => [VALUE] => [PROPERTY_VALUE_ID] => [DESCRIPTION] => [~DESCRIPTION] => [~VALUE] => ) [VES] => Array ( [ID] => 163 [IBLOCK_ID] => 2 [NAME] => Вес [ACTIVE] => Y [SORT] => 500 [CODE] => VES [DEFAULT_VALUE] => [PROPERTY_TYPE] => S [ROW_COUNT] => 1 [COL_COUNT] => 30 [LIST_TYPE] => L [MULTIPLE] => N [XML_ID] => [FILE_TYPE] => [MULTIPLE_CNT] => 5 [LINK_IBLOCK_ID] => 0 [WITH_DESCRIPTION] => N [SEARCHABLE] => N [FILTRABLE] => N [IS_REQUIRED] => N [VERSION] => 1 [USER_TYPE] => [USER_TYPE_SETTINGS] => Array ( ) [HINT] => [~NAME] => Вес [~DEFAULT_VALUE] => [VALUE_ENUM] => [VALUE_XML_ID] => [VALUE_SORT] => [VALUE] => [PROPERTY_VALUE_ID] => [DESCRIPTION] => [~DESCRIPTION] => [~VALUE] => ) [INSTALL_LYUCHKA] => Array ( [ID] => 164 [IBLOCK_ID] => 2 [NAME] => Возможность установки лючка [ACTIVE] => Y [SORT] => 500 [CODE] => INSTALL_LYUCHKA [DEFAULT_VALUE] => [PROPERTY_TYPE] => S [ROW_COUNT] => 1 [COL_COUNT] => 30 [LIST_TYPE] => L [MULTIPLE] => N [XML_ID] => [FILE_TYPE] => [MULTIPLE_CNT] => 5 [LINK_IBLOCK_ID] => 0 [WITH_DESCRIPTION] => N [SEARCHABLE] => N [FILTRABLE] => N [IS_REQUIRED] => N [VERSION] => 1 [USER_TYPE] => [USER_TYPE_SETTINGS] => Array ( ) [HINT] => [~NAME] => Возможность установки лючка [~DEFAULT_VALUE] => [VALUE_ENUM] => [VALUE_XML_ID] => [VALUE_SORT] => [VALUE] => [PROPERTY_VALUE_ID] => [DESCRIPTION] => [~DESCRIPTION] => [~VALUE] => ) [DIAMETER_FLANCA] => Array ( [ID] => 165 [IBLOCK_ID] => 2 [NAME] => Диаметр фланца, мм [ACTIVE] => Y [SORT] => 500 [CODE] => DIAMETER_FLANCA [DEFAULT_VALUE] => [PROPERTY_TYPE] => S [ROW_COUNT] => 1 [COL_COUNT] => 30 [LIST_TYPE] => L [MULTIPLE] => N [XML_ID] => [FILE_TYPE] => [MULTIPLE_CNT] => 5 [LINK_IBLOCK_ID] => 0 [WITH_DESCRIPTION] => N [SEARCHABLE] => N [FILTRABLE] => N [IS_REQUIRED] => N [VERSION] => 1 [USER_TYPE] => [USER_TYPE_SETTINGS] => Array ( ) [HINT] => [~NAME] => Диаметр фланца, мм [~DEFAULT_VALUE] => [VALUE_ENUM] => [VALUE_XML_ID] => [VALUE_SORT] => [VALUE] => [PROPERTY_VALUE_ID] => [DESCRIPTION] => [~DESCRIPTION] => [~VALUE] => ) [COUNT_LIGHT] => Array ( [ID] => 166 [IBLOCK_ID] => 2 [NAME] => Количество осветительных приборов, шт [ACTIVE] => Y [SORT] => 500 [CODE] => COUNT_LIGHT [DEFAULT_VALUE] => [PROPERTY_TYPE] => S [ROW_COUNT] => 1 [COL_COUNT] => 30 [LIST_TYPE] => L [MULTIPLE] => N [XML_ID] => [FILE_TYPE] => [MULTIPLE_CNT] => 5 [LINK_IBLOCK_ID] => 0 [WITH_DESCRIPTION] => N [SEARCHABLE] => N [FILTRABLE] => N [IS_REQUIRED] => N [VERSION] => 1 [USER_TYPE] => [USER_TYPE_SETTINGS] => Array ( ) [HINT] => [~NAME] => Количество осветительных приборов, шт [~DEFAULT_VALUE] => [VALUE_ENUM] => [VALUE_XML_ID] => [VALUE_SORT] => [VALUE] => [PROPERTY_VALUE_ID] => [DESCRIPTION] => [~DESCRIPTION] => [~VALUE] => ) [WEIGHT_TO_KRON] => Array ( [ID] => 167 [IBLOCK_ID] => 2 [NAME] => Высота до кронштейна, мм [ACTIVE] => Y [SORT] => 500 [CODE] => WEIGHT_TO_KRON [DEFAULT_VALUE] => [PROPERTY_TYPE] => S [ROW_COUNT] => 1 [COL_COUNT] => 30 [LIST_TYPE] => L [MULTIPLE] => N [XML_ID] => [FILE_TYPE] => [MULTIPLE_CNT] => 5 [LINK_IBLOCK_ID] => 0 [WITH_DESCRIPTION] => N [SEARCHABLE] => N [FILTRABLE] => N [IS_REQUIRED] => N [VERSION] => 1 [USER_TYPE] => [USER_TYPE_SETTINGS] => Array ( ) [HINT] => [~NAME] => Высота до кронштейна, мм [~DEFAULT_VALUE] => [VALUE_ENUM] => [VALUE_XML_ID] => [VALUE_SORT] => [VALUE] => [PROPERTY_VALUE_ID] => [DESCRIPTION] => [~DESCRIPTION] => [~VALUE] => ) [SIZE_FLANEC] => Array ( [ID] => 169 [IBLOCK_ID] => 2 [NAME] => Размер фланца [ACTIVE] => Y [SORT] => 500 [CODE] => SIZE_FLANEC [DEFAULT_VALUE] => [PROPERTY_TYPE] => S [ROW_COUNT] => 1 [COL_COUNT] => 30 [LIST_TYPE] => L [MULTIPLE] => N [XML_ID] => [FILE_TYPE] => [MULTIPLE_CNT] => 5 [LINK_IBLOCK_ID] => 0 [WITH_DESCRIPTION] => N [SEARCHABLE] => N [FILTRABLE] => N [IS_REQUIRED] => N [VERSION] => 1 [USER_TYPE] => [USER_TYPE_SETTINGS] => Array ( ) [HINT] => [~NAME] => Размер фланца [~DEFAULT_VALUE] => [VALUE_ENUM] => [VALUE_XML_ID] => [VALUE_SORT] => [VALUE] => [PROPERTY_VALUE_ID] => [DESCRIPTION] => [~DESCRIPTION] => [~VALUE] => ) [WEIGHT_MIDDLE_SECTION] => Array ( [ID] => 170 [IBLOCK_ID] => 2 [NAME] => Высота промежуточной секции, мм [ACTIVE] => Y [SORT] => 500 [CODE] => WEIGHT_MIDDLE_SECTION [DEFAULT_VALUE] => [PROPERTY_TYPE] => S [ROW_COUNT] => 1 [COL_COUNT] => 30 [LIST_TYPE] => L [MULTIPLE] => N [XML_ID] => [FILE_TYPE] => [MULTIPLE_CNT] => 5 [LINK_IBLOCK_ID] => 0 [WITH_DESCRIPTION] => N [SEARCHABLE] => N [FILTRABLE] => N [IS_REQUIRED] => N [VERSION] => 1 [USER_TYPE] => [USER_TYPE_SETTINGS] => Array ( ) [HINT] => [~NAME] => Высота промежуточной секции, мм [~DEFAULT_VALUE] => [VALUE_ENUM] => [VALUE_XML_ID] => [VALUE_SORT] => [VALUE] => [PROPERTY_VALUE_ID] => [DESCRIPTION] => [~DESCRIPTION] => [~VALUE] => ) [DEFEND_POKRYTIE] => Array ( [ID] => 171 [IBLOCK_ID] => 2 [NAME] => Защитное покрытие [ACTIVE] => Y [SORT] => 500 [CODE] => DEFEND_POKRYTIE [DEFAULT_VALUE] => [PROPERTY_TYPE] => S [ROW_COUNT] => 1 [COL_COUNT] => 30 [LIST_TYPE] => L [MULTIPLE] => N [XML_ID] => [FILE_TYPE] => [MULTIPLE_CNT] => 5 [LINK_IBLOCK_ID] => 0 [WITH_DESCRIPTION] => N [SEARCHABLE] => N [FILTRABLE] => N [IS_REQUIRED] => N [VERSION] => 1 [USER_TYPE] => [USER_TYPE_SETTINGS] => Array ( ) [HINT] => [~NAME] => Защитное покрытие [~DEFAULT_VALUE] => [VALUE_ENUM] => [VALUE_XML_ID] => [VALUE_SORT] => [VALUE] => [PROPERTY_VALUE_ID] => [DESCRIPTION] => [~DESCRIPTION] => [~VALUE] => ) [WIND_REGION] => Array ( [ID] => 172 [IBLOCK_ID] => 2 [NAME] => Ветровой район [ACTIVE] => Y [SORT] => 500 [CODE] => WIND_REGION [DEFAULT_VALUE] => [PROPERTY_TYPE] => S [ROW_COUNT] => 1 [COL_COUNT] => 30 [LIST_TYPE] => L [MULTIPLE] => N [XML_ID] => [FILE_TYPE] => [MULTIPLE_CNT] => 5 [LINK_IBLOCK_ID] => 0 [WITH_DESCRIPTION] => N [SEARCHABLE] => N [FILTRABLE] => N [IS_REQUIRED] => N [VERSION] => 1 [USER_TYPE] => [USER_TYPE_SETTINGS] => Array ( ) [HINT] => [~NAME] => Ветровой район [~DEFAULT_VALUE] => [VALUE_ENUM] => [VALUE_XML_ID] => [VALUE_SORT] => [VALUE] => [PROPERTY_VALUE_ID] => [DESCRIPTION] => [~DESCRIPTION] => [~VALUE] => ) [DIAMETER_OPOR_FLANCA] => Array ( [ID] => 173 [IBLOCK_ID] => 2 [NAME] => Диаметр опорного фланца, мм [ACTIVE] => Y [SORT] => 500 [CODE] => DIAMETER_OPOR_FLANCA [DEFAULT_VALUE] => [PROPERTY_TYPE] => S [ROW_COUNT] => 1 [COL_COUNT] => 30 [LIST_TYPE] => L [MULTIPLE] => N [XML_ID] => [FILE_TYPE] => [MULTIPLE_CNT] => 5 [LINK_IBLOCK_ID] => 0 [WITH_DESCRIPTION] => N [SEARCHABLE] => N [FILTRABLE] => N [IS_REQUIRED] => N [VERSION] => 1 [USER_TYPE] => [USER_TYPE_SETTINGS] => Array ( ) [HINT] => [~NAME] => Диаметр опорного фланца, мм [~DEFAULT_VALUE] => [VALUE_ENUM] => [VALUE_XML_ID] => [VALUE_SORT] => [VALUE] => [PROPERTY_VALUE_ID] => [DESCRIPTION] => [~DESCRIPTION] => [~VALUE] => ) [CENTER_DIST] => Array ( [ID] => 174 [IBLOCK_ID] => 2 [NAME] => Межцентровое расстояние, мм [ACTIVE] => Y [SORT] => 500 [CODE] => CENTER_DIST [DEFAULT_VALUE] => [PROPERTY_TYPE] => S [ROW_COUNT] => 1 [COL_COUNT] => 30 [LIST_TYPE] => L [MULTIPLE] => N [XML_ID] => [FILE_TYPE] => [MULTIPLE_CNT] => 5 [LINK_IBLOCK_ID] => 0 [WITH_DESCRIPTION] => N [SEARCHABLE] => N [FILTRABLE] => N [IS_REQUIRED] => N [VERSION] => 1 [USER_TYPE] => [USER_TYPE_SETTINGS] => Array ( ) [HINT] => [~NAME] => Межцентровое расстояние, мм [~DEFAULT_VALUE] => [VALUE_ENUM] => [VALUE_XML_ID] => [VALUE_SORT] => [VALUE] => [PROPERTY_VALUE_ID] => [DESCRIPTION] => [~DESCRIPTION] => [~VALUE] => ) [FLANEC_THICKNESS] => Array ( [ID] => 175 [IBLOCK_ID] => 2 [NAME] => Толщина фланца, мм [ACTIVE] => Y [SORT] => 500 [CODE] => FLANEC_THICKNESS [DEFAULT_VALUE] => [PROPERTY_TYPE] => S [ROW_COUNT] => 1 [COL_COUNT] => 30 [LIST_TYPE] => L [MULTIPLE] => N [XML_ID] => [FILE_TYPE] => [MULTIPLE_CNT] => 5 [LINK_IBLOCK_ID] => 0 [WITH_DESCRIPTION] => N [SEARCHABLE] => N [FILTRABLE] => N [IS_REQUIRED] => N [VERSION] => 1 [USER_TYPE] => [USER_TYPE_SETTINGS] => Array ( ) [HINT] => [~NAME] => Толщина фланца, мм [~DEFAULT_VALUE] => [VALUE_ENUM] => [VALUE_XML_ID] => [VALUE_SORT] => [VALUE] => [PROPERTY_VALUE_ID] => [DESCRIPTION] => [~DESCRIPTION] => [~VALUE] => ) [COUNT_HOLE] => Array ( [ID] => 176 [IBLOCK_ID] => 2 [NAME] => Количество отверстий крепления, шт [ACTIVE] => Y [SORT] => 500 [CODE] => COUNT_HOLE [DEFAULT_VALUE] => [PROPERTY_TYPE] => S [ROW_COUNT] => 1 [COL_COUNT] => 30 [LIST_TYPE] => L [MULTIPLE] => N [XML_ID] => [FILE_TYPE] => [MULTIPLE_CNT] => 5 [LINK_IBLOCK_ID] => 0 [WITH_DESCRIPTION] => N [SEARCHABLE] => N [FILTRABLE] => N [IS_REQUIRED] => N [VERSION] => 1 [USER_TYPE] => [USER_TYPE_SETTINGS] => Array ( ) [HINT] => [~NAME] => Количество отверстий крепления, шт [~DEFAULT_VALUE] => [VALUE_ENUM] => [VALUE_XML_ID] => [VALUE_SORT] => [VALUE] => [PROPERTY_VALUE_ID] => [DESCRIPTION] => [~DESCRIPTION] => [~VALUE] => ) [INSPECTION_WINDOW] => Array ( [ID] => 179 [IBLOCK_ID] => 2 [NAME] => Ревизионное окно, мм [ACTIVE] => Y [SORT] => 500 [CODE] => INSPECTION_WINDOW [DEFAULT_VALUE] => [PROPERTY_TYPE] => S [ROW_COUNT] => 1 [COL_COUNT] => 30 [LIST_TYPE] => L [MULTIPLE] => N [XML_ID] => [FILE_TYPE] => [MULTIPLE_CNT] => 5 [LINK_IBLOCK_ID] => 0 [WITH_DESCRIPTION] => N [SEARCHABLE] => N [FILTRABLE] => N [IS_REQUIRED] => N [VERSION] => 1 [USER_TYPE] => [USER_TYPE_SETTINGS] => Array ( ) [HINT] => [~NAME] => Ревизионное окно, мм [~DEFAULT_VALUE] => [VALUE_ENUM] => [VALUE_XML_ID] => [VALUE_SORT] => [VALUE] => [PROPERTY_VALUE_ID] => [DESCRIPTION] => [~DESCRIPTION] => [~VALUE] => ) [THREE_MODEL] => Array ( [ID] => 182 [IBLOCK_ID] => 2 [NAME] => 3D-модель [ACTIVE] => Y [SORT] => 500 [CODE] => THREE_MODEL [DEFAULT_VALUE] => [PROPERTY_TYPE] => F [ROW_COUNT] => 1 [COL_COUNT] => 30 [LIST_TYPE] => L [MULTIPLE] => N [XML_ID] => [FILE_TYPE] => [MULTIPLE_CNT] => 5 [LINK_IBLOCK_ID] => 0 [WITH_DESCRIPTION] => N [SEARCHABLE] => N [FILTRABLE] => N [IS_REQUIRED] => N [VERSION] => 1 [USER_TYPE] => [USER_TYPE_SETTINGS] => Array ( ) [HINT] => [~NAME] => 3D-модель [~DEFAULT_VALUE] => [VALUE_ENUM] => [VALUE_XML_ID] => [VALUE_SORT] => [VALUE] => [PROPERTY_VALUE_ID] => [DESCRIPTION] => [~DESCRIPTION] => [~VALUE] => ) [FAQ] => Array ( [ID] => 183 [IBLOCK_ID] => 2 [NAME] => FAQ [ACTIVE] => Y [SORT] => 500 [CODE] => FAQ [DEFAULT_VALUE] => Array ( [TYPE] => TEXT [TEXT] => ) [PROPERTY_TYPE] => S [ROW_COUNT] => 1 [COL_COUNT] => 30 [LIST_TYPE] => L [MULTIPLE] => N [XML_ID] => [FILE_TYPE] => [MULTIPLE_CNT] => 5 [LINK_IBLOCK_ID] => 0 [WITH_DESCRIPTION] => N [SEARCHABLE] => N [FILTRABLE] => N [IS_REQUIRED] => N [VERSION] => 1 [USER_TYPE] => HTML [USER_TYPE_SETTINGS] => Array ( [height] => 200 ) [HINT] => [~NAME] => FAQ [~DEFAULT_VALUE] => Array ( [TYPE] => TEXT [TEXT] => ) [VALUE_ENUM] => [VALUE_XML_ID] => [VALUE_SORT] => [VALUE] => [PROPERTY_VALUE_ID] => [DESCRIPTION] => [~DESCRIPTION] => [~VALUE] => ) ) [DISPLAY_PROPERTIES] => Array ( [ITEM_PRICE] => Array ( [ID] => 22 [IBLOCK_ID] => 2 [NAME] => Цена [ACTIVE] => Y [SORT] => 3 [CODE] => ITEM_PRICE [DEFAULT_VALUE] => [PROPERTY_TYPE] => L [ROW_COUNT] => 1 [COL_COUNT] => 30 [LIST_TYPE] => L [MULTIPLE] => N [XML_ID] => 22 [FILE_TYPE] => [MULTIPLE_CNT] => 5 [LINK_IBLOCK_ID] => 0 [WITH_DESCRIPTION] => N [SEARCHABLE] => N [FILTRABLE] => N [IS_REQUIRED] => Y [VERSION] => 1 [USER_TYPE] => [USER_TYPE_SETTINGS] => Array ( ) [HINT] => [~NAME] => Цена [~DEFAULT_VALUE] => [VALUE_ENUM] => По запросу [VALUE_XML_ID] => on-request [VALUE_SORT] => 1 [VALUE] => По запросу [PROPERTY_VALUE_ID] => 6825493 [VALUE_ENUM_ID] => 9 [DESCRIPTION] => [~VALUE] => По запросу [~DESCRIPTION] => [DISPLAY_VALUE] => По запросу ) [ITEM_CHARACTERISTICS] => Array ( [ID] => 28 [IBLOCK_ID] => 2 [NAME] => Характеристики [ACTIVE] => Y [SORT] => 6 [CODE] => ITEM_CHARACTERISTICS [DEFAULT_VALUE] => [PROPERTY_TYPE] => S [ROW_COUNT] => 1 [COL_COUNT] => 20 [LIST_TYPE] => L [MULTIPLE] => Y [XML_ID] => 28 [FILE_TYPE] => [MULTIPLE_CNT] => 1 [LINK_IBLOCK_ID] => 0 [WITH_DESCRIPTION] => Y [SEARCHABLE] => N [FILTRABLE] => N [IS_REQUIRED] => N [VERSION] => 1 [USER_TYPE] => [USER_TYPE_SETTINGS] => Array ( ) [HINT] => [~NAME] => Характеристики [~DEFAULT_VALUE] => [VALUE_ENUM] => [VALUE_XML_ID] => [VALUE_SORT] => [VALUE] => Array ( [0] => ВЛ 110 кВ по шифру 22.0099 [1] => 110 [2] => одноцепная [3] => 750 [4] => 200 [5] => 25000 [6] => 17200 [7] => горячее цинкование [8] => Порошковое / полимерное окрашивание [9] => 30 лет [10] => промежуточная ) [PROPERTY_VALUE_ID] => Array ( [0] => 6820916 [1] => 6820917 [2] => 6820918 [3] => 6820919 [4] => 6820920 [5] => 6820921 [6] => 6820922 [7] => 6820923 [8] => 6820924 [9] => 6820925 [10] => 6825494 ) [DESCRIPTION] => Array ( [0] => Тип [1] => Класс напряжения, кВ [2] => Конструкция [3] => Диаметр нижний, мм [4] => Диаметр верхний, мм [5] => Высота, мм [6] => Высота до нижней траверсы, мм [7] => Защитное покрытие [8] => Лакокрасочное покрытие [9] => Срок службы [10] => Назначение ) [~VALUE] => Array ( [0] => ВЛ 110 кВ по шифру 22.0099 [1] => 110 [2] => одноцепная [3] => 750 [4] => 200 [5] => 25000 [6] => 17200 [7] => горячее цинкование [8] => Порошковое / полимерное окрашивание [9] => 30 лет [10] => промежуточная ) [~DESCRIPTION] => Array ( [0] => Тип [1] => Класс напряжения, кВ [2] => Конструкция [3] => Диаметр нижний, мм [4] => Диаметр верхний, мм [5] => Высота, мм [6] => Высота до нижней траверсы, мм [7] => Защитное покрытие [8] => Лакокрасочное покрытие [9] => Срок службы [10] => Назначение ) [DISPLAY_VALUE] => Array ( [0] => ВЛ 110 кВ по шифру 22.0099 [1] => 110 [2] => одноцепная [3] => 750 [4] => 200 [5] => 25000 [6] => 17200 [7] => горячее цинкование [8] => Порошковое / полимерное окрашивание [9] => 30 лет [10] => промежуточная ) ) ) [PRODUCT_PROPERTIES] => Array ( ) [PRODUCT_PROPERTIES_FILL] => Array ( ) [OFFERS] => Array ( ) [OFFER_ID_SELECTED] => 0 [CHECK_QUANTITY] => [ITEM_PRICE_MODE] => [ITEM_PRICES] => Array ( ) [ITEM_QUANTITY_RANGES] => Array ( ) [ITEM_MEASURE_RATIOS] => Array ( [2871] => Array ( [ID] => 2871 [RATIO] => 1 [IS_DEFAULT] => Y [PRODUCT_ID] => 15354 ) ) [ITEM_MEASURE] => Array ( [ID] => 5 [TITLE] => шт [~TITLE] => шт ) [ITEM_MEASURE_RATIO_SELECTED] => 2871 [ITEM_QUANTITY_RANGE_SELECTED] => [ITEM_PRICE_SELECTED] => [EDIT_LINK] => [DELETE_LINK] => [SECTION] => Array ( [PATH] => Array ( ) ) [CAN_BUY] => )
В наличии
Способ установки: прямостоечная
Способ производства: граненая
Высота, мм: 9000
Цена по запросу
Array
(
    [ID] => 15346
    [~ID] => 15346
    [IBLOCK_ID] => 2
    [~IBLOCK_ID] => 2
    [CODE] => pm10-1
    [~CODE] => pm10-1
    [XML_ID] => 15346
    [~XML_ID] => 15346
    [NAME] => Многогранная опора ПМ10-1
    [~NAME] => Многогранная опора ПМ10-1
    [ACTIVE] => Y
    [~ACTIVE] => Y
    [DATE_ACTIVE_FROM] => 
    [~DATE_ACTIVE_FROM] => 
    [DATE_ACTIVE_TO] => 
    [~DATE_ACTIVE_TO] => 
    [SORT] => 0
    [~SORT] => 0
    [PREVIEW_TEXT] => 
    [~PREVIEW_TEXT] => 
    [PREVIEW_TEXT_TYPE] => text
    [~PREVIEW_TEXT_TYPE] => text
    [DETAIL_TEXT] => 

Многогранная опора ПМ10-1, разработанная по типовому проекту 22.0028, представляет собой одноцепную свободностоящую конструкцию для строительства воздушных линий электропередачи напряжением 6-10 кВ. Ее общая высота составляет 9 метров, что обеспечивает необходимое расстояние от проводов до земли. Конструкция предназначена для установки непосредственно в грунт без сооружения бетонного фундамента, что значительно упрощает и ускоряет монтажные работы. Изготовленная из конструкционной стали марки С245, опора обладает необходимой прочностью для выполнения своих функций. Для обеспечения долговечности в условиях постоянного воздействия окружающей среды все металлические элементы защищены от коррозии методом горячего цинкования. Конструкция рассчитана для эксплуатации в ветровых районах с I по VI, подтверждая свою надежность в различных климатических условиях.

Главной особенностью конструкции опоры ПМ10-1 является метод ее установки. Нижняя часть ствола заглубляется непосредственно в подготовленный котлован и заливается бетонной смесью, что обеспечивает надежную фиксацию и несущую способность. Такой способ монтажа исключает необходимость в дорогостоящих и трудоемких фундаментных работах, сокращая сроки и бюджет строительства. Опора имеет цилиндрическую граненую форму с постоянным диаметром ствола 310 мм по всей высоте. Конструкция не оснащена тросостойкой для грозотроса и рассчитана на восприятие нагрузок, действующих перпендикулярно оси линии. Простота конструкции и отсутствие сложных узлов крепления делают процесс установки быстрым и не требующим применения тяжелой строительной техники.

[~DETAIL_TEXT] =>

Многогранная опора ПМ10-1, разработанная по типовому проекту 22.0028, представляет собой одноцепную свободностоящую конструкцию для строительства воздушных линий электропередачи напряжением 6-10 кВ. Ее общая высота составляет 9 метров, что обеспечивает необходимое расстояние от проводов до земли. Конструкция предназначена для установки непосредственно в грунт без сооружения бетонного фундамента, что значительно упрощает и ускоряет монтажные работы. Изготовленная из конструкционной стали марки С245, опора обладает необходимой прочностью для выполнения своих функций. Для обеспечения долговечности в условиях постоянного воздействия окружающей среды все металлические элементы защищены от коррозии методом горячего цинкования. Конструкция рассчитана для эксплуатации в ветровых районах с I по VI, подтверждая свою надежность в различных климатических условиях.

Главной особенностью конструкции опоры ПМ10-1 является метод ее установки. Нижняя часть ствола заглубляется непосредственно в подготовленный котлован и заливается бетонной смесью, что обеспечивает надежную фиксацию и несущую способность. Такой способ монтажа исключает необходимость в дорогостоящих и трудоемких фундаментных работах, сокращая сроки и бюджет строительства. Опора имеет цилиндрическую граненую форму с постоянным диаметром ствола 310 мм по всей высоте. Конструкция не оснащена тросостойкой для грозотроса и рассчитана на восприятие нагрузок, действующих перпендикулярно оси линии. Простота конструкции и отсутствие сложных узлов крепления делают процесс установки быстрым и не требующим применения тяжелой строительной техники.

[DETAIL_TEXT_TYPE] => html [~DETAIL_TEXT_TYPE] => html [DATE_CREATE] => 07.11.2023 15:10:01 [~DATE_CREATE] => 07.11.2023 15:10:01 [CREATED_BY] => 1 [~CREATED_BY] => 1 [TAGS] => [~TAGS] => [TIMESTAMP_X] => 15.12.2025 12:58:38 [~TIMESTAMP_X] => 15.12.2025 12:58:38 [MODIFIED_BY] => 1 [~MODIFIED_BY] => 1 [IBLOCK_SECTION_ID] => 2756 [~IBLOCK_SECTION_ID] => 2952 [DETAIL_PAGE_URL] => /product/pm10-1/ [~DETAIL_PAGE_URL] => /product/pm10-1/ [DETAIL_PICTURE] => [~DETAIL_PICTURE] => [PREVIEW_PICTURE] => Array ( [ID] => 35218 [TIMESTAMP_X] => 15.12.2025 12:58:38 [MODULE_ID] => iblock [HEIGHT] => 1000 [WIDTH] => 1000 [FILE_SIZE] => 148388 [CONTENT_TYPE] => image/jpeg [SUBDIR] => iblock/8bc/e71s9wskhfv1gn2prgn8s0nqupcf53gu [FILE_NAME] => catalog_file_2067_l.jpg [ORIGINAL_NAME] => catalog-file-2067-l.jpg [DESCRIPTION] => [HANDLER_ID] => [EXTERNAL_ID] => ef90c4864221a0c4c80e0c9d8f75d882 [VERSION_ORIGINAL_ID] => [META] => [SRC] => /upload/dev2fun.imagecompress/webp/iblock/8bc/e71s9wskhfv1gn2prgn8s0nqupcf53gu/catalog_file_2067_l.webp [UNSAFE_SRC] => /upload/dev2fun.imagecompress/webp/iblock/8bc/e71s9wskhfv1gn2prgn8s0nqupcf53gu/catalog_file_2067_l.webp [SAFE_SRC] => /upload/dev2fun.imagecompress/webp/iblock/8bc/e71s9wskhfv1gn2prgn8s0nqupcf53gu/catalog_file_2067_l.webp [ALT] => Многогранная опора ПМ10-1 [TITLE] => Многогранная опора ПМ10-1 ) [~PREVIEW_PICTURE] => 35218 [LANG_DIR] => / [~LANG_DIR] => / [EXTERNAL_ID] => 15346 [~EXTERNAL_ID] => 15346 [IBLOCK_TYPE_ID] => catalog [~IBLOCK_TYPE_ID] => catalog [IBLOCK_CODE] => metalstructures [~IBLOCK_CODE] => metalstructures [IBLOCK_EXTERNAL_ID] => clothes [~IBLOCK_EXTERNAL_ID] => clothes [LID] => s1 [~LID] => s1 [IPROPERTY_VALUES] => Array ( [ELEMENT_META_TITLE] => Многогранная опора ПМ10-1 для высоковольтных линий 6-10 кВ купить в {{rp}} на сайте производителя НПО Легион [ELEMENT_META_DESCRIPTION] => Производство стальных многогранных опор ПМ10-1 для высоковольтных линий 6-10 кВ по шифру 22.0028 в {{rp}}. Заказать многогранные опоры ЛЭП у производителя НПО Легион. Наличие товара на складе. Звоните ☎ {{subdomain_tel}} [ELEMENT_META_KEYWORDS] => Производство стальных Многогранные опоры ПМ10-1 цена по запросу купить Опоры ВЛ 6-10 кВ ЛЭП [SECTION_META_TITLE] => Многогранные опоры ВЛ 6-10кВ по шифру 22.0028 купить в {{rp}} на сайте производителя НПО Легион [SECTION_META_DESCRIPTION] => Производство многогранных опор ВЛ 6-10кВ. Купить напрямую у производителя в {{rp}}. Собственное производство. Наличие товара на складе. Звоните ☎ {{subdomain_tel}} [SECTION_META_KEYWORDS] => Многоранные опоры ЛЭП производство продажа купить многогранные ВЛ 6-10кВ для линий электропередач [ELEMENT_DETAIL_PICTURE_FILE_NAME] => [ELEMENT_PREVIEW_PICTURE_FILE_NAME] => [SECTION_DETAIL_PICTURE_FILE_NAME] => [SECTION_PICTURE_FILE_NAME] => [SECTION_PAGE_TITLE] => Многогранная опора ПМ10-1 [ELEMENT_PAGE_TITLE] => Многогранная опора ПМ10-1 ) [PRODUCT] => Array ( [TYPE] => 1 [AVAILABLE] => Y [BUNDLE] => N [QUANTITY] => 10 [QUANTITY_TRACE] => N [CAN_BUY_ZERO] => Y [MEASURE] => 5 [SUBSCRIBE] => Y [VAT_ID] => 0 [VAT_RATE] => 0 [VAT_INCLUDED] => N [WEIGHT] => 0 [WIDTH] => 0 [LENGTH] => 0 [HEIGHT] => 0 [PAYMENT_TYPE] => S [RECUR_SCHEME_TYPE] => D [RECUR_SCHEME_LENGTH] => 0 [TRIAL_PRICE_ID] => 0 [USE_OFFERS] => ) [~CATALOG_TYPE] => 1 [CATALOG_TYPE] => 1 [~CATALOG_QUANTITY] => 10 [CATALOG_QUANTITY] => 10 [~CATALOG_QUANTITY_TRACE] => N [CATALOG_QUANTITY_TRACE] => N [~CATALOG_CAN_BUY_ZERO] => Y [CATALOG_CAN_BUY_ZERO] => Y [~CATALOG_SUBSCRIBE] => Y [CATALOG_SUBSCRIBE] => Y [PROPERTIES] => Array ( [ITEM_DELIVERY] => Array ( [ID] => 20 [IBLOCK_ID] => 2 [NAME] => Доставка [ACTIVE] => Y [SORT] => 1 [CODE] => ITEM_DELIVERY [DEFAULT_VALUE] => [PROPERTY_TYPE] => L [ROW_COUNT] => 1 [COL_COUNT] => 30 [LIST_TYPE] => L [MULTIPLE] => N [XML_ID] => 20 [FILE_TYPE] => [MULTIPLE_CNT] => 5 [LINK_IBLOCK_ID] => 0 [WITH_DESCRIPTION] => N [SEARCHABLE] => N [FILTRABLE] => N [IS_REQUIRED] => Y [VERSION] => 1 [USER_TYPE] => [USER_TYPE_SETTINGS] => Array ( ) [HINT] => [~NAME] => Доставка [~DEFAULT_VALUE] => [VALUE_ENUM] => По России и СНГ [VALUE_XML_ID] => ru-sng [VALUE_SORT] => 1 [VALUE] => По России и СНГ [PROPERTY_VALUE_ID] => 6825564 [VALUE_ENUM_ID] => 7 [DESCRIPTION] => [~VALUE] => По России и СНГ [~DESCRIPTION] => ) [ITEM_PAYMENT] => Array ( [ID] => 21 [IBLOCK_ID] => 2 [NAME] => Оплата [ACTIVE] => Y [SORT] => 2 [CODE] => ITEM_PAYMENT [DEFAULT_VALUE] => [PROPERTY_TYPE] => L [ROW_COUNT] => 1 [COL_COUNT] => 30 [LIST_TYPE] => L [MULTIPLE] => N [XML_ID] => 21 [FILE_TYPE] => [MULTIPLE_CNT] => 5 [LINK_IBLOCK_ID] => 0 [WITH_DESCRIPTION] => N [SEARCHABLE] => N [FILTRABLE] => N [IS_REQUIRED] => Y [VERSION] => 1 [USER_TYPE] => [USER_TYPE_SETTINGS] => Array ( ) [HINT] => [~NAME] => Оплата [~DEFAULT_VALUE] => [VALUE_ENUM] => Безналичный расчет [VALUE_XML_ID] => payment-bank [VALUE_SORT] => 1 [VALUE] => Безналичный расчет [PROPERTY_VALUE_ID] => 6825565 [VALUE_ENUM_ID] => 8 [DESCRIPTION] => [~VALUE] => Безналичный расчет [~DESCRIPTION] => ) [ITEM_PRICE] => Array ( [ID] => 22 [IBLOCK_ID] => 2 [NAME] => Цена [ACTIVE] => Y [SORT] => 3 [CODE] => ITEM_PRICE [DEFAULT_VALUE] => [PROPERTY_TYPE] => L [ROW_COUNT] => 1 [COL_COUNT] => 30 [LIST_TYPE] => L [MULTIPLE] => N [XML_ID] => 22 [FILE_TYPE] => [MULTIPLE_CNT] => 5 [LINK_IBLOCK_ID] => 0 [WITH_DESCRIPTION] => N [SEARCHABLE] => N [FILTRABLE] => N [IS_REQUIRED] => Y [VERSION] => 1 [USER_TYPE] => [USER_TYPE_SETTINGS] => Array ( ) [HINT] => [~NAME] => Цена [~DEFAULT_VALUE] => [VALUE_ENUM] => По запросу [VALUE_XML_ID] => on-request [VALUE_SORT] => 1 [VALUE] => По запросу [PROPERTY_VALUE_ID] => 6825566 [VALUE_ENUM_ID] => 9 [DESCRIPTION] => [~VALUE] => По запросу [~DESCRIPTION] => ) [ITEM_IMAGES] => Array ( [ID] => 23 [IBLOCK_ID] => 2 [NAME] => Изображения [ACTIVE] => Y [SORT] => 4 [CODE] => ITEM_IMAGES [DEFAULT_VALUE] => [PROPERTY_TYPE] => F [ROW_COUNT] => 1 [COL_COUNT] => 30 [LIST_TYPE] => L [MULTIPLE] => Y [XML_ID] => 23 [FILE_TYPE] => [MULTIPLE_CNT] => 5 [LINK_IBLOCK_ID] => 0 [WITH_DESCRIPTION] => N [SEARCHABLE] => N [FILTRABLE] => N [IS_REQUIRED] => N [VERSION] => 1 [USER_TYPE] => [USER_TYPE_SETTINGS] => Array ( ) [HINT] => [~NAME] => Изображения [~DEFAULT_VALUE] => [VALUE_ENUM] => [VALUE_XML_ID] => [VALUE_SORT] => [VALUE] => Array ( [0] => 35219 [1] => 35220 [2] => 35221 [3] => 35222 ) [PROPERTY_VALUE_ID] => Array ( [0] => 5932831 [1] => 5932832 [2] => 5932833 [3] => 5932834 ) [DESCRIPTION] => Array ( [0] => [1] => [2] => [3] => ) [~VALUE] => Array ( [0] => 35219 [1] => 35220 [2] => 35221 [3] => 35222 ) [~DESCRIPTION] => Array ( [0] => [1] => [2] => [3] => ) ) [ITEM_PROPERTIES] => Array ( [ID] => 24 [IBLOCK_ID] => 2 [NAME] => Свойства [ACTIVE] => Y [SORT] => 5 [CODE] => ITEM_PROPERTIES [DEFAULT_VALUE] => [PROPERTY_TYPE] => E [ROW_COUNT] => 1 [COL_COUNT] => 30 [LIST_TYPE] => L [MULTIPLE] => Y [XML_ID] => 24 [FILE_TYPE] => [MULTIPLE_CNT] => 1 [LINK_IBLOCK_ID] => 3 [WITH_DESCRIPTION] => N [SEARCHABLE] => N [FILTRABLE] => N [IS_REQUIRED] => N [VERSION] => 1 [USER_TYPE] => [USER_TYPE_SETTINGS] => Array ( ) [HINT] => [~NAME] => Свойства [~DEFAULT_VALUE] => [VALUE_ENUM] => [VALUE_XML_ID] => [VALUE_SORT] => [VALUE] => [PROPERTY_VALUE_ID] => [DESCRIPTION] => [~DESCRIPTION] => [~VALUE] => ) [ITEM_CHARACTERISTICS] => Array ( [ID] => 28 [IBLOCK_ID] => 2 [NAME] => Характеристики [ACTIVE] => Y [SORT] => 6 [CODE] => ITEM_CHARACTERISTICS [DEFAULT_VALUE] => [PROPERTY_TYPE] => S [ROW_COUNT] => 1 [COL_COUNT] => 20 [LIST_TYPE] => L [MULTIPLE] => Y [XML_ID] => 28 [FILE_TYPE] => [MULTIPLE_CNT] => 1 [LINK_IBLOCK_ID] => 0 [WITH_DESCRIPTION] => Y [SEARCHABLE] => N [FILTRABLE] => N [IS_REQUIRED] => N [VERSION] => 1 [USER_TYPE] => [USER_TYPE_SETTINGS] => Array ( ) [HINT] => [~NAME] => Характеристики [~DEFAULT_VALUE] => [VALUE_ENUM] => [VALUE_XML_ID] => [VALUE_SORT] => [VALUE] => Array ( [0] => прямостоечная [1] => граненая [2] => 9000 [3] => 7800 [4] => 310 [5] => 10 [6] => одноцепная, свободностоящая, без тросостойки для грозотроса [7] => горячее цинкование [8] => Порошковое / полимерное окрашивание [9] => 30 лет [10] => промежуточная ) [PROPERTY_VALUE_ID] => Array ( [0] => 6825209 [1] => 6825210 [2] => 6825211 [3] => 6825212 [4] => 6825213 [5] => 6825214 [6] => 6825215 [7] => 6825216 [8] => 6825217 [9] => 6825218 [10] => 6825567 ) [DESCRIPTION] => Array ( [0] => Способ установки [1] => Способ производства [2] => Высота, мм [3] => Высота до нижней траверсы, мм [4] => Диаметр стойки, мм [5] => Класс напряжения, кВ [6] => Конструкция [7] => Защитное покрытие [8] => Лакокрасочное покрытие [9] => Срок службы [10] => Назначение ) [~VALUE] => Array ( [0] => прямостоечная [1] => граненая [2] => 9000 [3] => 7800 [4] => 310 [5] => 10 [6] => одноцепная, свободностоящая, без тросостойки для грозотроса [7] => горячее цинкование [8] => Порошковое / полимерное окрашивание [9] => 30 лет [10] => промежуточная ) [~DESCRIPTION] => Array ( [0] => Способ установки [1] => Способ производства [2] => Высота, мм [3] => Высота до нижней траверсы, мм [4] => Диаметр стойки, мм [5] => Класс напряжения, кВ [6] => Конструкция [7] => Защитное покрытие [8] => Лакокрасочное покрытие [9] => Срок службы [10] => Назначение ) ) [ITEM_FILTER] => Array ( [ID] => 40 [IBLOCK_ID] => 2 [NAME] => Фильтр [ACTIVE] => Y [SORT] => 7 [CODE] => ITEM_FILTER [DEFAULT_VALUE] => [PROPERTY_TYPE] => S [ROW_COUNT] => 1 [COL_COUNT] => 30 [LIST_TYPE] => L [MULTIPLE] => N [XML_ID] => 40 [FILE_TYPE] => [MULTIPLE_CNT] => 5 [LINK_IBLOCK_ID] => 0 [WITH_DESCRIPTION] => N [SEARCHABLE] => N [FILTRABLE] => N [IS_REQUIRED] => N [VERSION] => 1 [USER_TYPE] => [USER_TYPE_SETTINGS] => Array ( ) [HINT] => [~NAME] => Фильтр [~DEFAULT_VALUE] => [VALUE_ENUM] => [VALUE_XML_ID] => [VALUE_SORT] => [VALUE] => [PROPERTY_VALUE_ID] => [DESCRIPTION] => [~DESCRIPTION] => [~VALUE] => ) [ITEM_TECH_CH] => Array ( [ID] => 29 [IBLOCK_ID] => 2 [NAME] => Технические характеристики [ACTIVE] => Y [SORT] => 8 [CODE] => ITEM_TECH_CH [DEFAULT_VALUE] => Array ( [TYPE] => HTML [TEXT] => ) [PROPERTY_TYPE] => S [ROW_COUNT] => 1 [COL_COUNT] => 30 [LIST_TYPE] => L [MULTIPLE] => N [XML_ID] => 29 [FILE_TYPE] => [MULTIPLE_CNT] => 5 [LINK_IBLOCK_ID] => 0 [WITH_DESCRIPTION] => N [SEARCHABLE] => N [FILTRABLE] => N [IS_REQUIRED] => N [VERSION] => 1 [USER_TYPE] => HTML [USER_TYPE_SETTINGS] => Array ( [height] => 200 ) [HINT] => [~NAME] => Технические характеристики [~DEFAULT_VALUE] => Array ( [TYPE] => HTML [TEXT] => ) [VALUE_ENUM] => [VALUE_XML_ID] => [VALUE_SORT] => [VALUE] => Array ( [TEXT] => <p style="text-align: justify;"> Опоры ПМ10-1 применяются для поддержания проводов на прямых участках трасс воздушных линий электропередачи. Они востребованы при строительстве новых распределительных сетей 6-10 кВ в сельской местности, поселках и на территории промышленных зон. Данная модель оптимальна для модернизации и реконструкции существующих линий, где требуется замена устаревших деревянных или железобетонных опор на более долговечные стальные конструкции. Опоры используются при сооружении ответвлений от магистральных линий к отдельным потребителям, таким как жилые дома, фермы или малые предприятия. Благодаря простой установке они эффективны на участках со сложным рельефом, где возведение фундамента затруднено. </p> [TYPE] => HTML ) [PROPERTY_VALUE_ID] => 6825219 [DESCRIPTION] => [~VALUE] => Array ( [TEXT] =>

Опоры ПМ10-1 применяются для поддержания проводов на прямых участках трасс воздушных линий электропередачи. Они востребованы при строительстве новых распределительных сетей 6-10 кВ в сельской местности, поселках и на территории промышленных зон. Данная модель оптимальна для модернизации и реконструкции существующих линий, где требуется замена устаревших деревянных или железобетонных опор на более долговечные стальные конструкции. Опоры используются при сооружении ответвлений от магистральных линий к отдельным потребителям, таким как жилые дома, фермы или малые предприятия. Благодаря простой установке они эффективны на участках со сложным рельефом, где возведение фундамента затруднено.

[TYPE] => HTML ) [~DESCRIPTION] => ) [ITEM_ADV_DESCR] => Array ( [ID] => 30 [IBLOCK_ID] => 2 [NAME] => Преимущества (описание) [ACTIVE] => Y [SORT] => 9 [CODE] => ITEM_ADV_DESCR [DEFAULT_VALUE] => Array ( [TYPE] => HTML [TEXT] => ) [PROPERTY_TYPE] => S [ROW_COUNT] => 1 [COL_COUNT] => 30 [LIST_TYPE] => L [MULTIPLE] => N [XML_ID] => 30 [FILE_TYPE] => [MULTIPLE_CNT] => 5 [LINK_IBLOCK_ID] => 0 [WITH_DESCRIPTION] => N [SEARCHABLE] => N [FILTRABLE] => N [IS_REQUIRED] => N [VERSION] => 1 [USER_TYPE] => HTML [USER_TYPE_SETTINGS] => Array ( [height] => 100 ) [HINT] => [~NAME] => Преимущества (описание) [~DEFAULT_VALUE] => Array ( [TYPE] => HTML [TEXT] => ) [VALUE_ENUM] => [VALUE_XML_ID] => [VALUE_SORT] => [VALUE] => Array ( [TEXT] => <p style="text-align: justify;"> Производство опор на нашем предприятии основано на строгом соблюдении технологических стандартов, что гарантирует высокие эксплуатационные характеристики. Применение метода горячего цинкования обеспечивает комплексную антикоррозионную защиту металла на срок не менее 30 лет, даже при непосредственном контакте с грунтом. Свободностоящая конструкция без оттяжек экономит занимаемую площадь, не создает помех для сельскохозяйственной или иной деятельности на прилегающей территории и упрощает обслуживание линии. Унифицированные размеры и соответствие типовому проекту гарантируют взаимозаменяемость и простоту интеграции опор в любые проекты распределительных сетей. Мы осуществляем полный контроль качества на всех этапах производства, от резки металла до формирования защитного покрытия, обеспечивая полное соответствие продукции требованиям ГОСТ и технических регламентов. </p> [TYPE] => HTML ) [PROPERTY_VALUE_ID] => 6825220 [DESCRIPTION] => [~VALUE] => Array ( [TEXT] =>

Производство опор на нашем предприятии основано на строгом соблюдении технологических стандартов, что гарантирует высокие эксплуатационные характеристики. Применение метода горячего цинкования обеспечивает комплексную антикоррозионную защиту металла на срок не менее 30 лет, даже при непосредственном контакте с грунтом. Свободностоящая конструкция без оттяжек экономит занимаемую площадь, не создает помех для сельскохозяйственной или иной деятельности на прилегающей территории и упрощает обслуживание линии. Унифицированные размеры и соответствие типовому проекту гарантируют взаимозаменяемость и простоту интеграции опор в любые проекты распределительных сетей. Мы осуществляем полный контроль качества на всех этапах производства, от резки металла до формирования защитного покрытия, обеспечивая полное соответствие продукции требованиям ГОСТ и технических регламентов.

[TYPE] => HTML ) [~DESCRIPTION] => ) [ITEM_ADV] => Array ( [ID] => 31 [IBLOCK_ID] => 2 [NAME] => Преимущества [ACTIVE] => Y [SORT] => 10 [CODE] => ITEM_ADV [DEFAULT_VALUE] => [PROPERTY_TYPE] => E [ROW_COUNT] => 1 [COL_COUNT] => 30 [LIST_TYPE] => L [MULTIPLE] => Y [XML_ID] => 31 [FILE_TYPE] => [MULTIPLE_CNT] => 1 [LINK_IBLOCK_ID] => 5 [WITH_DESCRIPTION] => N [SEARCHABLE] => N [FILTRABLE] => N [IS_REQUIRED] => N [VERSION] => 1 [USER_TYPE] => [USER_TYPE_SETTINGS] => Array ( ) [HINT] => [~NAME] => Преимущества [~DEFAULT_VALUE] => [VALUE_ENUM] => [VALUE_XML_ID] => [VALUE_SORT] => [VALUE] => [PROPERTY_VALUE_ID] => [DESCRIPTION] => [~DESCRIPTION] => [~VALUE] => ) [ITEM_BUY] => Array ( [ID] => 32 [IBLOCK_ID] => 2 [NAME] => Купить [ACTIVE] => Y [SORT] => 11 [CODE] => ITEM_BUY [DEFAULT_VALUE] => Array ( [TEXT] => [TYPE] => HTML ) [PROPERTY_TYPE] => S [ROW_COUNT] => 1 [COL_COUNT] => 30 [LIST_TYPE] => L [MULTIPLE] => N [XML_ID] => 32 [FILE_TYPE] => [MULTIPLE_CNT] => 5 [LINK_IBLOCK_ID] => 0 [WITH_DESCRIPTION] => N [SEARCHABLE] => N [FILTRABLE] => N [IS_REQUIRED] => N [VERSION] => 1 [USER_TYPE] => HTML [USER_TYPE_SETTINGS] => Array ( [height] => 200 ) [HINT] => [~NAME] => Купить [~DEFAULT_VALUE] => Array ( [TEXT] => [TYPE] => HTML ) [VALUE_ENUM] => [VALUE_XML_ID] => [VALUE_SORT] => [VALUE] => Array ( [TEXT] => <p style="text-align: justify;"> НПО «Легион» специализируется на производстве металлоконструкций для энергетики и предлагает комплексные поставки опор для воздушных линий электропередачи. Мы готовы изготовить опоры ПМ10-1 в необходимом количестве в сжатые сроки, обеспечив полный комплект сопроводительной документации. Наши специалисты предоставят детальные консультации по выбору, монтажу и эксплуатации конструкций. Для расчета стоимости партии, оформления заказа или получения подробных технических характеристик свяжитесь с нашими менеджерами. Мы организуем доставку продукции по всей территории Российской Федерации. </p> <p style="text-align: justify;"> </p> <p style="text-align: justify;"> Телефон: 8(800)500-51-37<br> Email: <a href="mailto:info@legionural.ru">info@legionural.ru</a> </p> <p> <a href="mailto:info@legionural.ru"></a> </p> [TYPE] => HTML ) [PROPERTY_VALUE_ID] => 6825221 [DESCRIPTION] => [~VALUE] => Array ( [TEXT] =>

НПО «Легион» специализируется на производстве металлоконструкций для энергетики и предлагает комплексные поставки опор для воздушных линий электропередачи. Мы готовы изготовить опоры ПМ10-1 в необходимом количестве в сжатые сроки, обеспечив полный комплект сопроводительной документации. Наши специалисты предоставят детальные консультации по выбору, монтажу и эксплуатации конструкций. Для расчета стоимости партии, оформления заказа или получения подробных технических характеристик свяжитесь с нашими менеджерами. Мы организуем доставку продукции по всей территории Российской Федерации.

Телефон: 8(800)500-51-37
Email: info@legionural.ru

[TYPE] => HTML ) [~DESCRIPTION] => ) [ITEM_CERT_COR] => Array ( [ID] => 33 [IBLOCK_ID] => 2 [NAME] => Сертификаты соответствия [ACTIVE] => Y [SORT] => 12 [CODE] => ITEM_CERT_COR [DEFAULT_VALUE] => [PROPERTY_TYPE] => S [ROW_COUNT] => 1 [COL_COUNT] => 30 [LIST_TYPE] => L [MULTIPLE] => Y [XML_ID] => 33 [FILE_TYPE] => [MULTIPLE_CNT] => 1 [LINK_IBLOCK_ID] => 0 [WITH_DESCRIPTION] => Y [SEARCHABLE] => N [FILTRABLE] => N [IS_REQUIRED] => N [VERSION] => 1 [USER_TYPE] => [USER_TYPE_SETTINGS] => Array ( ) [HINT] => [~NAME] => Сертификаты соответствия [~DEFAULT_VALUE] => [VALUE_ENUM] => [VALUE_XML_ID] => [VALUE_SORT] => [VALUE] => [PROPERTY_VALUE_ID] => [DESCRIPTION] => [~DESCRIPTION] => [~VALUE] => ) [ITEM_ST_STAND] => Array ( [ID] => 34 [IBLOCK_ID] => 2 [NAME] => Государственные стандарты [ACTIVE] => Y [SORT] => 13 [CODE] => ITEM_ST_STAND [DEFAULT_VALUE] => [PROPERTY_TYPE] => S [ROW_COUNT] => 1 [COL_COUNT] => 30 [LIST_TYPE] => L [MULTIPLE] => Y [XML_ID] => 34 [FILE_TYPE] => [MULTIPLE_CNT] => 1 [LINK_IBLOCK_ID] => 0 [WITH_DESCRIPTION] => Y [SEARCHABLE] => N [FILTRABLE] => N [IS_REQUIRED] => N [VERSION] => 1 [USER_TYPE] => [USER_TYPE_SETTINGS] => Array ( ) [HINT] => [~NAME] => Государственные стандарты [~DEFAULT_VALUE] => [VALUE_ENUM] => [VALUE_XML_ID] => [VALUE_SORT] => [VALUE] => [PROPERTY_VALUE_ID] => [DESCRIPTION] => [~DESCRIPTION] => [~VALUE] => ) [ITEM_NORM] => Array ( [ID] => 35 [IBLOCK_ID] => 2 [NAME] => Строительные нормы и правила [ACTIVE] => Y [SORT] => 14 [CODE] => ITEM_NORM [DEFAULT_VALUE] => [PROPERTY_TYPE] => S [ROW_COUNT] => 1 [COL_COUNT] => 30 [LIST_TYPE] => L [MULTIPLE] => Y [XML_ID] => 35 [FILE_TYPE] => [MULTIPLE_CNT] => 1 [LINK_IBLOCK_ID] => 0 [WITH_DESCRIPTION] => Y [SEARCHABLE] => N [FILTRABLE] => N [IS_REQUIRED] => N [VERSION] => 1 [USER_TYPE] => [USER_TYPE_SETTINGS] => Array ( ) [HINT] => [~NAME] => Строительные нормы и правила [~DEFAULT_VALUE] => [VALUE_ENUM] => [VALUE_XML_ID] => [VALUE_SORT] => [VALUE] => [PROPERTY_VALUE_ID] => [DESCRIPTION] => [~DESCRIPTION] => [~VALUE] => ) [ITEM_SIMILAR] => Array ( [ID] => 36 [IBLOCK_ID] => 2 [NAME] => Похожие модели [ACTIVE] => Y [SORT] => 15 [CODE] => ITEM_SIMILAR [DEFAULT_VALUE] => [PROPERTY_TYPE] => G [ROW_COUNT] => 1 [COL_COUNT] => 30 [LIST_TYPE] => L [MULTIPLE] => Y [XML_ID] => 36 [FILE_TYPE] => [MULTIPLE_CNT] => 10 [LINK_IBLOCK_ID] => 2 [WITH_DESCRIPTION] => N [SEARCHABLE] => N [FILTRABLE] => N [IS_REQUIRED] => N [VERSION] => 1 [USER_TYPE] => [USER_TYPE_SETTINGS] => Array ( ) [HINT] => [~NAME] => Похожие модели [~DEFAULT_VALUE] => [VALUE_ENUM] => [VALUE_XML_ID] => [VALUE_SORT] => [VALUE] => [PROPERTY_VALUE_ID] => [DESCRIPTION] => [~DESCRIPTION] => [~VALUE] => ) [ITEM_SIMILAR_TAGS] => Array ( [ID] => 122 [IBLOCK_ID] => 2 [NAME] => Похожие модели (теговые) [ACTIVE] => Y [SORT] => 16 [CODE] => ITEM_SIMILAR_TAGS [DEFAULT_VALUE] => [PROPERTY_TYPE] => E [ROW_COUNT] => 1 [COL_COUNT] => 30 [LIST_TYPE] => L [MULTIPLE] => Y [XML_ID] => 122 [FILE_TYPE] => [MULTIPLE_CNT] => 1 [LINK_IBLOCK_ID] => 19 [WITH_DESCRIPTION] => N [SEARCHABLE] => N [FILTRABLE] => N [IS_REQUIRED] => N [VERSION] => 1 [USER_TYPE] => [USER_TYPE_SETTINGS] => Array ( ) [HINT] => [~NAME] => Похожие модели (теговые) [~DEFAULT_VALUE] => [VALUE_ENUM] => [VALUE_XML_ID] => [VALUE_SORT] => [VALUE] => [PROPERTY_VALUE_ID] => [DESCRIPTION] => [~DESCRIPTION] => [~VALUE] => ) [ITEM_BUY_WITH] => Array ( [ID] => 37 [IBLOCK_ID] => 2 [NAME] => С этим товаром покупают [ACTIVE] => Y [SORT] => 17 [CODE] => ITEM_BUY_WITH [DEFAULT_VALUE] => [PROPERTY_TYPE] => E [ROW_COUNT] => 1 [COL_COUNT] => 30 [LIST_TYPE] => L [MULTIPLE] => Y [XML_ID] => 37 [FILE_TYPE] => [MULTIPLE_CNT] => 1 [LINK_IBLOCK_ID] => 2 [WITH_DESCRIPTION] => N [SEARCHABLE] => N [FILTRABLE] => N [IS_REQUIRED] => N [VERSION] => 1 [USER_TYPE] => [USER_TYPE_SETTINGS] => Array ( ) [HINT] => [~NAME] => С этим товаром покупают [~DEFAULT_VALUE] => [VALUE_ENUM] => [VALUE_XML_ID] => [VALUE_SORT] => [VALUE] => [PROPERTY_VALUE_ID] => [DESCRIPTION] => [~DESCRIPTION] => [~VALUE] => ) [ITEM_VOTE_COUNT] => Array ( [ID] => 38 [IBLOCK_ID] => 2 [NAME] => Количество голосов [ACTIVE] => Y [SORT] => 18 [CODE] => ITEM_VOTE_COUNT [DEFAULT_VALUE] => 0 [PROPERTY_TYPE] => N [ROW_COUNT] => 1 [COL_COUNT] => 30 [LIST_TYPE] => L [MULTIPLE] => N [XML_ID] => 38 [FILE_TYPE] => [MULTIPLE_CNT] => 5 [LINK_IBLOCK_ID] => 0 [WITH_DESCRIPTION] => N [SEARCHABLE] => N [FILTRABLE] => N [IS_REQUIRED] => N [VERSION] => 1 [USER_TYPE] => [USER_TYPE_SETTINGS] => Array ( ) [HINT] => [~NAME] => Количество голосов [~DEFAULT_VALUE] => 0 [VALUE_ENUM] => [VALUE_XML_ID] => [VALUE_SORT] => [VALUE] => 14 [PROPERTY_VALUE_ID] => 5932835 [DESCRIPTION] => [~VALUE] => 14 [~DESCRIPTION] => ) [ITEM_RAITING] => Array ( [ID] => 39 [IBLOCK_ID] => 2 [NAME] => Рейтинг [ACTIVE] => Y [SORT] => 19 [CODE] => ITEM_RAITING [DEFAULT_VALUE] => 0 [PROPERTY_TYPE] => N [ROW_COUNT] => 1 [COL_COUNT] => 30 [LIST_TYPE] => L [MULTIPLE] => N [XML_ID] => 39 [FILE_TYPE] => [MULTIPLE_CNT] => 5 [LINK_IBLOCK_ID] => 0 [WITH_DESCRIPTION] => N [SEARCHABLE] => N [FILTRABLE] => N [IS_REQUIRED] => N [VERSION] => 1 [USER_TYPE] => [USER_TYPE_SETTINGS] => Array ( ) [HINT] => [~NAME] => Рейтинг [~DEFAULT_VALUE] => 0 [VALUE_ENUM] => [VALUE_XML_ID] => [VALUE_SORT] => [VALUE] => 4.8 [PROPERTY_VALUE_ID] => 5932836 [DESCRIPTION] => [~VALUE] => 4.8 [~DESCRIPTION] => ) [H1] => Array ( [ID] => 125 [IBLOCK_ID] => 2 [NAME] => H1 [ACTIVE] => Y [SORT] => 500 [CODE] => H1 [DEFAULT_VALUE] => [PROPERTY_TYPE] => S [ROW_COUNT] => 1 [COL_COUNT] => 70 [LIST_TYPE] => L [MULTIPLE] => N [XML_ID] => 125 [FILE_TYPE] => [MULTIPLE_CNT] => 5 [LINK_IBLOCK_ID] => 0 [WITH_DESCRIPTION] => N [SEARCHABLE] => N [FILTRABLE] => N [IS_REQUIRED] => N [VERSION] => 1 [USER_TYPE] => [USER_TYPE_SETTINGS] => Array ( ) [HINT] => [~NAME] => H1 [~DEFAULT_VALUE] => [VALUE_ENUM] => [VALUE_XML_ID] => [VALUE_SORT] => [VALUE] => Многогранная опора ПМ10-1 [PROPERTY_VALUE_ID] => 5945335 [DESCRIPTION] => [~VALUE] => Многогранная опора ПМ10-1 [~DESCRIPTION] => ) [CERTIFICATES] => Array ( [ID] => 127 [IBLOCK_ID] => 2 [NAME] => Сертификаты [ACTIVE] => Y [SORT] => 500 [CODE] => CERTIFICATES [DEFAULT_VALUE] => [PROPERTY_TYPE] => E [ROW_COUNT] => 1 [COL_COUNT] => 30 [LIST_TYPE] => L [MULTIPLE] => Y [XML_ID] => 127 [FILE_TYPE] => [MULTIPLE_CNT] => 5 [LINK_IBLOCK_ID] => 7 [WITH_DESCRIPTION] => N [SEARCHABLE] => N [FILTRABLE] => N [IS_REQUIRED] => N [VERSION] => 1 [USER_TYPE] => [USER_TYPE_SETTINGS] => Array ( ) [HINT] => [~NAME] => Сертификаты [~DEFAULT_VALUE] => [VALUE_ENUM] => [VALUE_XML_ID] => [VALUE_SORT] => [VALUE] => [PROPERTY_VALUE_ID] => [DESCRIPTION] => [~DESCRIPTION] => [~VALUE] => ) [129] => Array ( [ID] => 129 [IBLOCK_ID] => 2 [NAME] => Уникальный META TITLE [ACTIVE] => Y [SORT] => 500 [CODE] => 129 [DEFAULT_VALUE] => [PROPERTY_TYPE] => S [ROW_COUNT] => 1 [COL_COUNT] => 30 [LIST_TYPE] => L [MULTIPLE] => N [XML_ID] => 129 [FILE_TYPE] => [MULTIPLE_CNT] => 5 [LINK_IBLOCK_ID] => 0 [WITH_DESCRIPTION] => N [SEARCHABLE] => N [FILTRABLE] => N [IS_REQUIRED] => N [VERSION] => 1 [USER_TYPE] => [USER_TYPE_SETTINGS] => Array ( ) [HINT] => [~NAME] => Уникальный META TITLE [~DEFAULT_VALUE] => [VALUE_ENUM] => [VALUE_XML_ID] => [VALUE_SORT] => [VALUE] => [PROPERTY_VALUE_ID] => [DESCRIPTION] => [~DESCRIPTION] => [~VALUE] => ) [ITEM_TYPE] => Array ( [ID] => 134 [IBLOCK_ID] => 2 [NAME] => Тип [ACTIVE] => Y [SORT] => 500 [CODE] => ITEM_TYPE [DEFAULT_VALUE] => [PROPERTY_TYPE] => S [ROW_COUNT] => 1 [COL_COUNT] => 30 [LIST_TYPE] => L [MULTIPLE] => N [XML_ID] => [FILE_TYPE] => [MULTIPLE_CNT] => 5 [LINK_IBLOCK_ID] => 0 [WITH_DESCRIPTION] => N [SEARCHABLE] => N [FILTRABLE] => Y [IS_REQUIRED] => N [VERSION] => 1 [USER_TYPE] => [USER_TYPE_SETTINGS] => Array ( ) [HINT] => [~NAME] => Тип [~DEFAULT_VALUE] => [VALUE_ENUM] => [VALUE_XML_ID] => [VALUE_SORT] => [VALUE] => [PROPERTY_VALUE_ID] => [DESCRIPTION] => [~DESCRIPTION] => [~VALUE] => ) [ITEM_INSTALLATION] => Array ( [ID] => 135 [IBLOCK_ID] => 2 [NAME] => Способ установки [ACTIVE] => Y [SORT] => 500 [CODE] => ITEM_INSTALLATION [DEFAULT_VALUE] => [PROPERTY_TYPE] => S [ROW_COUNT] => 1 [COL_COUNT] => 30 [LIST_TYPE] => L [MULTIPLE] => N [XML_ID] => [FILE_TYPE] => [MULTIPLE_CNT] => 5 [LINK_IBLOCK_ID] => 0 [WITH_DESCRIPTION] => N [SEARCHABLE] => N [FILTRABLE] => N [IS_REQUIRED] => N [VERSION] => 1 [USER_TYPE] => [USER_TYPE_SETTINGS] => Array ( ) [HINT] => [~NAME] => Способ установки [~DEFAULT_VALUE] => [VALUE_ENUM] => [VALUE_XML_ID] => [VALUE_SORT] => [VALUE] => [PROPERTY_VALUE_ID] => [DESCRIPTION] => [~DESCRIPTION] => [~VALUE] => ) [ITEM_MODE] => Array ( [ID] => 136 [IBLOCK_ID] => 2 [NAME] => Способ производства [ACTIVE] => Y [SORT] => 500 [CODE] => ITEM_MODE [DEFAULT_VALUE] => [PROPERTY_TYPE] => S [ROW_COUNT] => 1 [COL_COUNT] => 30 [LIST_TYPE] => L [MULTIPLE] => N [XML_ID] => [FILE_TYPE] => [MULTIPLE_CNT] => 5 [LINK_IBLOCK_ID] => 0 [WITH_DESCRIPTION] => N [SEARCHABLE] => N [FILTRABLE] => N [IS_REQUIRED] => N [VERSION] => 1 [USER_TYPE] => [USER_TYPE_SETTINGS] => Array ( ) [HINT] => [~NAME] => Способ производства [~DEFAULT_VALUE] => [VALUE_ENUM] => [VALUE_XML_ID] => [VALUE_SORT] => [VALUE] => [PROPERTY_VALUE_ID] => [DESCRIPTION] => [~DESCRIPTION] => [~VALUE] => ) [ITEM_HEIGHT] => Array ( [ID] => 137 [IBLOCK_ID] => 2 [NAME] => Высота, мм [ACTIVE] => Y [SORT] => 500 [CODE] => ITEM_HEIGHT [DEFAULT_VALUE] => [PROPERTY_TYPE] => S [ROW_COUNT] => 1 [COL_COUNT] => 30 [LIST_TYPE] => L [MULTIPLE] => N [XML_ID] => [FILE_TYPE] => [MULTIPLE_CNT] => 5 [LINK_IBLOCK_ID] => 0 [WITH_DESCRIPTION] => N [SEARCHABLE] => N [FILTRABLE] => N [IS_REQUIRED] => N [VERSION] => 1 [USER_TYPE] => [USER_TYPE_SETTINGS] => Array ( ) [HINT] => [~NAME] => Высота, мм [~DEFAULT_VALUE] => [VALUE_ENUM] => [VALUE_XML_ID] => [VALUE_SORT] => [VALUE] => [PROPERTY_VALUE_ID] => [DESCRIPTION] => [~DESCRIPTION] => [~VALUE] => ) [BLOG_POST_ID] => Array ( [ID] => 138 [IBLOCK_ID] => 2 [NAME] => ID поста блога для комментариев [ACTIVE] => Y [SORT] => 500 [CODE] => BLOG_POST_ID [DEFAULT_VALUE] => [PROPERTY_TYPE] => N [ROW_COUNT] => 1 [COL_COUNT] => 30 [LIST_TYPE] => L [MULTIPLE] => N [XML_ID] => BLOG_POST_ID [FILE_TYPE] => [MULTIPLE_CNT] => 5 [LINK_IBLOCK_ID] => 0 [WITH_DESCRIPTION] => N [SEARCHABLE] => N [FILTRABLE] => N [IS_REQUIRED] => N [VERSION] => 1 [USER_TYPE] => [USER_TYPE_SETTINGS] => Array ( ) [HINT] => [~NAME] => ID поста блога для комментариев [~DEFAULT_VALUE] => [VALUE_ENUM] => [VALUE_XML_ID] => [VALUE_SORT] => [VALUE] => 225 [PROPERTY_VALUE_ID] => 6774034 [DESCRIPTION] => [~VALUE] => 225 [~DESCRIPTION] => ) [BLOG_COMMENTS_CNT] => Array ( [ID] => 139 [IBLOCK_ID] => 2 [NAME] => Количество комментариев [ACTIVE] => Y [SORT] => 500 [CODE] => BLOG_COMMENTS_CNT [DEFAULT_VALUE] => [PROPERTY_TYPE] => N [ROW_COUNT] => 1 [COL_COUNT] => 30 [LIST_TYPE] => L [MULTIPLE] => N [XML_ID] => BLOG_COMMENTS_CNT [FILE_TYPE] => [MULTIPLE_CNT] => 5 [LINK_IBLOCK_ID] => 0 [WITH_DESCRIPTION] => N [SEARCHABLE] => N [FILTRABLE] => N [IS_REQUIRED] => N [VERSION] => 1 [USER_TYPE] => [USER_TYPE_SETTINGS] => Array ( ) [HINT] => [~NAME] => Количество комментариев [~DEFAULT_VALUE] => [VALUE_ENUM] => [VALUE_XML_ID] => [VALUE_SORT] => [VALUE] => [PROPERTY_VALUE_ID] => [DESCRIPTION] => [~DESCRIPTION] => [~VALUE] => ) [HEIGHT_TOTAL] => Array ( [ID] => 143 [IBLOCK_ID] => 2 [NAME] => Высота общая, мм [ACTIVE] => Y [SORT] => 500 [CODE] => HEIGHT_TOTAL [DEFAULT_VALUE] => [PROPERTY_TYPE] => S [ROW_COUNT] => 1 [COL_COUNT] => 30 [LIST_TYPE] => L [MULTIPLE] => N [XML_ID] => [FILE_TYPE] => [MULTIPLE_CNT] => 5 [LINK_IBLOCK_ID] => 0 [WITH_DESCRIPTION] => N [SEARCHABLE] => N [FILTRABLE] => N [IS_REQUIRED] => N [VERSION] => 1 [USER_TYPE] => [USER_TYPE_SETTINGS] => Array ( ) [HINT] => [~NAME] => Высота общая, мм [~DEFAULT_VALUE] => [VALUE_ENUM] => [VALUE_XML_ID] => [VALUE_SORT] => [VALUE] => [PROPERTY_VALUE_ID] => [DESCRIPTION] => [~DESCRIPTION] => [~VALUE] => ) [HEIGHT_ABOVEGROUND] => Array ( [ID] => 144 [IBLOCK_ID] => 2 [NAME] => Высота надземной части, мм [ACTIVE] => Y [SORT] => 500 [CODE] => HEIGHT_ABOVEGROUND [DEFAULT_VALUE] => [PROPERTY_TYPE] => S [ROW_COUNT] => 1 [COL_COUNT] => 30 [LIST_TYPE] => L [MULTIPLE] => N [XML_ID] => [FILE_TYPE] => [MULTIPLE_CNT] => 5 [LINK_IBLOCK_ID] => 0 [WITH_DESCRIPTION] => N [SEARCHABLE] => N [FILTRABLE] => N [IS_REQUIRED] => N [VERSION] => 1 [USER_TYPE] => [USER_TYPE_SETTINGS] => Array ( ) [HINT] => [~NAME] => Высота надземной части, мм [~DEFAULT_VALUE] => [VALUE_ENUM] => [VALUE_XML_ID] => [VALUE_SORT] => [VALUE] => [PROPERTY_VALUE_ID] => [DESCRIPTION] => [~DESCRIPTION] => [~VALUE] => ) [HEIGHT_UNDERGROUND] => Array ( [ID] => 145 [IBLOCK_ID] => 2 [NAME] => Высота подземной части, мм [ACTIVE] => Y [SORT] => 500 [CODE] => HEIGHT_UNDERGROUND [DEFAULT_VALUE] => [PROPERTY_TYPE] => S [ROW_COUNT] => 1 [COL_COUNT] => 30 [LIST_TYPE] => L [MULTIPLE] => N [XML_ID] => [FILE_TYPE] => [MULTIPLE_CNT] => 5 [LINK_IBLOCK_ID] => 0 [WITH_DESCRIPTION] => N [SEARCHABLE] => N [FILTRABLE] => N [IS_REQUIRED] => N [VERSION] => 1 [USER_TYPE] => [USER_TYPE_SETTINGS] => Array ( ) [HINT] => [~NAME] => Высота подземной части, мм [~DEFAULT_VALUE] => [VALUE_ENUM] => [VALUE_XML_ID] => [VALUE_SORT] => [VALUE] => [PROPERTY_VALUE_ID] => [DESCRIPTION] => [~DESCRIPTION] => [~VALUE] => ) [DIAMETER_TOP] => Array ( [ID] => 146 [IBLOCK_ID] => 2 [NAME] => Диаметр верхний, мм [ACTIVE] => Y [SORT] => 500 [CODE] => DIAMETER_TOP [DEFAULT_VALUE] => [PROPERTY_TYPE] => S [ROW_COUNT] => 1 [COL_COUNT] => 30 [LIST_TYPE] => L [MULTIPLE] => N [XML_ID] => [FILE_TYPE] => [MULTIPLE_CNT] => 5 [LINK_IBLOCK_ID] => 0 [WITH_DESCRIPTION] => N [SEARCHABLE] => N [FILTRABLE] => N [IS_REQUIRED] => N [VERSION] => 1 [USER_TYPE] => [USER_TYPE_SETTINGS] => Array ( ) [HINT] => [~NAME] => Диаметр верхний, мм [~DEFAULT_VALUE] => [VALUE_ENUM] => [VALUE_XML_ID] => [VALUE_SORT] => [VALUE] => [PROPERTY_VALUE_ID] => [DESCRIPTION] => [~DESCRIPTION] => [~VALUE] => ) [DIAMETER_BOTTOM] => Array ( [ID] => 147 [IBLOCK_ID] => 2 [NAME] => Диаметр нижний, мм [ACTIVE] => Y [SORT] => 500 [CODE] => DIAMETER_BOTTOM [DEFAULT_VALUE] => [PROPERTY_TYPE] => S [ROW_COUNT] => 1 [COL_COUNT] => 30 [LIST_TYPE] => L [MULTIPLE] => N [XML_ID] => [FILE_TYPE] => [MULTIPLE_CNT] => 5 [LINK_IBLOCK_ID] => 0 [WITH_DESCRIPTION] => N [SEARCHABLE] => N [FILTRABLE] => N [IS_REQUIRED] => N [VERSION] => 1 [USER_TYPE] => [USER_TYPE_SETTINGS] => Array ( ) [HINT] => [~NAME] => Диаметр нижний, мм [~DEFAULT_VALUE] => [VALUE_ENUM] => [VALUE_XML_ID] => [VALUE_SORT] => [VALUE] => [PROPERTY_VALUE_ID] => [DESCRIPTION] => [~DESCRIPTION] => [~VALUE] => ) [WEIGHT] => Array ( [ID] => 148 [IBLOCK_ID] => 2 [NAME] => Нагрузка, кг [ACTIVE] => Y [SORT] => 500 [CODE] => WEIGHT [DEFAULT_VALUE] => [PROPERTY_TYPE] => S [ROW_COUNT] => 1 [COL_COUNT] => 30 [LIST_TYPE] => L [MULTIPLE] => N [XML_ID] => [FILE_TYPE] => [MULTIPLE_CNT] => 5 [LINK_IBLOCK_ID] => 0 [WITH_DESCRIPTION] => N [SEARCHABLE] => N [FILTRABLE] => N [IS_REQUIRED] => N [VERSION] => 1 [USER_TYPE] => [USER_TYPE_SETTINGS] => Array ( ) [HINT] => [~NAME] => Нагрузка, кг [~DEFAULT_VALUE] => [VALUE_ENUM] => [VALUE_XML_ID] => [VALUE_SORT] => [VALUE] => [PROPERTY_VALUE_ID] => [DESCRIPTION] => [~DESCRIPTION] => [~VALUE] => ) [VID] => Array ( [ID] => 149 [IBLOCK_ID] => 2 [NAME] => Вид [ACTIVE] => Y [SORT] => 500 [CODE] => VID [DEFAULT_VALUE] => [PROPERTY_TYPE] => S [ROW_COUNT] => 1 [COL_COUNT] => 30 [LIST_TYPE] => L [MULTIPLE] => N [XML_ID] => [FILE_TYPE] => [MULTIPLE_CNT] => 5 [LINK_IBLOCK_ID] => 0 [WITH_DESCRIPTION] => N [SEARCHABLE] => N [FILTRABLE] => N [IS_REQUIRED] => N [VERSION] => 1 [USER_TYPE] => [USER_TYPE_SETTINGS] => Array ( ) [HINT] => [~NAME] => Вид [~DEFAULT_VALUE] => [VALUE_ENUM] => [VALUE_XML_ID] => [VALUE_SORT] => [VALUE] => [PROPERTY_VALUE_ID] => [DESCRIPTION] => [~DESCRIPTION] => [~VALUE] => ) [SERVICE_LIFE] => Array ( [ID] => 150 [IBLOCK_ID] => 2 [NAME] => Срок службы [ACTIVE] => Y [SORT] => 500 [CODE] => SERVICE_LIFE [DEFAULT_VALUE] => [PROPERTY_TYPE] => S [ROW_COUNT] => 1 [COL_COUNT] => 30 [LIST_TYPE] => L [MULTIPLE] => N [XML_ID] => [FILE_TYPE] => [MULTIPLE_CNT] => 5 [LINK_IBLOCK_ID] => 0 [WITH_DESCRIPTION] => N [SEARCHABLE] => N [FILTRABLE] => N [IS_REQUIRED] => N [VERSION] => 1 [USER_TYPE] => [USER_TYPE_SETTINGS] => Array ( ) [HINT] => [~NAME] => Срок службы [~DEFAULT_VALUE] => [VALUE_ENUM] => [VALUE_XML_ID] => [VALUE_SORT] => [VALUE] => [PROPERTY_VALUE_ID] => [DESCRIPTION] => [~DESCRIPTION] => [~VALUE] => ) [USING] => Array ( [ID] => 151 [IBLOCK_ID] => 2 [NAME] => Применение [ACTIVE] => Y [SORT] => 500 [CODE] => USING [DEFAULT_VALUE] => [PROPERTY_TYPE] => S [ROW_COUNT] => 1 [COL_COUNT] => 30 [LIST_TYPE] => L [MULTIPLE] => N [XML_ID] => [FILE_TYPE] => [MULTIPLE_CNT] => 5 [LINK_IBLOCK_ID] => 0 [WITH_DESCRIPTION] => N [SEARCHABLE] => N [FILTRABLE] => N [IS_REQUIRED] => N [VERSION] => 1 [USER_TYPE] => [USER_TYPE_SETTINGS] => Array ( ) [HINT] => [~NAME] => Применение [~DEFAULT_VALUE] => [VALUE_ENUM] => [VALUE_XML_ID] => [VALUE_SORT] => [VALUE] => [PROPERTY_VALUE_ID] => [DESCRIPTION] => [~DESCRIPTION] => [~VALUE] => ) [HEIGHT_ZAK] => Array ( [ID] => 152 [IBLOCK_ID] => 2 [NAME] => Высота закладного элемента фундамента [ACTIVE] => Y [SORT] => 500 [CODE] => HEIGHT_ZAK [DEFAULT_VALUE] => [PROPERTY_TYPE] => S [ROW_COUNT] => 1 [COL_COUNT] => 30 [LIST_TYPE] => L [MULTIPLE] => N [XML_ID] => [FILE_TYPE] => [MULTIPLE_CNT] => 5 [LINK_IBLOCK_ID] => 0 [WITH_DESCRIPTION] => N [SEARCHABLE] => N [FILTRABLE] => N [IS_REQUIRED] => N [VERSION] => 1 [USER_TYPE] => [USER_TYPE_SETTINGS] => Array ( ) [HINT] => [~NAME] => Высота закладного элемента фундамента [~DEFAULT_VALUE] => [VALUE_ENUM] => [VALUE_XML_ID] => [VALUE_SORT] => [VALUE] => [PROPERTY_VALUE_ID] => [DESCRIPTION] => [~DESCRIPTION] => [~VALUE] => ) [LENGTH_CONSOLE] => Array ( [ID] => 153 [IBLOCK_ID] => 2 [NAME] => Длина консоли [ACTIVE] => Y [SORT] => 500 [CODE] => LENGTH_CONSOLE [DEFAULT_VALUE] => [PROPERTY_TYPE] => S [ROW_COUNT] => 1 [COL_COUNT] => 30 [LIST_TYPE] => L [MULTIPLE] => N [XML_ID] => [FILE_TYPE] => [MULTIPLE_CNT] => 5 [LINK_IBLOCK_ID] => 0 [WITH_DESCRIPTION] => N [SEARCHABLE] => N [FILTRABLE] => N [IS_REQUIRED] => N [VERSION] => 1 [USER_TYPE] => [USER_TYPE_SETTINGS] => Array ( ) [HINT] => [~NAME] => Длина консоли [~DEFAULT_VALUE] => [VALUE_ENUM] => [VALUE_XML_ID] => [VALUE_SORT] => [VALUE] => [PROPERTY_VALUE_ID] => [DESCRIPTION] => [~DESCRIPTION] => [~VALUE] => ) [HEIGHT_TOP_SECTION] => Array ( [ID] => 154 [IBLOCK_ID] => 2 [NAME] => Высота верхней секции, мм [ACTIVE] => Y [SORT] => 500 [CODE] => HEIGHT_TOP_SECTION [DEFAULT_VALUE] => [PROPERTY_TYPE] => S [ROW_COUNT] => 1 [COL_COUNT] => 30 [LIST_TYPE] => L [MULTIPLE] => N [XML_ID] => [FILE_TYPE] => [MULTIPLE_CNT] => 5 [LINK_IBLOCK_ID] => 0 [WITH_DESCRIPTION] => N [SEARCHABLE] => N [FILTRABLE] => N [IS_REQUIRED] => N [VERSION] => 1 [USER_TYPE] => [USER_TYPE_SETTINGS] => Array ( ) [HINT] => [~NAME] => Высота верхней секции, мм [~DEFAULT_VALUE] => [VALUE_ENUM] => [VALUE_XML_ID] => [VALUE_SORT] => [VALUE] => [PROPERTY_VALUE_ID] => [DESCRIPTION] => [~DESCRIPTION] => [~VALUE] => ) [SIP] => Array ( [ID] => 156 [IBLOCK_ID] => 2 [NAME] => Возможность подвеса СИП [ACTIVE] => Y [SORT] => 500 [CODE] => SIP [DEFAULT_VALUE] => [PROPERTY_TYPE] => S [ROW_COUNT] => 1 [COL_COUNT] => 30 [LIST_TYPE] => L [MULTIPLE] => N [XML_ID] => [FILE_TYPE] => [MULTIPLE_CNT] => 5 [LINK_IBLOCK_ID] => 0 [WITH_DESCRIPTION] => N [SEARCHABLE] => N [FILTRABLE] => N [IS_REQUIRED] => N [VERSION] => 1 [USER_TYPE] => [USER_TYPE_SETTINGS] => Array ( ) [HINT] => [~NAME] => Возможность подвеса СИП [~DEFAULT_VALUE] => [VALUE_ENUM] => [VALUE_XML_ID] => [VALUE_SORT] => [VALUE] => [PROPERTY_VALUE_ID] => [DESCRIPTION] => [~DESCRIPTION] => [~VALUE] => ) [COUNT_GRANY] => Array ( [ID] => 157 [IBLOCK_ID] => 2 [NAME] => Количество граней [ACTIVE] => Y [SORT] => 500 [CODE] => COUNT_GRANY [DEFAULT_VALUE] => [PROPERTY_TYPE] => S [ROW_COUNT] => 1 [COL_COUNT] => 30 [LIST_TYPE] => L [MULTIPLE] => N [XML_ID] => [FILE_TYPE] => [MULTIPLE_CNT] => 5 [LINK_IBLOCK_ID] => 0 [WITH_DESCRIPTION] => N [SEARCHABLE] => N [FILTRABLE] => N [IS_REQUIRED] => N [VERSION] => 1 [USER_TYPE] => [USER_TYPE_SETTINGS] => Array ( ) [HINT] => [~NAME] => Количество граней [~DEFAULT_VALUE] => [VALUE_ENUM] => [VALUE_XML_ID] => [VALUE_SORT] => [VALUE] => [PROPERTY_VALUE_ID] => [DESCRIPTION] => [~DESCRIPTION] => [~VALUE] => ) [HEIGHT_BOTTOM_SECTION] => Array ( [ID] => 158 [IBLOCK_ID] => 2 [NAME] => Высота нижней секции, мм [ACTIVE] => Y [SORT] => 500 [CODE] => HEIGHT_BOTTOM_SECTION [DEFAULT_VALUE] => [PROPERTY_TYPE] => S [ROW_COUNT] => 1 [COL_COUNT] => 30 [LIST_TYPE] => L [MULTIPLE] => N [XML_ID] => [FILE_TYPE] => [MULTIPLE_CNT] => 5 [LINK_IBLOCK_ID] => 0 [WITH_DESCRIPTION] => N [SEARCHABLE] => N [FILTRABLE] => N [IS_REQUIRED] => N [VERSION] => 1 [USER_TYPE] => [USER_TYPE_SETTINGS] => Array ( ) [HINT] => [~NAME] => Высота нижней секции, мм [~DEFAULT_VALUE] => [VALUE_ENUM] => [VALUE_XML_ID] => [VALUE_SORT] => [VALUE] => [PROPERTY_VALUE_ID] => [DESCRIPTION] => [~DESCRIPTION] => [~VALUE] => ) [STEEL_THICKNESS] => Array ( [ID] => 160 [IBLOCK_ID] => 2 [NAME] => Толщина стали [ACTIVE] => Y [SORT] => 500 [CODE] => STEEL_THICKNESS [DEFAULT_VALUE] => [PROPERTY_TYPE] => S [ROW_COUNT] => 1 [COL_COUNT] => 30 [LIST_TYPE] => L [MULTIPLE] => N [XML_ID] => [FILE_TYPE] => [MULTIPLE_CNT] => 5 [LINK_IBLOCK_ID] => 0 [WITH_DESCRIPTION] => N [SEARCHABLE] => N [FILTRABLE] => N [IS_REQUIRED] => N [VERSION] => 1 [USER_TYPE] => [USER_TYPE_SETTINGS] => Array ( ) [HINT] => [~NAME] => Толщина стали [~DEFAULT_VALUE] => [VALUE_ENUM] => [VALUE_XML_ID] => [VALUE_SORT] => [VALUE] => [PROPERTY_VALUE_ID] => [DESCRIPTION] => [~DESCRIPTION] => [~VALUE] => ) [SIZE_OPOR_FLANEC] => Array ( [ID] => 161 [IBLOCK_ID] => 2 [NAME] => Размеры опорного фланца [ACTIVE] => Y [SORT] => 500 [CODE] => SIZE_OPOR_FLANEC [DEFAULT_VALUE] => [PROPERTY_TYPE] => S [ROW_COUNT] => 1 [COL_COUNT] => 30 [LIST_TYPE] => L [MULTIPLE] => N [XML_ID] => [FILE_TYPE] => [MULTIPLE_CNT] => 5 [LINK_IBLOCK_ID] => 0 [WITH_DESCRIPTION] => N [SEARCHABLE] => N [FILTRABLE] => N [IS_REQUIRED] => N [VERSION] => 1 [USER_TYPE] => [USER_TYPE_SETTINGS] => Array ( ) [HINT] => [~NAME] => Размеры опорного фланца [~DEFAULT_VALUE] => [VALUE_ENUM] => [VALUE_XML_ID] => [VALUE_SORT] => [VALUE] => [PROPERTY_VALUE_ID] => [DESCRIPTION] => [~DESCRIPTION] => [~VALUE] => ) [POKRASKA] => Array ( [ID] => 162 [IBLOCK_ID] => 2 [NAME] => Лакокрасочное покрытие [ACTIVE] => Y [SORT] => 500 [CODE] => POKRASKA [DEFAULT_VALUE] => [PROPERTY_TYPE] => S [ROW_COUNT] => 1 [COL_COUNT] => 30 [LIST_TYPE] => L [MULTIPLE] => N [XML_ID] => [FILE_TYPE] => [MULTIPLE_CNT] => 5 [LINK_IBLOCK_ID] => 0 [WITH_DESCRIPTION] => N [SEARCHABLE] => N [FILTRABLE] => N [IS_REQUIRED] => N [VERSION] => 1 [USER_TYPE] => [USER_TYPE_SETTINGS] => Array ( ) [HINT] => [~NAME] => Лакокрасочное покрытие [~DEFAULT_VALUE] => [VALUE_ENUM] => [VALUE_XML_ID] => [VALUE_SORT] => [VALUE] => [PROPERTY_VALUE_ID] => [DESCRIPTION] => [~DESCRIPTION] => [~VALUE] => ) [VES] => Array ( [ID] => 163 [IBLOCK_ID] => 2 [NAME] => Вес [ACTIVE] => Y [SORT] => 500 [CODE] => VES [DEFAULT_VALUE] => [PROPERTY_TYPE] => S [ROW_COUNT] => 1 [COL_COUNT] => 30 [LIST_TYPE] => L [MULTIPLE] => N [XML_ID] => [FILE_TYPE] => [MULTIPLE_CNT] => 5 [LINK_IBLOCK_ID] => 0 [WITH_DESCRIPTION] => N [SEARCHABLE] => N [FILTRABLE] => N [IS_REQUIRED] => N [VERSION] => 1 [USER_TYPE] => [USER_TYPE_SETTINGS] => Array ( ) [HINT] => [~NAME] => Вес [~DEFAULT_VALUE] => [VALUE_ENUM] => [VALUE_XML_ID] => [VALUE_SORT] => [VALUE] => [PROPERTY_VALUE_ID] => [DESCRIPTION] => [~DESCRIPTION] => [~VALUE] => ) [INSTALL_LYUCHKA] => Array ( [ID] => 164 [IBLOCK_ID] => 2 [NAME] => Возможность установки лючка [ACTIVE] => Y [SORT] => 500 [CODE] => INSTALL_LYUCHKA [DEFAULT_VALUE] => [PROPERTY_TYPE] => S [ROW_COUNT] => 1 [COL_COUNT] => 30 [LIST_TYPE] => L [MULTIPLE] => N [XML_ID] => [FILE_TYPE] => [MULTIPLE_CNT] => 5 [LINK_IBLOCK_ID] => 0 [WITH_DESCRIPTION] => N [SEARCHABLE] => N [FILTRABLE] => N [IS_REQUIRED] => N [VERSION] => 1 [USER_TYPE] => [USER_TYPE_SETTINGS] => Array ( ) [HINT] => [~NAME] => Возможность установки лючка [~DEFAULT_VALUE] => [VALUE_ENUM] => [VALUE_XML_ID] => [VALUE_SORT] => [VALUE] => [PROPERTY_VALUE_ID] => [DESCRIPTION] => [~DESCRIPTION] => [~VALUE] => ) [DIAMETER_FLANCA] => Array ( [ID] => 165 [IBLOCK_ID] => 2 [NAME] => Диаметр фланца, мм [ACTIVE] => Y [SORT] => 500 [CODE] => DIAMETER_FLANCA [DEFAULT_VALUE] => [PROPERTY_TYPE] => S [ROW_COUNT] => 1 [COL_COUNT] => 30 [LIST_TYPE] => L [MULTIPLE] => N [XML_ID] => [FILE_TYPE] => [MULTIPLE_CNT] => 5 [LINK_IBLOCK_ID] => 0 [WITH_DESCRIPTION] => N [SEARCHABLE] => N [FILTRABLE] => N [IS_REQUIRED] => N [VERSION] => 1 [USER_TYPE] => [USER_TYPE_SETTINGS] => Array ( ) [HINT] => [~NAME] => Диаметр фланца, мм [~DEFAULT_VALUE] => [VALUE_ENUM] => [VALUE_XML_ID] => [VALUE_SORT] => [VALUE] => [PROPERTY_VALUE_ID] => [DESCRIPTION] => [~DESCRIPTION] => [~VALUE] => ) [COUNT_LIGHT] => Array ( [ID] => 166 [IBLOCK_ID] => 2 [NAME] => Количество осветительных приборов, шт [ACTIVE] => Y [SORT] => 500 [CODE] => COUNT_LIGHT [DEFAULT_VALUE] => [PROPERTY_TYPE] => S [ROW_COUNT] => 1 [COL_COUNT] => 30 [LIST_TYPE] => L [MULTIPLE] => N [XML_ID] => [FILE_TYPE] => [MULTIPLE_CNT] => 5 [LINK_IBLOCK_ID] => 0 [WITH_DESCRIPTION] => N [SEARCHABLE] => N [FILTRABLE] => N [IS_REQUIRED] => N [VERSION] => 1 [USER_TYPE] => [USER_TYPE_SETTINGS] => Array ( ) [HINT] => [~NAME] => Количество осветительных приборов, шт [~DEFAULT_VALUE] => [VALUE_ENUM] => [VALUE_XML_ID] => [VALUE_SORT] => [VALUE] => [PROPERTY_VALUE_ID] => [DESCRIPTION] => [~DESCRIPTION] => [~VALUE] => ) [WEIGHT_TO_KRON] => Array ( [ID] => 167 [IBLOCK_ID] => 2 [NAME] => Высота до кронштейна, мм [ACTIVE] => Y [SORT] => 500 [CODE] => WEIGHT_TO_KRON [DEFAULT_VALUE] => [PROPERTY_TYPE] => S [ROW_COUNT] => 1 [COL_COUNT] => 30 [LIST_TYPE] => L [MULTIPLE] => N [XML_ID] => [FILE_TYPE] => [MULTIPLE_CNT] => 5 [LINK_IBLOCK_ID] => 0 [WITH_DESCRIPTION] => N [SEARCHABLE] => N [FILTRABLE] => N [IS_REQUIRED] => N [VERSION] => 1 [USER_TYPE] => [USER_TYPE_SETTINGS] => Array ( ) [HINT] => [~NAME] => Высота до кронштейна, мм [~DEFAULT_VALUE] => [VALUE_ENUM] => [VALUE_XML_ID] => [VALUE_SORT] => [VALUE] => [PROPERTY_VALUE_ID] => [DESCRIPTION] => [~DESCRIPTION] => [~VALUE] => ) [SIZE_FLANEC] => Array ( [ID] => 169 [IBLOCK_ID] => 2 [NAME] => Размер фланца [ACTIVE] => Y [SORT] => 500 [CODE] => SIZE_FLANEC [DEFAULT_VALUE] => [PROPERTY_TYPE] => S [ROW_COUNT] => 1 [COL_COUNT] => 30 [LIST_TYPE] => L [MULTIPLE] => N [XML_ID] => [FILE_TYPE] => [MULTIPLE_CNT] => 5 [LINK_IBLOCK_ID] => 0 [WITH_DESCRIPTION] => N [SEARCHABLE] => N [FILTRABLE] => N [IS_REQUIRED] => N [VERSION] => 1 [USER_TYPE] => [USER_TYPE_SETTINGS] => Array ( ) [HINT] => [~NAME] => Размер фланца [~DEFAULT_VALUE] => [VALUE_ENUM] => [VALUE_XML_ID] => [VALUE_SORT] => [VALUE] => [PROPERTY_VALUE_ID] => [DESCRIPTION] => [~DESCRIPTION] => [~VALUE] => ) [WEIGHT_MIDDLE_SECTION] => Array ( [ID] => 170 [IBLOCK_ID] => 2 [NAME] => Высота промежуточной секции, мм [ACTIVE] => Y [SORT] => 500 [CODE] => WEIGHT_MIDDLE_SECTION [DEFAULT_VALUE] => [PROPERTY_TYPE] => S [ROW_COUNT] => 1 [COL_COUNT] => 30 [LIST_TYPE] => L [MULTIPLE] => N [XML_ID] => [FILE_TYPE] => [MULTIPLE_CNT] => 5 [LINK_IBLOCK_ID] => 0 [WITH_DESCRIPTION] => N [SEARCHABLE] => N [FILTRABLE] => N [IS_REQUIRED] => N [VERSION] => 1 [USER_TYPE] => [USER_TYPE_SETTINGS] => Array ( ) [HINT] => [~NAME] => Высота промежуточной секции, мм [~DEFAULT_VALUE] => [VALUE_ENUM] => [VALUE_XML_ID] => [VALUE_SORT] => [VALUE] => [PROPERTY_VALUE_ID] => [DESCRIPTION] => [~DESCRIPTION] => [~VALUE] => ) [DEFEND_POKRYTIE] => Array ( [ID] => 171 [IBLOCK_ID] => 2 [NAME] => Защитное покрытие [ACTIVE] => Y [SORT] => 500 [CODE] => DEFEND_POKRYTIE [DEFAULT_VALUE] => [PROPERTY_TYPE] => S [ROW_COUNT] => 1 [COL_COUNT] => 30 [LIST_TYPE] => L [MULTIPLE] => N [XML_ID] => [FILE_TYPE] => [MULTIPLE_CNT] => 5 [LINK_IBLOCK_ID] => 0 [WITH_DESCRIPTION] => N [SEARCHABLE] => N [FILTRABLE] => N [IS_REQUIRED] => N [VERSION] => 1 [USER_TYPE] => [USER_TYPE_SETTINGS] => Array ( ) [HINT] => [~NAME] => Защитное покрытие [~DEFAULT_VALUE] => [VALUE_ENUM] => [VALUE_XML_ID] => [VALUE_SORT] => [VALUE] => [PROPERTY_VALUE_ID] => [DESCRIPTION] => [~DESCRIPTION] => [~VALUE] => ) [WIND_REGION] => Array ( [ID] => 172 [IBLOCK_ID] => 2 [NAME] => Ветровой район [ACTIVE] => Y [SORT] => 500 [CODE] => WIND_REGION [DEFAULT_VALUE] => [PROPERTY_TYPE] => S [ROW_COUNT] => 1 [COL_COUNT] => 30 [LIST_TYPE] => L [MULTIPLE] => N [XML_ID] => [FILE_TYPE] => [MULTIPLE_CNT] => 5 [LINK_IBLOCK_ID] => 0 [WITH_DESCRIPTION] => N [SEARCHABLE] => N [FILTRABLE] => N [IS_REQUIRED] => N [VERSION] => 1 [USER_TYPE] => [USER_TYPE_SETTINGS] => Array ( ) [HINT] => [~NAME] => Ветровой район [~DEFAULT_VALUE] => [VALUE_ENUM] => [VALUE_XML_ID] => [VALUE_SORT] => [VALUE] => [PROPERTY_VALUE_ID] => [DESCRIPTION] => [~DESCRIPTION] => [~VALUE] => ) [DIAMETER_OPOR_FLANCA] => Array ( [ID] => 173 [IBLOCK_ID] => 2 [NAME] => Диаметр опорного фланца, мм [ACTIVE] => Y [SORT] => 500 [CODE] => DIAMETER_OPOR_FLANCA [DEFAULT_VALUE] => [PROPERTY_TYPE] => S [ROW_COUNT] => 1 [COL_COUNT] => 30 [LIST_TYPE] => L [MULTIPLE] => N [XML_ID] => [FILE_TYPE] => [MULTIPLE_CNT] => 5 [LINK_IBLOCK_ID] => 0 [WITH_DESCRIPTION] => N [SEARCHABLE] => N [FILTRABLE] => N [IS_REQUIRED] => N [VERSION] => 1 [USER_TYPE] => [USER_TYPE_SETTINGS] => Array ( ) [HINT] => [~NAME] => Диаметр опорного фланца, мм [~DEFAULT_VALUE] => [VALUE_ENUM] => [VALUE_XML_ID] => [VALUE_SORT] => [VALUE] => [PROPERTY_VALUE_ID] => [DESCRIPTION] => [~DESCRIPTION] => [~VALUE] => ) [CENTER_DIST] => Array ( [ID] => 174 [IBLOCK_ID] => 2 [NAME] => Межцентровое расстояние, мм [ACTIVE] => Y [SORT] => 500 [CODE] => CENTER_DIST [DEFAULT_VALUE] => [PROPERTY_TYPE] => S [ROW_COUNT] => 1 [COL_COUNT] => 30 [LIST_TYPE] => L [MULTIPLE] => N [XML_ID] => [FILE_TYPE] => [MULTIPLE_CNT] => 5 [LINK_IBLOCK_ID] => 0 [WITH_DESCRIPTION] => N [SEARCHABLE] => N [FILTRABLE] => N [IS_REQUIRED] => N [VERSION] => 1 [USER_TYPE] => [USER_TYPE_SETTINGS] => Array ( ) [HINT] => [~NAME] => Межцентровое расстояние, мм [~DEFAULT_VALUE] => [VALUE_ENUM] => [VALUE_XML_ID] => [VALUE_SORT] => [VALUE] => [PROPERTY_VALUE_ID] => [DESCRIPTION] => [~DESCRIPTION] => [~VALUE] => ) [FLANEC_THICKNESS] => Array ( [ID] => 175 [IBLOCK_ID] => 2 [NAME] => Толщина фланца, мм [ACTIVE] => Y [SORT] => 500 [CODE] => FLANEC_THICKNESS [DEFAULT_VALUE] => [PROPERTY_TYPE] => S [ROW_COUNT] => 1 [COL_COUNT] => 30 [LIST_TYPE] => L [MULTIPLE] => N [XML_ID] => [FILE_TYPE] => [MULTIPLE_CNT] => 5 [LINK_IBLOCK_ID] => 0 [WITH_DESCRIPTION] => N [SEARCHABLE] => N [FILTRABLE] => N [IS_REQUIRED] => N [VERSION] => 1 [USER_TYPE] => [USER_TYPE_SETTINGS] => Array ( ) [HINT] => [~NAME] => Толщина фланца, мм [~DEFAULT_VALUE] => [VALUE_ENUM] => [VALUE_XML_ID] => [VALUE_SORT] => [VALUE] => [PROPERTY_VALUE_ID] => [DESCRIPTION] => [~DESCRIPTION] => [~VALUE] => ) [COUNT_HOLE] => Array ( [ID] => 176 [IBLOCK_ID] => 2 [NAME] => Количество отверстий крепления, шт [ACTIVE] => Y [SORT] => 500 [CODE] => COUNT_HOLE [DEFAULT_VALUE] => [PROPERTY_TYPE] => S [ROW_COUNT] => 1 [COL_COUNT] => 30 [LIST_TYPE] => L [MULTIPLE] => N [XML_ID] => [FILE_TYPE] => [MULTIPLE_CNT] => 5 [LINK_IBLOCK_ID] => 0 [WITH_DESCRIPTION] => N [SEARCHABLE] => N [FILTRABLE] => N [IS_REQUIRED] => N [VERSION] => 1 [USER_TYPE] => [USER_TYPE_SETTINGS] => Array ( ) [HINT] => [~NAME] => Количество отверстий крепления, шт [~DEFAULT_VALUE] => [VALUE_ENUM] => [VALUE_XML_ID] => [VALUE_SORT] => [VALUE] => [PROPERTY_VALUE_ID] => [DESCRIPTION] => [~DESCRIPTION] => [~VALUE] => ) [INSPECTION_WINDOW] => Array ( [ID] => 179 [IBLOCK_ID] => 2 [NAME] => Ревизионное окно, мм [ACTIVE] => Y [SORT] => 500 [CODE] => INSPECTION_WINDOW [DEFAULT_VALUE] => [PROPERTY_TYPE] => S [ROW_COUNT] => 1 [COL_COUNT] => 30 [LIST_TYPE] => L [MULTIPLE] => N [XML_ID] => [FILE_TYPE] => [MULTIPLE_CNT] => 5 [LINK_IBLOCK_ID] => 0 [WITH_DESCRIPTION] => N [SEARCHABLE] => N [FILTRABLE] => N [IS_REQUIRED] => N [VERSION] => 1 [USER_TYPE] => [USER_TYPE_SETTINGS] => Array ( ) [HINT] => [~NAME] => Ревизионное окно, мм [~DEFAULT_VALUE] => [VALUE_ENUM] => [VALUE_XML_ID] => [VALUE_SORT] => [VALUE] => [PROPERTY_VALUE_ID] => [DESCRIPTION] => [~DESCRIPTION] => [~VALUE] => ) [THREE_MODEL] => Array ( [ID] => 182 [IBLOCK_ID] => 2 [NAME] => 3D-модель [ACTIVE] => Y [SORT] => 500 [CODE] => THREE_MODEL [DEFAULT_VALUE] => [PROPERTY_TYPE] => F [ROW_COUNT] => 1 [COL_COUNT] => 30 [LIST_TYPE] => L [MULTIPLE] => N [XML_ID] => [FILE_TYPE] => [MULTIPLE_CNT] => 5 [LINK_IBLOCK_ID] => 0 [WITH_DESCRIPTION] => N [SEARCHABLE] => N [FILTRABLE] => N [IS_REQUIRED] => N [VERSION] => 1 [USER_TYPE] => [USER_TYPE_SETTINGS] => Array ( ) [HINT] => [~NAME] => 3D-модель [~DEFAULT_VALUE] => [VALUE_ENUM] => [VALUE_XML_ID] => [VALUE_SORT] => [VALUE] => [PROPERTY_VALUE_ID] => [DESCRIPTION] => [~DESCRIPTION] => [~VALUE] => ) [FAQ] => Array ( [ID] => 183 [IBLOCK_ID] => 2 [NAME] => FAQ [ACTIVE] => Y [SORT] => 500 [CODE] => FAQ [DEFAULT_VALUE] => Array ( [TYPE] => TEXT [TEXT] => ) [PROPERTY_TYPE] => S [ROW_COUNT] => 1 [COL_COUNT] => 30 [LIST_TYPE] => L [MULTIPLE] => N [XML_ID] => [FILE_TYPE] => [MULTIPLE_CNT] => 5 [LINK_IBLOCK_ID] => 0 [WITH_DESCRIPTION] => N [SEARCHABLE] => N [FILTRABLE] => N [IS_REQUIRED] => N [VERSION] => 1 [USER_TYPE] => HTML [USER_TYPE_SETTINGS] => Array ( [height] => 200 ) [HINT] => [~NAME] => FAQ [~DEFAULT_VALUE] => Array ( [TYPE] => TEXT [TEXT] => ) [VALUE_ENUM] => [VALUE_XML_ID] => [VALUE_SORT] => [VALUE] => [PROPERTY_VALUE_ID] => [DESCRIPTION] => [~DESCRIPTION] => [~VALUE] => ) ) [DISPLAY_PROPERTIES] => Array ( [ITEM_PRICE] => Array ( [ID] => 22 [IBLOCK_ID] => 2 [NAME] => Цена [ACTIVE] => Y [SORT] => 3 [CODE] => ITEM_PRICE [DEFAULT_VALUE] => [PROPERTY_TYPE] => L [ROW_COUNT] => 1 [COL_COUNT] => 30 [LIST_TYPE] => L [MULTIPLE] => N [XML_ID] => 22 [FILE_TYPE] => [MULTIPLE_CNT] => 5 [LINK_IBLOCK_ID] => 0 [WITH_DESCRIPTION] => N [SEARCHABLE] => N [FILTRABLE] => N [IS_REQUIRED] => Y [VERSION] => 1 [USER_TYPE] => [USER_TYPE_SETTINGS] => Array ( ) [HINT] => [~NAME] => Цена [~DEFAULT_VALUE] => [VALUE_ENUM] => По запросу [VALUE_XML_ID] => on-request [VALUE_SORT] => 1 [VALUE] => По запросу [PROPERTY_VALUE_ID] => 6825566 [VALUE_ENUM_ID] => 9 [DESCRIPTION] => [~VALUE] => По запросу [~DESCRIPTION] => [DISPLAY_VALUE] => По запросу ) [ITEM_CHARACTERISTICS] => Array ( [ID] => 28 [IBLOCK_ID] => 2 [NAME] => Характеристики [ACTIVE] => Y [SORT] => 6 [CODE] => ITEM_CHARACTERISTICS [DEFAULT_VALUE] => [PROPERTY_TYPE] => S [ROW_COUNT] => 1 [COL_COUNT] => 20 [LIST_TYPE] => L [MULTIPLE] => Y [XML_ID] => 28 [FILE_TYPE] => [MULTIPLE_CNT] => 1 [LINK_IBLOCK_ID] => 0 [WITH_DESCRIPTION] => Y [SEARCHABLE] => N [FILTRABLE] => N [IS_REQUIRED] => N [VERSION] => 1 [USER_TYPE] => [USER_TYPE_SETTINGS] => Array ( ) [HINT] => [~NAME] => Характеристики [~DEFAULT_VALUE] => [VALUE_ENUM] => [VALUE_XML_ID] => [VALUE_SORT] => [VALUE] => Array ( [0] => прямостоечная [1] => граненая [2] => 9000 [3] => 7800 [4] => 310 [5] => 10 [6] => одноцепная, свободностоящая, без тросостойки для грозотроса [7] => горячее цинкование [8] => Порошковое / полимерное окрашивание [9] => 30 лет [10] => промежуточная ) [PROPERTY_VALUE_ID] => Array ( [0] => 6825209 [1] => 6825210 [2] => 6825211 [3] => 6825212 [4] => 6825213 [5] => 6825214 [6] => 6825215 [7] => 6825216 [8] => 6825217 [9] => 6825218 [10] => 6825567 ) [DESCRIPTION] => Array ( [0] => Способ установки [1] => Способ производства [2] => Высота, мм [3] => Высота до нижней траверсы, мм [4] => Диаметр стойки, мм [5] => Класс напряжения, кВ [6] => Конструкция [7] => Защитное покрытие [8] => Лакокрасочное покрытие [9] => Срок службы [10] => Назначение ) [~VALUE] => Array ( [0] => прямостоечная [1] => граненая [2] => 9000 [3] => 7800 [4] => 310 [5] => 10 [6] => одноцепная, свободностоящая, без тросостойки для грозотроса [7] => горячее цинкование [8] => Порошковое / полимерное окрашивание [9] => 30 лет [10] => промежуточная ) [~DESCRIPTION] => Array ( [0] => Способ установки [1] => Способ производства [2] => Высота, мм [3] => Высота до нижней траверсы, мм [4] => Диаметр стойки, мм [5] => Класс напряжения, кВ [6] => Конструкция [7] => Защитное покрытие [8] => Лакокрасочное покрытие [9] => Срок службы [10] => Назначение ) [DISPLAY_VALUE] => Array ( [0] => прямостоечная [1] => граненая [2] => 9000 [3] => 7800 [4] => 310 [5] => 10 [6] => одноцепная, свободностоящая, без тросостойки для грозотроса [7] => горячее цинкование [8] => Порошковое / полимерное окрашивание [9] => 30 лет [10] => промежуточная ) ) ) [PRODUCT_PROPERTIES] => Array ( ) [PRODUCT_PROPERTIES_FILL] => Array ( ) [OFFERS] => Array ( ) [OFFER_ID_SELECTED] => 0 [CHECK_QUANTITY] => [ITEM_PRICE_MODE] => [ITEM_PRICES] => Array ( ) [ITEM_QUANTITY_RANGES] => Array ( ) [ITEM_MEASURE_RATIOS] => Array ( [2931] => Array ( [ID] => 2931 [RATIO] => 1 [IS_DEFAULT] => Y [PRODUCT_ID] => 15346 ) ) [ITEM_MEASURE] => Array ( [ID] => 5 [TITLE] => шт [~TITLE] => шт ) [ITEM_MEASURE_RATIO_SELECTED] => 2931 [ITEM_QUANTITY_RANGE_SELECTED] => [ITEM_PRICE_SELECTED] => [EDIT_LINK] => [DELETE_LINK] => [SECTION] => Array ( [PATH] => Array ( ) ) [CAN_BUY] => )
В наличии
Тип: Промежуточная опора
Высота стойки, мм: 9000
Профиль стойки, мм: 146х8
Цена по запросу
Array
(
    [ID] => 20106
    [~ID] => 20106
    [IBLOCK_ID] => 2
    [~IBLOCK_ID] => 2
    [CODE] => pt10-1
    [~CODE] => pt10-1
    [XML_ID] => 20106
    [~XML_ID] => 20106
    [NAME] => Промежуточная опора Пт10-1
    [~NAME] => Промежуточная опора Пт10-1
    [ACTIVE] => Y
    [~ACTIVE] => Y
    [DATE_ACTIVE_FROM] => 
    [~DATE_ACTIVE_FROM] => 
    [DATE_ACTIVE_TO] => 
    [~DATE_ACTIVE_TO] => 
    [SORT] => 1
    [~SORT] => 1
    [PREVIEW_TEXT] => 
    [~PREVIEW_TEXT] => 
    [PREVIEW_TEXT_TYPE] => text
    [~PREVIEW_TEXT_TYPE] => text
    [DETAIL_TEXT] => 

Промежуточные опоры ПТ10-1 — металлические трубчатые конструкции, предназначенные для поддержки проводов и грозозащитных тросов воздушных линий электропередачи (ВЛ) напряжением 6–10 кВ на прямых участках трассы. Служат основным несущим элементом линейной части ВЛ, обеспечивая пространственную устойчивость проводов при влиянии эксплуатационных нагрузок без восприятия тяговых усилий вдоль трассы.

Изделия изготовляются из высокопрочной стали 09Г2С (трубы обсадные и электросварные) (возможно исполнение согласно Арх. № 4.0639 — по запросу), что обеспечивает прочность, пластичность и стойкость к климатическим воздействиям.

Техническое описание и конструкция

Опора ПТ10-1 представляет собой конструкцию «стойка-траверса» с горизонтальной балкой для крепления изоляторов и проводов.

Конструктивные элементы:

  • Стойка: профиль 146×8 мм — несёт вертикальные нагрузки.
  • Траверса: профиль 146×8 мм, длина 1930 мм — обеспечивает нормативное размещение фаз.
  • Антикоррозионная защита: горячее цинкование с возможной порошковой/полимерной окраской.
  • Материал: сталь 09Г2С(по согласованию — материалы согласно Арх. № 4.0639).
  • Срок службы: до 30 лет при соблюдении монтажных и эксплуатационных требований.

Конструкция рассчитана на работу в составе обычных трасс ВЛ 6–10 кВ с учётом ветровых и гололёдных нагрузок, принятых проектом конкретной линии.

Комплектация и опции

Стандартная поставка:

  • стойка промежуточной опоры;
  • траверса;
  • монтажные узлы и крепёж по рабочей документации;
  • антикоррозионное покрытие.

Дополнительные опции по запросу:

  • порошковое или полимерное окрашивание по каталогу RAL;
  • изготовление по индивидуальным чертежам ЭСКД/КД;
  • адаптация под заданные нагрузки и климатические условия;
  • комплект монтажных элементов и метизов.

Монтаж, эксплуатация и обслуживание

Монтаж промежуточной опоры ПТ10-1 осуществляется в соответствии с проектной документацией и нормами безопасности при строительстве воздушных линий. Он включает: подготовку фундамента, установку стойки с выверкой вертикали, монтаж траверсы и изоляторов, натяжку проводов с соблюдением проектных усилий.

В процессе эксплуатации рекомендуется регулярный осмотр состояния покрытия, крепёжных узлов и сварных соединений. Своевременное техническое обслуживание способствует сохранению эксплуатационных свойств конструкции в течение всего ресурса.

Документы и нормативы

Конструкция, расчёт, изготовление и эксплуатация промежуточных опор воздушных линий, таких как ПТ10-1, выполняются с учётом следующих действующих нормативных документов:

1. СНиП / СП (проектирование стальных конструкций):

  • СП 16.13330.2017 (бывший СНиП II-23-81) «Стальные конструкции»* — требования к материалам и сварным стальным несущим конструкциям, включая опоры воздушных линий; марка стали 09Г2С входит в ряд рекомендуемых материалов.

2. СП по нагрузкам и воздействиям:

  • СП 20.13330.2016 «Нагрузки и воздействия» — определяет климатические, ветровые, снеговые и иные внешние воздействия для расчёта опор.

3. СНиП / СП по основаниям и фундаментам:

  • СП 22.13330.2016 «Основания зданий и сооружений» — требования к грунтам, подготовке основания и фундаментам под опоры.

4. ГОСТ на материалы и покрытия:

  • ГОСТ 9.307-89 («Единая система защиты от коррозии и старения. Покрытия цинковые горячие») — требования и методы контроля для горячего цинкования;
  • ГОСТ 8731/8732 — технические условия на стальные трубы (в том числе для труб профиля стойки и траверсы).

5. Нормы технологического проектирования ВЛ:

  • СО 153-34.20.121-2006 «Нормы технологического проектирования воздушных линий электропередачи…» — общие положения по проектированию опор и фундаментов, включая расчётные воздействия и выбор материалов.

6. Инструкции по эксплуатации:

  • РД 34.20.504-94 «Типовая инструкция по эксплуатации воздушных линий электропередачи…» — рекомендации по эксплуатации и проверкам опор в составе ВЛ.
[~DETAIL_TEXT] =>

Промежуточные опоры ПТ10-1 — металлические трубчатые конструкции, предназначенные для поддержки проводов и грозозащитных тросов воздушных линий электропередачи (ВЛ) напряжением 6–10 кВ на прямых участках трассы. Служат основным несущим элементом линейной части ВЛ, обеспечивая пространственную устойчивость проводов при влиянии эксплуатационных нагрузок без восприятия тяговых усилий вдоль трассы.

Изделия изготовляются из высокопрочной стали 09Г2С (трубы обсадные и электросварные) (возможно исполнение согласно Арх. № 4.0639 — по запросу), что обеспечивает прочность, пластичность и стойкость к климатическим воздействиям.

Техническое описание и конструкция

Опора ПТ10-1 представляет собой конструкцию «стойка-траверса» с горизонтальной балкой для крепления изоляторов и проводов.

Конструктивные элементы:

  • Стойка: профиль 146×8 мм — несёт вертикальные нагрузки.
  • Траверса: профиль 146×8 мм, длина 1930 мм — обеспечивает нормативное размещение фаз.
  • Антикоррозионная защита: горячее цинкование с возможной порошковой/полимерной окраской.
  • Материал: сталь 09Г2С(по согласованию — материалы согласно Арх. № 4.0639).
  • Срок службы: до 30 лет при соблюдении монтажных и эксплуатационных требований.

Конструкция рассчитана на работу в составе обычных трасс ВЛ 6–10 кВ с учётом ветровых и гололёдных нагрузок, принятых проектом конкретной линии.

Комплектация и опции

Стандартная поставка:

  • стойка промежуточной опоры;
  • траверса;
  • монтажные узлы и крепёж по рабочей документации;
  • антикоррозионное покрытие.

Дополнительные опции по запросу:

  • порошковое или полимерное окрашивание по каталогу RAL;
  • изготовление по индивидуальным чертежам ЭСКД/КД;
  • адаптация под заданные нагрузки и климатические условия;
  • комплект монтажных элементов и метизов.

Монтаж, эксплуатация и обслуживание

Монтаж промежуточной опоры ПТ10-1 осуществляется в соответствии с проектной документацией и нормами безопасности при строительстве воздушных линий. Он включает: подготовку фундамента, установку стойки с выверкой вертикали, монтаж траверсы и изоляторов, натяжку проводов с соблюдением проектных усилий.

В процессе эксплуатации рекомендуется регулярный осмотр состояния покрытия, крепёжных узлов и сварных соединений. Своевременное техническое обслуживание способствует сохранению эксплуатационных свойств конструкции в течение всего ресурса.

Документы и нормативы

Конструкция, расчёт, изготовление и эксплуатация промежуточных опор воздушных линий, таких как ПТ10-1, выполняются с учётом следующих действующих нормативных документов:

1. СНиП / СП (проектирование стальных конструкций):

  • СП 16.13330.2017 (бывший СНиП II-23-81) «Стальные конструкции»* — требования к материалам и сварным стальным несущим конструкциям, включая опоры воздушных линий; марка стали 09Г2С входит в ряд рекомендуемых материалов.

2. СП по нагрузкам и воздействиям:

  • СП 20.13330.2016 «Нагрузки и воздействия» — определяет климатические, ветровые, снеговые и иные внешние воздействия для расчёта опор.

3. СНиП / СП по основаниям и фундаментам:

  • СП 22.13330.2016 «Основания зданий и сооружений» — требования к грунтам, подготовке основания и фундаментам под опоры.

4. ГОСТ на материалы и покрытия:

  • ГОСТ 9.307-89 («Единая система защиты от коррозии и старения. Покрытия цинковые горячие») — требования и методы контроля для горячего цинкования;
  • ГОСТ 8731/8732 — технические условия на стальные трубы (в том числе для труб профиля стойки и траверсы).

5. Нормы технологического проектирования ВЛ:

  • СО 153-34.20.121-2006 «Нормы технологического проектирования воздушных линий электропередачи…» — общие положения по проектированию опор и фундаментов, включая расчётные воздействия и выбор материалов.

6. Инструкции по эксплуатации:

  • РД 34.20.504-94 «Типовая инструкция по эксплуатации воздушных линий электропередачи…» — рекомендации по эксплуатации и проверкам опор в составе ВЛ.
[DETAIL_TEXT_TYPE] => html [~DETAIL_TEXT_TYPE] => html [DATE_CREATE] => 26.01.2026 11:53:23 [~DATE_CREATE] => 26.01.2026 11:53:23 [CREATED_BY] => 1 [~CREATED_BY] => 1 [TAGS] => [~TAGS] => [TIMESTAMP_X] => 23.03.2026 11:33:57 [~TIMESTAMP_X] => 23.03.2026 11:33:57 [MODIFIED_BY] => 1 [~MODIFIED_BY] => 1 [IBLOCK_SECTION_ID] => 2756 [~IBLOCK_SECTION_ID] => 4506 [DETAIL_PAGE_URL] => /product/pt10-1/ [~DETAIL_PAGE_URL] => /product/pt10-1/ [DETAIL_PICTURE] => [~DETAIL_PICTURE] => [PREVIEW_PICTURE] => Array ( [ID] => 55484 [TIMESTAMP_X] => 23.03.2026 11:33:57 [MODULE_ID] => iblock [HEIGHT] => 1200 [WIDTH] => 1200 [FILE_SIZE] => 55826 [CONTENT_TYPE] => image/webp [SUBDIR] => iblock/a23/blbc0rn5uol3iya9sjb9ib07lka4oqmj [FILE_NAME] => 3.webp [ORIGINAL_NAME] => 3.webp [DESCRIPTION] => [HANDLER_ID] => [EXTERNAL_ID] => a7c18b034bfb450e25f7d0078f777e6d [VERSION_ORIGINAL_ID] => [META] => [SRC] => /upload/iblock/a23/blbc0rn5uol3iya9sjb9ib07lka4oqmj/3.webp [UNSAFE_SRC] => /upload/iblock/a23/blbc0rn5uol3iya9sjb9ib07lka4oqmj/3.webp [SAFE_SRC] => /upload/iblock/a23/blbc0rn5uol3iya9sjb9ib07lka4oqmj/3.webp [ALT] => Промежуточная опора Пт10-1 [TITLE] => Промежуточная опора Пт10-1 ) [~PREVIEW_PICTURE] => 55484 [LANG_DIR] => / [~LANG_DIR] => / [EXTERNAL_ID] => 20106 [~EXTERNAL_ID] => 20106 [IBLOCK_TYPE_ID] => catalog [~IBLOCK_TYPE_ID] => catalog [IBLOCK_CODE] => metalstructures [~IBLOCK_CODE] => metalstructures [IBLOCK_EXTERNAL_ID] => clothes [~IBLOCK_EXTERNAL_ID] => clothes [LID] => s1 [~LID] => s1 [IPROPERTY_VALUES] => Array ( [SECTION_META_TITLE] => Многогранные опоры ЛЭП купить в {{rp}} на сайте производителя НПО Легион [SECTION_META_DESCRIPTION] => Производство многогранных опор ЛЭП линии электропередач. Купите напрямую у производителя в {{rp}}. Собственное производство. Наличие товара на складе. Звоните ☎ {{subdomain_tel}} [SECTION_META_KEYWORDS] => опоры ЛЭП многогранные металлические производство купить гранённые линии электропередач [ELEMENT_DETAIL_PICTURE_FILE_NAME] => [ELEMENT_PREVIEW_PICTURE_FILE_NAME] => [SECTION_DETAIL_PICTURE_FILE_NAME] => [SECTION_PICTURE_FILE_NAME] => [ELEMENT_META_TITLE] => Промежуточная опора Пт10-1 в {{rp}} [SECTION_PAGE_TITLE] => Промежуточная опора Пт10-1 [ELEMENT_PAGE_TITLE] => Промежуточная опора Пт10-1 ) [PRODUCT] => Array ( [TYPE] => 1 [AVAILABLE] => Y [BUNDLE] => N [QUANTITY] => 0 [QUANTITY_TRACE] => N [CAN_BUY_ZERO] => Y [MEASURE] => 5 [SUBSCRIBE] => Y [VAT_ID] => 0 [VAT_RATE] => 0 [VAT_INCLUDED] => N [WEIGHT] => 0 [WIDTH] => 0 [LENGTH] => 0 [HEIGHT] => 0 [PAYMENT_TYPE] => S [RECUR_SCHEME_TYPE] => D [RECUR_SCHEME_LENGTH] => 0 [TRIAL_PRICE_ID] => 0 [USE_OFFERS] => ) [~CATALOG_TYPE] => 1 [CATALOG_TYPE] => 1 [~CATALOG_QUANTITY] => 0 [CATALOG_QUANTITY] => 0 [~CATALOG_QUANTITY_TRACE] => N [CATALOG_QUANTITY_TRACE] => N [~CATALOG_CAN_BUY_ZERO] => Y [CATALOG_CAN_BUY_ZERO] => Y [~CATALOG_SUBSCRIBE] => Y [CATALOG_SUBSCRIBE] => Y [PROPERTIES] => Array ( [ITEM_DELIVERY] => Array ( [ID] => 20 [IBLOCK_ID] => 2 [NAME] => Доставка [ACTIVE] => Y [SORT] => 1 [CODE] => ITEM_DELIVERY [DEFAULT_VALUE] => [PROPERTY_TYPE] => L [ROW_COUNT] => 1 [COL_COUNT] => 30 [LIST_TYPE] => L [MULTIPLE] => N [XML_ID] => 20 [FILE_TYPE] => [MULTIPLE_CNT] => 5 [LINK_IBLOCK_ID] => 0 [WITH_DESCRIPTION] => N [SEARCHABLE] => N [FILTRABLE] => N [IS_REQUIRED] => Y [VERSION] => 1 [USER_TYPE] => [USER_TYPE_SETTINGS] => Array ( ) [HINT] => [~NAME] => Доставка [~DEFAULT_VALUE] => [VALUE_ENUM] => По России и СНГ [VALUE_XML_ID] => ru-sng [VALUE_SORT] => 1 [VALUE] => По России и СНГ [PROPERTY_VALUE_ID] => 6841321 [VALUE_ENUM_ID] => 7 [DESCRIPTION] => [~VALUE] => По России и СНГ [~DESCRIPTION] => ) [ITEM_PAYMENT] => Array ( [ID] => 21 [IBLOCK_ID] => 2 [NAME] => Оплата [ACTIVE] => Y [SORT] => 2 [CODE] => ITEM_PAYMENT [DEFAULT_VALUE] => [PROPERTY_TYPE] => L [ROW_COUNT] => 1 [COL_COUNT] => 30 [LIST_TYPE] => L [MULTIPLE] => N [XML_ID] => 21 [FILE_TYPE] => [MULTIPLE_CNT] => 5 [LINK_IBLOCK_ID] => 0 [WITH_DESCRIPTION] => N [SEARCHABLE] => N [FILTRABLE] => N [IS_REQUIRED] => Y [VERSION] => 1 [USER_TYPE] => [USER_TYPE_SETTINGS] => Array ( ) [HINT] => [~NAME] => Оплата [~DEFAULT_VALUE] => [VALUE_ENUM] => Безналичный расчет [VALUE_XML_ID] => payment-bank [VALUE_SORT] => 1 [VALUE] => Безналичный расчет [PROPERTY_VALUE_ID] => 6841322 [VALUE_ENUM_ID] => 8 [DESCRIPTION] => [~VALUE] => Безналичный расчет [~DESCRIPTION] => ) [ITEM_PRICE] => Array ( [ID] => 22 [IBLOCK_ID] => 2 [NAME] => Цена [ACTIVE] => Y [SORT] => 3 [CODE] => ITEM_PRICE [DEFAULT_VALUE] => [PROPERTY_TYPE] => L [ROW_COUNT] => 1 [COL_COUNT] => 30 [LIST_TYPE] => L [MULTIPLE] => N [XML_ID] => 22 [FILE_TYPE] => [MULTIPLE_CNT] => 5 [LINK_IBLOCK_ID] => 0 [WITH_DESCRIPTION] => N [SEARCHABLE] => N [FILTRABLE] => N [IS_REQUIRED] => Y [VERSION] => 1 [USER_TYPE] => [USER_TYPE_SETTINGS] => Array ( ) [HINT] => [~NAME] => Цена [~DEFAULT_VALUE] => [VALUE_ENUM] => По запросу [VALUE_XML_ID] => on-request [VALUE_SORT] => 1 [VALUE] => По запросу [PROPERTY_VALUE_ID] => 6841323 [VALUE_ENUM_ID] => 9 [DESCRIPTION] => [~VALUE] => По запросу [~DESCRIPTION] => ) [ITEM_IMAGES] => Array ( [ID] => 23 [IBLOCK_ID] => 2 [NAME] => Изображения [ACTIVE] => Y [SORT] => 4 [CODE] => ITEM_IMAGES [DEFAULT_VALUE] => [PROPERTY_TYPE] => F [ROW_COUNT] => 1 [COL_COUNT] => 30 [LIST_TYPE] => L [MULTIPLE] => Y [XML_ID] => 23 [FILE_TYPE] => [MULTIPLE_CNT] => 5 [LINK_IBLOCK_ID] => 0 [WITH_DESCRIPTION] => N [SEARCHABLE] => N [FILTRABLE] => N [IS_REQUIRED] => N [VERSION] => 1 [USER_TYPE] => [USER_TYPE_SETTINGS] => Array ( ) [HINT] => [~NAME] => Изображения [~DEFAULT_VALUE] => [VALUE_ENUM] => [VALUE_XML_ID] => [VALUE_SORT] => [VALUE] => Array ( [0] => 55485 [1] => 55486 [2] => 55487 [3] => 55488 [4] => 55489 ) [PROPERTY_VALUE_ID] => Array ( [0] => 6829744 [1] => 6829745 [2] => 6829746 [3] => 6829747 [4] => 6829748 ) [DESCRIPTION] => Array ( [0] => [1] => [2] => [3] => [4] => ) [~VALUE] => Array ( [0] => 55485 [1] => 55486 [2] => 55487 [3] => 55488 [4] => 55489 ) [~DESCRIPTION] => Array ( [0] => [1] => [2] => [3] => [4] => ) ) [ITEM_PROPERTIES] => Array ( [ID] => 24 [IBLOCK_ID] => 2 [NAME] => Свойства [ACTIVE] => Y [SORT] => 5 [CODE] => ITEM_PROPERTIES [DEFAULT_VALUE] => [PROPERTY_TYPE] => E [ROW_COUNT] => 1 [COL_COUNT] => 30 [LIST_TYPE] => L [MULTIPLE] => Y [XML_ID] => 24 [FILE_TYPE] => [MULTIPLE_CNT] => 1 [LINK_IBLOCK_ID] => 3 [WITH_DESCRIPTION] => N [SEARCHABLE] => N [FILTRABLE] => N [IS_REQUIRED] => N [VERSION] => 1 [USER_TYPE] => [USER_TYPE_SETTINGS] => Array ( ) [HINT] => [~NAME] => Свойства [~DEFAULT_VALUE] => [VALUE_ENUM] => [VALUE_XML_ID] => [VALUE_SORT] => [VALUE] => [PROPERTY_VALUE_ID] => [DESCRIPTION] => [~DESCRIPTION] => [~VALUE] => ) [ITEM_CHARACTERISTICS] => Array ( [ID] => 28 [IBLOCK_ID] => 2 [NAME] => Характеристики [ACTIVE] => Y [SORT] => 6 [CODE] => ITEM_CHARACTERISTICS [DEFAULT_VALUE] => [PROPERTY_TYPE] => S [ROW_COUNT] => 1 [COL_COUNT] => 20 [LIST_TYPE] => L [MULTIPLE] => Y [XML_ID] => 28 [FILE_TYPE] => [MULTIPLE_CNT] => 1 [LINK_IBLOCK_ID] => 0 [WITH_DESCRIPTION] => Y [SEARCHABLE] => N [FILTRABLE] => N [IS_REQUIRED] => N [VERSION] => 1 [USER_TYPE] => [USER_TYPE_SETTINGS] => Array ( ) [HINT] => [~NAME] => Характеристики [~DEFAULT_VALUE] => [VALUE_ENUM] => [VALUE_XML_ID] => [VALUE_SORT] => [VALUE] => Array ( [0] => Промежуточная опора [1] => 9000 [2] => 146х8 [3] => 1930 [4] => 146х8 [5] => горячее цинкование [6] => Порошковое / полимерное окрашивание [7] => 30 лет ) [PROPERTY_VALUE_ID] => Array ( [0] => 6829749 [1] => 6829750 [2] => 6829751 [3] => 6829752 [4] => 6829753 [5] => 6829754 [6] => 6829755 [7] => 6829756 ) [DESCRIPTION] => Array ( [0] => Тип [1] => Высота стойки, мм [2] => Профиль стойки, мм [3] => Длина траверсы, мм [4] => Профиль траверсы, мм [5] => Защитное покрытие [6] => Лакокрасочное покрытие [7] => Срок службы ) [~VALUE] => Array ( [0] => Промежуточная опора [1] => 9000 [2] => 146х8 [3] => 1930 [4] => 146х8 [5] => горячее цинкование [6] => Порошковое / полимерное окрашивание [7] => 30 лет ) [~DESCRIPTION] => Array ( [0] => Тип [1] => Высота стойки, мм [2] => Профиль стойки, мм [3] => Длина траверсы, мм [4] => Профиль траверсы, мм [5] => Защитное покрытие [6] => Лакокрасочное покрытие [7] => Срок службы ) ) [ITEM_FILTER] => Array ( [ID] => 40 [IBLOCK_ID] => 2 [NAME] => Фильтр [ACTIVE] => Y [SORT] => 7 [CODE] => ITEM_FILTER [DEFAULT_VALUE] => [PROPERTY_TYPE] => S [ROW_COUNT] => 1 [COL_COUNT] => 30 [LIST_TYPE] => L [MULTIPLE] => N [XML_ID] => 40 [FILE_TYPE] => [MULTIPLE_CNT] => 5 [LINK_IBLOCK_ID] => 0 [WITH_DESCRIPTION] => N [SEARCHABLE] => N [FILTRABLE] => N [IS_REQUIRED] => N [VERSION] => 1 [USER_TYPE] => [USER_TYPE_SETTINGS] => Array ( ) [HINT] => [~NAME] => Фильтр [~DEFAULT_VALUE] => [VALUE_ENUM] => [VALUE_XML_ID] => [VALUE_SORT] => [VALUE] => [PROPERTY_VALUE_ID] => [DESCRIPTION] => [~DESCRIPTION] => [~VALUE] => ) [ITEM_TECH_CH] => Array ( [ID] => 29 [IBLOCK_ID] => 2 [NAME] => Технические характеристики [ACTIVE] => Y [SORT] => 8 [CODE] => ITEM_TECH_CH [DEFAULT_VALUE] => Array ( [TYPE] => HTML [TEXT] => ) [PROPERTY_TYPE] => S [ROW_COUNT] => 1 [COL_COUNT] => 30 [LIST_TYPE] => L [MULTIPLE] => N [XML_ID] => 29 [FILE_TYPE] => [MULTIPLE_CNT] => 5 [LINK_IBLOCK_ID] => 0 [WITH_DESCRIPTION] => N [SEARCHABLE] => N [FILTRABLE] => N [IS_REQUIRED] => N [VERSION] => 1 [USER_TYPE] => HTML [USER_TYPE_SETTINGS] => Array ( [height] => 200 ) [HINT] => [~NAME] => Технические характеристики [~DEFAULT_VALUE] => Array ( [TYPE] => HTML [TEXT] => ) [VALUE_ENUM] => [VALUE_XML_ID] => [VALUE_SORT] => [VALUE] => Array ( [TEXT] => <p> Промежуточная опора ПТ10-1 применяется в составе распределительных линий электропередачи 6–10 кВ на территориях городов, посёлков, объектов промышленной и коммунальной инфраструктуры. Конструкция адаптирована к нормальным климатическим нагрузкам (ветер, снег, мороз) для районов с расчётной температурой наружного воздуха и типовыми ветровыми параметрами, принимаемыми проектом. </p> [TYPE] => HTML ) [PROPERTY_VALUE_ID] => 6841324 [DESCRIPTION] => [~VALUE] => Array ( [TEXT] =>

Промежуточная опора ПТ10-1 применяется в составе распределительных линий электропередачи 6–10 кВ на территориях городов, посёлков, объектов промышленной и коммунальной инфраструктуры. Конструкция адаптирована к нормальным климатическим нагрузкам (ветер, снег, мороз) для районов с расчётной температурой наружного воздуха и типовыми ветровыми параметрами, принимаемыми проектом.

[TYPE] => HTML ) [~DESCRIPTION] => ) [ITEM_ADV_DESCR] => Array ( [ID] => 30 [IBLOCK_ID] => 2 [NAME] => Преимущества (описание) [ACTIVE] => Y [SORT] => 9 [CODE] => ITEM_ADV_DESCR [DEFAULT_VALUE] => Array ( [TYPE] => HTML [TEXT] => ) [PROPERTY_TYPE] => S [ROW_COUNT] => 1 [COL_COUNT] => 30 [LIST_TYPE] => L [MULTIPLE] => N [XML_ID] => 30 [FILE_TYPE] => [MULTIPLE_CNT] => 5 [LINK_IBLOCK_ID] => 0 [WITH_DESCRIPTION] => N [SEARCHABLE] => N [FILTRABLE] => N [IS_REQUIRED] => N [VERSION] => 1 [USER_TYPE] => HTML [USER_TYPE_SETTINGS] => Array ( [height] => 100 ) [HINT] => [~NAME] => Преимущества (описание) [~DEFAULT_VALUE] => Array ( [TYPE] => HTML [TEXT] => ) [VALUE_ENUM] => [VALUE_XML_ID] => [VALUE_SORT] => [VALUE] => Array ( [TEXT] => <ul> <li>Специализированное решение для ВЛ 6–10 кВ с учётом норм проектирования.</li> <li>Сталь 09Г2С — оптимальные механические свойства.</li> <li>Антикоррозионная защита горячим цинкованием.</li> <li>Адаптация под индивидуальные проекты.</li> <li>Совместимость с типовыми траверсами и крепёжными элементами.</li> <li>Ориентирована на длительный срок службы.</li> </ul> [TYPE] => HTML ) [PROPERTY_VALUE_ID] => 6841325 [DESCRIPTION] => [~VALUE] => Array ( [TEXT] =>
  • Специализированное решение для ВЛ 6–10 кВ с учётом норм проектирования.
  • Сталь 09Г2С — оптимальные механические свойства.
  • Антикоррозионная защита горячим цинкованием.
  • Адаптация под индивидуальные проекты.
  • Совместимость с типовыми траверсами и крепёжными элементами.
  • Ориентирована на длительный срок службы.
[TYPE] => HTML ) [~DESCRIPTION] => ) [ITEM_ADV] => Array ( [ID] => 31 [IBLOCK_ID] => 2 [NAME] => Преимущества [ACTIVE] => Y [SORT] => 10 [CODE] => ITEM_ADV [DEFAULT_VALUE] => [PROPERTY_TYPE] => E [ROW_COUNT] => 1 [COL_COUNT] => 30 [LIST_TYPE] => L [MULTIPLE] => Y [XML_ID] => 31 [FILE_TYPE] => [MULTIPLE_CNT] => 1 [LINK_IBLOCK_ID] => 5 [WITH_DESCRIPTION] => N [SEARCHABLE] => N [FILTRABLE] => N [IS_REQUIRED] => N [VERSION] => 1 [USER_TYPE] => [USER_TYPE_SETTINGS] => Array ( ) [HINT] => [~NAME] => Преимущества [~DEFAULT_VALUE] => [VALUE_ENUM] => [VALUE_XML_ID] => [VALUE_SORT] => [VALUE] => [PROPERTY_VALUE_ID] => [DESCRIPTION] => [~DESCRIPTION] => [~VALUE] => ) [ITEM_BUY] => Array ( [ID] => 32 [IBLOCK_ID] => 2 [NAME] => Купить [ACTIVE] => Y [SORT] => 11 [CODE] => ITEM_BUY [DEFAULT_VALUE] => Array ( [TEXT] => [TYPE] => HTML ) [PROPERTY_TYPE] => S [ROW_COUNT] => 1 [COL_COUNT] => 30 [LIST_TYPE] => L [MULTIPLE] => N [XML_ID] => 32 [FILE_TYPE] => [MULTIPLE_CNT] => 5 [LINK_IBLOCK_ID] => 0 [WITH_DESCRIPTION] => N [SEARCHABLE] => N [FILTRABLE] => N [IS_REQUIRED] => N [VERSION] => 1 [USER_TYPE] => HTML [USER_TYPE_SETTINGS] => Array ( [height] => 200 ) [HINT] => [~NAME] => Купить [~DEFAULT_VALUE] => Array ( [TEXT] => [TYPE] => HTML ) [VALUE_ENUM] => [VALUE_XML_ID] => [VALUE_SORT] => [VALUE] => [PROPERTY_VALUE_ID] => [DESCRIPTION] => [~DESCRIPTION] => [~VALUE] => ) [ITEM_CERT_COR] => Array ( [ID] => 33 [IBLOCK_ID] => 2 [NAME] => Сертификаты соответствия [ACTIVE] => Y [SORT] => 12 [CODE] => ITEM_CERT_COR [DEFAULT_VALUE] => [PROPERTY_TYPE] => S [ROW_COUNT] => 1 [COL_COUNT] => 30 [LIST_TYPE] => L [MULTIPLE] => Y [XML_ID] => 33 [FILE_TYPE] => [MULTIPLE_CNT] => 1 [LINK_IBLOCK_ID] => 0 [WITH_DESCRIPTION] => Y [SEARCHABLE] => N [FILTRABLE] => N [IS_REQUIRED] => N [VERSION] => 1 [USER_TYPE] => [USER_TYPE_SETTINGS] => Array ( ) [HINT] => [~NAME] => Сертификаты соответствия [~DEFAULT_VALUE] => [VALUE_ENUM] => [VALUE_XML_ID] => [VALUE_SORT] => [VALUE] => [PROPERTY_VALUE_ID] => [DESCRIPTION] => [~DESCRIPTION] => [~VALUE] => ) [ITEM_ST_STAND] => Array ( [ID] => 34 [IBLOCK_ID] => 2 [NAME] => Государственные стандарты [ACTIVE] => Y [SORT] => 13 [CODE] => ITEM_ST_STAND [DEFAULT_VALUE] => [PROPERTY_TYPE] => S [ROW_COUNT] => 1 [COL_COUNT] => 30 [LIST_TYPE] => L [MULTIPLE] => Y [XML_ID] => 34 [FILE_TYPE] => [MULTIPLE_CNT] => 1 [LINK_IBLOCK_ID] => 0 [WITH_DESCRIPTION] => Y [SEARCHABLE] => N [FILTRABLE] => N [IS_REQUIRED] => N [VERSION] => 1 [USER_TYPE] => [USER_TYPE_SETTINGS] => Array ( ) [HINT] => [~NAME] => Государственные стандарты [~DEFAULT_VALUE] => [VALUE_ENUM] => [VALUE_XML_ID] => [VALUE_SORT] => [VALUE] => [PROPERTY_VALUE_ID] => [DESCRIPTION] => [~DESCRIPTION] => [~VALUE] => ) [ITEM_NORM] => Array ( [ID] => 35 [IBLOCK_ID] => 2 [NAME] => Строительные нормы и правила [ACTIVE] => Y [SORT] => 14 [CODE] => ITEM_NORM [DEFAULT_VALUE] => [PROPERTY_TYPE] => S [ROW_COUNT] => 1 [COL_COUNT] => 30 [LIST_TYPE] => L [MULTIPLE] => Y [XML_ID] => 35 [FILE_TYPE] => [MULTIPLE_CNT] => 1 [LINK_IBLOCK_ID] => 0 [WITH_DESCRIPTION] => Y [SEARCHABLE] => N [FILTRABLE] => N [IS_REQUIRED] => N [VERSION] => 1 [USER_TYPE] => [USER_TYPE_SETTINGS] => Array ( ) [HINT] => [~NAME] => Строительные нормы и правила [~DEFAULT_VALUE] => [VALUE_ENUM] => [VALUE_XML_ID] => [VALUE_SORT] => [VALUE] => [PROPERTY_VALUE_ID] => [DESCRIPTION] => [~DESCRIPTION] => [~VALUE] => ) [ITEM_SIMILAR] => Array ( [ID] => 36 [IBLOCK_ID] => 2 [NAME] => Похожие модели [ACTIVE] => Y [SORT] => 15 [CODE] => ITEM_SIMILAR [DEFAULT_VALUE] => [PROPERTY_TYPE] => G [ROW_COUNT] => 1 [COL_COUNT] => 30 [LIST_TYPE] => L [MULTIPLE] => Y [XML_ID] => 36 [FILE_TYPE] => [MULTIPLE_CNT] => 10 [LINK_IBLOCK_ID] => 2 [WITH_DESCRIPTION] => N [SEARCHABLE] => N [FILTRABLE] => N [IS_REQUIRED] => N [VERSION] => 1 [USER_TYPE] => [USER_TYPE_SETTINGS] => Array ( ) [HINT] => [~NAME] => Похожие модели [~DEFAULT_VALUE] => [VALUE_ENUM] => [VALUE_XML_ID] => [VALUE_SORT] => [VALUE] => Array ( [0] => 4506 ) [PROPERTY_VALUE_ID] => Array ( [0] => 6841326 ) [DESCRIPTION] => Array ( [0] => ) [~VALUE] => Array ( [0] => 4506 ) [~DESCRIPTION] => Array ( [0] => ) ) [ITEM_SIMILAR_TAGS] => Array ( [ID] => 122 [IBLOCK_ID] => 2 [NAME] => Похожие модели (теговые) [ACTIVE] => Y [SORT] => 16 [CODE] => ITEM_SIMILAR_TAGS [DEFAULT_VALUE] => [PROPERTY_TYPE] => E [ROW_COUNT] => 1 [COL_COUNT] => 30 [LIST_TYPE] => L [MULTIPLE] => Y [XML_ID] => 122 [FILE_TYPE] => [MULTIPLE_CNT] => 1 [LINK_IBLOCK_ID] => 19 [WITH_DESCRIPTION] => N [SEARCHABLE] => N [FILTRABLE] => N [IS_REQUIRED] => N [VERSION] => 1 [USER_TYPE] => [USER_TYPE_SETTINGS] => Array ( ) [HINT] => [~NAME] => Похожие модели (теговые) [~DEFAULT_VALUE] => [VALUE_ENUM] => [VALUE_XML_ID] => [VALUE_SORT] => [VALUE] => [PROPERTY_VALUE_ID] => [DESCRIPTION] => [~DESCRIPTION] => [~VALUE] => ) [ITEM_BUY_WITH] => Array ( [ID] => 37 [IBLOCK_ID] => 2 [NAME] => С этим товаром покупают [ACTIVE] => Y [SORT] => 17 [CODE] => ITEM_BUY_WITH [DEFAULT_VALUE] => [PROPERTY_TYPE] => E [ROW_COUNT] => 1 [COL_COUNT] => 30 [LIST_TYPE] => L [MULTIPLE] => Y [XML_ID] => 37 [FILE_TYPE] => [MULTIPLE_CNT] => 1 [LINK_IBLOCK_ID] => 2 [WITH_DESCRIPTION] => N [SEARCHABLE] => N [FILTRABLE] => N [IS_REQUIRED] => N [VERSION] => 1 [USER_TYPE] => [USER_TYPE_SETTINGS] => Array ( ) [HINT] => [~NAME] => С этим товаром покупают [~DEFAULT_VALUE] => [VALUE_ENUM] => [VALUE_XML_ID] => [VALUE_SORT] => [VALUE] => [PROPERTY_VALUE_ID] => [DESCRIPTION] => [~DESCRIPTION] => [~VALUE] => ) [ITEM_VOTE_COUNT] => Array ( [ID] => 38 [IBLOCK_ID] => 2 [NAME] => Количество голосов [ACTIVE] => Y [SORT] => 18 [CODE] => ITEM_VOTE_COUNT [DEFAULT_VALUE] => 0 [PROPERTY_TYPE] => N [ROW_COUNT] => 1 [COL_COUNT] => 30 [LIST_TYPE] => L [MULTIPLE] => N [XML_ID] => 38 [FILE_TYPE] => [MULTIPLE_CNT] => 5 [LINK_IBLOCK_ID] => 0 [WITH_DESCRIPTION] => N [SEARCHABLE] => N [FILTRABLE] => N [IS_REQUIRED] => N [VERSION] => 1 [USER_TYPE] => [USER_TYPE_SETTINGS] => Array ( ) [HINT] => [~NAME] => Количество голосов [~DEFAULT_VALUE] => 0 [VALUE_ENUM] => [VALUE_XML_ID] => [VALUE_SORT] => [VALUE] => 8 [PROPERTY_VALUE_ID] => 6829762 [DESCRIPTION] => [~VALUE] => 8 [~DESCRIPTION] => ) [ITEM_RAITING] => Array ( [ID] => 39 [IBLOCK_ID] => 2 [NAME] => Рейтинг [ACTIVE] => Y [SORT] => 19 [CODE] => ITEM_RAITING [DEFAULT_VALUE] => 0 [PROPERTY_TYPE] => N [ROW_COUNT] => 1 [COL_COUNT] => 30 [LIST_TYPE] => L [MULTIPLE] => N [XML_ID] => 39 [FILE_TYPE] => [MULTIPLE_CNT] => 5 [LINK_IBLOCK_ID] => 0 [WITH_DESCRIPTION] => N [SEARCHABLE] => N [FILTRABLE] => N [IS_REQUIRED] => N [VERSION] => 1 [USER_TYPE] => [USER_TYPE_SETTINGS] => Array ( ) [HINT] => [~NAME] => Рейтинг [~DEFAULT_VALUE] => 0 [VALUE_ENUM] => [VALUE_XML_ID] => [VALUE_SORT] => [VALUE] => 4.7 [PROPERTY_VALUE_ID] => 6829761 [DESCRIPTION] => [~VALUE] => 4.7 [~DESCRIPTION] => ) [H1] => Array ( [ID] => 125 [IBLOCK_ID] => 2 [NAME] => H1 [ACTIVE] => Y [SORT] => 500 [CODE] => H1 [DEFAULT_VALUE] => [PROPERTY_TYPE] => S [ROW_COUNT] => 1 [COL_COUNT] => 70 [LIST_TYPE] => L [MULTIPLE] => N [XML_ID] => 125 [FILE_TYPE] => [MULTIPLE_CNT] => 5 [LINK_IBLOCK_ID] => 0 [WITH_DESCRIPTION] => N [SEARCHABLE] => N [FILTRABLE] => N [IS_REQUIRED] => N [VERSION] => 1 [USER_TYPE] => [USER_TYPE_SETTINGS] => Array ( ) [HINT] => [~NAME] => H1 [~DEFAULT_VALUE] => [VALUE_ENUM] => [VALUE_XML_ID] => [VALUE_SORT] => [VALUE] => Промежуточная опора Пт10-1 [PROPERTY_VALUE_ID] => 6829760 [DESCRIPTION] => [~VALUE] => Промежуточная опора Пт10-1 [~DESCRIPTION] => ) [CERTIFICATES] => Array ( [ID] => 127 [IBLOCK_ID] => 2 [NAME] => Сертификаты [ACTIVE] => Y [SORT] => 500 [CODE] => CERTIFICATES [DEFAULT_VALUE] => [PROPERTY_TYPE] => E [ROW_COUNT] => 1 [COL_COUNT] => 30 [LIST_TYPE] => L [MULTIPLE] => Y [XML_ID] => 127 [FILE_TYPE] => [MULTIPLE_CNT] => 5 [LINK_IBLOCK_ID] => 7 [WITH_DESCRIPTION] => N [SEARCHABLE] => N [FILTRABLE] => N [IS_REQUIRED] => N [VERSION] => 1 [USER_TYPE] => [USER_TYPE_SETTINGS] => Array ( ) [HINT] => [~NAME] => Сертификаты [~DEFAULT_VALUE] => [VALUE_ENUM] => [VALUE_XML_ID] => [VALUE_SORT] => [VALUE] => [PROPERTY_VALUE_ID] => [DESCRIPTION] => [~DESCRIPTION] => [~VALUE] => ) [129] => Array ( [ID] => 129 [IBLOCK_ID] => 2 [NAME] => Уникальный META TITLE [ACTIVE] => Y [SORT] => 500 [CODE] => 129 [DEFAULT_VALUE] => [PROPERTY_TYPE] => S [ROW_COUNT] => 1 [COL_COUNT] => 30 [LIST_TYPE] => L [MULTIPLE] => N [XML_ID] => 129 [FILE_TYPE] => [MULTIPLE_CNT] => 5 [LINK_IBLOCK_ID] => 0 [WITH_DESCRIPTION] => N [SEARCHABLE] => N [FILTRABLE] => N [IS_REQUIRED] => N [VERSION] => 1 [USER_TYPE] => [USER_TYPE_SETTINGS] => Array ( ) [HINT] => [~NAME] => Уникальный META TITLE [~DEFAULT_VALUE] => [VALUE_ENUM] => [VALUE_XML_ID] => [VALUE_SORT] => [VALUE] => [PROPERTY_VALUE_ID] => [DESCRIPTION] => [~DESCRIPTION] => [~VALUE] => ) [ITEM_TYPE] => Array ( [ID] => 134 [IBLOCK_ID] => 2 [NAME] => Тип [ACTIVE] => Y [SORT] => 500 [CODE] => ITEM_TYPE [DEFAULT_VALUE] => [PROPERTY_TYPE] => S [ROW_COUNT] => 1 [COL_COUNT] => 30 [LIST_TYPE] => L [MULTIPLE] => N [XML_ID] => [FILE_TYPE] => [MULTIPLE_CNT] => 5 [LINK_IBLOCK_ID] => 0 [WITH_DESCRIPTION] => N [SEARCHABLE] => N [FILTRABLE] => Y [IS_REQUIRED] => N [VERSION] => 1 [USER_TYPE] => [USER_TYPE_SETTINGS] => Array ( ) [HINT] => [~NAME] => Тип [~DEFAULT_VALUE] => [VALUE_ENUM] => [VALUE_XML_ID] => [VALUE_SORT] => [VALUE] => [PROPERTY_VALUE_ID] => [DESCRIPTION] => [~DESCRIPTION] => [~VALUE] => ) [ITEM_INSTALLATION] => Array ( [ID] => 135 [IBLOCK_ID] => 2 [NAME] => Способ установки [ACTIVE] => Y [SORT] => 500 [CODE] => ITEM_INSTALLATION [DEFAULT_VALUE] => [PROPERTY_TYPE] => S [ROW_COUNT] => 1 [COL_COUNT] => 30 [LIST_TYPE] => L [MULTIPLE] => N [XML_ID] => [FILE_TYPE] => [MULTIPLE_CNT] => 5 [LINK_IBLOCK_ID] => 0 [WITH_DESCRIPTION] => N [SEARCHABLE] => N [FILTRABLE] => N [IS_REQUIRED] => N [VERSION] => 1 [USER_TYPE] => [USER_TYPE_SETTINGS] => Array ( ) [HINT] => [~NAME] => Способ установки [~DEFAULT_VALUE] => [VALUE_ENUM] => [VALUE_XML_ID] => [VALUE_SORT] => [VALUE] => [PROPERTY_VALUE_ID] => [DESCRIPTION] => [~DESCRIPTION] => [~VALUE] => ) [ITEM_MODE] => Array ( [ID] => 136 [IBLOCK_ID] => 2 [NAME] => Способ производства [ACTIVE] => Y [SORT] => 500 [CODE] => ITEM_MODE [DEFAULT_VALUE] => [PROPERTY_TYPE] => S [ROW_COUNT] => 1 [COL_COUNT] => 30 [LIST_TYPE] => L [MULTIPLE] => N [XML_ID] => [FILE_TYPE] => [MULTIPLE_CNT] => 5 [LINK_IBLOCK_ID] => 0 [WITH_DESCRIPTION] => N [SEARCHABLE] => N [FILTRABLE] => N [IS_REQUIRED] => N [VERSION] => 1 [USER_TYPE] => [USER_TYPE_SETTINGS] => Array ( ) [HINT] => [~NAME] => Способ производства [~DEFAULT_VALUE] => [VALUE_ENUM] => [VALUE_XML_ID] => [VALUE_SORT] => [VALUE] => [PROPERTY_VALUE_ID] => [DESCRIPTION] => [~DESCRIPTION] => [~VALUE] => ) [ITEM_HEIGHT] => Array ( [ID] => 137 [IBLOCK_ID] => 2 [NAME] => Высота, мм [ACTIVE] => Y [SORT] => 500 [CODE] => ITEM_HEIGHT [DEFAULT_VALUE] => [PROPERTY_TYPE] => S [ROW_COUNT] => 1 [COL_COUNT] => 30 [LIST_TYPE] => L [MULTIPLE] => N [XML_ID] => [FILE_TYPE] => [MULTIPLE_CNT] => 5 [LINK_IBLOCK_ID] => 0 [WITH_DESCRIPTION] => N [SEARCHABLE] => N [FILTRABLE] => N [IS_REQUIRED] => N [VERSION] => 1 [USER_TYPE] => [USER_TYPE_SETTINGS] => Array ( ) [HINT] => [~NAME] => Высота, мм [~DEFAULT_VALUE] => [VALUE_ENUM] => [VALUE_XML_ID] => [VALUE_SORT] => [VALUE] => [PROPERTY_VALUE_ID] => [DESCRIPTION] => [~DESCRIPTION] => [~VALUE] => ) [BLOG_POST_ID] => Array ( [ID] => 138 [IBLOCK_ID] => 2 [NAME] => ID поста блога для комментариев [ACTIVE] => Y [SORT] => 500 [CODE] => BLOG_POST_ID [DEFAULT_VALUE] => [PROPERTY_TYPE] => N [ROW_COUNT] => 1 [COL_COUNT] => 30 [LIST_TYPE] => L [MULTIPLE] => N [XML_ID] => BLOG_POST_ID [FILE_TYPE] => [MULTIPLE_CNT] => 5 [LINK_IBLOCK_ID] => 0 [WITH_DESCRIPTION] => N [SEARCHABLE] => N [FILTRABLE] => N [IS_REQUIRED] => N [VERSION] => 1 [USER_TYPE] => [USER_TYPE_SETTINGS] => Array ( ) [HINT] => [~NAME] => ID поста блога для комментариев [~DEFAULT_VALUE] => [VALUE_ENUM] => [VALUE_XML_ID] => [VALUE_SORT] => [VALUE] => [PROPERTY_VALUE_ID] => [DESCRIPTION] => [~DESCRIPTION] => [~VALUE] => ) [BLOG_COMMENTS_CNT] => Array ( [ID] => 139 [IBLOCK_ID] => 2 [NAME] => Количество комментариев [ACTIVE] => Y [SORT] => 500 [CODE] => BLOG_COMMENTS_CNT [DEFAULT_VALUE] => [PROPERTY_TYPE] => N [ROW_COUNT] => 1 [COL_COUNT] => 30 [LIST_TYPE] => L [MULTIPLE] => N [XML_ID] => BLOG_COMMENTS_CNT [FILE_TYPE] => [MULTIPLE_CNT] => 5 [LINK_IBLOCK_ID] => 0 [WITH_DESCRIPTION] => N [SEARCHABLE] => N [FILTRABLE] => N [IS_REQUIRED] => N [VERSION] => 1 [USER_TYPE] => [USER_TYPE_SETTINGS] => Array ( ) [HINT] => [~NAME] => Количество комментариев [~DEFAULT_VALUE] => [VALUE_ENUM] => [VALUE_XML_ID] => [VALUE_SORT] => [VALUE] => [PROPERTY_VALUE_ID] => [DESCRIPTION] => [~DESCRIPTION] => [~VALUE] => ) [HEIGHT_TOTAL] => Array ( [ID] => 143 [IBLOCK_ID] => 2 [NAME] => Высота общая, мм [ACTIVE] => Y [SORT] => 500 [CODE] => HEIGHT_TOTAL [DEFAULT_VALUE] => [PROPERTY_TYPE] => S [ROW_COUNT] => 1 [COL_COUNT] => 30 [LIST_TYPE] => L [MULTIPLE] => N [XML_ID] => [FILE_TYPE] => [MULTIPLE_CNT] => 5 [LINK_IBLOCK_ID] => 0 [WITH_DESCRIPTION] => N [SEARCHABLE] => N [FILTRABLE] => N [IS_REQUIRED] => N [VERSION] => 1 [USER_TYPE] => [USER_TYPE_SETTINGS] => Array ( ) [HINT] => [~NAME] => Высота общая, мм [~DEFAULT_VALUE] => [VALUE_ENUM] => [VALUE_XML_ID] => [VALUE_SORT] => [VALUE] => [PROPERTY_VALUE_ID] => [DESCRIPTION] => [~DESCRIPTION] => [~VALUE] => ) [HEIGHT_ABOVEGROUND] => Array ( [ID] => 144 [IBLOCK_ID] => 2 [NAME] => Высота надземной части, мм [ACTIVE] => Y [SORT] => 500 [CODE] => HEIGHT_ABOVEGROUND [DEFAULT_VALUE] => [PROPERTY_TYPE] => S [ROW_COUNT] => 1 [COL_COUNT] => 30 [LIST_TYPE] => L [MULTIPLE] => N [XML_ID] => [FILE_TYPE] => [MULTIPLE_CNT] => 5 [LINK_IBLOCK_ID] => 0 [WITH_DESCRIPTION] => N [SEARCHABLE] => N [FILTRABLE] => N [IS_REQUIRED] => N [VERSION] => 1 [USER_TYPE] => [USER_TYPE_SETTINGS] => Array ( ) [HINT] => [~NAME] => Высота надземной части, мм [~DEFAULT_VALUE] => [VALUE_ENUM] => [VALUE_XML_ID] => [VALUE_SORT] => [VALUE] => [PROPERTY_VALUE_ID] => [DESCRIPTION] => [~DESCRIPTION] => [~VALUE] => ) [HEIGHT_UNDERGROUND] => Array ( [ID] => 145 [IBLOCK_ID] => 2 [NAME] => Высота подземной части, мм [ACTIVE] => Y [SORT] => 500 [CODE] => HEIGHT_UNDERGROUND [DEFAULT_VALUE] => [PROPERTY_TYPE] => S [ROW_COUNT] => 1 [COL_COUNT] => 30 [LIST_TYPE] => L [MULTIPLE] => N [XML_ID] => [FILE_TYPE] => [MULTIPLE_CNT] => 5 [LINK_IBLOCK_ID] => 0 [WITH_DESCRIPTION] => N [SEARCHABLE] => N [FILTRABLE] => N [IS_REQUIRED] => N [VERSION] => 1 [USER_TYPE] => [USER_TYPE_SETTINGS] => Array ( ) [HINT] => [~NAME] => Высота подземной части, мм [~DEFAULT_VALUE] => [VALUE_ENUM] => [VALUE_XML_ID] => [VALUE_SORT] => [VALUE] => [PROPERTY_VALUE_ID] => [DESCRIPTION] => [~DESCRIPTION] => [~VALUE] => ) [DIAMETER_TOP] => Array ( [ID] => 146 [IBLOCK_ID] => 2 [NAME] => Диаметр верхний, мм [ACTIVE] => Y [SORT] => 500 [CODE] => DIAMETER_TOP [DEFAULT_VALUE] => [PROPERTY_TYPE] => S [ROW_COUNT] => 1 [COL_COUNT] => 30 [LIST_TYPE] => L [MULTIPLE] => N [XML_ID] => [FILE_TYPE] => [MULTIPLE_CNT] => 5 [LINK_IBLOCK_ID] => 0 [WITH_DESCRIPTION] => N [SEARCHABLE] => N [FILTRABLE] => N [IS_REQUIRED] => N [VERSION] => 1 [USER_TYPE] => [USER_TYPE_SETTINGS] => Array ( ) [HINT] => [~NAME] => Диаметр верхний, мм [~DEFAULT_VALUE] => [VALUE_ENUM] => [VALUE_XML_ID] => [VALUE_SORT] => [VALUE] => [PROPERTY_VALUE_ID] => [DESCRIPTION] => [~DESCRIPTION] => [~VALUE] => ) [DIAMETER_BOTTOM] => Array ( [ID] => 147 [IBLOCK_ID] => 2 [NAME] => Диаметр нижний, мм [ACTIVE] => Y [SORT] => 500 [CODE] => DIAMETER_BOTTOM [DEFAULT_VALUE] => [PROPERTY_TYPE] => S [ROW_COUNT] => 1 [COL_COUNT] => 30 [LIST_TYPE] => L [MULTIPLE] => N [XML_ID] => [FILE_TYPE] => [MULTIPLE_CNT] => 5 [LINK_IBLOCK_ID] => 0 [WITH_DESCRIPTION] => N [SEARCHABLE] => N [FILTRABLE] => N [IS_REQUIRED] => N [VERSION] => 1 [USER_TYPE] => [USER_TYPE_SETTINGS] => Array ( ) [HINT] => [~NAME] => Диаметр нижний, мм [~DEFAULT_VALUE] => [VALUE_ENUM] => [VALUE_XML_ID] => [VALUE_SORT] => [VALUE] => [PROPERTY_VALUE_ID] => [DESCRIPTION] => [~DESCRIPTION] => [~VALUE] => ) [WEIGHT] => Array ( [ID] => 148 [IBLOCK_ID] => 2 [NAME] => Нагрузка, кг [ACTIVE] => Y [SORT] => 500 [CODE] => WEIGHT [DEFAULT_VALUE] => [PROPERTY_TYPE] => S [ROW_COUNT] => 1 [COL_COUNT] => 30 [LIST_TYPE] => L [MULTIPLE] => N [XML_ID] => [FILE_TYPE] => [MULTIPLE_CNT] => 5 [LINK_IBLOCK_ID] => 0 [WITH_DESCRIPTION] => N [SEARCHABLE] => N [FILTRABLE] => N [IS_REQUIRED] => N [VERSION] => 1 [USER_TYPE] => [USER_TYPE_SETTINGS] => Array ( ) [HINT] => [~NAME] => Нагрузка, кг [~DEFAULT_VALUE] => [VALUE_ENUM] => [VALUE_XML_ID] => [VALUE_SORT] => [VALUE] => [PROPERTY_VALUE_ID] => [DESCRIPTION] => [~DESCRIPTION] => [~VALUE] => ) [VID] => Array ( [ID] => 149 [IBLOCK_ID] => 2 [NAME] => Вид [ACTIVE] => Y [SORT] => 500 [CODE] => VID [DEFAULT_VALUE] => [PROPERTY_TYPE] => S [ROW_COUNT] => 1 [COL_COUNT] => 30 [LIST_TYPE] => L [MULTIPLE] => N [XML_ID] => [FILE_TYPE] => [MULTIPLE_CNT] => 5 [LINK_IBLOCK_ID] => 0 [WITH_DESCRIPTION] => N [SEARCHABLE] => N [FILTRABLE] => N [IS_REQUIRED] => N [VERSION] => 1 [USER_TYPE] => [USER_TYPE_SETTINGS] => Array ( ) [HINT] => [~NAME] => Вид [~DEFAULT_VALUE] => [VALUE_ENUM] => [VALUE_XML_ID] => [VALUE_SORT] => [VALUE] => [PROPERTY_VALUE_ID] => [DESCRIPTION] => [~DESCRIPTION] => [~VALUE] => ) [SERVICE_LIFE] => Array ( [ID] => 150 [IBLOCK_ID] => 2 [NAME] => Срок службы [ACTIVE] => Y [SORT] => 500 [CODE] => SERVICE_LIFE [DEFAULT_VALUE] => [PROPERTY_TYPE] => S [ROW_COUNT] => 1 [COL_COUNT] => 30 [LIST_TYPE] => L [MULTIPLE] => N [XML_ID] => [FILE_TYPE] => [MULTIPLE_CNT] => 5 [LINK_IBLOCK_ID] => 0 [WITH_DESCRIPTION] => N [SEARCHABLE] => N [FILTRABLE] => N [IS_REQUIRED] => N [VERSION] => 1 [USER_TYPE] => [USER_TYPE_SETTINGS] => Array ( ) [HINT] => [~NAME] => Срок службы [~DEFAULT_VALUE] => [VALUE_ENUM] => [VALUE_XML_ID] => [VALUE_SORT] => [VALUE] => [PROPERTY_VALUE_ID] => [DESCRIPTION] => [~DESCRIPTION] => [~VALUE] => ) [USING] => Array ( [ID] => 151 [IBLOCK_ID] => 2 [NAME] => Применение [ACTIVE] => Y [SORT] => 500 [CODE] => USING [DEFAULT_VALUE] => [PROPERTY_TYPE] => S [ROW_COUNT] => 1 [COL_COUNT] => 30 [LIST_TYPE] => L [MULTIPLE] => N [XML_ID] => [FILE_TYPE] => [MULTIPLE_CNT] => 5 [LINK_IBLOCK_ID] => 0 [WITH_DESCRIPTION] => N [SEARCHABLE] => N [FILTRABLE] => N [IS_REQUIRED] => N [VERSION] => 1 [USER_TYPE] => [USER_TYPE_SETTINGS] => Array ( ) [HINT] => [~NAME] => Применение [~DEFAULT_VALUE] => [VALUE_ENUM] => [VALUE_XML_ID] => [VALUE_SORT] => [VALUE] => [PROPERTY_VALUE_ID] => [DESCRIPTION] => [~DESCRIPTION] => [~VALUE] => ) [HEIGHT_ZAK] => Array ( [ID] => 152 [IBLOCK_ID] => 2 [NAME] => Высота закладного элемента фундамента [ACTIVE] => Y [SORT] => 500 [CODE] => HEIGHT_ZAK [DEFAULT_VALUE] => [PROPERTY_TYPE] => S [ROW_COUNT] => 1 [COL_COUNT] => 30 [LIST_TYPE] => L [MULTIPLE] => N [XML_ID] => [FILE_TYPE] => [MULTIPLE_CNT] => 5 [LINK_IBLOCK_ID] => 0 [WITH_DESCRIPTION] => N [SEARCHABLE] => N [FILTRABLE] => N [IS_REQUIRED] => N [VERSION] => 1 [USER_TYPE] => [USER_TYPE_SETTINGS] => Array ( ) [HINT] => [~NAME] => Высота закладного элемента фундамента [~DEFAULT_VALUE] => [VALUE_ENUM] => [VALUE_XML_ID] => [VALUE_SORT] => [VALUE] => [PROPERTY_VALUE_ID] => [DESCRIPTION] => [~DESCRIPTION] => [~VALUE] => ) [LENGTH_CONSOLE] => Array ( [ID] => 153 [IBLOCK_ID] => 2 [NAME] => Длина консоли [ACTIVE] => Y [SORT] => 500 [CODE] => LENGTH_CONSOLE [DEFAULT_VALUE] => [PROPERTY_TYPE] => S [ROW_COUNT] => 1 [COL_COUNT] => 30 [LIST_TYPE] => L [MULTIPLE] => N [XML_ID] => [FILE_TYPE] => [MULTIPLE_CNT] => 5 [LINK_IBLOCK_ID] => 0 [WITH_DESCRIPTION] => N [SEARCHABLE] => N [FILTRABLE] => N [IS_REQUIRED] => N [VERSION] => 1 [USER_TYPE] => [USER_TYPE_SETTINGS] => Array ( ) [HINT] => [~NAME] => Длина консоли [~DEFAULT_VALUE] => [VALUE_ENUM] => [VALUE_XML_ID] => [VALUE_SORT] => [VALUE] => [PROPERTY_VALUE_ID] => [DESCRIPTION] => [~DESCRIPTION] => [~VALUE] => ) [HEIGHT_TOP_SECTION] => Array ( [ID] => 154 [IBLOCK_ID] => 2 [NAME] => Высота верхней секции, мм [ACTIVE] => Y [SORT] => 500 [CODE] => HEIGHT_TOP_SECTION [DEFAULT_VALUE] => [PROPERTY_TYPE] => S [ROW_COUNT] => 1 [COL_COUNT] => 30 [LIST_TYPE] => L [MULTIPLE] => N [XML_ID] => [FILE_TYPE] => [MULTIPLE_CNT] => 5 [LINK_IBLOCK_ID] => 0 [WITH_DESCRIPTION] => N [SEARCHABLE] => N [FILTRABLE] => N [IS_REQUIRED] => N [VERSION] => 1 [USER_TYPE] => [USER_TYPE_SETTINGS] => Array ( ) [HINT] => [~NAME] => Высота верхней секции, мм [~DEFAULT_VALUE] => [VALUE_ENUM] => [VALUE_XML_ID] => [VALUE_SORT] => [VALUE] => [PROPERTY_VALUE_ID] => [DESCRIPTION] => [~DESCRIPTION] => [~VALUE] => ) [SIP] => Array ( [ID] => 156 [IBLOCK_ID] => 2 [NAME] => Возможность подвеса СИП [ACTIVE] => Y [SORT] => 500 [CODE] => SIP [DEFAULT_VALUE] => [PROPERTY_TYPE] => S [ROW_COUNT] => 1 [COL_COUNT] => 30 [LIST_TYPE] => L [MULTIPLE] => N [XML_ID] => [FILE_TYPE] => [MULTIPLE_CNT] => 5 [LINK_IBLOCK_ID] => 0 [WITH_DESCRIPTION] => N [SEARCHABLE] => N [FILTRABLE] => N [IS_REQUIRED] => N [VERSION] => 1 [USER_TYPE] => [USER_TYPE_SETTINGS] => Array ( ) [HINT] => [~NAME] => Возможность подвеса СИП [~DEFAULT_VALUE] => [VALUE_ENUM] => [VALUE_XML_ID] => [VALUE_SORT] => [VALUE] => [PROPERTY_VALUE_ID] => [DESCRIPTION] => [~DESCRIPTION] => [~VALUE] => ) [COUNT_GRANY] => Array ( [ID] => 157 [IBLOCK_ID] => 2 [NAME] => Количество граней [ACTIVE] => Y [SORT] => 500 [CODE] => COUNT_GRANY [DEFAULT_VALUE] => [PROPERTY_TYPE] => S [ROW_COUNT] => 1 [COL_COUNT] => 30 [LIST_TYPE] => L [MULTIPLE] => N [XML_ID] => [FILE_TYPE] => [MULTIPLE_CNT] => 5 [LINK_IBLOCK_ID] => 0 [WITH_DESCRIPTION] => N [SEARCHABLE] => N [FILTRABLE] => N [IS_REQUIRED] => N [VERSION] => 1 [USER_TYPE] => [USER_TYPE_SETTINGS] => Array ( ) [HINT] => [~NAME] => Количество граней [~DEFAULT_VALUE] => [VALUE_ENUM] => [VALUE_XML_ID] => [VALUE_SORT] => [VALUE] => [PROPERTY_VALUE_ID] => [DESCRIPTION] => [~DESCRIPTION] => [~VALUE] => ) [HEIGHT_BOTTOM_SECTION] => Array ( [ID] => 158 [IBLOCK_ID] => 2 [NAME] => Высота нижней секции, мм [ACTIVE] => Y [SORT] => 500 [CODE] => HEIGHT_BOTTOM_SECTION [DEFAULT_VALUE] => [PROPERTY_TYPE] => S [ROW_COUNT] => 1 [COL_COUNT] => 30 [LIST_TYPE] => L [MULTIPLE] => N [XML_ID] => [FILE_TYPE] => [MULTIPLE_CNT] => 5 [LINK_IBLOCK_ID] => 0 [WITH_DESCRIPTION] => N [SEARCHABLE] => N [FILTRABLE] => N [IS_REQUIRED] => N [VERSION] => 1 [USER_TYPE] => [USER_TYPE_SETTINGS] => Array ( ) [HINT] => [~NAME] => Высота нижней секции, мм [~DEFAULT_VALUE] => [VALUE_ENUM] => [VALUE_XML_ID] => [VALUE_SORT] => [VALUE] => [PROPERTY_VALUE_ID] => [DESCRIPTION] => [~DESCRIPTION] => [~VALUE] => ) [STEEL_THICKNESS] => Array ( [ID] => 160 [IBLOCK_ID] => 2 [NAME] => Толщина стали [ACTIVE] => Y [SORT] => 500 [CODE] => STEEL_THICKNESS [DEFAULT_VALUE] => [PROPERTY_TYPE] => S [ROW_COUNT] => 1 [COL_COUNT] => 30 [LIST_TYPE] => L [MULTIPLE] => N [XML_ID] => [FILE_TYPE] => [MULTIPLE_CNT] => 5 [LINK_IBLOCK_ID] => 0 [WITH_DESCRIPTION] => N [SEARCHABLE] => N [FILTRABLE] => N [IS_REQUIRED] => N [VERSION] => 1 [USER_TYPE] => [USER_TYPE_SETTINGS] => Array ( ) [HINT] => [~NAME] => Толщина стали [~DEFAULT_VALUE] => [VALUE_ENUM] => [VALUE_XML_ID] => [VALUE_SORT] => [VALUE] => [PROPERTY_VALUE_ID] => [DESCRIPTION] => [~DESCRIPTION] => [~VALUE] => ) [SIZE_OPOR_FLANEC] => Array ( [ID] => 161 [IBLOCK_ID] => 2 [NAME] => Размеры опорного фланца [ACTIVE] => Y [SORT] => 500 [CODE] => SIZE_OPOR_FLANEC [DEFAULT_VALUE] => [PROPERTY_TYPE] => S [ROW_COUNT] => 1 [COL_COUNT] => 30 [LIST_TYPE] => L [MULTIPLE] => N [XML_ID] => [FILE_TYPE] => [MULTIPLE_CNT] => 5 [LINK_IBLOCK_ID] => 0 [WITH_DESCRIPTION] => N [SEARCHABLE] => N [FILTRABLE] => N [IS_REQUIRED] => N [VERSION] => 1 [USER_TYPE] => [USER_TYPE_SETTINGS] => Array ( ) [HINT] => [~NAME] => Размеры опорного фланца [~DEFAULT_VALUE] => [VALUE_ENUM] => [VALUE_XML_ID] => [VALUE_SORT] => [VALUE] => [PROPERTY_VALUE_ID] => [DESCRIPTION] => [~DESCRIPTION] => [~VALUE] => ) [POKRASKA] => Array ( [ID] => 162 [IBLOCK_ID] => 2 [NAME] => Лакокрасочное покрытие [ACTIVE] => Y [SORT] => 500 [CODE] => POKRASKA [DEFAULT_VALUE] => [PROPERTY_TYPE] => S [ROW_COUNT] => 1 [COL_COUNT] => 30 [LIST_TYPE] => L [MULTIPLE] => N [XML_ID] => [FILE_TYPE] => [MULTIPLE_CNT] => 5 [LINK_IBLOCK_ID] => 0 [WITH_DESCRIPTION] => N [SEARCHABLE] => N [FILTRABLE] => N [IS_REQUIRED] => N [VERSION] => 1 [USER_TYPE] => [USER_TYPE_SETTINGS] => Array ( ) [HINT] => [~NAME] => Лакокрасочное покрытие [~DEFAULT_VALUE] => [VALUE_ENUM] => [VALUE_XML_ID] => [VALUE_SORT] => [VALUE] => [PROPERTY_VALUE_ID] => [DESCRIPTION] => [~DESCRIPTION] => [~VALUE] => ) [VES] => Array ( [ID] => 163 [IBLOCK_ID] => 2 [NAME] => Вес [ACTIVE] => Y [SORT] => 500 [CODE] => VES [DEFAULT_VALUE] => [PROPERTY_TYPE] => S [ROW_COUNT] => 1 [COL_COUNT] => 30 [LIST_TYPE] => L [MULTIPLE] => N [XML_ID] => [FILE_TYPE] => [MULTIPLE_CNT] => 5 [LINK_IBLOCK_ID] => 0 [WITH_DESCRIPTION] => N [SEARCHABLE] => N [FILTRABLE] => N [IS_REQUIRED] => N [VERSION] => 1 [USER_TYPE] => [USER_TYPE_SETTINGS] => Array ( ) [HINT] => [~NAME] => Вес [~DEFAULT_VALUE] => [VALUE_ENUM] => [VALUE_XML_ID] => [VALUE_SORT] => [VALUE] => [PROPERTY_VALUE_ID] => [DESCRIPTION] => [~DESCRIPTION] => [~VALUE] => ) [INSTALL_LYUCHKA] => Array ( [ID] => 164 [IBLOCK_ID] => 2 [NAME] => Возможность установки лючка [ACTIVE] => Y [SORT] => 500 [CODE] => INSTALL_LYUCHKA [DEFAULT_VALUE] => [PROPERTY_TYPE] => S [ROW_COUNT] => 1 [COL_COUNT] => 30 [LIST_TYPE] => L [MULTIPLE] => N [XML_ID] => [FILE_TYPE] => [MULTIPLE_CNT] => 5 [LINK_IBLOCK_ID] => 0 [WITH_DESCRIPTION] => N [SEARCHABLE] => N [FILTRABLE] => N [IS_REQUIRED] => N [VERSION] => 1 [USER_TYPE] => [USER_TYPE_SETTINGS] => Array ( ) [HINT] => [~NAME] => Возможность установки лючка [~DEFAULT_VALUE] => [VALUE_ENUM] => [VALUE_XML_ID] => [VALUE_SORT] => [VALUE] => [PROPERTY_VALUE_ID] => [DESCRIPTION] => [~DESCRIPTION] => [~VALUE] => ) [DIAMETER_FLANCA] => Array ( [ID] => 165 [IBLOCK_ID] => 2 [NAME] => Диаметр фланца, мм [ACTIVE] => Y [SORT] => 500 [CODE] => DIAMETER_FLANCA [DEFAULT_VALUE] => [PROPERTY_TYPE] => S [ROW_COUNT] => 1 [COL_COUNT] => 30 [LIST_TYPE] => L [MULTIPLE] => N [XML_ID] => [FILE_TYPE] => [MULTIPLE_CNT] => 5 [LINK_IBLOCK_ID] => 0 [WITH_DESCRIPTION] => N [SEARCHABLE] => N [FILTRABLE] => N [IS_REQUIRED] => N [VERSION] => 1 [USER_TYPE] => [USER_TYPE_SETTINGS] => Array ( ) [HINT] => [~NAME] => Диаметр фланца, мм [~DEFAULT_VALUE] => [VALUE_ENUM] => [VALUE_XML_ID] => [VALUE_SORT] => [VALUE] => [PROPERTY_VALUE_ID] => [DESCRIPTION] => [~DESCRIPTION] => [~VALUE] => ) [COUNT_LIGHT] => Array ( [ID] => 166 [IBLOCK_ID] => 2 [NAME] => Количество осветительных приборов, шт [ACTIVE] => Y [SORT] => 500 [CODE] => COUNT_LIGHT [DEFAULT_VALUE] => [PROPERTY_TYPE] => S [ROW_COUNT] => 1 [COL_COUNT] => 30 [LIST_TYPE] => L [MULTIPLE] => N [XML_ID] => [FILE_TYPE] => [MULTIPLE_CNT] => 5 [LINK_IBLOCK_ID] => 0 [WITH_DESCRIPTION] => N [SEARCHABLE] => N [FILTRABLE] => N [IS_REQUIRED] => N [VERSION] => 1 [USER_TYPE] => [USER_TYPE_SETTINGS] => Array ( ) [HINT] => [~NAME] => Количество осветительных приборов, шт [~DEFAULT_VALUE] => [VALUE_ENUM] => [VALUE_XML_ID] => [VALUE_SORT] => [VALUE] => [PROPERTY_VALUE_ID] => [DESCRIPTION] => [~DESCRIPTION] => [~VALUE] => ) [WEIGHT_TO_KRON] => Array ( [ID] => 167 [IBLOCK_ID] => 2 [NAME] => Высота до кронштейна, мм [ACTIVE] => Y [SORT] => 500 [CODE] => WEIGHT_TO_KRON [DEFAULT_VALUE] => [PROPERTY_TYPE] => S [ROW_COUNT] => 1 [COL_COUNT] => 30 [LIST_TYPE] => L [MULTIPLE] => N [XML_ID] => [FILE_TYPE] => [MULTIPLE_CNT] => 5 [LINK_IBLOCK_ID] => 0 [WITH_DESCRIPTION] => N [SEARCHABLE] => N [FILTRABLE] => N [IS_REQUIRED] => N [VERSION] => 1 [USER_TYPE] => [USER_TYPE_SETTINGS] => Array ( ) [HINT] => [~NAME] => Высота до кронштейна, мм [~DEFAULT_VALUE] => [VALUE_ENUM] => [VALUE_XML_ID] => [VALUE_SORT] => [VALUE] => [PROPERTY_VALUE_ID] => [DESCRIPTION] => [~DESCRIPTION] => [~VALUE] => ) [SIZE_FLANEC] => Array ( [ID] => 169 [IBLOCK_ID] => 2 [NAME] => Размер фланца [ACTIVE] => Y [SORT] => 500 [CODE] => SIZE_FLANEC [DEFAULT_VALUE] => [PROPERTY_TYPE] => S [ROW_COUNT] => 1 [COL_COUNT] => 30 [LIST_TYPE] => L [MULTIPLE] => N [XML_ID] => [FILE_TYPE] => [MULTIPLE_CNT] => 5 [LINK_IBLOCK_ID] => 0 [WITH_DESCRIPTION] => N [SEARCHABLE] => N [FILTRABLE] => N [IS_REQUIRED] => N [VERSION] => 1 [USER_TYPE] => [USER_TYPE_SETTINGS] => Array ( ) [HINT] => [~NAME] => Размер фланца [~DEFAULT_VALUE] => [VALUE_ENUM] => [VALUE_XML_ID] => [VALUE_SORT] => [VALUE] => [PROPERTY_VALUE_ID] => [DESCRIPTION] => [~DESCRIPTION] => [~VALUE] => ) [WEIGHT_MIDDLE_SECTION] => Array ( [ID] => 170 [IBLOCK_ID] => 2 [NAME] => Высота промежуточной секции, мм [ACTIVE] => Y [SORT] => 500 [CODE] => WEIGHT_MIDDLE_SECTION [DEFAULT_VALUE] => [PROPERTY_TYPE] => S [ROW_COUNT] => 1 [COL_COUNT] => 30 [LIST_TYPE] => L [MULTIPLE] => N [XML_ID] => [FILE_TYPE] => [MULTIPLE_CNT] => 5 [LINK_IBLOCK_ID] => 0 [WITH_DESCRIPTION] => N [SEARCHABLE] => N [FILTRABLE] => N [IS_REQUIRED] => N [VERSION] => 1 [USER_TYPE] => [USER_TYPE_SETTINGS] => Array ( ) [HINT] => [~NAME] => Высота промежуточной секции, мм [~DEFAULT_VALUE] => [VALUE_ENUM] => [VALUE_XML_ID] => [VALUE_SORT] => [VALUE] => [PROPERTY_VALUE_ID] => [DESCRIPTION] => [~DESCRIPTION] => [~VALUE] => ) [DEFEND_POKRYTIE] => Array ( [ID] => 171 [IBLOCK_ID] => 2 [NAME] => Защитное покрытие [ACTIVE] => Y [SORT] => 500 [CODE] => DEFEND_POKRYTIE [DEFAULT_VALUE] => [PROPERTY_TYPE] => S [ROW_COUNT] => 1 [COL_COUNT] => 30 [LIST_TYPE] => L [MULTIPLE] => N [XML_ID] => [FILE_TYPE] => [MULTIPLE_CNT] => 5 [LINK_IBLOCK_ID] => 0 [WITH_DESCRIPTION] => N [SEARCHABLE] => N [FILTRABLE] => N [IS_REQUIRED] => N [VERSION] => 1 [USER_TYPE] => [USER_TYPE_SETTINGS] => Array ( ) [HINT] => [~NAME] => Защитное покрытие [~DEFAULT_VALUE] => [VALUE_ENUM] => [VALUE_XML_ID] => [VALUE_SORT] => [VALUE] => [PROPERTY_VALUE_ID] => [DESCRIPTION] => [~DESCRIPTION] => [~VALUE] => ) [WIND_REGION] => Array ( [ID] => 172 [IBLOCK_ID] => 2 [NAME] => Ветровой район [ACTIVE] => Y [SORT] => 500 [CODE] => WIND_REGION [DEFAULT_VALUE] => [PROPERTY_TYPE] => S [ROW_COUNT] => 1 [COL_COUNT] => 30 [LIST_TYPE] => L [MULTIPLE] => N [XML_ID] => [FILE_TYPE] => [MULTIPLE_CNT] => 5 [LINK_IBLOCK_ID] => 0 [WITH_DESCRIPTION] => N [SEARCHABLE] => N [FILTRABLE] => N [IS_REQUIRED] => N [VERSION] => 1 [USER_TYPE] => [USER_TYPE_SETTINGS] => Array ( ) [HINT] => [~NAME] => Ветровой район [~DEFAULT_VALUE] => [VALUE_ENUM] => [VALUE_XML_ID] => [VALUE_SORT] => [VALUE] => [PROPERTY_VALUE_ID] => [DESCRIPTION] => [~DESCRIPTION] => [~VALUE] => ) [DIAMETER_OPOR_FLANCA] => Array ( [ID] => 173 [IBLOCK_ID] => 2 [NAME] => Диаметр опорного фланца, мм [ACTIVE] => Y [SORT] => 500 [CODE] => DIAMETER_OPOR_FLANCA [DEFAULT_VALUE] => [PROPERTY_TYPE] => S [ROW_COUNT] => 1 [COL_COUNT] => 30 [LIST_TYPE] => L [MULTIPLE] => N [XML_ID] => [FILE_TYPE] => [MULTIPLE_CNT] => 5 [LINK_IBLOCK_ID] => 0 [WITH_DESCRIPTION] => N [SEARCHABLE] => N [FILTRABLE] => N [IS_REQUIRED] => N [VERSION] => 1 [USER_TYPE] => [USER_TYPE_SETTINGS] => Array ( ) [HINT] => [~NAME] => Диаметр опорного фланца, мм [~DEFAULT_VALUE] => [VALUE_ENUM] => [VALUE_XML_ID] => [VALUE_SORT] => [VALUE] => [PROPERTY_VALUE_ID] => [DESCRIPTION] => [~DESCRIPTION] => [~VALUE] => ) [CENTER_DIST] => Array ( [ID] => 174 [IBLOCK_ID] => 2 [NAME] => Межцентровое расстояние, мм [ACTIVE] => Y [SORT] => 500 [CODE] => CENTER_DIST [DEFAULT_VALUE] => [PROPERTY_TYPE] => S [ROW_COUNT] => 1 [COL_COUNT] => 30 [LIST_TYPE] => L [MULTIPLE] => N [XML_ID] => [FILE_TYPE] => [MULTIPLE_CNT] => 5 [LINK_IBLOCK_ID] => 0 [WITH_DESCRIPTION] => N [SEARCHABLE] => N [FILTRABLE] => N [IS_REQUIRED] => N [VERSION] => 1 [USER_TYPE] => [USER_TYPE_SETTINGS] => Array ( ) [HINT] => [~NAME] => Межцентровое расстояние, мм [~DEFAULT_VALUE] => [VALUE_ENUM] => [VALUE_XML_ID] => [VALUE_SORT] => [VALUE] => [PROPERTY_VALUE_ID] => [DESCRIPTION] => [~DESCRIPTION] => [~VALUE] => ) [FLANEC_THICKNESS] => Array ( [ID] => 175 [IBLOCK_ID] => 2 [NAME] => Толщина фланца, мм [ACTIVE] => Y [SORT] => 500 [CODE] => FLANEC_THICKNESS [DEFAULT_VALUE] => [PROPERTY_TYPE] => S [ROW_COUNT] => 1 [COL_COUNT] => 30 [LIST_TYPE] => L [MULTIPLE] => N [XML_ID] => [FILE_TYPE] => [MULTIPLE_CNT] => 5 [LINK_IBLOCK_ID] => 0 [WITH_DESCRIPTION] => N [SEARCHABLE] => N [FILTRABLE] => N [IS_REQUIRED] => N [VERSION] => 1 [USER_TYPE] => [USER_TYPE_SETTINGS] => Array ( ) [HINT] => [~NAME] => Толщина фланца, мм [~DEFAULT_VALUE] => [VALUE_ENUM] => [VALUE_XML_ID] => [VALUE_SORT] => [VALUE] => [PROPERTY_VALUE_ID] => [DESCRIPTION] => [~DESCRIPTION] => [~VALUE] => ) [COUNT_HOLE] => Array ( [ID] => 176 [IBLOCK_ID] => 2 [NAME] => Количество отверстий крепления, шт [ACTIVE] => Y [SORT] => 500 [CODE] => COUNT_HOLE [DEFAULT_VALUE] => [PROPERTY_TYPE] => S [ROW_COUNT] => 1 [COL_COUNT] => 30 [LIST_TYPE] => L [MULTIPLE] => N [XML_ID] => [FILE_TYPE] => [MULTIPLE_CNT] => 5 [LINK_IBLOCK_ID] => 0 [WITH_DESCRIPTION] => N [SEARCHABLE] => N [FILTRABLE] => N [IS_REQUIRED] => N [VERSION] => 1 [USER_TYPE] => [USER_TYPE_SETTINGS] => Array ( ) [HINT] => [~NAME] => Количество отверстий крепления, шт [~DEFAULT_VALUE] => [VALUE_ENUM] => [VALUE_XML_ID] => [VALUE_SORT] => [VALUE] => [PROPERTY_VALUE_ID] => [DESCRIPTION] => [~DESCRIPTION] => [~VALUE] => ) [INSPECTION_WINDOW] => Array ( [ID] => 179 [IBLOCK_ID] => 2 [NAME] => Ревизионное окно, мм [ACTIVE] => Y [SORT] => 500 [CODE] => INSPECTION_WINDOW [DEFAULT_VALUE] => [PROPERTY_TYPE] => S [ROW_COUNT] => 1 [COL_COUNT] => 30 [LIST_TYPE] => L [MULTIPLE] => N [XML_ID] => [FILE_TYPE] => [MULTIPLE_CNT] => 5 [LINK_IBLOCK_ID] => 0 [WITH_DESCRIPTION] => N [SEARCHABLE] => N [FILTRABLE] => N [IS_REQUIRED] => N [VERSION] => 1 [USER_TYPE] => [USER_TYPE_SETTINGS] => Array ( ) [HINT] => [~NAME] => Ревизионное окно, мм [~DEFAULT_VALUE] => [VALUE_ENUM] => [VALUE_XML_ID] => [VALUE_SORT] => [VALUE] => [PROPERTY_VALUE_ID] => [DESCRIPTION] => [~DESCRIPTION] => [~VALUE] => ) [THREE_MODEL] => Array ( [ID] => 182 [IBLOCK_ID] => 2 [NAME] => 3D-модель [ACTIVE] => Y [SORT] => 500 [CODE] => THREE_MODEL [DEFAULT_VALUE] => [PROPERTY_TYPE] => F [ROW_COUNT] => 1 [COL_COUNT] => 30 [LIST_TYPE] => L [MULTIPLE] => N [XML_ID] => [FILE_TYPE] => [MULTIPLE_CNT] => 5 [LINK_IBLOCK_ID] => 0 [WITH_DESCRIPTION] => N [SEARCHABLE] => N [FILTRABLE] => N [IS_REQUIRED] => N [VERSION] => 1 [USER_TYPE] => [USER_TYPE_SETTINGS] => Array ( ) [HINT] => [~NAME] => 3D-модель [~DEFAULT_VALUE] => [VALUE_ENUM] => [VALUE_XML_ID] => [VALUE_SORT] => [VALUE] => [PROPERTY_VALUE_ID] => [DESCRIPTION] => [~DESCRIPTION] => [~VALUE] => ) [FAQ] => Array ( [ID] => 183 [IBLOCK_ID] => 2 [NAME] => FAQ [ACTIVE] => Y [SORT] => 500 [CODE] => FAQ [DEFAULT_VALUE] => Array ( [TYPE] => TEXT [TEXT] => ) [PROPERTY_TYPE] => S [ROW_COUNT] => 1 [COL_COUNT] => 30 [LIST_TYPE] => L [MULTIPLE] => N [XML_ID] => [FILE_TYPE] => [MULTIPLE_CNT] => 5 [LINK_IBLOCK_ID] => 0 [WITH_DESCRIPTION] => N [SEARCHABLE] => N [FILTRABLE] => N [IS_REQUIRED] => N [VERSION] => 1 [USER_TYPE] => HTML [USER_TYPE_SETTINGS] => Array ( [height] => 200 ) [HINT] => [~NAME] => FAQ [~DEFAULT_VALUE] => Array ( [TYPE] => TEXT [TEXT] => ) [VALUE_ENUM] => [VALUE_XML_ID] => [VALUE_SORT] => [VALUE] => Array ( [TEXT] => <div style="display: block;"> <div class="faq-item" itemscope="" itemprop="mainEntity" itemtype="https://schema.org/Question"> <div class="faq-question"> <div class="question-name"> <span class="num">01.</span> <span itemprop="name">Для чего применяется ПТ10-1?</span> </div> <div class="toggle-icon"></div> </div> <div class="faq-answer" itemscope="" itemprop="acceptedAnswer" itemtype="https://schema.org/Answer"> <div itemprop="text"> <p> Промежуточная опора ПТ10-1 служит для поддержки проводов ВЛ 6–10 кВ на прямых участках трассы, без восприятия тяговых усилий. </p> </div> </div> </div> <div class="faq-item" itemscope="" itemprop="mainEntity" itemtype="https://schema.org/Question"> <div class="faq-question"> <div class="question-name"> <span class="num">02.</span> <span itemprop="name">Почему используется сталь 09Г2С?</span> </div> <div class="toggle-icon"></div> </div> <div class="faq-answer" itemscope="" itemprop="acceptedAnswer" itemtype="https://schema.org/Answer"> <div itemprop="text"> <p> Материал сочетает высокую прочность, свароспособность и стойкость к низким температурам, что важно для конструкций ВЛ. </p> </div> </div> </div> <div class="faq-item" itemscope="" itemprop="mainEntity" itemtype="https://schema.org/Question"> <div class="faq-question"> <div class="question-name"> <span class="num">03.</span> <span itemprop="name">Какая антикоррозионная защита?</span> </div> <div class="toggle-icon"></div> </div> <div class="faq-answer" itemscope="" itemprop="acceptedAnswer" itemtype="https://schema.org/Answer"> <div itemprop="text"> <p> Горячее цинкование по ГОСТу обеспечивает долговечность металлических элементов. </p> </div> </div> </div> <div class="faq-item" itemscope="" itemprop="mainEntity" itemtype="https://schema.org/Question"> <div class="faq-question"> <div class="question-name"> <span class="num">04.</span> <span itemprop="name">Какой срок службы?</span> </div> <div class="toggle-icon"></div> </div> <div class="faq-answer" itemscope="" itemprop="acceptedAnswer" itemtype="https://schema.org/Answer"> <div itemprop="text"> <p> До 30 лет при соблюдении правил монтажа и обслуживания. </p> </div> </div> </div> </div> [TYPE] => HTML ) [PROPERTY_VALUE_ID] => 6841261 [DESCRIPTION] => [~VALUE] => Array ( [TEXT] =>
01. Для чего применяется ПТ10-1?

Промежуточная опора ПТ10-1 служит для поддержки проводов ВЛ 6–10 кВ на прямых участках трассы, без восприятия тяговых усилий.

02. Почему используется сталь 09Г2С?

Материал сочетает высокую прочность, свароспособность и стойкость к низким температурам, что важно для конструкций ВЛ.

03. Какая антикоррозионная защита?

Горячее цинкование по ГОСТу обеспечивает долговечность металлических элементов.

04. Какой срок службы?

До 30 лет при соблюдении правил монтажа и обслуживания.

[TYPE] => HTML ) [~DESCRIPTION] => ) ) [DISPLAY_PROPERTIES] => Array ( [ITEM_PRICE] => Array ( [ID] => 22 [IBLOCK_ID] => 2 [NAME] => Цена [ACTIVE] => Y [SORT] => 3 [CODE] => ITEM_PRICE [DEFAULT_VALUE] => [PROPERTY_TYPE] => L [ROW_COUNT] => 1 [COL_COUNT] => 30 [LIST_TYPE] => L [MULTIPLE] => N [XML_ID] => 22 [FILE_TYPE] => [MULTIPLE_CNT] => 5 [LINK_IBLOCK_ID] => 0 [WITH_DESCRIPTION] => N [SEARCHABLE] => N [FILTRABLE] => N [IS_REQUIRED] => Y [VERSION] => 1 [USER_TYPE] => [USER_TYPE_SETTINGS] => Array ( ) [HINT] => [~NAME] => Цена [~DEFAULT_VALUE] => [VALUE_ENUM] => По запросу [VALUE_XML_ID] => on-request [VALUE_SORT] => 1 [VALUE] => По запросу [PROPERTY_VALUE_ID] => 6841323 [VALUE_ENUM_ID] => 9 [DESCRIPTION] => [~VALUE] => По запросу [~DESCRIPTION] => [DISPLAY_VALUE] => По запросу ) [ITEM_CHARACTERISTICS] => Array ( [ID] => 28 [IBLOCK_ID] => 2 [NAME] => Характеристики [ACTIVE] => Y [SORT] => 6 [CODE] => ITEM_CHARACTERISTICS [DEFAULT_VALUE] => [PROPERTY_TYPE] => S [ROW_COUNT] => 1 [COL_COUNT] => 20 [LIST_TYPE] => L [MULTIPLE] => Y [XML_ID] => 28 [FILE_TYPE] => [MULTIPLE_CNT] => 1 [LINK_IBLOCK_ID] => 0 [WITH_DESCRIPTION] => Y [SEARCHABLE] => N [FILTRABLE] => N [IS_REQUIRED] => N [VERSION] => 1 [USER_TYPE] => [USER_TYPE_SETTINGS] => Array ( ) [HINT] => [~NAME] => Характеристики [~DEFAULT_VALUE] => [VALUE_ENUM] => [VALUE_XML_ID] => [VALUE_SORT] => [VALUE] => Array ( [0] => Промежуточная опора [1] => 9000 [2] => 146х8 [3] => 1930 [4] => 146х8 [5] => горячее цинкование [6] => Порошковое / полимерное окрашивание [7] => 30 лет ) [PROPERTY_VALUE_ID] => Array ( [0] => 6829749 [1] => 6829750 [2] => 6829751 [3] => 6829752 [4] => 6829753 [5] => 6829754 [6] => 6829755 [7] => 6829756 ) [DESCRIPTION] => Array ( [0] => Тип [1] => Высота стойки, мм [2] => Профиль стойки, мм [3] => Длина траверсы, мм [4] => Профиль траверсы, мм [5] => Защитное покрытие [6] => Лакокрасочное покрытие [7] => Срок службы ) [~VALUE] => Array ( [0] => Промежуточная опора [1] => 9000 [2] => 146х8 [3] => 1930 [4] => 146х8 [5] => горячее цинкование [6] => Порошковое / полимерное окрашивание [7] => 30 лет ) [~DESCRIPTION] => Array ( [0] => Тип [1] => Высота стойки, мм [2] => Профиль стойки, мм [3] => Длина траверсы, мм [4] => Профиль траверсы, мм [5] => Защитное покрытие [6] => Лакокрасочное покрытие [7] => Срок службы ) [DISPLAY_VALUE] => Array ( [0] => Промежуточная опора [1] => 9000 [2] => 146х8 [3] => 1930 [4] => 146х8 [5] => горячее цинкование [6] => Порошковое / полимерное окрашивание [7] => 30 лет ) ) ) [PRODUCT_PROPERTIES] => Array ( ) [PRODUCT_PROPERTIES_FILL] => Array ( ) [OFFERS] => Array ( ) [OFFER_ID_SELECTED] => 0 [CHECK_QUANTITY] => [ITEM_PRICE_MODE] => [ITEM_PRICES] => Array ( ) [ITEM_QUANTITY_RANGES] => Array ( ) [ITEM_MEASURE_RATIOS] => Array ( [2965] => Array ( [ID] => 2965 [RATIO] => 1 [IS_DEFAULT] => Y [PRODUCT_ID] => 20106 ) ) [ITEM_MEASURE] => Array ( [ID] => 5 [TITLE] => шт [~TITLE] => шт ) [ITEM_MEASURE_RATIO_SELECTED] => 2965 [ITEM_QUANTITY_RANGE_SELECTED] => [ITEM_PRICE_SELECTED] => [EDIT_LINK] => [DELETE_LINK] => [SECTION] => Array ( [PATH] => Array ( ) ) [CAN_BUY] => )
В наличии
Конструкция: одноцепная
Высота, мм: 23200
Высота до нижней траверсы, мм: 10500
Цена по запросу
Array
(
    [ID] => 15382
    [~ID] => 15382
    [IBLOCK_ID] => 2
    [~IBLOCK_ID] => 2
    [CODE] => km220-1
    [~CODE] => km220-1
    [XML_ID] => 15382
    [~XML_ID] => 15382
    [NAME] => Многогранная опора КМ220-1
    [~NAME] => Многогранная опора КМ220-1
    [ACTIVE] => Y
    [~ACTIVE] => Y
    [DATE_ACTIVE_FROM] => 
    [~DATE_ACTIVE_FROM] => 
    [DATE_ACTIVE_TO] => 
    [~DATE_ACTIVE_TO] => 
    [SORT] => 1
    [~SORT] => 1
    [PREVIEW_TEXT] => 
    [~PREVIEW_TEXT] => 
    [PREVIEW_TEXT_TYPE] => text
    [~PREVIEW_TEXT_TYPE] => text
    [DETAIL_TEXT] => 

Многогранная концевая опора КМ220-1 является типовой одностоечной свободностоящей конструкцией для воздушных линий электропередачи напряжением 220 кВ по проекту 27.0003. Опора предназначена для восприятия результирующих (суммарных) нагрузок от натяжения проводов и применяется в качестве концевой, а также перед переходами через естественные преграды или в кабельную линию. Конструкция имеет коническую граненую форму с нижним диаметром 1700 миллиметров и верхним диаметром 400 миллиметров. Общая высота опоры составляет 23,2 метра, высота до нижней траверсы — 10,5 метров. Опора изготавливается из углеродистой стали марки С245, рассчитанной на эксплуатацию при температуре до –40 °С. Поставка осуществляется в разобранном виде с телескопической укладкой секций для оптимизации транспортировки.

Монтаж опоры в рабочее положение осуществляется путем фланцевого соединения стойки с фундаментом. В качестве фундамента, согласно проекту, может применяться забивная труба с ответным фланцем или иные инженерные решения. Для защиты от коррозии вся металлоконструкция подвергается горячему цинкованию по ГОСТ 9.307-2021, что является обязательным и наиболее надежным видом защиты для ответственных энергообъектов.

[~DETAIL_TEXT] =>

Многогранная концевая опора КМ220-1 является типовой одностоечной свободностоящей конструкцией для воздушных линий электропередачи напряжением 220 кВ по проекту 27.0003. Опора предназначена для восприятия результирующих (суммарных) нагрузок от натяжения проводов и применяется в качестве концевой, а также перед переходами через естественные преграды или в кабельную линию. Конструкция имеет коническую граненую форму с нижним диаметром 1700 миллиметров и верхним диаметром 400 миллиметров. Общая высота опоры составляет 23,2 метра, высота до нижней траверсы — 10,5 метров. Опора изготавливается из углеродистой стали марки С245, рассчитанной на эксплуатацию при температуре до –40 °С. Поставка осуществляется в разобранном виде с телескопической укладкой секций для оптимизации транспортировки.

Монтаж опоры в рабочее положение осуществляется путем фланцевого соединения стойки с фундаментом. В качестве фундамента, согласно проекту, может применяться забивная труба с ответным фланцем или иные инженерные решения. Для защиты от коррозии вся металлоконструкция подвергается горячему цинкованию по ГОСТ 9.307-2021, что является обязательным и наиболее надежным видом защиты для ответственных энергообъектов.

[DETAIL_TEXT_TYPE] => html [~DETAIL_TEXT_TYPE] => html [DATE_CREATE] => 07.11.2023 15:10:02 [~DATE_CREATE] => 07.11.2023 15:10:02 [CREATED_BY] => 1 [~CREATED_BY] => 1 [TAGS] => [~TAGS] => [TIMESTAMP_X] => 15.12.2025 12:38:17 [~TIMESTAMP_X] => 15.12.2025 12:38:17 [MODIFIED_BY] => 1 [~MODIFIED_BY] => 1 [IBLOCK_SECTION_ID] => 2756 [~IBLOCK_SECTION_ID] => 2956 [DETAIL_PAGE_URL] => /product/km220-1/ [~DETAIL_PAGE_URL] => /product/km220-1/ [DETAIL_PICTURE] => [~DETAIL_PICTURE] => [PREVIEW_PICTURE] => Array ( [ID] => 35313 [TIMESTAMP_X] => 15.12.2025 12:38:17 [MODULE_ID] => iblock [HEIGHT] => 1000 [WIDTH] => 1000 [FILE_SIZE] => 149890 [CONTENT_TYPE] => image/jpeg [SUBDIR] => iblock/436/asevokhfman2paa73v7ytgsymuvir309 [FILE_NAME] => catalog_file_2103_l.jpg [ORIGINAL_NAME] => catalog-file-2103-l.jpg [DESCRIPTION] => [HANDLER_ID] => [EXTERNAL_ID] => f15dcd1ddd5a5ea9ac0d812258a05e4e [VERSION_ORIGINAL_ID] => [META] => [SRC] => /upload/dev2fun.imagecompress/webp/iblock/436/asevokhfman2paa73v7ytgsymuvir309/catalog_file_2103_l.webp [UNSAFE_SRC] => /upload/dev2fun.imagecompress/webp/iblock/436/asevokhfman2paa73v7ytgsymuvir309/catalog_file_2103_l.webp [SAFE_SRC] => /upload/dev2fun.imagecompress/webp/iblock/436/asevokhfman2paa73v7ytgsymuvir309/catalog_file_2103_l.webp [ALT] => Многогранная опора КМ220-1 [TITLE] => Многогранная опора КМ220-1 ) [~PREVIEW_PICTURE] => 35313 [LANG_DIR] => / [~LANG_DIR] => / [EXTERNAL_ID] => 15382 [~EXTERNAL_ID] => 15382 [IBLOCK_TYPE_ID] => catalog [~IBLOCK_TYPE_ID] => catalog [IBLOCK_CODE] => metalstructures [~IBLOCK_CODE] => metalstructures [IBLOCK_EXTERNAL_ID] => clothes [~IBLOCK_EXTERNAL_ID] => clothes [LID] => s1 [~LID] => s1 [IPROPERTY_VALUES] => Array ( [ELEMENT_DETAIL_PICTURE_FILE_NAME] => [ELEMENT_PREVIEW_PICTURE_FILE_NAME] => [SECTION_DETAIL_PICTURE_FILE_NAME] => [SECTION_PICTURE_FILE_NAME] => [SECTION_PAGE_TITLE] => Многогранная опора КМ220-1 [ELEMENT_PAGE_TITLE] => Многогранная опора КМ220-1 [SECTION_META_TITLE] => Многогранные одноцепные анкерно-угловые опоры ВЛ 220 кВ по шифру 27.0003 купить в {{rp}} на сайте производителя НПО Легион [SECTION_META_DESCRIPTION] => Производство многогранных одноцепные анкерно-угловые опоры ВЛ 220 кВ. Купить напрямую у производителя в {{rp}}. Собственное производство. Наличие товара на складе. Звоните ☎ {{subdomain_tel}} [SECTION_META_KEYWORDS] => Многоранные опоры ЛЭП производство продажа купить многогранные одноцепные анкерно-угловые опоры ВЛ 220 кВ для линий электропередач [ELEMENT_META_TITLE] => Многогранная опора КМ220-1 для высоковольтных линий 220 кВ купить в {{rp}} на сайте производителя НПО Легион [ELEMENT_META_DESCRIPTION] => Производство стальных многогранных опор КМ220-1 для высоковольтных линий 220 кВ по шифру 22.0003 в {{rp}}. Заказать многогранные опоры ЛЭП у производителя НПО Легион. Наличие товара на складе. Звоните ☎ {{subdomain_tel}} [ELEMENT_META_KEYWORDS] => Многоранные опоры КМ220-1 ЛЭП производство продажа купить многогранные ВЛ 220кВ для линий электропередач шифру 22.0003 ) [PRODUCT] => Array ( [TYPE] => 1 [AVAILABLE] => Y [BUNDLE] => N [QUANTITY] => 10 [QUANTITY_TRACE] => N [CAN_BUY_ZERO] => Y [MEASURE] => 5 [SUBSCRIBE] => Y [VAT_ID] => 0 [VAT_RATE] => 0 [VAT_INCLUDED] => N [WEIGHT] => 0 [WIDTH] => 0 [LENGTH] => 0 [HEIGHT] => 0 [PAYMENT_TYPE] => S [RECUR_SCHEME_TYPE] => D [RECUR_SCHEME_LENGTH] => 0 [TRIAL_PRICE_ID] => 0 [USE_OFFERS] => ) [~CATALOG_TYPE] => 1 [CATALOG_TYPE] => 1 [~CATALOG_QUANTITY] => 10 [CATALOG_QUANTITY] => 10 [~CATALOG_QUANTITY_TRACE] => N [CATALOG_QUANTITY_TRACE] => N [~CATALOG_CAN_BUY_ZERO] => Y [CATALOG_CAN_BUY_ZERO] => Y [~CATALOG_SUBSCRIBE] => Y [CATALOG_SUBSCRIBE] => Y [PROPERTIES] => Array ( [ITEM_DELIVERY] => Array ( [ID] => 20 [IBLOCK_ID] => 2 [NAME] => Доставка [ACTIVE] => Y [SORT] => 1 [CODE] => ITEM_DELIVERY [DEFAULT_VALUE] => [PROPERTY_TYPE] => L [ROW_COUNT] => 1 [COL_COUNT] => 30 [LIST_TYPE] => L [MULTIPLE] => N [XML_ID] => 20 [FILE_TYPE] => [MULTIPLE_CNT] => 5 [LINK_IBLOCK_ID] => 0 [WITH_DESCRIPTION] => N [SEARCHABLE] => N [FILTRABLE] => N [IS_REQUIRED] => Y [VERSION] => 1 [USER_TYPE] => [USER_TYPE_SETTINGS] => Array ( ) [HINT] => [~NAME] => Доставка [~DEFAULT_VALUE] => [VALUE_ENUM] => По России и СНГ [VALUE_XML_ID] => ru-sng [VALUE_SORT] => 1 [VALUE] => По России и СНГ [PROPERTY_VALUE_ID] => 6825486 [VALUE_ENUM_ID] => 7 [DESCRIPTION] => [~VALUE] => По России и СНГ [~DESCRIPTION] => ) [ITEM_PAYMENT] => Array ( [ID] => 21 [IBLOCK_ID] => 2 [NAME] => Оплата [ACTIVE] => Y [SORT] => 2 [CODE] => ITEM_PAYMENT [DEFAULT_VALUE] => [PROPERTY_TYPE] => L [ROW_COUNT] => 1 [COL_COUNT] => 30 [LIST_TYPE] => L [MULTIPLE] => N [XML_ID] => 21 [FILE_TYPE] => [MULTIPLE_CNT] => 5 [LINK_IBLOCK_ID] => 0 [WITH_DESCRIPTION] => N [SEARCHABLE] => N [FILTRABLE] => N [IS_REQUIRED] => Y [VERSION] => 1 [USER_TYPE] => [USER_TYPE_SETTINGS] => Array ( ) [HINT] => [~NAME] => Оплата [~DEFAULT_VALUE] => [VALUE_ENUM] => Безналичный расчет [VALUE_XML_ID] => payment-bank [VALUE_SORT] => 1 [VALUE] => Безналичный расчет [PROPERTY_VALUE_ID] => 6825487 [VALUE_ENUM_ID] => 8 [DESCRIPTION] => [~VALUE] => Безналичный расчет [~DESCRIPTION] => ) [ITEM_PRICE] => Array ( [ID] => 22 [IBLOCK_ID] => 2 [NAME] => Цена [ACTIVE] => Y [SORT] => 3 [CODE] => ITEM_PRICE [DEFAULT_VALUE] => [PROPERTY_TYPE] => L [ROW_COUNT] => 1 [COL_COUNT] => 30 [LIST_TYPE] => L [MULTIPLE] => N [XML_ID] => 22 [FILE_TYPE] => [MULTIPLE_CNT] => 5 [LINK_IBLOCK_ID] => 0 [WITH_DESCRIPTION] => N [SEARCHABLE] => N [FILTRABLE] => N [IS_REQUIRED] => Y [VERSION] => 1 [USER_TYPE] => [USER_TYPE_SETTINGS] => Array ( ) [HINT] => [~NAME] => Цена [~DEFAULT_VALUE] => [VALUE_ENUM] => По запросу [VALUE_XML_ID] => on-request [VALUE_SORT] => 1 [VALUE] => По запросу [PROPERTY_VALUE_ID] => 6825488 [VALUE_ENUM_ID] => 9 [DESCRIPTION] => [~VALUE] => По запросу [~DESCRIPTION] => ) [ITEM_IMAGES] => Array ( [ID] => 23 [IBLOCK_ID] => 2 [NAME] => Изображения [ACTIVE] => Y [SORT] => 4 [CODE] => ITEM_IMAGES [DEFAULT_VALUE] => [PROPERTY_TYPE] => F [ROW_COUNT] => 1 [COL_COUNT] => 30 [LIST_TYPE] => L [MULTIPLE] => Y [XML_ID] => 23 [FILE_TYPE] => [MULTIPLE_CNT] => 5 [LINK_IBLOCK_ID] => 0 [WITH_DESCRIPTION] => N [SEARCHABLE] => N [FILTRABLE] => N [IS_REQUIRED] => N [VERSION] => 1 [USER_TYPE] => [USER_TYPE_SETTINGS] => Array ( ) [HINT] => [~NAME] => Изображения [~DEFAULT_VALUE] => [VALUE_ENUM] => [VALUE_XML_ID] => [VALUE_SORT] => [VALUE] => Array ( [0] => 35314 ) [PROPERTY_VALUE_ID] => Array ( [0] => 5933070 ) [DESCRIPTION] => Array ( [0] => ) [~VALUE] => Array ( [0] => 35314 ) [~DESCRIPTION] => Array ( [0] => ) ) [ITEM_PROPERTIES] => Array ( [ID] => 24 [IBLOCK_ID] => 2 [NAME] => Свойства [ACTIVE] => Y [SORT] => 5 [CODE] => ITEM_PROPERTIES [DEFAULT_VALUE] => [PROPERTY_TYPE] => E [ROW_COUNT] => 1 [COL_COUNT] => 30 [LIST_TYPE] => L [MULTIPLE] => Y [XML_ID] => 24 [FILE_TYPE] => [MULTIPLE_CNT] => 1 [LINK_IBLOCK_ID] => 3 [WITH_DESCRIPTION] => N [SEARCHABLE] => N [FILTRABLE] => N [IS_REQUIRED] => N [VERSION] => 1 [USER_TYPE] => [USER_TYPE_SETTINGS] => Array ( ) [HINT] => [~NAME] => Свойства [~DEFAULT_VALUE] => [VALUE_ENUM] => [VALUE_XML_ID] => [VALUE_SORT] => [VALUE] => [PROPERTY_VALUE_ID] => [DESCRIPTION] => [~DESCRIPTION] => [~VALUE] => ) [ITEM_CHARACTERISTICS] => Array ( [ID] => 28 [IBLOCK_ID] => 2 [NAME] => Характеристики [ACTIVE] => Y [SORT] => 6 [CODE] => ITEM_CHARACTERISTICS [DEFAULT_VALUE] => [PROPERTY_TYPE] => S [ROW_COUNT] => 1 [COL_COUNT] => 20 [LIST_TYPE] => L [MULTIPLE] => Y [XML_ID] => 28 [FILE_TYPE] => [MULTIPLE_CNT] => 1 [LINK_IBLOCK_ID] => 0 [WITH_DESCRIPTION] => Y [SEARCHABLE] => N [FILTRABLE] => N [IS_REQUIRED] => N [VERSION] => 1 [USER_TYPE] => [USER_TYPE_SETTINGS] => Array ( ) [HINT] => [~NAME] => Характеристики [~DEFAULT_VALUE] => [VALUE_ENUM] => [VALUE_XML_ID] => [VALUE_SORT] => [VALUE] => Array ( [0] => одноцепная [1] => 23200 [2] => 10500 [3] => 400 [4] => 1700 [5] => концевая опора [6] => горячее цинкование [7] => Порошковое / полимерное окрашивание [8] => 30 лет [9] => фланцевая [10] => граненая ) [PROPERTY_VALUE_ID] => Array ( [0] => 6821582 [1] => 6821583 [2] => 6821584 [3] => 6821585 [4] => 6821586 [5] => 6821587 [6] => 6821588 [7] => 6821589 [8] => 6821590 [9] => 6825489 [10] => 6825490 ) [DESCRIPTION] => Array ( [0] => Конструкция [1] => Высота, мм [2] => Высота до нижней траверсы, мм [3] => Диаметр верхний, мм [4] => Диаметр нижний, мм [5] => Назначение [6] => Защитное покрытие [7] => Лакокрасочное покрытие [8] => Срок службы [9] => Способ установки [10] => Способ производства ) [~VALUE] => Array ( [0] => одноцепная [1] => 23200 [2] => 10500 [3] => 400 [4] => 1700 [5] => концевая опора [6] => горячее цинкование [7] => Порошковое / полимерное окрашивание [8] => 30 лет [9] => фланцевая [10] => граненая ) [~DESCRIPTION] => Array ( [0] => Конструкция [1] => Высота, мм [2] => Высота до нижней траверсы, мм [3] => Диаметр верхний, мм [4] => Диаметр нижний, мм [5] => Назначение [6] => Защитное покрытие [7] => Лакокрасочное покрытие [8] => Срок службы [9] => Способ установки [10] => Способ производства ) ) [ITEM_FILTER] => Array ( [ID] => 40 [IBLOCK_ID] => 2 [NAME] => Фильтр [ACTIVE] => Y [SORT] => 7 [CODE] => ITEM_FILTER [DEFAULT_VALUE] => [PROPERTY_TYPE] => S [ROW_COUNT] => 1 [COL_COUNT] => 30 [LIST_TYPE] => L [MULTIPLE] => N [XML_ID] => 40 [FILE_TYPE] => [MULTIPLE_CNT] => 5 [LINK_IBLOCK_ID] => 0 [WITH_DESCRIPTION] => N [SEARCHABLE] => N [FILTRABLE] => N [IS_REQUIRED] => N [VERSION] => 1 [USER_TYPE] => [USER_TYPE_SETTINGS] => Array ( ) [HINT] => [~NAME] => Фильтр [~DEFAULT_VALUE] => [VALUE_ENUM] => [VALUE_XML_ID] => [VALUE_SORT] => [VALUE] => [PROPERTY_VALUE_ID] => [DESCRIPTION] => [~DESCRIPTION] => [~VALUE] => ) [ITEM_TECH_CH] => Array ( [ID] => 29 [IBLOCK_ID] => 2 [NAME] => Технические характеристики [ACTIVE] => Y [SORT] => 8 [CODE] => ITEM_TECH_CH [DEFAULT_VALUE] => Array ( [TYPE] => HTML [TEXT] => ) [PROPERTY_TYPE] => S [ROW_COUNT] => 1 [COL_COUNT] => 30 [LIST_TYPE] => L [MULTIPLE] => N [XML_ID] => 29 [FILE_TYPE] => [MULTIPLE_CNT] => 5 [LINK_IBLOCK_ID] => 0 [WITH_DESCRIPTION] => N [SEARCHABLE] => N [FILTRABLE] => N [IS_REQUIRED] => N [VERSION] => 1 [USER_TYPE] => HTML [USER_TYPE_SETTINGS] => Array ( [height] => 200 ) [HINT] => [~NAME] => Технические характеристики [~DEFAULT_VALUE] => Array ( [TYPE] => HTML [TEXT] => ) [VALUE_ENUM] => [VALUE_XML_ID] => [VALUE_SORT] => [VALUE] => Array ( [TEXT] => <p style="text-align: justify;"> Опора КМ220-1 применяется в качестве концевой (анкерной) на одноцепных воздушных линиях электропередачи 220 кВ. Конструкция устанавливается в конце участка ВЛ, в местах перехода линии в кабельную вставку, а также перед пересечениями крупных рек, оврагов, автомобильных и железных дорог, где требуются повышенная несущая способность и устойчивость к значительным односторонним тяжениям проводов. </p> [TYPE] => HTML ) [PROPERTY_VALUE_ID] => 6821591 [DESCRIPTION] => [~VALUE] => Array ( [TEXT] =>

Опора КМ220-1 применяется в качестве концевой (анкерной) на одноцепных воздушных линиях электропередачи 220 кВ. Конструкция устанавливается в конце участка ВЛ, в местах перехода линии в кабельную вставку, а также перед пересечениями крупных рек, оврагов, автомобильных и железных дорог, где требуются повышенная несущая способность и устойчивость к значительным односторонним тяжениям проводов.

[TYPE] => HTML ) [~DESCRIPTION] => ) [ITEM_ADV_DESCR] => Array ( [ID] => 30 [IBLOCK_ID] => 2 [NAME] => Преимущества (описание) [ACTIVE] => Y [SORT] => 9 [CODE] => ITEM_ADV_DESCR [DEFAULT_VALUE] => Array ( [TYPE] => HTML [TEXT] => ) [PROPERTY_TYPE] => S [ROW_COUNT] => 1 [COL_COUNT] => 30 [LIST_TYPE] => L [MULTIPLE] => N [XML_ID] => 30 [FILE_TYPE] => [MULTIPLE_CNT] => 5 [LINK_IBLOCK_ID] => 0 [WITH_DESCRIPTION] => N [SEARCHABLE] => N [FILTRABLE] => N [IS_REQUIRED] => N [VERSION] => 1 [USER_TYPE] => HTML [USER_TYPE_SETTINGS] => Array ( [height] => 100 ) [HINT] => [~NAME] => Преимущества (описание) [~DEFAULT_VALUE] => Array ( [TYPE] => HTML [TEXT] => ) [VALUE_ENUM] => [VALUE_XML_ID] => [VALUE_SORT] => [VALUE] => Array ( [TEXT] => <p style="text-align: justify;"> Концевая конструкция специально рассчитана на восприятие максимальных односторонних нагрузок от натяжения проводов, обеспечивая надежное завершение или переход участка ВЛ 220 кВ. Большой диаметр основания (1700 мм) и коническая форма обеспечивают исключительную устойчивость и несущую способность, необходимые для анкерных опор высшего класса напряжения. Горячее цинкование гарантирует максимальный срок службы металла в условиях постоянного атмосферного воздействия, что критически важно для объектов энергетической инфраструктуры. Телескопическая конструкция и поставка в разобранном виде значительно упрощают и удешевляют логистику к месту монтажа. Типовое исполнение по проекту 27.0003 обеспечивает полную совместимость с другими элементами ВЛ, унифицирует проектирование и закупки для строительства магистральных линий электропередачи. </p> [TYPE] => HTML ) [PROPERTY_VALUE_ID] => 6821592 [DESCRIPTION] => [~VALUE] => Array ( [TEXT] =>

Концевая конструкция специально рассчитана на восприятие максимальных односторонних нагрузок от натяжения проводов, обеспечивая надежное завершение или переход участка ВЛ 220 кВ. Большой диаметр основания (1700 мм) и коническая форма обеспечивают исключительную устойчивость и несущую способность, необходимые для анкерных опор высшего класса напряжения. Горячее цинкование гарантирует максимальный срок службы металла в условиях постоянного атмосферного воздействия, что критически важно для объектов энергетической инфраструктуры. Телескопическая конструкция и поставка в разобранном виде значительно упрощают и удешевляют логистику к месту монтажа. Типовое исполнение по проекту 27.0003 обеспечивает полную совместимость с другими элементами ВЛ, унифицирует проектирование и закупки для строительства магистральных линий электропередачи.

[TYPE] => HTML ) [~DESCRIPTION] => ) [ITEM_ADV] => Array ( [ID] => 31 [IBLOCK_ID] => 2 [NAME] => Преимущества [ACTIVE] => Y [SORT] => 10 [CODE] => ITEM_ADV [DEFAULT_VALUE] => [PROPERTY_TYPE] => E [ROW_COUNT] => 1 [COL_COUNT] => 30 [LIST_TYPE] => L [MULTIPLE] => Y [XML_ID] => 31 [FILE_TYPE] => [MULTIPLE_CNT] => 1 [LINK_IBLOCK_ID] => 5 [WITH_DESCRIPTION] => N [SEARCHABLE] => N [FILTRABLE] => N [IS_REQUIRED] => N [VERSION] => 1 [USER_TYPE] => [USER_TYPE_SETTINGS] => Array ( ) [HINT] => [~NAME] => Преимущества [~DEFAULT_VALUE] => [VALUE_ENUM] => [VALUE_XML_ID] => [VALUE_SORT] => [VALUE] => [PROPERTY_VALUE_ID] => [DESCRIPTION] => [~DESCRIPTION] => [~VALUE] => ) [ITEM_BUY] => Array ( [ID] => 32 [IBLOCK_ID] => 2 [NAME] => Купить [ACTIVE] => Y [SORT] => 11 [CODE] => ITEM_BUY [DEFAULT_VALUE] => Array ( [TEXT] => [TYPE] => HTML ) [PROPERTY_TYPE] => S [ROW_COUNT] => 1 [COL_COUNT] => 30 [LIST_TYPE] => L [MULTIPLE] => N [XML_ID] => 32 [FILE_TYPE] => [MULTIPLE_CNT] => 5 [LINK_IBLOCK_ID] => 0 [WITH_DESCRIPTION] => N [SEARCHABLE] => N [FILTRABLE] => N [IS_REQUIRED] => N [VERSION] => 1 [USER_TYPE] => HTML [USER_TYPE_SETTINGS] => Array ( [height] => 200 ) [HINT] => [~NAME] => Купить [~DEFAULT_VALUE] => Array ( [TEXT] => [TYPE] => HTML ) [VALUE_ENUM] => [VALUE_XML_ID] => [VALUE_SORT] => [VALUE] => Array ( [TEXT] => <p style="text-align: justify;"> Для заказа многогранных концевых опор КМ220-1 по типовому проекту 27.0003 обратитесь в отдел продаж НПО «Легион». Наши специалисты предоставят полный комплект рабочих чертежей, спецификаций и проконсультируют по вариантам фундаментов. Мы обеспечим изготовление, антикоррозионную обработку и поставку опор в требуемом количестве с оптимизированной транспортировкой. Для консультации и расчета стоимости звоните по телефону 8(800)500-51-37 или направляйте техническое задание на электронную почту <a href="mailto:info@legionural.ru">info@legionural.ru</a>. </p> [TYPE] => HTML ) [PROPERTY_VALUE_ID] => 6821593 [DESCRIPTION] => [~VALUE] => Array ( [TEXT] =>

Для заказа многогранных концевых опор КМ220-1 по типовому проекту 27.0003 обратитесь в отдел продаж НПО «Легион». Наши специалисты предоставят полный комплект рабочих чертежей, спецификаций и проконсультируют по вариантам фундаментов. Мы обеспечим изготовление, антикоррозионную обработку и поставку опор в требуемом количестве с оптимизированной транспортировкой. Для консультации и расчета стоимости звоните по телефону 8(800)500-51-37 или направляйте техническое задание на электронную почту info@legionural.ru.

[TYPE] => HTML ) [~DESCRIPTION] => ) [ITEM_CERT_COR] => Array ( [ID] => 33 [IBLOCK_ID] => 2 [NAME] => Сертификаты соответствия [ACTIVE] => Y [SORT] => 12 [CODE] => ITEM_CERT_COR [DEFAULT_VALUE] => [PROPERTY_TYPE] => S [ROW_COUNT] => 1 [COL_COUNT] => 30 [LIST_TYPE] => L [MULTIPLE] => Y [XML_ID] => 33 [FILE_TYPE] => [MULTIPLE_CNT] => 1 [LINK_IBLOCK_ID] => 0 [WITH_DESCRIPTION] => Y [SEARCHABLE] => N [FILTRABLE] => N [IS_REQUIRED] => N [VERSION] => 1 [USER_TYPE] => [USER_TYPE_SETTINGS] => Array ( ) [HINT] => [~NAME] => Сертификаты соответствия [~DEFAULT_VALUE] => [VALUE_ENUM] => [VALUE_XML_ID] => [VALUE_SORT] => [VALUE] => [PROPERTY_VALUE_ID] => [DESCRIPTION] => [~DESCRIPTION] => [~VALUE] => ) [ITEM_ST_STAND] => Array ( [ID] => 34 [IBLOCK_ID] => 2 [NAME] => Государственные стандарты [ACTIVE] => Y [SORT] => 13 [CODE] => ITEM_ST_STAND [DEFAULT_VALUE] => [PROPERTY_TYPE] => S [ROW_COUNT] => 1 [COL_COUNT] => 30 [LIST_TYPE] => L [MULTIPLE] => Y [XML_ID] => 34 [FILE_TYPE] => [MULTIPLE_CNT] => 1 [LINK_IBLOCK_ID] => 0 [WITH_DESCRIPTION] => Y [SEARCHABLE] => N [FILTRABLE] => N [IS_REQUIRED] => N [VERSION] => 1 [USER_TYPE] => [USER_TYPE_SETTINGS] => Array ( ) [HINT] => [~NAME] => Государственные стандарты [~DEFAULT_VALUE] => [VALUE_ENUM] => [VALUE_XML_ID] => [VALUE_SORT] => [VALUE] => [PROPERTY_VALUE_ID] => [DESCRIPTION] => [~DESCRIPTION] => [~VALUE] => ) [ITEM_NORM] => Array ( [ID] => 35 [IBLOCK_ID] => 2 [NAME] => Строительные нормы и правила [ACTIVE] => Y [SORT] => 14 [CODE] => ITEM_NORM [DEFAULT_VALUE] => [PROPERTY_TYPE] => S [ROW_COUNT] => 1 [COL_COUNT] => 30 [LIST_TYPE] => L [MULTIPLE] => Y [XML_ID] => 35 [FILE_TYPE] => [MULTIPLE_CNT] => 1 [LINK_IBLOCK_ID] => 0 [WITH_DESCRIPTION] => Y [SEARCHABLE] => N [FILTRABLE] => N [IS_REQUIRED] => N [VERSION] => 1 [USER_TYPE] => [USER_TYPE_SETTINGS] => Array ( ) [HINT] => [~NAME] => Строительные нормы и правила [~DEFAULT_VALUE] => [VALUE_ENUM] => [VALUE_XML_ID] => [VALUE_SORT] => [VALUE] => [PROPERTY_VALUE_ID] => [DESCRIPTION] => [~DESCRIPTION] => [~VALUE] => ) [ITEM_SIMILAR] => Array ( [ID] => 36 [IBLOCK_ID] => 2 [NAME] => Похожие модели [ACTIVE] => Y [SORT] => 15 [CODE] => ITEM_SIMILAR [DEFAULT_VALUE] => [PROPERTY_TYPE] => G [ROW_COUNT] => 1 [COL_COUNT] => 30 [LIST_TYPE] => L [MULTIPLE] => Y [XML_ID] => 36 [FILE_TYPE] => [MULTIPLE_CNT] => 10 [LINK_IBLOCK_ID] => 2 [WITH_DESCRIPTION] => N [SEARCHABLE] => N [FILTRABLE] => N [IS_REQUIRED] => N [VERSION] => 1 [USER_TYPE] => [USER_TYPE_SETTINGS] => Array ( ) [HINT] => [~NAME] => Похожие модели [~DEFAULT_VALUE] => [VALUE_ENUM] => [VALUE_XML_ID] => [VALUE_SORT] => [VALUE] => [PROPERTY_VALUE_ID] => [DESCRIPTION] => [~DESCRIPTION] => [~VALUE] => ) [ITEM_SIMILAR_TAGS] => Array ( [ID] => 122 [IBLOCK_ID] => 2 [NAME] => Похожие модели (теговые) [ACTIVE] => Y [SORT] => 16 [CODE] => ITEM_SIMILAR_TAGS [DEFAULT_VALUE] => [PROPERTY_TYPE] => E [ROW_COUNT] => 1 [COL_COUNT] => 30 [LIST_TYPE] => L [MULTIPLE] => Y [XML_ID] => 122 [FILE_TYPE] => [MULTIPLE_CNT] => 1 [LINK_IBLOCK_ID] => 19 [WITH_DESCRIPTION] => N [SEARCHABLE] => N [FILTRABLE] => N [IS_REQUIRED] => N [VERSION] => 1 [USER_TYPE] => [USER_TYPE_SETTINGS] => Array ( ) [HINT] => [~NAME] => Похожие модели (теговые) [~DEFAULT_VALUE] => [VALUE_ENUM] => [VALUE_XML_ID] => [VALUE_SORT] => [VALUE] => [PROPERTY_VALUE_ID] => [DESCRIPTION] => [~DESCRIPTION] => [~VALUE] => ) [ITEM_BUY_WITH] => Array ( [ID] => 37 [IBLOCK_ID] => 2 [NAME] => С этим товаром покупают [ACTIVE] => Y [SORT] => 17 [CODE] => ITEM_BUY_WITH [DEFAULT_VALUE] => [PROPERTY_TYPE] => E [ROW_COUNT] => 1 [COL_COUNT] => 30 [LIST_TYPE] => L [MULTIPLE] => Y [XML_ID] => 37 [FILE_TYPE] => [MULTIPLE_CNT] => 1 [LINK_IBLOCK_ID] => 2 [WITH_DESCRIPTION] => N [SEARCHABLE] => N [FILTRABLE] => N [IS_REQUIRED] => N [VERSION] => 1 [USER_TYPE] => [USER_TYPE_SETTINGS] => Array ( ) [HINT] => [~NAME] => С этим товаром покупают [~DEFAULT_VALUE] => [VALUE_ENUM] => [VALUE_XML_ID] => [VALUE_SORT] => [VALUE] => [PROPERTY_VALUE_ID] => [DESCRIPTION] => [~DESCRIPTION] => [~VALUE] => ) [ITEM_VOTE_COUNT] => Array ( [ID] => 38 [IBLOCK_ID] => 2 [NAME] => Количество голосов [ACTIVE] => Y [SORT] => 18 [CODE] => ITEM_VOTE_COUNT [DEFAULT_VALUE] => 0 [PROPERTY_TYPE] => N [ROW_COUNT] => 1 [COL_COUNT] => 30 [LIST_TYPE] => L [MULTIPLE] => N [XML_ID] => 38 [FILE_TYPE] => [MULTIPLE_CNT] => 5 [LINK_IBLOCK_ID] => 0 [WITH_DESCRIPTION] => N [SEARCHABLE] => N [FILTRABLE] => N [IS_REQUIRED] => N [VERSION] => 1 [USER_TYPE] => [USER_TYPE_SETTINGS] => Array ( ) [HINT] => [~NAME] => Количество голосов [~DEFAULT_VALUE] => 0 [VALUE_ENUM] => [VALUE_XML_ID] => [VALUE_SORT] => [VALUE] => 15 [PROPERTY_VALUE_ID] => 5933071 [DESCRIPTION] => [~VALUE] => 15 [~DESCRIPTION] => ) [ITEM_RAITING] => Array ( [ID] => 39 [IBLOCK_ID] => 2 [NAME] => Рейтинг [ACTIVE] => Y [SORT] => 19 [CODE] => ITEM_RAITING [DEFAULT_VALUE] => 0 [PROPERTY_TYPE] => N [ROW_COUNT] => 1 [COL_COUNT] => 30 [LIST_TYPE] => L [MULTIPLE] => N [XML_ID] => 39 [FILE_TYPE] => [MULTIPLE_CNT] => 5 [LINK_IBLOCK_ID] => 0 [WITH_DESCRIPTION] => N [SEARCHABLE] => N [FILTRABLE] => N [IS_REQUIRED] => N [VERSION] => 1 [USER_TYPE] => [USER_TYPE_SETTINGS] => Array ( ) [HINT] => [~NAME] => Рейтинг [~DEFAULT_VALUE] => 0 [VALUE_ENUM] => [VALUE_XML_ID] => [VALUE_SORT] => [VALUE] => 4.9 [PROPERTY_VALUE_ID] => 5933072 [DESCRIPTION] => [~VALUE] => 4.9 [~DESCRIPTION] => ) [H1] => Array ( [ID] => 125 [IBLOCK_ID] => 2 [NAME] => H1 [ACTIVE] => Y [SORT] => 500 [CODE] => H1 [DEFAULT_VALUE] => [PROPERTY_TYPE] => S [ROW_COUNT] => 1 [COL_COUNT] => 70 [LIST_TYPE] => L [MULTIPLE] => N [XML_ID] => 125 [FILE_TYPE] => [MULTIPLE_CNT] => 5 [LINK_IBLOCK_ID] => 0 [WITH_DESCRIPTION] => N [SEARCHABLE] => N [FILTRABLE] => N [IS_REQUIRED] => N [VERSION] => 1 [USER_TYPE] => [USER_TYPE_SETTINGS] => Array ( ) [HINT] => [~NAME] => H1 [~DEFAULT_VALUE] => [VALUE_ENUM] => [VALUE_XML_ID] => [VALUE_SORT] => [VALUE] => Многогранная опора КМ220-1 [PROPERTY_VALUE_ID] => 5945371 [DESCRIPTION] => [~VALUE] => Многогранная опора КМ220-1 [~DESCRIPTION] => ) [CERTIFICATES] => Array ( [ID] => 127 [IBLOCK_ID] => 2 [NAME] => Сертификаты [ACTIVE] => Y [SORT] => 500 [CODE] => CERTIFICATES [DEFAULT_VALUE] => [PROPERTY_TYPE] => E [ROW_COUNT] => 1 [COL_COUNT] => 30 [LIST_TYPE] => L [MULTIPLE] => Y [XML_ID] => 127 [FILE_TYPE] => [MULTIPLE_CNT] => 5 [LINK_IBLOCK_ID] => 7 [WITH_DESCRIPTION] => N [SEARCHABLE] => N [FILTRABLE] => N [IS_REQUIRED] => N [VERSION] => 1 [USER_TYPE] => [USER_TYPE_SETTINGS] => Array ( ) [HINT] => [~NAME] => Сертификаты [~DEFAULT_VALUE] => [VALUE_ENUM] => [VALUE_XML_ID] => [VALUE_SORT] => [VALUE] => [PROPERTY_VALUE_ID] => [DESCRIPTION] => [~DESCRIPTION] => [~VALUE] => ) [129] => Array ( [ID] => 129 [IBLOCK_ID] => 2 [NAME] => Уникальный META TITLE [ACTIVE] => Y [SORT] => 500 [CODE] => 129 [DEFAULT_VALUE] => [PROPERTY_TYPE] => S [ROW_COUNT] => 1 [COL_COUNT] => 30 [LIST_TYPE] => L [MULTIPLE] => N [XML_ID] => 129 [FILE_TYPE] => [MULTIPLE_CNT] => 5 [LINK_IBLOCK_ID] => 0 [WITH_DESCRIPTION] => N [SEARCHABLE] => N [FILTRABLE] => N [IS_REQUIRED] => N [VERSION] => 1 [USER_TYPE] => [USER_TYPE_SETTINGS] => Array ( ) [HINT] => [~NAME] => Уникальный META TITLE [~DEFAULT_VALUE] => [VALUE_ENUM] => [VALUE_XML_ID] => [VALUE_SORT] => [VALUE] => [PROPERTY_VALUE_ID] => [DESCRIPTION] => [~DESCRIPTION] => [~VALUE] => ) [ITEM_TYPE] => Array ( [ID] => 134 [IBLOCK_ID] => 2 [NAME] => Тип [ACTIVE] => Y [SORT] => 500 [CODE] => ITEM_TYPE [DEFAULT_VALUE] => [PROPERTY_TYPE] => S [ROW_COUNT] => 1 [COL_COUNT] => 30 [LIST_TYPE] => L [MULTIPLE] => N [XML_ID] => [FILE_TYPE] => [MULTIPLE_CNT] => 5 [LINK_IBLOCK_ID] => 0 [WITH_DESCRIPTION] => N [SEARCHABLE] => N [FILTRABLE] => Y [IS_REQUIRED] => N [VERSION] => 1 [USER_TYPE] => [USER_TYPE_SETTINGS] => Array ( ) [HINT] => [~NAME] => Тип [~DEFAULT_VALUE] => [VALUE_ENUM] => [VALUE_XML_ID] => [VALUE_SORT] => [VALUE] => [PROPERTY_VALUE_ID] => [DESCRIPTION] => [~DESCRIPTION] => [~VALUE] => ) [ITEM_INSTALLATION] => Array ( [ID] => 135 [IBLOCK_ID] => 2 [NAME] => Способ установки [ACTIVE] => Y [SORT] => 500 [CODE] => ITEM_INSTALLATION [DEFAULT_VALUE] => [PROPERTY_TYPE] => S [ROW_COUNT] => 1 [COL_COUNT] => 30 [LIST_TYPE] => L [MULTIPLE] => N [XML_ID] => [FILE_TYPE] => [MULTIPLE_CNT] => 5 [LINK_IBLOCK_ID] => 0 [WITH_DESCRIPTION] => N [SEARCHABLE] => N [FILTRABLE] => N [IS_REQUIRED] => N [VERSION] => 1 [USER_TYPE] => [USER_TYPE_SETTINGS] => Array ( ) [HINT] => [~NAME] => Способ установки [~DEFAULT_VALUE] => [VALUE_ENUM] => [VALUE_XML_ID] => [VALUE_SORT] => [VALUE] => [PROPERTY_VALUE_ID] => [DESCRIPTION] => [~DESCRIPTION] => [~VALUE] => ) [ITEM_MODE] => Array ( [ID] => 136 [IBLOCK_ID] => 2 [NAME] => Способ производства [ACTIVE] => Y [SORT] => 500 [CODE] => ITEM_MODE [DEFAULT_VALUE] => [PROPERTY_TYPE] => S [ROW_COUNT] => 1 [COL_COUNT] => 30 [LIST_TYPE] => L [MULTIPLE] => N [XML_ID] => [FILE_TYPE] => [MULTIPLE_CNT] => 5 [LINK_IBLOCK_ID] => 0 [WITH_DESCRIPTION] => N [SEARCHABLE] => N [FILTRABLE] => N [IS_REQUIRED] => N [VERSION] => 1 [USER_TYPE] => [USER_TYPE_SETTINGS] => Array ( ) [HINT] => [~NAME] => Способ производства [~DEFAULT_VALUE] => [VALUE_ENUM] => [VALUE_XML_ID] => [VALUE_SORT] => [VALUE] => [PROPERTY_VALUE_ID] => [DESCRIPTION] => [~DESCRIPTION] => [~VALUE] => ) [ITEM_HEIGHT] => Array ( [ID] => 137 [IBLOCK_ID] => 2 [NAME] => Высота, мм [ACTIVE] => Y [SORT] => 500 [CODE] => ITEM_HEIGHT [DEFAULT_VALUE] => [PROPERTY_TYPE] => S [ROW_COUNT] => 1 [COL_COUNT] => 30 [LIST_TYPE] => L [MULTIPLE] => N [XML_ID] => [FILE_TYPE] => [MULTIPLE_CNT] => 5 [LINK_IBLOCK_ID] => 0 [WITH_DESCRIPTION] => N [SEARCHABLE] => N [FILTRABLE] => N [IS_REQUIRED] => N [VERSION] => 1 [USER_TYPE] => [USER_TYPE_SETTINGS] => Array ( ) [HINT] => [~NAME] => Высота, мм [~DEFAULT_VALUE] => [VALUE_ENUM] => [VALUE_XML_ID] => [VALUE_SORT] => [VALUE] => [PROPERTY_VALUE_ID] => [DESCRIPTION] => [~DESCRIPTION] => [~VALUE] => ) [BLOG_POST_ID] => Array ( [ID] => 138 [IBLOCK_ID] => 2 [NAME] => ID поста блога для комментариев [ACTIVE] => Y [SORT] => 500 [CODE] => BLOG_POST_ID [DEFAULT_VALUE] => [PROPERTY_TYPE] => N [ROW_COUNT] => 1 [COL_COUNT] => 30 [LIST_TYPE] => L [MULTIPLE] => N [XML_ID] => BLOG_POST_ID [FILE_TYPE] => [MULTIPLE_CNT] => 5 [LINK_IBLOCK_ID] => 0 [WITH_DESCRIPTION] => N [SEARCHABLE] => N [FILTRABLE] => N [IS_REQUIRED] => N [VERSION] => 1 [USER_TYPE] => [USER_TYPE_SETTINGS] => Array ( ) [HINT] => [~NAME] => ID поста блога для комментариев [~DEFAULT_VALUE] => [VALUE_ENUM] => [VALUE_XML_ID] => [VALUE_SORT] => [VALUE] => 220 [PROPERTY_VALUE_ID] => 6774029 [DESCRIPTION] => [~VALUE] => 220 [~DESCRIPTION] => ) [BLOG_COMMENTS_CNT] => Array ( [ID] => 139 [IBLOCK_ID] => 2 [NAME] => Количество комментариев [ACTIVE] => Y [SORT] => 500 [CODE] => BLOG_COMMENTS_CNT [DEFAULT_VALUE] => [PROPERTY_TYPE] => N [ROW_COUNT] => 1 [COL_COUNT] => 30 [LIST_TYPE] => L [MULTIPLE] => N [XML_ID] => BLOG_COMMENTS_CNT [FILE_TYPE] => [MULTIPLE_CNT] => 5 [LINK_IBLOCK_ID] => 0 [WITH_DESCRIPTION] => N [SEARCHABLE] => N [FILTRABLE] => N [IS_REQUIRED] => N [VERSION] => 1 [USER_TYPE] => [USER_TYPE_SETTINGS] => Array ( ) [HINT] => [~NAME] => Количество комментариев [~DEFAULT_VALUE] => [VALUE_ENUM] => [VALUE_XML_ID] => [VALUE_SORT] => [VALUE] => [PROPERTY_VALUE_ID] => [DESCRIPTION] => [~DESCRIPTION] => [~VALUE] => ) [HEIGHT_TOTAL] => Array ( [ID] => 143 [IBLOCK_ID] => 2 [NAME] => Высота общая, мм [ACTIVE] => Y [SORT] => 500 [CODE] => HEIGHT_TOTAL [DEFAULT_VALUE] => [PROPERTY_TYPE] => S [ROW_COUNT] => 1 [COL_COUNT] => 30 [LIST_TYPE] => L [MULTIPLE] => N [XML_ID] => [FILE_TYPE] => [MULTIPLE_CNT] => 5 [LINK_IBLOCK_ID] => 0 [WITH_DESCRIPTION] => N [SEARCHABLE] => N [FILTRABLE] => N [IS_REQUIRED] => N [VERSION] => 1 [USER_TYPE] => [USER_TYPE_SETTINGS] => Array ( ) [HINT] => [~NAME] => Высота общая, мм [~DEFAULT_VALUE] => [VALUE_ENUM] => [VALUE_XML_ID] => [VALUE_SORT] => [VALUE] => [PROPERTY_VALUE_ID] => [DESCRIPTION] => [~DESCRIPTION] => [~VALUE] => ) [HEIGHT_ABOVEGROUND] => Array ( [ID] => 144 [IBLOCK_ID] => 2 [NAME] => Высота надземной части, мм [ACTIVE] => Y [SORT] => 500 [CODE] => HEIGHT_ABOVEGROUND [DEFAULT_VALUE] => [PROPERTY_TYPE] => S [ROW_COUNT] => 1 [COL_COUNT] => 30 [LIST_TYPE] => L [MULTIPLE] => N [XML_ID] => [FILE_TYPE] => [MULTIPLE_CNT] => 5 [LINK_IBLOCK_ID] => 0 [WITH_DESCRIPTION] => N [SEARCHABLE] => N [FILTRABLE] => N [IS_REQUIRED] => N [VERSION] => 1 [USER_TYPE] => [USER_TYPE_SETTINGS] => Array ( ) [HINT] => [~NAME] => Высота надземной части, мм [~DEFAULT_VALUE] => [VALUE_ENUM] => [VALUE_XML_ID] => [VALUE_SORT] => [VALUE] => [PROPERTY_VALUE_ID] => [DESCRIPTION] => [~DESCRIPTION] => [~VALUE] => ) [HEIGHT_UNDERGROUND] => Array ( [ID] => 145 [IBLOCK_ID] => 2 [NAME] => Высота подземной части, мм [ACTIVE] => Y [SORT] => 500 [CODE] => HEIGHT_UNDERGROUND [DEFAULT_VALUE] => [PROPERTY_TYPE] => S [ROW_COUNT] => 1 [COL_COUNT] => 30 [LIST_TYPE] => L [MULTIPLE] => N [XML_ID] => [FILE_TYPE] => [MULTIPLE_CNT] => 5 [LINK_IBLOCK_ID] => 0 [WITH_DESCRIPTION] => N [SEARCHABLE] => N [FILTRABLE] => N [IS_REQUIRED] => N [VERSION] => 1 [USER_TYPE] => [USER_TYPE_SETTINGS] => Array ( ) [HINT] => [~NAME] => Высота подземной части, мм [~DEFAULT_VALUE] => [VALUE_ENUM] => [VALUE_XML_ID] => [VALUE_SORT] => [VALUE] => [PROPERTY_VALUE_ID] => [DESCRIPTION] => [~DESCRIPTION] => [~VALUE] => ) [DIAMETER_TOP] => Array ( [ID] => 146 [IBLOCK_ID] => 2 [NAME] => Диаметр верхний, мм [ACTIVE] => Y [SORT] => 500 [CODE] => DIAMETER_TOP [DEFAULT_VALUE] => [PROPERTY_TYPE] => S [ROW_COUNT] => 1 [COL_COUNT] => 30 [LIST_TYPE] => L [MULTIPLE] => N [XML_ID] => [FILE_TYPE] => [MULTIPLE_CNT] => 5 [LINK_IBLOCK_ID] => 0 [WITH_DESCRIPTION] => N [SEARCHABLE] => N [FILTRABLE] => N [IS_REQUIRED] => N [VERSION] => 1 [USER_TYPE] => [USER_TYPE_SETTINGS] => Array ( ) [HINT] => [~NAME] => Диаметр верхний, мм [~DEFAULT_VALUE] => [VALUE_ENUM] => [VALUE_XML_ID] => [VALUE_SORT] => [VALUE] => [PROPERTY_VALUE_ID] => [DESCRIPTION] => [~DESCRIPTION] => [~VALUE] => ) [DIAMETER_BOTTOM] => Array ( [ID] => 147 [IBLOCK_ID] => 2 [NAME] => Диаметр нижний, мм [ACTIVE] => Y [SORT] => 500 [CODE] => DIAMETER_BOTTOM [DEFAULT_VALUE] => [PROPERTY_TYPE] => S [ROW_COUNT] => 1 [COL_COUNT] => 30 [LIST_TYPE] => L [MULTIPLE] => N [XML_ID] => [FILE_TYPE] => [MULTIPLE_CNT] => 5 [LINK_IBLOCK_ID] => 0 [WITH_DESCRIPTION] => N [SEARCHABLE] => N [FILTRABLE] => N [IS_REQUIRED] => N [VERSION] => 1 [USER_TYPE] => [USER_TYPE_SETTINGS] => Array ( ) [HINT] => [~NAME] => Диаметр нижний, мм [~DEFAULT_VALUE] => [VALUE_ENUM] => [VALUE_XML_ID] => [VALUE_SORT] => [VALUE] => [PROPERTY_VALUE_ID] => [DESCRIPTION] => [~DESCRIPTION] => [~VALUE] => ) [WEIGHT] => Array ( [ID] => 148 [IBLOCK_ID] => 2 [NAME] => Нагрузка, кг [ACTIVE] => Y [SORT] => 500 [CODE] => WEIGHT [DEFAULT_VALUE] => [PROPERTY_TYPE] => S [ROW_COUNT] => 1 [COL_COUNT] => 30 [LIST_TYPE] => L [MULTIPLE] => N [XML_ID] => [FILE_TYPE] => [MULTIPLE_CNT] => 5 [LINK_IBLOCK_ID] => 0 [WITH_DESCRIPTION] => N [SEARCHABLE] => N [FILTRABLE] => N [IS_REQUIRED] => N [VERSION] => 1 [USER_TYPE] => [USER_TYPE_SETTINGS] => Array ( ) [HINT] => [~NAME] => Нагрузка, кг [~DEFAULT_VALUE] => [VALUE_ENUM] => [VALUE_XML_ID] => [VALUE_SORT] => [VALUE] => [PROPERTY_VALUE_ID] => [DESCRIPTION] => [~DESCRIPTION] => [~VALUE] => ) [VID] => Array ( [ID] => 149 [IBLOCK_ID] => 2 [NAME] => Вид [ACTIVE] => Y [SORT] => 500 [CODE] => VID [DEFAULT_VALUE] => [PROPERTY_TYPE] => S [ROW_COUNT] => 1 [COL_COUNT] => 30 [LIST_TYPE] => L [MULTIPLE] => N [XML_ID] => [FILE_TYPE] => [MULTIPLE_CNT] => 5 [LINK_IBLOCK_ID] => 0 [WITH_DESCRIPTION] => N [SEARCHABLE] => N [FILTRABLE] => N [IS_REQUIRED] => N [VERSION] => 1 [USER_TYPE] => [USER_TYPE_SETTINGS] => Array ( ) [HINT] => [~NAME] => Вид [~DEFAULT_VALUE] => [VALUE_ENUM] => [VALUE_XML_ID] => [VALUE_SORT] => [VALUE] => [PROPERTY_VALUE_ID] => [DESCRIPTION] => [~DESCRIPTION] => [~VALUE] => ) [SERVICE_LIFE] => Array ( [ID] => 150 [IBLOCK_ID] => 2 [NAME] => Срок службы [ACTIVE] => Y [SORT] => 500 [CODE] => SERVICE_LIFE [DEFAULT_VALUE] => [PROPERTY_TYPE] => S [ROW_COUNT] => 1 [COL_COUNT] => 30 [LIST_TYPE] => L [MULTIPLE] => N [XML_ID] => [FILE_TYPE] => [MULTIPLE_CNT] => 5 [LINK_IBLOCK_ID] => 0 [WITH_DESCRIPTION] => N [SEARCHABLE] => N [FILTRABLE] => N [IS_REQUIRED] => N [VERSION] => 1 [USER_TYPE] => [USER_TYPE_SETTINGS] => Array ( ) [HINT] => [~NAME] => Срок службы [~DEFAULT_VALUE] => [VALUE_ENUM] => [VALUE_XML_ID] => [VALUE_SORT] => [VALUE] => [PROPERTY_VALUE_ID] => [DESCRIPTION] => [~DESCRIPTION] => [~VALUE] => ) [USING] => Array ( [ID] => 151 [IBLOCK_ID] => 2 [NAME] => Применение [ACTIVE] => Y [SORT] => 500 [CODE] => USING [DEFAULT_VALUE] => [PROPERTY_TYPE] => S [ROW_COUNT] => 1 [COL_COUNT] => 30 [LIST_TYPE] => L [MULTIPLE] => N [XML_ID] => [FILE_TYPE] => [MULTIPLE_CNT] => 5 [LINK_IBLOCK_ID] => 0 [WITH_DESCRIPTION] => N [SEARCHABLE] => N [FILTRABLE] => N [IS_REQUIRED] => N [VERSION] => 1 [USER_TYPE] => [USER_TYPE_SETTINGS] => Array ( ) [HINT] => [~NAME] => Применение [~DEFAULT_VALUE] => [VALUE_ENUM] => [VALUE_XML_ID] => [VALUE_SORT] => [VALUE] => [PROPERTY_VALUE_ID] => [DESCRIPTION] => [~DESCRIPTION] => [~VALUE] => ) [HEIGHT_ZAK] => Array ( [ID] => 152 [IBLOCK_ID] => 2 [NAME] => Высота закладного элемента фундамента [ACTIVE] => Y [SORT] => 500 [CODE] => HEIGHT_ZAK [DEFAULT_VALUE] => [PROPERTY_TYPE] => S [ROW_COUNT] => 1 [COL_COUNT] => 30 [LIST_TYPE] => L [MULTIPLE] => N [XML_ID] => [FILE_TYPE] => [MULTIPLE_CNT] => 5 [LINK_IBLOCK_ID] => 0 [WITH_DESCRIPTION] => N [SEARCHABLE] => N [FILTRABLE] => N [IS_REQUIRED] => N [VERSION] => 1 [USER_TYPE] => [USER_TYPE_SETTINGS] => Array ( ) [HINT] => [~NAME] => Высота закладного элемента фундамента [~DEFAULT_VALUE] => [VALUE_ENUM] => [VALUE_XML_ID] => [VALUE_SORT] => [VALUE] => [PROPERTY_VALUE_ID] => [DESCRIPTION] => [~DESCRIPTION] => [~VALUE] => ) [LENGTH_CONSOLE] => Array ( [ID] => 153 [IBLOCK_ID] => 2 [NAME] => Длина консоли [ACTIVE] => Y [SORT] => 500 [CODE] => LENGTH_CONSOLE [DEFAULT_VALUE] => [PROPERTY_TYPE] => S [ROW_COUNT] => 1 [COL_COUNT] => 30 [LIST_TYPE] => L [MULTIPLE] => N [XML_ID] => [FILE_TYPE] => [MULTIPLE_CNT] => 5 [LINK_IBLOCK_ID] => 0 [WITH_DESCRIPTION] => N [SEARCHABLE] => N [FILTRABLE] => N [IS_REQUIRED] => N [VERSION] => 1 [USER_TYPE] => [USER_TYPE_SETTINGS] => Array ( ) [HINT] => [~NAME] => Длина консоли [~DEFAULT_VALUE] => [VALUE_ENUM] => [VALUE_XML_ID] => [VALUE_SORT] => [VALUE] => [PROPERTY_VALUE_ID] => [DESCRIPTION] => [~DESCRIPTION] => [~VALUE] => ) [HEIGHT_TOP_SECTION] => Array ( [ID] => 154 [IBLOCK_ID] => 2 [NAME] => Высота верхней секции, мм [ACTIVE] => Y [SORT] => 500 [CODE] => HEIGHT_TOP_SECTION [DEFAULT_VALUE] => [PROPERTY_TYPE] => S [ROW_COUNT] => 1 [COL_COUNT] => 30 [LIST_TYPE] => L [MULTIPLE] => N [XML_ID] => [FILE_TYPE] => [MULTIPLE_CNT] => 5 [LINK_IBLOCK_ID] => 0 [WITH_DESCRIPTION] => N [SEARCHABLE] => N [FILTRABLE] => N [IS_REQUIRED] => N [VERSION] => 1 [USER_TYPE] => [USER_TYPE_SETTINGS] => Array ( ) [HINT] => [~NAME] => Высота верхней секции, мм [~DEFAULT_VALUE] => [VALUE_ENUM] => [VALUE_XML_ID] => [VALUE_SORT] => [VALUE] => [PROPERTY_VALUE_ID] => [DESCRIPTION] => [~DESCRIPTION] => [~VALUE] => ) [SIP] => Array ( [ID] => 156 [IBLOCK_ID] => 2 [NAME] => Возможность подвеса СИП [ACTIVE] => Y [SORT] => 500 [CODE] => SIP [DEFAULT_VALUE] => [PROPERTY_TYPE] => S [ROW_COUNT] => 1 [COL_COUNT] => 30 [LIST_TYPE] => L [MULTIPLE] => N [XML_ID] => [FILE_TYPE] => [MULTIPLE_CNT] => 5 [LINK_IBLOCK_ID] => 0 [WITH_DESCRIPTION] => N [SEARCHABLE] => N [FILTRABLE] => N [IS_REQUIRED] => N [VERSION] => 1 [USER_TYPE] => [USER_TYPE_SETTINGS] => Array ( ) [HINT] => [~NAME] => Возможность подвеса СИП [~DEFAULT_VALUE] => [VALUE_ENUM] => [VALUE_XML_ID] => [VALUE_SORT] => [VALUE] => [PROPERTY_VALUE_ID] => [DESCRIPTION] => [~DESCRIPTION] => [~VALUE] => ) [COUNT_GRANY] => Array ( [ID] => 157 [IBLOCK_ID] => 2 [NAME] => Количество граней [ACTIVE] => Y [SORT] => 500 [CODE] => COUNT_GRANY [DEFAULT_VALUE] => [PROPERTY_TYPE] => S [ROW_COUNT] => 1 [COL_COUNT] => 30 [LIST_TYPE] => L [MULTIPLE] => N [XML_ID] => [FILE_TYPE] => [MULTIPLE_CNT] => 5 [LINK_IBLOCK_ID] => 0 [WITH_DESCRIPTION] => N [SEARCHABLE] => N [FILTRABLE] => N [IS_REQUIRED] => N [VERSION] => 1 [USER_TYPE] => [USER_TYPE_SETTINGS] => Array ( ) [HINT] => [~NAME] => Количество граней [~DEFAULT_VALUE] => [VALUE_ENUM] => [VALUE_XML_ID] => [VALUE_SORT] => [VALUE] => [PROPERTY_VALUE_ID] => [DESCRIPTION] => [~DESCRIPTION] => [~VALUE] => ) [HEIGHT_BOTTOM_SECTION] => Array ( [ID] => 158 [IBLOCK_ID] => 2 [NAME] => Высота нижней секции, мм [ACTIVE] => Y [SORT] => 500 [CODE] => HEIGHT_BOTTOM_SECTION [DEFAULT_VALUE] => [PROPERTY_TYPE] => S [ROW_COUNT] => 1 [COL_COUNT] => 30 [LIST_TYPE] => L [MULTIPLE] => N [XML_ID] => [FILE_TYPE] => [MULTIPLE_CNT] => 5 [LINK_IBLOCK_ID] => 0 [WITH_DESCRIPTION] => N [SEARCHABLE] => N [FILTRABLE] => N [IS_REQUIRED] => N [VERSION] => 1 [USER_TYPE] => [USER_TYPE_SETTINGS] => Array ( ) [HINT] => [~NAME] => Высота нижней секции, мм [~DEFAULT_VALUE] => [VALUE_ENUM] => [VALUE_XML_ID] => [VALUE_SORT] => [VALUE] => [PROPERTY_VALUE_ID] => [DESCRIPTION] => [~DESCRIPTION] => [~VALUE] => ) [STEEL_THICKNESS] => Array ( [ID] => 160 [IBLOCK_ID] => 2 [NAME] => Толщина стали [ACTIVE] => Y [SORT] => 500 [CODE] => STEEL_THICKNESS [DEFAULT_VALUE] => [PROPERTY_TYPE] => S [ROW_COUNT] => 1 [COL_COUNT] => 30 [LIST_TYPE] => L [MULTIPLE] => N [XML_ID] => [FILE_TYPE] => [MULTIPLE_CNT] => 5 [LINK_IBLOCK_ID] => 0 [WITH_DESCRIPTION] => N [SEARCHABLE] => N [FILTRABLE] => N [IS_REQUIRED] => N [VERSION] => 1 [USER_TYPE] => [USER_TYPE_SETTINGS] => Array ( ) [HINT] => [~NAME] => Толщина стали [~DEFAULT_VALUE] => [VALUE_ENUM] => [VALUE_XML_ID] => [VALUE_SORT] => [VALUE] => [PROPERTY_VALUE_ID] => [DESCRIPTION] => [~DESCRIPTION] => [~VALUE] => ) [SIZE_OPOR_FLANEC] => Array ( [ID] => 161 [IBLOCK_ID] => 2 [NAME] => Размеры опорного фланца [ACTIVE] => Y [SORT] => 500 [CODE] => SIZE_OPOR_FLANEC [DEFAULT_VALUE] => [PROPERTY_TYPE] => S [ROW_COUNT] => 1 [COL_COUNT] => 30 [LIST_TYPE] => L [MULTIPLE] => N [XML_ID] => [FILE_TYPE] => [MULTIPLE_CNT] => 5 [LINK_IBLOCK_ID] => 0 [WITH_DESCRIPTION] => N [SEARCHABLE] => N [FILTRABLE] => N [IS_REQUIRED] => N [VERSION] => 1 [USER_TYPE] => [USER_TYPE_SETTINGS] => Array ( ) [HINT] => [~NAME] => Размеры опорного фланца [~DEFAULT_VALUE] => [VALUE_ENUM] => [VALUE_XML_ID] => [VALUE_SORT] => [VALUE] => [PROPERTY_VALUE_ID] => [DESCRIPTION] => [~DESCRIPTION] => [~VALUE] => ) [POKRASKA] => Array ( [ID] => 162 [IBLOCK_ID] => 2 [NAME] => Лакокрасочное покрытие [ACTIVE] => Y [SORT] => 500 [CODE] => POKRASKA [DEFAULT_VALUE] => [PROPERTY_TYPE] => S [ROW_COUNT] => 1 [COL_COUNT] => 30 [LIST_TYPE] => L [MULTIPLE] => N [XML_ID] => [FILE_TYPE] => [MULTIPLE_CNT] => 5 [LINK_IBLOCK_ID] => 0 [WITH_DESCRIPTION] => N [SEARCHABLE] => N [FILTRABLE] => N [IS_REQUIRED] => N [VERSION] => 1 [USER_TYPE] => [USER_TYPE_SETTINGS] => Array ( ) [HINT] => [~NAME] => Лакокрасочное покрытие [~DEFAULT_VALUE] => [VALUE_ENUM] => [VALUE_XML_ID] => [VALUE_SORT] => [VALUE] => [PROPERTY_VALUE_ID] => [DESCRIPTION] => [~DESCRIPTION] => [~VALUE] => ) [VES] => Array ( [ID] => 163 [IBLOCK_ID] => 2 [NAME] => Вес [ACTIVE] => Y [SORT] => 500 [CODE] => VES [DEFAULT_VALUE] => [PROPERTY_TYPE] => S [ROW_COUNT] => 1 [COL_COUNT] => 30 [LIST_TYPE] => L [MULTIPLE] => N [XML_ID] => [FILE_TYPE] => [MULTIPLE_CNT] => 5 [LINK_IBLOCK_ID] => 0 [WITH_DESCRIPTION] => N [SEARCHABLE] => N [FILTRABLE] => N [IS_REQUIRED] => N [VERSION] => 1 [USER_TYPE] => [USER_TYPE_SETTINGS] => Array ( ) [HINT] => [~NAME] => Вес [~DEFAULT_VALUE] => [VALUE_ENUM] => [VALUE_XML_ID] => [VALUE_SORT] => [VALUE] => [PROPERTY_VALUE_ID] => [DESCRIPTION] => [~DESCRIPTION] => [~VALUE] => ) [INSTALL_LYUCHKA] => Array ( [ID] => 164 [IBLOCK_ID] => 2 [NAME] => Возможность установки лючка [ACTIVE] => Y [SORT] => 500 [CODE] => INSTALL_LYUCHKA [DEFAULT_VALUE] => [PROPERTY_TYPE] => S [ROW_COUNT] => 1 [COL_COUNT] => 30 [LIST_TYPE] => L [MULTIPLE] => N [XML_ID] => [FILE_TYPE] => [MULTIPLE_CNT] => 5 [LINK_IBLOCK_ID] => 0 [WITH_DESCRIPTION] => N [SEARCHABLE] => N [FILTRABLE] => N [IS_REQUIRED] => N [VERSION] => 1 [USER_TYPE] => [USER_TYPE_SETTINGS] => Array ( ) [HINT] => [~NAME] => Возможность установки лючка [~DEFAULT_VALUE] => [VALUE_ENUM] => [VALUE_XML_ID] => [VALUE_SORT] => [VALUE] => [PROPERTY_VALUE_ID] => [DESCRIPTION] => [~DESCRIPTION] => [~VALUE] => ) [DIAMETER_FLANCA] => Array ( [ID] => 165 [IBLOCK_ID] => 2 [NAME] => Диаметр фланца, мм [ACTIVE] => Y [SORT] => 500 [CODE] => DIAMETER_FLANCA [DEFAULT_VALUE] => [PROPERTY_TYPE] => S [ROW_COUNT] => 1 [COL_COUNT] => 30 [LIST_TYPE] => L [MULTIPLE] => N [XML_ID] => [FILE_TYPE] => [MULTIPLE_CNT] => 5 [LINK_IBLOCK_ID] => 0 [WITH_DESCRIPTION] => N [SEARCHABLE] => N [FILTRABLE] => N [IS_REQUIRED] => N [VERSION] => 1 [USER_TYPE] => [USER_TYPE_SETTINGS] => Array ( ) [HINT] => [~NAME] => Диаметр фланца, мм [~DEFAULT_VALUE] => [VALUE_ENUM] => [VALUE_XML_ID] => [VALUE_SORT] => [VALUE] => [PROPERTY_VALUE_ID] => [DESCRIPTION] => [~DESCRIPTION] => [~VALUE] => ) [COUNT_LIGHT] => Array ( [ID] => 166 [IBLOCK_ID] => 2 [NAME] => Количество осветительных приборов, шт [ACTIVE] => Y [SORT] => 500 [CODE] => COUNT_LIGHT [DEFAULT_VALUE] => [PROPERTY_TYPE] => S [ROW_COUNT] => 1 [COL_COUNT] => 30 [LIST_TYPE] => L [MULTIPLE] => N [XML_ID] => [FILE_TYPE] => [MULTIPLE_CNT] => 5 [LINK_IBLOCK_ID] => 0 [WITH_DESCRIPTION] => N [SEARCHABLE] => N [FILTRABLE] => N [IS_REQUIRED] => N [VERSION] => 1 [USER_TYPE] => [USER_TYPE_SETTINGS] => Array ( ) [HINT] => [~NAME] => Количество осветительных приборов, шт [~DEFAULT_VALUE] => [VALUE_ENUM] => [VALUE_XML_ID] => [VALUE_SORT] => [VALUE] => [PROPERTY_VALUE_ID] => [DESCRIPTION] => [~DESCRIPTION] => [~VALUE] => ) [WEIGHT_TO_KRON] => Array ( [ID] => 167 [IBLOCK_ID] => 2 [NAME] => Высота до кронштейна, мм [ACTIVE] => Y [SORT] => 500 [CODE] => WEIGHT_TO_KRON [DEFAULT_VALUE] => [PROPERTY_TYPE] => S [ROW_COUNT] => 1 [COL_COUNT] => 30 [LIST_TYPE] => L [MULTIPLE] => N [XML_ID] => [FILE_TYPE] => [MULTIPLE_CNT] => 5 [LINK_IBLOCK_ID] => 0 [WITH_DESCRIPTION] => N [SEARCHABLE] => N [FILTRABLE] => N [IS_REQUIRED] => N [VERSION] => 1 [USER_TYPE] => [USER_TYPE_SETTINGS] => Array ( ) [HINT] => [~NAME] => Высота до кронштейна, мм [~DEFAULT_VALUE] => [VALUE_ENUM] => [VALUE_XML_ID] => [VALUE_SORT] => [VALUE] => [PROPERTY_VALUE_ID] => [DESCRIPTION] => [~DESCRIPTION] => [~VALUE] => ) [SIZE_FLANEC] => Array ( [ID] => 169 [IBLOCK_ID] => 2 [NAME] => Размер фланца [ACTIVE] => Y [SORT] => 500 [CODE] => SIZE_FLANEC [DEFAULT_VALUE] => [PROPERTY_TYPE] => S [ROW_COUNT] => 1 [COL_COUNT] => 30 [LIST_TYPE] => L [MULTIPLE] => N [XML_ID] => [FILE_TYPE] => [MULTIPLE_CNT] => 5 [LINK_IBLOCK_ID] => 0 [WITH_DESCRIPTION] => N [SEARCHABLE] => N [FILTRABLE] => N [IS_REQUIRED] => N [VERSION] => 1 [USER_TYPE] => [USER_TYPE_SETTINGS] => Array ( ) [HINT] => [~NAME] => Размер фланца [~DEFAULT_VALUE] => [VALUE_ENUM] => [VALUE_XML_ID] => [VALUE_SORT] => [VALUE] => [PROPERTY_VALUE_ID] => [DESCRIPTION] => [~DESCRIPTION] => [~VALUE] => ) [WEIGHT_MIDDLE_SECTION] => Array ( [ID] => 170 [IBLOCK_ID] => 2 [NAME] => Высота промежуточной секции, мм [ACTIVE] => Y [SORT] => 500 [CODE] => WEIGHT_MIDDLE_SECTION [DEFAULT_VALUE] => [PROPERTY_TYPE] => S [ROW_COUNT] => 1 [COL_COUNT] => 30 [LIST_TYPE] => L [MULTIPLE] => N [XML_ID] => [FILE_TYPE] => [MULTIPLE_CNT] => 5 [LINK_IBLOCK_ID] => 0 [WITH_DESCRIPTION] => N [SEARCHABLE] => N [FILTRABLE] => N [IS_REQUIRED] => N [VERSION] => 1 [USER_TYPE] => [USER_TYPE_SETTINGS] => Array ( ) [HINT] => [~NAME] => Высота промежуточной секции, мм [~DEFAULT_VALUE] => [VALUE_ENUM] => [VALUE_XML_ID] => [VALUE_SORT] => [VALUE] => [PROPERTY_VALUE_ID] => [DESCRIPTION] => [~DESCRIPTION] => [~VALUE] => ) [DEFEND_POKRYTIE] => Array ( [ID] => 171 [IBLOCK_ID] => 2 [NAME] => Защитное покрытие [ACTIVE] => Y [SORT] => 500 [CODE] => DEFEND_POKRYTIE [DEFAULT_VALUE] => [PROPERTY_TYPE] => S [ROW_COUNT] => 1 [COL_COUNT] => 30 [LIST_TYPE] => L [MULTIPLE] => N [XML_ID] => [FILE_TYPE] => [MULTIPLE_CNT] => 5 [LINK_IBLOCK_ID] => 0 [WITH_DESCRIPTION] => N [SEARCHABLE] => N [FILTRABLE] => N [IS_REQUIRED] => N [VERSION] => 1 [USER_TYPE] => [USER_TYPE_SETTINGS] => Array ( ) [HINT] => [~NAME] => Защитное покрытие [~DEFAULT_VALUE] => [VALUE_ENUM] => [VALUE_XML_ID] => [VALUE_SORT] => [VALUE] => [PROPERTY_VALUE_ID] => [DESCRIPTION] => [~DESCRIPTION] => [~VALUE] => ) [WIND_REGION] => Array ( [ID] => 172 [IBLOCK_ID] => 2 [NAME] => Ветровой район [ACTIVE] => Y [SORT] => 500 [CODE] => WIND_REGION [DEFAULT_VALUE] => [PROPERTY_TYPE] => S [ROW_COUNT] => 1 [COL_COUNT] => 30 [LIST_TYPE] => L [MULTIPLE] => N [XML_ID] => [FILE_TYPE] => [MULTIPLE_CNT] => 5 [LINK_IBLOCK_ID] => 0 [WITH_DESCRIPTION] => N [SEARCHABLE] => N [FILTRABLE] => N [IS_REQUIRED] => N [VERSION] => 1 [USER_TYPE] => [USER_TYPE_SETTINGS] => Array ( ) [HINT] => [~NAME] => Ветровой район [~DEFAULT_VALUE] => [VALUE_ENUM] => [VALUE_XML_ID] => [VALUE_SORT] => [VALUE] => [PROPERTY_VALUE_ID] => [DESCRIPTION] => [~DESCRIPTION] => [~VALUE] => ) [DIAMETER_OPOR_FLANCA] => Array ( [ID] => 173 [IBLOCK_ID] => 2 [NAME] => Диаметр опорного фланца, мм [ACTIVE] => Y [SORT] => 500 [CODE] => DIAMETER_OPOR_FLANCA [DEFAULT_VALUE] => [PROPERTY_TYPE] => S [ROW_COUNT] => 1 [COL_COUNT] => 30 [LIST_TYPE] => L [MULTIPLE] => N [XML_ID] => [FILE_TYPE] => [MULTIPLE_CNT] => 5 [LINK_IBLOCK_ID] => 0 [WITH_DESCRIPTION] => N [SEARCHABLE] => N [FILTRABLE] => N [IS_REQUIRED] => N [VERSION] => 1 [USER_TYPE] => [USER_TYPE_SETTINGS] => Array ( ) [HINT] => [~NAME] => Диаметр опорного фланца, мм [~DEFAULT_VALUE] => [VALUE_ENUM] => [VALUE_XML_ID] => [VALUE_SORT] => [VALUE] => [PROPERTY_VALUE_ID] => [DESCRIPTION] => [~DESCRIPTION] => [~VALUE] => ) [CENTER_DIST] => Array ( [ID] => 174 [IBLOCK_ID] => 2 [NAME] => Межцентровое расстояние, мм [ACTIVE] => Y [SORT] => 500 [CODE] => CENTER_DIST [DEFAULT_VALUE] => [PROPERTY_TYPE] => S [ROW_COUNT] => 1 [COL_COUNT] => 30 [LIST_TYPE] => L [MULTIPLE] => N [XML_ID] => [FILE_TYPE] => [MULTIPLE_CNT] => 5 [LINK_IBLOCK_ID] => 0 [WITH_DESCRIPTION] => N [SEARCHABLE] => N [FILTRABLE] => N [IS_REQUIRED] => N [VERSION] => 1 [USER_TYPE] => [USER_TYPE_SETTINGS] => Array ( ) [HINT] => [~NAME] => Межцентровое расстояние, мм [~DEFAULT_VALUE] => [VALUE_ENUM] => [VALUE_XML_ID] => [VALUE_SORT] => [VALUE] => [PROPERTY_VALUE_ID] => [DESCRIPTION] => [~DESCRIPTION] => [~VALUE] => ) [FLANEC_THICKNESS] => Array ( [ID] => 175 [IBLOCK_ID] => 2 [NAME] => Толщина фланца, мм [ACTIVE] => Y [SORT] => 500 [CODE] => FLANEC_THICKNESS [DEFAULT_VALUE] => [PROPERTY_TYPE] => S [ROW_COUNT] => 1 [COL_COUNT] => 30 [LIST_TYPE] => L [MULTIPLE] => N [XML_ID] => [FILE_TYPE] => [MULTIPLE_CNT] => 5 [LINK_IBLOCK_ID] => 0 [WITH_DESCRIPTION] => N [SEARCHABLE] => N [FILTRABLE] => N [IS_REQUIRED] => N [VERSION] => 1 [USER_TYPE] => [USER_TYPE_SETTINGS] => Array ( ) [HINT] => [~NAME] => Толщина фланца, мм [~DEFAULT_VALUE] => [VALUE_ENUM] => [VALUE_XML_ID] => [VALUE_SORT] => [VALUE] => [PROPERTY_VALUE_ID] => [DESCRIPTION] => [~DESCRIPTION] => [~VALUE] => ) [COUNT_HOLE] => Array ( [ID] => 176 [IBLOCK_ID] => 2 [NAME] => Количество отверстий крепления, шт [ACTIVE] => Y [SORT] => 500 [CODE] => COUNT_HOLE [DEFAULT_VALUE] => [PROPERTY_TYPE] => S [ROW_COUNT] => 1 [COL_COUNT] => 30 [LIST_TYPE] => L [MULTIPLE] => N [XML_ID] => [FILE_TYPE] => [MULTIPLE_CNT] => 5 [LINK_IBLOCK_ID] => 0 [WITH_DESCRIPTION] => N [SEARCHABLE] => N [FILTRABLE] => N [IS_REQUIRED] => N [VERSION] => 1 [USER_TYPE] => [USER_TYPE_SETTINGS] => Array ( ) [HINT] => [~NAME] => Количество отверстий крепления, шт [~DEFAULT_VALUE] => [VALUE_ENUM] => [VALUE_XML_ID] => [VALUE_SORT] => [VALUE] => [PROPERTY_VALUE_ID] => [DESCRIPTION] => [~DESCRIPTION] => [~VALUE] => ) [INSPECTION_WINDOW] => Array ( [ID] => 179 [IBLOCK_ID] => 2 [NAME] => Ревизионное окно, мм [ACTIVE] => Y [SORT] => 500 [CODE] => INSPECTION_WINDOW [DEFAULT_VALUE] => [PROPERTY_TYPE] => S [ROW_COUNT] => 1 [COL_COUNT] => 30 [LIST_TYPE] => L [MULTIPLE] => N [XML_ID] => [FILE_TYPE] => [MULTIPLE_CNT] => 5 [LINK_IBLOCK_ID] => 0 [WITH_DESCRIPTION] => N [SEARCHABLE] => N [FILTRABLE] => N [IS_REQUIRED] => N [VERSION] => 1 [USER_TYPE] => [USER_TYPE_SETTINGS] => Array ( ) [HINT] => [~NAME] => Ревизионное окно, мм [~DEFAULT_VALUE] => [VALUE_ENUM] => [VALUE_XML_ID] => [VALUE_SORT] => [VALUE] => [PROPERTY_VALUE_ID] => [DESCRIPTION] => [~DESCRIPTION] => [~VALUE] => ) [THREE_MODEL] => Array ( [ID] => 182 [IBLOCK_ID] => 2 [NAME] => 3D-модель [ACTIVE] => Y [SORT] => 500 [CODE] => THREE_MODEL [DEFAULT_VALUE] => [PROPERTY_TYPE] => F [ROW_COUNT] => 1 [COL_COUNT] => 30 [LIST_TYPE] => L [MULTIPLE] => N [XML_ID] => [FILE_TYPE] => [MULTIPLE_CNT] => 5 [LINK_IBLOCK_ID] => 0 [WITH_DESCRIPTION] => N [SEARCHABLE] => N [FILTRABLE] => N [IS_REQUIRED] => N [VERSION] => 1 [USER_TYPE] => [USER_TYPE_SETTINGS] => Array ( ) [HINT] => [~NAME] => 3D-модель [~DEFAULT_VALUE] => [VALUE_ENUM] => [VALUE_XML_ID] => [VALUE_SORT] => [VALUE] => [PROPERTY_VALUE_ID] => [DESCRIPTION] => [~DESCRIPTION] => [~VALUE] => ) [FAQ] => Array ( [ID] => 183 [IBLOCK_ID] => 2 [NAME] => FAQ [ACTIVE] => Y [SORT] => 500 [CODE] => FAQ [DEFAULT_VALUE] => Array ( [TYPE] => TEXT [TEXT] => ) [PROPERTY_TYPE] => S [ROW_COUNT] => 1 [COL_COUNT] => 30 [LIST_TYPE] => L [MULTIPLE] => N [XML_ID] => [FILE_TYPE] => [MULTIPLE_CNT] => 5 [LINK_IBLOCK_ID] => 0 [WITH_DESCRIPTION] => N [SEARCHABLE] => N [FILTRABLE] => N [IS_REQUIRED] => N [VERSION] => 1 [USER_TYPE] => HTML [USER_TYPE_SETTINGS] => Array ( [height] => 200 ) [HINT] => [~NAME] => FAQ [~DEFAULT_VALUE] => Array ( [TYPE] => TEXT [TEXT] => ) [VALUE_ENUM] => [VALUE_XML_ID] => [VALUE_SORT] => [VALUE] => [PROPERTY_VALUE_ID] => [DESCRIPTION] => [~DESCRIPTION] => [~VALUE] => ) ) [DISPLAY_PROPERTIES] => Array ( [ITEM_PRICE] => Array ( [ID] => 22 [IBLOCK_ID] => 2 [NAME] => Цена [ACTIVE] => Y [SORT] => 3 [CODE] => ITEM_PRICE [DEFAULT_VALUE] => [PROPERTY_TYPE] => L [ROW_COUNT] => 1 [COL_COUNT] => 30 [LIST_TYPE] => L [MULTIPLE] => N [XML_ID] => 22 [FILE_TYPE] => [MULTIPLE_CNT] => 5 [LINK_IBLOCK_ID] => 0 [WITH_DESCRIPTION] => N [SEARCHABLE] => N [FILTRABLE] => N [IS_REQUIRED] => Y [VERSION] => 1 [USER_TYPE] => [USER_TYPE_SETTINGS] => Array ( ) [HINT] => [~NAME] => Цена [~DEFAULT_VALUE] => [VALUE_ENUM] => По запросу [VALUE_XML_ID] => on-request [VALUE_SORT] => 1 [VALUE] => По запросу [PROPERTY_VALUE_ID] => 6825488 [VALUE_ENUM_ID] => 9 [DESCRIPTION] => [~VALUE] => По запросу [~DESCRIPTION] => [DISPLAY_VALUE] => По запросу ) [ITEM_CHARACTERISTICS] => Array ( [ID] => 28 [IBLOCK_ID] => 2 [NAME] => Характеристики [ACTIVE] => Y [SORT] => 6 [CODE] => ITEM_CHARACTERISTICS [DEFAULT_VALUE] => [PROPERTY_TYPE] => S [ROW_COUNT] => 1 [COL_COUNT] => 20 [LIST_TYPE] => L [MULTIPLE] => Y [XML_ID] => 28 [FILE_TYPE] => [MULTIPLE_CNT] => 1 [LINK_IBLOCK_ID] => 0 [WITH_DESCRIPTION] => Y [SEARCHABLE] => N [FILTRABLE] => N [IS_REQUIRED] => N [VERSION] => 1 [USER_TYPE] => [USER_TYPE_SETTINGS] => Array ( ) [HINT] => [~NAME] => Характеристики [~DEFAULT_VALUE] => [VALUE_ENUM] => [VALUE_XML_ID] => [VALUE_SORT] => [VALUE] => Array ( [0] => одноцепная [1] => 23200 [2] => 10500 [3] => 400 [4] => 1700 [5] => концевая опора [6] => горячее цинкование [7] => Порошковое / полимерное окрашивание [8] => 30 лет [9] => фланцевая [10] => граненая ) [PROPERTY_VALUE_ID] => Array ( [0] => 6821582 [1] => 6821583 [2] => 6821584 [3] => 6821585 [4] => 6821586 [5] => 6821587 [6] => 6821588 [7] => 6821589 [8] => 6821590 [9] => 6825489 [10] => 6825490 ) [DESCRIPTION] => Array ( [0] => Конструкция [1] => Высота, мм [2] => Высота до нижней траверсы, мм [3] => Диаметр верхний, мм [4] => Диаметр нижний, мм [5] => Назначение [6] => Защитное покрытие [7] => Лакокрасочное покрытие [8] => Срок службы [9] => Способ установки [10] => Способ производства ) [~VALUE] => Array ( [0] => одноцепная [1] => 23200 [2] => 10500 [3] => 400 [4] => 1700 [5] => концевая опора [6] => горячее цинкование [7] => Порошковое / полимерное окрашивание [8] => 30 лет [9] => фланцевая [10] => граненая ) [~DESCRIPTION] => Array ( [0] => Конструкция [1] => Высота, мм [2] => Высота до нижней траверсы, мм [3] => Диаметр верхний, мм [4] => Диаметр нижний, мм [5] => Назначение [6] => Защитное покрытие [7] => Лакокрасочное покрытие [8] => Срок службы [9] => Способ установки [10] => Способ производства ) [DISPLAY_VALUE] => Array ( [0] => одноцепная [1] => 23200 [2] => 10500 [3] => 400 [4] => 1700 [5] => концевая опора [6] => горячее цинкование [7] => Порошковое / полимерное окрашивание [8] => 30 лет [9] => фланцевая [10] => граненая ) ) ) [PRODUCT_PROPERTIES] => Array ( ) [PRODUCT_PROPERTIES_FILL] => Array ( ) [OFFERS] => Array ( ) [OFFER_ID_SELECTED] => 0 [CHECK_QUANTITY] => [ITEM_PRICE_MODE] => [ITEM_PRICES] => Array ( ) [ITEM_QUANTITY_RANGES] => Array ( ) [ITEM_MEASURE_RATIOS] => Array ( [2875] => Array ( [ID] => 2875 [RATIO] => 1 [IS_DEFAULT] => Y [PRODUCT_ID] => 15382 ) ) [ITEM_MEASURE] => Array ( [ID] => 5 [TITLE] => шт [~TITLE] => шт ) [ITEM_MEASURE_RATIO_SELECTED] => 2875 [ITEM_QUANTITY_RANGE_SELECTED] => [ITEM_PRICE_SELECTED] => [EDIT_LINK] => [DELETE_LINK] => [SECTION] => Array ( [PATH] => Array ( ) ) [CAN_BUY] => )
В наличии
Способ установки: фланцевая
Способ производства: граненая
Высота, мм: 26900
Цена по запросу
Array
(
    [ID] => 15371
    [~ID] => 15371
    [IBLOCK_ID] => 2
    [~IBLOCK_ID] => 2
    [CODE] => pm110-1-f-2
    [~CODE] => pm110-1-f-2
    [XML_ID] => 15371
    [~XML_ID] => 15371
    [NAME] => Многогранная опора ПМ110-1 ф.2
    [~NAME] => Многогранная опора ПМ110-1 ф.2
    [ACTIVE] => Y
    [~ACTIVE] => Y
    [DATE_ACTIVE_FROM] => 
    [~DATE_ACTIVE_FROM] => 
    [DATE_ACTIVE_TO] => 
    [~DATE_ACTIVE_TO] => 
    [SORT] => 1
    [~SORT] => 1
    [PREVIEW_TEXT] => 
    [~PREVIEW_TEXT] => 
    [PREVIEW_TEXT_TYPE] => text
    [~PREVIEW_TEXT_TYPE] => text
    [DETAIL_TEXT] => 

Опоры многогранные одноцепные промежуточные ПМ110-1Ф.2 представляют собой одностоечные свободностоящие конструкции для строительства воздушных линий электропередачи напряжением 110 кВ. Изделие производится по типовому проекту 22.0099.2 и предназначено для восприятия проектных нагрузок от веса проводов и изоляционной подвески. Конструкция высотой 26,9 метра имеет граненый конический ствол с диаметром 720 мм в нижней части и 240 мм в верхней. Высота до нижней траверсы составляет 17,2 метра, что обеспечивает необходимый габарит для подвески проводов. Опоры оснащены тросостойкой для крепления одного грозотроса и запроектированы со смешанной схемой расположения фаз. Материалом изготовления служит углеродистая сталь марки С245, допускающая эксплуатацию при температуре до –40 °С.

Монтаж опоры ПМ110-1Ф.2 в рабочее положение осуществляется с помощью фланцевого соединения с фундаментом. Конструкция устанавливается на предварительно подготовленный и рассчитанный фундамент, обеспечивающий надежную передачу всех эксплуатационных нагрузок в грунт. Все монтажные работы должны выполняться в строгом соответствии с проектной документацией.

Для обеспечения долговечности и защиты от коррозии все детали конструкции опоры защищены методом горячего цинкования. Данное покрытие обеспечивает эффективную антикоррозионную защиту на весь срок службы в условиях атмосферного воздействия. По дополнительному требованию заказчика может быть нанесено полимерно-порошковое лакокрасочное покрытие.

[~DETAIL_TEXT] =>

Опоры многогранные одноцепные промежуточные ПМ110-1Ф.2 представляют собой одностоечные свободностоящие конструкции для строительства воздушных линий электропередачи напряжением 110 кВ. Изделие производится по типовому проекту 22.0099.2 и предназначено для восприятия проектных нагрузок от веса проводов и изоляционной подвески. Конструкция высотой 26,9 метра имеет граненый конический ствол с диаметром 720 мм в нижней части и 240 мм в верхней. Высота до нижней траверсы составляет 17,2 метра, что обеспечивает необходимый габарит для подвески проводов. Опоры оснащены тросостойкой для крепления одного грозотроса и запроектированы со смешанной схемой расположения фаз. Материалом изготовления служит углеродистая сталь марки С245, допускающая эксплуатацию при температуре до –40 °С.

Монтаж опоры ПМ110-1Ф.2 в рабочее положение осуществляется с помощью фланцевого соединения с фундаментом. Конструкция устанавливается на предварительно подготовленный и рассчитанный фундамент, обеспечивающий надежную передачу всех эксплуатационных нагрузок в грунт. Все монтажные работы должны выполняться в строгом соответствии с проектной документацией.

Для обеспечения долговечности и защиты от коррозии все детали конструкции опоры защищены методом горячего цинкования. Данное покрытие обеспечивает эффективную антикоррозионную защиту на весь срок службы в условиях атмосферного воздействия. По дополнительному требованию заказчика может быть нанесено полимерно-порошковое лакокрасочное покрытие.

[DETAIL_TEXT_TYPE] => html [~DETAIL_TEXT_TYPE] => html [DATE_CREATE] => 07.11.2023 15:10:02 [~DATE_CREATE] => 07.11.2023 15:10:02 [CREATED_BY] => 1 [~CREATED_BY] => 1 [TAGS] => [~TAGS] => [TIMESTAMP_X] => 15.12.2025 12:51:22 [~TIMESTAMP_X] => 15.12.2025 12:51:22 [MODIFIED_BY] => 1 [~MODIFIED_BY] => 1 [IBLOCK_SECTION_ID] => 2756 [~IBLOCK_SECTION_ID] => 2954 [DETAIL_PAGE_URL] => /product/pm110-1-f-2/ [~DETAIL_PAGE_URL] => /product/pm110-1-f-2/ [DETAIL_PICTURE] => [~DETAIL_PICTURE] => [PREVIEW_PICTURE] => Array ( [ID] => 35289 [TIMESTAMP_X] => 15.12.2025 12:51:22 [MODULE_ID] => iblock [HEIGHT] => 1000 [WIDTH] => 1000 [FILE_SIZE] => 125104 [CONTENT_TYPE] => image/jpeg [SUBDIR] => iblock/c9f/n4lkcdc57v7910ml3sdo28ckmli4e7n1 [FILE_NAME] => catalog_file_2092_l.jpg [ORIGINAL_NAME] => catalog-file-2092-l.jpg [DESCRIPTION] => [HANDLER_ID] => [EXTERNAL_ID] => e01ebad8d40e0989b93c0286751a31ff [VERSION_ORIGINAL_ID] => [META] => [SRC] => /upload/dev2fun.imagecompress/webp/iblock/c9f/n4lkcdc57v7910ml3sdo28ckmli4e7n1/catalog_file_2092_l.webp [UNSAFE_SRC] => /upload/dev2fun.imagecompress/webp/iblock/c9f/n4lkcdc57v7910ml3sdo28ckmli4e7n1/catalog_file_2092_l.webp [SAFE_SRC] => /upload/dev2fun.imagecompress/webp/iblock/c9f/n4lkcdc57v7910ml3sdo28ckmli4e7n1/catalog_file_2092_l.webp [ALT] => Многогранная опора ПМ110-1 ф.2 [TITLE] => Многогранная опора ПМ110-1 ф.2 ) [~PREVIEW_PICTURE] => 35289 [LANG_DIR] => / [~LANG_DIR] => / [EXTERNAL_ID] => 15371 [~EXTERNAL_ID] => 15371 [IBLOCK_TYPE_ID] => catalog [~IBLOCK_TYPE_ID] => catalog [IBLOCK_CODE] => metalstructures [~IBLOCK_CODE] => metalstructures [IBLOCK_EXTERNAL_ID] => clothes [~IBLOCK_EXTERNAL_ID] => clothes [LID] => s1 [~LID] => s1 [IPROPERTY_VALUES] => Array ( [ELEMENT_META_TITLE] => Многогранная опора ПМ110-1 ф.2 для высоковольтных линий 110 кВ купить в {{rp}} на сайте производителя НПО Легион [ELEMENT_META_DESCRIPTION] => Производство стальных многогранных опор ПМ110-1 ф.2 для высоковольтных линий 110 кВ по шифру 22.0099.2 в {{rp}}. Заказать многогранные опоры ЛЭП у производителя НПО Легион. Наличие товара на складе. Звоните ☎ {{subdomain_tel}} [ELEMENT_META_KEYWORDS] => Многоранные опоры ПМ110-1 ф.2 ЛЭП производство продажа купить многогранные ВЛ 110кВ для линий электропередач шифру 22.0099.2 [SECTION_META_TITLE] => Многогранные опоры ВЛ 110 кВ по шифру 22.0099.2 купить в {{rp}} на сайте производителя НПО Легион [SECTION_META_DESCRIPTION] => Производство многогранных опор ВЛ 110 кВ по шифру 22.0099.2. Купить напрямую у производителя в {{rp}}. Собственное производство. Наличие товара на складе. Звоните ☎ {{subdomain_tel}} [SECTION_META_KEYWORDS] => Многоранные опоры ЛЭП производство продажа купить многогранные ВЛ 110 кВ по шифру 22.0099.2 для линий электропередач [ELEMENT_DETAIL_PICTURE_FILE_NAME] => [ELEMENT_PREVIEW_PICTURE_FILE_NAME] => [SECTION_DETAIL_PICTURE_FILE_NAME] => [SECTION_PICTURE_FILE_NAME] => [SECTION_PAGE_TITLE] => Многогранная опора ПМ110-1 ф.2 [ELEMENT_PAGE_TITLE] => Многогранная опора ПМ110-1 ф.2 ) [PRODUCT] => Array ( [TYPE] => 1 [AVAILABLE] => Y [BUNDLE] => N [QUANTITY] => 10 [QUANTITY_TRACE] => N [CAN_BUY_ZERO] => Y [MEASURE] => 5 [SUBSCRIBE] => Y [VAT_ID] => 0 [VAT_RATE] => 0 [VAT_INCLUDED] => N [WEIGHT] => 0 [WIDTH] => 0 [LENGTH] => 0 [HEIGHT] => 0 [PAYMENT_TYPE] => S [RECUR_SCHEME_TYPE] => D [RECUR_SCHEME_LENGTH] => 0 [TRIAL_PRICE_ID] => 0 [USE_OFFERS] => ) [~CATALOG_TYPE] => 1 [CATALOG_TYPE] => 1 [~CATALOG_QUANTITY] => 10 [CATALOG_QUANTITY] => 10 [~CATALOG_QUANTITY_TRACE] => N [CATALOG_QUANTITY_TRACE] => N [~CATALOG_CAN_BUY_ZERO] => Y [CATALOG_CAN_BUY_ZERO] => Y [~CATALOG_SUBSCRIBE] => Y [CATALOG_SUBSCRIBE] => Y [PROPERTIES] => Array ( [ITEM_DELIVERY] => Array ( [ID] => 20 [IBLOCK_ID] => 2 [NAME] => Доставка [ACTIVE] => Y [SORT] => 1 [CODE] => ITEM_DELIVERY [DEFAULT_VALUE] => [PROPERTY_TYPE] => L [ROW_COUNT] => 1 [COL_COUNT] => 30 [LIST_TYPE] => L [MULTIPLE] => N [XML_ID] => 20 [FILE_TYPE] => [MULTIPLE_CNT] => 5 [LINK_IBLOCK_ID] => 0 [WITH_DESCRIPTION] => N [SEARCHABLE] => N [FILTRABLE] => N [IS_REQUIRED] => Y [VERSION] => 1 [USER_TYPE] => [USER_TYPE_SETTINGS] => Array ( ) [HINT] => [~NAME] => Доставка [~DEFAULT_VALUE] => [VALUE_ENUM] => По России и СНГ [VALUE_XML_ID] => ru-sng [VALUE_SORT] => 1 [VALUE] => По России и СНГ [PROPERTY_VALUE_ID] => 6825516 [VALUE_ENUM_ID] => 7 [DESCRIPTION] => [~VALUE] => По России и СНГ [~DESCRIPTION] => ) [ITEM_PAYMENT] => Array ( [ID] => 21 [IBLOCK_ID] => 2 [NAME] => Оплата [ACTIVE] => Y [SORT] => 2 [CODE] => ITEM_PAYMENT [DEFAULT_VALUE] => [PROPERTY_TYPE] => L [ROW_COUNT] => 1 [COL_COUNT] => 30 [LIST_TYPE] => L [MULTIPLE] => N [XML_ID] => 21 [FILE_TYPE] => [MULTIPLE_CNT] => 5 [LINK_IBLOCK_ID] => 0 [WITH_DESCRIPTION] => N [SEARCHABLE] => N [FILTRABLE] => N [IS_REQUIRED] => Y [VERSION] => 1 [USER_TYPE] => [USER_TYPE_SETTINGS] => Array ( ) [HINT] => [~NAME] => Оплата [~DEFAULT_VALUE] => [VALUE_ENUM] => Безналичный расчет [VALUE_XML_ID] => payment-bank [VALUE_SORT] => 1 [VALUE] => Безналичный расчет [PROPERTY_VALUE_ID] => 6825517 [VALUE_ENUM_ID] => 8 [DESCRIPTION] => [~VALUE] => Безналичный расчет [~DESCRIPTION] => ) [ITEM_PRICE] => Array ( [ID] => 22 [IBLOCK_ID] => 2 [NAME] => Цена [ACTIVE] => Y [SORT] => 3 [CODE] => ITEM_PRICE [DEFAULT_VALUE] => [PROPERTY_TYPE] => L [ROW_COUNT] => 1 [COL_COUNT] => 30 [LIST_TYPE] => L [MULTIPLE] => N [XML_ID] => 22 [FILE_TYPE] => [MULTIPLE_CNT] => 5 [LINK_IBLOCK_ID] => 0 [WITH_DESCRIPTION] => N [SEARCHABLE] => N [FILTRABLE] => N [IS_REQUIRED] => Y [VERSION] => 1 [USER_TYPE] => [USER_TYPE_SETTINGS] => Array ( ) [HINT] => [~NAME] => Цена [~DEFAULT_VALUE] => [VALUE_ENUM] => По запросу [VALUE_XML_ID] => on-request [VALUE_SORT] => 1 [VALUE] => По запросу [PROPERTY_VALUE_ID] => 6825518 [VALUE_ENUM_ID] => 9 [DESCRIPTION] => [~VALUE] => По запросу [~DESCRIPTION] => ) [ITEM_IMAGES] => Array ( [ID] => 23 [IBLOCK_ID] => 2 [NAME] => Изображения [ACTIVE] => Y [SORT] => 4 [CODE] => ITEM_IMAGES [DEFAULT_VALUE] => [PROPERTY_TYPE] => F [ROW_COUNT] => 1 [COL_COUNT] => 30 [LIST_TYPE] => L [MULTIPLE] => Y [XML_ID] => 23 [FILE_TYPE] => [MULTIPLE_CNT] => 5 [LINK_IBLOCK_ID] => 0 [WITH_DESCRIPTION] => N [SEARCHABLE] => N [FILTRABLE] => N [IS_REQUIRED] => N [VERSION] => 1 [USER_TYPE] => [USER_TYPE_SETTINGS] => Array ( ) [HINT] => [~NAME] => Изображения [~DEFAULT_VALUE] => [VALUE_ENUM] => [VALUE_XML_ID] => [VALUE_SORT] => [VALUE] => Array ( [0] => 35290 ) [PROPERTY_VALUE_ID] => Array ( [0] => 5933002 ) [DESCRIPTION] => Array ( [0] => ) [~VALUE] => Array ( [0] => 35290 ) [~DESCRIPTION] => Array ( [0] => ) ) [ITEM_PROPERTIES] => Array ( [ID] => 24 [IBLOCK_ID] => 2 [NAME] => Свойства [ACTIVE] => Y [SORT] => 5 [CODE] => ITEM_PROPERTIES [DEFAULT_VALUE] => [PROPERTY_TYPE] => E [ROW_COUNT] => 1 [COL_COUNT] => 30 [LIST_TYPE] => L [MULTIPLE] => Y [XML_ID] => 24 [FILE_TYPE] => [MULTIPLE_CNT] => 1 [LINK_IBLOCK_ID] => 3 [WITH_DESCRIPTION] => N [SEARCHABLE] => N [FILTRABLE] => N [IS_REQUIRED] => N [VERSION] => 1 [USER_TYPE] => [USER_TYPE_SETTINGS] => Array ( ) [HINT] => [~NAME] => Свойства [~DEFAULT_VALUE] => [VALUE_ENUM] => [VALUE_XML_ID] => [VALUE_SORT] => [VALUE] => [PROPERTY_VALUE_ID] => [DESCRIPTION] => [~DESCRIPTION] => [~VALUE] => ) [ITEM_CHARACTERISTICS] => Array ( [ID] => 28 [IBLOCK_ID] => 2 [NAME] => Характеристики [ACTIVE] => Y [SORT] => 6 [CODE] => ITEM_CHARACTERISTICS [DEFAULT_VALUE] => [PROPERTY_TYPE] => S [ROW_COUNT] => 1 [COL_COUNT] => 20 [LIST_TYPE] => L [MULTIPLE] => Y [XML_ID] => 28 [FILE_TYPE] => [MULTIPLE_CNT] => 1 [LINK_IBLOCK_ID] => 0 [WITH_DESCRIPTION] => Y [SEARCHABLE] => N [FILTRABLE] => N [IS_REQUIRED] => N [VERSION] => 1 [USER_TYPE] => [USER_TYPE_SETTINGS] => Array ( ) [HINT] => [~NAME] => Характеристики [~DEFAULT_VALUE] => [VALUE_ENUM] => [VALUE_XML_ID] => [VALUE_SORT] => [VALUE] => Array ( [0] => фланцевая [1] => граненая [2] => 26900 [3] => 17200 [4] => 720 [5] => 240 [6] => одностоечная свободностоящая [7] => горячее цинкование [8] => Порошковое / полимерное окрашивание [9] => 30 лет [10] => промежуточная ) [PROPERTY_VALUE_ID] => Array ( [0] => 6823951 [1] => 6823952 [2] => 6823953 [3] => 6823954 [4] => 6823955 [5] => 6823956 [6] => 6823957 [7] => 6823958 [8] => 6823959 [9] => 6823960 [10] => 6825519 ) [DESCRIPTION] => Array ( [0] => Способ установки [1] => Способ производства [2] => Высота, мм [3] => Высота до нижней траверсы, мм [4] => Диаметр нижний, мм [5] => Диаметр верхний, мм [6] => Конструкция [7] => Защитное покрытие [8] => Лакокрасочное покрытие [9] => Срок службы [10] => Назначение ) [~VALUE] => Array ( [0] => фланцевая [1] => граненая [2] => 26900 [3] => 17200 [4] => 720 [5] => 240 [6] => одностоечная свободностоящая [7] => горячее цинкование [8] => Порошковое / полимерное окрашивание [9] => 30 лет [10] => промежуточная ) [~DESCRIPTION] => Array ( [0] => Способ установки [1] => Способ производства [2] => Высота, мм [3] => Высота до нижней траверсы, мм [4] => Диаметр нижний, мм [5] => Диаметр верхний, мм [6] => Конструкция [7] => Защитное покрытие [8] => Лакокрасочное покрытие [9] => Срок службы [10] => Назначение ) ) [ITEM_FILTER] => Array ( [ID] => 40 [IBLOCK_ID] => 2 [NAME] => Фильтр [ACTIVE] => Y [SORT] => 7 [CODE] => ITEM_FILTER [DEFAULT_VALUE] => [PROPERTY_TYPE] => S [ROW_COUNT] => 1 [COL_COUNT] => 30 [LIST_TYPE] => L [MULTIPLE] => N [XML_ID] => 40 [FILE_TYPE] => [MULTIPLE_CNT] => 5 [LINK_IBLOCK_ID] => 0 [WITH_DESCRIPTION] => N [SEARCHABLE] => N [FILTRABLE] => N [IS_REQUIRED] => N [VERSION] => 1 [USER_TYPE] => [USER_TYPE_SETTINGS] => Array ( ) [HINT] => [~NAME] => Фильтр [~DEFAULT_VALUE] => [VALUE_ENUM] => [VALUE_XML_ID] => [VALUE_SORT] => [VALUE] => [PROPERTY_VALUE_ID] => [DESCRIPTION] => [~DESCRIPTION] => [~VALUE] => ) [ITEM_TECH_CH] => Array ( [ID] => 29 [IBLOCK_ID] => 2 [NAME] => Технические характеристики [ACTIVE] => Y [SORT] => 8 [CODE] => ITEM_TECH_CH [DEFAULT_VALUE] => Array ( [TYPE] => HTML [TEXT] => ) [PROPERTY_TYPE] => S [ROW_COUNT] => 1 [COL_COUNT] => 30 [LIST_TYPE] => L [MULTIPLE] => N [XML_ID] => 29 [FILE_TYPE] => [MULTIPLE_CNT] => 5 [LINK_IBLOCK_ID] => 0 [WITH_DESCRIPTION] => N [SEARCHABLE] => N [FILTRABLE] => N [IS_REQUIRED] => N [VERSION] => 1 [USER_TYPE] => HTML [USER_TYPE_SETTINGS] => Array ( [height] => 200 ) [HINT] => [~NAME] => Технические характеристики [~DEFAULT_VALUE] => Array ( [TYPE] => HTML [TEXT] => ) [VALUE_ENUM] => [VALUE_XML_ID] => [VALUE_SORT] => [VALUE] => Array ( [TEXT] => <p style="text-align: justify;"> Конструкция применяется в качестве промежуточных опор на прямых участках трассы воздушных линий электропередачи класса напряжения 110 кВ. Опоры используются для подвески проводов и тросов в нормальных режимах работы линии, воспринимая постоянные и временные нагрузки. Данная модель востребована при строительстве новых и реконструкции существующих одноцепных ЛЭП 110 кВ. Конструкция рассчитана на эксплуатацию в регионах с холодным климатом. </p> [TYPE] => HTML ) [PROPERTY_VALUE_ID] => 6823964 [DESCRIPTION] => [~VALUE] => Array ( [TEXT] =>

Конструкция применяется в качестве промежуточных опор на прямых участках трассы воздушных линий электропередачи класса напряжения 110 кВ. Опоры используются для подвески проводов и тросов в нормальных режимах работы линии, воспринимая постоянные и временные нагрузки. Данная модель востребована при строительстве новых и реконструкции существующих одноцепных ЛЭП 110 кВ. Конструкция рассчитана на эксплуатацию в регионах с холодным климатом.

[TYPE] => HTML ) [~DESCRIPTION] => ) [ITEM_ADV_DESCR] => Array ( [ID] => 30 [IBLOCK_ID] => 2 [NAME] => Преимущества (описание) [ACTIVE] => Y [SORT] => 9 [CODE] => ITEM_ADV_DESCR [DEFAULT_VALUE] => Array ( [TYPE] => HTML [TEXT] => ) [PROPERTY_TYPE] => S [ROW_COUNT] => 1 [COL_COUNT] => 30 [LIST_TYPE] => L [MULTIPLE] => N [XML_ID] => 30 [FILE_TYPE] => [MULTIPLE_CNT] => 5 [LINK_IBLOCK_ID] => 0 [WITH_DESCRIPTION] => N [SEARCHABLE] => N [FILTRABLE] => N [IS_REQUIRED] => N [VERSION] => 1 [USER_TYPE] => HTML [USER_TYPE_SETTINGS] => Array ( [height] => 100 ) [HINT] => [~NAME] => Преимущества (описание) [~DEFAULT_VALUE] => Array ( [TYPE] => HTML [TEXT] => ) [VALUE_ENUM] => [VALUE_XML_ID] => [VALUE_SORT] => [VALUE] => Array ( [TEXT] => <p style="text-align: justify;"> Ключевым преимуществом является высокая надежность и прочность, заложенные в типовом проекте 22.0099.2, что подтверждается расчетами на восприятие всех проектных нагрузок. Коническая граненая форма ствола обеспечивает высокую устойчивость при оптимальной материалоемкости. Использование стали С245 и горячего цинкования гарантирует долговечность и стойкость к низким температурам. Фланцевое соединение обеспечивает технологичный, точный и надежный монтаж. </p> [TYPE] => HTML ) [PROPERTY_VALUE_ID] => 6823965 [DESCRIPTION] => [~VALUE] => Array ( [TEXT] =>

Ключевым преимуществом является высокая надежность и прочность, заложенные в типовом проекте 22.0099.2, что подтверждается расчетами на восприятие всех проектных нагрузок. Коническая граненая форма ствола обеспечивает высокую устойчивость при оптимальной материалоемкости. Использование стали С245 и горячего цинкования гарантирует долговечность и стойкость к низким температурам. Фланцевое соединение обеспечивает технологичный, точный и надежный монтаж.

[TYPE] => HTML ) [~DESCRIPTION] => ) [ITEM_ADV] => Array ( [ID] => 31 [IBLOCK_ID] => 2 [NAME] => Преимущества [ACTIVE] => Y [SORT] => 10 [CODE] => ITEM_ADV [DEFAULT_VALUE] => [PROPERTY_TYPE] => E [ROW_COUNT] => 1 [COL_COUNT] => 30 [LIST_TYPE] => L [MULTIPLE] => Y [XML_ID] => 31 [FILE_TYPE] => [MULTIPLE_CNT] => 1 [LINK_IBLOCK_ID] => 5 [WITH_DESCRIPTION] => N [SEARCHABLE] => N [FILTRABLE] => N [IS_REQUIRED] => N [VERSION] => 1 [USER_TYPE] => [USER_TYPE_SETTINGS] => Array ( ) [HINT] => [~NAME] => Преимущества [~DEFAULT_VALUE] => [VALUE_ENUM] => [VALUE_XML_ID] => [VALUE_SORT] => [VALUE] => [PROPERTY_VALUE_ID] => [DESCRIPTION] => [~DESCRIPTION] => [~VALUE] => ) [ITEM_BUY] => Array ( [ID] => 32 [IBLOCK_ID] => 2 [NAME] => Купить [ACTIVE] => Y [SORT] => 11 [CODE] => ITEM_BUY [DEFAULT_VALUE] => Array ( [TEXT] => [TYPE] => HTML ) [PROPERTY_TYPE] => S [ROW_COUNT] => 1 [COL_COUNT] => 30 [LIST_TYPE] => L [MULTIPLE] => N [XML_ID] => 32 [FILE_TYPE] => [MULTIPLE_CNT] => 5 [LINK_IBLOCK_ID] => 0 [WITH_DESCRIPTION] => N [SEARCHABLE] => N [FILTRABLE] => N [IS_REQUIRED] => N [VERSION] => 1 [USER_TYPE] => HTML [USER_TYPE_SETTINGS] => Array ( [height] => 200 ) [HINT] => [~NAME] => Купить [~DEFAULT_VALUE] => Array ( [TEXT] => [TYPE] => HTML ) [VALUE_ENUM] => [VALUE_XML_ID] => [VALUE_SORT] => [VALUE] => Array ( [TEXT] => <p style="text-align: justify;"> Приобрести многогранные одноцепные промежуточные опоры ПМ110-1Ф.2 для ВЛ 110 кВ можно напрямую у производителя — НПО «Легион». Мы гарантируем соответствие продукции типовому проекту 22.0099.2 и техническим требованиям заказчика. Для получения подробных спецификаций, консультации по монтажу и оформления заказа обратитесь к нашим специалистам.<br> Телефон: 8(800)500-51-37<br> Email: <a href="mailto:info@legionural.ru">info@legionural.ru</a> </p> <p style="text-align: justify;"> </p> <br> <br> <br> <br> <br> <br> <br> <br> <br> <br> <br> <br> <br> <br> <br> <br> <br> <br> <br> <br> <br> <br> <br> [TYPE] => HTML ) [PROPERTY_VALUE_ID] => 6823966 [DESCRIPTION] => [~VALUE] => Array ( [TEXT] =>

Приобрести многогранные одноцепные промежуточные опоры ПМ110-1Ф.2 для ВЛ 110 кВ можно напрямую у производителя — НПО «Легион». Мы гарантируем соответствие продукции типовому проекту 22.0099.2 и техническим требованиям заказчика. Для получения подробных спецификаций, консультации по монтажу и оформления заказа обратитесь к нашим специалистам.
Телефон: 8(800)500-51-37
Email: info@legionural.ru
























[TYPE] => HTML ) [~DESCRIPTION] => ) [ITEM_CERT_COR] => Array ( [ID] => 33 [IBLOCK_ID] => 2 [NAME] => Сертификаты соответствия [ACTIVE] => Y [SORT] => 12 [CODE] => ITEM_CERT_COR [DEFAULT_VALUE] => [PROPERTY_TYPE] => S [ROW_COUNT] => 1 [COL_COUNT] => 30 [LIST_TYPE] => L [MULTIPLE] => Y [XML_ID] => 33 [FILE_TYPE] => [MULTIPLE_CNT] => 1 [LINK_IBLOCK_ID] => 0 [WITH_DESCRIPTION] => Y [SEARCHABLE] => N [FILTRABLE] => N [IS_REQUIRED] => N [VERSION] => 1 [USER_TYPE] => [USER_TYPE_SETTINGS] => Array ( ) [HINT] => [~NAME] => Сертификаты соответствия [~DEFAULT_VALUE] => [VALUE_ENUM] => [VALUE_XML_ID] => [VALUE_SORT] => [VALUE] => [PROPERTY_VALUE_ID] => [DESCRIPTION] => [~DESCRIPTION] => [~VALUE] => ) [ITEM_ST_STAND] => Array ( [ID] => 34 [IBLOCK_ID] => 2 [NAME] => Государственные стандарты [ACTIVE] => Y [SORT] => 13 [CODE] => ITEM_ST_STAND [DEFAULT_VALUE] => [PROPERTY_TYPE] => S [ROW_COUNT] => 1 [COL_COUNT] => 30 [LIST_TYPE] => L [MULTIPLE] => Y [XML_ID] => 34 [FILE_TYPE] => [MULTIPLE_CNT] => 1 [LINK_IBLOCK_ID] => 0 [WITH_DESCRIPTION] => Y [SEARCHABLE] => N [FILTRABLE] => N [IS_REQUIRED] => N [VERSION] => 1 [USER_TYPE] => [USER_TYPE_SETTINGS] => Array ( ) [HINT] => [~NAME] => Государственные стандарты [~DEFAULT_VALUE] => [VALUE_ENUM] => [VALUE_XML_ID] => [VALUE_SORT] => [VALUE] => [PROPERTY_VALUE_ID] => [DESCRIPTION] => [~DESCRIPTION] => [~VALUE] => ) [ITEM_NORM] => Array ( [ID] => 35 [IBLOCK_ID] => 2 [NAME] => Строительные нормы и правила [ACTIVE] => Y [SORT] => 14 [CODE] => ITEM_NORM [DEFAULT_VALUE] => [PROPERTY_TYPE] => S [ROW_COUNT] => 1 [COL_COUNT] => 30 [LIST_TYPE] => L [MULTIPLE] => Y [XML_ID] => 35 [FILE_TYPE] => [MULTIPLE_CNT] => 1 [LINK_IBLOCK_ID] => 0 [WITH_DESCRIPTION] => Y [SEARCHABLE] => N [FILTRABLE] => N [IS_REQUIRED] => N [VERSION] => 1 [USER_TYPE] => [USER_TYPE_SETTINGS] => Array ( ) [HINT] => [~NAME] => Строительные нормы и правила [~DEFAULT_VALUE] => [VALUE_ENUM] => [VALUE_XML_ID] => [VALUE_SORT] => [VALUE] => [PROPERTY_VALUE_ID] => [DESCRIPTION] => [~DESCRIPTION] => [~VALUE] => ) [ITEM_SIMILAR] => Array ( [ID] => 36 [IBLOCK_ID] => 2 [NAME] => Похожие модели [ACTIVE] => Y [SORT] => 15 [CODE] => ITEM_SIMILAR [DEFAULT_VALUE] => [PROPERTY_TYPE] => G [ROW_COUNT] => 1 [COL_COUNT] => 30 [LIST_TYPE] => L [MULTIPLE] => Y [XML_ID] => 36 [FILE_TYPE] => [MULTIPLE_CNT] => 10 [LINK_IBLOCK_ID] => 2 [WITH_DESCRIPTION] => N [SEARCHABLE] => N [FILTRABLE] => N [IS_REQUIRED] => N [VERSION] => 1 [USER_TYPE] => [USER_TYPE_SETTINGS] => Array ( ) [HINT] => [~NAME] => Похожие модели [~DEFAULT_VALUE] => [VALUE_ENUM] => [VALUE_XML_ID] => [VALUE_SORT] => [VALUE] => [PROPERTY_VALUE_ID] => [DESCRIPTION] => [~DESCRIPTION] => [~VALUE] => ) [ITEM_SIMILAR_TAGS] => Array ( [ID] => 122 [IBLOCK_ID] => 2 [NAME] => Похожие модели (теговые) [ACTIVE] => Y [SORT] => 16 [CODE] => ITEM_SIMILAR_TAGS [DEFAULT_VALUE] => [PROPERTY_TYPE] => E [ROW_COUNT] => 1 [COL_COUNT] => 30 [LIST_TYPE] => L [MULTIPLE] => Y [XML_ID] => 122 [FILE_TYPE] => [MULTIPLE_CNT] => 1 [LINK_IBLOCK_ID] => 19 [WITH_DESCRIPTION] => N [SEARCHABLE] => N [FILTRABLE] => N [IS_REQUIRED] => N [VERSION] => 1 [USER_TYPE] => [USER_TYPE_SETTINGS] => Array ( ) [HINT] => [~NAME] => Похожие модели (теговые) [~DEFAULT_VALUE] => [VALUE_ENUM] => [VALUE_XML_ID] => [VALUE_SORT] => [VALUE] => [PROPERTY_VALUE_ID] => [DESCRIPTION] => [~DESCRIPTION] => [~VALUE] => ) [ITEM_BUY_WITH] => Array ( [ID] => 37 [IBLOCK_ID] => 2 [NAME] => С этим товаром покупают [ACTIVE] => Y [SORT] => 17 [CODE] => ITEM_BUY_WITH [DEFAULT_VALUE] => [PROPERTY_TYPE] => E [ROW_COUNT] => 1 [COL_COUNT] => 30 [LIST_TYPE] => L [MULTIPLE] => Y [XML_ID] => 37 [FILE_TYPE] => [MULTIPLE_CNT] => 1 [LINK_IBLOCK_ID] => 2 [WITH_DESCRIPTION] => N [SEARCHABLE] => N [FILTRABLE] => N [IS_REQUIRED] => N [VERSION] => 1 [USER_TYPE] => [USER_TYPE_SETTINGS] => Array ( ) [HINT] => [~NAME] => С этим товаром покупают [~DEFAULT_VALUE] => [VALUE_ENUM] => [VALUE_XML_ID] => [VALUE_SORT] => [VALUE] => [PROPERTY_VALUE_ID] => [DESCRIPTION] => [~DESCRIPTION] => [~VALUE] => ) [ITEM_VOTE_COUNT] => Array ( [ID] => 38 [IBLOCK_ID] => 2 [NAME] => Количество голосов [ACTIVE] => Y [SORT] => 18 [CODE] => ITEM_VOTE_COUNT [DEFAULT_VALUE] => 0 [PROPERTY_TYPE] => N [ROW_COUNT] => 1 [COL_COUNT] => 30 [LIST_TYPE] => L [MULTIPLE] => N [XML_ID] => 38 [FILE_TYPE] => [MULTIPLE_CNT] => 5 [LINK_IBLOCK_ID] => 0 [WITH_DESCRIPTION] => N [SEARCHABLE] => N [FILTRABLE] => N [IS_REQUIRED] => N [VERSION] => 1 [USER_TYPE] => [USER_TYPE_SETTINGS] => Array ( ) [HINT] => [~NAME] => Количество голосов [~DEFAULT_VALUE] => 0 [VALUE_ENUM] => [VALUE_XML_ID] => [VALUE_SORT] => [VALUE] => 9 [PROPERTY_VALUE_ID] => 5933003 [DESCRIPTION] => [~VALUE] => 9 [~DESCRIPTION] => ) [ITEM_RAITING] => Array ( [ID] => 39 [IBLOCK_ID] => 2 [NAME] => Рейтинг [ACTIVE] => Y [SORT] => 19 [CODE] => ITEM_RAITING [DEFAULT_VALUE] => 0 [PROPERTY_TYPE] => N [ROW_COUNT] => 1 [COL_COUNT] => 30 [LIST_TYPE] => L [MULTIPLE] => N [XML_ID] => 39 [FILE_TYPE] => [MULTIPLE_CNT] => 5 [LINK_IBLOCK_ID] => 0 [WITH_DESCRIPTION] => N [SEARCHABLE] => N [FILTRABLE] => N [IS_REQUIRED] => N [VERSION] => 1 [USER_TYPE] => [USER_TYPE_SETTINGS] => Array ( ) [HINT] => [~NAME] => Рейтинг [~DEFAULT_VALUE] => 0 [VALUE_ENUM] => [VALUE_XML_ID] => [VALUE_SORT] => [VALUE] => 4.2 [PROPERTY_VALUE_ID] => 5933004 [DESCRIPTION] => [~VALUE] => 4.2 [~DESCRIPTION] => ) [H1] => Array ( [ID] => 125 [IBLOCK_ID] => 2 [NAME] => H1 [ACTIVE] => Y [SORT] => 500 [CODE] => H1 [DEFAULT_VALUE] => [PROPERTY_TYPE] => S [ROW_COUNT] => 1 [COL_COUNT] => 70 [LIST_TYPE] => L [MULTIPLE] => N [XML_ID] => 125 [FILE_TYPE] => [MULTIPLE_CNT] => 5 [LINK_IBLOCK_ID] => 0 [WITH_DESCRIPTION] => N [SEARCHABLE] => N [FILTRABLE] => N [IS_REQUIRED] => N [VERSION] => 1 [USER_TYPE] => [USER_TYPE_SETTINGS] => Array ( ) [HINT] => [~NAME] => H1 [~DEFAULT_VALUE] => [VALUE_ENUM] => [VALUE_XML_ID] => [VALUE_SORT] => [VALUE] => Многогранная опора ПМ110-1 ф.2 [PROPERTY_VALUE_ID] => 5945360 [DESCRIPTION] => [~VALUE] => Многогранная опора ПМ110-1 ф.2 [~DESCRIPTION] => ) [CERTIFICATES] => Array ( [ID] => 127 [IBLOCK_ID] => 2 [NAME] => Сертификаты [ACTIVE] => Y [SORT] => 500 [CODE] => CERTIFICATES [DEFAULT_VALUE] => [PROPERTY_TYPE] => E [ROW_COUNT] => 1 [COL_COUNT] => 30 [LIST_TYPE] => L [MULTIPLE] => Y [XML_ID] => 127 [FILE_TYPE] => [MULTIPLE_CNT] => 5 [LINK_IBLOCK_ID] => 7 [WITH_DESCRIPTION] => N [SEARCHABLE] => N [FILTRABLE] => N [IS_REQUIRED] => N [VERSION] => 1 [USER_TYPE] => [USER_TYPE_SETTINGS] => Array ( ) [HINT] => [~NAME] => Сертификаты [~DEFAULT_VALUE] => [VALUE_ENUM] => [VALUE_XML_ID] => [VALUE_SORT] => [VALUE] => [PROPERTY_VALUE_ID] => [DESCRIPTION] => [~DESCRIPTION] => [~VALUE] => ) [129] => Array ( [ID] => 129 [IBLOCK_ID] => 2 [NAME] => Уникальный META TITLE [ACTIVE] => Y [SORT] => 500 [CODE] => 129 [DEFAULT_VALUE] => [PROPERTY_TYPE] => S [ROW_COUNT] => 1 [COL_COUNT] => 30 [LIST_TYPE] => L [MULTIPLE] => N [XML_ID] => 129 [FILE_TYPE] => [MULTIPLE_CNT] => 5 [LINK_IBLOCK_ID] => 0 [WITH_DESCRIPTION] => N [SEARCHABLE] => N [FILTRABLE] => N [IS_REQUIRED] => N [VERSION] => 1 [USER_TYPE] => [USER_TYPE_SETTINGS] => Array ( ) [HINT] => [~NAME] => Уникальный META TITLE [~DEFAULT_VALUE] => [VALUE_ENUM] => [VALUE_XML_ID] => [VALUE_SORT] => [VALUE] => [PROPERTY_VALUE_ID] => [DESCRIPTION] => [~DESCRIPTION] => [~VALUE] => ) [ITEM_TYPE] => Array ( [ID] => 134 [IBLOCK_ID] => 2 [NAME] => Тип [ACTIVE] => Y [SORT] => 500 [CODE] => ITEM_TYPE [DEFAULT_VALUE] => [PROPERTY_TYPE] => S [ROW_COUNT] => 1 [COL_COUNT] => 30 [LIST_TYPE] => L [MULTIPLE] => N [XML_ID] => [FILE_TYPE] => [MULTIPLE_CNT] => 5 [LINK_IBLOCK_ID] => 0 [WITH_DESCRIPTION] => N [SEARCHABLE] => N [FILTRABLE] => Y [IS_REQUIRED] => N [VERSION] => 1 [USER_TYPE] => [USER_TYPE_SETTINGS] => Array ( ) [HINT] => [~NAME] => Тип [~DEFAULT_VALUE] => [VALUE_ENUM] => [VALUE_XML_ID] => [VALUE_SORT] => [VALUE] => [PROPERTY_VALUE_ID] => [DESCRIPTION] => [~DESCRIPTION] => [~VALUE] => ) [ITEM_INSTALLATION] => Array ( [ID] => 135 [IBLOCK_ID] => 2 [NAME] => Способ установки [ACTIVE] => Y [SORT] => 500 [CODE] => ITEM_INSTALLATION [DEFAULT_VALUE] => [PROPERTY_TYPE] => S [ROW_COUNT] => 1 [COL_COUNT] => 30 [LIST_TYPE] => L [MULTIPLE] => N [XML_ID] => [FILE_TYPE] => [MULTIPLE_CNT] => 5 [LINK_IBLOCK_ID] => 0 [WITH_DESCRIPTION] => N [SEARCHABLE] => N [FILTRABLE] => N [IS_REQUIRED] => N [VERSION] => 1 [USER_TYPE] => [USER_TYPE_SETTINGS] => Array ( ) [HINT] => [~NAME] => Способ установки [~DEFAULT_VALUE] => [VALUE_ENUM] => [VALUE_XML_ID] => [VALUE_SORT] => [VALUE] => [PROPERTY_VALUE_ID] => [DESCRIPTION] => [~DESCRIPTION] => [~VALUE] => ) [ITEM_MODE] => Array ( [ID] => 136 [IBLOCK_ID] => 2 [NAME] => Способ производства [ACTIVE] => Y [SORT] => 500 [CODE] => ITEM_MODE [DEFAULT_VALUE] => [PROPERTY_TYPE] => S [ROW_COUNT] => 1 [COL_COUNT] => 30 [LIST_TYPE] => L [MULTIPLE] => N [XML_ID] => [FILE_TYPE] => [MULTIPLE_CNT] => 5 [LINK_IBLOCK_ID] => 0 [WITH_DESCRIPTION] => N [SEARCHABLE] => N [FILTRABLE] => N [IS_REQUIRED] => N [VERSION] => 1 [USER_TYPE] => [USER_TYPE_SETTINGS] => Array ( ) [HINT] => [~NAME] => Способ производства [~DEFAULT_VALUE] => [VALUE_ENUM] => [VALUE_XML_ID] => [VALUE_SORT] => [VALUE] => [PROPERTY_VALUE_ID] => [DESCRIPTION] => [~DESCRIPTION] => [~VALUE] => ) [ITEM_HEIGHT] => Array ( [ID] => 137 [IBLOCK_ID] => 2 [NAME] => Высота, мм [ACTIVE] => Y [SORT] => 500 [CODE] => ITEM_HEIGHT [DEFAULT_VALUE] => [PROPERTY_TYPE] => S [ROW_COUNT] => 1 [COL_COUNT] => 30 [LIST_TYPE] => L [MULTIPLE] => N [XML_ID] => [FILE_TYPE] => [MULTIPLE_CNT] => 5 [LINK_IBLOCK_ID] => 0 [WITH_DESCRIPTION] => N [SEARCHABLE] => N [FILTRABLE] => N [IS_REQUIRED] => N [VERSION] => 1 [USER_TYPE] => [USER_TYPE_SETTINGS] => Array ( ) [HINT] => [~NAME] => Высота, мм [~DEFAULT_VALUE] => [VALUE_ENUM] => [VALUE_XML_ID] => [VALUE_SORT] => [VALUE] => [PROPERTY_VALUE_ID] => [DESCRIPTION] => [~DESCRIPTION] => [~VALUE] => ) [BLOG_POST_ID] => Array ( [ID] => 138 [IBLOCK_ID] => 2 [NAME] => ID поста блога для комментариев [ACTIVE] => Y [SORT] => 500 [CODE] => BLOG_POST_ID [DEFAULT_VALUE] => [PROPERTY_TYPE] => N [ROW_COUNT] => 1 [COL_COUNT] => 30 [LIST_TYPE] => L [MULTIPLE] => N [XML_ID] => BLOG_POST_ID [FILE_TYPE] => [MULTIPLE_CNT] => 5 [LINK_IBLOCK_ID] => 0 [WITH_DESCRIPTION] => N [SEARCHABLE] => N [FILTRABLE] => N [IS_REQUIRED] => N [VERSION] => 1 [USER_TYPE] => [USER_TYPE_SETTINGS] => Array ( ) [HINT] => [~NAME] => ID поста блога для комментариев [~DEFAULT_VALUE] => [VALUE_ENUM] => [VALUE_XML_ID] => [VALUE_SORT] => [VALUE] => 1211 [PROPERTY_VALUE_ID] => 6775020 [DESCRIPTION] => [~VALUE] => 1211 [~DESCRIPTION] => ) [BLOG_COMMENTS_CNT] => Array ( [ID] => 139 [IBLOCK_ID] => 2 [NAME] => Количество комментариев [ACTIVE] => Y [SORT] => 500 [CODE] => BLOG_COMMENTS_CNT [DEFAULT_VALUE] => [PROPERTY_TYPE] => N [ROW_COUNT] => 1 [COL_COUNT] => 30 [LIST_TYPE] => L [MULTIPLE] => N [XML_ID] => BLOG_COMMENTS_CNT [FILE_TYPE] => [MULTIPLE_CNT] => 5 [LINK_IBLOCK_ID] => 0 [WITH_DESCRIPTION] => N [SEARCHABLE] => N [FILTRABLE] => N [IS_REQUIRED] => N [VERSION] => 1 [USER_TYPE] => [USER_TYPE_SETTINGS] => Array ( ) [HINT] => [~NAME] => Количество комментариев [~DEFAULT_VALUE] => [VALUE_ENUM] => [VALUE_XML_ID] => [VALUE_SORT] => [VALUE] => [PROPERTY_VALUE_ID] => [DESCRIPTION] => [~DESCRIPTION] => [~VALUE] => ) [HEIGHT_TOTAL] => Array ( [ID] => 143 [IBLOCK_ID] => 2 [NAME] => Высота общая, мм [ACTIVE] => Y [SORT] => 500 [CODE] => HEIGHT_TOTAL [DEFAULT_VALUE] => [PROPERTY_TYPE] => S [ROW_COUNT] => 1 [COL_COUNT] => 30 [LIST_TYPE] => L [MULTIPLE] => N [XML_ID] => [FILE_TYPE] => [MULTIPLE_CNT] => 5 [LINK_IBLOCK_ID] => 0 [WITH_DESCRIPTION] => N [SEARCHABLE] => N [FILTRABLE] => N [IS_REQUIRED] => N [VERSION] => 1 [USER_TYPE] => [USER_TYPE_SETTINGS] => Array ( ) [HINT] => [~NAME] => Высота общая, мм [~DEFAULT_VALUE] => [VALUE_ENUM] => [VALUE_XML_ID] => [VALUE_SORT] => [VALUE] => [PROPERTY_VALUE_ID] => [DESCRIPTION] => [~DESCRIPTION] => [~VALUE] => ) [HEIGHT_ABOVEGROUND] => Array ( [ID] => 144 [IBLOCK_ID] => 2 [NAME] => Высота надземной части, мм [ACTIVE] => Y [SORT] => 500 [CODE] => HEIGHT_ABOVEGROUND [DEFAULT_VALUE] => [PROPERTY_TYPE] => S [ROW_COUNT] => 1 [COL_COUNT] => 30 [LIST_TYPE] => L [MULTIPLE] => N [XML_ID] => [FILE_TYPE] => [MULTIPLE_CNT] => 5 [LINK_IBLOCK_ID] => 0 [WITH_DESCRIPTION] => N [SEARCHABLE] => N [FILTRABLE] => N [IS_REQUIRED] => N [VERSION] => 1 [USER_TYPE] => [USER_TYPE_SETTINGS] => Array ( ) [HINT] => [~NAME] => Высота надземной части, мм [~DEFAULT_VALUE] => [VALUE_ENUM] => [VALUE_XML_ID] => [VALUE_SORT] => [VALUE] => [PROPERTY_VALUE_ID] => [DESCRIPTION] => [~DESCRIPTION] => [~VALUE] => ) [HEIGHT_UNDERGROUND] => Array ( [ID] => 145 [IBLOCK_ID] => 2 [NAME] => Высота подземной части, мм [ACTIVE] => Y [SORT] => 500 [CODE] => HEIGHT_UNDERGROUND [DEFAULT_VALUE] => [PROPERTY_TYPE] => S [ROW_COUNT] => 1 [COL_COUNT] => 30 [LIST_TYPE] => L [MULTIPLE] => N [XML_ID] => [FILE_TYPE] => [MULTIPLE_CNT] => 5 [LINK_IBLOCK_ID] => 0 [WITH_DESCRIPTION] => N [SEARCHABLE] => N [FILTRABLE] => N [IS_REQUIRED] => N [VERSION] => 1 [USER_TYPE] => [USER_TYPE_SETTINGS] => Array ( ) [HINT] => [~NAME] => Высота подземной части, мм [~DEFAULT_VALUE] => [VALUE_ENUM] => [VALUE_XML_ID] => [VALUE_SORT] => [VALUE] => [PROPERTY_VALUE_ID] => [DESCRIPTION] => [~DESCRIPTION] => [~VALUE] => ) [DIAMETER_TOP] => Array ( [ID] => 146 [IBLOCK_ID] => 2 [NAME] => Диаметр верхний, мм [ACTIVE] => Y [SORT] => 500 [CODE] => DIAMETER_TOP [DEFAULT_VALUE] => [PROPERTY_TYPE] => S [ROW_COUNT] => 1 [COL_COUNT] => 30 [LIST_TYPE] => L [MULTIPLE] => N [XML_ID] => [FILE_TYPE] => [MULTIPLE_CNT] => 5 [LINK_IBLOCK_ID] => 0 [WITH_DESCRIPTION] => N [SEARCHABLE] => N [FILTRABLE] => N [IS_REQUIRED] => N [VERSION] => 1 [USER_TYPE] => [USER_TYPE_SETTINGS] => Array ( ) [HINT] => [~NAME] => Диаметр верхний, мм [~DEFAULT_VALUE] => [VALUE_ENUM] => [VALUE_XML_ID] => [VALUE_SORT] => [VALUE] => [PROPERTY_VALUE_ID] => [DESCRIPTION] => [~DESCRIPTION] => [~VALUE] => ) [DIAMETER_BOTTOM] => Array ( [ID] => 147 [IBLOCK_ID] => 2 [NAME] => Диаметр нижний, мм [ACTIVE] => Y [SORT] => 500 [CODE] => DIAMETER_BOTTOM [DEFAULT_VALUE] => [PROPERTY_TYPE] => S [ROW_COUNT] => 1 [COL_COUNT] => 30 [LIST_TYPE] => L [MULTIPLE] => N [XML_ID] => [FILE_TYPE] => [MULTIPLE_CNT] => 5 [LINK_IBLOCK_ID] => 0 [WITH_DESCRIPTION] => N [SEARCHABLE] => N [FILTRABLE] => N [IS_REQUIRED] => N [VERSION] => 1 [USER_TYPE] => [USER_TYPE_SETTINGS] => Array ( ) [HINT] => [~NAME] => Диаметр нижний, мм [~DEFAULT_VALUE] => [VALUE_ENUM] => [VALUE_XML_ID] => [VALUE_SORT] => [VALUE] => [PROPERTY_VALUE_ID] => [DESCRIPTION] => [~DESCRIPTION] => [~VALUE] => ) [WEIGHT] => Array ( [ID] => 148 [IBLOCK_ID] => 2 [NAME] => Нагрузка, кг [ACTIVE] => Y [SORT] => 500 [CODE] => WEIGHT [DEFAULT_VALUE] => [PROPERTY_TYPE] => S [ROW_COUNT] => 1 [COL_COUNT] => 30 [LIST_TYPE] => L [MULTIPLE] => N [XML_ID] => [FILE_TYPE] => [MULTIPLE_CNT] => 5 [LINK_IBLOCK_ID] => 0 [WITH_DESCRIPTION] => N [SEARCHABLE] => N [FILTRABLE] => N [IS_REQUIRED] => N [VERSION] => 1 [USER_TYPE] => [USER_TYPE_SETTINGS] => Array ( ) [HINT] => [~NAME] => Нагрузка, кг [~DEFAULT_VALUE] => [VALUE_ENUM] => [VALUE_XML_ID] => [VALUE_SORT] => [VALUE] => [PROPERTY_VALUE_ID] => [DESCRIPTION] => [~DESCRIPTION] => [~VALUE] => ) [VID] => Array ( [ID] => 149 [IBLOCK_ID] => 2 [NAME] => Вид [ACTIVE] => Y [SORT] => 500 [CODE] => VID [DEFAULT_VALUE] => [PROPERTY_TYPE] => S [ROW_COUNT] => 1 [COL_COUNT] => 30 [LIST_TYPE] => L [MULTIPLE] => N [XML_ID] => [FILE_TYPE] => [MULTIPLE_CNT] => 5 [LINK_IBLOCK_ID] => 0 [WITH_DESCRIPTION] => N [SEARCHABLE] => N [FILTRABLE] => N [IS_REQUIRED] => N [VERSION] => 1 [USER_TYPE] => [USER_TYPE_SETTINGS] => Array ( ) [HINT] => [~NAME] => Вид [~DEFAULT_VALUE] => [VALUE_ENUM] => [VALUE_XML_ID] => [VALUE_SORT] => [VALUE] => [PROPERTY_VALUE_ID] => [DESCRIPTION] => [~DESCRIPTION] => [~VALUE] => ) [SERVICE_LIFE] => Array ( [ID] => 150 [IBLOCK_ID] => 2 [NAME] => Срок службы [ACTIVE] => Y [SORT] => 500 [CODE] => SERVICE_LIFE [DEFAULT_VALUE] => [PROPERTY_TYPE] => S [ROW_COUNT] => 1 [COL_COUNT] => 30 [LIST_TYPE] => L [MULTIPLE] => N [XML_ID] => [FILE_TYPE] => [MULTIPLE_CNT] => 5 [LINK_IBLOCK_ID] => 0 [WITH_DESCRIPTION] => N [SEARCHABLE] => N [FILTRABLE] => N [IS_REQUIRED] => N [VERSION] => 1 [USER_TYPE] => [USER_TYPE_SETTINGS] => Array ( ) [HINT] => [~NAME] => Срок службы [~DEFAULT_VALUE] => [VALUE_ENUM] => [VALUE_XML_ID] => [VALUE_SORT] => [VALUE] => [PROPERTY_VALUE_ID] => [DESCRIPTION] => [~DESCRIPTION] => [~VALUE] => ) [USING] => Array ( [ID] => 151 [IBLOCK_ID] => 2 [NAME] => Применение [ACTIVE] => Y [SORT] => 500 [CODE] => USING [DEFAULT_VALUE] => [PROPERTY_TYPE] => S [ROW_COUNT] => 1 [COL_COUNT] => 30 [LIST_TYPE] => L [MULTIPLE] => N [XML_ID] => [FILE_TYPE] => [MULTIPLE_CNT] => 5 [LINK_IBLOCK_ID] => 0 [WITH_DESCRIPTION] => N [SEARCHABLE] => N [FILTRABLE] => N [IS_REQUIRED] => N [VERSION] => 1 [USER_TYPE] => [USER_TYPE_SETTINGS] => Array ( ) [HINT] => [~NAME] => Применение [~DEFAULT_VALUE] => [VALUE_ENUM] => [VALUE_XML_ID] => [VALUE_SORT] => [VALUE] => [PROPERTY_VALUE_ID] => [DESCRIPTION] => [~DESCRIPTION] => [~VALUE] => ) [HEIGHT_ZAK] => Array ( [ID] => 152 [IBLOCK_ID] => 2 [NAME] => Высота закладного элемента фундамента [ACTIVE] => Y [SORT] => 500 [CODE] => HEIGHT_ZAK [DEFAULT_VALUE] => [PROPERTY_TYPE] => S [ROW_COUNT] => 1 [COL_COUNT] => 30 [LIST_TYPE] => L [MULTIPLE] => N [XML_ID] => [FILE_TYPE] => [MULTIPLE_CNT] => 5 [LINK_IBLOCK_ID] => 0 [WITH_DESCRIPTION] => N [SEARCHABLE] => N [FILTRABLE] => N [IS_REQUIRED] => N [VERSION] => 1 [USER_TYPE] => [USER_TYPE_SETTINGS] => Array ( ) [HINT] => [~NAME] => Высота закладного элемента фундамента [~DEFAULT_VALUE] => [VALUE_ENUM] => [VALUE_XML_ID] => [VALUE_SORT] => [VALUE] => [PROPERTY_VALUE_ID] => [DESCRIPTION] => [~DESCRIPTION] => [~VALUE] => ) [LENGTH_CONSOLE] => Array ( [ID] => 153 [IBLOCK_ID] => 2 [NAME] => Длина консоли [ACTIVE] => Y [SORT] => 500 [CODE] => LENGTH_CONSOLE [DEFAULT_VALUE] => [PROPERTY_TYPE] => S [ROW_COUNT] => 1 [COL_COUNT] => 30 [LIST_TYPE] => L [MULTIPLE] => N [XML_ID] => [FILE_TYPE] => [MULTIPLE_CNT] => 5 [LINK_IBLOCK_ID] => 0 [WITH_DESCRIPTION] => N [SEARCHABLE] => N [FILTRABLE] => N [IS_REQUIRED] => N [VERSION] => 1 [USER_TYPE] => [USER_TYPE_SETTINGS] => Array ( ) [HINT] => [~NAME] => Длина консоли [~DEFAULT_VALUE] => [VALUE_ENUM] => [VALUE_XML_ID] => [VALUE_SORT] => [VALUE] => [PROPERTY_VALUE_ID] => [DESCRIPTION] => [~DESCRIPTION] => [~VALUE] => ) [HEIGHT_TOP_SECTION] => Array ( [ID] => 154 [IBLOCK_ID] => 2 [NAME] => Высота верхней секции, мм [ACTIVE] => Y [SORT] => 500 [CODE] => HEIGHT_TOP_SECTION [DEFAULT_VALUE] => [PROPERTY_TYPE] => S [ROW_COUNT] => 1 [COL_COUNT] => 30 [LIST_TYPE] => L [MULTIPLE] => N [XML_ID] => [FILE_TYPE] => [MULTIPLE_CNT] => 5 [LINK_IBLOCK_ID] => 0 [WITH_DESCRIPTION] => N [SEARCHABLE] => N [FILTRABLE] => N [IS_REQUIRED] => N [VERSION] => 1 [USER_TYPE] => [USER_TYPE_SETTINGS] => Array ( ) [HINT] => [~NAME] => Высота верхней секции, мм [~DEFAULT_VALUE] => [VALUE_ENUM] => [VALUE_XML_ID] => [VALUE_SORT] => [VALUE] => [PROPERTY_VALUE_ID] => [DESCRIPTION] => [~DESCRIPTION] => [~VALUE] => ) [SIP] => Array ( [ID] => 156 [IBLOCK_ID] => 2 [NAME] => Возможность подвеса СИП [ACTIVE] => Y [SORT] => 500 [CODE] => SIP [DEFAULT_VALUE] => [PROPERTY_TYPE] => S [ROW_COUNT] => 1 [COL_COUNT] => 30 [LIST_TYPE] => L [MULTIPLE] => N [XML_ID] => [FILE_TYPE] => [MULTIPLE_CNT] => 5 [LINK_IBLOCK_ID] => 0 [WITH_DESCRIPTION] => N [SEARCHABLE] => N [FILTRABLE] => N [IS_REQUIRED] => N [VERSION] => 1 [USER_TYPE] => [USER_TYPE_SETTINGS] => Array ( ) [HINT] => [~NAME] => Возможность подвеса СИП [~DEFAULT_VALUE] => [VALUE_ENUM] => [VALUE_XML_ID] => [VALUE_SORT] => [VALUE] => [PROPERTY_VALUE_ID] => [DESCRIPTION] => [~DESCRIPTION] => [~VALUE] => ) [COUNT_GRANY] => Array ( [ID] => 157 [IBLOCK_ID] => 2 [NAME] => Количество граней [ACTIVE] => Y [SORT] => 500 [CODE] => COUNT_GRANY [DEFAULT_VALUE] => [PROPERTY_TYPE] => S [ROW_COUNT] => 1 [COL_COUNT] => 30 [LIST_TYPE] => L [MULTIPLE] => N [XML_ID] => [FILE_TYPE] => [MULTIPLE_CNT] => 5 [LINK_IBLOCK_ID] => 0 [WITH_DESCRIPTION] => N [SEARCHABLE] => N [FILTRABLE] => N [IS_REQUIRED] => N [VERSION] => 1 [USER_TYPE] => [USER_TYPE_SETTINGS] => Array ( ) [HINT] => [~NAME] => Количество граней [~DEFAULT_VALUE] => [VALUE_ENUM] => [VALUE_XML_ID] => [VALUE_SORT] => [VALUE] => [PROPERTY_VALUE_ID] => [DESCRIPTION] => [~DESCRIPTION] => [~VALUE] => ) [HEIGHT_BOTTOM_SECTION] => Array ( [ID] => 158 [IBLOCK_ID] => 2 [NAME] => Высота нижней секции, мм [ACTIVE] => Y [SORT] => 500 [CODE] => HEIGHT_BOTTOM_SECTION [DEFAULT_VALUE] => [PROPERTY_TYPE] => S [ROW_COUNT] => 1 [COL_COUNT] => 30 [LIST_TYPE] => L [MULTIPLE] => N [XML_ID] => [FILE_TYPE] => [MULTIPLE_CNT] => 5 [LINK_IBLOCK_ID] => 0 [WITH_DESCRIPTION] => N [SEARCHABLE] => N [FILTRABLE] => N [IS_REQUIRED] => N [VERSION] => 1 [USER_TYPE] => [USER_TYPE_SETTINGS] => Array ( ) [HINT] => [~NAME] => Высота нижней секции, мм [~DEFAULT_VALUE] => [VALUE_ENUM] => [VALUE_XML_ID] => [VALUE_SORT] => [VALUE] => [PROPERTY_VALUE_ID] => [DESCRIPTION] => [~DESCRIPTION] => [~VALUE] => ) [STEEL_THICKNESS] => Array ( [ID] => 160 [IBLOCK_ID] => 2 [NAME] => Толщина стали [ACTIVE] => Y [SORT] => 500 [CODE] => STEEL_THICKNESS [DEFAULT_VALUE] => [PROPERTY_TYPE] => S [ROW_COUNT] => 1 [COL_COUNT] => 30 [LIST_TYPE] => L [MULTIPLE] => N [XML_ID] => [FILE_TYPE] => [MULTIPLE_CNT] => 5 [LINK_IBLOCK_ID] => 0 [WITH_DESCRIPTION] => N [SEARCHABLE] => N [FILTRABLE] => N [IS_REQUIRED] => N [VERSION] => 1 [USER_TYPE] => [USER_TYPE_SETTINGS] => Array ( ) [HINT] => [~NAME] => Толщина стали [~DEFAULT_VALUE] => [VALUE_ENUM] => [VALUE_XML_ID] => [VALUE_SORT] => [VALUE] => [PROPERTY_VALUE_ID] => [DESCRIPTION] => [~DESCRIPTION] => [~VALUE] => ) [SIZE_OPOR_FLANEC] => Array ( [ID] => 161 [IBLOCK_ID] => 2 [NAME] => Размеры опорного фланца [ACTIVE] => Y [SORT] => 500 [CODE] => SIZE_OPOR_FLANEC [DEFAULT_VALUE] => [PROPERTY_TYPE] => S [ROW_COUNT] => 1 [COL_COUNT] => 30 [LIST_TYPE] => L [MULTIPLE] => N [XML_ID] => [FILE_TYPE] => [MULTIPLE_CNT] => 5 [LINK_IBLOCK_ID] => 0 [WITH_DESCRIPTION] => N [SEARCHABLE] => N [FILTRABLE] => N [IS_REQUIRED] => N [VERSION] => 1 [USER_TYPE] => [USER_TYPE_SETTINGS] => Array ( ) [HINT] => [~NAME] => Размеры опорного фланца [~DEFAULT_VALUE] => [VALUE_ENUM] => [VALUE_XML_ID] => [VALUE_SORT] => [VALUE] => [PROPERTY_VALUE_ID] => [DESCRIPTION] => [~DESCRIPTION] => [~VALUE] => ) [POKRASKA] => Array ( [ID] => 162 [IBLOCK_ID] => 2 [NAME] => Лакокрасочное покрытие [ACTIVE] => Y [SORT] => 500 [CODE] => POKRASKA [DEFAULT_VALUE] => [PROPERTY_TYPE] => S [ROW_COUNT] => 1 [COL_COUNT] => 30 [LIST_TYPE] => L [MULTIPLE] => N [XML_ID] => [FILE_TYPE] => [MULTIPLE_CNT] => 5 [LINK_IBLOCK_ID] => 0 [WITH_DESCRIPTION] => N [SEARCHABLE] => N [FILTRABLE] => N [IS_REQUIRED] => N [VERSION] => 1 [USER_TYPE] => [USER_TYPE_SETTINGS] => Array ( ) [HINT] => [~NAME] => Лакокрасочное покрытие [~DEFAULT_VALUE] => [VALUE_ENUM] => [VALUE_XML_ID] => [VALUE_SORT] => [VALUE] => [PROPERTY_VALUE_ID] => [DESCRIPTION] => [~DESCRIPTION] => [~VALUE] => ) [VES] => Array ( [ID] => 163 [IBLOCK_ID] => 2 [NAME] => Вес [ACTIVE] => Y [SORT] => 500 [CODE] => VES [DEFAULT_VALUE] => [PROPERTY_TYPE] => S [ROW_COUNT] => 1 [COL_COUNT] => 30 [LIST_TYPE] => L [MULTIPLE] => N [XML_ID] => [FILE_TYPE] => [MULTIPLE_CNT] => 5 [LINK_IBLOCK_ID] => 0 [WITH_DESCRIPTION] => N [SEARCHABLE] => N [FILTRABLE] => N [IS_REQUIRED] => N [VERSION] => 1 [USER_TYPE] => [USER_TYPE_SETTINGS] => Array ( ) [HINT] => [~NAME] => Вес [~DEFAULT_VALUE] => [VALUE_ENUM] => [VALUE_XML_ID] => [VALUE_SORT] => [VALUE] => [PROPERTY_VALUE_ID] => [DESCRIPTION] => [~DESCRIPTION] => [~VALUE] => ) [INSTALL_LYUCHKA] => Array ( [ID] => 164 [IBLOCK_ID] => 2 [NAME] => Возможность установки лючка [ACTIVE] => Y [SORT] => 500 [CODE] => INSTALL_LYUCHKA [DEFAULT_VALUE] => [PROPERTY_TYPE] => S [ROW_COUNT] => 1 [COL_COUNT] => 30 [LIST_TYPE] => L [MULTIPLE] => N [XML_ID] => [FILE_TYPE] => [MULTIPLE_CNT] => 5 [LINK_IBLOCK_ID] => 0 [WITH_DESCRIPTION] => N [SEARCHABLE] => N [FILTRABLE] => N [IS_REQUIRED] => N [VERSION] => 1 [USER_TYPE] => [USER_TYPE_SETTINGS] => Array ( ) [HINT] => [~NAME] => Возможность установки лючка [~DEFAULT_VALUE] => [VALUE_ENUM] => [VALUE_XML_ID] => [VALUE_SORT] => [VALUE] => [PROPERTY_VALUE_ID] => [DESCRIPTION] => [~DESCRIPTION] => [~VALUE] => ) [DIAMETER_FLANCA] => Array ( [ID] => 165 [IBLOCK_ID] => 2 [NAME] => Диаметр фланца, мм [ACTIVE] => Y [SORT] => 500 [CODE] => DIAMETER_FLANCA [DEFAULT_VALUE] => [PROPERTY_TYPE] => S [ROW_COUNT] => 1 [COL_COUNT] => 30 [LIST_TYPE] => L [MULTIPLE] => N [XML_ID] => [FILE_TYPE] => [MULTIPLE_CNT] => 5 [LINK_IBLOCK_ID] => 0 [WITH_DESCRIPTION] => N [SEARCHABLE] => N [FILTRABLE] => N [IS_REQUIRED] => N [VERSION] => 1 [USER_TYPE] => [USER_TYPE_SETTINGS] => Array ( ) [HINT] => [~NAME] => Диаметр фланца, мм [~DEFAULT_VALUE] => [VALUE_ENUM] => [VALUE_XML_ID] => [VALUE_SORT] => [VALUE] => [PROPERTY_VALUE_ID] => [DESCRIPTION] => [~DESCRIPTION] => [~VALUE] => ) [COUNT_LIGHT] => Array ( [ID] => 166 [IBLOCK_ID] => 2 [NAME] => Количество осветительных приборов, шт [ACTIVE] => Y [SORT] => 500 [CODE] => COUNT_LIGHT [DEFAULT_VALUE] => [PROPERTY_TYPE] => S [ROW_COUNT] => 1 [COL_COUNT] => 30 [LIST_TYPE] => L [MULTIPLE] => N [XML_ID] => [FILE_TYPE] => [MULTIPLE_CNT] => 5 [LINK_IBLOCK_ID] => 0 [WITH_DESCRIPTION] => N [SEARCHABLE] => N [FILTRABLE] => N [IS_REQUIRED] => N [VERSION] => 1 [USER_TYPE] => [USER_TYPE_SETTINGS] => Array ( ) [HINT] => [~NAME] => Количество осветительных приборов, шт [~DEFAULT_VALUE] => [VALUE_ENUM] => [VALUE_XML_ID] => [VALUE_SORT] => [VALUE] => [PROPERTY_VALUE_ID] => [DESCRIPTION] => [~DESCRIPTION] => [~VALUE] => ) [WEIGHT_TO_KRON] => Array ( [ID] => 167 [IBLOCK_ID] => 2 [NAME] => Высота до кронштейна, мм [ACTIVE] => Y [SORT] => 500 [CODE] => WEIGHT_TO_KRON [DEFAULT_VALUE] => [PROPERTY_TYPE] => S [ROW_COUNT] => 1 [COL_COUNT] => 30 [LIST_TYPE] => L [MULTIPLE] => N [XML_ID] => [FILE_TYPE] => [MULTIPLE_CNT] => 5 [LINK_IBLOCK_ID] => 0 [WITH_DESCRIPTION] => N [SEARCHABLE] => N [FILTRABLE] => N [IS_REQUIRED] => N [VERSION] => 1 [USER_TYPE] => [USER_TYPE_SETTINGS] => Array ( ) [HINT] => [~NAME] => Высота до кронштейна, мм [~DEFAULT_VALUE] => [VALUE_ENUM] => [VALUE_XML_ID] => [VALUE_SORT] => [VALUE] => [PROPERTY_VALUE_ID] => [DESCRIPTION] => [~DESCRIPTION] => [~VALUE] => ) [SIZE_FLANEC] => Array ( [ID] => 169 [IBLOCK_ID] => 2 [NAME] => Размер фланца [ACTIVE] => Y [SORT] => 500 [CODE] => SIZE_FLANEC [DEFAULT_VALUE] => [PROPERTY_TYPE] => S [ROW_COUNT] => 1 [COL_COUNT] => 30 [LIST_TYPE] => L [MULTIPLE] => N [XML_ID] => [FILE_TYPE] => [MULTIPLE_CNT] => 5 [LINK_IBLOCK_ID] => 0 [WITH_DESCRIPTION] => N [SEARCHABLE] => N [FILTRABLE] => N [IS_REQUIRED] => N [VERSION] => 1 [USER_TYPE] => [USER_TYPE_SETTINGS] => Array ( ) [HINT] => [~NAME] => Размер фланца [~DEFAULT_VALUE] => [VALUE_ENUM] => [VALUE_XML_ID] => [VALUE_SORT] => [VALUE] => [PROPERTY_VALUE_ID] => [DESCRIPTION] => [~DESCRIPTION] => [~VALUE] => ) [WEIGHT_MIDDLE_SECTION] => Array ( [ID] => 170 [IBLOCK_ID] => 2 [NAME] => Высота промежуточной секции, мм [ACTIVE] => Y [SORT] => 500 [CODE] => WEIGHT_MIDDLE_SECTION [DEFAULT_VALUE] => [PROPERTY_TYPE] => S [ROW_COUNT] => 1 [COL_COUNT] => 30 [LIST_TYPE] => L [MULTIPLE] => N [XML_ID] => [FILE_TYPE] => [MULTIPLE_CNT] => 5 [LINK_IBLOCK_ID] => 0 [WITH_DESCRIPTION] => N [SEARCHABLE] => N [FILTRABLE] => N [IS_REQUIRED] => N [VERSION] => 1 [USER_TYPE] => [USER_TYPE_SETTINGS] => Array ( ) [HINT] => [~NAME] => Высота промежуточной секции, мм [~DEFAULT_VALUE] => [VALUE_ENUM] => [VALUE_XML_ID] => [VALUE_SORT] => [VALUE] => [PROPERTY_VALUE_ID] => [DESCRIPTION] => [~DESCRIPTION] => [~VALUE] => ) [DEFEND_POKRYTIE] => Array ( [ID] => 171 [IBLOCK_ID] => 2 [NAME] => Защитное покрытие [ACTIVE] => Y [SORT] => 500 [CODE] => DEFEND_POKRYTIE [DEFAULT_VALUE] => [PROPERTY_TYPE] => S [ROW_COUNT] => 1 [COL_COUNT] => 30 [LIST_TYPE] => L [MULTIPLE] => N [XML_ID] => [FILE_TYPE] => [MULTIPLE_CNT] => 5 [LINK_IBLOCK_ID] => 0 [WITH_DESCRIPTION] => N [SEARCHABLE] => N [FILTRABLE] => N [IS_REQUIRED] => N [VERSION] => 1 [USER_TYPE] => [USER_TYPE_SETTINGS] => Array ( ) [HINT] => [~NAME] => Защитное покрытие [~DEFAULT_VALUE] => [VALUE_ENUM] => [VALUE_XML_ID] => [VALUE_SORT] => [VALUE] => [PROPERTY_VALUE_ID] => [DESCRIPTION] => [~DESCRIPTION] => [~VALUE] => ) [WIND_REGION] => Array ( [ID] => 172 [IBLOCK_ID] => 2 [NAME] => Ветровой район [ACTIVE] => Y [SORT] => 500 [CODE] => WIND_REGION [DEFAULT_VALUE] => [PROPERTY_TYPE] => S [ROW_COUNT] => 1 [COL_COUNT] => 30 [LIST_TYPE] => L [MULTIPLE] => N [XML_ID] => [FILE_TYPE] => [MULTIPLE_CNT] => 5 [LINK_IBLOCK_ID] => 0 [WITH_DESCRIPTION] => N [SEARCHABLE] => N [FILTRABLE] => N [IS_REQUIRED] => N [VERSION] => 1 [USER_TYPE] => [USER_TYPE_SETTINGS] => Array ( ) [HINT] => [~NAME] => Ветровой район [~DEFAULT_VALUE] => [VALUE_ENUM] => [VALUE_XML_ID] => [VALUE_SORT] => [VALUE] => [PROPERTY_VALUE_ID] => [DESCRIPTION] => [~DESCRIPTION] => [~VALUE] => ) [DIAMETER_OPOR_FLANCA] => Array ( [ID] => 173 [IBLOCK_ID] => 2 [NAME] => Диаметр опорного фланца, мм [ACTIVE] => Y [SORT] => 500 [CODE] => DIAMETER_OPOR_FLANCA [DEFAULT_VALUE] => [PROPERTY_TYPE] => S [ROW_COUNT] => 1 [COL_COUNT] => 30 [LIST_TYPE] => L [MULTIPLE] => N [XML_ID] => [FILE_TYPE] => [MULTIPLE_CNT] => 5 [LINK_IBLOCK_ID] => 0 [WITH_DESCRIPTION] => N [SEARCHABLE] => N [FILTRABLE] => N [IS_REQUIRED] => N [VERSION] => 1 [USER_TYPE] => [USER_TYPE_SETTINGS] => Array ( ) [HINT] => [~NAME] => Диаметр опорного фланца, мм [~DEFAULT_VALUE] => [VALUE_ENUM] => [VALUE_XML_ID] => [VALUE_SORT] => [VALUE] => [PROPERTY_VALUE_ID] => [DESCRIPTION] => [~DESCRIPTION] => [~VALUE] => ) [CENTER_DIST] => Array ( [ID] => 174 [IBLOCK_ID] => 2 [NAME] => Межцентровое расстояние, мм [ACTIVE] => Y [SORT] => 500 [CODE] => CENTER_DIST [DEFAULT_VALUE] => [PROPERTY_TYPE] => S [ROW_COUNT] => 1 [COL_COUNT] => 30 [LIST_TYPE] => L [MULTIPLE] => N [XML_ID] => [FILE_TYPE] => [MULTIPLE_CNT] => 5 [LINK_IBLOCK_ID] => 0 [WITH_DESCRIPTION] => N [SEARCHABLE] => N [FILTRABLE] => N [IS_REQUIRED] => N [VERSION] => 1 [USER_TYPE] => [USER_TYPE_SETTINGS] => Array ( ) [HINT] => [~NAME] => Межцентровое расстояние, мм [~DEFAULT_VALUE] => [VALUE_ENUM] => [VALUE_XML_ID] => [VALUE_SORT] => [VALUE] => [PROPERTY_VALUE_ID] => [DESCRIPTION] => [~DESCRIPTION] => [~VALUE] => ) [FLANEC_THICKNESS] => Array ( [ID] => 175 [IBLOCK_ID] => 2 [NAME] => Толщина фланца, мм [ACTIVE] => Y [SORT] => 500 [CODE] => FLANEC_THICKNESS [DEFAULT_VALUE] => [PROPERTY_TYPE] => S [ROW_COUNT] => 1 [COL_COUNT] => 30 [LIST_TYPE] => L [MULTIPLE] => N [XML_ID] => [FILE_TYPE] => [MULTIPLE_CNT] => 5 [LINK_IBLOCK_ID] => 0 [WITH_DESCRIPTION] => N [SEARCHABLE] => N [FILTRABLE] => N [IS_REQUIRED] => N [VERSION] => 1 [USER_TYPE] => [USER_TYPE_SETTINGS] => Array ( ) [HINT] => [~NAME] => Толщина фланца, мм [~DEFAULT_VALUE] => [VALUE_ENUM] => [VALUE_XML_ID] => [VALUE_SORT] => [VALUE] => [PROPERTY_VALUE_ID] => [DESCRIPTION] => [~DESCRIPTION] => [~VALUE] => ) [COUNT_HOLE] => Array ( [ID] => 176 [IBLOCK_ID] => 2 [NAME] => Количество отверстий крепления, шт [ACTIVE] => Y [SORT] => 500 [CODE] => COUNT_HOLE [DEFAULT_VALUE] => [PROPERTY_TYPE] => S [ROW_COUNT] => 1 [COL_COUNT] => 30 [LIST_TYPE] => L [MULTIPLE] => N [XML_ID] => [FILE_TYPE] => [MULTIPLE_CNT] => 5 [LINK_IBLOCK_ID] => 0 [WITH_DESCRIPTION] => N [SEARCHABLE] => N [FILTRABLE] => N [IS_REQUIRED] => N [VERSION] => 1 [USER_TYPE] => [USER_TYPE_SETTINGS] => Array ( ) [HINT] => [~NAME] => Количество отверстий крепления, шт [~DEFAULT_VALUE] => [VALUE_ENUM] => [VALUE_XML_ID] => [VALUE_SORT] => [VALUE] => [PROPERTY_VALUE_ID] => [DESCRIPTION] => [~DESCRIPTION] => [~VALUE] => ) [INSPECTION_WINDOW] => Array ( [ID] => 179 [IBLOCK_ID] => 2 [NAME] => Ревизионное окно, мм [ACTIVE] => Y [SORT] => 500 [CODE] => INSPECTION_WINDOW [DEFAULT_VALUE] => [PROPERTY_TYPE] => S [ROW_COUNT] => 1 [COL_COUNT] => 30 [LIST_TYPE] => L [MULTIPLE] => N [XML_ID] => [FILE_TYPE] => [MULTIPLE_CNT] => 5 [LINK_IBLOCK_ID] => 0 [WITH_DESCRIPTION] => N [SEARCHABLE] => N [FILTRABLE] => N [IS_REQUIRED] => N [VERSION] => 1 [USER_TYPE] => [USER_TYPE_SETTINGS] => Array ( ) [HINT] => [~NAME] => Ревизионное окно, мм [~DEFAULT_VALUE] => [VALUE_ENUM] => [VALUE_XML_ID] => [VALUE_SORT] => [VALUE] => [PROPERTY_VALUE_ID] => [DESCRIPTION] => [~DESCRIPTION] => [~VALUE] => ) [THREE_MODEL] => Array ( [ID] => 182 [IBLOCK_ID] => 2 [NAME] => 3D-модель [ACTIVE] => Y [SORT] => 500 [CODE] => THREE_MODEL [DEFAULT_VALUE] => [PROPERTY_TYPE] => F [ROW_COUNT] => 1 [COL_COUNT] => 30 [LIST_TYPE] => L [MULTIPLE] => N [XML_ID] => [FILE_TYPE] => [MULTIPLE_CNT] => 5 [LINK_IBLOCK_ID] => 0 [WITH_DESCRIPTION] => N [SEARCHABLE] => N [FILTRABLE] => N [IS_REQUIRED] => N [VERSION] => 1 [USER_TYPE] => [USER_TYPE_SETTINGS] => Array ( ) [HINT] => [~NAME] => 3D-модель [~DEFAULT_VALUE] => [VALUE_ENUM] => [VALUE_XML_ID] => [VALUE_SORT] => [VALUE] => [PROPERTY_VALUE_ID] => [DESCRIPTION] => [~DESCRIPTION] => [~VALUE] => ) [FAQ] => Array ( [ID] => 183 [IBLOCK_ID] => 2 [NAME] => FAQ [ACTIVE] => Y [SORT] => 500 [CODE] => FAQ [DEFAULT_VALUE] => Array ( [TYPE] => TEXT [TEXT] => ) [PROPERTY_TYPE] => S [ROW_COUNT] => 1 [COL_COUNT] => 30 [LIST_TYPE] => L [MULTIPLE] => N [XML_ID] => [FILE_TYPE] => [MULTIPLE_CNT] => 5 [LINK_IBLOCK_ID] => 0 [WITH_DESCRIPTION] => N [SEARCHABLE] => N [FILTRABLE] => N [IS_REQUIRED] => N [VERSION] => 1 [USER_TYPE] => HTML [USER_TYPE_SETTINGS] => Array ( [height] => 200 ) [HINT] => [~NAME] => FAQ [~DEFAULT_VALUE] => Array ( [TYPE] => TEXT [TEXT] => ) [VALUE_ENUM] => [VALUE_XML_ID] => [VALUE_SORT] => [VALUE] => [PROPERTY_VALUE_ID] => [DESCRIPTION] => [~DESCRIPTION] => [~VALUE] => ) ) [DISPLAY_PROPERTIES] => Array ( [ITEM_PRICE] => Array ( [ID] => 22 [IBLOCK_ID] => 2 [NAME] => Цена [ACTIVE] => Y [SORT] => 3 [CODE] => ITEM_PRICE [DEFAULT_VALUE] => [PROPERTY_TYPE] => L [ROW_COUNT] => 1 [COL_COUNT] => 30 [LIST_TYPE] => L [MULTIPLE] => N [XML_ID] => 22 [FILE_TYPE] => [MULTIPLE_CNT] => 5 [LINK_IBLOCK_ID] => 0 [WITH_DESCRIPTION] => N [SEARCHABLE] => N [FILTRABLE] => N [IS_REQUIRED] => Y [VERSION] => 1 [USER_TYPE] => [USER_TYPE_SETTINGS] => Array ( ) [HINT] => [~NAME] => Цена [~DEFAULT_VALUE] => [VALUE_ENUM] => По запросу [VALUE_XML_ID] => on-request [VALUE_SORT] => 1 [VALUE] => По запросу [PROPERTY_VALUE_ID] => 6825518 [VALUE_ENUM_ID] => 9 [DESCRIPTION] => [~VALUE] => По запросу [~DESCRIPTION] => [DISPLAY_VALUE] => По запросу ) [ITEM_CHARACTERISTICS] => Array ( [ID] => 28 [IBLOCK_ID] => 2 [NAME] => Характеристики [ACTIVE] => Y [SORT] => 6 [CODE] => ITEM_CHARACTERISTICS [DEFAULT_VALUE] => [PROPERTY_TYPE] => S [ROW_COUNT] => 1 [COL_COUNT] => 20 [LIST_TYPE] => L [MULTIPLE] => Y [XML_ID] => 28 [FILE_TYPE] => [MULTIPLE_CNT] => 1 [LINK_IBLOCK_ID] => 0 [WITH_DESCRIPTION] => Y [SEARCHABLE] => N [FILTRABLE] => N [IS_REQUIRED] => N [VERSION] => 1 [USER_TYPE] => [USER_TYPE_SETTINGS] => Array ( ) [HINT] => [~NAME] => Характеристики [~DEFAULT_VALUE] => [VALUE_ENUM] => [VALUE_XML_ID] => [VALUE_SORT] => [VALUE] => Array ( [0] => фланцевая [1] => граненая [2] => 26900 [3] => 17200 [4] => 720 [5] => 240 [6] => одностоечная свободностоящая [7] => горячее цинкование [8] => Порошковое / полимерное окрашивание [9] => 30 лет [10] => промежуточная ) [PROPERTY_VALUE_ID] => Array ( [0] => 6823951 [1] => 6823952 [2] => 6823953 [3] => 6823954 [4] => 6823955 [5] => 6823956 [6] => 6823957 [7] => 6823958 [8] => 6823959 [9] => 6823960 [10] => 6825519 ) [DESCRIPTION] => Array ( [0] => Способ установки [1] => Способ производства [2] => Высота, мм [3] => Высота до нижней траверсы, мм [4] => Диаметр нижний, мм [5] => Диаметр верхний, мм [6] => Конструкция [7] => Защитное покрытие [8] => Лакокрасочное покрытие [9] => Срок службы [10] => Назначение ) [~VALUE] => Array ( [0] => фланцевая [1] => граненая [2] => 26900 [3] => 17200 [4] => 720 [5] => 240 [6] => одностоечная свободностоящая [7] => горячее цинкование [8] => Порошковое / полимерное окрашивание [9] => 30 лет [10] => промежуточная ) [~DESCRIPTION] => Array ( [0] => Способ установки [1] => Способ производства [2] => Высота, мм [3] => Высота до нижней траверсы, мм [4] => Диаметр нижний, мм [5] => Диаметр верхний, мм [6] => Конструкция [7] => Защитное покрытие [8] => Лакокрасочное покрытие [9] => Срок службы [10] => Назначение ) [DISPLAY_VALUE] => Array ( [0] => фланцевая [1] => граненая [2] => 26900 [3] => 17200 [4] => 720 [5] => 240 [6] => одностоечная свободностоящая [7] => горячее цинкование [8] => Порошковое / полимерное окрашивание [9] => 30 лет [10] => промежуточная ) ) ) [PRODUCT_PROPERTIES] => Array ( ) [PRODUCT_PROPERTIES_FILL] => Array ( ) [OFFERS] => Array ( ) [OFFER_ID_SELECTED] => 0 [CHECK_QUANTITY] => [ITEM_PRICE_MODE] => [ITEM_PRICES] => Array ( ) [ITEM_QUANTITY_RANGES] => Array ( ) [ITEM_MEASURE_RATIOS] => Array ( [2893] => Array ( [ID] => 2893 [RATIO] => 1 [IS_DEFAULT] => Y [PRODUCT_ID] => 15371 ) ) [ITEM_MEASURE] => Array ( [ID] => 5 [TITLE] => шт [~TITLE] => шт ) [ITEM_MEASURE_RATIO_SELECTED] => 2893 [ITEM_QUANTITY_RANGE_SELECTED] => [ITEM_PRICE_SELECTED] => [EDIT_LINK] => [DELETE_LINK] => [SECTION] => Array ( [PATH] => Array ( ) ) [CAN_BUY] => )
В наличии
Способ установки: фланцевая
Способ производства: граненая
Высота, мм: 34400
Цена по запросу
Array
(
    [ID] => 15368
    [~ID] => 15368
    [IBLOCK_ID] => 2
    [~IBLOCK_ID] => 2
    [CODE] => pm220-3
    [~CODE] => pm220-3
    [XML_ID] => 15368
    [~XML_ID] => 15368
    [NAME] => Многогранная стойка для опоры ПМ220-3
    [~NAME] => Многогранная стойка для опоры ПМ220-3
    [ACTIVE] => Y
    [~ACTIVE] => Y
    [DATE_ACTIVE_FROM] => 
    [~DATE_ACTIVE_FROM] => 
    [DATE_ACTIVE_TO] => 
    [~DATE_ACTIVE_TO] => 
    [SORT] => 1
    [~SORT] => 1
    [PREVIEW_TEXT] => 
    [~PREVIEW_TEXT] => 
    [PREVIEW_TEXT_TYPE] => text
    [~PREVIEW_TEXT_TYPE] => text
    [DETAIL_TEXT] => 

Многогранная стойка ПМ220-3, производимая по типовому проекту 26.0033, представляет собой основной несущий элемент для сборки промежуточных опор воздушных линий электропередачи напряжением 220 кВ. Данная стойка предназначена для создания свободностоящих конструкций, поддерживающих провода и тросы на прямых участках трассы. Общая высота собранной опоры составляет 34,4 метра, что обеспечивает необходимые безопасные габариты для линий высокого напряжения. Конический граненый ствол имеет нижний диаметр 730 миллиметров и верхний диаметр 400 миллиметров, что гарантирует оптимальную устойчивость и распределение нагрузок. Стойка изготавливается из конструкционной стали марки С245 и защищается от коррозии методом горячего цинкования. Она рассчитана на эксплуатацию в ветровых и гололедных районах I-IV и совместима с монтажом путем фланцевого соединения с фундаментом.

Конструкция стойки ПМ220-3 представляет собой конический граненый ствол, собираемый из секций. Схема подвески проводов запроектирована с вертикальным расположением фаз, что является типовым решением для линий данного класса напряжения. Провода и тросы закрепляются на траверсах с помощью подвесного крепления. Монтаж опоры в рабочее положение осуществляется путем установки собранной конструкции на заранее подготовленный фундамент и соединения через опорный фланец высокопрочными болтами. В качестве фундамента согласно проекту может применяться забетонированная стальная труба с ответным фланцем, что обеспечивает надежное и жесткое основание. Данный метод требует точности при подготовке, но гарантирует высокую устойчивость опоры.

[~DETAIL_TEXT] =>

Многогранная стойка ПМ220-3, производимая по типовому проекту 26.0033, представляет собой основной несущий элемент для сборки промежуточных опор воздушных линий электропередачи напряжением 220 кВ. Данная стойка предназначена для создания свободностоящих конструкций, поддерживающих провода и тросы на прямых участках трассы. Общая высота собранной опоры составляет 34,4 метра, что обеспечивает необходимые безопасные габариты для линий высокого напряжения. Конический граненый ствол имеет нижний диаметр 730 миллиметров и верхний диаметр 400 миллиметров, что гарантирует оптимальную устойчивость и распределение нагрузок. Стойка изготавливается из конструкционной стали марки С245 и защищается от коррозии методом горячего цинкования. Она рассчитана на эксплуатацию в ветровых и гололедных районах I-IV и совместима с монтажом путем фланцевого соединения с фундаментом.

Конструкция стойки ПМ220-3 представляет собой конический граненый ствол, собираемый из секций. Схема подвески проводов запроектирована с вертикальным расположением фаз, что является типовым решением для линий данного класса напряжения. Провода и тросы закрепляются на траверсах с помощью подвесного крепления. Монтаж опоры в рабочее положение осуществляется путем установки собранной конструкции на заранее подготовленный фундамент и соединения через опорный фланец высокопрочными болтами. В качестве фундамента согласно проекту может применяться забетонированная стальная труба с ответным фланцем, что обеспечивает надежное и жесткое основание. Данный метод требует точности при подготовке, но гарантирует высокую устойчивость опоры.

[DETAIL_TEXT_TYPE] => html [~DETAIL_TEXT_TYPE] => html [DATE_CREATE] => 07.11.2023 15:10:02 [~DATE_CREATE] => 07.11.2023 15:10:02 [CREATED_BY] => 1 [~CREATED_BY] => 1 [TAGS] => [~TAGS] => [TIMESTAMP_X] => 15.12.2025 12:05:18 [~TIMESTAMP_X] => 15.12.2025 12:05:18 [MODIFIED_BY] => 1 [~MODIFIED_BY] => 1 [IBLOCK_SECTION_ID] => 2756 [~IBLOCK_SECTION_ID] => 2959 [DETAIL_PAGE_URL] => /product/pm220-3/ [~DETAIL_PAGE_URL] => /product/pm220-3/ [DETAIL_PICTURE] => [~DETAIL_PICTURE] => [PREVIEW_PICTURE] => Array ( [ID] => 35283 [TIMESTAMP_X] => 15.12.2025 12:05:18 [MODULE_ID] => iblock [HEIGHT] => 1000 [WIDTH] => 1000 [FILE_SIZE] => 134571 [CONTENT_TYPE] => image/jpeg [SUBDIR] => iblock/305/7z9aebtn8n0wm1rf66dlm410pw06pvit [FILE_NAME] => catalog_file_2089_l.jpg [ORIGINAL_NAME] => catalog-file-2089-l.jpg [DESCRIPTION] => [HANDLER_ID] => [EXTERNAL_ID] => ca92799e2b030db988e6cbec97814349 [VERSION_ORIGINAL_ID] => [META] => [SRC] => /upload/dev2fun.imagecompress/webp/iblock/305/7z9aebtn8n0wm1rf66dlm410pw06pvit/catalog_file_2089_l.webp [UNSAFE_SRC] => /upload/dev2fun.imagecompress/webp/iblock/305/7z9aebtn8n0wm1rf66dlm410pw06pvit/catalog_file_2089_l.webp [SAFE_SRC] => /upload/dev2fun.imagecompress/webp/iblock/305/7z9aebtn8n0wm1rf66dlm410pw06pvit/catalog_file_2089_l.webp [ALT] => Многогранная стойка для опоры ПМ220-3 [TITLE] => Многогранная стойка для опоры ПМ220-3 ) [~PREVIEW_PICTURE] => 35283 [LANG_DIR] => / [~LANG_DIR] => / [EXTERNAL_ID] => 15368 [~EXTERNAL_ID] => 15368 [IBLOCK_TYPE_ID] => catalog [~IBLOCK_TYPE_ID] => catalog [IBLOCK_CODE] => metalstructures [~IBLOCK_CODE] => metalstructures [IBLOCK_EXTERNAL_ID] => clothes [~IBLOCK_EXTERNAL_ID] => clothes [LID] => s1 [~LID] => s1 [IPROPERTY_VALUES] => Array ( [ELEMENT_DETAIL_PICTURE_FILE_NAME] => [ELEMENT_PREVIEW_PICTURE_FILE_NAME] => [SECTION_DETAIL_PICTURE_FILE_NAME] => [SECTION_PICTURE_FILE_NAME] => [SECTION_PAGE_TITLE] => Многогранная стойка для опоры ПМ220-3 [ELEMENT_PAGE_TITLE] => Многогранная стойка для опоры ПМ220-3 [SECTION_META_TITLE] => Многогранные стойки опор ВЛ 220 кВ по шифру 26.0033 купить в {{rp}} на сайте производителя НПО Легион [SECTION_META_DESCRIPTION] => Производство многогранных стоек опор ВЛ 220 кВ по шифру 26.0033. Купить напрямую у производителя в {{rp}}. Собственное производство. Наличие товара на складе. Звоните ☎ {{subdomain_tel}} [SECTION_META_KEYWORDS] => Многоранные опоры ЛЭП производство продажа купить многогранных стоек опор ВЛ 220 кВ по шифру 26.0033 для линий электропередач [ELEMENT_META_TITLE] => Многогранная стойка для опоры ПМ220-3 для высоковольтных линий 220 кВ купить в {{rp}} на сайте производителя НПО Легион [ELEMENT_META_DESCRIPTION] => Производство стальных многогранных стоек для опор ПМ220-3 для высоковольтных линий 220 кВ по шифру 26.0033 в {{rp}}. Заказать многогранные стойки для опор ВЛ 220 кВ у производителя НПО Легион. Наличие товара на складе. Звоните ☎ {{subdomain_tel}} [ELEMENT_META_KEYWORDS] => Стальные многогранные стойки для опор ПМ220-3 ЛЭП производство продажа купить многогранные ВЛ 220кВ для линий электропередач шифру 26.0033 ) [PRODUCT] => Array ( [TYPE] => 1 [AVAILABLE] => Y [BUNDLE] => N [QUANTITY] => 10 [QUANTITY_TRACE] => N [CAN_BUY_ZERO] => Y [MEASURE] => 5 [SUBSCRIBE] => Y [VAT_ID] => 0 [VAT_RATE] => 0 [VAT_INCLUDED] => N [WEIGHT] => 0 [WIDTH] => 0 [LENGTH] => 0 [HEIGHT] => 0 [PAYMENT_TYPE] => S [RECUR_SCHEME_TYPE] => D [RECUR_SCHEME_LENGTH] => 0 [TRIAL_PRICE_ID] => 0 [USE_OFFERS] => ) [~CATALOG_TYPE] => 1 [CATALOG_TYPE] => 1 [~CATALOG_QUANTITY] => 10 [CATALOG_QUANTITY] => 10 [~CATALOG_QUANTITY_TRACE] => N [CATALOG_QUANTITY_TRACE] => N [~CATALOG_CAN_BUY_ZERO] => Y [CATALOG_CAN_BUY_ZERO] => Y [~CATALOG_SUBSCRIBE] => Y [CATALOG_SUBSCRIBE] => Y [PROPERTIES] => Array ( [ITEM_DELIVERY] => Array ( [ID] => 20 [IBLOCK_ID] => 2 [NAME] => Доставка [ACTIVE] => Y [SORT] => 1 [CODE] => ITEM_DELIVERY [DEFAULT_VALUE] => [PROPERTY_TYPE] => L [ROW_COUNT] => 1 [COL_COUNT] => 30 [LIST_TYPE] => L [MULTIPLE] => N [XML_ID] => 20 [FILE_TYPE] => [MULTIPLE_CNT] => 5 [LINK_IBLOCK_ID] => 0 [WITH_DESCRIPTION] => N [SEARCHABLE] => N [FILTRABLE] => N [IS_REQUIRED] => Y [VERSION] => 1 [USER_TYPE] => [USER_TYPE_SETTINGS] => Array ( ) [HINT] => [~NAME] => Доставка [~DEFAULT_VALUE] => [VALUE_ENUM] => По России и СНГ [VALUE_XML_ID] => ru-sng [VALUE_SORT] => 1 [VALUE] => По России и СНГ [PROPERTY_VALUE_ID] => 6825427 [VALUE_ENUM_ID] => 7 [DESCRIPTION] => [~VALUE] => По России и СНГ [~DESCRIPTION] => ) [ITEM_PAYMENT] => Array ( [ID] => 21 [IBLOCK_ID] => 2 [NAME] => Оплата [ACTIVE] => Y [SORT] => 2 [CODE] => ITEM_PAYMENT [DEFAULT_VALUE] => [PROPERTY_TYPE] => L [ROW_COUNT] => 1 [COL_COUNT] => 30 [LIST_TYPE] => L [MULTIPLE] => N [XML_ID] => 21 [FILE_TYPE] => [MULTIPLE_CNT] => 5 [LINK_IBLOCK_ID] => 0 [WITH_DESCRIPTION] => N [SEARCHABLE] => N [FILTRABLE] => N [IS_REQUIRED] => Y [VERSION] => 1 [USER_TYPE] => [USER_TYPE_SETTINGS] => Array ( ) [HINT] => [~NAME] => Оплата [~DEFAULT_VALUE] => [VALUE_ENUM] => Безналичный расчет [VALUE_XML_ID] => payment-bank [VALUE_SORT] => 1 [VALUE] => Безналичный расчет [PROPERTY_VALUE_ID] => 6825428 [VALUE_ENUM_ID] => 8 [DESCRIPTION] => [~VALUE] => Безналичный расчет [~DESCRIPTION] => ) [ITEM_PRICE] => Array ( [ID] => 22 [IBLOCK_ID] => 2 [NAME] => Цена [ACTIVE] => Y [SORT] => 3 [CODE] => ITEM_PRICE [DEFAULT_VALUE] => [PROPERTY_TYPE] => L [ROW_COUNT] => 1 [COL_COUNT] => 30 [LIST_TYPE] => L [MULTIPLE] => N [XML_ID] => 22 [FILE_TYPE] => [MULTIPLE_CNT] => 5 [LINK_IBLOCK_ID] => 0 [WITH_DESCRIPTION] => N [SEARCHABLE] => N [FILTRABLE] => N [IS_REQUIRED] => Y [VERSION] => 1 [USER_TYPE] => [USER_TYPE_SETTINGS] => Array ( ) [HINT] => [~NAME] => Цена [~DEFAULT_VALUE] => [VALUE_ENUM] => По запросу [VALUE_XML_ID] => on-request [VALUE_SORT] => 1 [VALUE] => По запросу [PROPERTY_VALUE_ID] => 6825429 [VALUE_ENUM_ID] => 9 [DESCRIPTION] => [~VALUE] => По запросу [~DESCRIPTION] => ) [ITEM_IMAGES] => Array ( [ID] => 23 [IBLOCK_ID] => 2 [NAME] => Изображения [ACTIVE] => Y [SORT] => 4 [CODE] => ITEM_IMAGES [DEFAULT_VALUE] => [PROPERTY_TYPE] => F [ROW_COUNT] => 1 [COL_COUNT] => 30 [LIST_TYPE] => L [MULTIPLE] => Y [XML_ID] => 23 [FILE_TYPE] => [MULTIPLE_CNT] => 5 [LINK_IBLOCK_ID] => 0 [WITH_DESCRIPTION] => N [SEARCHABLE] => N [FILTRABLE] => N [IS_REQUIRED] => N [VERSION] => 1 [USER_TYPE] => [USER_TYPE_SETTINGS] => Array ( ) [HINT] => [~NAME] => Изображения [~DEFAULT_VALUE] => [VALUE_ENUM] => [VALUE_XML_ID] => [VALUE_SORT] => [VALUE] => Array ( [0] => 35284 ) [PROPERTY_VALUE_ID] => Array ( [0] => 5932984 ) [DESCRIPTION] => Array ( [0] => ) [~VALUE] => Array ( [0] => 35284 ) [~DESCRIPTION] => Array ( [0] => ) ) [ITEM_PROPERTIES] => Array ( [ID] => 24 [IBLOCK_ID] => 2 [NAME] => Свойства [ACTIVE] => Y [SORT] => 5 [CODE] => ITEM_PROPERTIES [DEFAULT_VALUE] => [PROPERTY_TYPE] => E [ROW_COUNT] => 1 [COL_COUNT] => 30 [LIST_TYPE] => L [MULTIPLE] => Y [XML_ID] => 24 [FILE_TYPE] => [MULTIPLE_CNT] => 1 [LINK_IBLOCK_ID] => 3 [WITH_DESCRIPTION] => N [SEARCHABLE] => N [FILTRABLE] => N [IS_REQUIRED] => N [VERSION] => 1 [USER_TYPE] => [USER_TYPE_SETTINGS] => Array ( ) [HINT] => [~NAME] => Свойства [~DEFAULT_VALUE] => [VALUE_ENUM] => [VALUE_XML_ID] => [VALUE_SORT] => [VALUE] => [PROPERTY_VALUE_ID] => [DESCRIPTION] => [~DESCRIPTION] => [~VALUE] => ) [ITEM_CHARACTERISTICS] => Array ( [ID] => 28 [IBLOCK_ID] => 2 [NAME] => Характеристики [ACTIVE] => Y [SORT] => 6 [CODE] => ITEM_CHARACTERISTICS [DEFAULT_VALUE] => [PROPERTY_TYPE] => S [ROW_COUNT] => 1 [COL_COUNT] => 20 [LIST_TYPE] => L [MULTIPLE] => Y [XML_ID] => 28 [FILE_TYPE] => [MULTIPLE_CNT] => 1 [LINK_IBLOCK_ID] => 0 [WITH_DESCRIPTION] => Y [SEARCHABLE] => N [FILTRABLE] => N [IS_REQUIRED] => N [VERSION] => 1 [USER_TYPE] => [USER_TYPE_SETTINGS] => Array ( ) [HINT] => [~NAME] => Характеристики [~DEFAULT_VALUE] => [VALUE_ENUM] => [VALUE_XML_ID] => [VALUE_SORT] => [VALUE] => Array ( [0] => фланцевая [1] => граненая [2] => 34400 [3] => 19200 [4] => 400 [5] => 730 [6] => промежуточная [7] => Горячее цинкование [8] => Порошковое / полимерное окрашивание [9] => 30 лет ) [PROPERTY_VALUE_ID] => Array ( [0] => 6825430 [1] => 6825431 [2] => 6825432 [3] => 6825433 [4] => 6825434 [5] => 6825435 [6] => 6825436 [7] => 6825437 [8] => 6825438 [9] => 6825439 ) [DESCRIPTION] => Array ( [0] => Способ установки [1] => Способ производства [2] => Высота, мм [3] => Высота до нижней траверсы, мм [4] => Диаметр верхний, мм [5] => Диаметр нижний, мм [6] => Назначение [7] => Защитное покрытие [8] => Лакокрасочное покрытие [9] => Срок службы ) [~VALUE] => Array ( [0] => фланцевая [1] => граненая [2] => 34400 [3] => 19200 [4] => 400 [5] => 730 [6] => промежуточная [7] => Горячее цинкование [8] => Порошковое / полимерное окрашивание [9] => 30 лет ) [~DESCRIPTION] => Array ( [0] => Способ установки [1] => Способ производства [2] => Высота, мм [3] => Высота до нижней траверсы, мм [4] => Диаметр верхний, мм [5] => Диаметр нижний, мм [6] => Назначение [7] => Защитное покрытие [8] => Лакокрасочное покрытие [9] => Срок службы ) ) [ITEM_FILTER] => Array ( [ID] => 40 [IBLOCK_ID] => 2 [NAME] => Фильтр [ACTIVE] => Y [SORT] => 7 [CODE] => ITEM_FILTER [DEFAULT_VALUE] => [PROPERTY_TYPE] => S [ROW_COUNT] => 1 [COL_COUNT] => 30 [LIST_TYPE] => L [MULTIPLE] => N [XML_ID] => 40 [FILE_TYPE] => [MULTIPLE_CNT] => 5 [LINK_IBLOCK_ID] => 0 [WITH_DESCRIPTION] => N [SEARCHABLE] => N [FILTRABLE] => N [IS_REQUIRED] => N [VERSION] => 1 [USER_TYPE] => [USER_TYPE_SETTINGS] => Array ( ) [HINT] => [~NAME] => Фильтр [~DEFAULT_VALUE] => [VALUE_ENUM] => [VALUE_XML_ID] => [VALUE_SORT] => [VALUE] => [PROPERTY_VALUE_ID] => [DESCRIPTION] => [~DESCRIPTION] => [~VALUE] => ) [ITEM_TECH_CH] => Array ( [ID] => 29 [IBLOCK_ID] => 2 [NAME] => Технические характеристики [ACTIVE] => Y [SORT] => 8 [CODE] => ITEM_TECH_CH [DEFAULT_VALUE] => Array ( [TYPE] => HTML [TEXT] => ) [PROPERTY_TYPE] => S [ROW_COUNT] => 1 [COL_COUNT] => 30 [LIST_TYPE] => L [MULTIPLE] => N [XML_ID] => 29 [FILE_TYPE] => [MULTIPLE_CNT] => 5 [LINK_IBLOCK_ID] => 0 [WITH_DESCRIPTION] => N [SEARCHABLE] => N [FILTRABLE] => N [IS_REQUIRED] => N [VERSION] => 1 [USER_TYPE] => HTML [USER_TYPE_SETTINGS] => Array ( [height] => 200 ) [HINT] => [~NAME] => Технические характеристики [~DEFAULT_VALUE] => Array ( [TYPE] => HTML [TEXT] => ) [VALUE_ENUM] => [VALUE_XML_ID] => [VALUE_SORT] => [VALUE] => Array ( [TEXT] => <p style="text-align: justify;"> Стойка ПМ220-3 применяется для сооружения промежуточных опор на прямых участках одноцепных и двухцепных магистральных линий 220 кВ. Она используется при строительстве новых высоковольтных линий, обеспечивая поддержку проводов с вертикальным расположением фаз. Конструкция востребована при реконструкции и модернизации существующих воздушных линий, где требуется замена устаревших опор на современные многогранные. Благодаря значительной высоте и свободностоящему исполнению опоры на основе этой стойки эффективны на участках, требующих увеличенных габаритов, или там, где установка оттяжек нежелательна. Универсальность стойки позволяет использовать ее в различных климатических зонах. </p> [TYPE] => HTML ) [PROPERTY_VALUE_ID] => 6825440 [DESCRIPTION] => [~VALUE] => Array ( [TEXT] =>

Стойка ПМ220-3 применяется для сооружения промежуточных опор на прямых участках одноцепных и двухцепных магистральных линий 220 кВ. Она используется при строительстве новых высоковольтных линий, обеспечивая поддержку проводов с вертикальным расположением фаз. Конструкция востребована при реконструкции и модернизации существующих воздушных линий, где требуется замена устаревших опор на современные многогранные. Благодаря значительной высоте и свободностоящему исполнению опоры на основе этой стойки эффективны на участках, требующих увеличенных габаритов, или там, где установка оттяжек нежелательна. Универсальность стойки позволяет использовать ее в различных климатических зонах.

[TYPE] => HTML ) [~DESCRIPTION] => ) [ITEM_ADV_DESCR] => Array ( [ID] => 30 [IBLOCK_ID] => 2 [NAME] => Преимущества (описание) [ACTIVE] => Y [SORT] => 9 [CODE] => ITEM_ADV_DESCR [DEFAULT_VALUE] => Array ( [TYPE] => HTML [TEXT] => ) [PROPERTY_TYPE] => S [ROW_COUNT] => 1 [COL_COUNT] => 30 [LIST_TYPE] => L [MULTIPLE] => N [XML_ID] => 30 [FILE_TYPE] => [MULTIPLE_CNT] => 5 [LINK_IBLOCK_ID] => 0 [WITH_DESCRIPTION] => N [SEARCHABLE] => N [FILTRABLE] => N [IS_REQUIRED] => N [VERSION] => 1 [USER_TYPE] => HTML [USER_TYPE_SETTINGS] => Array ( [height] => 100 ) [HINT] => [~NAME] => Преимущества (описание) [~DEFAULT_VALUE] => Array ( [TYPE] => HTML [TEXT] => ) [VALUE_ENUM] => [VALUE_XML_ID] => [VALUE_SORT] => [VALUE] => Array ( [TEXT] => <p style="text-align: justify;"> Использование многогранных стоек ПМ220-3 от НПО «Легион» обеспечивает ряд ключевых преимуществ для строительства надежных высоковольтных линий. Технология горячего цинкования создает на поверхности металла сплошной защитный барьер, гарантируя стойкость к коррозии и длительный срок службы в условиях открытой атмосферы. Свободностоящая конструкция без оттяжек экономит занимаемую площадь, упрощает обслуживание трассы и снижает объем земляных работ. Унификация размеров и соответствие типовому проекту 26.0033 обеспечивают полную взаимозаменяемость стоек и их легкую интеграцию в проекты различного масштаба. Продуманная коническая форма ствола и применение качественной стали обеспечивают высокую несущую способность и устойчивость к ветровым и гололедным нагрузкам в расчетных районах. Каждое изделие проходит строгий контроль качества. </p> [TYPE] => HTML ) [PROPERTY_VALUE_ID] => 6825441 [DESCRIPTION] => [~VALUE] => Array ( [TEXT] =>

Использование многогранных стоек ПМ220-3 от НПО «Легион» обеспечивает ряд ключевых преимуществ для строительства надежных высоковольтных линий. Технология горячего цинкования создает на поверхности металла сплошной защитный барьер, гарантируя стойкость к коррозии и длительный срок службы в условиях открытой атмосферы. Свободностоящая конструкция без оттяжек экономит занимаемую площадь, упрощает обслуживание трассы и снижает объем земляных работ. Унификация размеров и соответствие типовому проекту 26.0033 обеспечивают полную взаимозаменяемость стоек и их легкую интеграцию в проекты различного масштаба. Продуманная коническая форма ствола и применение качественной стали обеспечивают высокую несущую способность и устойчивость к ветровым и гололедным нагрузкам в расчетных районах. Каждое изделие проходит строгий контроль качества.

[TYPE] => HTML ) [~DESCRIPTION] => ) [ITEM_ADV] => Array ( [ID] => 31 [IBLOCK_ID] => 2 [NAME] => Преимущества [ACTIVE] => Y [SORT] => 10 [CODE] => ITEM_ADV [DEFAULT_VALUE] => [PROPERTY_TYPE] => E [ROW_COUNT] => 1 [COL_COUNT] => 30 [LIST_TYPE] => L [MULTIPLE] => Y [XML_ID] => 31 [FILE_TYPE] => [MULTIPLE_CNT] => 1 [LINK_IBLOCK_ID] => 5 [WITH_DESCRIPTION] => N [SEARCHABLE] => N [FILTRABLE] => N [IS_REQUIRED] => N [VERSION] => 1 [USER_TYPE] => [USER_TYPE_SETTINGS] => Array ( ) [HINT] => [~NAME] => Преимущества [~DEFAULT_VALUE] => [VALUE_ENUM] => [VALUE_XML_ID] => [VALUE_SORT] => [VALUE] => [PROPERTY_VALUE_ID] => [DESCRIPTION] => [~DESCRIPTION] => [~VALUE] => ) [ITEM_BUY] => Array ( [ID] => 32 [IBLOCK_ID] => 2 [NAME] => Купить [ACTIVE] => Y [SORT] => 11 [CODE] => ITEM_BUY [DEFAULT_VALUE] => Array ( [TEXT] => [TYPE] => HTML ) [PROPERTY_TYPE] => S [ROW_COUNT] => 1 [COL_COUNT] => 30 [LIST_TYPE] => L [MULTIPLE] => N [XML_ID] => 32 [FILE_TYPE] => [MULTIPLE_CNT] => 5 [LINK_IBLOCK_ID] => 0 [WITH_DESCRIPTION] => N [SEARCHABLE] => N [FILTRABLE] => N [IS_REQUIRED] => N [VERSION] => 1 [USER_TYPE] => HTML [USER_TYPE_SETTINGS] => Array ( [height] => 200 ) [HINT] => [~NAME] => Купить [~DEFAULT_VALUE] => Array ( [TEXT] => [TYPE] => HTML ) [VALUE_ENUM] => [VALUE_XML_ID] => [VALUE_SORT] => [VALUE] => Array ( [TEXT] => <p style="text-align: justify;"> НПО «Легион» специализируется на производстве металлоконструкций для энергетики и готово выполнить заказ на изготовление и поставку многогранных стоек ПМ220-3. Мы предлагаем комплексные решения, включая технические консультации по проектированию узлов крепления и выбору типа фундамента. Для расчета стоимости партии, получения подробных технических характеристик или оформления заказа свяжитесь с нашими специалистами. Мы обеспечим своевременное производство и доставку продукции в любой регион Российской Федерации. </p> <p style="text-align: justify;"> </p> <p style="text-align: justify;"> Телефон: 8(800)500-51-37<br> Email: <a href="mailto:info@legionural.ru">info@legionural.ru</a> </p> <p> <a href="mailto:info@legionural.ru"></a> </p> [TYPE] => HTML ) [PROPERTY_VALUE_ID] => 6825442 [DESCRIPTION] => [~VALUE] => Array ( [TEXT] =>

НПО «Легион» специализируется на производстве металлоконструкций для энергетики и готово выполнить заказ на изготовление и поставку многогранных стоек ПМ220-3. Мы предлагаем комплексные решения, включая технические консультации по проектированию узлов крепления и выбору типа фундамента. Для расчета стоимости партии, получения подробных технических характеристик или оформления заказа свяжитесь с нашими специалистами. Мы обеспечим своевременное производство и доставку продукции в любой регион Российской Федерации.

Телефон: 8(800)500-51-37
Email: info@legionural.ru

[TYPE] => HTML ) [~DESCRIPTION] => ) [ITEM_CERT_COR] => Array ( [ID] => 33 [IBLOCK_ID] => 2 [NAME] => Сертификаты соответствия [ACTIVE] => Y [SORT] => 12 [CODE] => ITEM_CERT_COR [DEFAULT_VALUE] => [PROPERTY_TYPE] => S [ROW_COUNT] => 1 [COL_COUNT] => 30 [LIST_TYPE] => L [MULTIPLE] => Y [XML_ID] => 33 [FILE_TYPE] => [MULTIPLE_CNT] => 1 [LINK_IBLOCK_ID] => 0 [WITH_DESCRIPTION] => Y [SEARCHABLE] => N [FILTRABLE] => N [IS_REQUIRED] => N [VERSION] => 1 [USER_TYPE] => [USER_TYPE_SETTINGS] => Array ( ) [HINT] => [~NAME] => Сертификаты соответствия [~DEFAULT_VALUE] => [VALUE_ENUM] => [VALUE_XML_ID] => [VALUE_SORT] => [VALUE] => [PROPERTY_VALUE_ID] => [DESCRIPTION] => [~DESCRIPTION] => [~VALUE] => ) [ITEM_ST_STAND] => Array ( [ID] => 34 [IBLOCK_ID] => 2 [NAME] => Государственные стандарты [ACTIVE] => Y [SORT] => 13 [CODE] => ITEM_ST_STAND [DEFAULT_VALUE] => [PROPERTY_TYPE] => S [ROW_COUNT] => 1 [COL_COUNT] => 30 [LIST_TYPE] => L [MULTIPLE] => Y [XML_ID] => 34 [FILE_TYPE] => [MULTIPLE_CNT] => 1 [LINK_IBLOCK_ID] => 0 [WITH_DESCRIPTION] => Y [SEARCHABLE] => N [FILTRABLE] => N [IS_REQUIRED] => N [VERSION] => 1 [USER_TYPE] => [USER_TYPE_SETTINGS] => Array ( ) [HINT] => [~NAME] => Государственные стандарты [~DEFAULT_VALUE] => [VALUE_ENUM] => [VALUE_XML_ID] => [VALUE_SORT] => [VALUE] => [PROPERTY_VALUE_ID] => [DESCRIPTION] => [~DESCRIPTION] => [~VALUE] => ) [ITEM_NORM] => Array ( [ID] => 35 [IBLOCK_ID] => 2 [NAME] => Строительные нормы и правила [ACTIVE] => Y [SORT] => 14 [CODE] => ITEM_NORM [DEFAULT_VALUE] => [PROPERTY_TYPE] => S [ROW_COUNT] => 1 [COL_COUNT] => 30 [LIST_TYPE] => L [MULTIPLE] => Y [XML_ID] => 35 [FILE_TYPE] => [MULTIPLE_CNT] => 1 [LINK_IBLOCK_ID] => 0 [WITH_DESCRIPTION] => Y [SEARCHABLE] => N [FILTRABLE] => N [IS_REQUIRED] => N [VERSION] => 1 [USER_TYPE] => [USER_TYPE_SETTINGS] => Array ( ) [HINT] => [~NAME] => Строительные нормы и правила [~DEFAULT_VALUE] => [VALUE_ENUM] => [VALUE_XML_ID] => [VALUE_SORT] => [VALUE] => [PROPERTY_VALUE_ID] => [DESCRIPTION] => [~DESCRIPTION] => [~VALUE] => ) [ITEM_SIMILAR] => Array ( [ID] => 36 [IBLOCK_ID] => 2 [NAME] => Похожие модели [ACTIVE] => Y [SORT] => 15 [CODE] => ITEM_SIMILAR [DEFAULT_VALUE] => [PROPERTY_TYPE] => G [ROW_COUNT] => 1 [COL_COUNT] => 30 [LIST_TYPE] => L [MULTIPLE] => Y [XML_ID] => 36 [FILE_TYPE] => [MULTIPLE_CNT] => 10 [LINK_IBLOCK_ID] => 2 [WITH_DESCRIPTION] => N [SEARCHABLE] => N [FILTRABLE] => N [IS_REQUIRED] => N [VERSION] => 1 [USER_TYPE] => [USER_TYPE_SETTINGS] => Array ( ) [HINT] => [~NAME] => Похожие модели [~DEFAULT_VALUE] => [VALUE_ENUM] => [VALUE_XML_ID] => [VALUE_SORT] => [VALUE] => [PROPERTY_VALUE_ID] => [DESCRIPTION] => [~DESCRIPTION] => [~VALUE] => ) [ITEM_SIMILAR_TAGS] => Array ( [ID] => 122 [IBLOCK_ID] => 2 [NAME] => Похожие модели (теговые) [ACTIVE] => Y [SORT] => 16 [CODE] => ITEM_SIMILAR_TAGS [DEFAULT_VALUE] => [PROPERTY_TYPE] => E [ROW_COUNT] => 1 [COL_COUNT] => 30 [LIST_TYPE] => L [MULTIPLE] => Y [XML_ID] => 122 [FILE_TYPE] => [MULTIPLE_CNT] => 1 [LINK_IBLOCK_ID] => 19 [WITH_DESCRIPTION] => N [SEARCHABLE] => N [FILTRABLE] => N [IS_REQUIRED] => N [VERSION] => 1 [USER_TYPE] => [USER_TYPE_SETTINGS] => Array ( ) [HINT] => [~NAME] => Похожие модели (теговые) [~DEFAULT_VALUE] => [VALUE_ENUM] => [VALUE_XML_ID] => [VALUE_SORT] => [VALUE] => [PROPERTY_VALUE_ID] => [DESCRIPTION] => [~DESCRIPTION] => [~VALUE] => ) [ITEM_BUY_WITH] => Array ( [ID] => 37 [IBLOCK_ID] => 2 [NAME] => С этим товаром покупают [ACTIVE] => Y [SORT] => 17 [CODE] => ITEM_BUY_WITH [DEFAULT_VALUE] => [PROPERTY_TYPE] => E [ROW_COUNT] => 1 [COL_COUNT] => 30 [LIST_TYPE] => L [MULTIPLE] => Y [XML_ID] => 37 [FILE_TYPE] => [MULTIPLE_CNT] => 1 [LINK_IBLOCK_ID] => 2 [WITH_DESCRIPTION] => N [SEARCHABLE] => N [FILTRABLE] => N [IS_REQUIRED] => N [VERSION] => 1 [USER_TYPE] => [USER_TYPE_SETTINGS] => Array ( ) [HINT] => [~NAME] => С этим товаром покупают [~DEFAULT_VALUE] => [VALUE_ENUM] => [VALUE_XML_ID] => [VALUE_SORT] => [VALUE] => [PROPERTY_VALUE_ID] => [DESCRIPTION] => [~DESCRIPTION] => [~VALUE] => ) [ITEM_VOTE_COUNT] => Array ( [ID] => 38 [IBLOCK_ID] => 2 [NAME] => Количество голосов [ACTIVE] => Y [SORT] => 18 [CODE] => ITEM_VOTE_COUNT [DEFAULT_VALUE] => 0 [PROPERTY_TYPE] => N [ROW_COUNT] => 1 [COL_COUNT] => 30 [LIST_TYPE] => L [MULTIPLE] => N [XML_ID] => 38 [FILE_TYPE] => [MULTIPLE_CNT] => 5 [LINK_IBLOCK_ID] => 0 [WITH_DESCRIPTION] => N [SEARCHABLE] => N [FILTRABLE] => N [IS_REQUIRED] => N [VERSION] => 1 [USER_TYPE] => [USER_TYPE_SETTINGS] => Array ( ) [HINT] => [~NAME] => Количество голосов [~DEFAULT_VALUE] => 0 [VALUE_ENUM] => [VALUE_XML_ID] => [VALUE_SORT] => [VALUE] => 3 [PROPERTY_VALUE_ID] => 5932985 [DESCRIPTION] => [~VALUE] => 3 [~DESCRIPTION] => ) [ITEM_RAITING] => Array ( [ID] => 39 [IBLOCK_ID] => 2 [NAME] => Рейтинг [ACTIVE] => Y [SORT] => 19 [CODE] => ITEM_RAITING [DEFAULT_VALUE] => 0 [PROPERTY_TYPE] => N [ROW_COUNT] => 1 [COL_COUNT] => 30 [LIST_TYPE] => L [MULTIPLE] => N [XML_ID] => 39 [FILE_TYPE] => [MULTIPLE_CNT] => 5 [LINK_IBLOCK_ID] => 0 [WITH_DESCRIPTION] => N [SEARCHABLE] => N [FILTRABLE] => N [IS_REQUIRED] => N [VERSION] => 1 [USER_TYPE] => [USER_TYPE_SETTINGS] => Array ( ) [HINT] => [~NAME] => Рейтинг [~DEFAULT_VALUE] => 0 [VALUE_ENUM] => [VALUE_XML_ID] => [VALUE_SORT] => [VALUE] => 5 [PROPERTY_VALUE_ID] => 5932986 [DESCRIPTION] => [~VALUE] => 5 [~DESCRIPTION] => ) [H1] => Array ( [ID] => 125 [IBLOCK_ID] => 2 [NAME] => H1 [ACTIVE] => Y [SORT] => 500 [CODE] => H1 [DEFAULT_VALUE] => [PROPERTY_TYPE] => S [ROW_COUNT] => 1 [COL_COUNT] => 70 [LIST_TYPE] => L [MULTIPLE] => N [XML_ID] => 125 [FILE_TYPE] => [MULTIPLE_CNT] => 5 [LINK_IBLOCK_ID] => 0 [WITH_DESCRIPTION] => N [SEARCHABLE] => N [FILTRABLE] => N [IS_REQUIRED] => N [VERSION] => 1 [USER_TYPE] => [USER_TYPE_SETTINGS] => Array ( ) [HINT] => [~NAME] => H1 [~DEFAULT_VALUE] => [VALUE_ENUM] => [VALUE_XML_ID] => [VALUE_SORT] => [VALUE] => Многогранная стойка для опоры ПМ220-3 [PROPERTY_VALUE_ID] => 5945357 [DESCRIPTION] => [~VALUE] => Многогранная стойка для опоры ПМ220-3 [~DESCRIPTION] => ) [CERTIFICATES] => Array ( [ID] => 127 [IBLOCK_ID] => 2 [NAME] => Сертификаты [ACTIVE] => Y [SORT] => 500 [CODE] => CERTIFICATES [DEFAULT_VALUE] => [PROPERTY_TYPE] => E [ROW_COUNT] => 1 [COL_COUNT] => 30 [LIST_TYPE] => L [MULTIPLE] => Y [XML_ID] => 127 [FILE_TYPE] => [MULTIPLE_CNT] => 5 [LINK_IBLOCK_ID] => 7 [WITH_DESCRIPTION] => N [SEARCHABLE] => N [FILTRABLE] => N [IS_REQUIRED] => N [VERSION] => 1 [USER_TYPE] => [USER_TYPE_SETTINGS] => Array ( ) [HINT] => [~NAME] => Сертификаты [~DEFAULT_VALUE] => [VALUE_ENUM] => [VALUE_XML_ID] => [VALUE_SORT] => [VALUE] => [PROPERTY_VALUE_ID] => [DESCRIPTION] => [~DESCRIPTION] => [~VALUE] => ) [129] => Array ( [ID] => 129 [IBLOCK_ID] => 2 [NAME] => Уникальный META TITLE [ACTIVE] => Y [SORT] => 500 [CODE] => 129 [DEFAULT_VALUE] => [PROPERTY_TYPE] => S [ROW_COUNT] => 1 [COL_COUNT] => 30 [LIST_TYPE] => L [MULTIPLE] => N [XML_ID] => 129 [FILE_TYPE] => [MULTIPLE_CNT] => 5 [LINK_IBLOCK_ID] => 0 [WITH_DESCRIPTION] => N [SEARCHABLE] => N [FILTRABLE] => N [IS_REQUIRED] => N [VERSION] => 1 [USER_TYPE] => [USER_TYPE_SETTINGS] => Array ( ) [HINT] => [~NAME] => Уникальный META TITLE [~DEFAULT_VALUE] => [VALUE_ENUM] => [VALUE_XML_ID] => [VALUE_SORT] => [VALUE] => [PROPERTY_VALUE_ID] => [DESCRIPTION] => [~DESCRIPTION] => [~VALUE] => ) [ITEM_TYPE] => Array ( [ID] => 134 [IBLOCK_ID] => 2 [NAME] => Тип [ACTIVE] => Y [SORT] => 500 [CODE] => ITEM_TYPE [DEFAULT_VALUE] => [PROPERTY_TYPE] => S [ROW_COUNT] => 1 [COL_COUNT] => 30 [LIST_TYPE] => L [MULTIPLE] => N [XML_ID] => [FILE_TYPE] => [MULTIPLE_CNT] => 5 [LINK_IBLOCK_ID] => 0 [WITH_DESCRIPTION] => N [SEARCHABLE] => N [FILTRABLE] => Y [IS_REQUIRED] => N [VERSION] => 1 [USER_TYPE] => [USER_TYPE_SETTINGS] => Array ( ) [HINT] => [~NAME] => Тип [~DEFAULT_VALUE] => [VALUE_ENUM] => [VALUE_XML_ID] => [VALUE_SORT] => [VALUE] => [PROPERTY_VALUE_ID] => [DESCRIPTION] => [~DESCRIPTION] => [~VALUE] => ) [ITEM_INSTALLATION] => Array ( [ID] => 135 [IBLOCK_ID] => 2 [NAME] => Способ установки [ACTIVE] => Y [SORT] => 500 [CODE] => ITEM_INSTALLATION [DEFAULT_VALUE] => [PROPERTY_TYPE] => S [ROW_COUNT] => 1 [COL_COUNT] => 30 [LIST_TYPE] => L [MULTIPLE] => N [XML_ID] => [FILE_TYPE] => [MULTIPLE_CNT] => 5 [LINK_IBLOCK_ID] => 0 [WITH_DESCRIPTION] => N [SEARCHABLE] => N [FILTRABLE] => N [IS_REQUIRED] => N [VERSION] => 1 [USER_TYPE] => [USER_TYPE_SETTINGS] => Array ( ) [HINT] => [~NAME] => Способ установки [~DEFAULT_VALUE] => [VALUE_ENUM] => [VALUE_XML_ID] => [VALUE_SORT] => [VALUE] => [PROPERTY_VALUE_ID] => [DESCRIPTION] => [~DESCRIPTION] => [~VALUE] => ) [ITEM_MODE] => Array ( [ID] => 136 [IBLOCK_ID] => 2 [NAME] => Способ производства [ACTIVE] => Y [SORT] => 500 [CODE] => ITEM_MODE [DEFAULT_VALUE] => [PROPERTY_TYPE] => S [ROW_COUNT] => 1 [COL_COUNT] => 30 [LIST_TYPE] => L [MULTIPLE] => N [XML_ID] => [FILE_TYPE] => [MULTIPLE_CNT] => 5 [LINK_IBLOCK_ID] => 0 [WITH_DESCRIPTION] => N [SEARCHABLE] => N [FILTRABLE] => N [IS_REQUIRED] => N [VERSION] => 1 [USER_TYPE] => [USER_TYPE_SETTINGS] => Array ( ) [HINT] => [~NAME] => Способ производства [~DEFAULT_VALUE] => [VALUE_ENUM] => [VALUE_XML_ID] => [VALUE_SORT] => [VALUE] => [PROPERTY_VALUE_ID] => [DESCRIPTION] => [~DESCRIPTION] => [~VALUE] => ) [ITEM_HEIGHT] => Array ( [ID] => 137 [IBLOCK_ID] => 2 [NAME] => Высота, мм [ACTIVE] => Y [SORT] => 500 [CODE] => ITEM_HEIGHT [DEFAULT_VALUE] => [PROPERTY_TYPE] => S [ROW_COUNT] => 1 [COL_COUNT] => 30 [LIST_TYPE] => L [MULTIPLE] => N [XML_ID] => [FILE_TYPE] => [MULTIPLE_CNT] => 5 [LINK_IBLOCK_ID] => 0 [WITH_DESCRIPTION] => N [SEARCHABLE] => N [FILTRABLE] => N [IS_REQUIRED] => N [VERSION] => 1 [USER_TYPE] => [USER_TYPE_SETTINGS] => Array ( ) [HINT] => [~NAME] => Высота, мм [~DEFAULT_VALUE] => [VALUE_ENUM] => [VALUE_XML_ID] => [VALUE_SORT] => [VALUE] => [PROPERTY_VALUE_ID] => [DESCRIPTION] => [~DESCRIPTION] => [~VALUE] => ) [BLOG_POST_ID] => Array ( [ID] => 138 [IBLOCK_ID] => 2 [NAME] => ID поста блога для комментариев [ACTIVE] => Y [SORT] => 500 [CODE] => BLOG_POST_ID [DEFAULT_VALUE] => [PROPERTY_TYPE] => N [ROW_COUNT] => 1 [COL_COUNT] => 30 [LIST_TYPE] => L [MULTIPLE] => N [XML_ID] => BLOG_POST_ID [FILE_TYPE] => [MULTIPLE_CNT] => 5 [LINK_IBLOCK_ID] => 0 [WITH_DESCRIPTION] => N [SEARCHABLE] => N [FILTRABLE] => N [IS_REQUIRED] => N [VERSION] => 1 [USER_TYPE] => [USER_TYPE_SETTINGS] => Array ( ) [HINT] => [~NAME] => ID поста блога для комментариев [~DEFAULT_VALUE] => [VALUE_ENUM] => [VALUE_XML_ID] => [VALUE_SORT] => [VALUE] => 1476 [PROPERTY_VALUE_ID] => 6775285 [DESCRIPTION] => [~VALUE] => 1476 [~DESCRIPTION] => ) [BLOG_COMMENTS_CNT] => Array ( [ID] => 139 [IBLOCK_ID] => 2 [NAME] => Количество комментариев [ACTIVE] => Y [SORT] => 500 [CODE] => BLOG_COMMENTS_CNT [DEFAULT_VALUE] => [PROPERTY_TYPE] => N [ROW_COUNT] => 1 [COL_COUNT] => 30 [LIST_TYPE] => L [MULTIPLE] => N [XML_ID] => BLOG_COMMENTS_CNT [FILE_TYPE] => [MULTIPLE_CNT] => 5 [LINK_IBLOCK_ID] => 0 [WITH_DESCRIPTION] => N [SEARCHABLE] => N [FILTRABLE] => N [IS_REQUIRED] => N [VERSION] => 1 [USER_TYPE] => [USER_TYPE_SETTINGS] => Array ( ) [HINT] => [~NAME] => Количество комментариев [~DEFAULT_VALUE] => [VALUE_ENUM] => [VALUE_XML_ID] => [VALUE_SORT] => [VALUE] => [PROPERTY_VALUE_ID] => [DESCRIPTION] => [~DESCRIPTION] => [~VALUE] => ) [HEIGHT_TOTAL] => Array ( [ID] => 143 [IBLOCK_ID] => 2 [NAME] => Высота общая, мм [ACTIVE] => Y [SORT] => 500 [CODE] => HEIGHT_TOTAL [DEFAULT_VALUE] => [PROPERTY_TYPE] => S [ROW_COUNT] => 1 [COL_COUNT] => 30 [LIST_TYPE] => L [MULTIPLE] => N [XML_ID] => [FILE_TYPE] => [MULTIPLE_CNT] => 5 [LINK_IBLOCK_ID] => 0 [WITH_DESCRIPTION] => N [SEARCHABLE] => N [FILTRABLE] => N [IS_REQUIRED] => N [VERSION] => 1 [USER_TYPE] => [USER_TYPE_SETTINGS] => Array ( ) [HINT] => [~NAME] => Высота общая, мм [~DEFAULT_VALUE] => [VALUE_ENUM] => [VALUE_XML_ID] => [VALUE_SORT] => [VALUE] => [PROPERTY_VALUE_ID] => [DESCRIPTION] => [~DESCRIPTION] => [~VALUE] => ) [HEIGHT_ABOVEGROUND] => Array ( [ID] => 144 [IBLOCK_ID] => 2 [NAME] => Высота надземной части, мм [ACTIVE] => Y [SORT] => 500 [CODE] => HEIGHT_ABOVEGROUND [DEFAULT_VALUE] => [PROPERTY_TYPE] => S [ROW_COUNT] => 1 [COL_COUNT] => 30 [LIST_TYPE] => L [MULTIPLE] => N [XML_ID] => [FILE_TYPE] => [MULTIPLE_CNT] => 5 [LINK_IBLOCK_ID] => 0 [WITH_DESCRIPTION] => N [SEARCHABLE] => N [FILTRABLE] => N [IS_REQUIRED] => N [VERSION] => 1 [USER_TYPE] => [USER_TYPE_SETTINGS] => Array ( ) [HINT] => [~NAME] => Высота надземной части, мм [~DEFAULT_VALUE] => [VALUE_ENUM] => [VALUE_XML_ID] => [VALUE_SORT] => [VALUE] => [PROPERTY_VALUE_ID] => [DESCRIPTION] => [~DESCRIPTION] => [~VALUE] => ) [HEIGHT_UNDERGROUND] => Array ( [ID] => 145 [IBLOCK_ID] => 2 [NAME] => Высота подземной части, мм [ACTIVE] => Y [SORT] => 500 [CODE] => HEIGHT_UNDERGROUND [DEFAULT_VALUE] => [PROPERTY_TYPE] => S [ROW_COUNT] => 1 [COL_COUNT] => 30 [LIST_TYPE] => L [MULTIPLE] => N [XML_ID] => [FILE_TYPE] => [MULTIPLE_CNT] => 5 [LINK_IBLOCK_ID] => 0 [WITH_DESCRIPTION] => N [SEARCHABLE] => N [FILTRABLE] => N [IS_REQUIRED] => N [VERSION] => 1 [USER_TYPE] => [USER_TYPE_SETTINGS] => Array ( ) [HINT] => [~NAME] => Высота подземной части, мм [~DEFAULT_VALUE] => [VALUE_ENUM] => [VALUE_XML_ID] => [VALUE_SORT] => [VALUE] => [PROPERTY_VALUE_ID] => [DESCRIPTION] => [~DESCRIPTION] => [~VALUE] => ) [DIAMETER_TOP] => Array ( [ID] => 146 [IBLOCK_ID] => 2 [NAME] => Диаметр верхний, мм [ACTIVE] => Y [SORT] => 500 [CODE] => DIAMETER_TOP [DEFAULT_VALUE] => [PROPERTY_TYPE] => S [ROW_COUNT] => 1 [COL_COUNT] => 30 [LIST_TYPE] => L [MULTIPLE] => N [XML_ID] => [FILE_TYPE] => [MULTIPLE_CNT] => 5 [LINK_IBLOCK_ID] => 0 [WITH_DESCRIPTION] => N [SEARCHABLE] => N [FILTRABLE] => N [IS_REQUIRED] => N [VERSION] => 1 [USER_TYPE] => [USER_TYPE_SETTINGS] => Array ( ) [HINT] => [~NAME] => Диаметр верхний, мм [~DEFAULT_VALUE] => [VALUE_ENUM] => [VALUE_XML_ID] => [VALUE_SORT] => [VALUE] => [PROPERTY_VALUE_ID] => [DESCRIPTION] => [~DESCRIPTION] => [~VALUE] => ) [DIAMETER_BOTTOM] => Array ( [ID] => 147 [IBLOCK_ID] => 2 [NAME] => Диаметр нижний, мм [ACTIVE] => Y [SORT] => 500 [CODE] => DIAMETER_BOTTOM [DEFAULT_VALUE] => [PROPERTY_TYPE] => S [ROW_COUNT] => 1 [COL_COUNT] => 30 [LIST_TYPE] => L [MULTIPLE] => N [XML_ID] => [FILE_TYPE] => [MULTIPLE_CNT] => 5 [LINK_IBLOCK_ID] => 0 [WITH_DESCRIPTION] => N [SEARCHABLE] => N [FILTRABLE] => N [IS_REQUIRED] => N [VERSION] => 1 [USER_TYPE] => [USER_TYPE_SETTINGS] => Array ( ) [HINT] => [~NAME] => Диаметр нижний, мм [~DEFAULT_VALUE] => [VALUE_ENUM] => [VALUE_XML_ID] => [VALUE_SORT] => [VALUE] => [PROPERTY_VALUE_ID] => [DESCRIPTION] => [~DESCRIPTION] => [~VALUE] => ) [WEIGHT] => Array ( [ID] => 148 [IBLOCK_ID] => 2 [NAME] => Нагрузка, кг [ACTIVE] => Y [SORT] => 500 [CODE] => WEIGHT [DEFAULT_VALUE] => [PROPERTY_TYPE] => S [ROW_COUNT] => 1 [COL_COUNT] => 30 [LIST_TYPE] => L [MULTIPLE] => N [XML_ID] => [FILE_TYPE] => [MULTIPLE_CNT] => 5 [LINK_IBLOCK_ID] => 0 [WITH_DESCRIPTION] => N [SEARCHABLE] => N [FILTRABLE] => N [IS_REQUIRED] => N [VERSION] => 1 [USER_TYPE] => [USER_TYPE_SETTINGS] => Array ( ) [HINT] => [~NAME] => Нагрузка, кг [~DEFAULT_VALUE] => [VALUE_ENUM] => [VALUE_XML_ID] => [VALUE_SORT] => [VALUE] => [PROPERTY_VALUE_ID] => [DESCRIPTION] => [~DESCRIPTION] => [~VALUE] => ) [VID] => Array ( [ID] => 149 [IBLOCK_ID] => 2 [NAME] => Вид [ACTIVE] => Y [SORT] => 500 [CODE] => VID [DEFAULT_VALUE] => [PROPERTY_TYPE] => S [ROW_COUNT] => 1 [COL_COUNT] => 30 [LIST_TYPE] => L [MULTIPLE] => N [XML_ID] => [FILE_TYPE] => [MULTIPLE_CNT] => 5 [LINK_IBLOCK_ID] => 0 [WITH_DESCRIPTION] => N [SEARCHABLE] => N [FILTRABLE] => N [IS_REQUIRED] => N [VERSION] => 1 [USER_TYPE] => [USER_TYPE_SETTINGS] => Array ( ) [HINT] => [~NAME] => Вид [~DEFAULT_VALUE] => [VALUE_ENUM] => [VALUE_XML_ID] => [VALUE_SORT] => [VALUE] => [PROPERTY_VALUE_ID] => [DESCRIPTION] => [~DESCRIPTION] => [~VALUE] => ) [SERVICE_LIFE] => Array ( [ID] => 150 [IBLOCK_ID] => 2 [NAME] => Срок службы [ACTIVE] => Y [SORT] => 500 [CODE] => SERVICE_LIFE [DEFAULT_VALUE] => [PROPERTY_TYPE] => S [ROW_COUNT] => 1 [COL_COUNT] => 30 [LIST_TYPE] => L [MULTIPLE] => N [XML_ID] => [FILE_TYPE] => [MULTIPLE_CNT] => 5 [LINK_IBLOCK_ID] => 0 [WITH_DESCRIPTION] => N [SEARCHABLE] => N [FILTRABLE] => N [IS_REQUIRED] => N [VERSION] => 1 [USER_TYPE] => [USER_TYPE_SETTINGS] => Array ( ) [HINT] => [~NAME] => Срок службы [~DEFAULT_VALUE] => [VALUE_ENUM] => [VALUE_XML_ID] => [VALUE_SORT] => [VALUE] => [PROPERTY_VALUE_ID] => [DESCRIPTION] => [~DESCRIPTION] => [~VALUE] => ) [USING] => Array ( [ID] => 151 [IBLOCK_ID] => 2 [NAME] => Применение [ACTIVE] => Y [SORT] => 500 [CODE] => USING [DEFAULT_VALUE] => [PROPERTY_TYPE] => S [ROW_COUNT] => 1 [COL_COUNT] => 30 [LIST_TYPE] => L [MULTIPLE] => N [XML_ID] => [FILE_TYPE] => [MULTIPLE_CNT] => 5 [LINK_IBLOCK_ID] => 0 [WITH_DESCRIPTION] => N [SEARCHABLE] => N [FILTRABLE] => N [IS_REQUIRED] => N [VERSION] => 1 [USER_TYPE] => [USER_TYPE_SETTINGS] => Array ( ) [HINT] => [~NAME] => Применение [~DEFAULT_VALUE] => [VALUE_ENUM] => [VALUE_XML_ID] => [VALUE_SORT] => [VALUE] => [PROPERTY_VALUE_ID] => [DESCRIPTION] => [~DESCRIPTION] => [~VALUE] => ) [HEIGHT_ZAK] => Array ( [ID] => 152 [IBLOCK_ID] => 2 [NAME] => Высота закладного элемента фундамента [ACTIVE] => Y [SORT] => 500 [CODE] => HEIGHT_ZAK [DEFAULT_VALUE] => [PROPERTY_TYPE] => S [ROW_COUNT] => 1 [COL_COUNT] => 30 [LIST_TYPE] => L [MULTIPLE] => N [XML_ID] => [FILE_TYPE] => [MULTIPLE_CNT] => 5 [LINK_IBLOCK_ID] => 0 [WITH_DESCRIPTION] => N [SEARCHABLE] => N [FILTRABLE] => N [IS_REQUIRED] => N [VERSION] => 1 [USER_TYPE] => [USER_TYPE_SETTINGS] => Array ( ) [HINT] => [~NAME] => Высота закладного элемента фундамента [~DEFAULT_VALUE] => [VALUE_ENUM] => [VALUE_XML_ID] => [VALUE_SORT] => [VALUE] => [PROPERTY_VALUE_ID] => [DESCRIPTION] => [~DESCRIPTION] => [~VALUE] => ) [LENGTH_CONSOLE] => Array ( [ID] => 153 [IBLOCK_ID] => 2 [NAME] => Длина консоли [ACTIVE] => Y [SORT] => 500 [CODE] => LENGTH_CONSOLE [DEFAULT_VALUE] => [PROPERTY_TYPE] => S [ROW_COUNT] => 1 [COL_COUNT] => 30 [LIST_TYPE] => L [MULTIPLE] => N [XML_ID] => [FILE_TYPE] => [MULTIPLE_CNT] => 5 [LINK_IBLOCK_ID] => 0 [WITH_DESCRIPTION] => N [SEARCHABLE] => N [FILTRABLE] => N [IS_REQUIRED] => N [VERSION] => 1 [USER_TYPE] => [USER_TYPE_SETTINGS] => Array ( ) [HINT] => [~NAME] => Длина консоли [~DEFAULT_VALUE] => [VALUE_ENUM] => [VALUE_XML_ID] => [VALUE_SORT] => [VALUE] => [PROPERTY_VALUE_ID] => [DESCRIPTION] => [~DESCRIPTION] => [~VALUE] => ) [HEIGHT_TOP_SECTION] => Array ( [ID] => 154 [IBLOCK_ID] => 2 [NAME] => Высота верхней секции, мм [ACTIVE] => Y [SORT] => 500 [CODE] => HEIGHT_TOP_SECTION [DEFAULT_VALUE] => [PROPERTY_TYPE] => S [ROW_COUNT] => 1 [COL_COUNT] => 30 [LIST_TYPE] => L [MULTIPLE] => N [XML_ID] => [FILE_TYPE] => [MULTIPLE_CNT] => 5 [LINK_IBLOCK_ID] => 0 [WITH_DESCRIPTION] => N [SEARCHABLE] => N [FILTRABLE] => N [IS_REQUIRED] => N [VERSION] => 1 [USER_TYPE] => [USER_TYPE_SETTINGS] => Array ( ) [HINT] => [~NAME] => Высота верхней секции, мм [~DEFAULT_VALUE] => [VALUE_ENUM] => [VALUE_XML_ID] => [VALUE_SORT] => [VALUE] => [PROPERTY_VALUE_ID] => [DESCRIPTION] => [~DESCRIPTION] => [~VALUE] => ) [SIP] => Array ( [ID] => 156 [IBLOCK_ID] => 2 [NAME] => Возможность подвеса СИП [ACTIVE] => Y [SORT] => 500 [CODE] => SIP [DEFAULT_VALUE] => [PROPERTY_TYPE] => S [ROW_COUNT] => 1 [COL_COUNT] => 30 [LIST_TYPE] => L [MULTIPLE] => N [XML_ID] => [FILE_TYPE] => [MULTIPLE_CNT] => 5 [LINK_IBLOCK_ID] => 0 [WITH_DESCRIPTION] => N [SEARCHABLE] => N [FILTRABLE] => N [IS_REQUIRED] => N [VERSION] => 1 [USER_TYPE] => [USER_TYPE_SETTINGS] => Array ( ) [HINT] => [~NAME] => Возможность подвеса СИП [~DEFAULT_VALUE] => [VALUE_ENUM] => [VALUE_XML_ID] => [VALUE_SORT] => [VALUE] => [PROPERTY_VALUE_ID] => [DESCRIPTION] => [~DESCRIPTION] => [~VALUE] => ) [COUNT_GRANY] => Array ( [ID] => 157 [IBLOCK_ID] => 2 [NAME] => Количество граней [ACTIVE] => Y [SORT] => 500 [CODE] => COUNT_GRANY [DEFAULT_VALUE] => [PROPERTY_TYPE] => S [ROW_COUNT] => 1 [COL_COUNT] => 30 [LIST_TYPE] => L [MULTIPLE] => N [XML_ID] => [FILE_TYPE] => [MULTIPLE_CNT] => 5 [LINK_IBLOCK_ID] => 0 [WITH_DESCRIPTION] => N [SEARCHABLE] => N [FILTRABLE] => N [IS_REQUIRED] => N [VERSION] => 1 [USER_TYPE] => [USER_TYPE_SETTINGS] => Array ( ) [HINT] => [~NAME] => Количество граней [~DEFAULT_VALUE] => [VALUE_ENUM] => [VALUE_XML_ID] => [VALUE_SORT] => [VALUE] => [PROPERTY_VALUE_ID] => [DESCRIPTION] => [~DESCRIPTION] => [~VALUE] => ) [HEIGHT_BOTTOM_SECTION] => Array ( [ID] => 158 [IBLOCK_ID] => 2 [NAME] => Высота нижней секции, мм [ACTIVE] => Y [SORT] => 500 [CODE] => HEIGHT_BOTTOM_SECTION [DEFAULT_VALUE] => [PROPERTY_TYPE] => S [ROW_COUNT] => 1 [COL_COUNT] => 30 [LIST_TYPE] => L [MULTIPLE] => N [XML_ID] => [FILE_TYPE] => [MULTIPLE_CNT] => 5 [LINK_IBLOCK_ID] => 0 [WITH_DESCRIPTION] => N [SEARCHABLE] => N [FILTRABLE] => N [IS_REQUIRED] => N [VERSION] => 1 [USER_TYPE] => [USER_TYPE_SETTINGS] => Array ( ) [HINT] => [~NAME] => Высота нижней секции, мм [~DEFAULT_VALUE] => [VALUE_ENUM] => [VALUE_XML_ID] => [VALUE_SORT] => [VALUE] => [PROPERTY_VALUE_ID] => [DESCRIPTION] => [~DESCRIPTION] => [~VALUE] => ) [STEEL_THICKNESS] => Array ( [ID] => 160 [IBLOCK_ID] => 2 [NAME] => Толщина стали [ACTIVE] => Y [SORT] => 500 [CODE] => STEEL_THICKNESS [DEFAULT_VALUE] => [PROPERTY_TYPE] => S [ROW_COUNT] => 1 [COL_COUNT] => 30 [LIST_TYPE] => L [MULTIPLE] => N [XML_ID] => [FILE_TYPE] => [MULTIPLE_CNT] => 5 [LINK_IBLOCK_ID] => 0 [WITH_DESCRIPTION] => N [SEARCHABLE] => N [FILTRABLE] => N [IS_REQUIRED] => N [VERSION] => 1 [USER_TYPE] => [USER_TYPE_SETTINGS] => Array ( ) [HINT] => [~NAME] => Толщина стали [~DEFAULT_VALUE] => [VALUE_ENUM] => [VALUE_XML_ID] => [VALUE_SORT] => [VALUE] => [PROPERTY_VALUE_ID] => [DESCRIPTION] => [~DESCRIPTION] => [~VALUE] => ) [SIZE_OPOR_FLANEC] => Array ( [ID] => 161 [IBLOCK_ID] => 2 [NAME] => Размеры опорного фланца [ACTIVE] => Y [SORT] => 500 [CODE] => SIZE_OPOR_FLANEC [DEFAULT_VALUE] => [PROPERTY_TYPE] => S [ROW_COUNT] => 1 [COL_COUNT] => 30 [LIST_TYPE] => L [MULTIPLE] => N [XML_ID] => [FILE_TYPE] => [MULTIPLE_CNT] => 5 [LINK_IBLOCK_ID] => 0 [WITH_DESCRIPTION] => N [SEARCHABLE] => N [FILTRABLE] => N [IS_REQUIRED] => N [VERSION] => 1 [USER_TYPE] => [USER_TYPE_SETTINGS] => Array ( ) [HINT] => [~NAME] => Размеры опорного фланца [~DEFAULT_VALUE] => [VALUE_ENUM] => [VALUE_XML_ID] => [VALUE_SORT] => [VALUE] => [PROPERTY_VALUE_ID] => [DESCRIPTION] => [~DESCRIPTION] => [~VALUE] => ) [POKRASKA] => Array ( [ID] => 162 [IBLOCK_ID] => 2 [NAME] => Лакокрасочное покрытие [ACTIVE] => Y [SORT] => 500 [CODE] => POKRASKA [DEFAULT_VALUE] => [PROPERTY_TYPE] => S [ROW_COUNT] => 1 [COL_COUNT] => 30 [LIST_TYPE] => L [MULTIPLE] => N [XML_ID] => [FILE_TYPE] => [MULTIPLE_CNT] => 5 [LINK_IBLOCK_ID] => 0 [WITH_DESCRIPTION] => N [SEARCHABLE] => N [FILTRABLE] => N [IS_REQUIRED] => N [VERSION] => 1 [USER_TYPE] => [USER_TYPE_SETTINGS] => Array ( ) [HINT] => [~NAME] => Лакокрасочное покрытие [~DEFAULT_VALUE] => [VALUE_ENUM] => [VALUE_XML_ID] => [VALUE_SORT] => [VALUE] => [PROPERTY_VALUE_ID] => [DESCRIPTION] => [~DESCRIPTION] => [~VALUE] => ) [VES] => Array ( [ID] => 163 [IBLOCK_ID] => 2 [NAME] => Вес [ACTIVE] => Y [SORT] => 500 [CODE] => VES [DEFAULT_VALUE] => [PROPERTY_TYPE] => S [ROW_COUNT] => 1 [COL_COUNT] => 30 [LIST_TYPE] => L [MULTIPLE] => N [XML_ID] => [FILE_TYPE] => [MULTIPLE_CNT] => 5 [LINK_IBLOCK_ID] => 0 [WITH_DESCRIPTION] => N [SEARCHABLE] => N [FILTRABLE] => N [IS_REQUIRED] => N [VERSION] => 1 [USER_TYPE] => [USER_TYPE_SETTINGS] => Array ( ) [HINT] => [~NAME] => Вес [~DEFAULT_VALUE] => [VALUE_ENUM] => [VALUE_XML_ID] => [VALUE_SORT] => [VALUE] => [PROPERTY_VALUE_ID] => [DESCRIPTION] => [~DESCRIPTION] => [~VALUE] => ) [INSTALL_LYUCHKA] => Array ( [ID] => 164 [IBLOCK_ID] => 2 [NAME] => Возможность установки лючка [ACTIVE] => Y [SORT] => 500 [CODE] => INSTALL_LYUCHKA [DEFAULT_VALUE] => [PROPERTY_TYPE] => S [ROW_COUNT] => 1 [COL_COUNT] => 30 [LIST_TYPE] => L [MULTIPLE] => N [XML_ID] => [FILE_TYPE] => [MULTIPLE_CNT] => 5 [LINK_IBLOCK_ID] => 0 [WITH_DESCRIPTION] => N [SEARCHABLE] => N [FILTRABLE] => N [IS_REQUIRED] => N [VERSION] => 1 [USER_TYPE] => [USER_TYPE_SETTINGS] => Array ( ) [HINT] => [~NAME] => Возможность установки лючка [~DEFAULT_VALUE] => [VALUE_ENUM] => [VALUE_XML_ID] => [VALUE_SORT] => [VALUE] => [PROPERTY_VALUE_ID] => [DESCRIPTION] => [~DESCRIPTION] => [~VALUE] => ) [DIAMETER_FLANCA] => Array ( [ID] => 165 [IBLOCK_ID] => 2 [NAME] => Диаметр фланца, мм [ACTIVE] => Y [SORT] => 500 [CODE] => DIAMETER_FLANCA [DEFAULT_VALUE] => [PROPERTY_TYPE] => S [ROW_COUNT] => 1 [COL_COUNT] => 30 [LIST_TYPE] => L [MULTIPLE] => N [XML_ID] => [FILE_TYPE] => [MULTIPLE_CNT] => 5 [LINK_IBLOCK_ID] => 0 [WITH_DESCRIPTION] => N [SEARCHABLE] => N [FILTRABLE] => N [IS_REQUIRED] => N [VERSION] => 1 [USER_TYPE] => [USER_TYPE_SETTINGS] => Array ( ) [HINT] => [~NAME] => Диаметр фланца, мм [~DEFAULT_VALUE] => [VALUE_ENUM] => [VALUE_XML_ID] => [VALUE_SORT] => [VALUE] => [PROPERTY_VALUE_ID] => [DESCRIPTION] => [~DESCRIPTION] => [~VALUE] => ) [COUNT_LIGHT] => Array ( [ID] => 166 [IBLOCK_ID] => 2 [NAME] => Количество осветительных приборов, шт [ACTIVE] => Y [SORT] => 500 [CODE] => COUNT_LIGHT [DEFAULT_VALUE] => [PROPERTY_TYPE] => S [ROW_COUNT] => 1 [COL_COUNT] => 30 [LIST_TYPE] => L [MULTIPLE] => N [XML_ID] => [FILE_TYPE] => [MULTIPLE_CNT] => 5 [LINK_IBLOCK_ID] => 0 [WITH_DESCRIPTION] => N [SEARCHABLE] => N [FILTRABLE] => N [IS_REQUIRED] => N [VERSION] => 1 [USER_TYPE] => [USER_TYPE_SETTINGS] => Array ( ) [HINT] => [~NAME] => Количество осветительных приборов, шт [~DEFAULT_VALUE] => [VALUE_ENUM] => [VALUE_XML_ID] => [VALUE_SORT] => [VALUE] => [PROPERTY_VALUE_ID] => [DESCRIPTION] => [~DESCRIPTION] => [~VALUE] => ) [WEIGHT_TO_KRON] => Array ( [ID] => 167 [IBLOCK_ID] => 2 [NAME] => Высота до кронштейна, мм [ACTIVE] => Y [SORT] => 500 [CODE] => WEIGHT_TO_KRON [DEFAULT_VALUE] => [PROPERTY_TYPE] => S [ROW_COUNT] => 1 [COL_COUNT] => 30 [LIST_TYPE] => L [MULTIPLE] => N [XML_ID] => [FILE_TYPE] => [MULTIPLE_CNT] => 5 [LINK_IBLOCK_ID] => 0 [WITH_DESCRIPTION] => N [SEARCHABLE] => N [FILTRABLE] => N [IS_REQUIRED] => N [VERSION] => 1 [USER_TYPE] => [USER_TYPE_SETTINGS] => Array ( ) [HINT] => [~NAME] => Высота до кронштейна, мм [~DEFAULT_VALUE] => [VALUE_ENUM] => [VALUE_XML_ID] => [VALUE_SORT] => [VALUE] => [PROPERTY_VALUE_ID] => [DESCRIPTION] => [~DESCRIPTION] => [~VALUE] => ) [SIZE_FLANEC] => Array ( [ID] => 169 [IBLOCK_ID] => 2 [NAME] => Размер фланца [ACTIVE] => Y [SORT] => 500 [CODE] => SIZE_FLANEC [DEFAULT_VALUE] => [PROPERTY_TYPE] => S [ROW_COUNT] => 1 [COL_COUNT] => 30 [LIST_TYPE] => L [MULTIPLE] => N [XML_ID] => [FILE_TYPE] => [MULTIPLE_CNT] => 5 [LINK_IBLOCK_ID] => 0 [WITH_DESCRIPTION] => N [SEARCHABLE] => N [FILTRABLE] => N [IS_REQUIRED] => N [VERSION] => 1 [USER_TYPE] => [USER_TYPE_SETTINGS] => Array ( ) [HINT] => [~NAME] => Размер фланца [~DEFAULT_VALUE] => [VALUE_ENUM] => [VALUE_XML_ID] => [VALUE_SORT] => [VALUE] => [PROPERTY_VALUE_ID] => [DESCRIPTION] => [~DESCRIPTION] => [~VALUE] => ) [WEIGHT_MIDDLE_SECTION] => Array ( [ID] => 170 [IBLOCK_ID] => 2 [NAME] => Высота промежуточной секции, мм [ACTIVE] => Y [SORT] => 500 [CODE] => WEIGHT_MIDDLE_SECTION [DEFAULT_VALUE] => [PROPERTY_TYPE] => S [ROW_COUNT] => 1 [COL_COUNT] => 30 [LIST_TYPE] => L [MULTIPLE] => N [XML_ID] => [FILE_TYPE] => [MULTIPLE_CNT] => 5 [LINK_IBLOCK_ID] => 0 [WITH_DESCRIPTION] => N [SEARCHABLE] => N [FILTRABLE] => N [IS_REQUIRED] => N [VERSION] => 1 [USER_TYPE] => [USER_TYPE_SETTINGS] => Array ( ) [HINT] => [~NAME] => Высота промежуточной секции, мм [~DEFAULT_VALUE] => [VALUE_ENUM] => [VALUE_XML_ID] => [VALUE_SORT] => [VALUE] => [PROPERTY_VALUE_ID] => [DESCRIPTION] => [~DESCRIPTION] => [~VALUE] => ) [DEFEND_POKRYTIE] => Array ( [ID] => 171 [IBLOCK_ID] => 2 [NAME] => Защитное покрытие [ACTIVE] => Y [SORT] => 500 [CODE] => DEFEND_POKRYTIE [DEFAULT_VALUE] => [PROPERTY_TYPE] => S [ROW_COUNT] => 1 [COL_COUNT] => 30 [LIST_TYPE] => L [MULTIPLE] => N [XML_ID] => [FILE_TYPE] => [MULTIPLE_CNT] => 5 [LINK_IBLOCK_ID] => 0 [WITH_DESCRIPTION] => N [SEARCHABLE] => N [FILTRABLE] => N [IS_REQUIRED] => N [VERSION] => 1 [USER_TYPE] => [USER_TYPE_SETTINGS] => Array ( ) [HINT] => [~NAME] => Защитное покрытие [~DEFAULT_VALUE] => [VALUE_ENUM] => [VALUE_XML_ID] => [VALUE_SORT] => [VALUE] => [PROPERTY_VALUE_ID] => [DESCRIPTION] => [~DESCRIPTION] => [~VALUE] => ) [WIND_REGION] => Array ( [ID] => 172 [IBLOCK_ID] => 2 [NAME] => Ветровой район [ACTIVE] => Y [SORT] => 500 [CODE] => WIND_REGION [DEFAULT_VALUE] => [PROPERTY_TYPE] => S [ROW_COUNT] => 1 [COL_COUNT] => 30 [LIST_TYPE] => L [MULTIPLE] => N [XML_ID] => [FILE_TYPE] => [MULTIPLE_CNT] => 5 [LINK_IBLOCK_ID] => 0 [WITH_DESCRIPTION] => N [SEARCHABLE] => N [FILTRABLE] => N [IS_REQUIRED] => N [VERSION] => 1 [USER_TYPE] => [USER_TYPE_SETTINGS] => Array ( ) [HINT] => [~NAME] => Ветровой район [~DEFAULT_VALUE] => [VALUE_ENUM] => [VALUE_XML_ID] => [VALUE_SORT] => [VALUE] => [PROPERTY_VALUE_ID] => [DESCRIPTION] => [~DESCRIPTION] => [~VALUE] => ) [DIAMETER_OPOR_FLANCA] => Array ( [ID] => 173 [IBLOCK_ID] => 2 [NAME] => Диаметр опорного фланца, мм [ACTIVE] => Y [SORT] => 500 [CODE] => DIAMETER_OPOR_FLANCA [DEFAULT_VALUE] => [PROPERTY_TYPE] => S [ROW_COUNT] => 1 [COL_COUNT] => 30 [LIST_TYPE] => L [MULTIPLE] => N [XML_ID] => [FILE_TYPE] => [MULTIPLE_CNT] => 5 [LINK_IBLOCK_ID] => 0 [WITH_DESCRIPTION] => N [SEARCHABLE] => N [FILTRABLE] => N [IS_REQUIRED] => N [VERSION] => 1 [USER_TYPE] => [USER_TYPE_SETTINGS] => Array ( ) [HINT] => [~NAME] => Диаметр опорного фланца, мм [~DEFAULT_VALUE] => [VALUE_ENUM] => [VALUE_XML_ID] => [VALUE_SORT] => [VALUE] => [PROPERTY_VALUE_ID] => [DESCRIPTION] => [~DESCRIPTION] => [~VALUE] => ) [CENTER_DIST] => Array ( [ID] => 174 [IBLOCK_ID] => 2 [NAME] => Межцентровое расстояние, мм [ACTIVE] => Y [SORT] => 500 [CODE] => CENTER_DIST [DEFAULT_VALUE] => [PROPERTY_TYPE] => S [ROW_COUNT] => 1 [COL_COUNT] => 30 [LIST_TYPE] => L [MULTIPLE] => N [XML_ID] => [FILE_TYPE] => [MULTIPLE_CNT] => 5 [LINK_IBLOCK_ID] => 0 [WITH_DESCRIPTION] => N [SEARCHABLE] => N [FILTRABLE] => N [IS_REQUIRED] => N [VERSION] => 1 [USER_TYPE] => [USER_TYPE_SETTINGS] => Array ( ) [HINT] => [~NAME] => Межцентровое расстояние, мм [~DEFAULT_VALUE] => [VALUE_ENUM] => [VALUE_XML_ID] => [VALUE_SORT] => [VALUE] => [PROPERTY_VALUE_ID] => [DESCRIPTION] => [~DESCRIPTION] => [~VALUE] => ) [FLANEC_THICKNESS] => Array ( [ID] => 175 [IBLOCK_ID] => 2 [NAME] => Толщина фланца, мм [ACTIVE] => Y [SORT] => 500 [CODE] => FLANEC_THICKNESS [DEFAULT_VALUE] => [PROPERTY_TYPE] => S [ROW_COUNT] => 1 [COL_COUNT] => 30 [LIST_TYPE] => L [MULTIPLE] => N [XML_ID] => [FILE_TYPE] => [MULTIPLE_CNT] => 5 [LINK_IBLOCK_ID] => 0 [WITH_DESCRIPTION] => N [SEARCHABLE] => N [FILTRABLE] => N [IS_REQUIRED] => N [VERSION] => 1 [USER_TYPE] => [USER_TYPE_SETTINGS] => Array ( ) [HINT] => [~NAME] => Толщина фланца, мм [~DEFAULT_VALUE] => [VALUE_ENUM] => [VALUE_XML_ID] => [VALUE_SORT] => [VALUE] => [PROPERTY_VALUE_ID] => [DESCRIPTION] => [~DESCRIPTION] => [~VALUE] => ) [COUNT_HOLE] => Array ( [ID] => 176 [IBLOCK_ID] => 2 [NAME] => Количество отверстий крепления, шт [ACTIVE] => Y [SORT] => 500 [CODE] => COUNT_HOLE [DEFAULT_VALUE] => [PROPERTY_TYPE] => S [ROW_COUNT] => 1 [COL_COUNT] => 30 [LIST_TYPE] => L [MULTIPLE] => N [XML_ID] => [FILE_TYPE] => [MULTIPLE_CNT] => 5 [LINK_IBLOCK_ID] => 0 [WITH_DESCRIPTION] => N [SEARCHABLE] => N [FILTRABLE] => N [IS_REQUIRED] => N [VERSION] => 1 [USER_TYPE] => [USER_TYPE_SETTINGS] => Array ( ) [HINT] => [~NAME] => Количество отверстий крепления, шт [~DEFAULT_VALUE] => [VALUE_ENUM] => [VALUE_XML_ID] => [VALUE_SORT] => [VALUE] => [PROPERTY_VALUE_ID] => [DESCRIPTION] => [~DESCRIPTION] => [~VALUE] => ) [INSPECTION_WINDOW] => Array ( [ID] => 179 [IBLOCK_ID] => 2 [NAME] => Ревизионное окно, мм [ACTIVE] => Y [SORT] => 500 [CODE] => INSPECTION_WINDOW [DEFAULT_VALUE] => [PROPERTY_TYPE] => S [ROW_COUNT] => 1 [COL_COUNT] => 30 [LIST_TYPE] => L [MULTIPLE] => N [XML_ID] => [FILE_TYPE] => [MULTIPLE_CNT] => 5 [LINK_IBLOCK_ID] => 0 [WITH_DESCRIPTION] => N [SEARCHABLE] => N [FILTRABLE] => N [IS_REQUIRED] => N [VERSION] => 1 [USER_TYPE] => [USER_TYPE_SETTINGS] => Array ( ) [HINT] => [~NAME] => Ревизионное окно, мм [~DEFAULT_VALUE] => [VALUE_ENUM] => [VALUE_XML_ID] => [VALUE_SORT] => [VALUE] => [PROPERTY_VALUE_ID] => [DESCRIPTION] => [~DESCRIPTION] => [~VALUE] => ) [THREE_MODEL] => Array ( [ID] => 182 [IBLOCK_ID] => 2 [NAME] => 3D-модель [ACTIVE] => Y [SORT] => 500 [CODE] => THREE_MODEL [DEFAULT_VALUE] => [PROPERTY_TYPE] => F [ROW_COUNT] => 1 [COL_COUNT] => 30 [LIST_TYPE] => L [MULTIPLE] => N [XML_ID] => [FILE_TYPE] => [MULTIPLE_CNT] => 5 [LINK_IBLOCK_ID] => 0 [WITH_DESCRIPTION] => N [SEARCHABLE] => N [FILTRABLE] => N [IS_REQUIRED] => N [VERSION] => 1 [USER_TYPE] => [USER_TYPE_SETTINGS] => Array ( ) [HINT] => [~NAME] => 3D-модель [~DEFAULT_VALUE] => [VALUE_ENUM] => [VALUE_XML_ID] => [VALUE_SORT] => [VALUE] => [PROPERTY_VALUE_ID] => [DESCRIPTION] => [~DESCRIPTION] => [~VALUE] => ) [FAQ] => Array ( [ID] => 183 [IBLOCK_ID] => 2 [NAME] => FAQ [ACTIVE] => Y [SORT] => 500 [CODE] => FAQ [DEFAULT_VALUE] => Array ( [TYPE] => TEXT [TEXT] => ) [PROPERTY_TYPE] => S [ROW_COUNT] => 1 [COL_COUNT] => 30 [LIST_TYPE] => L [MULTIPLE] => N [XML_ID] => [FILE_TYPE] => [MULTIPLE_CNT] => 5 [LINK_IBLOCK_ID] => 0 [WITH_DESCRIPTION] => N [SEARCHABLE] => N [FILTRABLE] => N [IS_REQUIRED] => N [VERSION] => 1 [USER_TYPE] => HTML [USER_TYPE_SETTINGS] => Array ( [height] => 200 ) [HINT] => [~NAME] => FAQ [~DEFAULT_VALUE] => Array ( [TYPE] => TEXT [TEXT] => ) [VALUE_ENUM] => [VALUE_XML_ID] => [VALUE_SORT] => [VALUE] => [PROPERTY_VALUE_ID] => [DESCRIPTION] => [~DESCRIPTION] => [~VALUE] => ) ) [DISPLAY_PROPERTIES] => Array ( [ITEM_PRICE] => Array ( [ID] => 22 [IBLOCK_ID] => 2 [NAME] => Цена [ACTIVE] => Y [SORT] => 3 [CODE] => ITEM_PRICE [DEFAULT_VALUE] => [PROPERTY_TYPE] => L [ROW_COUNT] => 1 [COL_COUNT] => 30 [LIST_TYPE] => L [MULTIPLE] => N [XML_ID] => 22 [FILE_TYPE] => [MULTIPLE_CNT] => 5 [LINK_IBLOCK_ID] => 0 [WITH_DESCRIPTION] => N [SEARCHABLE] => N [FILTRABLE] => N [IS_REQUIRED] => Y [VERSION] => 1 [USER_TYPE] => [USER_TYPE_SETTINGS] => Array ( ) [HINT] => [~NAME] => Цена [~DEFAULT_VALUE] => [VALUE_ENUM] => По запросу [VALUE_XML_ID] => on-request [VALUE_SORT] => 1 [VALUE] => По запросу [PROPERTY_VALUE_ID] => 6825429 [VALUE_ENUM_ID] => 9 [DESCRIPTION] => [~VALUE] => По запросу [~DESCRIPTION] => [DISPLAY_VALUE] => По запросу ) [ITEM_CHARACTERISTICS] => Array ( [ID] => 28 [IBLOCK_ID] => 2 [NAME] => Характеристики [ACTIVE] => Y [SORT] => 6 [CODE] => ITEM_CHARACTERISTICS [DEFAULT_VALUE] => [PROPERTY_TYPE] => S [ROW_COUNT] => 1 [COL_COUNT] => 20 [LIST_TYPE] => L [MULTIPLE] => Y [XML_ID] => 28 [FILE_TYPE] => [MULTIPLE_CNT] => 1 [LINK_IBLOCK_ID] => 0 [WITH_DESCRIPTION] => Y [SEARCHABLE] => N [FILTRABLE] => N [IS_REQUIRED] => N [VERSION] => 1 [USER_TYPE] => [USER_TYPE_SETTINGS] => Array ( ) [HINT] => [~NAME] => Характеристики [~DEFAULT_VALUE] => [VALUE_ENUM] => [VALUE_XML_ID] => [VALUE_SORT] => [VALUE] => Array ( [0] => фланцевая [1] => граненая [2] => 34400 [3] => 19200 [4] => 400 [5] => 730 [6] => промежуточная [7] => Горячее цинкование [8] => Порошковое / полимерное окрашивание [9] => 30 лет ) [PROPERTY_VALUE_ID] => Array ( [0] => 6825430 [1] => 6825431 [2] => 6825432 [3] => 6825433 [4] => 6825434 [5] => 6825435 [6] => 6825436 [7] => 6825437 [8] => 6825438 [9] => 6825439 ) [DESCRIPTION] => Array ( [0] => Способ установки [1] => Способ производства [2] => Высота, мм [3] => Высота до нижней траверсы, мм [4] => Диаметр верхний, мм [5] => Диаметр нижний, мм [6] => Назначение [7] => Защитное покрытие [8] => Лакокрасочное покрытие [9] => Срок службы ) [~VALUE] => Array ( [0] => фланцевая [1] => граненая [2] => 34400 [3] => 19200 [4] => 400 [5] => 730 [6] => промежуточная [7] => Горячее цинкование [8] => Порошковое / полимерное окрашивание [9] => 30 лет ) [~DESCRIPTION] => Array ( [0] => Способ установки [1] => Способ производства [2] => Высота, мм [3] => Высота до нижней траверсы, мм [4] => Диаметр верхний, мм [5] => Диаметр нижний, мм [6] => Назначение [7] => Защитное покрытие [8] => Лакокрасочное покрытие [9] => Срок службы ) [DISPLAY_VALUE] => Array ( [0] => фланцевая [1] => граненая [2] => 34400 [3] => 19200 [4] => 400 [5] => 730 [6] => промежуточная [7] => Горячее цинкование [8] => Порошковое / полимерное окрашивание [9] => 30 лет ) ) ) [PRODUCT_PROPERTIES] => Array ( ) [PRODUCT_PROPERTIES_FILL] => Array ( ) [OFFERS] => Array ( ) [OFFER_ID_SELECTED] => 0 [CHECK_QUANTITY] => [ITEM_PRICE_MODE] => [ITEM_PRICES] => Array ( ) [ITEM_QUANTITY_RANGES] => Array ( ) [ITEM_MEASURE_RATIOS] => Array ( [2945] => Array ( [ID] => 2945 [RATIO] => 1 [IS_DEFAULT] => Y [PRODUCT_ID] => 15368 ) ) [ITEM_MEASURE] => Array ( [ID] => 5 [TITLE] => шт [~TITLE] => шт ) [ITEM_MEASURE_RATIO_SELECTED] => 2945 [ITEM_QUANTITY_RANGE_SELECTED] => [ITEM_PRICE_SELECTED] => [EDIT_LINK] => [DELETE_LINK] => [SECTION] => Array ( [PATH] => Array ( ) ) [CAN_BUY] => )
В наличии
Способ производства: граненая
Высота, мм: 35700
Высота до нижней траверсы, мм: 19000
Цена по запросу
Array
(
    [ID] => 15366
    [~ID] => 15366
    [IBLOCK_ID] => 2
    [~IBLOCK_ID] => 2
    [CODE] => pm220-2trtr
    [~CODE] => pm220-2trtr
    [XML_ID] => 15366
    [~XML_ID] => 15366
    [NAME] => Многогранная опора ПМ220-2тРТр
    [~NAME] => Многогранная опора ПМ220-2тРТр
    [ACTIVE] => Y
    [~ACTIVE] => Y
    [DATE_ACTIVE_FROM] => 
    [~DATE_ACTIVE_FROM] => 
    [DATE_ACTIVE_TO] => 
    [~DATE_ACTIVE_TO] => 
    [SORT] => 1
    [~SORT] => 1
    [PREVIEW_TEXT] => 
    [~PREVIEW_TEXT] => 
    [PREVIEW_TEXT_TYPE] => text
    [~PREVIEW_TEXT_TYPE] => text
    [DETAIL_TEXT] => 

Многогранная опора ПМ220-2тРТр по типовому проекту 27.0009 представляет собой одностоечную свободностоящую конструкцию, предназначенную для строительства и реконструкции высоковольтных линий электропередачи напряжением 220 кВ. Конструкция является двухцепной и оснащена тросостойкой для подвеса одного грозотроса, что обеспечивает надежную защиту линии от атмосферных перенапряжений. Общая высота опоры составляет 35,7 метра при высоте до нижней траверсы 19 метров, что гарантирует соблюдение необходимых габаритов и безопасных расстояний. Опорный ствол конической формы имеет нижний диаметр 1200 мм и верхний диаметр 400 мм, обеспечивая оптимальное распределение механических нагрузок. Для долговременной защиты в условиях открытой атмосферы все стальные элементы конструкции из стали марки С245 проходят горячее цинкование. Конструкция рассчитана для эксплуатации в ветровых районах I-IV при температуре до -40 градусов Цельсия.

Опору изготавливают из конструкционной углеродистой стали марки С245, которая соответствует требованиям ГОСТ для несущих металлоконструкций. Основой конструкции является конический граненый ствол, собираемый из секций на фланцевых соединениях. Монтаж опоры в рабочее положение осуществляется путем ее установки на предварительно подготовленный железобетонный фундамент и крепления с помощью анкерных болтов через опорный фланец. Схема подвески проводов запроектирована со смешанным расположением фаз, что соответствует современным нормам электромагнитной совместимости. Наличие тросостойки обеспечивает возможность монтажа грозозащитного троса в соответствии с проектными решениями для конкретной трассы линии.

[~DETAIL_TEXT] =>

Многогранная опора ПМ220-2тРТр по типовому проекту 27.0009 представляет собой одностоечную свободностоящую конструкцию, предназначенную для строительства и реконструкции высоковольтных линий электропередачи напряжением 220 кВ. Конструкция является двухцепной и оснащена тросостойкой для подвеса одного грозотроса, что обеспечивает надежную защиту линии от атмосферных перенапряжений. Общая высота опоры составляет 35,7 метра при высоте до нижней траверсы 19 метров, что гарантирует соблюдение необходимых габаритов и безопасных расстояний. Опорный ствол конической формы имеет нижний диаметр 1200 мм и верхний диаметр 400 мм, обеспечивая оптимальное распределение механических нагрузок. Для долговременной защиты в условиях открытой атмосферы все стальные элементы конструкции из стали марки С245 проходят горячее цинкование. Конструкция рассчитана для эксплуатации в ветровых районах I-IV при температуре до -40 градусов Цельсия.

Опору изготавливают из конструкционной углеродистой стали марки С245, которая соответствует требованиям ГОСТ для несущих металлоконструкций. Основой конструкции является конический граненый ствол, собираемый из секций на фланцевых соединениях. Монтаж опоры в рабочее положение осуществляется путем ее установки на предварительно подготовленный железобетонный фундамент и крепления с помощью анкерных болтов через опорный фланец. Схема подвески проводов запроектирована со смешанным расположением фаз, что соответствует современным нормам электромагнитной совместимости. Наличие тросостойки обеспечивает возможность монтажа грозозащитного троса в соответствии с проектными решениями для конкретной трассы линии.

[DETAIL_TEXT_TYPE] => html [~DETAIL_TEXT_TYPE] => html [DATE_CREATE] => 07.11.2023 15:10:02 [~DATE_CREATE] => 07.11.2023 15:10:02 [CREATED_BY] => 1 [~CREATED_BY] => 1 [TAGS] => [~TAGS] => [TIMESTAMP_X] => 15.12.2025 12:57:48 [~TIMESTAMP_X] => 15.12.2025 12:57:48 [MODIFIED_BY] => 1 [~MODIFIED_BY] => 1 [IBLOCK_SECTION_ID] => 2756 [~IBLOCK_SECTION_ID] => 2960 [DETAIL_PAGE_URL] => /product/pm220-2trtr/ [~DETAIL_PAGE_URL] => /product/pm220-2trtr/ [DETAIL_PICTURE] => [~DETAIL_PICTURE] => [PREVIEW_PICTURE] => Array ( [ID] => 35279 [TIMESTAMP_X] => 15.12.2025 12:57:48 [MODULE_ID] => iblock [HEIGHT] => 1000 [WIDTH] => 1000 [FILE_SIZE] => 127511 [CONTENT_TYPE] => image/jpeg [SUBDIR] => iblock/200/du26eha3hr2v95p3rl97wy48rncjr7i9 [FILE_NAME] => catalog_file_2087_l.jpg [ORIGINAL_NAME] => catalog-file-2087-l.jpg [DESCRIPTION] => [HANDLER_ID] => [EXTERNAL_ID] => 45ee7179170f0cf51e100ac7d6c23bef [VERSION_ORIGINAL_ID] => [META] => [SRC] => /upload/dev2fun.imagecompress/webp/iblock/200/du26eha3hr2v95p3rl97wy48rncjr7i9/catalog_file_2087_l.webp [UNSAFE_SRC] => /upload/dev2fun.imagecompress/webp/iblock/200/du26eha3hr2v95p3rl97wy48rncjr7i9/catalog_file_2087_l.webp [SAFE_SRC] => /upload/dev2fun.imagecompress/webp/iblock/200/du26eha3hr2v95p3rl97wy48rncjr7i9/catalog_file_2087_l.webp [ALT] => Многогранная опора ПМ220-2тРТр [TITLE] => Многогранная опора ПМ220-2тРТр ) [~PREVIEW_PICTURE] => 35279 [LANG_DIR] => / [~LANG_DIR] => / [EXTERNAL_ID] => 15366 [~EXTERNAL_ID] => 15366 [IBLOCK_TYPE_ID] => catalog [~IBLOCK_TYPE_ID] => catalog [IBLOCK_CODE] => metalstructures [~IBLOCK_CODE] => metalstructures [IBLOCK_EXTERNAL_ID] => clothes [~IBLOCK_EXTERNAL_ID] => clothes [LID] => s1 [~LID] => s1 [IPROPERTY_VALUES] => Array ( [ELEMENT_DETAIL_PICTURE_FILE_NAME] => [ELEMENT_PREVIEW_PICTURE_FILE_NAME] => [SECTION_DETAIL_PICTURE_FILE_NAME] => [SECTION_PICTURE_FILE_NAME] => [SECTION_PAGE_TITLE] => Многогранная опора ПМ220-2тРТр [ELEMENT_PAGE_TITLE] => Многогранная опора ПМ220-2тРТр [SECTION_META_TITLE] => Многогранные опоры ВЛ 220 кВ купить в {{rp}} на сайте производителя НПО Легион [SECTION_META_DESCRIPTION] => Производство Многогранных опор ВЛ 220 кВ. Купить напрямую у производителя в {{rp}}. Собственное производство. Наличие товара на складе. Звоните ☎ {{subdomain_tel}} [SECTION_META_KEYWORDS] => Многоранные опоры ЛЭП производство продажа купить Многогранных опор ВЛ 220 кВ для линий электропередач [ELEMENT_META_TITLE] => Многогранная опора ПМ220-2тРТр для высоковольтных линий 220 кВ купить в {{rp}} на сайте производителя НПО Легион [ELEMENT_META_DESCRIPTION] => Производство стальных многогранных опор ПМ220-2тРТр для высоковольтных линий 220 кВ по шифру 27.0009 в {{rp}}. Заказать многогранные опоры ЛЭП у производителя НПО Легион. Наличие товара на складе. Звоните ☎ {{subdomain_tel}} [ELEMENT_META_KEYWORDS] => Многогранные опоры ПМ220-2тРТр ЛЭП производство продажа купить многогранные ВЛ 220кВ для линий электропередач шифру 27.0009 ) [PRODUCT] => Array ( [TYPE] => 1 [AVAILABLE] => Y [BUNDLE] => N [QUANTITY] => 10 [QUANTITY_TRACE] => N [CAN_BUY_ZERO] => Y [MEASURE] => 5 [SUBSCRIBE] => Y [VAT_ID] => 0 [VAT_RATE] => 0 [VAT_INCLUDED] => N [WEIGHT] => 0 [WIDTH] => 0 [LENGTH] => 0 [HEIGHT] => 0 [PAYMENT_TYPE] => S [RECUR_SCHEME_TYPE] => D [RECUR_SCHEME_LENGTH] => 0 [TRIAL_PRICE_ID] => 0 [USE_OFFERS] => ) [~CATALOG_TYPE] => 1 [CATALOG_TYPE] => 1 [~CATALOG_QUANTITY] => 10 [CATALOG_QUANTITY] => 10 [~CATALOG_QUANTITY_TRACE] => N [CATALOG_QUANTITY_TRACE] => N [~CATALOG_CAN_BUY_ZERO] => Y [CATALOG_CAN_BUY_ZERO] => Y [~CATALOG_SUBSCRIBE] => Y [CATALOG_SUBSCRIBE] => Y [PROPERTIES] => Array ( [ITEM_DELIVERY] => Array ( [ID] => 20 [IBLOCK_ID] => 2 [NAME] => Доставка [ACTIVE] => Y [SORT] => 1 [CODE] => ITEM_DELIVERY [DEFAULT_VALUE] => [PROPERTY_TYPE] => L [ROW_COUNT] => 1 [COL_COUNT] => 30 [LIST_TYPE] => L [MULTIPLE] => N [XML_ID] => 20 [FILE_TYPE] => [MULTIPLE_CNT] => 5 [LINK_IBLOCK_ID] => 0 [WITH_DESCRIPTION] => N [SEARCHABLE] => N [FILTRABLE] => N [IS_REQUIRED] => Y [VERSION] => 1 [USER_TYPE] => [USER_TYPE_SETTINGS] => Array ( ) [HINT] => [~NAME] => Доставка [~DEFAULT_VALUE] => [VALUE_ENUM] => По России и СНГ [VALUE_XML_ID] => ru-sng [VALUE_SORT] => 1 [VALUE] => По России и СНГ [PROPERTY_VALUE_ID] => 6825560 [VALUE_ENUM_ID] => 7 [DESCRIPTION] => [~VALUE] => По России и СНГ [~DESCRIPTION] => ) [ITEM_PAYMENT] => Array ( [ID] => 21 [IBLOCK_ID] => 2 [NAME] => Оплата [ACTIVE] => Y [SORT] => 2 [CODE] => ITEM_PAYMENT [DEFAULT_VALUE] => [PROPERTY_TYPE] => L [ROW_COUNT] => 1 [COL_COUNT] => 30 [LIST_TYPE] => L [MULTIPLE] => N [XML_ID] => 21 [FILE_TYPE] => [MULTIPLE_CNT] => 5 [LINK_IBLOCK_ID] => 0 [WITH_DESCRIPTION] => N [SEARCHABLE] => N [FILTRABLE] => N [IS_REQUIRED] => Y [VERSION] => 1 [USER_TYPE] => [USER_TYPE_SETTINGS] => Array ( ) [HINT] => [~NAME] => Оплата [~DEFAULT_VALUE] => [VALUE_ENUM] => Безналичный расчет [VALUE_XML_ID] => payment-bank [VALUE_SORT] => 1 [VALUE] => Безналичный расчет [PROPERTY_VALUE_ID] => 6825561 [VALUE_ENUM_ID] => 8 [DESCRIPTION] => [~VALUE] => Безналичный расчет [~DESCRIPTION] => ) [ITEM_PRICE] => Array ( [ID] => 22 [IBLOCK_ID] => 2 [NAME] => Цена [ACTIVE] => Y [SORT] => 3 [CODE] => ITEM_PRICE [DEFAULT_VALUE] => [PROPERTY_TYPE] => L [ROW_COUNT] => 1 [COL_COUNT] => 30 [LIST_TYPE] => L [MULTIPLE] => N [XML_ID] => 22 [FILE_TYPE] => [MULTIPLE_CNT] => 5 [LINK_IBLOCK_ID] => 0 [WITH_DESCRIPTION] => N [SEARCHABLE] => N [FILTRABLE] => N [IS_REQUIRED] => Y [VERSION] => 1 [USER_TYPE] => [USER_TYPE_SETTINGS] => Array ( ) [HINT] => [~NAME] => Цена [~DEFAULT_VALUE] => [VALUE_ENUM] => По запросу [VALUE_XML_ID] => on-request [VALUE_SORT] => 1 [VALUE] => По запросу [PROPERTY_VALUE_ID] => 6825562 [VALUE_ENUM_ID] => 9 [DESCRIPTION] => [~VALUE] => По запросу [~DESCRIPTION] => ) [ITEM_IMAGES] => Array ( [ID] => 23 [IBLOCK_ID] => 2 [NAME] => Изображения [ACTIVE] => Y [SORT] => 4 [CODE] => ITEM_IMAGES [DEFAULT_VALUE] => [PROPERTY_TYPE] => F [ROW_COUNT] => 1 [COL_COUNT] => 30 [LIST_TYPE] => L [MULTIPLE] => Y [XML_ID] => 23 [FILE_TYPE] => [MULTIPLE_CNT] => 5 [LINK_IBLOCK_ID] => 0 [WITH_DESCRIPTION] => N [SEARCHABLE] => N [FILTRABLE] => N [IS_REQUIRED] => N [VERSION] => 1 [USER_TYPE] => [USER_TYPE_SETTINGS] => Array ( ) [HINT] => [~NAME] => Изображения [~DEFAULT_VALUE] => [VALUE_ENUM] => [VALUE_XML_ID] => [VALUE_SORT] => [VALUE] => Array ( [0] => 35280 ) [PROPERTY_VALUE_ID] => Array ( [0] => 5932972 ) [DESCRIPTION] => Array ( [0] => ) [~VALUE] => Array ( [0] => 35280 ) [~DESCRIPTION] => Array ( [0] => ) ) [ITEM_PROPERTIES] => Array ( [ID] => 24 [IBLOCK_ID] => 2 [NAME] => Свойства [ACTIVE] => Y [SORT] => 5 [CODE] => ITEM_PROPERTIES [DEFAULT_VALUE] => [PROPERTY_TYPE] => E [ROW_COUNT] => 1 [COL_COUNT] => 30 [LIST_TYPE] => L [MULTIPLE] => Y [XML_ID] => 24 [FILE_TYPE] => [MULTIPLE_CNT] => 1 [LINK_IBLOCK_ID] => 3 [WITH_DESCRIPTION] => N [SEARCHABLE] => N [FILTRABLE] => N [IS_REQUIRED] => N [VERSION] => 1 [USER_TYPE] => [USER_TYPE_SETTINGS] => Array ( ) [HINT] => [~NAME] => Свойства [~DEFAULT_VALUE] => [VALUE_ENUM] => [VALUE_XML_ID] => [VALUE_SORT] => [VALUE] => [PROPERTY_VALUE_ID] => [DESCRIPTION] => [~DESCRIPTION] => [~VALUE] => ) [ITEM_CHARACTERISTICS] => Array ( [ID] => 28 [IBLOCK_ID] => 2 [NAME] => Характеристики [ACTIVE] => Y [SORT] => 6 [CODE] => ITEM_CHARACTERISTICS [DEFAULT_VALUE] => [PROPERTY_TYPE] => S [ROW_COUNT] => 1 [COL_COUNT] => 20 [LIST_TYPE] => L [MULTIPLE] => Y [XML_ID] => 28 [FILE_TYPE] => [MULTIPLE_CNT] => 1 [LINK_IBLOCK_ID] => 0 [WITH_DESCRIPTION] => Y [SEARCHABLE] => N [FILTRABLE] => N [IS_REQUIRED] => N [VERSION] => 1 [USER_TYPE] => [USER_TYPE_SETTINGS] => Array ( ) [HINT] => [~NAME] => Характеристики [~DEFAULT_VALUE] => [VALUE_ENUM] => [VALUE_XML_ID] => [VALUE_SORT] => [VALUE] => Array ( [0] => граненая [1] => 35700 [2] => 19000 [3] => 1200 [4] => 400 [5] => одностоечная свободностоящая [6] => горячее цинкование [7] => Порошковое / полимерное окрашивание [8] => 30 лет [9] => фланцевая [10] => промежуточная ) [PROPERTY_VALUE_ID] => Array ( [0] => 6825193 [1] => 6825194 [2] => 6825195 [3] => 6825196 [4] => 6825197 [5] => 6825198 [6] => 6825199 [7] => 6825200 [8] => 6825201 [9] => 6825202 [10] => 6825563 ) [DESCRIPTION] => Array ( [0] => Способ производства [1] => Высота, мм [2] => Высота до нижней траверсы, мм [3] => Диаметр нижний, мм [4] => Диаметр верхний, мм [5] => Конструкция [6] => Защитное покрытие [7] => Лакокрасочное покрытие [8] => Срок службы [9] => Способ установки [10] => Назначение ) [~VALUE] => Array ( [0] => граненая [1] => 35700 [2] => 19000 [3] => 1200 [4] => 400 [5] => одностоечная свободностоящая [6] => горячее цинкование [7] => Порошковое / полимерное окрашивание [8] => 30 лет [9] => фланцевая [10] => промежуточная ) [~DESCRIPTION] => Array ( [0] => Способ производства [1] => Высота, мм [2] => Высота до нижней траверсы, мм [3] => Диаметр нижний, мм [4] => Диаметр верхний, мм [5] => Конструкция [6] => Защитное покрытие [7] => Лакокрасочное покрытие [8] => Срок службы [9] => Способ установки [10] => Назначение ) ) [ITEM_FILTER] => Array ( [ID] => 40 [IBLOCK_ID] => 2 [NAME] => Фильтр [ACTIVE] => Y [SORT] => 7 [CODE] => ITEM_FILTER [DEFAULT_VALUE] => [PROPERTY_TYPE] => S [ROW_COUNT] => 1 [COL_COUNT] => 30 [LIST_TYPE] => L [MULTIPLE] => N [XML_ID] => 40 [FILE_TYPE] => [MULTIPLE_CNT] => 5 [LINK_IBLOCK_ID] => 0 [WITH_DESCRIPTION] => N [SEARCHABLE] => N [FILTRABLE] => N [IS_REQUIRED] => N [VERSION] => 1 [USER_TYPE] => [USER_TYPE_SETTINGS] => Array ( ) [HINT] => [~NAME] => Фильтр [~DEFAULT_VALUE] => [VALUE_ENUM] => [VALUE_XML_ID] => [VALUE_SORT] => [VALUE] => [PROPERTY_VALUE_ID] => [DESCRIPTION] => [~DESCRIPTION] => [~VALUE] => ) [ITEM_TECH_CH] => Array ( [ID] => 29 [IBLOCK_ID] => 2 [NAME] => Технические характеристики [ACTIVE] => Y [SORT] => 8 [CODE] => ITEM_TECH_CH [DEFAULT_VALUE] => Array ( [TYPE] => HTML [TEXT] => ) [PROPERTY_TYPE] => S [ROW_COUNT] => 1 [COL_COUNT] => 30 [LIST_TYPE] => L [MULTIPLE] => N [XML_ID] => 29 [FILE_TYPE] => [MULTIPLE_CNT] => 5 [LINK_IBLOCK_ID] => 0 [WITH_DESCRIPTION] => N [SEARCHABLE] => N [FILTRABLE] => N [IS_REQUIRED] => N [VERSION] => 1 [USER_TYPE] => HTML [USER_TYPE_SETTINGS] => Array ( [height] => 200 ) [HINT] => [~NAME] => Технические характеристики [~DEFAULT_VALUE] => Array ( [TYPE] => HTML [TEXT] => ) [VALUE_ENUM] => [VALUE_XML_ID] => [VALUE_SORT] => [VALUE] => Array ( [TEXT] => <p style="text-align: justify;"> Данная опора применяется для сооружения новых двухцепных воздушных линий электропередачи класса напряжения 220 кВ в различных климатических зонах. Конструкция оптимальна для модернизации существующих линий с целью увеличения их пропускной способности и надежности. Опора востребована при строительстве ответвлений от магистральных трасс к крупным промышленным предприятиям, электростанциям и узловым подстанциям. Благодаря свободностоящей конструкции без оттяжек опора эффективно используется на участках с ограниченной шириной просеки или в условиях сложного рельефа местности. </p> [TYPE] => HTML ) [PROPERTY_VALUE_ID] => 6825203 [DESCRIPTION] => [~VALUE] => Array ( [TEXT] =>

Данная опора применяется для сооружения новых двухцепных воздушных линий электропередачи класса напряжения 220 кВ в различных климатических зонах. Конструкция оптимальна для модернизации существующих линий с целью увеличения их пропускной способности и надежности. Опора востребована при строительстве ответвлений от магистральных трасс к крупным промышленным предприятиям, электростанциям и узловым подстанциям. Благодаря свободностоящей конструкции без оттяжек опора эффективно используется на участках с ограниченной шириной просеки или в условиях сложного рельефа местности.

[TYPE] => HTML ) [~DESCRIPTION] => ) [ITEM_ADV_DESCR] => Array ( [ID] => 30 [IBLOCK_ID] => 2 [NAME] => Преимущества (описание) [ACTIVE] => Y [SORT] => 9 [CODE] => ITEM_ADV_DESCR [DEFAULT_VALUE] => Array ( [TYPE] => HTML [TEXT] => ) [PROPERTY_TYPE] => S [ROW_COUNT] => 1 [COL_COUNT] => 30 [LIST_TYPE] => L [MULTIPLE] => N [XML_ID] => 30 [FILE_TYPE] => [MULTIPLE_CNT] => 5 [LINK_IBLOCK_ID] => 0 [WITH_DESCRIPTION] => N [SEARCHABLE] => N [FILTRABLE] => N [IS_REQUIRED] => N [VERSION] => 1 [USER_TYPE] => HTML [USER_TYPE_SETTINGS] => Array ( [height] => 100 ) [HINT] => [~NAME] => Преимущества (описание) [~DEFAULT_VALUE] => Array ( [TYPE] => HTML [TEXT] => ) [VALUE_ENUM] => [VALUE_XML_ID] => [VALUE_SORT] => [VALUE] => Array ( [TEXT] => <p style="text-align: justify;"> Конструкция обладает рядом технологических преимуществ, обеспечивающих долгий срок службы и минимальные эксплуатационные затраты. Применение горячего цинкования по ГОСТ 9.307-89 создает на поверхности металла адгезионный барьерный слой, гарантирующий защиту от коррозии на срок не менее 30 лет в условиях воздействия атмосферных осадков. Свободностоящее исполнение исключает необходимость установки оттяжек, что значительно экономит занимаемую площадь, упрощает монтаж и обслуживание, а также снижает объем земляных работ. Продуманная коническая форма ствола и применение качественной стали обеспечивают высокую несущую способность и устойчивость к ветровым и гололедным нагрузкам в расчетных районах. Конструкция полностью соответствует требованиям действующих технических регламентов и стандартов Российской Федерации для объектов электроэнергетики. Оптимизированная схема поставки в разобранном виде обеспечивает удобную транспортировку и снижает логистические затраты. </p> [TYPE] => HTML ) [PROPERTY_VALUE_ID] => 6825204 [DESCRIPTION] => [~VALUE] => Array ( [TEXT] =>

Конструкция обладает рядом технологических преимуществ, обеспечивающих долгий срок службы и минимальные эксплуатационные затраты. Применение горячего цинкования по ГОСТ 9.307-89 создает на поверхности металла адгезионный барьерный слой, гарантирующий защиту от коррозии на срок не менее 30 лет в условиях воздействия атмосферных осадков. Свободностоящее исполнение исключает необходимость установки оттяжек, что значительно экономит занимаемую площадь, упрощает монтаж и обслуживание, а также снижает объем земляных работ. Продуманная коническая форма ствола и применение качественной стали обеспечивают высокую несущую способность и устойчивость к ветровым и гололедным нагрузкам в расчетных районах. Конструкция полностью соответствует требованиям действующих технических регламентов и стандартов Российской Федерации для объектов электроэнергетики. Оптимизированная схема поставки в разобранном виде обеспечивает удобную транспортировку и снижает логистические затраты.

[TYPE] => HTML ) [~DESCRIPTION] => ) [ITEM_ADV] => Array ( [ID] => 31 [IBLOCK_ID] => 2 [NAME] => Преимущества [ACTIVE] => Y [SORT] => 10 [CODE] => ITEM_ADV [DEFAULT_VALUE] => [PROPERTY_TYPE] => E [ROW_COUNT] => 1 [COL_COUNT] => 30 [LIST_TYPE] => L [MULTIPLE] => Y [XML_ID] => 31 [FILE_TYPE] => [MULTIPLE_CNT] => 1 [LINK_IBLOCK_ID] => 5 [WITH_DESCRIPTION] => N [SEARCHABLE] => N [FILTRABLE] => N [IS_REQUIRED] => N [VERSION] => 1 [USER_TYPE] => [USER_TYPE_SETTINGS] => Array ( ) [HINT] => [~NAME] => Преимущества [~DEFAULT_VALUE] => [VALUE_ENUM] => [VALUE_XML_ID] => [VALUE_SORT] => [VALUE] => [PROPERTY_VALUE_ID] => [DESCRIPTION] => [~DESCRIPTION] => [~VALUE] => ) [ITEM_BUY] => Array ( [ID] => 32 [IBLOCK_ID] => 2 [NAME] => Купить [ACTIVE] => Y [SORT] => 11 [CODE] => ITEM_BUY [DEFAULT_VALUE] => Array ( [TEXT] => [TYPE] => HTML ) [PROPERTY_TYPE] => S [ROW_COUNT] => 1 [COL_COUNT] => 30 [LIST_TYPE] => L [MULTIPLE] => N [XML_ID] => 32 [FILE_TYPE] => [MULTIPLE_CNT] => 5 [LINK_IBLOCK_ID] => 0 [WITH_DESCRIPTION] => N [SEARCHABLE] => N [FILTRABLE] => N [IS_REQUIRED] => N [VERSION] => 1 [USER_TYPE] => HTML [USER_TYPE_SETTINGS] => Array ( [height] => 200 ) [HINT] => [~NAME] => Купить [~DEFAULT_VALUE] => Array ( [TEXT] => [TYPE] => HTML ) [VALUE_ENUM] => [VALUE_XML_ID] => [VALUE_SORT] => [VALUE] => Array ( [TEXT] => <p style="text-align: justify;"> НПО «Легион» осуществляет полный цикл производства высоковольтных опор по типовым и индивидуальным проектам. Наши специалисты готовы предоставить полный комплект рабочей документации и оказать инженерную поддержку на всех этапах реализации проекта. Мы гарантируем строгое соответствие продукции проектным характеристикам и стандартам качества. Для оформления заказа, уточнения стоимости или получения подробных технических консультаций по опоре ПМ220-2тРТр свяжитесь с нами по указанным контактам. Мы обеспечиваем контроль качества на всех этапах производства и организованную доставку конструкций по всей территории России. </p> <p style="text-align: justify;"> </p> <p style="text-align: justify;"> Телефон: 8(800)500-51-37<br> Email: <a href="mailto:info@legionural.ru">info@legionural.ru</a> </p> <p> <a href="mailto:info@legionural.ru"></a> </p> [TYPE] => HTML ) [PROPERTY_VALUE_ID] => 6825205 [DESCRIPTION] => [~VALUE] => Array ( [TEXT] =>

НПО «Легион» осуществляет полный цикл производства высоковольтных опор по типовым и индивидуальным проектам. Наши специалисты готовы предоставить полный комплект рабочей документации и оказать инженерную поддержку на всех этапах реализации проекта. Мы гарантируем строгое соответствие продукции проектным характеристикам и стандартам качества. Для оформления заказа, уточнения стоимости или получения подробных технических консультаций по опоре ПМ220-2тРТр свяжитесь с нами по указанным контактам. Мы обеспечиваем контроль качества на всех этапах производства и организованную доставку конструкций по всей территории России.

Телефон: 8(800)500-51-37
Email: info@legionural.ru

[TYPE] => HTML ) [~DESCRIPTION] => ) [ITEM_CERT_COR] => Array ( [ID] => 33 [IBLOCK_ID] => 2 [NAME] => Сертификаты соответствия [ACTIVE] => Y [SORT] => 12 [CODE] => ITEM_CERT_COR [DEFAULT_VALUE] => [PROPERTY_TYPE] => S [ROW_COUNT] => 1 [COL_COUNT] => 30 [LIST_TYPE] => L [MULTIPLE] => Y [XML_ID] => 33 [FILE_TYPE] => [MULTIPLE_CNT] => 1 [LINK_IBLOCK_ID] => 0 [WITH_DESCRIPTION] => Y [SEARCHABLE] => N [FILTRABLE] => N [IS_REQUIRED] => N [VERSION] => 1 [USER_TYPE] => [USER_TYPE_SETTINGS] => Array ( ) [HINT] => [~NAME] => Сертификаты соответствия [~DEFAULT_VALUE] => [VALUE_ENUM] => [VALUE_XML_ID] => [VALUE_SORT] => [VALUE] => [PROPERTY_VALUE_ID] => [DESCRIPTION] => [~DESCRIPTION] => [~VALUE] => ) [ITEM_ST_STAND] => Array ( [ID] => 34 [IBLOCK_ID] => 2 [NAME] => Государственные стандарты [ACTIVE] => Y [SORT] => 13 [CODE] => ITEM_ST_STAND [DEFAULT_VALUE] => [PROPERTY_TYPE] => S [ROW_COUNT] => 1 [COL_COUNT] => 30 [LIST_TYPE] => L [MULTIPLE] => Y [XML_ID] => 34 [FILE_TYPE] => [MULTIPLE_CNT] => 1 [LINK_IBLOCK_ID] => 0 [WITH_DESCRIPTION] => Y [SEARCHABLE] => N [FILTRABLE] => N [IS_REQUIRED] => N [VERSION] => 1 [USER_TYPE] => [USER_TYPE_SETTINGS] => Array ( ) [HINT] => [~NAME] => Государственные стандарты [~DEFAULT_VALUE] => [VALUE_ENUM] => [VALUE_XML_ID] => [VALUE_SORT] => [VALUE] => [PROPERTY_VALUE_ID] => [DESCRIPTION] => [~DESCRIPTION] => [~VALUE] => ) [ITEM_NORM] => Array ( [ID] => 35 [IBLOCK_ID] => 2 [NAME] => Строительные нормы и правила [ACTIVE] => Y [SORT] => 14 [CODE] => ITEM_NORM [DEFAULT_VALUE] => [PROPERTY_TYPE] => S [ROW_COUNT] => 1 [COL_COUNT] => 30 [LIST_TYPE] => L [MULTIPLE] => Y [XML_ID] => 35 [FILE_TYPE] => [MULTIPLE_CNT] => 1 [LINK_IBLOCK_ID] => 0 [WITH_DESCRIPTION] => Y [SEARCHABLE] => N [FILTRABLE] => N [IS_REQUIRED] => N [VERSION] => 1 [USER_TYPE] => [USER_TYPE_SETTINGS] => Array ( ) [HINT] => [~NAME] => Строительные нормы и правила [~DEFAULT_VALUE] => [VALUE_ENUM] => [VALUE_XML_ID] => [VALUE_SORT] => [VALUE] => [PROPERTY_VALUE_ID] => [DESCRIPTION] => [~DESCRIPTION] => [~VALUE] => ) [ITEM_SIMILAR] => Array ( [ID] => 36 [IBLOCK_ID] => 2 [NAME] => Похожие модели [ACTIVE] => Y [SORT] => 15 [CODE] => ITEM_SIMILAR [DEFAULT_VALUE] => [PROPERTY_TYPE] => G [ROW_COUNT] => 1 [COL_COUNT] => 30 [LIST_TYPE] => L [MULTIPLE] => Y [XML_ID] => 36 [FILE_TYPE] => [MULTIPLE_CNT] => 10 [LINK_IBLOCK_ID] => 2 [WITH_DESCRIPTION] => N [SEARCHABLE] => N [FILTRABLE] => N [IS_REQUIRED] => N [VERSION] => 1 [USER_TYPE] => [USER_TYPE_SETTINGS] => Array ( ) [HINT] => [~NAME] => Похожие модели [~DEFAULT_VALUE] => [VALUE_ENUM] => [VALUE_XML_ID] => [VALUE_SORT] => [VALUE] => [PROPERTY_VALUE_ID] => [DESCRIPTION] => [~DESCRIPTION] => [~VALUE] => ) [ITEM_SIMILAR_TAGS] => Array ( [ID] => 122 [IBLOCK_ID] => 2 [NAME] => Похожие модели (теговые) [ACTIVE] => Y [SORT] => 16 [CODE] => ITEM_SIMILAR_TAGS [DEFAULT_VALUE] => [PROPERTY_TYPE] => E [ROW_COUNT] => 1 [COL_COUNT] => 30 [LIST_TYPE] => L [MULTIPLE] => Y [XML_ID] => 122 [FILE_TYPE] => [MULTIPLE_CNT] => 1 [LINK_IBLOCK_ID] => 19 [WITH_DESCRIPTION] => N [SEARCHABLE] => N [FILTRABLE] => N [IS_REQUIRED] => N [VERSION] => 1 [USER_TYPE] => [USER_TYPE_SETTINGS] => Array ( ) [HINT] => [~NAME] => Похожие модели (теговые) [~DEFAULT_VALUE] => [VALUE_ENUM] => [VALUE_XML_ID] => [VALUE_SORT] => [VALUE] => [PROPERTY_VALUE_ID] => [DESCRIPTION] => [~DESCRIPTION] => [~VALUE] => ) [ITEM_BUY_WITH] => Array ( [ID] => 37 [IBLOCK_ID] => 2 [NAME] => С этим товаром покупают [ACTIVE] => Y [SORT] => 17 [CODE] => ITEM_BUY_WITH [DEFAULT_VALUE] => [PROPERTY_TYPE] => E [ROW_COUNT] => 1 [COL_COUNT] => 30 [LIST_TYPE] => L [MULTIPLE] => Y [XML_ID] => 37 [FILE_TYPE] => [MULTIPLE_CNT] => 1 [LINK_IBLOCK_ID] => 2 [WITH_DESCRIPTION] => N [SEARCHABLE] => N [FILTRABLE] => N [IS_REQUIRED] => N [VERSION] => 1 [USER_TYPE] => [USER_TYPE_SETTINGS] => Array ( ) [HINT] => [~NAME] => С этим товаром покупают [~DEFAULT_VALUE] => [VALUE_ENUM] => [VALUE_XML_ID] => [VALUE_SORT] => [VALUE] => [PROPERTY_VALUE_ID] => [DESCRIPTION] => [~DESCRIPTION] => [~VALUE] => ) [ITEM_VOTE_COUNT] => Array ( [ID] => 38 [IBLOCK_ID] => 2 [NAME] => Количество голосов [ACTIVE] => Y [SORT] => 18 [CODE] => ITEM_VOTE_COUNT [DEFAULT_VALUE] => 0 [PROPERTY_TYPE] => N [ROW_COUNT] => 1 [COL_COUNT] => 30 [LIST_TYPE] => L [MULTIPLE] => N [XML_ID] => 38 [FILE_TYPE] => [MULTIPLE_CNT] => 5 [LINK_IBLOCK_ID] => 0 [WITH_DESCRIPTION] => N [SEARCHABLE] => N [FILTRABLE] => N [IS_REQUIRED] => N [VERSION] => 1 [USER_TYPE] => [USER_TYPE_SETTINGS] => Array ( ) [HINT] => [~NAME] => Количество голосов [~DEFAULT_VALUE] => 0 [VALUE_ENUM] => [VALUE_XML_ID] => [VALUE_SORT] => [VALUE] => 3 [PROPERTY_VALUE_ID] => 5932973 [DESCRIPTION] => [~VALUE] => 3 [~DESCRIPTION] => ) [ITEM_RAITING] => Array ( [ID] => 39 [IBLOCK_ID] => 2 [NAME] => Рейтинг [ACTIVE] => Y [SORT] => 19 [CODE] => ITEM_RAITING [DEFAULT_VALUE] => 0 [PROPERTY_TYPE] => N [ROW_COUNT] => 1 [COL_COUNT] => 30 [LIST_TYPE] => L [MULTIPLE] => N [XML_ID] => 39 [FILE_TYPE] => [MULTIPLE_CNT] => 5 [LINK_IBLOCK_ID] => 0 [WITH_DESCRIPTION] => N [SEARCHABLE] => N [FILTRABLE] => N [IS_REQUIRED] => N [VERSION] => 1 [USER_TYPE] => [USER_TYPE_SETTINGS] => Array ( ) [HINT] => [~NAME] => Рейтинг [~DEFAULT_VALUE] => 0 [VALUE_ENUM] => [VALUE_XML_ID] => [VALUE_SORT] => [VALUE] => 5 [PROPERTY_VALUE_ID] => 5932974 [DESCRIPTION] => [~VALUE] => 5 [~DESCRIPTION] => ) [H1] => Array ( [ID] => 125 [IBLOCK_ID] => 2 [NAME] => H1 [ACTIVE] => Y [SORT] => 500 [CODE] => H1 [DEFAULT_VALUE] => [PROPERTY_TYPE] => S [ROW_COUNT] => 1 [COL_COUNT] => 70 [LIST_TYPE] => L [MULTIPLE] => N [XML_ID] => 125 [FILE_TYPE] => [MULTIPLE_CNT] => 5 [LINK_IBLOCK_ID] => 0 [WITH_DESCRIPTION] => N [SEARCHABLE] => N [FILTRABLE] => N [IS_REQUIRED] => N [VERSION] => 1 [USER_TYPE] => [USER_TYPE_SETTINGS] => Array ( ) [HINT] => [~NAME] => H1 [~DEFAULT_VALUE] => [VALUE_ENUM] => [VALUE_XML_ID] => [VALUE_SORT] => [VALUE] => Многогранная опора ПМ220-2тРТр [PROPERTY_VALUE_ID] => 5945355 [DESCRIPTION] => [~VALUE] => Многогранная опора ПМ220-2тРТр [~DESCRIPTION] => ) [CERTIFICATES] => Array ( [ID] => 127 [IBLOCK_ID] => 2 [NAME] => Сертификаты [ACTIVE] => Y [SORT] => 500 [CODE] => CERTIFICATES [DEFAULT_VALUE] => [PROPERTY_TYPE] => E [ROW_COUNT] => 1 [COL_COUNT] => 30 [LIST_TYPE] => L [MULTIPLE] => Y [XML_ID] => 127 [FILE_TYPE] => [MULTIPLE_CNT] => 5 [LINK_IBLOCK_ID] => 7 [WITH_DESCRIPTION] => N [SEARCHABLE] => N [FILTRABLE] => N [IS_REQUIRED] => N [VERSION] => 1 [USER_TYPE] => [USER_TYPE_SETTINGS] => Array ( ) [HINT] => [~NAME] => Сертификаты [~DEFAULT_VALUE] => [VALUE_ENUM] => [VALUE_XML_ID] => [VALUE_SORT] => [VALUE] => [PROPERTY_VALUE_ID] => [DESCRIPTION] => [~DESCRIPTION] => [~VALUE] => ) [129] => Array ( [ID] => 129 [IBLOCK_ID] => 2 [NAME] => Уникальный META TITLE [ACTIVE] => Y [SORT] => 500 [CODE] => 129 [DEFAULT_VALUE] => [PROPERTY_TYPE] => S [ROW_COUNT] => 1 [COL_COUNT] => 30 [LIST_TYPE] => L [MULTIPLE] => N [XML_ID] => 129 [FILE_TYPE] => [MULTIPLE_CNT] => 5 [LINK_IBLOCK_ID] => 0 [WITH_DESCRIPTION] => N [SEARCHABLE] => N [FILTRABLE] => N [IS_REQUIRED] => N [VERSION] => 1 [USER_TYPE] => [USER_TYPE_SETTINGS] => Array ( ) [HINT] => [~NAME] => Уникальный META TITLE [~DEFAULT_VALUE] => [VALUE_ENUM] => [VALUE_XML_ID] => [VALUE_SORT] => [VALUE] => [PROPERTY_VALUE_ID] => [DESCRIPTION] => [~DESCRIPTION] => [~VALUE] => ) [ITEM_TYPE] => Array ( [ID] => 134 [IBLOCK_ID] => 2 [NAME] => Тип [ACTIVE] => Y [SORT] => 500 [CODE] => ITEM_TYPE [DEFAULT_VALUE] => [PROPERTY_TYPE] => S [ROW_COUNT] => 1 [COL_COUNT] => 30 [LIST_TYPE] => L [MULTIPLE] => N [XML_ID] => [FILE_TYPE] => [MULTIPLE_CNT] => 5 [LINK_IBLOCK_ID] => 0 [WITH_DESCRIPTION] => N [SEARCHABLE] => N [FILTRABLE] => Y [IS_REQUIRED] => N [VERSION] => 1 [USER_TYPE] => [USER_TYPE_SETTINGS] => Array ( ) [HINT] => [~NAME] => Тип [~DEFAULT_VALUE] => [VALUE_ENUM] => [VALUE_XML_ID] => [VALUE_SORT] => [VALUE] => [PROPERTY_VALUE_ID] => [DESCRIPTION] => [~DESCRIPTION] => [~VALUE] => ) [ITEM_INSTALLATION] => Array ( [ID] => 135 [IBLOCK_ID] => 2 [NAME] => Способ установки [ACTIVE] => Y [SORT] => 500 [CODE] => ITEM_INSTALLATION [DEFAULT_VALUE] => [PROPERTY_TYPE] => S [ROW_COUNT] => 1 [COL_COUNT] => 30 [LIST_TYPE] => L [MULTIPLE] => N [XML_ID] => [FILE_TYPE] => [MULTIPLE_CNT] => 5 [LINK_IBLOCK_ID] => 0 [WITH_DESCRIPTION] => N [SEARCHABLE] => N [FILTRABLE] => N [IS_REQUIRED] => N [VERSION] => 1 [USER_TYPE] => [USER_TYPE_SETTINGS] => Array ( ) [HINT] => [~NAME] => Способ установки [~DEFAULT_VALUE] => [VALUE_ENUM] => [VALUE_XML_ID] => [VALUE_SORT] => [VALUE] => [PROPERTY_VALUE_ID] => [DESCRIPTION] => [~DESCRIPTION] => [~VALUE] => ) [ITEM_MODE] => Array ( [ID] => 136 [IBLOCK_ID] => 2 [NAME] => Способ производства [ACTIVE] => Y [SORT] => 500 [CODE] => ITEM_MODE [DEFAULT_VALUE] => [PROPERTY_TYPE] => S [ROW_COUNT] => 1 [COL_COUNT] => 30 [LIST_TYPE] => L [MULTIPLE] => N [XML_ID] => [FILE_TYPE] => [MULTIPLE_CNT] => 5 [LINK_IBLOCK_ID] => 0 [WITH_DESCRIPTION] => N [SEARCHABLE] => N [FILTRABLE] => N [IS_REQUIRED] => N [VERSION] => 1 [USER_TYPE] => [USER_TYPE_SETTINGS] => Array ( ) [HINT] => [~NAME] => Способ производства [~DEFAULT_VALUE] => [VALUE_ENUM] => [VALUE_XML_ID] => [VALUE_SORT] => [VALUE] => [PROPERTY_VALUE_ID] => [DESCRIPTION] => [~DESCRIPTION] => [~VALUE] => ) [ITEM_HEIGHT] => Array ( [ID] => 137 [IBLOCK_ID] => 2 [NAME] => Высота, мм [ACTIVE] => Y [SORT] => 500 [CODE] => ITEM_HEIGHT [DEFAULT_VALUE] => [PROPERTY_TYPE] => S [ROW_COUNT] => 1 [COL_COUNT] => 30 [LIST_TYPE] => L [MULTIPLE] => N [XML_ID] => [FILE_TYPE] => [MULTIPLE_CNT] => 5 [LINK_IBLOCK_ID] => 0 [WITH_DESCRIPTION] => N [SEARCHABLE] => N [FILTRABLE] => N [IS_REQUIRED] => N [VERSION] => 1 [USER_TYPE] => [USER_TYPE_SETTINGS] => Array ( ) [HINT] => [~NAME] => Высота, мм [~DEFAULT_VALUE] => [VALUE_ENUM] => [VALUE_XML_ID] => [VALUE_SORT] => [VALUE] => [PROPERTY_VALUE_ID] => [DESCRIPTION] => [~DESCRIPTION] => [~VALUE] => ) [BLOG_POST_ID] => Array ( [ID] => 138 [IBLOCK_ID] => 2 [NAME] => ID поста блога для комментариев [ACTIVE] => Y [SORT] => 500 [CODE] => BLOG_POST_ID [DEFAULT_VALUE] => [PROPERTY_TYPE] => N [ROW_COUNT] => 1 [COL_COUNT] => 30 [LIST_TYPE] => L [MULTIPLE] => N [XML_ID] => BLOG_POST_ID [FILE_TYPE] => [MULTIPLE_CNT] => 5 [LINK_IBLOCK_ID] => 0 [WITH_DESCRIPTION] => N [SEARCHABLE] => N [FILTRABLE] => N [IS_REQUIRED] => N [VERSION] => 1 [USER_TYPE] => [USER_TYPE_SETTINGS] => Array ( ) [HINT] => [~NAME] => ID поста блога для комментариев [~DEFAULT_VALUE] => [VALUE_ENUM] => [VALUE_XML_ID] => [VALUE_SORT] => [VALUE] => 1696 [PROPERTY_VALUE_ID] => 6775505 [DESCRIPTION] => [~VALUE] => 1696 [~DESCRIPTION] => ) [BLOG_COMMENTS_CNT] => Array ( [ID] => 139 [IBLOCK_ID] => 2 [NAME] => Количество комментариев [ACTIVE] => Y [SORT] => 500 [CODE] => BLOG_COMMENTS_CNT [DEFAULT_VALUE] => [PROPERTY_TYPE] => N [ROW_COUNT] => 1 [COL_COUNT] => 30 [LIST_TYPE] => L [MULTIPLE] => N [XML_ID] => BLOG_COMMENTS_CNT [FILE_TYPE] => [MULTIPLE_CNT] => 5 [LINK_IBLOCK_ID] => 0 [WITH_DESCRIPTION] => N [SEARCHABLE] => N [FILTRABLE] => N [IS_REQUIRED] => N [VERSION] => 1 [USER_TYPE] => [USER_TYPE_SETTINGS] => Array ( ) [HINT] => [~NAME] => Количество комментариев [~DEFAULT_VALUE] => [VALUE_ENUM] => [VALUE_XML_ID] => [VALUE_SORT] => [VALUE] => [PROPERTY_VALUE_ID] => [DESCRIPTION] => [~DESCRIPTION] => [~VALUE] => ) [HEIGHT_TOTAL] => Array ( [ID] => 143 [IBLOCK_ID] => 2 [NAME] => Высота общая, мм [ACTIVE] => Y [SORT] => 500 [CODE] => HEIGHT_TOTAL [DEFAULT_VALUE] => [PROPERTY_TYPE] => S [ROW_COUNT] => 1 [COL_COUNT] => 30 [LIST_TYPE] => L [MULTIPLE] => N [XML_ID] => [FILE_TYPE] => [MULTIPLE_CNT] => 5 [LINK_IBLOCK_ID] => 0 [WITH_DESCRIPTION] => N [SEARCHABLE] => N [FILTRABLE] => N [IS_REQUIRED] => N [VERSION] => 1 [USER_TYPE] => [USER_TYPE_SETTINGS] => Array ( ) [HINT] => [~NAME] => Высота общая, мм [~DEFAULT_VALUE] => [VALUE_ENUM] => [VALUE_XML_ID] => [VALUE_SORT] => [VALUE] => [PROPERTY_VALUE_ID] => [DESCRIPTION] => [~DESCRIPTION] => [~VALUE] => ) [HEIGHT_ABOVEGROUND] => Array ( [ID] => 144 [IBLOCK_ID] => 2 [NAME] => Высота надземной части, мм [ACTIVE] => Y [SORT] => 500 [CODE] => HEIGHT_ABOVEGROUND [DEFAULT_VALUE] => [PROPERTY_TYPE] => S [ROW_COUNT] => 1 [COL_COUNT] => 30 [LIST_TYPE] => L [MULTIPLE] => N [XML_ID] => [FILE_TYPE] => [MULTIPLE_CNT] => 5 [LINK_IBLOCK_ID] => 0 [WITH_DESCRIPTION] => N [SEARCHABLE] => N [FILTRABLE] => N [IS_REQUIRED] => N [VERSION] => 1 [USER_TYPE] => [USER_TYPE_SETTINGS] => Array ( ) [HINT] => [~NAME] => Высота надземной части, мм [~DEFAULT_VALUE] => [VALUE_ENUM] => [VALUE_XML_ID] => [VALUE_SORT] => [VALUE] => [PROPERTY_VALUE_ID] => [DESCRIPTION] => [~DESCRIPTION] => [~VALUE] => ) [HEIGHT_UNDERGROUND] => Array ( [ID] => 145 [IBLOCK_ID] => 2 [NAME] => Высота подземной части, мм [ACTIVE] => Y [SORT] => 500 [CODE] => HEIGHT_UNDERGROUND [DEFAULT_VALUE] => [PROPERTY_TYPE] => S [ROW_COUNT] => 1 [COL_COUNT] => 30 [LIST_TYPE] => L [MULTIPLE] => N [XML_ID] => [FILE_TYPE] => [MULTIPLE_CNT] => 5 [LINK_IBLOCK_ID] => 0 [WITH_DESCRIPTION] => N [SEARCHABLE] => N [FILTRABLE] => N [IS_REQUIRED] => N [VERSION] => 1 [USER_TYPE] => [USER_TYPE_SETTINGS] => Array ( ) [HINT] => [~NAME] => Высота подземной части, мм [~DEFAULT_VALUE] => [VALUE_ENUM] => [VALUE_XML_ID] => [VALUE_SORT] => [VALUE] => [PROPERTY_VALUE_ID] => [DESCRIPTION] => [~DESCRIPTION] => [~VALUE] => ) [DIAMETER_TOP] => Array ( [ID] => 146 [IBLOCK_ID] => 2 [NAME] => Диаметр верхний, мм [ACTIVE] => Y [SORT] => 500 [CODE] => DIAMETER_TOP [DEFAULT_VALUE] => [PROPERTY_TYPE] => S [ROW_COUNT] => 1 [COL_COUNT] => 30 [LIST_TYPE] => L [MULTIPLE] => N [XML_ID] => [FILE_TYPE] => [MULTIPLE_CNT] => 5 [LINK_IBLOCK_ID] => 0 [WITH_DESCRIPTION] => N [SEARCHABLE] => N [FILTRABLE] => N [IS_REQUIRED] => N [VERSION] => 1 [USER_TYPE] => [USER_TYPE_SETTINGS] => Array ( ) [HINT] => [~NAME] => Диаметр верхний, мм [~DEFAULT_VALUE] => [VALUE_ENUM] => [VALUE_XML_ID] => [VALUE_SORT] => [VALUE] => [PROPERTY_VALUE_ID] => [DESCRIPTION] => [~DESCRIPTION] => [~VALUE] => ) [DIAMETER_BOTTOM] => Array ( [ID] => 147 [IBLOCK_ID] => 2 [NAME] => Диаметр нижний, мм [ACTIVE] => Y [SORT] => 500 [CODE] => DIAMETER_BOTTOM [DEFAULT_VALUE] => [PROPERTY_TYPE] => S [ROW_COUNT] => 1 [COL_COUNT] => 30 [LIST_TYPE] => L [MULTIPLE] => N [XML_ID] => [FILE_TYPE] => [MULTIPLE_CNT] => 5 [LINK_IBLOCK_ID] => 0 [WITH_DESCRIPTION] => N [SEARCHABLE] => N [FILTRABLE] => N [IS_REQUIRED] => N [VERSION] => 1 [USER_TYPE] => [USER_TYPE_SETTINGS] => Array ( ) [HINT] => [~NAME] => Диаметр нижний, мм [~DEFAULT_VALUE] => [VALUE_ENUM] => [VALUE_XML_ID] => [VALUE_SORT] => [VALUE] => [PROPERTY_VALUE_ID] => [DESCRIPTION] => [~DESCRIPTION] => [~VALUE] => ) [WEIGHT] => Array ( [ID] => 148 [IBLOCK_ID] => 2 [NAME] => Нагрузка, кг [ACTIVE] => Y [SORT] => 500 [CODE] => WEIGHT [DEFAULT_VALUE] => [PROPERTY_TYPE] => S [ROW_COUNT] => 1 [COL_COUNT] => 30 [LIST_TYPE] => L [MULTIPLE] => N [XML_ID] => [FILE_TYPE] => [MULTIPLE_CNT] => 5 [LINK_IBLOCK_ID] => 0 [WITH_DESCRIPTION] => N [SEARCHABLE] => N [FILTRABLE] => N [IS_REQUIRED] => N [VERSION] => 1 [USER_TYPE] => [USER_TYPE_SETTINGS] => Array ( ) [HINT] => [~NAME] => Нагрузка, кг [~DEFAULT_VALUE] => [VALUE_ENUM] => [VALUE_XML_ID] => [VALUE_SORT] => [VALUE] => [PROPERTY_VALUE_ID] => [DESCRIPTION] => [~DESCRIPTION] => [~VALUE] => ) [VID] => Array ( [ID] => 149 [IBLOCK_ID] => 2 [NAME] => Вид [ACTIVE] => Y [SORT] => 500 [CODE] => VID [DEFAULT_VALUE] => [PROPERTY_TYPE] => S [ROW_COUNT] => 1 [COL_COUNT] => 30 [LIST_TYPE] => L [MULTIPLE] => N [XML_ID] => [FILE_TYPE] => [MULTIPLE_CNT] => 5 [LINK_IBLOCK_ID] => 0 [WITH_DESCRIPTION] => N [SEARCHABLE] => N [FILTRABLE] => N [IS_REQUIRED] => N [VERSION] => 1 [USER_TYPE] => [USER_TYPE_SETTINGS] => Array ( ) [HINT] => [~NAME] => Вид [~DEFAULT_VALUE] => [VALUE_ENUM] => [VALUE_XML_ID] => [VALUE_SORT] => [VALUE] => [PROPERTY_VALUE_ID] => [DESCRIPTION] => [~DESCRIPTION] => [~VALUE] => ) [SERVICE_LIFE] => Array ( [ID] => 150 [IBLOCK_ID] => 2 [NAME] => Срок службы [ACTIVE] => Y [SORT] => 500 [CODE] => SERVICE_LIFE [DEFAULT_VALUE] => [PROPERTY_TYPE] => S [ROW_COUNT] => 1 [COL_COUNT] => 30 [LIST_TYPE] => L [MULTIPLE] => N [XML_ID] => [FILE_TYPE] => [MULTIPLE_CNT] => 5 [LINK_IBLOCK_ID] => 0 [WITH_DESCRIPTION] => N [SEARCHABLE] => N [FILTRABLE] => N [IS_REQUIRED] => N [VERSION] => 1 [USER_TYPE] => [USER_TYPE_SETTINGS] => Array ( ) [HINT] => [~NAME] => Срок службы [~DEFAULT_VALUE] => [VALUE_ENUM] => [VALUE_XML_ID] => [VALUE_SORT] => [VALUE] => [PROPERTY_VALUE_ID] => [DESCRIPTION] => [~DESCRIPTION] => [~VALUE] => ) [USING] => Array ( [ID] => 151 [IBLOCK_ID] => 2 [NAME] => Применение [ACTIVE] => Y [SORT] => 500 [CODE] => USING [DEFAULT_VALUE] => [PROPERTY_TYPE] => S [ROW_COUNT] => 1 [COL_COUNT] => 30 [LIST_TYPE] => L [MULTIPLE] => N [XML_ID] => [FILE_TYPE] => [MULTIPLE_CNT] => 5 [LINK_IBLOCK_ID] => 0 [WITH_DESCRIPTION] => N [SEARCHABLE] => N [FILTRABLE] => N [IS_REQUIRED] => N [VERSION] => 1 [USER_TYPE] => [USER_TYPE_SETTINGS] => Array ( ) [HINT] => [~NAME] => Применение [~DEFAULT_VALUE] => [VALUE_ENUM] => [VALUE_XML_ID] => [VALUE_SORT] => [VALUE] => [PROPERTY_VALUE_ID] => [DESCRIPTION] => [~DESCRIPTION] => [~VALUE] => ) [HEIGHT_ZAK] => Array ( [ID] => 152 [IBLOCK_ID] => 2 [NAME] => Высота закладного элемента фундамента [ACTIVE] => Y [SORT] => 500 [CODE] => HEIGHT_ZAK [DEFAULT_VALUE] => [PROPERTY_TYPE] => S [ROW_COUNT] => 1 [COL_COUNT] => 30 [LIST_TYPE] => L [MULTIPLE] => N [XML_ID] => [FILE_TYPE] => [MULTIPLE_CNT] => 5 [LINK_IBLOCK_ID] => 0 [WITH_DESCRIPTION] => N [SEARCHABLE] => N [FILTRABLE] => N [IS_REQUIRED] => N [VERSION] => 1 [USER_TYPE] => [USER_TYPE_SETTINGS] => Array ( ) [HINT] => [~NAME] => Высота закладного элемента фундамента [~DEFAULT_VALUE] => [VALUE_ENUM] => [VALUE_XML_ID] => [VALUE_SORT] => [VALUE] => [PROPERTY_VALUE_ID] => [DESCRIPTION] => [~DESCRIPTION] => [~VALUE] => ) [LENGTH_CONSOLE] => Array ( [ID] => 153 [IBLOCK_ID] => 2 [NAME] => Длина консоли [ACTIVE] => Y [SORT] => 500 [CODE] => LENGTH_CONSOLE [DEFAULT_VALUE] => [PROPERTY_TYPE] => S [ROW_COUNT] => 1 [COL_COUNT] => 30 [LIST_TYPE] => L [MULTIPLE] => N [XML_ID] => [FILE_TYPE] => [MULTIPLE_CNT] => 5 [LINK_IBLOCK_ID] => 0 [WITH_DESCRIPTION] => N [SEARCHABLE] => N [FILTRABLE] => N [IS_REQUIRED] => N [VERSION] => 1 [USER_TYPE] => [USER_TYPE_SETTINGS] => Array ( ) [HINT] => [~NAME] => Длина консоли [~DEFAULT_VALUE] => [VALUE_ENUM] => [VALUE_XML_ID] => [VALUE_SORT] => [VALUE] => [PROPERTY_VALUE_ID] => [DESCRIPTION] => [~DESCRIPTION] => [~VALUE] => ) [HEIGHT_TOP_SECTION] => Array ( [ID] => 154 [IBLOCK_ID] => 2 [NAME] => Высота верхней секции, мм [ACTIVE] => Y [SORT] => 500 [CODE] => HEIGHT_TOP_SECTION [DEFAULT_VALUE] => [PROPERTY_TYPE] => S [ROW_COUNT] => 1 [COL_COUNT] => 30 [LIST_TYPE] => L [MULTIPLE] => N [XML_ID] => [FILE_TYPE] => [MULTIPLE_CNT] => 5 [LINK_IBLOCK_ID] => 0 [WITH_DESCRIPTION] => N [SEARCHABLE] => N [FILTRABLE] => N [IS_REQUIRED] => N [VERSION] => 1 [USER_TYPE] => [USER_TYPE_SETTINGS] => Array ( ) [HINT] => [~NAME] => Высота верхней секции, мм [~DEFAULT_VALUE] => [VALUE_ENUM] => [VALUE_XML_ID] => [VALUE_SORT] => [VALUE] => [PROPERTY_VALUE_ID] => [DESCRIPTION] => [~DESCRIPTION] => [~VALUE] => ) [SIP] => Array ( [ID] => 156 [IBLOCK_ID] => 2 [NAME] => Возможность подвеса СИП [ACTIVE] => Y [SORT] => 500 [CODE] => SIP [DEFAULT_VALUE] => [PROPERTY_TYPE] => S [ROW_COUNT] => 1 [COL_COUNT] => 30 [LIST_TYPE] => L [MULTIPLE] => N [XML_ID] => [FILE_TYPE] => [MULTIPLE_CNT] => 5 [LINK_IBLOCK_ID] => 0 [WITH_DESCRIPTION] => N [SEARCHABLE] => N [FILTRABLE] => N [IS_REQUIRED] => N [VERSION] => 1 [USER_TYPE] => [USER_TYPE_SETTINGS] => Array ( ) [HINT] => [~NAME] => Возможность подвеса СИП [~DEFAULT_VALUE] => [VALUE_ENUM] => [VALUE_XML_ID] => [VALUE_SORT] => [VALUE] => [PROPERTY_VALUE_ID] => [DESCRIPTION] => [~DESCRIPTION] => [~VALUE] => ) [COUNT_GRANY] => Array ( [ID] => 157 [IBLOCK_ID] => 2 [NAME] => Количество граней [ACTIVE] => Y [SORT] => 500 [CODE] => COUNT_GRANY [DEFAULT_VALUE] => [PROPERTY_TYPE] => S [ROW_COUNT] => 1 [COL_COUNT] => 30 [LIST_TYPE] => L [MULTIPLE] => N [XML_ID] => [FILE_TYPE] => [MULTIPLE_CNT] => 5 [LINK_IBLOCK_ID] => 0 [WITH_DESCRIPTION] => N [SEARCHABLE] => N [FILTRABLE] => N [IS_REQUIRED] => N [VERSION] => 1 [USER_TYPE] => [USER_TYPE_SETTINGS] => Array ( ) [HINT] => [~NAME] => Количество граней [~DEFAULT_VALUE] => [VALUE_ENUM] => [VALUE_XML_ID] => [VALUE_SORT] => [VALUE] => [PROPERTY_VALUE_ID] => [DESCRIPTION] => [~DESCRIPTION] => [~VALUE] => ) [HEIGHT_BOTTOM_SECTION] => Array ( [ID] => 158 [IBLOCK_ID] => 2 [NAME] => Высота нижней секции, мм [ACTIVE] => Y [SORT] => 500 [CODE] => HEIGHT_BOTTOM_SECTION [DEFAULT_VALUE] => [PROPERTY_TYPE] => S [ROW_COUNT] => 1 [COL_COUNT] => 30 [LIST_TYPE] => L [MULTIPLE] => N [XML_ID] => [FILE_TYPE] => [MULTIPLE_CNT] => 5 [LINK_IBLOCK_ID] => 0 [WITH_DESCRIPTION] => N [SEARCHABLE] => N [FILTRABLE] => N [IS_REQUIRED] => N [VERSION] => 1 [USER_TYPE] => [USER_TYPE_SETTINGS] => Array ( ) [HINT] => [~NAME] => Высота нижней секции, мм [~DEFAULT_VALUE] => [VALUE_ENUM] => [VALUE_XML_ID] => [VALUE_SORT] => [VALUE] => [PROPERTY_VALUE_ID] => [DESCRIPTION] => [~DESCRIPTION] => [~VALUE] => ) [STEEL_THICKNESS] => Array ( [ID] => 160 [IBLOCK_ID] => 2 [NAME] => Толщина стали [ACTIVE] => Y [SORT] => 500 [CODE] => STEEL_THICKNESS [DEFAULT_VALUE] => [PROPERTY_TYPE] => S [ROW_COUNT] => 1 [COL_COUNT] => 30 [LIST_TYPE] => L [MULTIPLE] => N [XML_ID] => [FILE_TYPE] => [MULTIPLE_CNT] => 5 [LINK_IBLOCK_ID] => 0 [WITH_DESCRIPTION] => N [SEARCHABLE] => N [FILTRABLE] => N [IS_REQUIRED] => N [VERSION] => 1 [USER_TYPE] => [USER_TYPE_SETTINGS] => Array ( ) [HINT] => [~NAME] => Толщина стали [~DEFAULT_VALUE] => [VALUE_ENUM] => [VALUE_XML_ID] => [VALUE_SORT] => [VALUE] => [PROPERTY_VALUE_ID] => [DESCRIPTION] => [~DESCRIPTION] => [~VALUE] => ) [SIZE_OPOR_FLANEC] => Array ( [ID] => 161 [IBLOCK_ID] => 2 [NAME] => Размеры опорного фланца [ACTIVE] => Y [SORT] => 500 [CODE] => SIZE_OPOR_FLANEC [DEFAULT_VALUE] => [PROPERTY_TYPE] => S [ROW_COUNT] => 1 [COL_COUNT] => 30 [LIST_TYPE] => L [MULTIPLE] => N [XML_ID] => [FILE_TYPE] => [MULTIPLE_CNT] => 5 [LINK_IBLOCK_ID] => 0 [WITH_DESCRIPTION] => N [SEARCHABLE] => N [FILTRABLE] => N [IS_REQUIRED] => N [VERSION] => 1 [USER_TYPE] => [USER_TYPE_SETTINGS] => Array ( ) [HINT] => [~NAME] => Размеры опорного фланца [~DEFAULT_VALUE] => [VALUE_ENUM] => [VALUE_XML_ID] => [VALUE_SORT] => [VALUE] => [PROPERTY_VALUE_ID] => [DESCRIPTION] => [~DESCRIPTION] => [~VALUE] => ) [POKRASKA] => Array ( [ID] => 162 [IBLOCK_ID] => 2 [NAME] => Лакокрасочное покрытие [ACTIVE] => Y [SORT] => 500 [CODE] => POKRASKA [DEFAULT_VALUE] => [PROPERTY_TYPE] => S [ROW_COUNT] => 1 [COL_COUNT] => 30 [LIST_TYPE] => L [MULTIPLE] => N [XML_ID] => [FILE_TYPE] => [MULTIPLE_CNT] => 5 [LINK_IBLOCK_ID] => 0 [WITH_DESCRIPTION] => N [SEARCHABLE] => N [FILTRABLE] => N [IS_REQUIRED] => N [VERSION] => 1 [USER_TYPE] => [USER_TYPE_SETTINGS] => Array ( ) [HINT] => [~NAME] => Лакокрасочное покрытие [~DEFAULT_VALUE] => [VALUE_ENUM] => [VALUE_XML_ID] => [VALUE_SORT] => [VALUE] => [PROPERTY_VALUE_ID] => [DESCRIPTION] => [~DESCRIPTION] => [~VALUE] => ) [VES] => Array ( [ID] => 163 [IBLOCK_ID] => 2 [NAME] => Вес [ACTIVE] => Y [SORT] => 500 [CODE] => VES [DEFAULT_VALUE] => [PROPERTY_TYPE] => S [ROW_COUNT] => 1 [COL_COUNT] => 30 [LIST_TYPE] => L [MULTIPLE] => N [XML_ID] => [FILE_TYPE] => [MULTIPLE_CNT] => 5 [LINK_IBLOCK_ID] => 0 [WITH_DESCRIPTION] => N [SEARCHABLE] => N [FILTRABLE] => N [IS_REQUIRED] => N [VERSION] => 1 [USER_TYPE] => [USER_TYPE_SETTINGS] => Array ( ) [HINT] => [~NAME] => Вес [~DEFAULT_VALUE] => [VALUE_ENUM] => [VALUE_XML_ID] => [VALUE_SORT] => [VALUE] => [PROPERTY_VALUE_ID] => [DESCRIPTION] => [~DESCRIPTION] => [~VALUE] => ) [INSTALL_LYUCHKA] => Array ( [ID] => 164 [IBLOCK_ID] => 2 [NAME] => Возможность установки лючка [ACTIVE] => Y [SORT] => 500 [CODE] => INSTALL_LYUCHKA [DEFAULT_VALUE] => [PROPERTY_TYPE] => S [ROW_COUNT] => 1 [COL_COUNT] => 30 [LIST_TYPE] => L [MULTIPLE] => N [XML_ID] => [FILE_TYPE] => [MULTIPLE_CNT] => 5 [LINK_IBLOCK_ID] => 0 [WITH_DESCRIPTION] => N [SEARCHABLE] => N [FILTRABLE] => N [IS_REQUIRED] => N [VERSION] => 1 [USER_TYPE] => [USER_TYPE_SETTINGS] => Array ( ) [HINT] => [~NAME] => Возможность установки лючка [~DEFAULT_VALUE] => [VALUE_ENUM] => [VALUE_XML_ID] => [VALUE_SORT] => [VALUE] => [PROPERTY_VALUE_ID] => [DESCRIPTION] => [~DESCRIPTION] => [~VALUE] => ) [DIAMETER_FLANCA] => Array ( [ID] => 165 [IBLOCK_ID] => 2 [NAME] => Диаметр фланца, мм [ACTIVE] => Y [SORT] => 500 [CODE] => DIAMETER_FLANCA [DEFAULT_VALUE] => [PROPERTY_TYPE] => S [ROW_COUNT] => 1 [COL_COUNT] => 30 [LIST_TYPE] => L [MULTIPLE] => N [XML_ID] => [FILE_TYPE] => [MULTIPLE_CNT] => 5 [LINK_IBLOCK_ID] => 0 [WITH_DESCRIPTION] => N [SEARCHABLE] => N [FILTRABLE] => N [IS_REQUIRED] => N [VERSION] => 1 [USER_TYPE] => [USER_TYPE_SETTINGS] => Array ( ) [HINT] => [~NAME] => Диаметр фланца, мм [~DEFAULT_VALUE] => [VALUE_ENUM] => [VALUE_XML_ID] => [VALUE_SORT] => [VALUE] => [PROPERTY_VALUE_ID] => [DESCRIPTION] => [~DESCRIPTION] => [~VALUE] => ) [COUNT_LIGHT] => Array ( [ID] => 166 [IBLOCK_ID] => 2 [NAME] => Количество осветительных приборов, шт [ACTIVE] => Y [SORT] => 500 [CODE] => COUNT_LIGHT [DEFAULT_VALUE] => [PROPERTY_TYPE] => S [ROW_COUNT] => 1 [COL_COUNT] => 30 [LIST_TYPE] => L [MULTIPLE] => N [XML_ID] => [FILE_TYPE] => [MULTIPLE_CNT] => 5 [LINK_IBLOCK_ID] => 0 [WITH_DESCRIPTION] => N [SEARCHABLE] => N [FILTRABLE] => N [IS_REQUIRED] => N [VERSION] => 1 [USER_TYPE] => [USER_TYPE_SETTINGS] => Array ( ) [HINT] => [~NAME] => Количество осветительных приборов, шт [~DEFAULT_VALUE] => [VALUE_ENUM] => [VALUE_XML_ID] => [VALUE_SORT] => [VALUE] => [PROPERTY_VALUE_ID] => [DESCRIPTION] => [~DESCRIPTION] => [~VALUE] => ) [WEIGHT_TO_KRON] => Array ( [ID] => 167 [IBLOCK_ID] => 2 [NAME] => Высота до кронштейна, мм [ACTIVE] => Y [SORT] => 500 [CODE] => WEIGHT_TO_KRON [DEFAULT_VALUE] => [PROPERTY_TYPE] => S [ROW_COUNT] => 1 [COL_COUNT] => 30 [LIST_TYPE] => L [MULTIPLE] => N [XML_ID] => [FILE_TYPE] => [MULTIPLE_CNT] => 5 [LINK_IBLOCK_ID] => 0 [WITH_DESCRIPTION] => N [SEARCHABLE] => N [FILTRABLE] => N [IS_REQUIRED] => N [VERSION] => 1 [USER_TYPE] => [USER_TYPE_SETTINGS] => Array ( ) [HINT] => [~NAME] => Высота до кронштейна, мм [~DEFAULT_VALUE] => [VALUE_ENUM] => [VALUE_XML_ID] => [VALUE_SORT] => [VALUE] => [PROPERTY_VALUE_ID] => [DESCRIPTION] => [~DESCRIPTION] => [~VALUE] => ) [SIZE_FLANEC] => Array ( [ID] => 169 [IBLOCK_ID] => 2 [NAME] => Размер фланца [ACTIVE] => Y [SORT] => 500 [CODE] => SIZE_FLANEC [DEFAULT_VALUE] => [PROPERTY_TYPE] => S [ROW_COUNT] => 1 [COL_COUNT] => 30 [LIST_TYPE] => L [MULTIPLE] => N [XML_ID] => [FILE_TYPE] => [MULTIPLE_CNT] => 5 [LINK_IBLOCK_ID] => 0 [WITH_DESCRIPTION] => N [SEARCHABLE] => N [FILTRABLE] => N [IS_REQUIRED] => N [VERSION] => 1 [USER_TYPE] => [USER_TYPE_SETTINGS] => Array ( ) [HINT] => [~NAME] => Размер фланца [~DEFAULT_VALUE] => [VALUE_ENUM] => [VALUE_XML_ID] => [VALUE_SORT] => [VALUE] => [PROPERTY_VALUE_ID] => [DESCRIPTION] => [~DESCRIPTION] => [~VALUE] => ) [WEIGHT_MIDDLE_SECTION] => Array ( [ID] => 170 [IBLOCK_ID] => 2 [NAME] => Высота промежуточной секции, мм [ACTIVE] => Y [SORT] => 500 [CODE] => WEIGHT_MIDDLE_SECTION [DEFAULT_VALUE] => [PROPERTY_TYPE] => S [ROW_COUNT] => 1 [COL_COUNT] => 30 [LIST_TYPE] => L [MULTIPLE] => N [XML_ID] => [FILE_TYPE] => [MULTIPLE_CNT] => 5 [LINK_IBLOCK_ID] => 0 [WITH_DESCRIPTION] => N [SEARCHABLE] => N [FILTRABLE] => N [IS_REQUIRED] => N [VERSION] => 1 [USER_TYPE] => [USER_TYPE_SETTINGS] => Array ( ) [HINT] => [~NAME] => Высота промежуточной секции, мм [~DEFAULT_VALUE] => [VALUE_ENUM] => [VALUE_XML_ID] => [VALUE_SORT] => [VALUE] => [PROPERTY_VALUE_ID] => [DESCRIPTION] => [~DESCRIPTION] => [~VALUE] => ) [DEFEND_POKRYTIE] => Array ( [ID] => 171 [IBLOCK_ID] => 2 [NAME] => Защитное покрытие [ACTIVE] => Y [SORT] => 500 [CODE] => DEFEND_POKRYTIE [DEFAULT_VALUE] => [PROPERTY_TYPE] => S [ROW_COUNT] => 1 [COL_COUNT] => 30 [LIST_TYPE] => L [MULTIPLE] => N [XML_ID] => [FILE_TYPE] => [MULTIPLE_CNT] => 5 [LINK_IBLOCK_ID] => 0 [WITH_DESCRIPTION] => N [SEARCHABLE] => N [FILTRABLE] => N [IS_REQUIRED] => N [VERSION] => 1 [USER_TYPE] => [USER_TYPE_SETTINGS] => Array ( ) [HINT] => [~NAME] => Защитное покрытие [~DEFAULT_VALUE] => [VALUE_ENUM] => [VALUE_XML_ID] => [VALUE_SORT] => [VALUE] => [PROPERTY_VALUE_ID] => [DESCRIPTION] => [~DESCRIPTION] => [~VALUE] => ) [WIND_REGION] => Array ( [ID] => 172 [IBLOCK_ID] => 2 [NAME] => Ветровой район [ACTIVE] => Y [SORT] => 500 [CODE] => WIND_REGION [DEFAULT_VALUE] => [PROPERTY_TYPE] => S [ROW_COUNT] => 1 [COL_COUNT] => 30 [LIST_TYPE] => L [MULTIPLE] => N [XML_ID] => [FILE_TYPE] => [MULTIPLE_CNT] => 5 [LINK_IBLOCK_ID] => 0 [WITH_DESCRIPTION] => N [SEARCHABLE] => N [FILTRABLE] => N [IS_REQUIRED] => N [VERSION] => 1 [USER_TYPE] => [USER_TYPE_SETTINGS] => Array ( ) [HINT] => [~NAME] => Ветровой район [~DEFAULT_VALUE] => [VALUE_ENUM] => [VALUE_XML_ID] => [VALUE_SORT] => [VALUE] => [PROPERTY_VALUE_ID] => [DESCRIPTION] => [~DESCRIPTION] => [~VALUE] => ) [DIAMETER_OPOR_FLANCA] => Array ( [ID] => 173 [IBLOCK_ID] => 2 [NAME] => Диаметр опорного фланца, мм [ACTIVE] => Y [SORT] => 500 [CODE] => DIAMETER_OPOR_FLANCA [DEFAULT_VALUE] => [PROPERTY_TYPE] => S [ROW_COUNT] => 1 [COL_COUNT] => 30 [LIST_TYPE] => L [MULTIPLE] => N [XML_ID] => [FILE_TYPE] => [MULTIPLE_CNT] => 5 [LINK_IBLOCK_ID] => 0 [WITH_DESCRIPTION] => N [SEARCHABLE] => N [FILTRABLE] => N [IS_REQUIRED] => N [VERSION] => 1 [USER_TYPE] => [USER_TYPE_SETTINGS] => Array ( ) [HINT] => [~NAME] => Диаметр опорного фланца, мм [~DEFAULT_VALUE] => [VALUE_ENUM] => [VALUE_XML_ID] => [VALUE_SORT] => [VALUE] => [PROPERTY_VALUE_ID] => [DESCRIPTION] => [~DESCRIPTION] => [~VALUE] => ) [CENTER_DIST] => Array ( [ID] => 174 [IBLOCK_ID] => 2 [NAME] => Межцентровое расстояние, мм [ACTIVE] => Y [SORT] => 500 [CODE] => CENTER_DIST [DEFAULT_VALUE] => [PROPERTY_TYPE] => S [ROW_COUNT] => 1 [COL_COUNT] => 30 [LIST_TYPE] => L [MULTIPLE] => N [XML_ID] => [FILE_TYPE] => [MULTIPLE_CNT] => 5 [LINK_IBLOCK_ID] => 0 [WITH_DESCRIPTION] => N [SEARCHABLE] => N [FILTRABLE] => N [IS_REQUIRED] => N [VERSION] => 1 [USER_TYPE] => [USER_TYPE_SETTINGS] => Array ( ) [HINT] => [~NAME] => Межцентровое расстояние, мм [~DEFAULT_VALUE] => [VALUE_ENUM] => [VALUE_XML_ID] => [VALUE_SORT] => [VALUE] => [PROPERTY_VALUE_ID] => [DESCRIPTION] => [~DESCRIPTION] => [~VALUE] => ) [FLANEC_THICKNESS] => Array ( [ID] => 175 [IBLOCK_ID] => 2 [NAME] => Толщина фланца, мм [ACTIVE] => Y [SORT] => 500 [CODE] => FLANEC_THICKNESS [DEFAULT_VALUE] => [PROPERTY_TYPE] => S [ROW_COUNT] => 1 [COL_COUNT] => 30 [LIST_TYPE] => L [MULTIPLE] => N [XML_ID] => [FILE_TYPE] => [MULTIPLE_CNT] => 5 [LINK_IBLOCK_ID] => 0 [WITH_DESCRIPTION] => N [SEARCHABLE] => N [FILTRABLE] => N [IS_REQUIRED] => N [VERSION] => 1 [USER_TYPE] => [USER_TYPE_SETTINGS] => Array ( ) [HINT] => [~NAME] => Толщина фланца, мм [~DEFAULT_VALUE] => [VALUE_ENUM] => [VALUE_XML_ID] => [VALUE_SORT] => [VALUE] => [PROPERTY_VALUE_ID] => [DESCRIPTION] => [~DESCRIPTION] => [~VALUE] => ) [COUNT_HOLE] => Array ( [ID] => 176 [IBLOCK_ID] => 2 [NAME] => Количество отверстий крепления, шт [ACTIVE] => Y [SORT] => 500 [CODE] => COUNT_HOLE [DEFAULT_VALUE] => [PROPERTY_TYPE] => S [ROW_COUNT] => 1 [COL_COUNT] => 30 [LIST_TYPE] => L [MULTIPLE] => N [XML_ID] => [FILE_TYPE] => [MULTIPLE_CNT] => 5 [LINK_IBLOCK_ID] => 0 [WITH_DESCRIPTION] => N [SEARCHABLE] => N [FILTRABLE] => N [IS_REQUIRED] => N [VERSION] => 1 [USER_TYPE] => [USER_TYPE_SETTINGS] => Array ( ) [HINT] => [~NAME] => Количество отверстий крепления, шт [~DEFAULT_VALUE] => [VALUE_ENUM] => [VALUE_XML_ID] => [VALUE_SORT] => [VALUE] => [PROPERTY_VALUE_ID] => [DESCRIPTION] => [~DESCRIPTION] => [~VALUE] => ) [INSPECTION_WINDOW] => Array ( [ID] => 179 [IBLOCK_ID] => 2 [NAME] => Ревизионное окно, мм [ACTIVE] => Y [SORT] => 500 [CODE] => INSPECTION_WINDOW [DEFAULT_VALUE] => [PROPERTY_TYPE] => S [ROW_COUNT] => 1 [COL_COUNT] => 30 [LIST_TYPE] => L [MULTIPLE] => N [XML_ID] => [FILE_TYPE] => [MULTIPLE_CNT] => 5 [LINK_IBLOCK_ID] => 0 [WITH_DESCRIPTION] => N [SEARCHABLE] => N [FILTRABLE] => N [IS_REQUIRED] => N [VERSION] => 1 [USER_TYPE] => [USER_TYPE_SETTINGS] => Array ( ) [HINT] => [~NAME] => Ревизионное окно, мм [~DEFAULT_VALUE] => [VALUE_ENUM] => [VALUE_XML_ID] => [VALUE_SORT] => [VALUE] => [PROPERTY_VALUE_ID] => [DESCRIPTION] => [~DESCRIPTION] => [~VALUE] => ) [THREE_MODEL] => Array ( [ID] => 182 [IBLOCK_ID] => 2 [NAME] => 3D-модель [ACTIVE] => Y [SORT] => 500 [CODE] => THREE_MODEL [DEFAULT_VALUE] => [PROPERTY_TYPE] => F [ROW_COUNT] => 1 [COL_COUNT] => 30 [LIST_TYPE] => L [MULTIPLE] => N [XML_ID] => [FILE_TYPE] => [MULTIPLE_CNT] => 5 [LINK_IBLOCK_ID] => 0 [WITH_DESCRIPTION] => N [SEARCHABLE] => N [FILTRABLE] => N [IS_REQUIRED] => N [VERSION] => 1 [USER_TYPE] => [USER_TYPE_SETTINGS] => Array ( ) [HINT] => [~NAME] => 3D-модель [~DEFAULT_VALUE] => [VALUE_ENUM] => [VALUE_XML_ID] => [VALUE_SORT] => [VALUE] => [PROPERTY_VALUE_ID] => [DESCRIPTION] => [~DESCRIPTION] => [~VALUE] => ) [FAQ] => Array ( [ID] => 183 [IBLOCK_ID] => 2 [NAME] => FAQ [ACTIVE] => Y [SORT] => 500 [CODE] => FAQ [DEFAULT_VALUE] => Array ( [TYPE] => TEXT [TEXT] => ) [PROPERTY_TYPE] => S [ROW_COUNT] => 1 [COL_COUNT] => 30 [LIST_TYPE] => L [MULTIPLE] => N [XML_ID] => [FILE_TYPE] => [MULTIPLE_CNT] => 5 [LINK_IBLOCK_ID] => 0 [WITH_DESCRIPTION] => N [SEARCHABLE] => N [FILTRABLE] => N [IS_REQUIRED] => N [VERSION] => 1 [USER_TYPE] => HTML [USER_TYPE_SETTINGS] => Array ( [height] => 200 ) [HINT] => [~NAME] => FAQ [~DEFAULT_VALUE] => Array ( [TYPE] => TEXT [TEXT] => ) [VALUE_ENUM] => [VALUE_XML_ID] => [VALUE_SORT] => [VALUE] => [PROPERTY_VALUE_ID] => [DESCRIPTION] => [~DESCRIPTION] => [~VALUE] => ) ) [DISPLAY_PROPERTIES] => Array ( [ITEM_PRICE] => Array ( [ID] => 22 [IBLOCK_ID] => 2 [NAME] => Цена [ACTIVE] => Y [SORT] => 3 [CODE] => ITEM_PRICE [DEFAULT_VALUE] => [PROPERTY_TYPE] => L [ROW_COUNT] => 1 [COL_COUNT] => 30 [LIST_TYPE] => L [MULTIPLE] => N [XML_ID] => 22 [FILE_TYPE] => [MULTIPLE_CNT] => 5 [LINK_IBLOCK_ID] => 0 [WITH_DESCRIPTION] => N [SEARCHABLE] => N [FILTRABLE] => N [IS_REQUIRED] => Y [VERSION] => 1 [USER_TYPE] => [USER_TYPE_SETTINGS] => Array ( ) [HINT] => [~NAME] => Цена [~DEFAULT_VALUE] => [VALUE_ENUM] => По запросу [VALUE_XML_ID] => on-request [VALUE_SORT] => 1 [VALUE] => По запросу [PROPERTY_VALUE_ID] => 6825562 [VALUE_ENUM_ID] => 9 [DESCRIPTION] => [~VALUE] => По запросу [~DESCRIPTION] => [DISPLAY_VALUE] => По запросу ) [ITEM_CHARACTERISTICS] => Array ( [ID] => 28 [IBLOCK_ID] => 2 [NAME] => Характеристики [ACTIVE] => Y [SORT] => 6 [CODE] => ITEM_CHARACTERISTICS [DEFAULT_VALUE] => [PROPERTY_TYPE] => S [ROW_COUNT] => 1 [COL_COUNT] => 20 [LIST_TYPE] => L [MULTIPLE] => Y [XML_ID] => 28 [FILE_TYPE] => [MULTIPLE_CNT] => 1 [LINK_IBLOCK_ID] => 0 [WITH_DESCRIPTION] => Y [SEARCHABLE] => N [FILTRABLE] => N [IS_REQUIRED] => N [VERSION] => 1 [USER_TYPE] => [USER_TYPE_SETTINGS] => Array ( ) [HINT] => [~NAME] => Характеристики [~DEFAULT_VALUE] => [VALUE_ENUM] => [VALUE_XML_ID] => [VALUE_SORT] => [VALUE] => Array ( [0] => граненая [1] => 35700 [2] => 19000 [3] => 1200 [4] => 400 [5] => одностоечная свободностоящая [6] => горячее цинкование [7] => Порошковое / полимерное окрашивание [8] => 30 лет [9] => фланцевая [10] => промежуточная ) [PROPERTY_VALUE_ID] => Array ( [0] => 6825193 [1] => 6825194 [2] => 6825195 [3] => 6825196 [4] => 6825197 [5] => 6825198 [6] => 6825199 [7] => 6825200 [8] => 6825201 [9] => 6825202 [10] => 6825563 ) [DESCRIPTION] => Array ( [0] => Способ производства [1] => Высота, мм [2] => Высота до нижней траверсы, мм [3] => Диаметр нижний, мм [4] => Диаметр верхний, мм [5] => Конструкция [6] => Защитное покрытие [7] => Лакокрасочное покрытие [8] => Срок службы [9] => Способ установки [10] => Назначение ) [~VALUE] => Array ( [0] => граненая [1] => 35700 [2] => 19000 [3] => 1200 [4] => 400 [5] => одностоечная свободностоящая [6] => горячее цинкование [7] => Порошковое / полимерное окрашивание [8] => 30 лет [9] => фланцевая [10] => промежуточная ) [~DESCRIPTION] => Array ( [0] => Способ производства [1] => Высота, мм [2] => Высота до нижней траверсы, мм [3] => Диаметр нижний, мм [4] => Диаметр верхний, мм [5] => Конструкция [6] => Защитное покрытие [7] => Лакокрасочное покрытие [8] => Срок службы [9] => Способ установки [10] => Назначение ) [DISPLAY_VALUE] => Array ( [0] => граненая [1] => 35700 [2] => 19000 [3] => 1200 [4] => 400 [5] => одностоечная свободностоящая [6] => горячее цинкование [7] => Порошковое / полимерное окрашивание [8] => 30 лет [9] => фланцевая [10] => промежуточная ) ) ) [PRODUCT_PROPERTIES] => Array ( ) [PRODUCT_PROPERTIES_FILL] => Array ( ) [OFFERS] => Array ( ) [OFFER_ID_SELECTED] => 0 [CHECK_QUANTITY] => [ITEM_PRICE_MODE] => [ITEM_PRICES] => Array ( ) [ITEM_QUANTITY_RANGES] => Array ( ) [ITEM_MEASURE_RATIOS] => Array ( [2930] => Array ( [ID] => 2930 [RATIO] => 1 [IS_DEFAULT] => Y [PRODUCT_ID] => 15366 ) ) [ITEM_MEASURE] => Array ( [ID] => 5 [TITLE] => шт [~TITLE] => шт ) [ITEM_MEASURE_RATIO_SELECTED] => 2930 [ITEM_QUANTITY_RANGE_SELECTED] => [ITEM_PRICE_SELECTED] => [EDIT_LINK] => [DELETE_LINK] => [SECTION] => Array ( [PATH] => Array ( ) ) [CAN_BUY] => )
В наличии
Способ установки: прямостоечная
Способ производства: граненая
Высота, мм: 23700
Цена по запросу
Array
(
    [ID] => 15359
    [~ID] => 15359
    [IBLOCK_ID] => 2
    [~IBLOCK_ID] => 2
    [CODE] => pm110-6
    [~CODE] => pm110-6
    [XML_ID] => 15359
    [~XML_ID] => 15359
    [NAME] => Многогранная опора ПМ110-6
    [~NAME] => Многогранная опора ПМ110-6
    [ACTIVE] => Y
    [~ACTIVE] => Y
    [DATE_ACTIVE_FROM] => 
    [~DATE_ACTIVE_FROM] => 
    [DATE_ACTIVE_TO] => 
    [~DATE_ACTIVE_TO] => 
    [SORT] => 1
    [~SORT] => 1
    [PREVIEW_TEXT] => 
    [~PREVIEW_TEXT] => 
    [PREVIEW_TEXT_TYPE] => text
    [~PREVIEW_TEXT_TYPE] => text
    [DETAIL_TEXT] => 

Многогранная опора ПМ110-6, производимая по типовому проекту 28.0034, представляет собой промежуточную одностоечную свободностоящую конструкцию для двухцепных воздушных линий электропередачи напряжением 110 кВ. Ее ключевое отличие — наличие тросовой консоли для подвеса двух грозозащитных тросов, что обеспечивает надежную защиту обеих цепей линии от атмосферных перенапряжений. Общая высота опоры составляет 23,7 метра, что гарантирует соблюдение всех необходимых изоляционных расстояний и безопасных габаритов. Конический граненый ствол имеет нижний диаметр 720 миллиметров и верхний диаметр 200 миллиметров, обеспечивая оптимальную устойчивость и распределение механических нагрузок. Опора изготовлена из конструкционной стали марки С245, рассчитанной на эксплуатацию при температурах до -40 °C. Все металлические элементы защищены от коррозии методом горячего цинкования. Конструкция предназначена для установки в грунт без фундамента и сертифицирована для работы в ветровых районах с I по V.

Конструкция опоры ПМ110-6 разработана как промежуточная и рассчитана на восприятие нагрузок, действующих перпендикулярно оси линии. Она не предназначена для значительных продольных усилий, характерных для анкерных участков. Наличие специальной тросовой консоли позволяет разместить два грозозащитных троса над проводами обеих цепей, что является типовым решением для линий данного класса напряжения. Монтаж конструкции осуществляется по технологии прямого заглубления в грунт. В подготовленный котлован расчетной глубины устанавливается опора, выверяется ее вертикальное положение, после чего производится обратная засыпка и тщательное уплотнение грунта для создания надежного основания. Такой метод установки исключает необходимость в бетонных фундаментных работах, сокращая общие сроки строительства.

[~DETAIL_TEXT] =>

Многогранная опора ПМ110-6, производимая по типовому проекту 28.0034, представляет собой промежуточную одностоечную свободностоящую конструкцию для двухцепных воздушных линий электропередачи напряжением 110 кВ. Ее ключевое отличие — наличие тросовой консоли для подвеса двух грозозащитных тросов, что обеспечивает надежную защиту обеих цепей линии от атмосферных перенапряжений. Общая высота опоры составляет 23,7 метра, что гарантирует соблюдение всех необходимых изоляционных расстояний и безопасных габаритов. Конический граненый ствол имеет нижний диаметр 720 миллиметров и верхний диаметр 200 миллиметров, обеспечивая оптимальную устойчивость и распределение механических нагрузок. Опора изготовлена из конструкционной стали марки С245, рассчитанной на эксплуатацию при температурах до -40 °C. Все металлические элементы защищены от коррозии методом горячего цинкования. Конструкция предназначена для установки в грунт без фундамента и сертифицирована для работы в ветровых районах с I по V.

Конструкция опоры ПМ110-6 разработана как промежуточная и рассчитана на восприятие нагрузок, действующих перпендикулярно оси линии. Она не предназначена для значительных продольных усилий, характерных для анкерных участков. Наличие специальной тросовой консоли позволяет разместить два грозозащитных троса над проводами обеих цепей, что является типовым решением для линий данного класса напряжения. Монтаж конструкции осуществляется по технологии прямого заглубления в грунт. В подготовленный котлован расчетной глубины устанавливается опора, выверяется ее вертикальное положение, после чего производится обратная засыпка и тщательное уплотнение грунта для создания надежного основания. Такой метод установки исключает необходимость в бетонных фундаментных работах, сокращая общие сроки строительства.

[DETAIL_TEXT_TYPE] => html [~DETAIL_TEXT_TYPE] => html [DATE_CREATE] => 07.11.2023 15:10:01 [~DATE_CREATE] => 07.11.2023 15:10:01 [CREATED_BY] => 1 [~CREATED_BY] => 1 [TAGS] => [~TAGS] => [TIMESTAMP_X] => 15.12.2025 09:41:09 [~TIMESTAMP_X] => 15.12.2025 09:41:09 [MODIFIED_BY] => 1 [~MODIFIED_BY] => 1 [IBLOCK_SECTION_ID] => 2756 [~IBLOCK_SECTION_ID] => 2958 [DETAIL_PAGE_URL] => /product/pm110-6/ [~DETAIL_PAGE_URL] => /product/pm110-6/ [DETAIL_PICTURE] => [~DETAIL_PICTURE] => [PREVIEW_PICTURE] => Array ( [ID] => 35262 [TIMESTAMP_X] => 15.12.2025 09:41:09 [MODULE_ID] => iblock [HEIGHT] => 1000 [WIDTH] => 1000 [FILE_SIZE] => 131854 [CONTENT_TYPE] => image/jpeg [SUBDIR] => iblock/03a/9ep4yv6kquaz2jiv1dnufpj8fz4iy4nz [FILE_NAME] => catalog_file_2080_l.jpg [ORIGINAL_NAME] => catalog-file-2080-l.jpg [DESCRIPTION] => [HANDLER_ID] => [EXTERNAL_ID] => fd39fcfcf70d9f2bc969add496c3e059 [VERSION_ORIGINAL_ID] => [META] => [SRC] => /upload/dev2fun.imagecompress/webp/iblock/03a/9ep4yv6kquaz2jiv1dnufpj8fz4iy4nz/catalog_file_2080_l.webp [UNSAFE_SRC] => /upload/dev2fun.imagecompress/webp/iblock/03a/9ep4yv6kquaz2jiv1dnufpj8fz4iy4nz/catalog_file_2080_l.webp [SAFE_SRC] => /upload/dev2fun.imagecompress/webp/iblock/03a/9ep4yv6kquaz2jiv1dnufpj8fz4iy4nz/catalog_file_2080_l.webp [ALT] => Многогранная опора ПМ110-6 [TITLE] => Многогранная опора ПМ110-6 ) [~PREVIEW_PICTURE] => 35262 [LANG_DIR] => / [~LANG_DIR] => / [EXTERNAL_ID] => 15359 [~EXTERNAL_ID] => 15359 [IBLOCK_TYPE_ID] => catalog [~IBLOCK_TYPE_ID] => catalog [IBLOCK_CODE] => metalstructures [~IBLOCK_CODE] => metalstructures [IBLOCK_EXTERNAL_ID] => clothes [~IBLOCK_EXTERNAL_ID] => clothes [LID] => s1 [~LID] => s1 [IPROPERTY_VALUES] => Array ( [ELEMENT_META_TITLE] => Многогранная опора ПМ110-6 для высоковольтных линий 110 кВ купить в {{rp}} на сайте производителя НПО Легион [ELEMENT_META_DESCRIPTION] => Производство стальных многогранных опор ПМ110-6 для высоковольтных линий 110 кВ по шифру 28.0034 в {{rp}}. Заказать многогранные опоры ЛЭП у производителя НПО Легион. Наличие товара на складе. Звоните ☎ {{subdomain_tel}} [ELEMENT_META_KEYWORDS] => Многогранные опоры ПМ110-6 ЛЭП производство продажа купить многогранные ВЛ 110кВ для линий электропередач шифру 28.0034 [SECTION_META_TITLE] => Многогранные опоры для двухцепных ВЛ 110 кВ по шифру 28.0034 купить в {{rp}} на сайте производителя НПО Легион [SECTION_META_DESCRIPTION] => Производство Многогранных опор для двухцепных ВЛ 110 кВ по шифру 28.0034. Купить напрямую у производителя в {{rp}}. Собственное производство. Наличие товара на складе. Звоните ☎ {{subdomain_tel}} [SECTION_META_KEYWORDS] => Многоранные опоры ЛЭП производство продажа купить Многогранных опор для двухцепных ВЛ 110 кВ по шифру 28.0034 для линий электропередач [ELEMENT_DETAIL_PICTURE_FILE_NAME] => [ELEMENT_PREVIEW_PICTURE_FILE_NAME] => [SECTION_DETAIL_PICTURE_FILE_NAME] => [SECTION_PICTURE_FILE_NAME] => [SECTION_PAGE_TITLE] => Многогранная опора ПМ110-6 [ELEMENT_PAGE_TITLE] => Многогранная опора ПМ110-6 ) [PRODUCT] => Array ( [TYPE] => 1 [AVAILABLE] => Y [BUNDLE] => N [QUANTITY] => 10 [QUANTITY_TRACE] => N [CAN_BUY_ZERO] => Y [MEASURE] => 5 [SUBSCRIBE] => Y [VAT_ID] => 0 [VAT_RATE] => 0 [VAT_INCLUDED] => N [WEIGHT] => 0 [WIDTH] => 0 [LENGTH] => 0 [HEIGHT] => 0 [PAYMENT_TYPE] => S [RECUR_SCHEME_TYPE] => D [RECUR_SCHEME_LENGTH] => 0 [TRIAL_PRICE_ID] => 0 [USE_OFFERS] => ) [~CATALOG_TYPE] => 1 [CATALOG_TYPE] => 1 [~CATALOG_QUANTITY] => 10 [CATALOG_QUANTITY] => 10 [~CATALOG_QUANTITY_TRACE] => N [CATALOG_QUANTITY_TRACE] => N [~CATALOG_CAN_BUY_ZERO] => Y [CATALOG_CAN_BUY_ZERO] => Y [~CATALOG_SUBSCRIBE] => Y [CATALOG_SUBSCRIBE] => Y [PROPERTIES] => Array ( [ITEM_DELIVERY] => Array ( [ID] => 20 [IBLOCK_ID] => 2 [NAME] => Доставка [ACTIVE] => Y [SORT] => 1 [CODE] => ITEM_DELIVERY [DEFAULT_VALUE] => [PROPERTY_TYPE] => L [ROW_COUNT] => 1 [COL_COUNT] => 30 [LIST_TYPE] => L [MULTIPLE] => N [XML_ID] => 20 [FILE_TYPE] => [MULTIPLE_CNT] => 5 [LINK_IBLOCK_ID] => 0 [WITH_DESCRIPTION] => N [SEARCHABLE] => N [FILTRABLE] => N [IS_REQUIRED] => Y [VERSION] => 1 [USER_TYPE] => [USER_TYPE_SETTINGS] => Array ( ) [HINT] => [~NAME] => Доставка [~DEFAULT_VALUE] => [VALUE_ENUM] => По России и СНГ [VALUE_XML_ID] => ru-sng [VALUE_SORT] => 1 [VALUE] => По России и СНГ [PROPERTY_VALUE_ID] => 6825330 [VALUE_ENUM_ID] => 7 [DESCRIPTION] => [~VALUE] => По России и СНГ [~DESCRIPTION] => ) [ITEM_PAYMENT] => Array ( [ID] => 21 [IBLOCK_ID] => 2 [NAME] => Оплата [ACTIVE] => Y [SORT] => 2 [CODE] => ITEM_PAYMENT [DEFAULT_VALUE] => [PROPERTY_TYPE] => L [ROW_COUNT] => 1 [COL_COUNT] => 30 [LIST_TYPE] => L [MULTIPLE] => N [XML_ID] => 21 [FILE_TYPE] => [MULTIPLE_CNT] => 5 [LINK_IBLOCK_ID] => 0 [WITH_DESCRIPTION] => N [SEARCHABLE] => N [FILTRABLE] => N [IS_REQUIRED] => Y [VERSION] => 1 [USER_TYPE] => [USER_TYPE_SETTINGS] => Array ( ) [HINT] => [~NAME] => Оплата [~DEFAULT_VALUE] => [VALUE_ENUM] => Безналичный расчет [VALUE_XML_ID] => payment-bank [VALUE_SORT] => 1 [VALUE] => Безналичный расчет [PROPERTY_VALUE_ID] => 6825331 [VALUE_ENUM_ID] => 8 [DESCRIPTION] => [~VALUE] => Безналичный расчет [~DESCRIPTION] => ) [ITEM_PRICE] => Array ( [ID] => 22 [IBLOCK_ID] => 2 [NAME] => Цена [ACTIVE] => Y [SORT] => 3 [CODE] => ITEM_PRICE [DEFAULT_VALUE] => [PROPERTY_TYPE] => L [ROW_COUNT] => 1 [COL_COUNT] => 30 [LIST_TYPE] => L [MULTIPLE] => N [XML_ID] => 22 [FILE_TYPE] => [MULTIPLE_CNT] => 5 [LINK_IBLOCK_ID] => 0 [WITH_DESCRIPTION] => N [SEARCHABLE] => N [FILTRABLE] => N [IS_REQUIRED] => Y [VERSION] => 1 [USER_TYPE] => [USER_TYPE_SETTINGS] => Array ( ) [HINT] => [~NAME] => Цена [~DEFAULT_VALUE] => [VALUE_ENUM] => По запросу [VALUE_XML_ID] => on-request [VALUE_SORT] => 1 [VALUE] => По запросу [PROPERTY_VALUE_ID] => 6825332 [VALUE_ENUM_ID] => 9 [DESCRIPTION] => [~VALUE] => По запросу [~DESCRIPTION] => ) [ITEM_IMAGES] => Array ( [ID] => 23 [IBLOCK_ID] => 2 [NAME] => Изображения [ACTIVE] => Y [SORT] => 4 [CODE] => ITEM_IMAGES [DEFAULT_VALUE] => [PROPERTY_TYPE] => F [ROW_COUNT] => 1 [COL_COUNT] => 30 [LIST_TYPE] => L [MULTIPLE] => Y [XML_ID] => 23 [FILE_TYPE] => [MULTIPLE_CNT] => 5 [LINK_IBLOCK_ID] => 0 [WITH_DESCRIPTION] => N [SEARCHABLE] => N [FILTRABLE] => N [IS_REQUIRED] => N [VERSION] => 1 [USER_TYPE] => [USER_TYPE_SETTINGS] => Array ( ) [HINT] => [~NAME] => Изображения [~DEFAULT_VALUE] => [VALUE_ENUM] => [VALUE_XML_ID] => [VALUE_SORT] => [VALUE] => Array ( [0] => 35263 ) [PROPERTY_VALUE_ID] => Array ( [0] => 5932927 ) [DESCRIPTION] => Array ( [0] => ) [~VALUE] => Array ( [0] => 35263 ) [~DESCRIPTION] => Array ( [0] => ) ) [ITEM_PROPERTIES] => Array ( [ID] => 24 [IBLOCK_ID] => 2 [NAME] => Свойства [ACTIVE] => Y [SORT] => 5 [CODE] => ITEM_PROPERTIES [DEFAULT_VALUE] => [PROPERTY_TYPE] => E [ROW_COUNT] => 1 [COL_COUNT] => 30 [LIST_TYPE] => L [MULTIPLE] => Y [XML_ID] => 24 [FILE_TYPE] => [MULTIPLE_CNT] => 1 [LINK_IBLOCK_ID] => 3 [WITH_DESCRIPTION] => N [SEARCHABLE] => N [FILTRABLE] => N [IS_REQUIRED] => N [VERSION] => 1 [USER_TYPE] => [USER_TYPE_SETTINGS] => Array ( ) [HINT] => [~NAME] => Свойства [~DEFAULT_VALUE] => [VALUE_ENUM] => [VALUE_XML_ID] => [VALUE_SORT] => [VALUE] => [PROPERTY_VALUE_ID] => [DESCRIPTION] => [~DESCRIPTION] => [~VALUE] => ) [ITEM_CHARACTERISTICS] => Array ( [ID] => 28 [IBLOCK_ID] => 2 [NAME] => Характеристики [ACTIVE] => Y [SORT] => 6 [CODE] => ITEM_CHARACTERISTICS [DEFAULT_VALUE] => [PROPERTY_TYPE] => S [ROW_COUNT] => 1 [COL_COUNT] => 20 [LIST_TYPE] => L [MULTIPLE] => Y [XML_ID] => 28 [FILE_TYPE] => [MULTIPLE_CNT] => 1 [LINK_IBLOCK_ID] => 0 [WITH_DESCRIPTION] => Y [SEARCHABLE] => N [FILTRABLE] => N [IS_REQUIRED] => N [VERSION] => 1 [USER_TYPE] => [USER_TYPE_SETTINGS] => Array ( ) [HINT] => [~NAME] => Характеристики [~DEFAULT_VALUE] => [VALUE_ENUM] => [VALUE_XML_ID] => [VALUE_SORT] => [VALUE] => Array ( [0] => прямостоечная [1] => граненая [2] => 23700 [3] => 13700 [4] => 720 [5] => 200 [6] => одностоечная свободностоящая, с тросовой консолью для двух грозотросов [7] => промежуточная [8] => Горячее цинкование [9] => Порошковое / полимерное окрашивание [10] => 30 лет ) [PROPERTY_VALUE_ID] => Array ( [0] => 6825333 [1] => 6825334 [2] => 6825335 [3] => 6825336 [4] => 6825337 [5] => 6825338 [6] => 6825339 [7] => 6825340 [8] => 6825341 [9] => 6825342 [10] => 6825343 ) [DESCRIPTION] => Array ( [0] => Способ установки [1] => Способ производства [2] => Высота, мм [3] => Высота до нижней траверсы, мм [4] => Диаметр нижний, мм [5] => Диаметр верхний, мм [6] => Конструкция [7] => Назначение [8] => Защитное покрытие [9] => Лакокрасочное покрытие [10] => Срок службы ) [~VALUE] => Array ( [0] => прямостоечная [1] => граненая [2] => 23700 [3] => 13700 [4] => 720 [5] => 200 [6] => одностоечная свободностоящая, с тросовой консолью для двух грозотросов [7] => промежуточная [8] => Горячее цинкование [9] => Порошковое / полимерное окрашивание [10] => 30 лет ) [~DESCRIPTION] => Array ( [0] => Способ установки [1] => Способ производства [2] => Высота, мм [3] => Высота до нижней траверсы, мм [4] => Диаметр нижний, мм [5] => Диаметр верхний, мм [6] => Конструкция [7] => Назначение [8] => Защитное покрытие [9] => Лакокрасочное покрытие [10] => Срок службы ) ) [ITEM_FILTER] => Array ( [ID] => 40 [IBLOCK_ID] => 2 [NAME] => Фильтр [ACTIVE] => Y [SORT] => 7 [CODE] => ITEM_FILTER [DEFAULT_VALUE] => [PROPERTY_TYPE] => S [ROW_COUNT] => 1 [COL_COUNT] => 30 [LIST_TYPE] => L [MULTIPLE] => N [XML_ID] => 40 [FILE_TYPE] => [MULTIPLE_CNT] => 5 [LINK_IBLOCK_ID] => 0 [WITH_DESCRIPTION] => N [SEARCHABLE] => N [FILTRABLE] => N [IS_REQUIRED] => N [VERSION] => 1 [USER_TYPE] => [USER_TYPE_SETTINGS] => Array ( ) [HINT] => [~NAME] => Фильтр [~DEFAULT_VALUE] => [VALUE_ENUM] => [VALUE_XML_ID] => [VALUE_SORT] => [VALUE] => [PROPERTY_VALUE_ID] => [DESCRIPTION] => [~DESCRIPTION] => [~VALUE] => ) [ITEM_TECH_CH] => Array ( [ID] => 29 [IBLOCK_ID] => 2 [NAME] => Технические характеристики [ACTIVE] => Y [SORT] => 8 [CODE] => ITEM_TECH_CH [DEFAULT_VALUE] => Array ( [TYPE] => HTML [TEXT] => ) [PROPERTY_TYPE] => S [ROW_COUNT] => 1 [COL_COUNT] => 30 [LIST_TYPE] => L [MULTIPLE] => N [XML_ID] => 29 [FILE_TYPE] => [MULTIPLE_CNT] => 5 [LINK_IBLOCK_ID] => 0 [WITH_DESCRIPTION] => N [SEARCHABLE] => N [FILTRABLE] => N [IS_REQUIRED] => N [VERSION] => 1 [USER_TYPE] => HTML [USER_TYPE_SETTINGS] => Array ( [height] => 200 ) [HINT] => [~NAME] => Технические характеристики [~DEFAULT_VALUE] => Array ( [TYPE] => HTML [TEXT] => ) [VALUE_ENUM] => [VALUE_XML_ID] => [VALUE_SORT] => [VALUE] => Array ( [TEXT] => <p style="text-align: justify;"> Опора ПМ110-6 применяется на прямых участках двухцепных магистральных линий 110 кВ, где в соответствии с проектом требуется обязательная установка грозозащитных тросов. Она используется при строительстве новых высоковольтных линий в районах с повышенной грозовой активностью для повышения надежности энергоснабжения. Данная модель оптимальна для модернизации существующих линий, где при реконструкции добавляется или усиливается система грозозащиты. Опора востребована при прокладке трасс в населенной и ненаселенной местности, на территориях с разнообразным рельефом. Благодаря свободностоящему исполнению она эффективно используется на участках, где установка оттяжек нежелательна или невозможна. </p> [TYPE] => HTML ) [PROPERTY_VALUE_ID] => 6825344 [DESCRIPTION] => [~VALUE] => Array ( [TEXT] =>

Опора ПМ110-6 применяется на прямых участках двухцепных магистральных линий 110 кВ, где в соответствии с проектом требуется обязательная установка грозозащитных тросов. Она используется при строительстве новых высоковольтных линий в районах с повышенной грозовой активностью для повышения надежности энергоснабжения. Данная модель оптимальна для модернизации существующих линий, где при реконструкции добавляется или усиливается система грозозащиты. Опора востребована при прокладке трасс в населенной и ненаселенной местности, на территориях с разнообразным рельефом. Благодаря свободностоящему исполнению она эффективно используется на участках, где установка оттяжек нежелательна или невозможна.

[TYPE] => HTML ) [~DESCRIPTION] => ) [ITEM_ADV_DESCR] => Array ( [ID] => 30 [IBLOCK_ID] => 2 [NAME] => Преимущества (описание) [ACTIVE] => Y [SORT] => 9 [CODE] => ITEM_ADV_DESCR [DEFAULT_VALUE] => Array ( [TYPE] => HTML [TEXT] => ) [PROPERTY_TYPE] => S [ROW_COUNT] => 1 [COL_COUNT] => 30 [LIST_TYPE] => L [MULTIPLE] => N [XML_ID] => 30 [FILE_TYPE] => [MULTIPLE_CNT] => 5 [LINK_IBLOCK_ID] => 0 [WITH_DESCRIPTION] => N [SEARCHABLE] => N [FILTRABLE] => N [IS_REQUIRED] => N [VERSION] => 1 [USER_TYPE] => HTML [USER_TYPE_SETTINGS] => Array ( [height] => 100 ) [HINT] => [~NAME] => Преимущества (описание) [~DEFAULT_VALUE] => Array ( [TYPE] => HTML [TEXT] => ) [VALUE_ENUM] => [VALUE_XML_ID] => [VALUE_SORT] => [VALUE] => Array ( [TEXT] => <p style="text-align: justify;"> Выбирая опоры с грозозащитой от НПО «Легион», вы получаете комплексное решение, обеспечивающее как механическую поддержку проводов, так и безопасность линии. Наличие встроенной тросовой консоли для двух грозотросов является готовым проектно-конструкторским решением, упрощающим проектирование и монтаж системы защиты. Горячее цинкование обеспечивает полную антикоррозионную защиту всей конструкции, включая подземную часть, гарантируя срок службы не менее 30 лет в условиях прямого контакта с грунтом. Свободностоящее исполнение без оттяжек экономит пространство, упрощает обслуживание трассы и снижает объем земляных работ. Конструкция полностью соответствует требованиям типового проекта 28.0034 и действующим нормативным документам в области электроэнергетики и грозозащиты. Каждое изделие проходит строгий контроль качества на всех этапах производства. </p> [TYPE] => HTML ) [PROPERTY_VALUE_ID] => 6825345 [DESCRIPTION] => [~VALUE] => Array ( [TEXT] =>

Выбирая опоры с грозозащитой от НПО «Легион», вы получаете комплексное решение, обеспечивающее как механическую поддержку проводов, так и безопасность линии. Наличие встроенной тросовой консоли для двух грозотросов является готовым проектно-конструкторским решением, упрощающим проектирование и монтаж системы защиты. Горячее цинкование обеспечивает полную антикоррозионную защиту всей конструкции, включая подземную часть, гарантируя срок службы не менее 30 лет в условиях прямого контакта с грунтом. Свободностоящее исполнение без оттяжек экономит пространство, упрощает обслуживание трассы и снижает объем земляных работ. Конструкция полностью соответствует требованиям типового проекта 28.0034 и действующим нормативным документам в области электроэнергетики и грозозащиты. Каждое изделие проходит строгий контроль качества на всех этапах производства.

[TYPE] => HTML ) [~DESCRIPTION] => ) [ITEM_ADV] => Array ( [ID] => 31 [IBLOCK_ID] => 2 [NAME] => Преимущества [ACTIVE] => Y [SORT] => 10 [CODE] => ITEM_ADV [DEFAULT_VALUE] => [PROPERTY_TYPE] => E [ROW_COUNT] => 1 [COL_COUNT] => 30 [LIST_TYPE] => L [MULTIPLE] => Y [XML_ID] => 31 [FILE_TYPE] => [MULTIPLE_CNT] => 1 [LINK_IBLOCK_ID] => 5 [WITH_DESCRIPTION] => N [SEARCHABLE] => N [FILTRABLE] => N [IS_REQUIRED] => N [VERSION] => 1 [USER_TYPE] => [USER_TYPE_SETTINGS] => Array ( ) [HINT] => [~NAME] => Преимущества [~DEFAULT_VALUE] => [VALUE_ENUM] => [VALUE_XML_ID] => [VALUE_SORT] => [VALUE] => [PROPERTY_VALUE_ID] => [DESCRIPTION] => [~DESCRIPTION] => [~VALUE] => ) [ITEM_BUY] => Array ( [ID] => 32 [IBLOCK_ID] => 2 [NAME] => Купить [ACTIVE] => Y [SORT] => 11 [CODE] => ITEM_BUY [DEFAULT_VALUE] => Array ( [TEXT] => [TYPE] => HTML ) [PROPERTY_TYPE] => S [ROW_COUNT] => 1 [COL_COUNT] => 30 [LIST_TYPE] => L [MULTIPLE] => N [XML_ID] => 32 [FILE_TYPE] => [MULTIPLE_CNT] => 5 [LINK_IBLOCK_ID] => 0 [WITH_DESCRIPTION] => N [SEARCHABLE] => N [FILTRABLE] => N [IS_REQUIRED] => N [VERSION] => 1 [USER_TYPE] => HTML [USER_TYPE_SETTINGS] => Array ( [height] => 200 ) [HINT] => [~NAME] => Купить [~DEFAULT_VALUE] => Array ( [TEXT] => [TYPE] => HTML ) [VALUE_ENUM] => [VALUE_XML_ID] => [VALUE_SORT] => [VALUE] => Array ( [TEXT] => <p style="text-align: justify;"> Наше предприятие осуществляет полный цикл производства высоковольтных опор и готово выполнить заказ на поставку опор ПМ110-6 в требуемом объеме. Мы предлагаем технические консультации, помощь в подборе сопутствующего оборудования и гибкие условия сотрудничества. Для расчета стоимости партии, получения подробных технических характеристик или оформления заказа свяжитесь с нашими менеджерами. Мы обеспечим оперативное изготовление и организованную доставку продукции в любой регион Российской Федерации. </p> <p style="text-align: justify;"> </p> <p style="text-align: justify;"> Телефон: 8(800)500-51-37<br> Email: <a href="mailto:info@legionural.ru">info@legionural.ru</a> </p> <p> <a href="mailto:info@legionural.ru"></a> </p> [TYPE] => HTML ) [PROPERTY_VALUE_ID] => 6825346 [DESCRIPTION] => [~VALUE] => Array ( [TEXT] =>

Наше предприятие осуществляет полный цикл производства высоковольтных опор и готово выполнить заказ на поставку опор ПМ110-6 в требуемом объеме. Мы предлагаем технические консультации, помощь в подборе сопутствующего оборудования и гибкие условия сотрудничества. Для расчета стоимости партии, получения подробных технических характеристик или оформления заказа свяжитесь с нашими менеджерами. Мы обеспечим оперативное изготовление и организованную доставку продукции в любой регион Российской Федерации.

Телефон: 8(800)500-51-37
Email: info@legionural.ru

[TYPE] => HTML ) [~DESCRIPTION] => ) [ITEM_CERT_COR] => Array ( [ID] => 33 [IBLOCK_ID] => 2 [NAME] => Сертификаты соответствия [ACTIVE] => Y [SORT] => 12 [CODE] => ITEM_CERT_COR [DEFAULT_VALUE] => [PROPERTY_TYPE] => S [ROW_COUNT] => 1 [COL_COUNT] => 30 [LIST_TYPE] => L [MULTIPLE] => Y [XML_ID] => 33 [FILE_TYPE] => [MULTIPLE_CNT] => 1 [LINK_IBLOCK_ID] => 0 [WITH_DESCRIPTION] => Y [SEARCHABLE] => N [FILTRABLE] => N [IS_REQUIRED] => N [VERSION] => 1 [USER_TYPE] => [USER_TYPE_SETTINGS] => Array ( ) [HINT] => [~NAME] => Сертификаты соответствия [~DEFAULT_VALUE] => [VALUE_ENUM] => [VALUE_XML_ID] => [VALUE_SORT] => [VALUE] => [PROPERTY_VALUE_ID] => [DESCRIPTION] => [~DESCRIPTION] => [~VALUE] => ) [ITEM_ST_STAND] => Array ( [ID] => 34 [IBLOCK_ID] => 2 [NAME] => Государственные стандарты [ACTIVE] => Y [SORT] => 13 [CODE] => ITEM_ST_STAND [DEFAULT_VALUE] => [PROPERTY_TYPE] => S [ROW_COUNT] => 1 [COL_COUNT] => 30 [LIST_TYPE] => L [MULTIPLE] => Y [XML_ID] => 34 [FILE_TYPE] => [MULTIPLE_CNT] => 1 [LINK_IBLOCK_ID] => 0 [WITH_DESCRIPTION] => Y [SEARCHABLE] => N [FILTRABLE] => N [IS_REQUIRED] => N [VERSION] => 1 [USER_TYPE] => [USER_TYPE_SETTINGS] => Array ( ) [HINT] => [~NAME] => Государственные стандарты [~DEFAULT_VALUE] => [VALUE_ENUM] => [VALUE_XML_ID] => [VALUE_SORT] => [VALUE] => [PROPERTY_VALUE_ID] => [DESCRIPTION] => [~DESCRIPTION] => [~VALUE] => ) [ITEM_NORM] => Array ( [ID] => 35 [IBLOCK_ID] => 2 [NAME] => Строительные нормы и правила [ACTIVE] => Y [SORT] => 14 [CODE] => ITEM_NORM [DEFAULT_VALUE] => [PROPERTY_TYPE] => S [ROW_COUNT] => 1 [COL_COUNT] => 30 [LIST_TYPE] => L [MULTIPLE] => Y [XML_ID] => 35 [FILE_TYPE] => [MULTIPLE_CNT] => 1 [LINK_IBLOCK_ID] => 0 [WITH_DESCRIPTION] => Y [SEARCHABLE] => N [FILTRABLE] => N [IS_REQUIRED] => N [VERSION] => 1 [USER_TYPE] => [USER_TYPE_SETTINGS] => Array ( ) [HINT] => [~NAME] => Строительные нормы и правила [~DEFAULT_VALUE] => [VALUE_ENUM] => [VALUE_XML_ID] => [VALUE_SORT] => [VALUE] => [PROPERTY_VALUE_ID] => [DESCRIPTION] => [~DESCRIPTION] => [~VALUE] => ) [ITEM_SIMILAR] => Array ( [ID] => 36 [IBLOCK_ID] => 2 [NAME] => Похожие модели [ACTIVE] => Y [SORT] => 15 [CODE] => ITEM_SIMILAR [DEFAULT_VALUE] => [PROPERTY_TYPE] => G [ROW_COUNT] => 1 [COL_COUNT] => 30 [LIST_TYPE] => L [MULTIPLE] => Y [XML_ID] => 36 [FILE_TYPE] => [MULTIPLE_CNT] => 10 [LINK_IBLOCK_ID] => 2 [WITH_DESCRIPTION] => N [SEARCHABLE] => N [FILTRABLE] => N [IS_REQUIRED] => N [VERSION] => 1 [USER_TYPE] => [USER_TYPE_SETTINGS] => Array ( ) [HINT] => [~NAME] => Похожие модели [~DEFAULT_VALUE] => [VALUE_ENUM] => [VALUE_XML_ID] => [VALUE_SORT] => [VALUE] => [PROPERTY_VALUE_ID] => [DESCRIPTION] => [~DESCRIPTION] => [~VALUE] => ) [ITEM_SIMILAR_TAGS] => Array ( [ID] => 122 [IBLOCK_ID] => 2 [NAME] => Похожие модели (теговые) [ACTIVE] => Y [SORT] => 16 [CODE] => ITEM_SIMILAR_TAGS [DEFAULT_VALUE] => [PROPERTY_TYPE] => E [ROW_COUNT] => 1 [COL_COUNT] => 30 [LIST_TYPE] => L [MULTIPLE] => Y [XML_ID] => 122 [FILE_TYPE] => [MULTIPLE_CNT] => 1 [LINK_IBLOCK_ID] => 19 [WITH_DESCRIPTION] => N [SEARCHABLE] => N [FILTRABLE] => N [IS_REQUIRED] => N [VERSION] => 1 [USER_TYPE] => [USER_TYPE_SETTINGS] => Array ( ) [HINT] => [~NAME] => Похожие модели (теговые) [~DEFAULT_VALUE] => [VALUE_ENUM] => [VALUE_XML_ID] => [VALUE_SORT] => [VALUE] => [PROPERTY_VALUE_ID] => [DESCRIPTION] => [~DESCRIPTION] => [~VALUE] => ) [ITEM_BUY_WITH] => Array ( [ID] => 37 [IBLOCK_ID] => 2 [NAME] => С этим товаром покупают [ACTIVE] => Y [SORT] => 17 [CODE] => ITEM_BUY_WITH [DEFAULT_VALUE] => [PROPERTY_TYPE] => E [ROW_COUNT] => 1 [COL_COUNT] => 30 [LIST_TYPE] => L [MULTIPLE] => Y [XML_ID] => 37 [FILE_TYPE] => [MULTIPLE_CNT] => 1 [LINK_IBLOCK_ID] => 2 [WITH_DESCRIPTION] => N [SEARCHABLE] => N [FILTRABLE] => N [IS_REQUIRED] => N [VERSION] => 1 [USER_TYPE] => [USER_TYPE_SETTINGS] => Array ( ) [HINT] => [~NAME] => С этим товаром покупают [~DEFAULT_VALUE] => [VALUE_ENUM] => [VALUE_XML_ID] => [VALUE_SORT] => [VALUE] => [PROPERTY_VALUE_ID] => [DESCRIPTION] => [~DESCRIPTION] => [~VALUE] => ) [ITEM_VOTE_COUNT] => Array ( [ID] => 38 [IBLOCK_ID] => 2 [NAME] => Количество голосов [ACTIVE] => Y [SORT] => 18 [CODE] => ITEM_VOTE_COUNT [DEFAULT_VALUE] => 0 [PROPERTY_TYPE] => N [ROW_COUNT] => 1 [COL_COUNT] => 30 [LIST_TYPE] => L [MULTIPLE] => N [XML_ID] => 38 [FILE_TYPE] => [MULTIPLE_CNT] => 5 [LINK_IBLOCK_ID] => 0 [WITH_DESCRIPTION] => N [SEARCHABLE] => N [FILTRABLE] => N [IS_REQUIRED] => N [VERSION] => 1 [USER_TYPE] => [USER_TYPE_SETTINGS] => Array ( ) [HINT] => [~NAME] => Количество голосов [~DEFAULT_VALUE] => 0 [VALUE_ENUM] => [VALUE_XML_ID] => [VALUE_SORT] => [VALUE] => 15 [PROPERTY_VALUE_ID] => 5932928 [DESCRIPTION] => [~VALUE] => 15 [~DESCRIPTION] => ) [ITEM_RAITING] => Array ( [ID] => 39 [IBLOCK_ID] => 2 [NAME] => Рейтинг [ACTIVE] => Y [SORT] => 19 [CODE] => ITEM_RAITING [DEFAULT_VALUE] => 0 [PROPERTY_TYPE] => N [ROW_COUNT] => 1 [COL_COUNT] => 30 [LIST_TYPE] => L [MULTIPLE] => N [XML_ID] => 39 [FILE_TYPE] => [MULTIPLE_CNT] => 5 [LINK_IBLOCK_ID] => 0 [WITH_DESCRIPTION] => N [SEARCHABLE] => N [FILTRABLE] => N [IS_REQUIRED] => N [VERSION] => 1 [USER_TYPE] => [USER_TYPE_SETTINGS] => Array ( ) [HINT] => [~NAME] => Рейтинг [~DEFAULT_VALUE] => 0 [VALUE_ENUM] => [VALUE_XML_ID] => [VALUE_SORT] => [VALUE] => 4.6 [PROPERTY_VALUE_ID] => 5932929 [DESCRIPTION] => [~VALUE] => 4.6 [~DESCRIPTION] => ) [H1] => Array ( [ID] => 125 [IBLOCK_ID] => 2 [NAME] => H1 [ACTIVE] => Y [SORT] => 500 [CODE] => H1 [DEFAULT_VALUE] => [PROPERTY_TYPE] => S [ROW_COUNT] => 1 [COL_COUNT] => 70 [LIST_TYPE] => L [MULTIPLE] => N [XML_ID] => 125 [FILE_TYPE] => [MULTIPLE_CNT] => 5 [LINK_IBLOCK_ID] => 0 [WITH_DESCRIPTION] => N [SEARCHABLE] => N [FILTRABLE] => N [IS_REQUIRED] => N [VERSION] => 1 [USER_TYPE] => [USER_TYPE_SETTINGS] => Array ( ) [HINT] => [~NAME] => H1 [~DEFAULT_VALUE] => [VALUE_ENUM] => [VALUE_XML_ID] => [VALUE_SORT] => [VALUE] => Многогранная опора ПМ110-6 [PROPERTY_VALUE_ID] => 5945348 [DESCRIPTION] => [~VALUE] => Многогранная опора ПМ110-6 [~DESCRIPTION] => ) [CERTIFICATES] => Array ( [ID] => 127 [IBLOCK_ID] => 2 [NAME] => Сертификаты [ACTIVE] => Y [SORT] => 500 [CODE] => CERTIFICATES [DEFAULT_VALUE] => [PROPERTY_TYPE] => E [ROW_COUNT] => 1 [COL_COUNT] => 30 [LIST_TYPE] => L [MULTIPLE] => Y [XML_ID] => 127 [FILE_TYPE] => [MULTIPLE_CNT] => 5 [LINK_IBLOCK_ID] => 7 [WITH_DESCRIPTION] => N [SEARCHABLE] => N [FILTRABLE] => N [IS_REQUIRED] => N [VERSION] => 1 [USER_TYPE] => [USER_TYPE_SETTINGS] => Array ( ) [HINT] => [~NAME] => Сертификаты [~DEFAULT_VALUE] => [VALUE_ENUM] => [VALUE_XML_ID] => [VALUE_SORT] => [VALUE] => [PROPERTY_VALUE_ID] => [DESCRIPTION] => [~DESCRIPTION] => [~VALUE] => ) [129] => Array ( [ID] => 129 [IBLOCK_ID] => 2 [NAME] => Уникальный META TITLE [ACTIVE] => Y [SORT] => 500 [CODE] => 129 [DEFAULT_VALUE] => [PROPERTY_TYPE] => S [ROW_COUNT] => 1 [COL_COUNT] => 30 [LIST_TYPE] => L [MULTIPLE] => N [XML_ID] => 129 [FILE_TYPE] => [MULTIPLE_CNT] => 5 [LINK_IBLOCK_ID] => 0 [WITH_DESCRIPTION] => N [SEARCHABLE] => N [FILTRABLE] => N [IS_REQUIRED] => N [VERSION] => 1 [USER_TYPE] => [USER_TYPE_SETTINGS] => Array ( ) [HINT] => [~NAME] => Уникальный META TITLE [~DEFAULT_VALUE] => [VALUE_ENUM] => [VALUE_XML_ID] => [VALUE_SORT] => [VALUE] => [PROPERTY_VALUE_ID] => [DESCRIPTION] => [~DESCRIPTION] => [~VALUE] => ) [ITEM_TYPE] => Array ( [ID] => 134 [IBLOCK_ID] => 2 [NAME] => Тип [ACTIVE] => Y [SORT] => 500 [CODE] => ITEM_TYPE [DEFAULT_VALUE] => [PROPERTY_TYPE] => S [ROW_COUNT] => 1 [COL_COUNT] => 30 [LIST_TYPE] => L [MULTIPLE] => N [XML_ID] => [FILE_TYPE] => [MULTIPLE_CNT] => 5 [LINK_IBLOCK_ID] => 0 [WITH_DESCRIPTION] => N [SEARCHABLE] => N [FILTRABLE] => Y [IS_REQUIRED] => N [VERSION] => 1 [USER_TYPE] => [USER_TYPE_SETTINGS] => Array ( ) [HINT] => [~NAME] => Тип [~DEFAULT_VALUE] => [VALUE_ENUM] => [VALUE_XML_ID] => [VALUE_SORT] => [VALUE] => [PROPERTY_VALUE_ID] => [DESCRIPTION] => [~DESCRIPTION] => [~VALUE] => ) [ITEM_INSTALLATION] => Array ( [ID] => 135 [IBLOCK_ID] => 2 [NAME] => Способ установки [ACTIVE] => Y [SORT] => 500 [CODE] => ITEM_INSTALLATION [DEFAULT_VALUE] => [PROPERTY_TYPE] => S [ROW_COUNT] => 1 [COL_COUNT] => 30 [LIST_TYPE] => L [MULTIPLE] => N [XML_ID] => [FILE_TYPE] => [MULTIPLE_CNT] => 5 [LINK_IBLOCK_ID] => 0 [WITH_DESCRIPTION] => N [SEARCHABLE] => N [FILTRABLE] => N [IS_REQUIRED] => N [VERSION] => 1 [USER_TYPE] => [USER_TYPE_SETTINGS] => Array ( ) [HINT] => [~NAME] => Способ установки [~DEFAULT_VALUE] => [VALUE_ENUM] => [VALUE_XML_ID] => [VALUE_SORT] => [VALUE] => [PROPERTY_VALUE_ID] => [DESCRIPTION] => [~DESCRIPTION] => [~VALUE] => ) [ITEM_MODE] => Array ( [ID] => 136 [IBLOCK_ID] => 2 [NAME] => Способ производства [ACTIVE] => Y [SORT] => 500 [CODE] => ITEM_MODE [DEFAULT_VALUE] => [PROPERTY_TYPE] => S [ROW_COUNT] => 1 [COL_COUNT] => 30 [LIST_TYPE] => L [MULTIPLE] => N [XML_ID] => [FILE_TYPE] => [MULTIPLE_CNT] => 5 [LINK_IBLOCK_ID] => 0 [WITH_DESCRIPTION] => N [SEARCHABLE] => N [FILTRABLE] => N [IS_REQUIRED] => N [VERSION] => 1 [USER_TYPE] => [USER_TYPE_SETTINGS] => Array ( ) [HINT] => [~NAME] => Способ производства [~DEFAULT_VALUE] => [VALUE_ENUM] => [VALUE_XML_ID] => [VALUE_SORT] => [VALUE] => [PROPERTY_VALUE_ID] => [DESCRIPTION] => [~DESCRIPTION] => [~VALUE] => ) [ITEM_HEIGHT] => Array ( [ID] => 137 [IBLOCK_ID] => 2 [NAME] => Высота, мм [ACTIVE] => Y [SORT] => 500 [CODE] => ITEM_HEIGHT [DEFAULT_VALUE] => [PROPERTY_TYPE] => S [ROW_COUNT] => 1 [COL_COUNT] => 30 [LIST_TYPE] => L [MULTIPLE] => N [XML_ID] => [FILE_TYPE] => [MULTIPLE_CNT] => 5 [LINK_IBLOCK_ID] => 0 [WITH_DESCRIPTION] => N [SEARCHABLE] => N [FILTRABLE] => N [IS_REQUIRED] => N [VERSION] => 1 [USER_TYPE] => [USER_TYPE_SETTINGS] => Array ( ) [HINT] => [~NAME] => Высота, мм [~DEFAULT_VALUE] => [VALUE_ENUM] => [VALUE_XML_ID] => [VALUE_SORT] => [VALUE] => [PROPERTY_VALUE_ID] => [DESCRIPTION] => [~DESCRIPTION] => [~VALUE] => ) [BLOG_POST_ID] => Array ( [ID] => 138 [IBLOCK_ID] => 2 [NAME] => ID поста блога для комментариев [ACTIVE] => Y [SORT] => 500 [CODE] => BLOG_POST_ID [DEFAULT_VALUE] => [PROPERTY_TYPE] => N [ROW_COUNT] => 1 [COL_COUNT] => 30 [LIST_TYPE] => L [MULTIPLE] => N [XML_ID] => BLOG_POST_ID [FILE_TYPE] => [MULTIPLE_CNT] => 5 [LINK_IBLOCK_ID] => 0 [WITH_DESCRIPTION] => N [SEARCHABLE] => N [FILTRABLE] => N [IS_REQUIRED] => N [VERSION] => 1 [USER_TYPE] => [USER_TYPE_SETTINGS] => Array ( ) [HINT] => [~NAME] => ID поста блога для комментариев [~DEFAULT_VALUE] => [VALUE_ENUM] => [VALUE_XML_ID] => [VALUE_SORT] => [VALUE] => 1208 [PROPERTY_VALUE_ID] => 6775017 [DESCRIPTION] => [~VALUE] => 1208 [~DESCRIPTION] => ) [BLOG_COMMENTS_CNT] => Array ( [ID] => 139 [IBLOCK_ID] => 2 [NAME] => Количество комментариев [ACTIVE] => Y [SORT] => 500 [CODE] => BLOG_COMMENTS_CNT [DEFAULT_VALUE] => [PROPERTY_TYPE] => N [ROW_COUNT] => 1 [COL_COUNT] => 30 [LIST_TYPE] => L [MULTIPLE] => N [XML_ID] => BLOG_COMMENTS_CNT [FILE_TYPE] => [MULTIPLE_CNT] => 5 [LINK_IBLOCK_ID] => 0 [WITH_DESCRIPTION] => N [SEARCHABLE] => N [FILTRABLE] => N [IS_REQUIRED] => N [VERSION] => 1 [USER_TYPE] => [USER_TYPE_SETTINGS] => Array ( ) [HINT] => [~NAME] => Количество комментариев [~DEFAULT_VALUE] => [VALUE_ENUM] => [VALUE_XML_ID] => [VALUE_SORT] => [VALUE] => [PROPERTY_VALUE_ID] => [DESCRIPTION] => [~DESCRIPTION] => [~VALUE] => ) [HEIGHT_TOTAL] => Array ( [ID] => 143 [IBLOCK_ID] => 2 [NAME] => Высота общая, мм [ACTIVE] => Y [SORT] => 500 [CODE] => HEIGHT_TOTAL [DEFAULT_VALUE] => [PROPERTY_TYPE] => S [ROW_COUNT] => 1 [COL_COUNT] => 30 [LIST_TYPE] => L [MULTIPLE] => N [XML_ID] => [FILE_TYPE] => [MULTIPLE_CNT] => 5 [LINK_IBLOCK_ID] => 0 [WITH_DESCRIPTION] => N [SEARCHABLE] => N [FILTRABLE] => N [IS_REQUIRED] => N [VERSION] => 1 [USER_TYPE] => [USER_TYPE_SETTINGS] => Array ( ) [HINT] => [~NAME] => Высота общая, мм [~DEFAULT_VALUE] => [VALUE_ENUM] => [VALUE_XML_ID] => [VALUE_SORT] => [VALUE] => [PROPERTY_VALUE_ID] => [DESCRIPTION] => [~DESCRIPTION] => [~VALUE] => ) [HEIGHT_ABOVEGROUND] => Array ( [ID] => 144 [IBLOCK_ID] => 2 [NAME] => Высота надземной части, мм [ACTIVE] => Y [SORT] => 500 [CODE] => HEIGHT_ABOVEGROUND [DEFAULT_VALUE] => [PROPERTY_TYPE] => S [ROW_COUNT] => 1 [COL_COUNT] => 30 [LIST_TYPE] => L [MULTIPLE] => N [XML_ID] => [FILE_TYPE] => [MULTIPLE_CNT] => 5 [LINK_IBLOCK_ID] => 0 [WITH_DESCRIPTION] => N [SEARCHABLE] => N [FILTRABLE] => N [IS_REQUIRED] => N [VERSION] => 1 [USER_TYPE] => [USER_TYPE_SETTINGS] => Array ( ) [HINT] => [~NAME] => Высота надземной части, мм [~DEFAULT_VALUE] => [VALUE_ENUM] => [VALUE_XML_ID] => [VALUE_SORT] => [VALUE] => [PROPERTY_VALUE_ID] => [DESCRIPTION] => [~DESCRIPTION] => [~VALUE] => ) [HEIGHT_UNDERGROUND] => Array ( [ID] => 145 [IBLOCK_ID] => 2 [NAME] => Высота подземной части, мм [ACTIVE] => Y [SORT] => 500 [CODE] => HEIGHT_UNDERGROUND [DEFAULT_VALUE] => [PROPERTY_TYPE] => S [ROW_COUNT] => 1 [COL_COUNT] => 30 [LIST_TYPE] => L [MULTIPLE] => N [XML_ID] => [FILE_TYPE] => [MULTIPLE_CNT] => 5 [LINK_IBLOCK_ID] => 0 [WITH_DESCRIPTION] => N [SEARCHABLE] => N [FILTRABLE] => N [IS_REQUIRED] => N [VERSION] => 1 [USER_TYPE] => [USER_TYPE_SETTINGS] => Array ( ) [HINT] => [~NAME] => Высота подземной части, мм [~DEFAULT_VALUE] => [VALUE_ENUM] => [VALUE_XML_ID] => [VALUE_SORT] => [VALUE] => [PROPERTY_VALUE_ID] => [DESCRIPTION] => [~DESCRIPTION] => [~VALUE] => ) [DIAMETER_TOP] => Array ( [ID] => 146 [IBLOCK_ID] => 2 [NAME] => Диаметр верхний, мм [ACTIVE] => Y [SORT] => 500 [CODE] => DIAMETER_TOP [DEFAULT_VALUE] => [PROPERTY_TYPE] => S [ROW_COUNT] => 1 [COL_COUNT] => 30 [LIST_TYPE] => L [MULTIPLE] => N [XML_ID] => [FILE_TYPE] => [MULTIPLE_CNT] => 5 [LINK_IBLOCK_ID] => 0 [WITH_DESCRIPTION] => N [SEARCHABLE] => N [FILTRABLE] => N [IS_REQUIRED] => N [VERSION] => 1 [USER_TYPE] => [USER_TYPE_SETTINGS] => Array ( ) [HINT] => [~NAME] => Диаметр верхний, мм [~DEFAULT_VALUE] => [VALUE_ENUM] => [VALUE_XML_ID] => [VALUE_SORT] => [VALUE] => [PROPERTY_VALUE_ID] => [DESCRIPTION] => [~DESCRIPTION] => [~VALUE] => ) [DIAMETER_BOTTOM] => Array ( [ID] => 147 [IBLOCK_ID] => 2 [NAME] => Диаметр нижний, мм [ACTIVE] => Y [SORT] => 500 [CODE] => DIAMETER_BOTTOM [DEFAULT_VALUE] => [PROPERTY_TYPE] => S [ROW_COUNT] => 1 [COL_COUNT] => 30 [LIST_TYPE] => L [MULTIPLE] => N [XML_ID] => [FILE_TYPE] => [MULTIPLE_CNT] => 5 [LINK_IBLOCK_ID] => 0 [WITH_DESCRIPTION] => N [SEARCHABLE] => N [FILTRABLE] => N [IS_REQUIRED] => N [VERSION] => 1 [USER_TYPE] => [USER_TYPE_SETTINGS] => Array ( ) [HINT] => [~NAME] => Диаметр нижний, мм [~DEFAULT_VALUE] => [VALUE_ENUM] => [VALUE_XML_ID] => [VALUE_SORT] => [VALUE] => [PROPERTY_VALUE_ID] => [DESCRIPTION] => [~DESCRIPTION] => [~VALUE] => ) [WEIGHT] => Array ( [ID] => 148 [IBLOCK_ID] => 2 [NAME] => Нагрузка, кг [ACTIVE] => Y [SORT] => 500 [CODE] => WEIGHT [DEFAULT_VALUE] => [PROPERTY_TYPE] => S [ROW_COUNT] => 1 [COL_COUNT] => 30 [LIST_TYPE] => L [MULTIPLE] => N [XML_ID] => [FILE_TYPE] => [MULTIPLE_CNT] => 5 [LINK_IBLOCK_ID] => 0 [WITH_DESCRIPTION] => N [SEARCHABLE] => N [FILTRABLE] => N [IS_REQUIRED] => N [VERSION] => 1 [USER_TYPE] => [USER_TYPE_SETTINGS] => Array ( ) [HINT] => [~NAME] => Нагрузка, кг [~DEFAULT_VALUE] => [VALUE_ENUM] => [VALUE_XML_ID] => [VALUE_SORT] => [VALUE] => [PROPERTY_VALUE_ID] => [DESCRIPTION] => [~DESCRIPTION] => [~VALUE] => ) [VID] => Array ( [ID] => 149 [IBLOCK_ID] => 2 [NAME] => Вид [ACTIVE] => Y [SORT] => 500 [CODE] => VID [DEFAULT_VALUE] => [PROPERTY_TYPE] => S [ROW_COUNT] => 1 [COL_COUNT] => 30 [LIST_TYPE] => L [MULTIPLE] => N [XML_ID] => [FILE_TYPE] => [MULTIPLE_CNT] => 5 [LINK_IBLOCK_ID] => 0 [WITH_DESCRIPTION] => N [SEARCHABLE] => N [FILTRABLE] => N [IS_REQUIRED] => N [VERSION] => 1 [USER_TYPE] => [USER_TYPE_SETTINGS] => Array ( ) [HINT] => [~NAME] => Вид [~DEFAULT_VALUE] => [VALUE_ENUM] => [VALUE_XML_ID] => [VALUE_SORT] => [VALUE] => [PROPERTY_VALUE_ID] => [DESCRIPTION] => [~DESCRIPTION] => [~VALUE] => ) [SERVICE_LIFE] => Array ( [ID] => 150 [IBLOCK_ID] => 2 [NAME] => Срок службы [ACTIVE] => Y [SORT] => 500 [CODE] => SERVICE_LIFE [DEFAULT_VALUE] => [PROPERTY_TYPE] => S [ROW_COUNT] => 1 [COL_COUNT] => 30 [LIST_TYPE] => L [MULTIPLE] => N [XML_ID] => [FILE_TYPE] => [MULTIPLE_CNT] => 5 [LINK_IBLOCK_ID] => 0 [WITH_DESCRIPTION] => N [SEARCHABLE] => N [FILTRABLE] => N [IS_REQUIRED] => N [VERSION] => 1 [USER_TYPE] => [USER_TYPE_SETTINGS] => Array ( ) [HINT] => [~NAME] => Срок службы [~DEFAULT_VALUE] => [VALUE_ENUM] => [VALUE_XML_ID] => [VALUE_SORT] => [VALUE] => [PROPERTY_VALUE_ID] => [DESCRIPTION] => [~DESCRIPTION] => [~VALUE] => ) [USING] => Array ( [ID] => 151 [IBLOCK_ID] => 2 [NAME] => Применение [ACTIVE] => Y [SORT] => 500 [CODE] => USING [DEFAULT_VALUE] => [PROPERTY_TYPE] => S [ROW_COUNT] => 1 [COL_COUNT] => 30 [LIST_TYPE] => L [MULTIPLE] => N [XML_ID] => [FILE_TYPE] => [MULTIPLE_CNT] => 5 [LINK_IBLOCK_ID] => 0 [WITH_DESCRIPTION] => N [SEARCHABLE] => N [FILTRABLE] => N [IS_REQUIRED] => N [VERSION] => 1 [USER_TYPE] => [USER_TYPE_SETTINGS] => Array ( ) [HINT] => [~NAME] => Применение [~DEFAULT_VALUE] => [VALUE_ENUM] => [VALUE_XML_ID] => [VALUE_SORT] => [VALUE] => [PROPERTY_VALUE_ID] => [DESCRIPTION] => [~DESCRIPTION] => [~VALUE] => ) [HEIGHT_ZAK] => Array ( [ID] => 152 [IBLOCK_ID] => 2 [NAME] => Высота закладного элемента фундамента [ACTIVE] => Y [SORT] => 500 [CODE] => HEIGHT_ZAK [DEFAULT_VALUE] => [PROPERTY_TYPE] => S [ROW_COUNT] => 1 [COL_COUNT] => 30 [LIST_TYPE] => L [MULTIPLE] => N [XML_ID] => [FILE_TYPE] => [MULTIPLE_CNT] => 5 [LINK_IBLOCK_ID] => 0 [WITH_DESCRIPTION] => N [SEARCHABLE] => N [FILTRABLE] => N [IS_REQUIRED] => N [VERSION] => 1 [USER_TYPE] => [USER_TYPE_SETTINGS] => Array ( ) [HINT] => [~NAME] => Высота закладного элемента фундамента [~DEFAULT_VALUE] => [VALUE_ENUM] => [VALUE_XML_ID] => [VALUE_SORT] => [VALUE] => [PROPERTY_VALUE_ID] => [DESCRIPTION] => [~DESCRIPTION] => [~VALUE] => ) [LENGTH_CONSOLE] => Array ( [ID] => 153 [IBLOCK_ID] => 2 [NAME] => Длина консоли [ACTIVE] => Y [SORT] => 500 [CODE] => LENGTH_CONSOLE [DEFAULT_VALUE] => [PROPERTY_TYPE] => S [ROW_COUNT] => 1 [COL_COUNT] => 30 [LIST_TYPE] => L [MULTIPLE] => N [XML_ID] => [FILE_TYPE] => [MULTIPLE_CNT] => 5 [LINK_IBLOCK_ID] => 0 [WITH_DESCRIPTION] => N [SEARCHABLE] => N [FILTRABLE] => N [IS_REQUIRED] => N [VERSION] => 1 [USER_TYPE] => [USER_TYPE_SETTINGS] => Array ( ) [HINT] => [~NAME] => Длина консоли [~DEFAULT_VALUE] => [VALUE_ENUM] => [VALUE_XML_ID] => [VALUE_SORT] => [VALUE] => [PROPERTY_VALUE_ID] => [DESCRIPTION] => [~DESCRIPTION] => [~VALUE] => ) [HEIGHT_TOP_SECTION] => Array ( [ID] => 154 [IBLOCK_ID] => 2 [NAME] => Высота верхней секции, мм [ACTIVE] => Y [SORT] => 500 [CODE] => HEIGHT_TOP_SECTION [DEFAULT_VALUE] => [PROPERTY_TYPE] => S [ROW_COUNT] => 1 [COL_COUNT] => 30 [LIST_TYPE] => L [MULTIPLE] => N [XML_ID] => [FILE_TYPE] => [MULTIPLE_CNT] => 5 [LINK_IBLOCK_ID] => 0 [WITH_DESCRIPTION] => N [SEARCHABLE] => N [FILTRABLE] => N [IS_REQUIRED] => N [VERSION] => 1 [USER_TYPE] => [USER_TYPE_SETTINGS] => Array ( ) [HINT] => [~NAME] => Высота верхней секции, мм [~DEFAULT_VALUE] => [VALUE_ENUM] => [VALUE_XML_ID] => [VALUE_SORT] => [VALUE] => [PROPERTY_VALUE_ID] => [DESCRIPTION] => [~DESCRIPTION] => [~VALUE] => ) [SIP] => Array ( [ID] => 156 [IBLOCK_ID] => 2 [NAME] => Возможность подвеса СИП [ACTIVE] => Y [SORT] => 500 [CODE] => SIP [DEFAULT_VALUE] => [PROPERTY_TYPE] => S [ROW_COUNT] => 1 [COL_COUNT] => 30 [LIST_TYPE] => L [MULTIPLE] => N [XML_ID] => [FILE_TYPE] => [MULTIPLE_CNT] => 5 [LINK_IBLOCK_ID] => 0 [WITH_DESCRIPTION] => N [SEARCHABLE] => N [FILTRABLE] => N [IS_REQUIRED] => N [VERSION] => 1 [USER_TYPE] => [USER_TYPE_SETTINGS] => Array ( ) [HINT] => [~NAME] => Возможность подвеса СИП [~DEFAULT_VALUE] => [VALUE_ENUM] => [VALUE_XML_ID] => [VALUE_SORT] => [VALUE] => [PROPERTY_VALUE_ID] => [DESCRIPTION] => [~DESCRIPTION] => [~VALUE] => ) [COUNT_GRANY] => Array ( [ID] => 157 [IBLOCK_ID] => 2 [NAME] => Количество граней [ACTIVE] => Y [SORT] => 500 [CODE] => COUNT_GRANY [DEFAULT_VALUE] => [PROPERTY_TYPE] => S [ROW_COUNT] => 1 [COL_COUNT] => 30 [LIST_TYPE] => L [MULTIPLE] => N [XML_ID] => [FILE_TYPE] => [MULTIPLE_CNT] => 5 [LINK_IBLOCK_ID] => 0 [WITH_DESCRIPTION] => N [SEARCHABLE] => N [FILTRABLE] => N [IS_REQUIRED] => N [VERSION] => 1 [USER_TYPE] => [USER_TYPE_SETTINGS] => Array ( ) [HINT] => [~NAME] => Количество граней [~DEFAULT_VALUE] => [VALUE_ENUM] => [VALUE_XML_ID] => [VALUE_SORT] => [VALUE] => [PROPERTY_VALUE_ID] => [DESCRIPTION] => [~DESCRIPTION] => [~VALUE] => ) [HEIGHT_BOTTOM_SECTION] => Array ( [ID] => 158 [IBLOCK_ID] => 2 [NAME] => Высота нижней секции, мм [ACTIVE] => Y [SORT] => 500 [CODE] => HEIGHT_BOTTOM_SECTION [DEFAULT_VALUE] => [PROPERTY_TYPE] => S [ROW_COUNT] => 1 [COL_COUNT] => 30 [LIST_TYPE] => L [MULTIPLE] => N [XML_ID] => [FILE_TYPE] => [MULTIPLE_CNT] => 5 [LINK_IBLOCK_ID] => 0 [WITH_DESCRIPTION] => N [SEARCHABLE] => N [FILTRABLE] => N [IS_REQUIRED] => N [VERSION] => 1 [USER_TYPE] => [USER_TYPE_SETTINGS] => Array ( ) [HINT] => [~NAME] => Высота нижней секции, мм [~DEFAULT_VALUE] => [VALUE_ENUM] => [VALUE_XML_ID] => [VALUE_SORT] => [VALUE] => [PROPERTY_VALUE_ID] => [DESCRIPTION] => [~DESCRIPTION] => [~VALUE] => ) [STEEL_THICKNESS] => Array ( [ID] => 160 [IBLOCK_ID] => 2 [NAME] => Толщина стали [ACTIVE] => Y [SORT] => 500 [CODE] => STEEL_THICKNESS [DEFAULT_VALUE] => [PROPERTY_TYPE] => S [ROW_COUNT] => 1 [COL_COUNT] => 30 [LIST_TYPE] => L [MULTIPLE] => N [XML_ID] => [FILE_TYPE] => [MULTIPLE_CNT] => 5 [LINK_IBLOCK_ID] => 0 [WITH_DESCRIPTION] => N [SEARCHABLE] => N [FILTRABLE] => N [IS_REQUIRED] => N [VERSION] => 1 [USER_TYPE] => [USER_TYPE_SETTINGS] => Array ( ) [HINT] => [~NAME] => Толщина стали [~DEFAULT_VALUE] => [VALUE_ENUM] => [VALUE_XML_ID] => [VALUE_SORT] => [VALUE] => [PROPERTY_VALUE_ID] => [DESCRIPTION] => [~DESCRIPTION] => [~VALUE] => ) [SIZE_OPOR_FLANEC] => Array ( [ID] => 161 [IBLOCK_ID] => 2 [NAME] => Размеры опорного фланца [ACTIVE] => Y [SORT] => 500 [CODE] => SIZE_OPOR_FLANEC [DEFAULT_VALUE] => [PROPERTY_TYPE] => S [ROW_COUNT] => 1 [COL_COUNT] => 30 [LIST_TYPE] => L [MULTIPLE] => N [XML_ID] => [FILE_TYPE] => [MULTIPLE_CNT] => 5 [LINK_IBLOCK_ID] => 0 [WITH_DESCRIPTION] => N [SEARCHABLE] => N [FILTRABLE] => N [IS_REQUIRED] => N [VERSION] => 1 [USER_TYPE] => [USER_TYPE_SETTINGS] => Array ( ) [HINT] => [~NAME] => Размеры опорного фланца [~DEFAULT_VALUE] => [VALUE_ENUM] => [VALUE_XML_ID] => [VALUE_SORT] => [VALUE] => [PROPERTY_VALUE_ID] => [DESCRIPTION] => [~DESCRIPTION] => [~VALUE] => ) [POKRASKA] => Array ( [ID] => 162 [IBLOCK_ID] => 2 [NAME] => Лакокрасочное покрытие [ACTIVE] => Y [SORT] => 500 [CODE] => POKRASKA [DEFAULT_VALUE] => [PROPERTY_TYPE] => S [ROW_COUNT] => 1 [COL_COUNT] => 30 [LIST_TYPE] => L [MULTIPLE] => N [XML_ID] => [FILE_TYPE] => [MULTIPLE_CNT] => 5 [LINK_IBLOCK_ID] => 0 [WITH_DESCRIPTION] => N [SEARCHABLE] => N [FILTRABLE] => N [IS_REQUIRED] => N [VERSION] => 1 [USER_TYPE] => [USER_TYPE_SETTINGS] => Array ( ) [HINT] => [~NAME] => Лакокрасочное покрытие [~DEFAULT_VALUE] => [VALUE_ENUM] => [VALUE_XML_ID] => [VALUE_SORT] => [VALUE] => [PROPERTY_VALUE_ID] => [DESCRIPTION] => [~DESCRIPTION] => [~VALUE] => ) [VES] => Array ( [ID] => 163 [IBLOCK_ID] => 2 [NAME] => Вес [ACTIVE] => Y [SORT] => 500 [CODE] => VES [DEFAULT_VALUE] => [PROPERTY_TYPE] => S [ROW_COUNT] => 1 [COL_COUNT] => 30 [LIST_TYPE] => L [MULTIPLE] => N [XML_ID] => [FILE_TYPE] => [MULTIPLE_CNT] => 5 [LINK_IBLOCK_ID] => 0 [WITH_DESCRIPTION] => N [SEARCHABLE] => N [FILTRABLE] => N [IS_REQUIRED] => N [VERSION] => 1 [USER_TYPE] => [USER_TYPE_SETTINGS] => Array ( ) [HINT] => [~NAME] => Вес [~DEFAULT_VALUE] => [VALUE_ENUM] => [VALUE_XML_ID] => [VALUE_SORT] => [VALUE] => [PROPERTY_VALUE_ID] => [DESCRIPTION] => [~DESCRIPTION] => [~VALUE] => ) [INSTALL_LYUCHKA] => Array ( [ID] => 164 [IBLOCK_ID] => 2 [NAME] => Возможность установки лючка [ACTIVE] => Y [SORT] => 500 [CODE] => INSTALL_LYUCHKA [DEFAULT_VALUE] => [PROPERTY_TYPE] => S [ROW_COUNT] => 1 [COL_COUNT] => 30 [LIST_TYPE] => L [MULTIPLE] => N [XML_ID] => [FILE_TYPE] => [MULTIPLE_CNT] => 5 [LINK_IBLOCK_ID] => 0 [WITH_DESCRIPTION] => N [SEARCHABLE] => N [FILTRABLE] => N [IS_REQUIRED] => N [VERSION] => 1 [USER_TYPE] => [USER_TYPE_SETTINGS] => Array ( ) [HINT] => [~NAME] => Возможность установки лючка [~DEFAULT_VALUE] => [VALUE_ENUM] => [VALUE_XML_ID] => [VALUE_SORT] => [VALUE] => [PROPERTY_VALUE_ID] => [DESCRIPTION] => [~DESCRIPTION] => [~VALUE] => ) [DIAMETER_FLANCA] => Array ( [ID] => 165 [IBLOCK_ID] => 2 [NAME] => Диаметр фланца, мм [ACTIVE] => Y [SORT] => 500 [CODE] => DIAMETER_FLANCA [DEFAULT_VALUE] => [PROPERTY_TYPE] => S [ROW_COUNT] => 1 [COL_COUNT] => 30 [LIST_TYPE] => L [MULTIPLE] => N [XML_ID] => [FILE_TYPE] => [MULTIPLE_CNT] => 5 [LINK_IBLOCK_ID] => 0 [WITH_DESCRIPTION] => N [SEARCHABLE] => N [FILTRABLE] => N [IS_REQUIRED] => N [VERSION] => 1 [USER_TYPE] => [USER_TYPE_SETTINGS] => Array ( ) [HINT] => [~NAME] => Диаметр фланца, мм [~DEFAULT_VALUE] => [VALUE_ENUM] => [VALUE_XML_ID] => [VALUE_SORT] => [VALUE] => [PROPERTY_VALUE_ID] => [DESCRIPTION] => [~DESCRIPTION] => [~VALUE] => ) [COUNT_LIGHT] => Array ( [ID] => 166 [IBLOCK_ID] => 2 [NAME] => Количество осветительных приборов, шт [ACTIVE] => Y [SORT] => 500 [CODE] => COUNT_LIGHT [DEFAULT_VALUE] => [PROPERTY_TYPE] => S [ROW_COUNT] => 1 [COL_COUNT] => 30 [LIST_TYPE] => L [MULTIPLE] => N [XML_ID] => [FILE_TYPE] => [MULTIPLE_CNT] => 5 [LINK_IBLOCK_ID] => 0 [WITH_DESCRIPTION] => N [SEARCHABLE] => N [FILTRABLE] => N [IS_REQUIRED] => N [VERSION] => 1 [USER_TYPE] => [USER_TYPE_SETTINGS] => Array ( ) [HINT] => [~NAME] => Количество осветительных приборов, шт [~DEFAULT_VALUE] => [VALUE_ENUM] => [VALUE_XML_ID] => [VALUE_SORT] => [VALUE] => [PROPERTY_VALUE_ID] => [DESCRIPTION] => [~DESCRIPTION] => [~VALUE] => ) [WEIGHT_TO_KRON] => Array ( [ID] => 167 [IBLOCK_ID] => 2 [NAME] => Высота до кронштейна, мм [ACTIVE] => Y [SORT] => 500 [CODE] => WEIGHT_TO_KRON [DEFAULT_VALUE] => [PROPERTY_TYPE] => S [ROW_COUNT] => 1 [COL_COUNT] => 30 [LIST_TYPE] => L [MULTIPLE] => N [XML_ID] => [FILE_TYPE] => [MULTIPLE_CNT] => 5 [LINK_IBLOCK_ID] => 0 [WITH_DESCRIPTION] => N [SEARCHABLE] => N [FILTRABLE] => N [IS_REQUIRED] => N [VERSION] => 1 [USER_TYPE] => [USER_TYPE_SETTINGS] => Array ( ) [HINT] => [~NAME] => Высота до кронштейна, мм [~DEFAULT_VALUE] => [VALUE_ENUM] => [VALUE_XML_ID] => [VALUE_SORT] => [VALUE] => [PROPERTY_VALUE_ID] => [DESCRIPTION] => [~DESCRIPTION] => [~VALUE] => ) [SIZE_FLANEC] => Array ( [ID] => 169 [IBLOCK_ID] => 2 [NAME] => Размер фланца [ACTIVE] => Y [SORT] => 500 [CODE] => SIZE_FLANEC [DEFAULT_VALUE] => [PROPERTY_TYPE] => S [ROW_COUNT] => 1 [COL_COUNT] => 30 [LIST_TYPE] => L [MULTIPLE] => N [XML_ID] => [FILE_TYPE] => [MULTIPLE_CNT] => 5 [LINK_IBLOCK_ID] => 0 [WITH_DESCRIPTION] => N [SEARCHABLE] => N [FILTRABLE] => N [IS_REQUIRED] => N [VERSION] => 1 [USER_TYPE] => [USER_TYPE_SETTINGS] => Array ( ) [HINT] => [~NAME] => Размер фланца [~DEFAULT_VALUE] => [VALUE_ENUM] => [VALUE_XML_ID] => [VALUE_SORT] => [VALUE] => [PROPERTY_VALUE_ID] => [DESCRIPTION] => [~DESCRIPTION] => [~VALUE] => ) [WEIGHT_MIDDLE_SECTION] => Array ( [ID] => 170 [IBLOCK_ID] => 2 [NAME] => Высота промежуточной секции, мм [ACTIVE] => Y [SORT] => 500 [CODE] => WEIGHT_MIDDLE_SECTION [DEFAULT_VALUE] => [PROPERTY_TYPE] => S [ROW_COUNT] => 1 [COL_COUNT] => 30 [LIST_TYPE] => L [MULTIPLE] => N [XML_ID] => [FILE_TYPE] => [MULTIPLE_CNT] => 5 [LINK_IBLOCK_ID] => 0 [WITH_DESCRIPTION] => N [SEARCHABLE] => N [FILTRABLE] => N [IS_REQUIRED] => N [VERSION] => 1 [USER_TYPE] => [USER_TYPE_SETTINGS] => Array ( ) [HINT] => [~NAME] => Высота промежуточной секции, мм [~DEFAULT_VALUE] => [VALUE_ENUM] => [VALUE_XML_ID] => [VALUE_SORT] => [VALUE] => [PROPERTY_VALUE_ID] => [DESCRIPTION] => [~DESCRIPTION] => [~VALUE] => ) [DEFEND_POKRYTIE] => Array ( [ID] => 171 [IBLOCK_ID] => 2 [NAME] => Защитное покрытие [ACTIVE] => Y [SORT] => 500 [CODE] => DEFEND_POKRYTIE [DEFAULT_VALUE] => [PROPERTY_TYPE] => S [ROW_COUNT] => 1 [COL_COUNT] => 30 [LIST_TYPE] => L [MULTIPLE] => N [XML_ID] => [FILE_TYPE] => [MULTIPLE_CNT] => 5 [LINK_IBLOCK_ID] => 0 [WITH_DESCRIPTION] => N [SEARCHABLE] => N [FILTRABLE] => N [IS_REQUIRED] => N [VERSION] => 1 [USER_TYPE] => [USER_TYPE_SETTINGS] => Array ( ) [HINT] => [~NAME] => Защитное покрытие [~DEFAULT_VALUE] => [VALUE_ENUM] => [VALUE_XML_ID] => [VALUE_SORT] => [VALUE] => [PROPERTY_VALUE_ID] => [DESCRIPTION] => [~DESCRIPTION] => [~VALUE] => ) [WIND_REGION] => Array ( [ID] => 172 [IBLOCK_ID] => 2 [NAME] => Ветровой район [ACTIVE] => Y [SORT] => 500 [CODE] => WIND_REGION [DEFAULT_VALUE] => [PROPERTY_TYPE] => S [ROW_COUNT] => 1 [COL_COUNT] => 30 [LIST_TYPE] => L [MULTIPLE] => N [XML_ID] => [FILE_TYPE] => [MULTIPLE_CNT] => 5 [LINK_IBLOCK_ID] => 0 [WITH_DESCRIPTION] => N [SEARCHABLE] => N [FILTRABLE] => N [IS_REQUIRED] => N [VERSION] => 1 [USER_TYPE] => [USER_TYPE_SETTINGS] => Array ( ) [HINT] => [~NAME] => Ветровой район [~DEFAULT_VALUE] => [VALUE_ENUM] => [VALUE_XML_ID] => [VALUE_SORT] => [VALUE] => [PROPERTY_VALUE_ID] => [DESCRIPTION] => [~DESCRIPTION] => [~VALUE] => ) [DIAMETER_OPOR_FLANCA] => Array ( [ID] => 173 [IBLOCK_ID] => 2 [NAME] => Диаметр опорного фланца, мм [ACTIVE] => Y [SORT] => 500 [CODE] => DIAMETER_OPOR_FLANCA [DEFAULT_VALUE] => [PROPERTY_TYPE] => S [ROW_COUNT] => 1 [COL_COUNT] => 30 [LIST_TYPE] => L [MULTIPLE] => N [XML_ID] => [FILE_TYPE] => [MULTIPLE_CNT] => 5 [LINK_IBLOCK_ID] => 0 [WITH_DESCRIPTION] => N [SEARCHABLE] => N [FILTRABLE] => N [IS_REQUIRED] => N [VERSION] => 1 [USER_TYPE] => [USER_TYPE_SETTINGS] => Array ( ) [HINT] => [~NAME] => Диаметр опорного фланца, мм [~DEFAULT_VALUE] => [VALUE_ENUM] => [VALUE_XML_ID] => [VALUE_SORT] => [VALUE] => [PROPERTY_VALUE_ID] => [DESCRIPTION] => [~DESCRIPTION] => [~VALUE] => ) [CENTER_DIST] => Array ( [ID] => 174 [IBLOCK_ID] => 2 [NAME] => Межцентровое расстояние, мм [ACTIVE] => Y [SORT] => 500 [CODE] => CENTER_DIST [DEFAULT_VALUE] => [PROPERTY_TYPE] => S [ROW_COUNT] => 1 [COL_COUNT] => 30 [LIST_TYPE] => L [MULTIPLE] => N [XML_ID] => [FILE_TYPE] => [MULTIPLE_CNT] => 5 [LINK_IBLOCK_ID] => 0 [WITH_DESCRIPTION] => N [SEARCHABLE] => N [FILTRABLE] => N [IS_REQUIRED] => N [VERSION] => 1 [USER_TYPE] => [USER_TYPE_SETTINGS] => Array ( ) [HINT] => [~NAME] => Межцентровое расстояние, мм [~DEFAULT_VALUE] => [VALUE_ENUM] => [VALUE_XML_ID] => [VALUE_SORT] => [VALUE] => [PROPERTY_VALUE_ID] => [DESCRIPTION] => [~DESCRIPTION] => [~VALUE] => ) [FLANEC_THICKNESS] => Array ( [ID] => 175 [IBLOCK_ID] => 2 [NAME] => Толщина фланца, мм [ACTIVE] => Y [SORT] => 500 [CODE] => FLANEC_THICKNESS [DEFAULT_VALUE] => [PROPERTY_TYPE] => S [ROW_COUNT] => 1 [COL_COUNT] => 30 [LIST_TYPE] => L [MULTIPLE] => N [XML_ID] => [FILE_TYPE] => [MULTIPLE_CNT] => 5 [LINK_IBLOCK_ID] => 0 [WITH_DESCRIPTION] => N [SEARCHABLE] => N [FILTRABLE] => N [IS_REQUIRED] => N [VERSION] => 1 [USER_TYPE] => [USER_TYPE_SETTINGS] => Array ( ) [HINT] => [~NAME] => Толщина фланца, мм [~DEFAULT_VALUE] => [VALUE_ENUM] => [VALUE_XML_ID] => [VALUE_SORT] => [VALUE] => [PROPERTY_VALUE_ID] => [DESCRIPTION] => [~DESCRIPTION] => [~VALUE] => ) [COUNT_HOLE] => Array ( [ID] => 176 [IBLOCK_ID] => 2 [NAME] => Количество отверстий крепления, шт [ACTIVE] => Y [SORT] => 500 [CODE] => COUNT_HOLE [DEFAULT_VALUE] => [PROPERTY_TYPE] => S [ROW_COUNT] => 1 [COL_COUNT] => 30 [LIST_TYPE] => L [MULTIPLE] => N [XML_ID] => [FILE_TYPE] => [MULTIPLE_CNT] => 5 [LINK_IBLOCK_ID] => 0 [WITH_DESCRIPTION] => N [SEARCHABLE] => N [FILTRABLE] => N [IS_REQUIRED] => N [VERSION] => 1 [USER_TYPE] => [USER_TYPE_SETTINGS] => Array ( ) [HINT] => [~NAME] => Количество отверстий крепления, шт [~DEFAULT_VALUE] => [VALUE_ENUM] => [VALUE_XML_ID] => [VALUE_SORT] => [VALUE] => [PROPERTY_VALUE_ID] => [DESCRIPTION] => [~DESCRIPTION] => [~VALUE] => ) [INSPECTION_WINDOW] => Array ( [ID] => 179 [IBLOCK_ID] => 2 [NAME] => Ревизионное окно, мм [ACTIVE] => Y [SORT] => 500 [CODE] => INSPECTION_WINDOW [DEFAULT_VALUE] => [PROPERTY_TYPE] => S [ROW_COUNT] => 1 [COL_COUNT] => 30 [LIST_TYPE] => L [MULTIPLE] => N [XML_ID] => [FILE_TYPE] => [MULTIPLE_CNT] => 5 [LINK_IBLOCK_ID] => 0 [WITH_DESCRIPTION] => N [SEARCHABLE] => N [FILTRABLE] => N [IS_REQUIRED] => N [VERSION] => 1 [USER_TYPE] => [USER_TYPE_SETTINGS] => Array ( ) [HINT] => [~NAME] => Ревизионное окно, мм [~DEFAULT_VALUE] => [VALUE_ENUM] => [VALUE_XML_ID] => [VALUE_SORT] => [VALUE] => [PROPERTY_VALUE_ID] => [DESCRIPTION] => [~DESCRIPTION] => [~VALUE] => ) [THREE_MODEL] => Array ( [ID] => 182 [IBLOCK_ID] => 2 [NAME] => 3D-модель [ACTIVE] => Y [SORT] => 500 [CODE] => THREE_MODEL [DEFAULT_VALUE] => [PROPERTY_TYPE] => F [ROW_COUNT] => 1 [COL_COUNT] => 30 [LIST_TYPE] => L [MULTIPLE] => N [XML_ID] => [FILE_TYPE] => [MULTIPLE_CNT] => 5 [LINK_IBLOCK_ID] => 0 [WITH_DESCRIPTION] => N [SEARCHABLE] => N [FILTRABLE] => N [IS_REQUIRED] => N [VERSION] => 1 [USER_TYPE] => [USER_TYPE_SETTINGS] => Array ( ) [HINT] => [~NAME] => 3D-модель [~DEFAULT_VALUE] => [VALUE_ENUM] => [VALUE_XML_ID] => [VALUE_SORT] => [VALUE] => [PROPERTY_VALUE_ID] => [DESCRIPTION] => [~DESCRIPTION] => [~VALUE] => ) [FAQ] => Array ( [ID] => 183 [IBLOCK_ID] => 2 [NAME] => FAQ [ACTIVE] => Y [SORT] => 500 [CODE] => FAQ [DEFAULT_VALUE] => Array ( [TYPE] => TEXT [TEXT] => ) [PROPERTY_TYPE] => S [ROW_COUNT] => 1 [COL_COUNT] => 30 [LIST_TYPE] => L [MULTIPLE] => N [XML_ID] => [FILE_TYPE] => [MULTIPLE_CNT] => 5 [LINK_IBLOCK_ID] => 0 [WITH_DESCRIPTION] => N [SEARCHABLE] => N [FILTRABLE] => N [IS_REQUIRED] => N [VERSION] => 1 [USER_TYPE] => HTML [USER_TYPE_SETTINGS] => Array ( [height] => 200 ) [HINT] => [~NAME] => FAQ [~DEFAULT_VALUE] => Array ( [TYPE] => TEXT [TEXT] => ) [VALUE_ENUM] => [VALUE_XML_ID] => [VALUE_SORT] => [VALUE] => [PROPERTY_VALUE_ID] => [DESCRIPTION] => [~DESCRIPTION] => [~VALUE] => ) ) [DISPLAY_PROPERTIES] => Array ( [ITEM_PRICE] => Array ( [ID] => 22 [IBLOCK_ID] => 2 [NAME] => Цена [ACTIVE] => Y [SORT] => 3 [CODE] => ITEM_PRICE [DEFAULT_VALUE] => [PROPERTY_TYPE] => L [ROW_COUNT] => 1 [COL_COUNT] => 30 [LIST_TYPE] => L [MULTIPLE] => N [XML_ID] => 22 [FILE_TYPE] => [MULTIPLE_CNT] => 5 [LINK_IBLOCK_ID] => 0 [WITH_DESCRIPTION] => N [SEARCHABLE] => N [FILTRABLE] => N [IS_REQUIRED] => Y [VERSION] => 1 [USER_TYPE] => [USER_TYPE_SETTINGS] => Array ( ) [HINT] => [~NAME] => Цена [~DEFAULT_VALUE] => [VALUE_ENUM] => По запросу [VALUE_XML_ID] => on-request [VALUE_SORT] => 1 [VALUE] => По запросу [PROPERTY_VALUE_ID] => 6825332 [VALUE_ENUM_ID] => 9 [DESCRIPTION] => [~VALUE] => По запросу [~DESCRIPTION] => [DISPLAY_VALUE] => По запросу ) [ITEM_CHARACTERISTICS] => Array ( [ID] => 28 [IBLOCK_ID] => 2 [NAME] => Характеристики [ACTIVE] => Y [SORT] => 6 [CODE] => ITEM_CHARACTERISTICS [DEFAULT_VALUE] => [PROPERTY_TYPE] => S [ROW_COUNT] => 1 [COL_COUNT] => 20 [LIST_TYPE] => L [MULTIPLE] => Y [XML_ID] => 28 [FILE_TYPE] => [MULTIPLE_CNT] => 1 [LINK_IBLOCK_ID] => 0 [WITH_DESCRIPTION] => Y [SEARCHABLE] => N [FILTRABLE] => N [IS_REQUIRED] => N [VERSION] => 1 [USER_TYPE] => [USER_TYPE_SETTINGS] => Array ( ) [HINT] => [~NAME] => Характеристики [~DEFAULT_VALUE] => [VALUE_ENUM] => [VALUE_XML_ID] => [VALUE_SORT] => [VALUE] => Array ( [0] => прямостоечная [1] => граненая [2] => 23700 [3] => 13700 [4] => 720 [5] => 200 [6] => одностоечная свободностоящая, с тросовой консолью для двух грозотросов [7] => промежуточная [8] => Горячее цинкование [9] => Порошковое / полимерное окрашивание [10] => 30 лет ) [PROPERTY_VALUE_ID] => Array ( [0] => 6825333 [1] => 6825334 [2] => 6825335 [3] => 6825336 [4] => 6825337 [5] => 6825338 [6] => 6825339 [7] => 6825340 [8] => 6825341 [9] => 6825342 [10] => 6825343 ) [DESCRIPTION] => Array ( [0] => Способ установки [1] => Способ производства [2] => Высота, мм [3] => Высота до нижней траверсы, мм [4] => Диаметр нижний, мм [5] => Диаметр верхний, мм [6] => Конструкция [7] => Назначение [8] => Защитное покрытие [9] => Лакокрасочное покрытие [10] => Срок службы ) [~VALUE] => Array ( [0] => прямостоечная [1] => граненая [2] => 23700 [3] => 13700 [4] => 720 [5] => 200 [6] => одностоечная свободностоящая, с тросовой консолью для двух грозотросов [7] => промежуточная [8] => Горячее цинкование [9] => Порошковое / полимерное окрашивание [10] => 30 лет ) [~DESCRIPTION] => Array ( [0] => Способ установки [1] => Способ производства [2] => Высота, мм [3] => Высота до нижней траверсы, мм [4] => Диаметр нижний, мм [5] => Диаметр верхний, мм [6] => Конструкция [7] => Назначение [8] => Защитное покрытие [9] => Лакокрасочное покрытие [10] => Срок службы ) [DISPLAY_VALUE] => Array ( [0] => прямостоечная [1] => граненая [2] => 23700 [3] => 13700 [4] => 720 [5] => 200 [6] => одностоечная свободностоящая, с тросовой консолью для двух грозотросов [7] => промежуточная [8] => Горячее цинкование [9] => Порошковое / полимерное окрашивание [10] => 30 лет ) ) ) [PRODUCT_PROPERTIES] => Array ( ) [PRODUCT_PROPERTIES_FILL] => Array ( ) [OFFERS] => Array ( ) [OFFER_ID_SELECTED] => 0 [CHECK_QUANTITY] => [ITEM_PRICE_MODE] => [ITEM_PRICES] => Array ( ) [ITEM_QUANTITY_RANGES] => Array ( ) [ITEM_MEASURE_RATIOS] => Array ( [2939] => Array ( [ID] => 2939 [RATIO] => 1 [IS_DEFAULT] => Y [PRODUCT_ID] => 15359 ) ) [ITEM_MEASURE] => Array ( [ID] => 5 [TITLE] => шт [~TITLE] => шт ) [ITEM_MEASURE_RATIO_SELECTED] => 2939 [ITEM_QUANTITY_RANGE_SELECTED] => [ITEM_PRICE_SELECTED] => [EDIT_LINK] => [DELETE_LINK] => [SECTION] => Array ( [PATH] => Array ( ) ) [CAN_BUY] => )
В наличии
Тип: ВЛ 110 кВ по шифру 22.0099
Способ установки: фланцевая
Способ производства: граненая
Цена по запросу
Array
(
    [ID] => 15355
    [~ID] => 15355
    [IBLOCK_ID] => 2
    [~IBLOCK_ID] => 2
    [CODE] => pm110-2
    [~CODE] => pm110-2
    [XML_ID] => 15355
    [~XML_ID] => 15355
    [NAME] => Многогранная опора ПМ110-2
    [~NAME] => Многогранная опора ПМ110-2
    [ACTIVE] => Y
    [~ACTIVE] => Y
    [DATE_ACTIVE_FROM] => 
    [~DATE_ACTIVE_FROM] => 
    [DATE_ACTIVE_TO] => 
    [~DATE_ACTIVE_TO] => 
    [SORT] => 1
    [~SORT] => 1
    [PREVIEW_TEXT] => 
    [~PREVIEW_TEXT] => 
    [PREVIEW_TEXT_TYPE] => text
    [~PREVIEW_TEXT_TYPE] => text
    [DETAIL_TEXT] => 

Промежуточная многогранная опора ПМ110-2 является типовой конструкцией для двухцепных воздушных линий электропередачи напряжением 110 кВ по проекту 22.0099. Это одностоечная свободностоящая опора общей высотой 25 метров, предназначенная для поддержания проводов двух цепей на прямых участках трассы. Высота до нижней траверсы составляет 13,7 метра. Стойка имеет коническую граненую форму: нижний диаметр — 750 миллиметров, верхний — 200 миллиметров. Опора не оснащена молниеотводом (грозотросом) и изготавливается из углеродистой стали марки С245. Конструкция предназначена для эксплуатации в ветровых районах I–V.

Установка опоры производится методом погружения ее основания в подготовленный котлован с последующей обратной засыпкой и уплотнением грунта. Для обеспечения долговечности в условиях постоянного контакта с грунтом и атмосферой вся металлоконструкция защищена горячим цинкованием по ГОСТ 9.307-2021. Данный вид покрытия является обязательным для ответственных энергетических объектов. [~DETAIL_TEXT] =>

Промежуточная многогранная опора ПМ110-2 является типовой конструкцией для двухцепных воздушных линий электропередачи напряжением 110 кВ по проекту 22.0099. Это одностоечная свободностоящая опора общей высотой 25 метров, предназначенная для поддержания проводов двух цепей на прямых участках трассы. Высота до нижней траверсы составляет 13,7 метра. Стойка имеет коническую граненую форму: нижний диаметр — 750 миллиметров, верхний — 200 миллиметров. Опора не оснащена молниеотводом (грозотросом) и изготавливается из углеродистой стали марки С245. Конструкция предназначена для эксплуатации в ветровых районах I–V.

Установка опоры производится методом погружения ее основания в подготовленный котлован с последующей обратной засыпкой и уплотнением грунта. Для обеспечения долговечности в условиях постоянного контакта с грунтом и атмосферой вся металлоконструкция защищена горячим цинкованием по ГОСТ 9.307-2021. Данный вид покрытия является обязательным для ответственных энергетических объектов. [DETAIL_TEXT_TYPE] => html [~DETAIL_TEXT_TYPE] => html [DATE_CREATE] => 07.11.2023 15:10:01 [~DATE_CREATE] => 07.11.2023 15:10:01 [CREATED_BY] => 1 [~CREATED_BY] => 1 [TAGS] => [~TAGS] => [TIMESTAMP_X] => 15.12.2025 12:42:26 [~TIMESTAMP_X] => 15.12.2025 12:42:26 [MODIFIED_BY] => 1 [~MODIFIED_BY] => 1 [IBLOCK_SECTION_ID] => 2756 [~IBLOCK_SECTION_ID] => 2953 [DETAIL_PAGE_URL] => /product/pm110-2/ [~DETAIL_PAGE_URL] => /product/pm110-2/ [DETAIL_PICTURE] => [~DETAIL_PICTURE] => [PREVIEW_PICTURE] => Array ( [ID] => 35248 [TIMESTAMP_X] => 15.12.2025 12:42:26 [MODULE_ID] => iblock [HEIGHT] => 1000 [WIDTH] => 1000 [FILE_SIZE] => 165421 [CONTENT_TYPE] => image/jpeg [SUBDIR] => iblock/c44/yk0lplmisywc4uotmrqhw88eoe1b49wi [FILE_NAME] => catalog_file_2076_l.jpg [ORIGINAL_NAME] => catalog-file-2076-l.jpg [DESCRIPTION] => [HANDLER_ID] => [EXTERNAL_ID] => 679c85da4920f55370513c82f9d9be72 [VERSION_ORIGINAL_ID] => [META] => [SRC] => /upload/dev2fun.imagecompress/webp/iblock/c44/yk0lplmisywc4uotmrqhw88eoe1b49wi/catalog_file_2076_l.webp [UNSAFE_SRC] => /upload/dev2fun.imagecompress/webp/iblock/c44/yk0lplmisywc4uotmrqhw88eoe1b49wi/catalog_file_2076_l.webp [SAFE_SRC] => /upload/dev2fun.imagecompress/webp/iblock/c44/yk0lplmisywc4uotmrqhw88eoe1b49wi/catalog_file_2076_l.webp [ALT] => Многогранная опора ПМ110-2 [TITLE] => Многогранная опора ПМ110-2 ) [~PREVIEW_PICTURE] => 35248 [LANG_DIR] => / [~LANG_DIR] => / [EXTERNAL_ID] => 15355 [~EXTERNAL_ID] => 15355 [IBLOCK_TYPE_ID] => catalog [~IBLOCK_TYPE_ID] => catalog [IBLOCK_CODE] => metalstructures [~IBLOCK_CODE] => metalstructures [IBLOCK_EXTERNAL_ID] => clothes [~IBLOCK_EXTERNAL_ID] => clothes [LID] => s1 [~LID] => s1 [IPROPERTY_VALUES] => Array ( [ELEMENT_META_TITLE] => Многогранная опора ПМ110-2 для высоковольтных линий 110 кВ купить в {{rp}} на сайте производителя НПО Легион [ELEMENT_META_DESCRIPTION] => Производство стальных многогранных опор ПМ110-2 для высоковольтных линий 110 кВ по шифру 22.0099 в {{rp}}. Заказать многогранные опоры ЛЭП у производителя НПО Легион. Наличие товара на складе. Звоните ☎ {{subdomain_tel}} [ELEMENT_META_KEYWORDS] => Многоранные опоры ПМ110-2 ЛЭП производство продажа купить многогранные ВЛ 110кВ для линий электропередач шифру 22.0099 [SECTION_META_TITLE] => Многогранные опоры ВЛ 110кВ по шифру 22.0099 купить в {{rp}} на сайте производителя НПО Легион [SECTION_META_DESCRIPTION] => Производство многогранных опор ВЛ 110кВ. Купить напрямую у производителя в {{rp}}. Собственное производство. Наличие товара на складе. Звоните ☎ {{subdomain_tel}} [SECTION_META_KEYWORDS] => Многоранные опоры ЛЭП производство продажа купить многогранные ВЛ 110кВ для линий электропередач [ELEMENT_DETAIL_PICTURE_FILE_NAME] => [ELEMENT_PREVIEW_PICTURE_FILE_NAME] => [SECTION_DETAIL_PICTURE_FILE_NAME] => [SECTION_PICTURE_FILE_NAME] => [SECTION_PAGE_TITLE] => Многогранная опора ПМ110-2 [ELEMENT_PAGE_TITLE] => Многогранная опора ПМ110-2 ) [PRODUCT] => Array ( [TYPE] => 1 [AVAILABLE] => Y [BUNDLE] => N [QUANTITY] => 10 [QUANTITY_TRACE] => N [CAN_BUY_ZERO] => Y [MEASURE] => 5 [SUBSCRIBE] => Y [VAT_ID] => 0 [VAT_RATE] => 0 [VAT_INCLUDED] => N [WEIGHT] => 0 [WIDTH] => 0 [LENGTH] => 0 [HEIGHT] => 0 [PAYMENT_TYPE] => S [RECUR_SCHEME_TYPE] => D [RECUR_SCHEME_LENGTH] => 0 [TRIAL_PRICE_ID] => 0 [USE_OFFERS] => ) [~CATALOG_TYPE] => 1 [CATALOG_TYPE] => 1 [~CATALOG_QUANTITY] => 10 [CATALOG_QUANTITY] => 10 [~CATALOG_QUANTITY_TRACE] => N [CATALOG_QUANTITY_TRACE] => N [~CATALOG_CAN_BUY_ZERO] => Y [CATALOG_CAN_BUY_ZERO] => Y [~CATALOG_SUBSCRIBE] => Y [CATALOG_SUBSCRIBE] => Y [PROPERTIES] => Array ( [ITEM_DELIVERY] => Array ( [ID] => 20 [IBLOCK_ID] => 2 [NAME] => Доставка [ACTIVE] => Y [SORT] => 1 [CODE] => ITEM_DELIVERY [DEFAULT_VALUE] => [PROPERTY_TYPE] => L [ROW_COUNT] => 1 [COL_COUNT] => 30 [LIST_TYPE] => L [MULTIPLE] => N [XML_ID] => 20 [FILE_TYPE] => [MULTIPLE_CNT] => 5 [LINK_IBLOCK_ID] => 0 [WITH_DESCRIPTION] => N [SEARCHABLE] => N [FILTRABLE] => N [IS_REQUIRED] => Y [VERSION] => 1 [USER_TYPE] => [USER_TYPE_SETTINGS] => Array ( ) [HINT] => [~NAME] => Доставка [~DEFAULT_VALUE] => [VALUE_ENUM] => По России и СНГ [VALUE_XML_ID] => ru-sng [VALUE_SORT] => 1 [VALUE] => По России и СНГ [PROPERTY_VALUE_ID] => 6825496 [VALUE_ENUM_ID] => 7 [DESCRIPTION] => [~VALUE] => По России и СНГ [~DESCRIPTION] => ) [ITEM_PAYMENT] => Array ( [ID] => 21 [IBLOCK_ID] => 2 [NAME] => Оплата [ACTIVE] => Y [SORT] => 2 [CODE] => ITEM_PAYMENT [DEFAULT_VALUE] => [PROPERTY_TYPE] => L [ROW_COUNT] => 1 [COL_COUNT] => 30 [LIST_TYPE] => L [MULTIPLE] => N [XML_ID] => 21 [FILE_TYPE] => [MULTIPLE_CNT] => 5 [LINK_IBLOCK_ID] => 0 [WITH_DESCRIPTION] => N [SEARCHABLE] => N [FILTRABLE] => N [IS_REQUIRED] => Y [VERSION] => 1 [USER_TYPE] => [USER_TYPE_SETTINGS] => Array ( ) [HINT] => [~NAME] => Оплата [~DEFAULT_VALUE] => [VALUE_ENUM] => Безналичный расчет [VALUE_XML_ID] => payment-bank [VALUE_SORT] => 1 [VALUE] => Безналичный расчет [PROPERTY_VALUE_ID] => 6825497 [VALUE_ENUM_ID] => 8 [DESCRIPTION] => [~VALUE] => Безналичный расчет [~DESCRIPTION] => ) [ITEM_PRICE] => Array ( [ID] => 22 [IBLOCK_ID] => 2 [NAME] => Цена [ACTIVE] => Y [SORT] => 3 [CODE] => ITEM_PRICE [DEFAULT_VALUE] => [PROPERTY_TYPE] => L [ROW_COUNT] => 1 [COL_COUNT] => 30 [LIST_TYPE] => L [MULTIPLE] => N [XML_ID] => 22 [FILE_TYPE] => [MULTIPLE_CNT] => 5 [LINK_IBLOCK_ID] => 0 [WITH_DESCRIPTION] => N [SEARCHABLE] => N [FILTRABLE] => N [IS_REQUIRED] => Y [VERSION] => 1 [USER_TYPE] => [USER_TYPE_SETTINGS] => Array ( ) [HINT] => [~NAME] => Цена [~DEFAULT_VALUE] => [VALUE_ENUM] => По запросу [VALUE_XML_ID] => on-request [VALUE_SORT] => 1 [VALUE] => По запросу [PROPERTY_VALUE_ID] => 6825498 [VALUE_ENUM_ID] => 9 [DESCRIPTION] => [~VALUE] => По запросу [~DESCRIPTION] => ) [ITEM_IMAGES] => Array ( [ID] => 23 [IBLOCK_ID] => 2 [NAME] => Изображения [ACTIVE] => Y [SORT] => 4 [CODE] => ITEM_IMAGES [DEFAULT_VALUE] => [PROPERTY_TYPE] => F [ROW_COUNT] => 1 [COL_COUNT] => 30 [LIST_TYPE] => L [MULTIPLE] => Y [XML_ID] => 23 [FILE_TYPE] => [MULTIPLE_CNT] => 5 [LINK_IBLOCK_ID] => 0 [WITH_DESCRIPTION] => N [SEARCHABLE] => N [FILTRABLE] => N [IS_REQUIRED] => N [VERSION] => 1 [USER_TYPE] => [USER_TYPE_SETTINGS] => Array ( ) [HINT] => [~NAME] => Изображения [~DEFAULT_VALUE] => [VALUE_ENUM] => [VALUE_XML_ID] => [VALUE_SORT] => [VALUE] => Array ( [0] => 35249 [1] => 35250 [2] => 35251 [3] => 35252 ) [PROPERTY_VALUE_ID] => Array ( [0] => 5932897 [1] => 5932898 [2] => 5932899 [3] => 5932900 ) [DESCRIPTION] => Array ( [0] => [1] => [2] => [3] => ) [~VALUE] => Array ( [0] => 35249 [1] => 35250 [2] => 35251 [3] => 35252 ) [~DESCRIPTION] => Array ( [0] => [1] => [2] => [3] => ) ) [ITEM_PROPERTIES] => Array ( [ID] => 24 [IBLOCK_ID] => 2 [NAME] => Свойства [ACTIVE] => Y [SORT] => 5 [CODE] => ITEM_PROPERTIES [DEFAULT_VALUE] => [PROPERTY_TYPE] => E [ROW_COUNT] => 1 [COL_COUNT] => 30 [LIST_TYPE] => L [MULTIPLE] => Y [XML_ID] => 24 [FILE_TYPE] => [MULTIPLE_CNT] => 1 [LINK_IBLOCK_ID] => 3 [WITH_DESCRIPTION] => N [SEARCHABLE] => N [FILTRABLE] => N [IS_REQUIRED] => N [VERSION] => 1 [USER_TYPE] => [USER_TYPE_SETTINGS] => Array ( ) [HINT] => [~NAME] => Свойства [~DEFAULT_VALUE] => [VALUE_ENUM] => [VALUE_XML_ID] => [VALUE_SORT] => [VALUE] => [PROPERTY_VALUE_ID] => [DESCRIPTION] => [~DESCRIPTION] => [~VALUE] => ) [ITEM_CHARACTERISTICS] => Array ( [ID] => 28 [IBLOCK_ID] => 2 [NAME] => Характеристики [ACTIVE] => Y [SORT] => 6 [CODE] => ITEM_CHARACTERISTICS [DEFAULT_VALUE] => [PROPERTY_TYPE] => S [ROW_COUNT] => 1 [COL_COUNT] => 20 [LIST_TYPE] => L [MULTIPLE] => Y [XML_ID] => 28 [FILE_TYPE] => [MULTIPLE_CNT] => 1 [LINK_IBLOCK_ID] => 0 [WITH_DESCRIPTION] => Y [SEARCHABLE] => N [FILTRABLE] => N [IS_REQUIRED] => N [VERSION] => 1 [USER_TYPE] => [USER_TYPE_SETTINGS] => Array ( ) [HINT] => [~NAME] => Характеристики [~DEFAULT_VALUE] => [VALUE_ENUM] => [VALUE_XML_ID] => [VALUE_SORT] => [VALUE] => Array ( [0] => ВЛ 110 кВ по шифру 22.0099 [1] => фланцевая [2] => граненая [3] => 25000 [4] => 13700 [5] => 750 [6] => 200 [7] => промежуточная [8] => Горячее цинкование [9] => Порошковое / полимерное окрашивание [10] => 30 лет [11] => 110 ) [PROPERTY_VALUE_ID] => Array ( [0] => 6820933 [1] => 6820934 [2] => 6820935 [3] => 6820936 [4] => 6820937 [5] => 6820938 [6] => 6820939 [7] => 6820940 [8] => 6820941 [9] => 6820942 [10] => 6820943 [11] => 6825499 ) [DESCRIPTION] => Array ( [0] => Тип [1] => Способ установки [2] => Способ производства [3] => Высота, мм [4] => Высота до нижней траверсы. мм [5] => Диаметр нижний, мм [6] => Диаметр верхний, мм [7] => Назначение [8] => Защитное покрытие [9] => Лакокрасочное покрытие [10] => Срок службы [11] => Класс напряжения, кВ ) [~VALUE] => Array ( [0] => ВЛ 110 кВ по шифру 22.0099 [1] => фланцевая [2] => граненая [3] => 25000 [4] => 13700 [5] => 750 [6] => 200 [7] => промежуточная [8] => Горячее цинкование [9] => Порошковое / полимерное окрашивание [10] => 30 лет [11] => 110 ) [~DESCRIPTION] => Array ( [0] => Тип [1] => Способ установки [2] => Способ производства [3] => Высота, мм [4] => Высота до нижней траверсы. мм [5] => Диаметр нижний, мм [6] => Диаметр верхний, мм [7] => Назначение [8] => Защитное покрытие [9] => Лакокрасочное покрытие [10] => Срок службы [11] => Класс напряжения, кВ ) ) [ITEM_FILTER] => Array ( [ID] => 40 [IBLOCK_ID] => 2 [NAME] => Фильтр [ACTIVE] => Y [SORT] => 7 [CODE] => ITEM_FILTER [DEFAULT_VALUE] => [PROPERTY_TYPE] => S [ROW_COUNT] => 1 [COL_COUNT] => 30 [LIST_TYPE] => L [MULTIPLE] => N [XML_ID] => 40 [FILE_TYPE] => [MULTIPLE_CNT] => 5 [LINK_IBLOCK_ID] => 0 [WITH_DESCRIPTION] => N [SEARCHABLE] => N [FILTRABLE] => N [IS_REQUIRED] => N [VERSION] => 1 [USER_TYPE] => [USER_TYPE_SETTINGS] => Array ( ) [HINT] => [~NAME] => Фильтр [~DEFAULT_VALUE] => [VALUE_ENUM] => [VALUE_XML_ID] => [VALUE_SORT] => [VALUE] => [PROPERTY_VALUE_ID] => [DESCRIPTION] => [~DESCRIPTION] => [~VALUE] => ) [ITEM_TECH_CH] => Array ( [ID] => 29 [IBLOCK_ID] => 2 [NAME] => Технические характеристики [ACTIVE] => Y [SORT] => 8 [CODE] => ITEM_TECH_CH [DEFAULT_VALUE] => Array ( [TYPE] => HTML [TEXT] => ) [PROPERTY_TYPE] => S [ROW_COUNT] => 1 [COL_COUNT] => 30 [LIST_TYPE] => L [MULTIPLE] => N [XML_ID] => 29 [FILE_TYPE] => [MULTIPLE_CNT] => 5 [LINK_IBLOCK_ID] => 0 [WITH_DESCRIPTION] => N [SEARCHABLE] => N [FILTRABLE] => N [IS_REQUIRED] => N [VERSION] => 1 [USER_TYPE] => HTML [USER_TYPE_SETTINGS] => Array ( [height] => 200 ) [HINT] => [~NAME] => Технические характеристики [~DEFAULT_VALUE] => Array ( [TYPE] => HTML [TEXT] => ) [VALUE_ENUM] => [VALUE_XML_ID] => [VALUE_SORT] => [VALUE] => Array ( [TEXT] => <p style="text-align: justify;"> Опора ПМ110-2 применяется исключительно в качестве промежуточной на прямых участках двухцепных воздушных линий электропередачи 110 кВ. Она не рассчитана на восприятие значительных продольных нагрузок (анкерных усилий). Конструкция предназначена для монтажа в грунт методом погружения низа стойки в котлован с последующей засыпкой. Основное назначение — обеспечение необходимого изоляционного расстояния между проводами и землей. </p> [TYPE] => HTML ) [PROPERTY_VALUE_ID] => 6820944 [DESCRIPTION] => [~VALUE] => Array ( [TEXT] =>

Опора ПМ110-2 применяется исключительно в качестве промежуточной на прямых участках двухцепных воздушных линий электропередачи 110 кВ. Она не рассчитана на восприятие значительных продольных нагрузок (анкерных усилий). Конструкция предназначена для монтажа в грунт методом погружения низа стойки в котлован с последующей засыпкой. Основное назначение — обеспечение необходимого изоляционного расстояния между проводами и землей.

[TYPE] => HTML ) [~DESCRIPTION] => ) [ITEM_ADV_DESCR] => Array ( [ID] => 30 [IBLOCK_ID] => 2 [NAME] => Преимущества (описание) [ACTIVE] => Y [SORT] => 9 [CODE] => ITEM_ADV_DESCR [DEFAULT_VALUE] => Array ( [TYPE] => HTML [TEXT] => ) [PROPERTY_TYPE] => S [ROW_COUNT] => 1 [COL_COUNT] => 30 [LIST_TYPE] => L [MULTIPLE] => N [XML_ID] => 30 [FILE_TYPE] => [MULTIPLE_CNT] => 5 [LINK_IBLOCK_ID] => 0 [WITH_DESCRIPTION] => N [SEARCHABLE] => N [FILTRABLE] => N [IS_REQUIRED] => N [VERSION] => 1 [USER_TYPE] => HTML [USER_TYPE_SETTINGS] => Array ( [height] => 100 ) [HINT] => [~NAME] => Преимущества (описание) [~DEFAULT_VALUE] => Array ( [TYPE] => HTML [TEXT] => ) [VALUE_ENUM] => [VALUE_XML_ID] => [VALUE_SORT] => [VALUE] => Array ( [TEXT] => <p style="text-align: justify;"> Двухцепная конструкция позволяет размещать две независимые линии электропередачи на одной опоре, что вдвое увеличивает пропускную способность участка трассы при экономии земельного отвода. Одностоечная свободностоящая конструкция обеспечивает необходимую жесткость и изоляционное расстояние для проводов при оптимальной материалоемкости. Горячее цинкование обеспечивает максимальную коррозионную стойкость как надземной части, так и участка, погруженного в грунт, гарантируя длительный срок службы. Типовое исполнение в соответствии с проектом 22.0099 гарантирует полную совместимость с остальными элементами ВЛ 110 кВ и упрощает проектирование и поставку. Коническая форма стойки и расчет на ветровые районы I–V обеспечивают устойчивость к ветровым нагрузкам в большинстве регионов России. </p> [TYPE] => HTML ) [PROPERTY_VALUE_ID] => 6820945 [DESCRIPTION] => [~VALUE] => Array ( [TEXT] =>

Двухцепная конструкция позволяет размещать две независимые линии электропередачи на одной опоре, что вдвое увеличивает пропускную способность участка трассы при экономии земельного отвода. Одностоечная свободностоящая конструкция обеспечивает необходимую жесткость и изоляционное расстояние для проводов при оптимальной материалоемкости. Горячее цинкование обеспечивает максимальную коррозионную стойкость как надземной части, так и участка, погруженного в грунт, гарантируя длительный срок службы. Типовое исполнение в соответствии с проектом 22.0099 гарантирует полную совместимость с остальными элементами ВЛ 110 кВ и упрощает проектирование и поставку. Коническая форма стойки и расчет на ветровые районы I–V обеспечивают устойчивость к ветровым нагрузкам в большинстве регионов России.

[TYPE] => HTML ) [~DESCRIPTION] => ) [ITEM_ADV] => Array ( [ID] => 31 [IBLOCK_ID] => 2 [NAME] => Преимущества [ACTIVE] => Y [SORT] => 10 [CODE] => ITEM_ADV [DEFAULT_VALUE] => [PROPERTY_TYPE] => E [ROW_COUNT] => 1 [COL_COUNT] => 30 [LIST_TYPE] => L [MULTIPLE] => Y [XML_ID] => 31 [FILE_TYPE] => [MULTIPLE_CNT] => 1 [LINK_IBLOCK_ID] => 5 [WITH_DESCRIPTION] => N [SEARCHABLE] => N [FILTRABLE] => N [IS_REQUIRED] => N [VERSION] => 1 [USER_TYPE] => [USER_TYPE_SETTINGS] => Array ( ) [HINT] => [~NAME] => Преимущества [~DEFAULT_VALUE] => [VALUE_ENUM] => [VALUE_XML_ID] => [VALUE_SORT] => [VALUE] => [PROPERTY_VALUE_ID] => [DESCRIPTION] => [~DESCRIPTION] => [~VALUE] => ) [ITEM_BUY] => Array ( [ID] => 32 [IBLOCK_ID] => 2 [NAME] => Купить [ACTIVE] => Y [SORT] => 11 [CODE] => ITEM_BUY [DEFAULT_VALUE] => Array ( [TEXT] => [TYPE] => HTML ) [PROPERTY_TYPE] => S [ROW_COUNT] => 1 [COL_COUNT] => 30 [LIST_TYPE] => L [MULTIPLE] => N [XML_ID] => 32 [FILE_TYPE] => [MULTIPLE_CNT] => 5 [LINK_IBLOCK_ID] => 0 [WITH_DESCRIPTION] => N [SEARCHABLE] => N [FILTRABLE] => N [IS_REQUIRED] => N [VERSION] => 1 [USER_TYPE] => HTML [USER_TYPE_SETTINGS] => Array ( [height] => 200 ) [HINT] => [~NAME] => Купить [~DEFAULT_VALUE] => Array ( [TEXT] => [TYPE] => HTML ) [VALUE_ENUM] => [VALUE_XML_ID] => [VALUE_SORT] => [VALUE] => Array ( [TEXT] => <p style="text-align: justify;"> Для заказа промежуточных многогранных опор ПМ110-2 по типовому проекту 22.0099 обратитесь в отдел продаж НПО «Легион». Наши специалисты предоставят полный комплект чертежей, подтвердят соответствие требованиям для вашего участка трассы и рассчитают стоимость партии. Мы обеспечим изготовление и поставку опор в требуемом количестве. Для консультации и оформления заявки звоните по телефону 8(800)500-51-37 или направляйте запрос на электронную почту <a href="mailto:info@legionural.ru">info@legionural.ru</a>. </p> [TYPE] => HTML ) [PROPERTY_VALUE_ID] => 6820946 [DESCRIPTION] => [~VALUE] => Array ( [TEXT] =>

Для заказа промежуточных многогранных опор ПМ110-2 по типовому проекту 22.0099 обратитесь в отдел продаж НПО «Легион». Наши специалисты предоставят полный комплект чертежей, подтвердят соответствие требованиям для вашего участка трассы и рассчитают стоимость партии. Мы обеспечим изготовление и поставку опор в требуемом количестве. Для консультации и оформления заявки звоните по телефону 8(800)500-51-37 или направляйте запрос на электронную почту info@legionural.ru.

[TYPE] => HTML ) [~DESCRIPTION] => ) [ITEM_CERT_COR] => Array ( [ID] => 33 [IBLOCK_ID] => 2 [NAME] => Сертификаты соответствия [ACTIVE] => Y [SORT] => 12 [CODE] => ITEM_CERT_COR [DEFAULT_VALUE] => [PROPERTY_TYPE] => S [ROW_COUNT] => 1 [COL_COUNT] => 30 [LIST_TYPE] => L [MULTIPLE] => Y [XML_ID] => 33 [FILE_TYPE] => [MULTIPLE_CNT] => 1 [LINK_IBLOCK_ID] => 0 [WITH_DESCRIPTION] => Y [SEARCHABLE] => N [FILTRABLE] => N [IS_REQUIRED] => N [VERSION] => 1 [USER_TYPE] => [USER_TYPE_SETTINGS] => Array ( ) [HINT] => [~NAME] => Сертификаты соответствия [~DEFAULT_VALUE] => [VALUE_ENUM] => [VALUE_XML_ID] => [VALUE_SORT] => [VALUE] => [PROPERTY_VALUE_ID] => [DESCRIPTION] => [~DESCRIPTION] => [~VALUE] => ) [ITEM_ST_STAND] => Array ( [ID] => 34 [IBLOCK_ID] => 2 [NAME] => Государственные стандарты [ACTIVE] => Y [SORT] => 13 [CODE] => ITEM_ST_STAND [DEFAULT_VALUE] => [PROPERTY_TYPE] => S [ROW_COUNT] => 1 [COL_COUNT] => 30 [LIST_TYPE] => L [MULTIPLE] => Y [XML_ID] => 34 [FILE_TYPE] => [MULTIPLE_CNT] => 1 [LINK_IBLOCK_ID] => 0 [WITH_DESCRIPTION] => Y [SEARCHABLE] => N [FILTRABLE] => N [IS_REQUIRED] => N [VERSION] => 1 [USER_TYPE] => [USER_TYPE_SETTINGS] => Array ( ) [HINT] => [~NAME] => Государственные стандарты [~DEFAULT_VALUE] => [VALUE_ENUM] => [VALUE_XML_ID] => [VALUE_SORT] => [VALUE] => [PROPERTY_VALUE_ID] => [DESCRIPTION] => [~DESCRIPTION] => [~VALUE] => ) [ITEM_NORM] => Array ( [ID] => 35 [IBLOCK_ID] => 2 [NAME] => Строительные нормы и правила [ACTIVE] => Y [SORT] => 14 [CODE] => ITEM_NORM [DEFAULT_VALUE] => [PROPERTY_TYPE] => S [ROW_COUNT] => 1 [COL_COUNT] => 30 [LIST_TYPE] => L [MULTIPLE] => Y [XML_ID] => 35 [FILE_TYPE] => [MULTIPLE_CNT] => 1 [LINK_IBLOCK_ID] => 0 [WITH_DESCRIPTION] => Y [SEARCHABLE] => N [FILTRABLE] => N [IS_REQUIRED] => N [VERSION] => 1 [USER_TYPE] => [USER_TYPE_SETTINGS] => Array ( ) [HINT] => [~NAME] => Строительные нормы и правила [~DEFAULT_VALUE] => [VALUE_ENUM] => [VALUE_XML_ID] => [VALUE_SORT] => [VALUE] => [PROPERTY_VALUE_ID] => [DESCRIPTION] => [~DESCRIPTION] => [~VALUE] => ) [ITEM_SIMILAR] => Array ( [ID] => 36 [IBLOCK_ID] => 2 [NAME] => Похожие модели [ACTIVE] => Y [SORT] => 15 [CODE] => ITEM_SIMILAR [DEFAULT_VALUE] => [PROPERTY_TYPE] => G [ROW_COUNT] => 1 [COL_COUNT] => 30 [LIST_TYPE] => L [MULTIPLE] => Y [XML_ID] => 36 [FILE_TYPE] => [MULTIPLE_CNT] => 10 [LINK_IBLOCK_ID] => 2 [WITH_DESCRIPTION] => N [SEARCHABLE] => N [FILTRABLE] => N [IS_REQUIRED] => N [VERSION] => 1 [USER_TYPE] => [USER_TYPE_SETTINGS] => Array ( ) [HINT] => [~NAME] => Похожие модели [~DEFAULT_VALUE] => [VALUE_ENUM] => [VALUE_XML_ID] => [VALUE_SORT] => [VALUE] => [PROPERTY_VALUE_ID] => [DESCRIPTION] => [~DESCRIPTION] => [~VALUE] => ) [ITEM_SIMILAR_TAGS] => Array ( [ID] => 122 [IBLOCK_ID] => 2 [NAME] => Похожие модели (теговые) [ACTIVE] => Y [SORT] => 16 [CODE] => ITEM_SIMILAR_TAGS [DEFAULT_VALUE] => [PROPERTY_TYPE] => E [ROW_COUNT] => 1 [COL_COUNT] => 30 [LIST_TYPE] => L [MULTIPLE] => Y [XML_ID] => 122 [FILE_TYPE] => [MULTIPLE_CNT] => 1 [LINK_IBLOCK_ID] => 19 [WITH_DESCRIPTION] => N [SEARCHABLE] => N [FILTRABLE] => N [IS_REQUIRED] => N [VERSION] => 1 [USER_TYPE] => [USER_TYPE_SETTINGS] => Array ( ) [HINT] => [~NAME] => Похожие модели (теговые) [~DEFAULT_VALUE] => [VALUE_ENUM] => [VALUE_XML_ID] => [VALUE_SORT] => [VALUE] => [PROPERTY_VALUE_ID] => [DESCRIPTION] => [~DESCRIPTION] => [~VALUE] => ) [ITEM_BUY_WITH] => Array ( [ID] => 37 [IBLOCK_ID] => 2 [NAME] => С этим товаром покупают [ACTIVE] => Y [SORT] => 17 [CODE] => ITEM_BUY_WITH [DEFAULT_VALUE] => [PROPERTY_TYPE] => E [ROW_COUNT] => 1 [COL_COUNT] => 30 [LIST_TYPE] => L [MULTIPLE] => Y [XML_ID] => 37 [FILE_TYPE] => [MULTIPLE_CNT] => 1 [LINK_IBLOCK_ID] => 2 [WITH_DESCRIPTION] => N [SEARCHABLE] => N [FILTRABLE] => N [IS_REQUIRED] => N [VERSION] => 1 [USER_TYPE] => [USER_TYPE_SETTINGS] => Array ( ) [HINT] => [~NAME] => С этим товаром покупают [~DEFAULT_VALUE] => [VALUE_ENUM] => [VALUE_XML_ID] => [VALUE_SORT] => [VALUE] => [PROPERTY_VALUE_ID] => [DESCRIPTION] => [~DESCRIPTION] => [~VALUE] => ) [ITEM_VOTE_COUNT] => Array ( [ID] => 38 [IBLOCK_ID] => 2 [NAME] => Количество голосов [ACTIVE] => Y [SORT] => 18 [CODE] => ITEM_VOTE_COUNT [DEFAULT_VALUE] => 0 [PROPERTY_TYPE] => N [ROW_COUNT] => 1 [COL_COUNT] => 30 [LIST_TYPE] => L [MULTIPLE] => N [XML_ID] => 38 [FILE_TYPE] => [MULTIPLE_CNT] => 5 [LINK_IBLOCK_ID] => 0 [WITH_DESCRIPTION] => N [SEARCHABLE] => N [FILTRABLE] => N [IS_REQUIRED] => N [VERSION] => 1 [USER_TYPE] => [USER_TYPE_SETTINGS] => Array ( ) [HINT] => [~NAME] => Количество голосов [~DEFAULT_VALUE] => 0 [VALUE_ENUM] => [VALUE_XML_ID] => [VALUE_SORT] => [VALUE] => 2 [PROPERTY_VALUE_ID] => 5932901 [DESCRIPTION] => [~VALUE] => 2 [~DESCRIPTION] => ) [ITEM_RAITING] => Array ( [ID] => 39 [IBLOCK_ID] => 2 [NAME] => Рейтинг [ACTIVE] => Y [SORT] => 19 [CODE] => ITEM_RAITING [DEFAULT_VALUE] => 0 [PROPERTY_TYPE] => N [ROW_COUNT] => 1 [COL_COUNT] => 30 [LIST_TYPE] => L [MULTIPLE] => N [XML_ID] => 39 [FILE_TYPE] => [MULTIPLE_CNT] => 5 [LINK_IBLOCK_ID] => 0 [WITH_DESCRIPTION] => N [SEARCHABLE] => N [FILTRABLE] => N [IS_REQUIRED] => N [VERSION] => 1 [USER_TYPE] => [USER_TYPE_SETTINGS] => Array ( ) [HINT] => [~NAME] => Рейтинг [~DEFAULT_VALUE] => 0 [VALUE_ENUM] => [VALUE_XML_ID] => [VALUE_SORT] => [VALUE] => 4.8 [PROPERTY_VALUE_ID] => 5932902 [DESCRIPTION] => [~VALUE] => 4.8 [~DESCRIPTION] => ) [H1] => Array ( [ID] => 125 [IBLOCK_ID] => 2 [NAME] => H1 [ACTIVE] => Y [SORT] => 500 [CODE] => H1 [DEFAULT_VALUE] => [PROPERTY_TYPE] => S [ROW_COUNT] => 1 [COL_COUNT] => 70 [LIST_TYPE] => L [MULTIPLE] => N [XML_ID] => 125 [FILE_TYPE] => [MULTIPLE_CNT] => 5 [LINK_IBLOCK_ID] => 0 [WITH_DESCRIPTION] => N [SEARCHABLE] => N [FILTRABLE] => N [IS_REQUIRED] => N [VERSION] => 1 [USER_TYPE] => [USER_TYPE_SETTINGS] => Array ( ) [HINT] => [~NAME] => H1 [~DEFAULT_VALUE] => [VALUE_ENUM] => [VALUE_XML_ID] => [VALUE_SORT] => [VALUE] => Многогранная опора ПМ110-2 [PROPERTY_VALUE_ID] => 5945344 [DESCRIPTION] => [~VALUE] => Многогранная опора ПМ110-2 [~DESCRIPTION] => ) [CERTIFICATES] => Array ( [ID] => 127 [IBLOCK_ID] => 2 [NAME] => Сертификаты [ACTIVE] => Y [SORT] => 500 [CODE] => CERTIFICATES [DEFAULT_VALUE] => [PROPERTY_TYPE] => E [ROW_COUNT] => 1 [COL_COUNT] => 30 [LIST_TYPE] => L [MULTIPLE] => Y [XML_ID] => 127 [FILE_TYPE] => [MULTIPLE_CNT] => 5 [LINK_IBLOCK_ID] => 7 [WITH_DESCRIPTION] => N [SEARCHABLE] => N [FILTRABLE] => N [IS_REQUIRED] => N [VERSION] => 1 [USER_TYPE] => [USER_TYPE_SETTINGS] => Array ( ) [HINT] => [~NAME] => Сертификаты [~DEFAULT_VALUE] => [VALUE_ENUM] => [VALUE_XML_ID] => [VALUE_SORT] => [VALUE] => [PROPERTY_VALUE_ID] => [DESCRIPTION] => [~DESCRIPTION] => [~VALUE] => ) [129] => Array ( [ID] => 129 [IBLOCK_ID] => 2 [NAME] => Уникальный META TITLE [ACTIVE] => Y [SORT] => 500 [CODE] => 129 [DEFAULT_VALUE] => [PROPERTY_TYPE] => S [ROW_COUNT] => 1 [COL_COUNT] => 30 [LIST_TYPE] => L [MULTIPLE] => N [XML_ID] => 129 [FILE_TYPE] => [MULTIPLE_CNT] => 5 [LINK_IBLOCK_ID] => 0 [WITH_DESCRIPTION] => N [SEARCHABLE] => N [FILTRABLE] => N [IS_REQUIRED] => N [VERSION] => 1 [USER_TYPE] => [USER_TYPE_SETTINGS] => Array ( ) [HINT] => [~NAME] => Уникальный META TITLE [~DEFAULT_VALUE] => [VALUE_ENUM] => [VALUE_XML_ID] => [VALUE_SORT] => [VALUE] => [PROPERTY_VALUE_ID] => [DESCRIPTION] => [~DESCRIPTION] => [~VALUE] => ) [ITEM_TYPE] => Array ( [ID] => 134 [IBLOCK_ID] => 2 [NAME] => Тип [ACTIVE] => Y [SORT] => 500 [CODE] => ITEM_TYPE [DEFAULT_VALUE] => [PROPERTY_TYPE] => S [ROW_COUNT] => 1 [COL_COUNT] => 30 [LIST_TYPE] => L [MULTIPLE] => N [XML_ID] => [FILE_TYPE] => [MULTIPLE_CNT] => 5 [LINK_IBLOCK_ID] => 0 [WITH_DESCRIPTION] => N [SEARCHABLE] => N [FILTRABLE] => Y [IS_REQUIRED] => N [VERSION] => 1 [USER_TYPE] => [USER_TYPE_SETTINGS] => Array ( ) [HINT] => [~NAME] => Тип [~DEFAULT_VALUE] => [VALUE_ENUM] => [VALUE_XML_ID] => [VALUE_SORT] => [VALUE] => [PROPERTY_VALUE_ID] => [DESCRIPTION] => [~DESCRIPTION] => [~VALUE] => ) [ITEM_INSTALLATION] => Array ( [ID] => 135 [IBLOCK_ID] => 2 [NAME] => Способ установки [ACTIVE] => Y [SORT] => 500 [CODE] => ITEM_INSTALLATION [DEFAULT_VALUE] => [PROPERTY_TYPE] => S [ROW_COUNT] => 1 [COL_COUNT] => 30 [LIST_TYPE] => L [MULTIPLE] => N [XML_ID] => [FILE_TYPE] => [MULTIPLE_CNT] => 5 [LINK_IBLOCK_ID] => 0 [WITH_DESCRIPTION] => N [SEARCHABLE] => N [FILTRABLE] => N [IS_REQUIRED] => N [VERSION] => 1 [USER_TYPE] => [USER_TYPE_SETTINGS] => Array ( ) [HINT] => [~NAME] => Способ установки [~DEFAULT_VALUE] => [VALUE_ENUM] => [VALUE_XML_ID] => [VALUE_SORT] => [VALUE] => [PROPERTY_VALUE_ID] => [DESCRIPTION] => [~DESCRIPTION] => [~VALUE] => ) [ITEM_MODE] => Array ( [ID] => 136 [IBLOCK_ID] => 2 [NAME] => Способ производства [ACTIVE] => Y [SORT] => 500 [CODE] => ITEM_MODE [DEFAULT_VALUE] => [PROPERTY_TYPE] => S [ROW_COUNT] => 1 [COL_COUNT] => 30 [LIST_TYPE] => L [MULTIPLE] => N [XML_ID] => [FILE_TYPE] => [MULTIPLE_CNT] => 5 [LINK_IBLOCK_ID] => 0 [WITH_DESCRIPTION] => N [SEARCHABLE] => N [FILTRABLE] => N [IS_REQUIRED] => N [VERSION] => 1 [USER_TYPE] => [USER_TYPE_SETTINGS] => Array ( ) [HINT] => [~NAME] => Способ производства [~DEFAULT_VALUE] => [VALUE_ENUM] => [VALUE_XML_ID] => [VALUE_SORT] => [VALUE] => [PROPERTY_VALUE_ID] => [DESCRIPTION] => [~DESCRIPTION] => [~VALUE] => ) [ITEM_HEIGHT] => Array ( [ID] => 137 [IBLOCK_ID] => 2 [NAME] => Высота, мм [ACTIVE] => Y [SORT] => 500 [CODE] => ITEM_HEIGHT [DEFAULT_VALUE] => [PROPERTY_TYPE] => S [ROW_COUNT] => 1 [COL_COUNT] => 30 [LIST_TYPE] => L [MULTIPLE] => N [XML_ID] => [FILE_TYPE] => [MULTIPLE_CNT] => 5 [LINK_IBLOCK_ID] => 0 [WITH_DESCRIPTION] => N [SEARCHABLE] => N [FILTRABLE] => N [IS_REQUIRED] => N [VERSION] => 1 [USER_TYPE] => [USER_TYPE_SETTINGS] => Array ( ) [HINT] => [~NAME] => Высота, мм [~DEFAULT_VALUE] => [VALUE_ENUM] => [VALUE_XML_ID] => [VALUE_SORT] => [VALUE] => [PROPERTY_VALUE_ID] => [DESCRIPTION] => [~DESCRIPTION] => [~VALUE] => ) [BLOG_POST_ID] => Array ( [ID] => 138 [IBLOCK_ID] => 2 [NAME] => ID поста блога для комментариев [ACTIVE] => Y [SORT] => 500 [CODE] => BLOG_POST_ID [DEFAULT_VALUE] => [PROPERTY_TYPE] => N [ROW_COUNT] => 1 [COL_COUNT] => 30 [LIST_TYPE] => L [MULTIPLE] => N [XML_ID] => BLOG_POST_ID [FILE_TYPE] => [MULTIPLE_CNT] => 5 [LINK_IBLOCK_ID] => 0 [WITH_DESCRIPTION] => N [SEARCHABLE] => N [FILTRABLE] => N [IS_REQUIRED] => N [VERSION] => 1 [USER_TYPE] => [USER_TYPE_SETTINGS] => Array ( ) [HINT] => [~NAME] => ID поста блога для комментариев [~DEFAULT_VALUE] => [VALUE_ENUM] => [VALUE_XML_ID] => [VALUE_SORT] => [VALUE] => 1480 [PROPERTY_VALUE_ID] => 6775289 [DESCRIPTION] => [~VALUE] => 1480 [~DESCRIPTION] => ) [BLOG_COMMENTS_CNT] => Array ( [ID] => 139 [IBLOCK_ID] => 2 [NAME] => Количество комментариев [ACTIVE] => Y [SORT] => 500 [CODE] => BLOG_COMMENTS_CNT [DEFAULT_VALUE] => [PROPERTY_TYPE] => N [ROW_COUNT] => 1 [COL_COUNT] => 30 [LIST_TYPE] => L [MULTIPLE] => N [XML_ID] => BLOG_COMMENTS_CNT [FILE_TYPE] => [MULTIPLE_CNT] => 5 [LINK_IBLOCK_ID] => 0 [WITH_DESCRIPTION] => N [SEARCHABLE] => N [FILTRABLE] => N [IS_REQUIRED] => N [VERSION] => 1 [USER_TYPE] => [USER_TYPE_SETTINGS] => Array ( ) [HINT] => [~NAME] => Количество комментариев [~DEFAULT_VALUE] => [VALUE_ENUM] => [VALUE_XML_ID] => [VALUE_SORT] => [VALUE] => [PROPERTY_VALUE_ID] => [DESCRIPTION] => [~DESCRIPTION] => [~VALUE] => ) [HEIGHT_TOTAL] => Array ( [ID] => 143 [IBLOCK_ID] => 2 [NAME] => Высота общая, мм [ACTIVE] => Y [SORT] => 500 [CODE] => HEIGHT_TOTAL [DEFAULT_VALUE] => [PROPERTY_TYPE] => S [ROW_COUNT] => 1 [COL_COUNT] => 30 [LIST_TYPE] => L [MULTIPLE] => N [XML_ID] => [FILE_TYPE] => [MULTIPLE_CNT] => 5 [LINK_IBLOCK_ID] => 0 [WITH_DESCRIPTION] => N [SEARCHABLE] => N [FILTRABLE] => N [IS_REQUIRED] => N [VERSION] => 1 [USER_TYPE] => [USER_TYPE_SETTINGS] => Array ( ) [HINT] => [~NAME] => Высота общая, мм [~DEFAULT_VALUE] => [VALUE_ENUM] => [VALUE_XML_ID] => [VALUE_SORT] => [VALUE] => [PROPERTY_VALUE_ID] => [DESCRIPTION] => [~DESCRIPTION] => [~VALUE] => ) [HEIGHT_ABOVEGROUND] => Array ( [ID] => 144 [IBLOCK_ID] => 2 [NAME] => Высота надземной части, мм [ACTIVE] => Y [SORT] => 500 [CODE] => HEIGHT_ABOVEGROUND [DEFAULT_VALUE] => [PROPERTY_TYPE] => S [ROW_COUNT] => 1 [COL_COUNT] => 30 [LIST_TYPE] => L [MULTIPLE] => N [XML_ID] => [FILE_TYPE] => [MULTIPLE_CNT] => 5 [LINK_IBLOCK_ID] => 0 [WITH_DESCRIPTION] => N [SEARCHABLE] => N [FILTRABLE] => N [IS_REQUIRED] => N [VERSION] => 1 [USER_TYPE] => [USER_TYPE_SETTINGS] => Array ( ) [HINT] => [~NAME] => Высота надземной части, мм [~DEFAULT_VALUE] => [VALUE_ENUM] => [VALUE_XML_ID] => [VALUE_SORT] => [VALUE] => [PROPERTY_VALUE_ID] => [DESCRIPTION] => [~DESCRIPTION] => [~VALUE] => ) [HEIGHT_UNDERGROUND] => Array ( [ID] => 145 [IBLOCK_ID] => 2 [NAME] => Высота подземной части, мм [ACTIVE] => Y [SORT] => 500 [CODE] => HEIGHT_UNDERGROUND [DEFAULT_VALUE] => [PROPERTY_TYPE] => S [ROW_COUNT] => 1 [COL_COUNT] => 30 [LIST_TYPE] => L [MULTIPLE] => N [XML_ID] => [FILE_TYPE] => [MULTIPLE_CNT] => 5 [LINK_IBLOCK_ID] => 0 [WITH_DESCRIPTION] => N [SEARCHABLE] => N [FILTRABLE] => N [IS_REQUIRED] => N [VERSION] => 1 [USER_TYPE] => [USER_TYPE_SETTINGS] => Array ( ) [HINT] => [~NAME] => Высота подземной части, мм [~DEFAULT_VALUE] => [VALUE_ENUM] => [VALUE_XML_ID] => [VALUE_SORT] => [VALUE] => [PROPERTY_VALUE_ID] => [DESCRIPTION] => [~DESCRIPTION] => [~VALUE] => ) [DIAMETER_TOP] => Array ( [ID] => 146 [IBLOCK_ID] => 2 [NAME] => Диаметр верхний, мм [ACTIVE] => Y [SORT] => 500 [CODE] => DIAMETER_TOP [DEFAULT_VALUE] => [PROPERTY_TYPE] => S [ROW_COUNT] => 1 [COL_COUNT] => 30 [LIST_TYPE] => L [MULTIPLE] => N [XML_ID] => [FILE_TYPE] => [MULTIPLE_CNT] => 5 [LINK_IBLOCK_ID] => 0 [WITH_DESCRIPTION] => N [SEARCHABLE] => N [FILTRABLE] => N [IS_REQUIRED] => N [VERSION] => 1 [USER_TYPE] => [USER_TYPE_SETTINGS] => Array ( ) [HINT] => [~NAME] => Диаметр верхний, мм [~DEFAULT_VALUE] => [VALUE_ENUM] => [VALUE_XML_ID] => [VALUE_SORT] => [VALUE] => [PROPERTY_VALUE_ID] => [DESCRIPTION] => [~DESCRIPTION] => [~VALUE] => ) [DIAMETER_BOTTOM] => Array ( [ID] => 147 [IBLOCK_ID] => 2 [NAME] => Диаметр нижний, мм [ACTIVE] => Y [SORT] => 500 [CODE] => DIAMETER_BOTTOM [DEFAULT_VALUE] => [PROPERTY_TYPE] => S [ROW_COUNT] => 1 [COL_COUNT] => 30 [LIST_TYPE] => L [MULTIPLE] => N [XML_ID] => [FILE_TYPE] => [MULTIPLE_CNT] => 5 [LINK_IBLOCK_ID] => 0 [WITH_DESCRIPTION] => N [SEARCHABLE] => N [FILTRABLE] => N [IS_REQUIRED] => N [VERSION] => 1 [USER_TYPE] => [USER_TYPE_SETTINGS] => Array ( ) [HINT] => [~NAME] => Диаметр нижний, мм [~DEFAULT_VALUE] => [VALUE_ENUM] => [VALUE_XML_ID] => [VALUE_SORT] => [VALUE] => [PROPERTY_VALUE_ID] => [DESCRIPTION] => [~DESCRIPTION] => [~VALUE] => ) [WEIGHT] => Array ( [ID] => 148 [IBLOCK_ID] => 2 [NAME] => Нагрузка, кг [ACTIVE] => Y [SORT] => 500 [CODE] => WEIGHT [DEFAULT_VALUE] => [PROPERTY_TYPE] => S [ROW_COUNT] => 1 [COL_COUNT] => 30 [LIST_TYPE] => L [MULTIPLE] => N [XML_ID] => [FILE_TYPE] => [MULTIPLE_CNT] => 5 [LINK_IBLOCK_ID] => 0 [WITH_DESCRIPTION] => N [SEARCHABLE] => N [FILTRABLE] => N [IS_REQUIRED] => N [VERSION] => 1 [USER_TYPE] => [USER_TYPE_SETTINGS] => Array ( ) [HINT] => [~NAME] => Нагрузка, кг [~DEFAULT_VALUE] => [VALUE_ENUM] => [VALUE_XML_ID] => [VALUE_SORT] => [VALUE] => [PROPERTY_VALUE_ID] => [DESCRIPTION] => [~DESCRIPTION] => [~VALUE] => ) [VID] => Array ( [ID] => 149 [IBLOCK_ID] => 2 [NAME] => Вид [ACTIVE] => Y [SORT] => 500 [CODE] => VID [DEFAULT_VALUE] => [PROPERTY_TYPE] => S [ROW_COUNT] => 1 [COL_COUNT] => 30 [LIST_TYPE] => L [MULTIPLE] => N [XML_ID] => [FILE_TYPE] => [MULTIPLE_CNT] => 5 [LINK_IBLOCK_ID] => 0 [WITH_DESCRIPTION] => N [SEARCHABLE] => N [FILTRABLE] => N [IS_REQUIRED] => N [VERSION] => 1 [USER_TYPE] => [USER_TYPE_SETTINGS] => Array ( ) [HINT] => [~NAME] => Вид [~DEFAULT_VALUE] => [VALUE_ENUM] => [VALUE_XML_ID] => [VALUE_SORT] => [VALUE] => [PROPERTY_VALUE_ID] => [DESCRIPTION] => [~DESCRIPTION] => [~VALUE] => ) [SERVICE_LIFE] => Array ( [ID] => 150 [IBLOCK_ID] => 2 [NAME] => Срок службы [ACTIVE] => Y [SORT] => 500 [CODE] => SERVICE_LIFE [DEFAULT_VALUE] => [PROPERTY_TYPE] => S [ROW_COUNT] => 1 [COL_COUNT] => 30 [LIST_TYPE] => L [MULTIPLE] => N [XML_ID] => [FILE_TYPE] => [MULTIPLE_CNT] => 5 [LINK_IBLOCK_ID] => 0 [WITH_DESCRIPTION] => N [SEARCHABLE] => N [FILTRABLE] => N [IS_REQUIRED] => N [VERSION] => 1 [USER_TYPE] => [USER_TYPE_SETTINGS] => Array ( ) [HINT] => [~NAME] => Срок службы [~DEFAULT_VALUE] => [VALUE_ENUM] => [VALUE_XML_ID] => [VALUE_SORT] => [VALUE] => [PROPERTY_VALUE_ID] => [DESCRIPTION] => [~DESCRIPTION] => [~VALUE] => ) [USING] => Array ( [ID] => 151 [IBLOCK_ID] => 2 [NAME] => Применение [ACTIVE] => Y [SORT] => 500 [CODE] => USING [DEFAULT_VALUE] => [PROPERTY_TYPE] => S [ROW_COUNT] => 1 [COL_COUNT] => 30 [LIST_TYPE] => L [MULTIPLE] => N [XML_ID] => [FILE_TYPE] => [MULTIPLE_CNT] => 5 [LINK_IBLOCK_ID] => 0 [WITH_DESCRIPTION] => N [SEARCHABLE] => N [FILTRABLE] => N [IS_REQUIRED] => N [VERSION] => 1 [USER_TYPE] => [USER_TYPE_SETTINGS] => Array ( ) [HINT] => [~NAME] => Применение [~DEFAULT_VALUE] => [VALUE_ENUM] => [VALUE_XML_ID] => [VALUE_SORT] => [VALUE] => [PROPERTY_VALUE_ID] => [DESCRIPTION] => [~DESCRIPTION] => [~VALUE] => ) [HEIGHT_ZAK] => Array ( [ID] => 152 [IBLOCK_ID] => 2 [NAME] => Высота закладного элемента фундамента [ACTIVE] => Y [SORT] => 500 [CODE] => HEIGHT_ZAK [DEFAULT_VALUE] => [PROPERTY_TYPE] => S [ROW_COUNT] => 1 [COL_COUNT] => 30 [LIST_TYPE] => L [MULTIPLE] => N [XML_ID] => [FILE_TYPE] => [MULTIPLE_CNT] => 5 [LINK_IBLOCK_ID] => 0 [WITH_DESCRIPTION] => N [SEARCHABLE] => N [FILTRABLE] => N [IS_REQUIRED] => N [VERSION] => 1 [USER_TYPE] => [USER_TYPE_SETTINGS] => Array ( ) [HINT] => [~NAME] => Высота закладного элемента фундамента [~DEFAULT_VALUE] => [VALUE_ENUM] => [VALUE_XML_ID] => [VALUE_SORT] => [VALUE] => [PROPERTY_VALUE_ID] => [DESCRIPTION] => [~DESCRIPTION] => [~VALUE] => ) [LENGTH_CONSOLE] => Array ( [ID] => 153 [IBLOCK_ID] => 2 [NAME] => Длина консоли [ACTIVE] => Y [SORT] => 500 [CODE] => LENGTH_CONSOLE [DEFAULT_VALUE] => [PROPERTY_TYPE] => S [ROW_COUNT] => 1 [COL_COUNT] => 30 [LIST_TYPE] => L [MULTIPLE] => N [XML_ID] => [FILE_TYPE] => [MULTIPLE_CNT] => 5 [LINK_IBLOCK_ID] => 0 [WITH_DESCRIPTION] => N [SEARCHABLE] => N [FILTRABLE] => N [IS_REQUIRED] => N [VERSION] => 1 [USER_TYPE] => [USER_TYPE_SETTINGS] => Array ( ) [HINT] => [~NAME] => Длина консоли [~DEFAULT_VALUE] => [VALUE_ENUM] => [VALUE_XML_ID] => [VALUE_SORT] => [VALUE] => [PROPERTY_VALUE_ID] => [DESCRIPTION] => [~DESCRIPTION] => [~VALUE] => ) [HEIGHT_TOP_SECTION] => Array ( [ID] => 154 [IBLOCK_ID] => 2 [NAME] => Высота верхней секции, мм [ACTIVE] => Y [SORT] => 500 [CODE] => HEIGHT_TOP_SECTION [DEFAULT_VALUE] => [PROPERTY_TYPE] => S [ROW_COUNT] => 1 [COL_COUNT] => 30 [LIST_TYPE] => L [MULTIPLE] => N [XML_ID] => [FILE_TYPE] => [MULTIPLE_CNT] => 5 [LINK_IBLOCK_ID] => 0 [WITH_DESCRIPTION] => N [SEARCHABLE] => N [FILTRABLE] => N [IS_REQUIRED] => N [VERSION] => 1 [USER_TYPE] => [USER_TYPE_SETTINGS] => Array ( ) [HINT] => [~NAME] => Высота верхней секции, мм [~DEFAULT_VALUE] => [VALUE_ENUM] => [VALUE_XML_ID] => [VALUE_SORT] => [VALUE] => [PROPERTY_VALUE_ID] => [DESCRIPTION] => [~DESCRIPTION] => [~VALUE] => ) [SIP] => Array ( [ID] => 156 [IBLOCK_ID] => 2 [NAME] => Возможность подвеса СИП [ACTIVE] => Y [SORT] => 500 [CODE] => SIP [DEFAULT_VALUE] => [PROPERTY_TYPE] => S [ROW_COUNT] => 1 [COL_COUNT] => 30 [LIST_TYPE] => L [MULTIPLE] => N [XML_ID] => [FILE_TYPE] => [MULTIPLE_CNT] => 5 [LINK_IBLOCK_ID] => 0 [WITH_DESCRIPTION] => N [SEARCHABLE] => N [FILTRABLE] => N [IS_REQUIRED] => N [VERSION] => 1 [USER_TYPE] => [USER_TYPE_SETTINGS] => Array ( ) [HINT] => [~NAME] => Возможность подвеса СИП [~DEFAULT_VALUE] => [VALUE_ENUM] => [VALUE_XML_ID] => [VALUE_SORT] => [VALUE] => [PROPERTY_VALUE_ID] => [DESCRIPTION] => [~DESCRIPTION] => [~VALUE] => ) [COUNT_GRANY] => Array ( [ID] => 157 [IBLOCK_ID] => 2 [NAME] => Количество граней [ACTIVE] => Y [SORT] => 500 [CODE] => COUNT_GRANY [DEFAULT_VALUE] => [PROPERTY_TYPE] => S [ROW_COUNT] => 1 [COL_COUNT] => 30 [LIST_TYPE] => L [MULTIPLE] => N [XML_ID] => [FILE_TYPE] => [MULTIPLE_CNT] => 5 [LINK_IBLOCK_ID] => 0 [WITH_DESCRIPTION] => N [SEARCHABLE] => N [FILTRABLE] => N [IS_REQUIRED] => N [VERSION] => 1 [USER_TYPE] => [USER_TYPE_SETTINGS] => Array ( ) [HINT] => [~NAME] => Количество граней [~DEFAULT_VALUE] => [VALUE_ENUM] => [VALUE_XML_ID] => [VALUE_SORT] => [VALUE] => [PROPERTY_VALUE_ID] => [DESCRIPTION] => [~DESCRIPTION] => [~VALUE] => ) [HEIGHT_BOTTOM_SECTION] => Array ( [ID] => 158 [IBLOCK_ID] => 2 [NAME] => Высота нижней секции, мм [ACTIVE] => Y [SORT] => 500 [CODE] => HEIGHT_BOTTOM_SECTION [DEFAULT_VALUE] => [PROPERTY_TYPE] => S [ROW_COUNT] => 1 [COL_COUNT] => 30 [LIST_TYPE] => L [MULTIPLE] => N [XML_ID] => [FILE_TYPE] => [MULTIPLE_CNT] => 5 [LINK_IBLOCK_ID] => 0 [WITH_DESCRIPTION] => N [SEARCHABLE] => N [FILTRABLE] => N [IS_REQUIRED] => N [VERSION] => 1 [USER_TYPE] => [USER_TYPE_SETTINGS] => Array ( ) [HINT] => [~NAME] => Высота нижней секции, мм [~DEFAULT_VALUE] => [VALUE_ENUM] => [VALUE_XML_ID] => [VALUE_SORT] => [VALUE] => [PROPERTY_VALUE_ID] => [DESCRIPTION] => [~DESCRIPTION] => [~VALUE] => ) [STEEL_THICKNESS] => Array ( [ID] => 160 [IBLOCK_ID] => 2 [NAME] => Толщина стали [ACTIVE] => Y [SORT] => 500 [CODE] => STEEL_THICKNESS [DEFAULT_VALUE] => [PROPERTY_TYPE] => S [ROW_COUNT] => 1 [COL_COUNT] => 30 [LIST_TYPE] => L [MULTIPLE] => N [XML_ID] => [FILE_TYPE] => [MULTIPLE_CNT] => 5 [LINK_IBLOCK_ID] => 0 [WITH_DESCRIPTION] => N [SEARCHABLE] => N [FILTRABLE] => N [IS_REQUIRED] => N [VERSION] => 1 [USER_TYPE] => [USER_TYPE_SETTINGS] => Array ( ) [HINT] => [~NAME] => Толщина стали [~DEFAULT_VALUE] => [VALUE_ENUM] => [VALUE_XML_ID] => [VALUE_SORT] => [VALUE] => [PROPERTY_VALUE_ID] => [DESCRIPTION] => [~DESCRIPTION] => [~VALUE] => ) [SIZE_OPOR_FLANEC] => Array ( [ID] => 161 [IBLOCK_ID] => 2 [NAME] => Размеры опорного фланца [ACTIVE] => Y [SORT] => 500 [CODE] => SIZE_OPOR_FLANEC [DEFAULT_VALUE] => [PROPERTY_TYPE] => S [ROW_COUNT] => 1 [COL_COUNT] => 30 [LIST_TYPE] => L [MULTIPLE] => N [XML_ID] => [FILE_TYPE] => [MULTIPLE_CNT] => 5 [LINK_IBLOCK_ID] => 0 [WITH_DESCRIPTION] => N [SEARCHABLE] => N [FILTRABLE] => N [IS_REQUIRED] => N [VERSION] => 1 [USER_TYPE] => [USER_TYPE_SETTINGS] => Array ( ) [HINT] => [~NAME] => Размеры опорного фланца [~DEFAULT_VALUE] => [VALUE_ENUM] => [VALUE_XML_ID] => [VALUE_SORT] => [VALUE] => [PROPERTY_VALUE_ID] => [DESCRIPTION] => [~DESCRIPTION] => [~VALUE] => ) [POKRASKA] => Array ( [ID] => 162 [IBLOCK_ID] => 2 [NAME] => Лакокрасочное покрытие [ACTIVE] => Y [SORT] => 500 [CODE] => POKRASKA [DEFAULT_VALUE] => [PROPERTY_TYPE] => S [ROW_COUNT] => 1 [COL_COUNT] => 30 [LIST_TYPE] => L [MULTIPLE] => N [XML_ID] => [FILE_TYPE] => [MULTIPLE_CNT] => 5 [LINK_IBLOCK_ID] => 0 [WITH_DESCRIPTION] => N [SEARCHABLE] => N [FILTRABLE] => N [IS_REQUIRED] => N [VERSION] => 1 [USER_TYPE] => [USER_TYPE_SETTINGS] => Array ( ) [HINT] => [~NAME] => Лакокрасочное покрытие [~DEFAULT_VALUE] => [VALUE_ENUM] => [VALUE_XML_ID] => [VALUE_SORT] => [VALUE] => [PROPERTY_VALUE_ID] => [DESCRIPTION] => [~DESCRIPTION] => [~VALUE] => ) [VES] => Array ( [ID] => 163 [IBLOCK_ID] => 2 [NAME] => Вес [ACTIVE] => Y [SORT] => 500 [CODE] => VES [DEFAULT_VALUE] => [PROPERTY_TYPE] => S [ROW_COUNT] => 1 [COL_COUNT] => 30 [LIST_TYPE] => L [MULTIPLE] => N [XML_ID] => [FILE_TYPE] => [MULTIPLE_CNT] => 5 [LINK_IBLOCK_ID] => 0 [WITH_DESCRIPTION] => N [SEARCHABLE] => N [FILTRABLE] => N [IS_REQUIRED] => N [VERSION] => 1 [USER_TYPE] => [USER_TYPE_SETTINGS] => Array ( ) [HINT] => [~NAME] => Вес [~DEFAULT_VALUE] => [VALUE_ENUM] => [VALUE_XML_ID] => [VALUE_SORT] => [VALUE] => [PROPERTY_VALUE_ID] => [DESCRIPTION] => [~DESCRIPTION] => [~VALUE] => ) [INSTALL_LYUCHKA] => Array ( [ID] => 164 [IBLOCK_ID] => 2 [NAME] => Возможность установки лючка [ACTIVE] => Y [SORT] => 500 [CODE] => INSTALL_LYUCHKA [DEFAULT_VALUE] => [PROPERTY_TYPE] => S [ROW_COUNT] => 1 [COL_COUNT] => 30 [LIST_TYPE] => L [MULTIPLE] => N [XML_ID] => [FILE_TYPE] => [MULTIPLE_CNT] => 5 [LINK_IBLOCK_ID] => 0 [WITH_DESCRIPTION] => N [SEARCHABLE] => N [FILTRABLE] => N [IS_REQUIRED] => N [VERSION] => 1 [USER_TYPE] => [USER_TYPE_SETTINGS] => Array ( ) [HINT] => [~NAME] => Возможность установки лючка [~DEFAULT_VALUE] => [VALUE_ENUM] => [VALUE_XML_ID] => [VALUE_SORT] => [VALUE] => [PROPERTY_VALUE_ID] => [DESCRIPTION] => [~DESCRIPTION] => [~VALUE] => ) [DIAMETER_FLANCA] => Array ( [ID] => 165 [IBLOCK_ID] => 2 [NAME] => Диаметр фланца, мм [ACTIVE] => Y [SORT] => 500 [CODE] => DIAMETER_FLANCA [DEFAULT_VALUE] => [PROPERTY_TYPE] => S [ROW_COUNT] => 1 [COL_COUNT] => 30 [LIST_TYPE] => L [MULTIPLE] => N [XML_ID] => [FILE_TYPE] => [MULTIPLE_CNT] => 5 [LINK_IBLOCK_ID] => 0 [WITH_DESCRIPTION] => N [SEARCHABLE] => N [FILTRABLE] => N [IS_REQUIRED] => N [VERSION] => 1 [USER_TYPE] => [USER_TYPE_SETTINGS] => Array ( ) [HINT] => [~NAME] => Диаметр фланца, мм [~DEFAULT_VALUE] => [VALUE_ENUM] => [VALUE_XML_ID] => [VALUE_SORT] => [VALUE] => [PROPERTY_VALUE_ID] => [DESCRIPTION] => [~DESCRIPTION] => [~VALUE] => ) [COUNT_LIGHT] => Array ( [ID] => 166 [IBLOCK_ID] => 2 [NAME] => Количество осветительных приборов, шт [ACTIVE] => Y [SORT] => 500 [CODE] => COUNT_LIGHT [DEFAULT_VALUE] => [PROPERTY_TYPE] => S [ROW_COUNT] => 1 [COL_COUNT] => 30 [LIST_TYPE] => L [MULTIPLE] => N [XML_ID] => [FILE_TYPE] => [MULTIPLE_CNT] => 5 [LINK_IBLOCK_ID] => 0 [WITH_DESCRIPTION] => N [SEARCHABLE] => N [FILTRABLE] => N [IS_REQUIRED] => N [VERSION] => 1 [USER_TYPE] => [USER_TYPE_SETTINGS] => Array ( ) [HINT] => [~NAME] => Количество осветительных приборов, шт [~DEFAULT_VALUE] => [VALUE_ENUM] => [VALUE_XML_ID] => [VALUE_SORT] => [VALUE] => [PROPERTY_VALUE_ID] => [DESCRIPTION] => [~DESCRIPTION] => [~VALUE] => ) [WEIGHT_TO_KRON] => Array ( [ID] => 167 [IBLOCK_ID] => 2 [NAME] => Высота до кронштейна, мм [ACTIVE] => Y [SORT] => 500 [CODE] => WEIGHT_TO_KRON [DEFAULT_VALUE] => [PROPERTY_TYPE] => S [ROW_COUNT] => 1 [COL_COUNT] => 30 [LIST_TYPE] => L [MULTIPLE] => N [XML_ID] => [FILE_TYPE] => [MULTIPLE_CNT] => 5 [LINK_IBLOCK_ID] => 0 [WITH_DESCRIPTION] => N [SEARCHABLE] => N [FILTRABLE] => N [IS_REQUIRED] => N [VERSION] => 1 [USER_TYPE] => [USER_TYPE_SETTINGS] => Array ( ) [HINT] => [~NAME] => Высота до кронштейна, мм [~DEFAULT_VALUE] => [VALUE_ENUM] => [VALUE_XML_ID] => [VALUE_SORT] => [VALUE] => [PROPERTY_VALUE_ID] => [DESCRIPTION] => [~DESCRIPTION] => [~VALUE] => ) [SIZE_FLANEC] => Array ( [ID] => 169 [IBLOCK_ID] => 2 [NAME] => Размер фланца [ACTIVE] => Y [SORT] => 500 [CODE] => SIZE_FLANEC [DEFAULT_VALUE] => [PROPERTY_TYPE] => S [ROW_COUNT] => 1 [COL_COUNT] => 30 [LIST_TYPE] => L [MULTIPLE] => N [XML_ID] => [FILE_TYPE] => [MULTIPLE_CNT] => 5 [LINK_IBLOCK_ID] => 0 [WITH_DESCRIPTION] => N [SEARCHABLE] => N [FILTRABLE] => N [IS_REQUIRED] => N [VERSION] => 1 [USER_TYPE] => [USER_TYPE_SETTINGS] => Array ( ) [HINT] => [~NAME] => Размер фланца [~DEFAULT_VALUE] => [VALUE_ENUM] => [VALUE_XML_ID] => [VALUE_SORT] => [VALUE] => [PROPERTY_VALUE_ID] => [DESCRIPTION] => [~DESCRIPTION] => [~VALUE] => ) [WEIGHT_MIDDLE_SECTION] => Array ( [ID] => 170 [IBLOCK_ID] => 2 [NAME] => Высота промежуточной секции, мм [ACTIVE] => Y [SORT] => 500 [CODE] => WEIGHT_MIDDLE_SECTION [DEFAULT_VALUE] => [PROPERTY_TYPE] => S [ROW_COUNT] => 1 [COL_COUNT] => 30 [LIST_TYPE] => L [MULTIPLE] => N [XML_ID] => [FILE_TYPE] => [MULTIPLE_CNT] => 5 [LINK_IBLOCK_ID] => 0 [WITH_DESCRIPTION] => N [SEARCHABLE] => N [FILTRABLE] => N [IS_REQUIRED] => N [VERSION] => 1 [USER_TYPE] => [USER_TYPE_SETTINGS] => Array ( ) [HINT] => [~NAME] => Высота промежуточной секции, мм [~DEFAULT_VALUE] => [VALUE_ENUM] => [VALUE_XML_ID] => [VALUE_SORT] => [VALUE] => [PROPERTY_VALUE_ID] => [DESCRIPTION] => [~DESCRIPTION] => [~VALUE] => ) [DEFEND_POKRYTIE] => Array ( [ID] => 171 [IBLOCK_ID] => 2 [NAME] => Защитное покрытие [ACTIVE] => Y [SORT] => 500 [CODE] => DEFEND_POKRYTIE [DEFAULT_VALUE] => [PROPERTY_TYPE] => S [ROW_COUNT] => 1 [COL_COUNT] => 30 [LIST_TYPE] => L [MULTIPLE] => N [XML_ID] => [FILE_TYPE] => [MULTIPLE_CNT] => 5 [LINK_IBLOCK_ID] => 0 [WITH_DESCRIPTION] => N [SEARCHABLE] => N [FILTRABLE] => N [IS_REQUIRED] => N [VERSION] => 1 [USER_TYPE] => [USER_TYPE_SETTINGS] => Array ( ) [HINT] => [~NAME] => Защитное покрытие [~DEFAULT_VALUE] => [VALUE_ENUM] => [VALUE_XML_ID] => [VALUE_SORT] => [VALUE] => [PROPERTY_VALUE_ID] => [DESCRIPTION] => [~DESCRIPTION] => [~VALUE] => ) [WIND_REGION] => Array ( [ID] => 172 [IBLOCK_ID] => 2 [NAME] => Ветровой район [ACTIVE] => Y [SORT] => 500 [CODE] => WIND_REGION [DEFAULT_VALUE] => [PROPERTY_TYPE] => S [ROW_COUNT] => 1 [COL_COUNT] => 30 [LIST_TYPE] => L [MULTIPLE] => N [XML_ID] => [FILE_TYPE] => [MULTIPLE_CNT] => 5 [LINK_IBLOCK_ID] => 0 [WITH_DESCRIPTION] => N [SEARCHABLE] => N [FILTRABLE] => N [IS_REQUIRED] => N [VERSION] => 1 [USER_TYPE] => [USER_TYPE_SETTINGS] => Array ( ) [HINT] => [~NAME] => Ветровой район [~DEFAULT_VALUE] => [VALUE_ENUM] => [VALUE_XML_ID] => [VALUE_SORT] => [VALUE] => [PROPERTY_VALUE_ID] => [DESCRIPTION] => [~DESCRIPTION] => [~VALUE] => ) [DIAMETER_OPOR_FLANCA] => Array ( [ID] => 173 [IBLOCK_ID] => 2 [NAME] => Диаметр опорного фланца, мм [ACTIVE] => Y [SORT] => 500 [CODE] => DIAMETER_OPOR_FLANCA [DEFAULT_VALUE] => [PROPERTY_TYPE] => S [ROW_COUNT] => 1 [COL_COUNT] => 30 [LIST_TYPE] => L [MULTIPLE] => N [XML_ID] => [FILE_TYPE] => [MULTIPLE_CNT] => 5 [LINK_IBLOCK_ID] => 0 [WITH_DESCRIPTION] => N [SEARCHABLE] => N [FILTRABLE] => N [IS_REQUIRED] => N [VERSION] => 1 [USER_TYPE] => [USER_TYPE_SETTINGS] => Array ( ) [HINT] => [~NAME] => Диаметр опорного фланца, мм [~DEFAULT_VALUE] => [VALUE_ENUM] => [VALUE_XML_ID] => [VALUE_SORT] => [VALUE] => [PROPERTY_VALUE_ID] => [DESCRIPTION] => [~DESCRIPTION] => [~VALUE] => ) [CENTER_DIST] => Array ( [ID] => 174 [IBLOCK_ID] => 2 [NAME] => Межцентровое расстояние, мм [ACTIVE] => Y [SORT] => 500 [CODE] => CENTER_DIST [DEFAULT_VALUE] => [PROPERTY_TYPE] => S [ROW_COUNT] => 1 [COL_COUNT] => 30 [LIST_TYPE] => L [MULTIPLE] => N [XML_ID] => [FILE_TYPE] => [MULTIPLE_CNT] => 5 [LINK_IBLOCK_ID] => 0 [WITH_DESCRIPTION] => N [SEARCHABLE] => N [FILTRABLE] => N [IS_REQUIRED] => N [VERSION] => 1 [USER_TYPE] => [USER_TYPE_SETTINGS] => Array ( ) [HINT] => [~NAME] => Межцентровое расстояние, мм [~DEFAULT_VALUE] => [VALUE_ENUM] => [VALUE_XML_ID] => [VALUE_SORT] => [VALUE] => [PROPERTY_VALUE_ID] => [DESCRIPTION] => [~DESCRIPTION] => [~VALUE] => ) [FLANEC_THICKNESS] => Array ( [ID] => 175 [IBLOCK_ID] => 2 [NAME] => Толщина фланца, мм [ACTIVE] => Y [SORT] => 500 [CODE] => FLANEC_THICKNESS [DEFAULT_VALUE] => [PROPERTY_TYPE] => S [ROW_COUNT] => 1 [COL_COUNT] => 30 [LIST_TYPE] => L [MULTIPLE] => N [XML_ID] => [FILE_TYPE] => [MULTIPLE_CNT] => 5 [LINK_IBLOCK_ID] => 0 [WITH_DESCRIPTION] => N [SEARCHABLE] => N [FILTRABLE] => N [IS_REQUIRED] => N [VERSION] => 1 [USER_TYPE] => [USER_TYPE_SETTINGS] => Array ( ) [HINT] => [~NAME] => Толщина фланца, мм [~DEFAULT_VALUE] => [VALUE_ENUM] => [VALUE_XML_ID] => [VALUE_SORT] => [VALUE] => [PROPERTY_VALUE_ID] => [DESCRIPTION] => [~DESCRIPTION] => [~VALUE] => ) [COUNT_HOLE] => Array ( [ID] => 176 [IBLOCK_ID] => 2 [NAME] => Количество отверстий крепления, шт [ACTIVE] => Y [SORT] => 500 [CODE] => COUNT_HOLE [DEFAULT_VALUE] => [PROPERTY_TYPE] => S [ROW_COUNT] => 1 [COL_COUNT] => 30 [LIST_TYPE] => L [MULTIPLE] => N [XML_ID] => [FILE_TYPE] => [MULTIPLE_CNT] => 5 [LINK_IBLOCK_ID] => 0 [WITH_DESCRIPTION] => N [SEARCHABLE] => N [FILTRABLE] => N [IS_REQUIRED] => N [VERSION] => 1 [USER_TYPE] => [USER_TYPE_SETTINGS] => Array ( ) [HINT] => [~NAME] => Количество отверстий крепления, шт [~DEFAULT_VALUE] => [VALUE_ENUM] => [VALUE_XML_ID] => [VALUE_SORT] => [VALUE] => [PROPERTY_VALUE_ID] => [DESCRIPTION] => [~DESCRIPTION] => [~VALUE] => ) [INSPECTION_WINDOW] => Array ( [ID] => 179 [IBLOCK_ID] => 2 [NAME] => Ревизионное окно, мм [ACTIVE] => Y [SORT] => 500 [CODE] => INSPECTION_WINDOW [DEFAULT_VALUE] => [PROPERTY_TYPE] => S [ROW_COUNT] => 1 [COL_COUNT] => 30 [LIST_TYPE] => L [MULTIPLE] => N [XML_ID] => [FILE_TYPE] => [MULTIPLE_CNT] => 5 [LINK_IBLOCK_ID] => 0 [WITH_DESCRIPTION] => N [SEARCHABLE] => N [FILTRABLE] => N [IS_REQUIRED] => N [VERSION] => 1 [USER_TYPE] => [USER_TYPE_SETTINGS] => Array ( ) [HINT] => [~NAME] => Ревизионное окно, мм [~DEFAULT_VALUE] => [VALUE_ENUM] => [VALUE_XML_ID] => [VALUE_SORT] => [VALUE] => [PROPERTY_VALUE_ID] => [DESCRIPTION] => [~DESCRIPTION] => [~VALUE] => ) [THREE_MODEL] => Array ( [ID] => 182 [IBLOCK_ID] => 2 [NAME] => 3D-модель [ACTIVE] => Y [SORT] => 500 [CODE] => THREE_MODEL [DEFAULT_VALUE] => [PROPERTY_TYPE] => F [ROW_COUNT] => 1 [COL_COUNT] => 30 [LIST_TYPE] => L [MULTIPLE] => N [XML_ID] => [FILE_TYPE] => [MULTIPLE_CNT] => 5 [LINK_IBLOCK_ID] => 0 [WITH_DESCRIPTION] => N [SEARCHABLE] => N [FILTRABLE] => N [IS_REQUIRED] => N [VERSION] => 1 [USER_TYPE] => [USER_TYPE_SETTINGS] => Array ( ) [HINT] => [~NAME] => 3D-модель [~DEFAULT_VALUE] => [VALUE_ENUM] => [VALUE_XML_ID] => [VALUE_SORT] => [VALUE] => [PROPERTY_VALUE_ID] => [DESCRIPTION] => [~DESCRIPTION] => [~VALUE] => ) [FAQ] => Array ( [ID] => 183 [IBLOCK_ID] => 2 [NAME] => FAQ [ACTIVE] => Y [SORT] => 500 [CODE] => FAQ [DEFAULT_VALUE] => Array ( [TYPE] => TEXT [TEXT] => ) [PROPERTY_TYPE] => S [ROW_COUNT] => 1 [COL_COUNT] => 30 [LIST_TYPE] => L [MULTIPLE] => N [XML_ID] => [FILE_TYPE] => [MULTIPLE_CNT] => 5 [LINK_IBLOCK_ID] => 0 [WITH_DESCRIPTION] => N [SEARCHABLE] => N [FILTRABLE] => N [IS_REQUIRED] => N [VERSION] => 1 [USER_TYPE] => HTML [USER_TYPE_SETTINGS] => Array ( [height] => 200 ) [HINT] => [~NAME] => FAQ [~DEFAULT_VALUE] => Array ( [TYPE] => TEXT [TEXT] => ) [VALUE_ENUM] => [VALUE_XML_ID] => [VALUE_SORT] => [VALUE] => [PROPERTY_VALUE_ID] => [DESCRIPTION] => [~DESCRIPTION] => [~VALUE] => ) ) [DISPLAY_PROPERTIES] => Array ( [ITEM_PRICE] => Array ( [ID] => 22 [IBLOCK_ID] => 2 [NAME] => Цена [ACTIVE] => Y [SORT] => 3 [CODE] => ITEM_PRICE [DEFAULT_VALUE] => [PROPERTY_TYPE] => L [ROW_COUNT] => 1 [COL_COUNT] => 30 [LIST_TYPE] => L [MULTIPLE] => N [XML_ID] => 22 [FILE_TYPE] => [MULTIPLE_CNT] => 5 [LINK_IBLOCK_ID] => 0 [WITH_DESCRIPTION] => N [SEARCHABLE] => N [FILTRABLE] => N [IS_REQUIRED] => Y [VERSION] => 1 [USER_TYPE] => [USER_TYPE_SETTINGS] => Array ( ) [HINT] => [~NAME] => Цена [~DEFAULT_VALUE] => [VALUE_ENUM] => По запросу [VALUE_XML_ID] => on-request [VALUE_SORT] => 1 [VALUE] => По запросу [PROPERTY_VALUE_ID] => 6825498 [VALUE_ENUM_ID] => 9 [DESCRIPTION] => [~VALUE] => По запросу [~DESCRIPTION] => [DISPLAY_VALUE] => По запросу ) [ITEM_CHARACTERISTICS] => Array ( [ID] => 28 [IBLOCK_ID] => 2 [NAME] => Характеристики [ACTIVE] => Y [SORT] => 6 [CODE] => ITEM_CHARACTERISTICS [DEFAULT_VALUE] => [PROPERTY_TYPE] => S [ROW_COUNT] => 1 [COL_COUNT] => 20 [LIST_TYPE] => L [MULTIPLE] => Y [XML_ID] => 28 [FILE_TYPE] => [MULTIPLE_CNT] => 1 [LINK_IBLOCK_ID] => 0 [WITH_DESCRIPTION] => Y [SEARCHABLE] => N [FILTRABLE] => N [IS_REQUIRED] => N [VERSION] => 1 [USER_TYPE] => [USER_TYPE_SETTINGS] => Array ( ) [HINT] => [~NAME] => Характеристики [~DEFAULT_VALUE] => [VALUE_ENUM] => [VALUE_XML_ID] => [VALUE_SORT] => [VALUE] => Array ( [0] => ВЛ 110 кВ по шифру 22.0099 [1] => фланцевая [2] => граненая [3] => 25000 [4] => 13700 [5] => 750 [6] => 200 [7] => промежуточная [8] => Горячее цинкование [9] => Порошковое / полимерное окрашивание [10] => 30 лет [11] => 110 ) [PROPERTY_VALUE_ID] => Array ( [0] => 6820933 [1] => 6820934 [2] => 6820935 [3] => 6820936 [4] => 6820937 [5] => 6820938 [6] => 6820939 [7] => 6820940 [8] => 6820941 [9] => 6820942 [10] => 6820943 [11] => 6825499 ) [DESCRIPTION] => Array ( [0] => Тип [1] => Способ установки [2] => Способ производства [3] => Высота, мм [4] => Высота до нижней траверсы. мм [5] => Диаметр нижний, мм [6] => Диаметр верхний, мм [7] => Назначение [8] => Защитное покрытие [9] => Лакокрасочное покрытие [10] => Срок службы [11] => Класс напряжения, кВ ) [~VALUE] => Array ( [0] => ВЛ 110 кВ по шифру 22.0099 [1] => фланцевая [2] => граненая [3] => 25000 [4] => 13700 [5] => 750 [6] => 200 [7] => промежуточная [8] => Горячее цинкование [9] => Порошковое / полимерное окрашивание [10] => 30 лет [11] => 110 ) [~DESCRIPTION] => Array ( [0] => Тип [1] => Способ установки [2] => Способ производства [3] => Высота, мм [4] => Высота до нижней траверсы. мм [5] => Диаметр нижний, мм [6] => Диаметр верхний, мм [7] => Назначение [8] => Защитное покрытие [9] => Лакокрасочное покрытие [10] => Срок службы [11] => Класс напряжения, кВ ) [DISPLAY_VALUE] => Array ( [0] => ВЛ 110 кВ по шифру 22.0099 [1] => фланцевая [2] => граненая [3] => 25000 [4] => 13700 [5] => 750 [6] => 200 [7] => промежуточная [8] => Горячее цинкование [9] => Порошковое / полимерное окрашивание [10] => 30 лет [11] => 110 ) ) ) [PRODUCT_PROPERTIES] => Array ( ) [PRODUCT_PROPERTIES_FILL] => Array ( ) [OFFERS] => Array ( ) [OFFER_ID_SELECTED] => 0 [CHECK_QUANTITY] => [ITEM_PRICE_MODE] => [ITEM_PRICES] => Array ( ) [ITEM_QUANTITY_RANGES] => Array ( ) [ITEM_MEASURE_RATIOS] => Array ( [2872] => Array ( [ID] => 2872 [RATIO] => 1 [IS_DEFAULT] => Y [PRODUCT_ID] => 15355 ) ) [ITEM_MEASURE] => Array ( [ID] => 5 [TITLE] => шт [~TITLE] => шт ) [ITEM_MEASURE_RATIO_SELECTED] => 2872 [ITEM_QUANTITY_RANGE_SELECTED] => [ITEM_PRICE_SELECTED] => [EDIT_LINK] => [DELETE_LINK] => [SECTION] => Array ( [PATH] => Array ( ) ) [CAN_BUY] => )

Стальные многогранные опоры ЛЭП — это несущие металлоконструкции для строительства и реконструкции воздушных линий электропередачи (ВЛ) различных классов напряжения: от распределительных сетей 6–10–35 кВ до магистральных линий высокого и сверхвысокого напряжения 110–220–330–500 кВ. Применяются в энергетике, промышленной и коммунальной инфраструктуре, а также на протяжённых межсистемных линиях электропередачи.

Конструкции проектируются с учётом ветровых, гололёдных и температурных нагрузок и обеспечивают надёжную работу ВЛ в различных климатических районах. Использование стальных многогранных опор ЛЭП позволяет повысить устойчивость линии, ускорить монтаж и снизить эксплуатационные затраты.

Конструкция многогранных опор ЛЭП

Многогранные опоры изготавливаются из листовой стали с формированием стоек в виде полых усечённых многогранников. Такая геометрия обеспечивает высокое соотношение прочности и массы, эффективную работу конструкции под действием постоянных и климатических нагрузок.

Секции стоек соединяются телескопическим методом с наружным сопряжением: верхняя секция надевается на нижнюю сверху с расчётной длиной захода.

Такое телескопическое соединение:

  • формирует жёсткий равнопрочный стык без фланцев;
  • не требует фланцевых узлов;
  • снижает металлоёмкость соединений;
  • уменьшает парусность конструкции;
  • ускоряет сборку опоры на трассе;
  • повышает технологичность монтажа ВЛ;
  • уменьшает количество болтовых соединений.

Траверсы имеют различные исполнения — многогранные, решётчатые или изолирующие — в зависимости от схемы линии, числа цепей и требуемых изоляционных расстояний.

Виды многогранных опор по назначению

В линейках производителей представлены опоры:

  • 6–10–35 кВ — распределительные сети и вводы на объекты;
  • 110 кВ — сети региональных и территориальных сетевых компаний;
  • 220 кВ — магистральные сети высокого напряжения;
  • 330 кВ — межсистемные и магистральные ВЛ сверхвысокого напряжения;
  • 500 кВ и выше — элементы ЕНЭС (Единая национальная (общероссийская) электрическая сеть) и протяжённых межрегиональных линий.

Конкретная конфигурация опоры ЛЭП (высота, тип стойки, количество цепей, исполнение траверс) определяется проектом линии, расчётными нагрузками, пролётами, категории местности и требованиями сетевой организации.

Ключевые критерии выбора опор ЛЭП

При выборе многогранных стальных опор учитывают:

  • класс напряжения, назначение линии электропередачи;
  • ветровой и гололёдный район по ПУЭ;
  • расчётные пролёты и высоту опоры и требования по габаритам над землёй и пересекаемыми объектами;
  • тип и компоновку траверс (одноцепные, двухцепные, портальные, изолирующие);
  • условия монтажа (подъезд, наличие крановой техники, рельеф местности), тип фундамента и особенности грунтов (установка во фланец, в грунт, на свайные и буронабивные основания);
  • антикоррозионную защиту и климатическое исполнение;
  • категорию размещения и агрессивность среды.

Фактические параметры и исполнение закладываются в проектной документации и рабочих чертежах при проектировании ВЛ.

Защита от коррозии и срок службы

Стальные опоры ЛЭП изготавливаются из стали классов С245/С345 с антикоррозионной защитой методом горячего цинкования, обеспечивающей долговременную защиту. При необходимости применяются дополнительные цинконаполненные или лакокрасочные покрытия.

Антикоррозионная защита позволяет эксплуатировать опоры ЛЭП десятилетиями даже в агрессивных климатических условиях — в северных регионах, промышленных зонах и районах с высокой влажностью.

Области применения

Многогранные опоры ЛЭП используются:

  • при строительстве магистральных ВЛ и распределительных ВЛ 6–500 кВ;
  • для развития распределительных электросетей;
  • при электроснабжении промышленных и инфраструктурных объектов;
  • при строительстве линий в удалённых и северных районах;
  • для модернизации и замене существующих ВЛ железобетонных и решётчатых опор.

Нормативная база

Проектирование и применение стальных опор ЛЭП выполняются согласно:

  • ПУЭ (Правилам устройства электроустановок);
  • профильным ГОСТам;
  • СП и строительным нормам по воздушным линиям электропередачи;
  • Типовым отраслевым проектам ВЛ и техническими условиями заказчика.

Соблюдение нормативных требований гарантирует нормативную безопасность, расчётную надёжность и ресурс опор на всём протяжении эксплуатации линии.

Преимущества многогранных опор по сравнению с решётчатыми и железобетонными конструкциями

По сравнению с традиционными решётчатыми и железобетонными опорами стальные многогранные опоры ЛЭП обеспечивают:

  • более быстрый монтаж и сокращение сроков строительства линии;
  • удобную транспортировку и компактные габариты секций;
  • меньший землеотвод и более аккуратный внешний вид опор;
  • высокую коррозионную стойкость за счёт горячего цинкования;
  • современную технологию производства и возможность серийного выпуска под типовые проекты.

FAQ

01. Какие напряжения поддерживают многогранные опоры ЛЭП?

Многогранные опоры применяются на ВЛ от 6–10 до 500 кВ и выше в зависимости от проектного решения.

02. Чем многогранные опоры лучше решётчатых?

Многогранные опоры ЛЭП отличают:

  • более быстрый монтаж;
  • удобная транспортировка;
  • меньший землеотвод;
  • высокая коррозионная стойкость;
  • современная технология производства.
03. В чём особенность телескопического соединения?

Верхняя секция надевается на нижнюю сверху. Такое соединение формирует жёсткий узел без фланцев, ускоряет сборку и повышает надёжность.

04. Какая сталь применяется?

Как правило, используется сталь С345 по ГОСТ 27772-88.

05. Можно ли изготовить опоры под проект?

Да. Высота, нагрузки, типы траверс и другие параметры подбираются под конкретную ВЛ.

Для подбора и заказа стальных многогранных опор ЛЭП вы можете направить схему линии, опросный лист или данные по существующим типовым проектам. Инженеры подготовят подбор опор по классам напряжения 6–10–35–110–220–330–500 кВ, подберут оптимальные конструкции по нагрузкам, предложат варианты антикоррозионной защиты и предоставят коммерческое предложение с указанием сроков изготовления и поставки.

Голосов 14 Рейтинг 4.8

Оставить заявку

Оставьте свои контактные данные и мы перезвоним
вам в ближайшее время.

Заявка успешно отправлена!
В ближайшее время наш менеджер свяжется с Вами.
Нажимая кнопку отправить, вы соглашаетесь с нашей политикой конфедециальности

Наши партнеры

Главная Каталог Заявка Контакты Завод
up